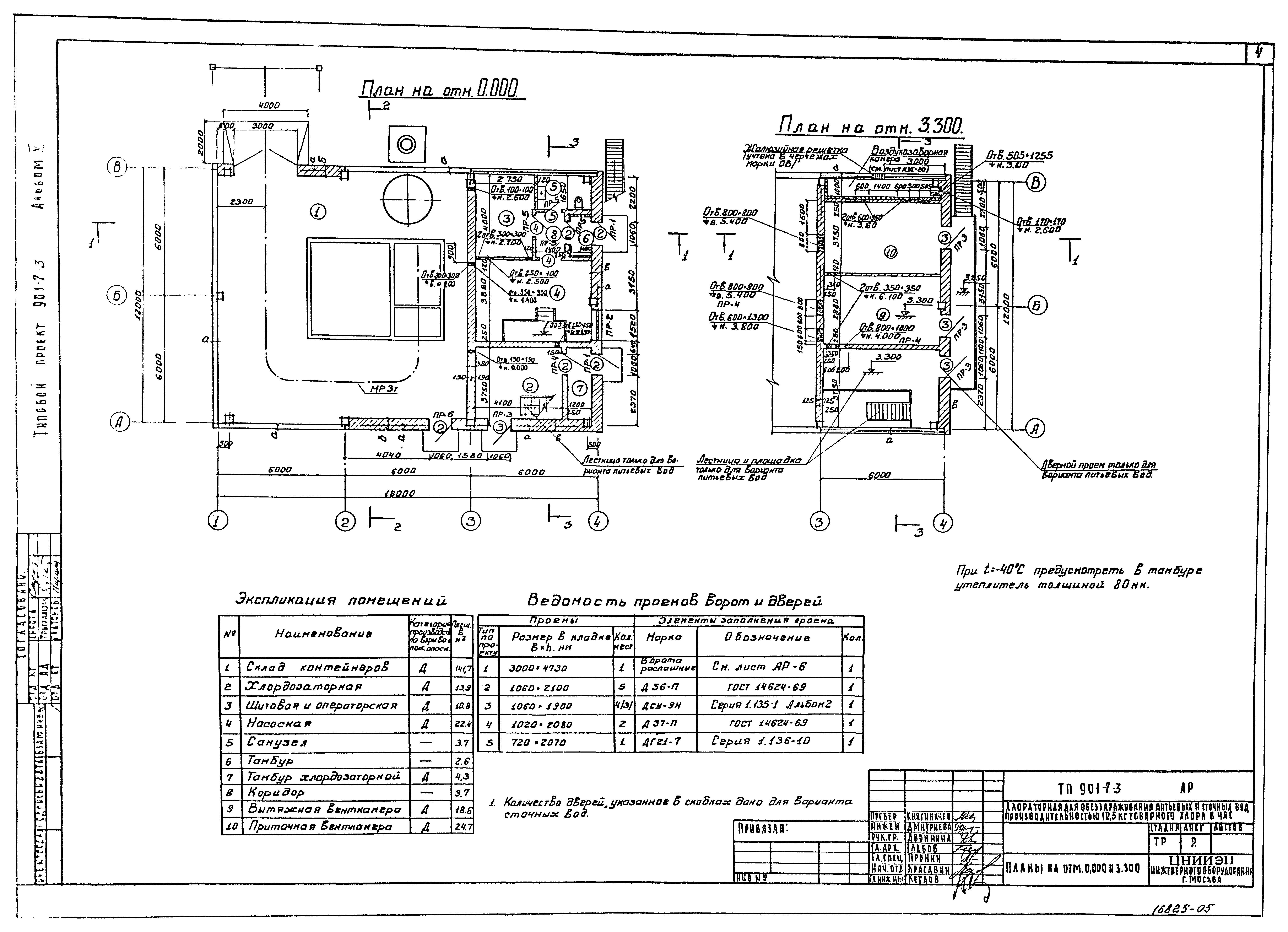
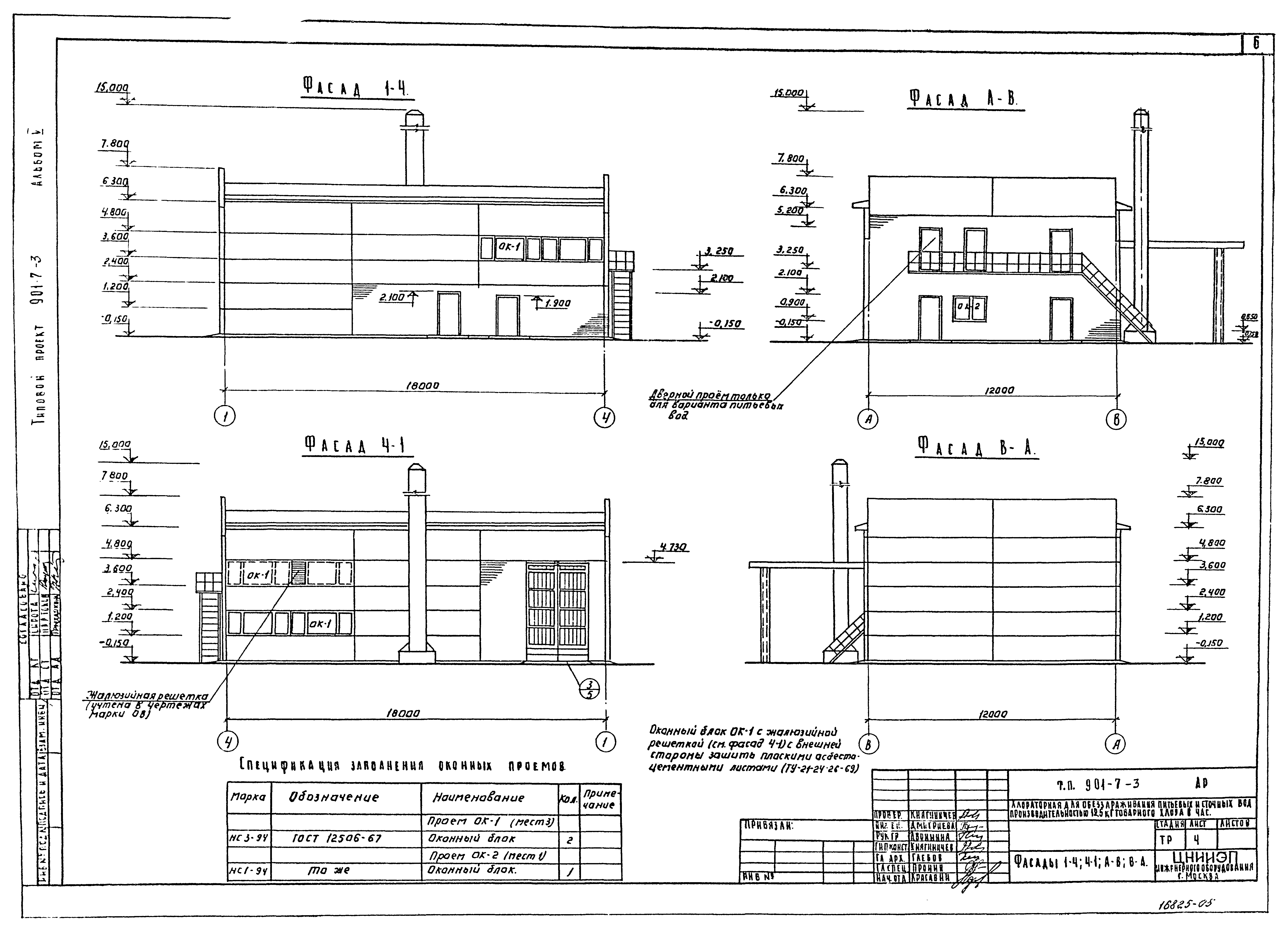
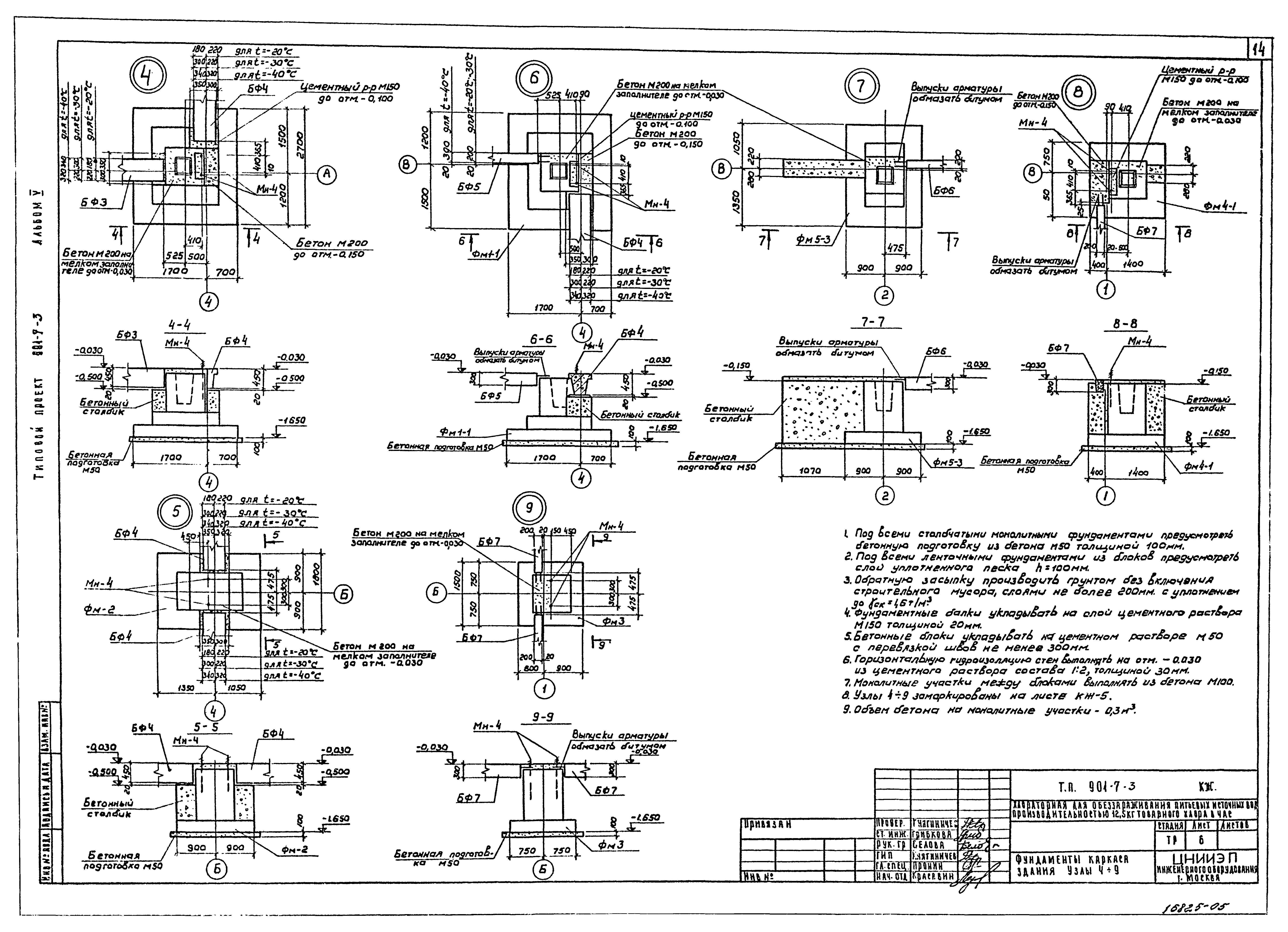
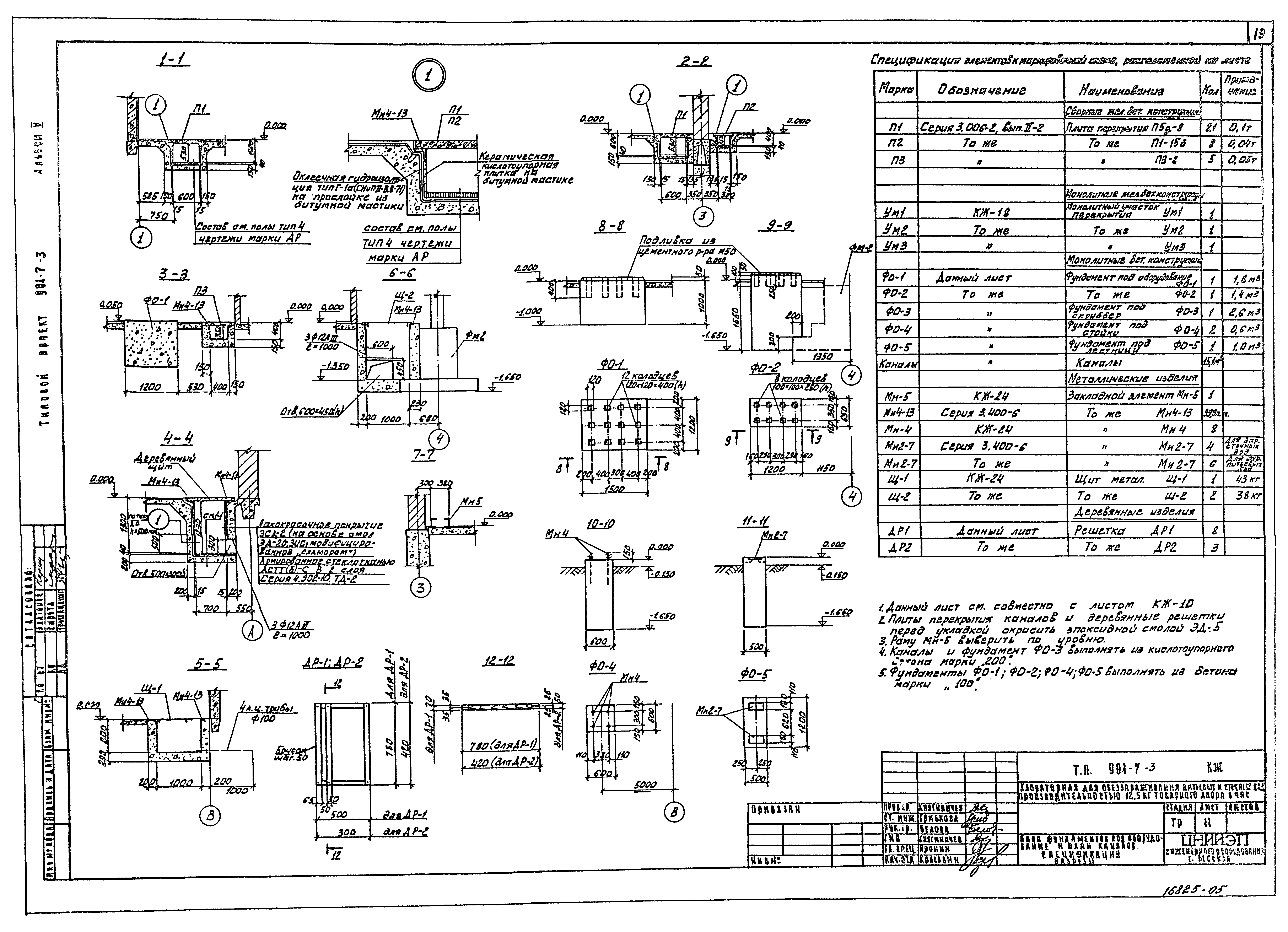
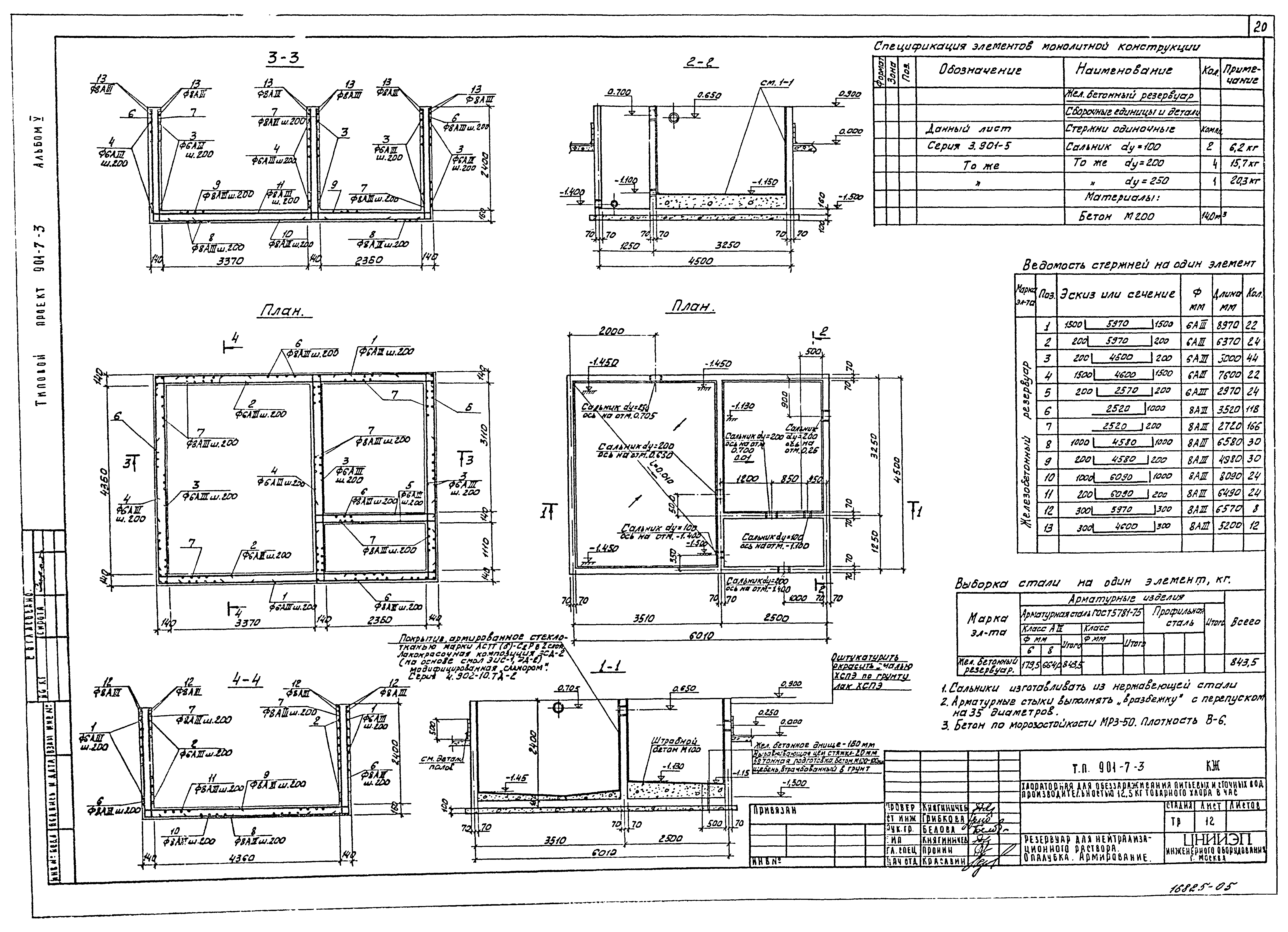
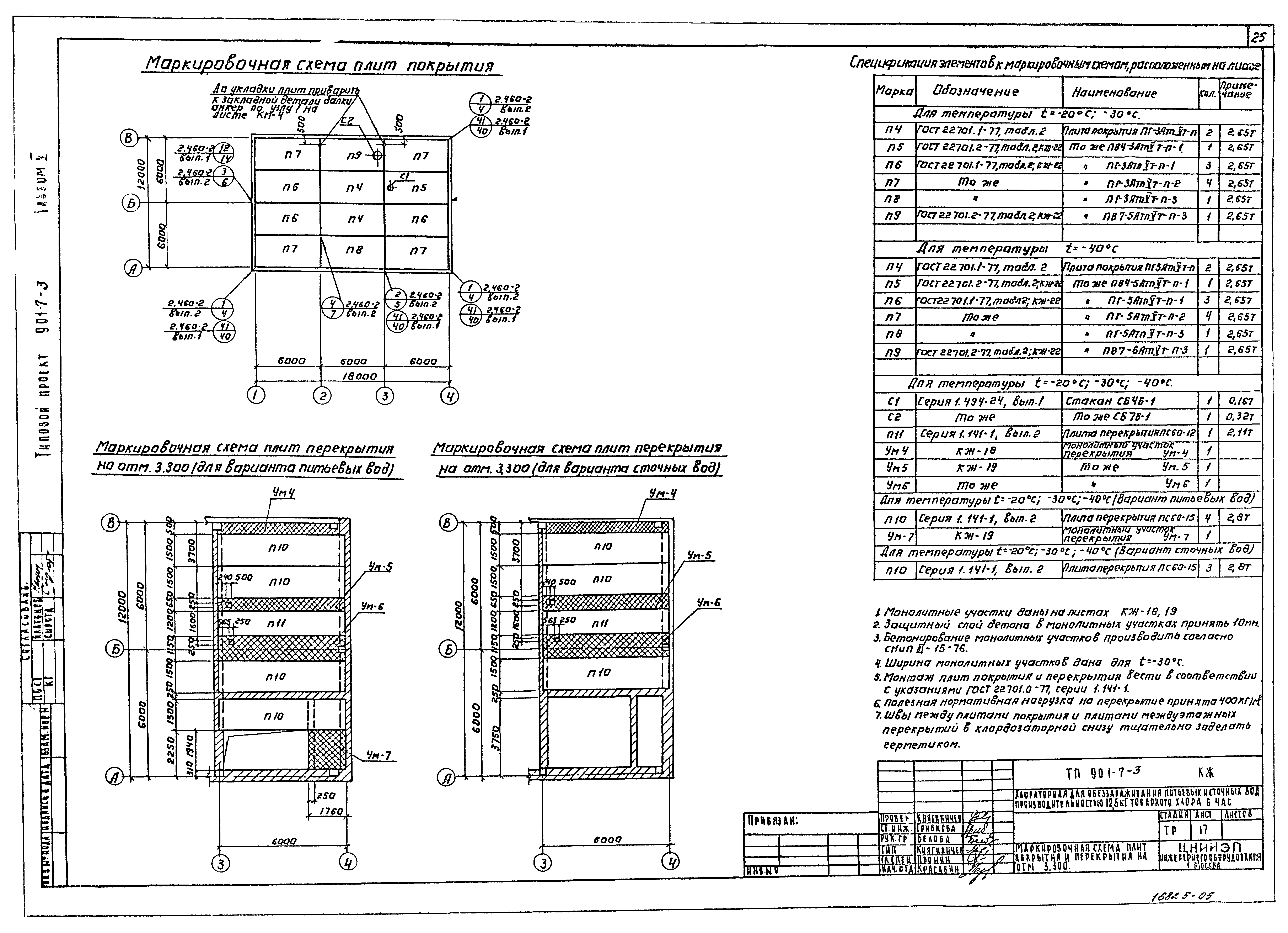
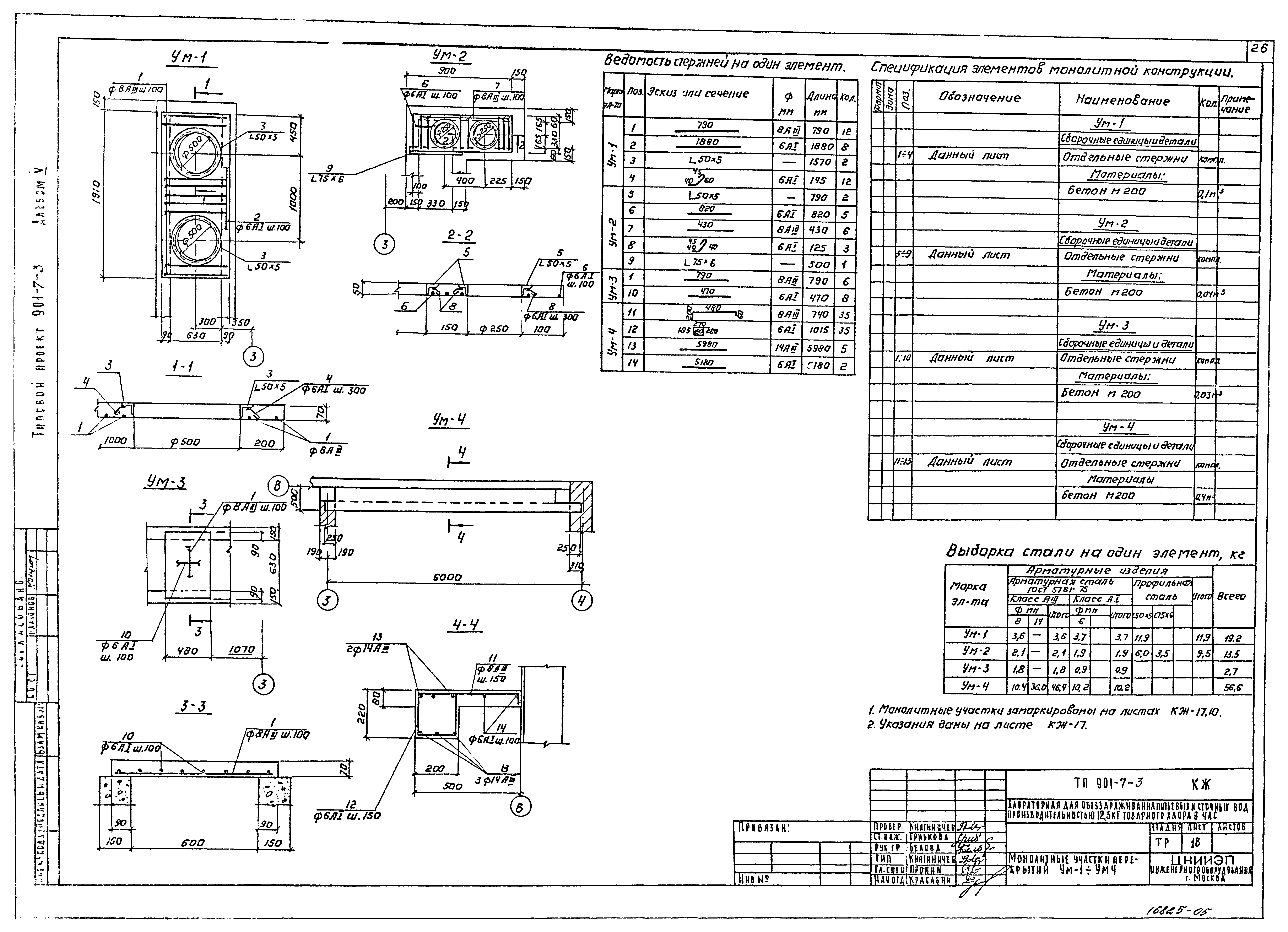
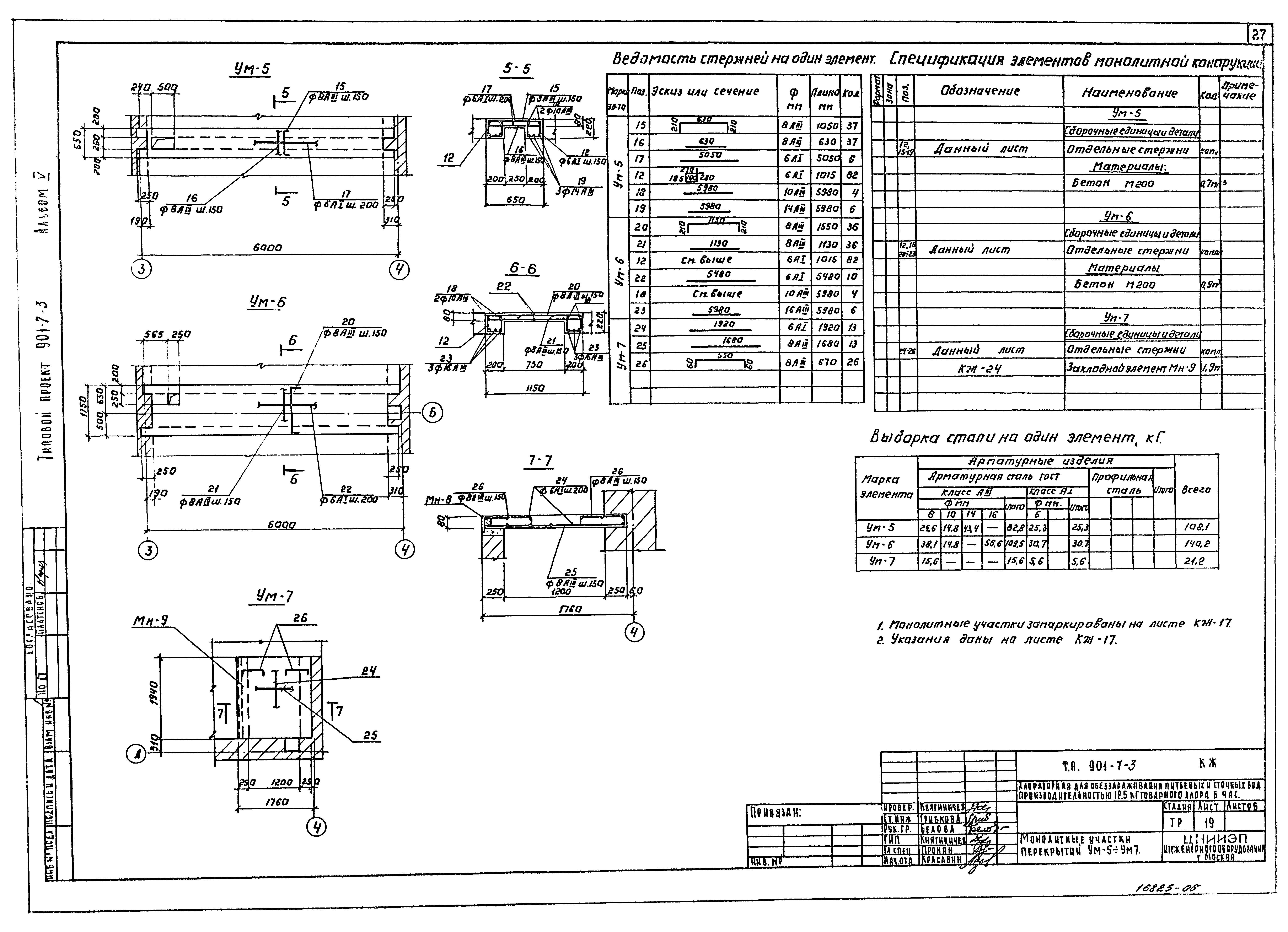
Скачать Типовой проект 901-7-3 Альбом V. Архитектурно-строительная частьДата актуализации: 01.01.2021
|
| Обозначение: | Типовой проект 901-7-3 |
| Обозначение англ: | 901-7-3 |
| Статус: | заменен |
| Название рус.: | Альбом V. Архитектурно-строительная часть |
| Дата добавления в базу: | 21.05.2015 |
| Дата актуализации: | 01.01.2021 |
| Дата введения: | 01.10.1980 |
| Дата окончания срока действия: | 01.07.1984 |
| Разработан: | ЦНИИЭП инженерного оборудования |
| Утверждён: | 27.12.1979 Госгражданстрой (Gosgrazhdanstroy 279) |
| Издан: | ЦИТП Госстроя СССР (CITP, Gosstroy (USSR) 1981 г. ) |
| Заменяет собой: |
|
| Чем заменён: |
|







































