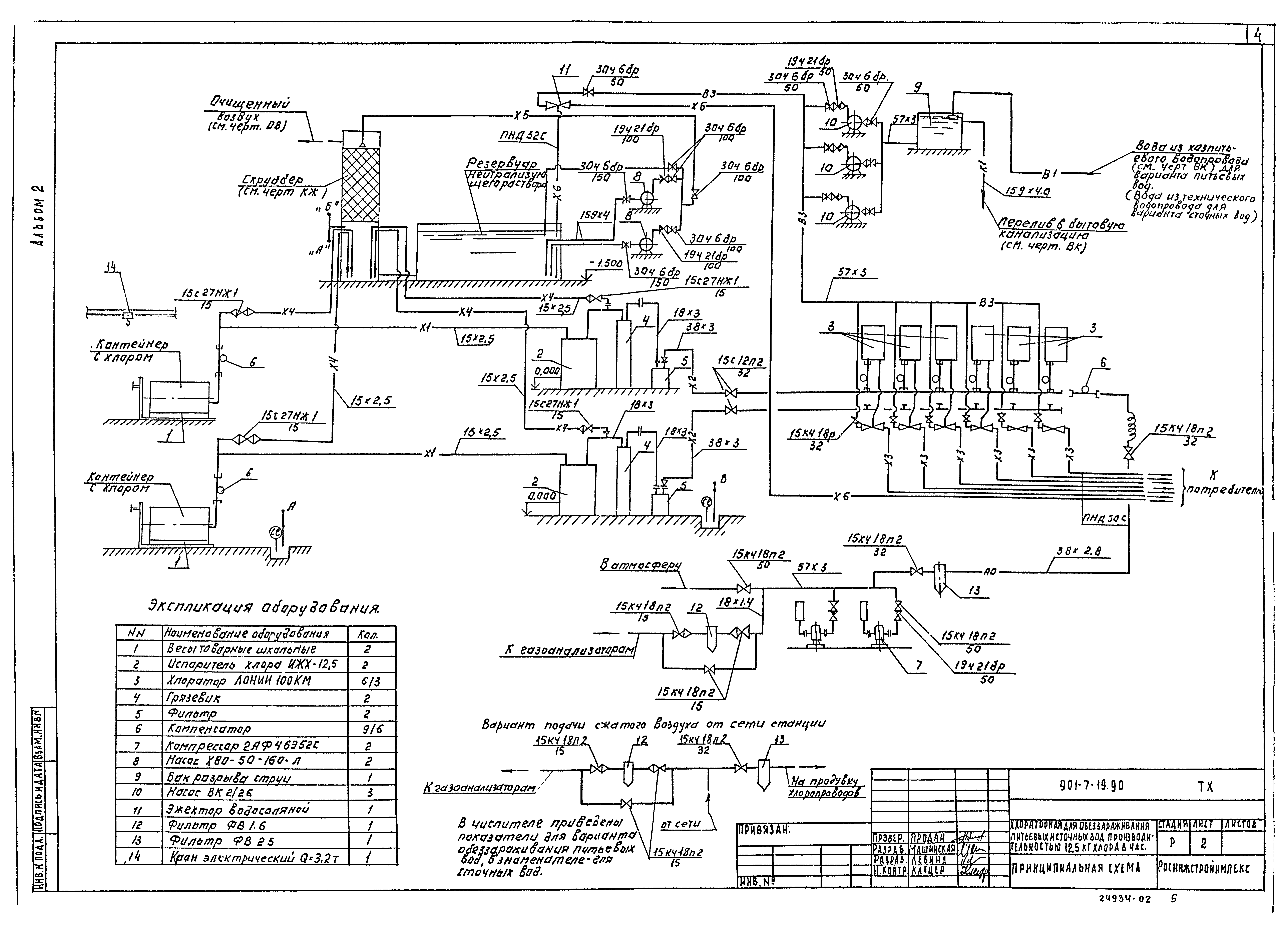
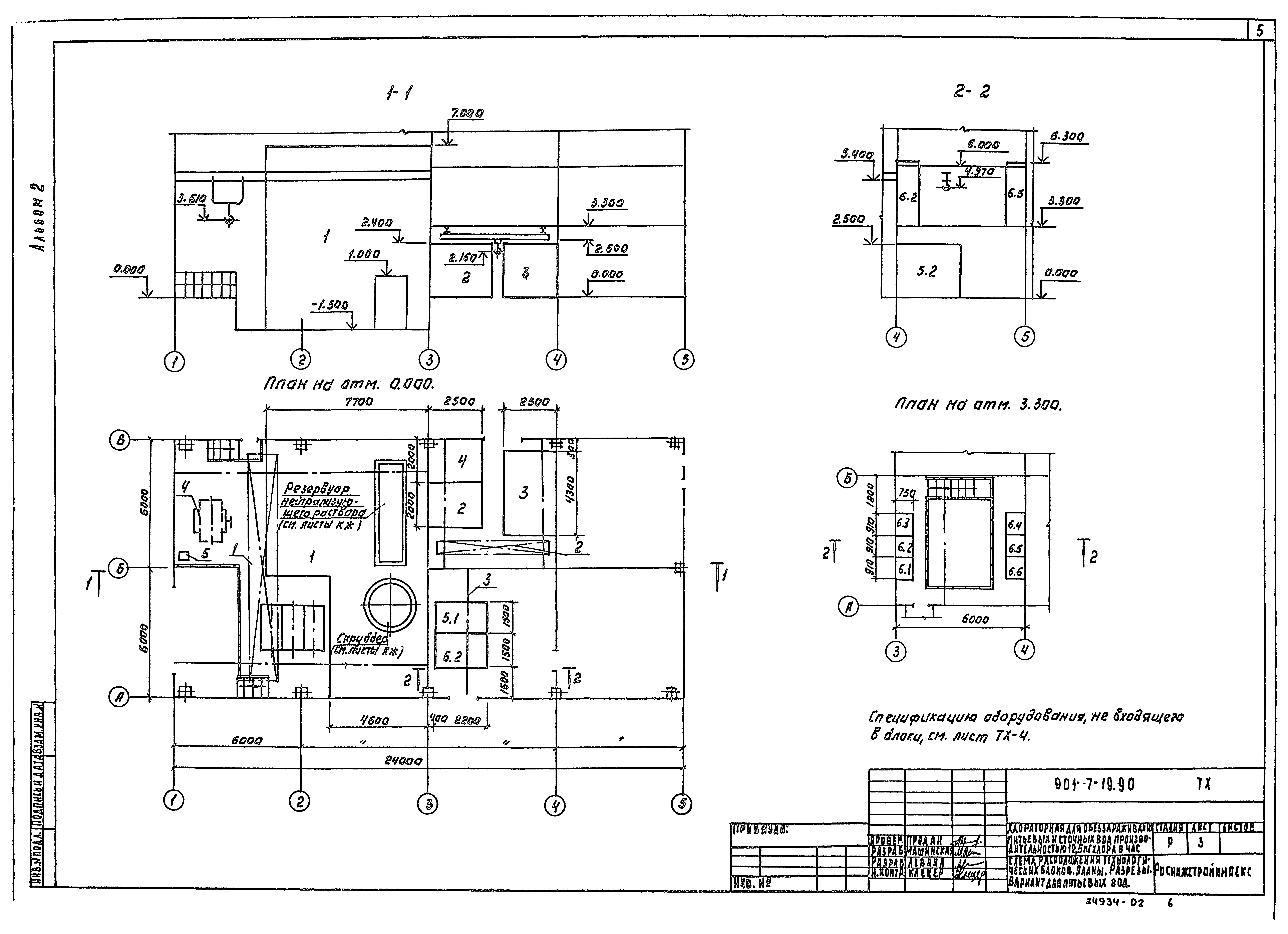
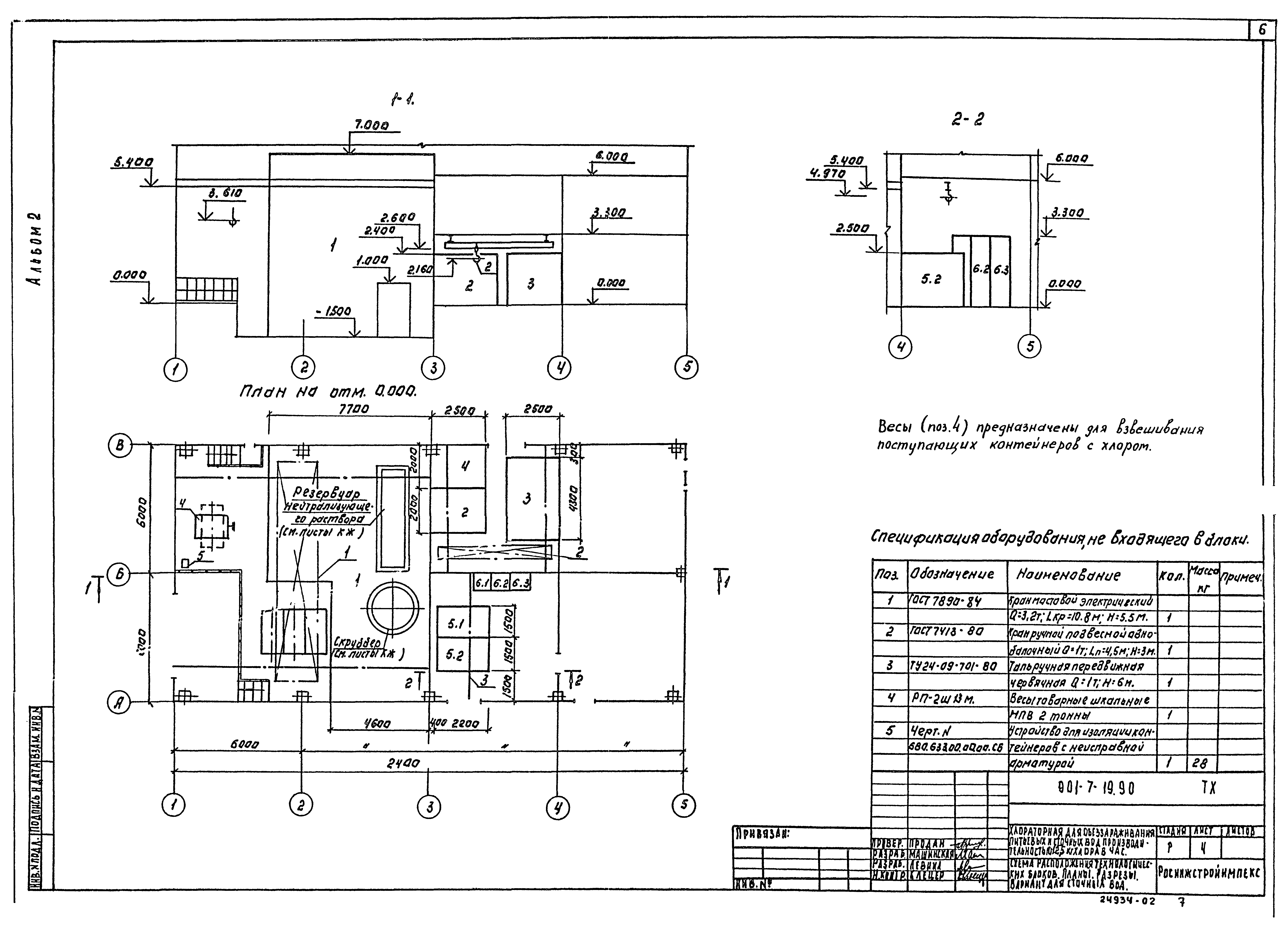
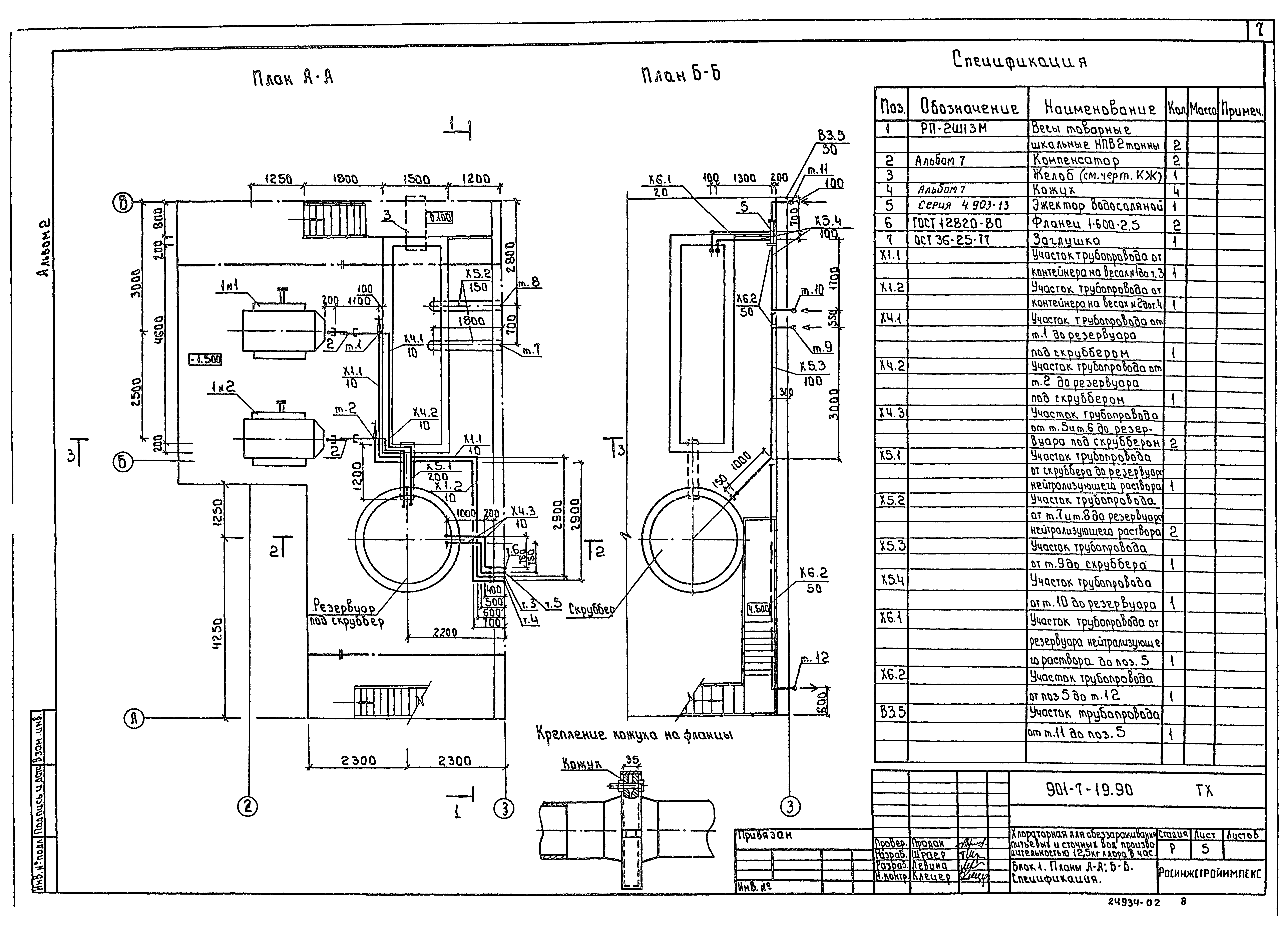
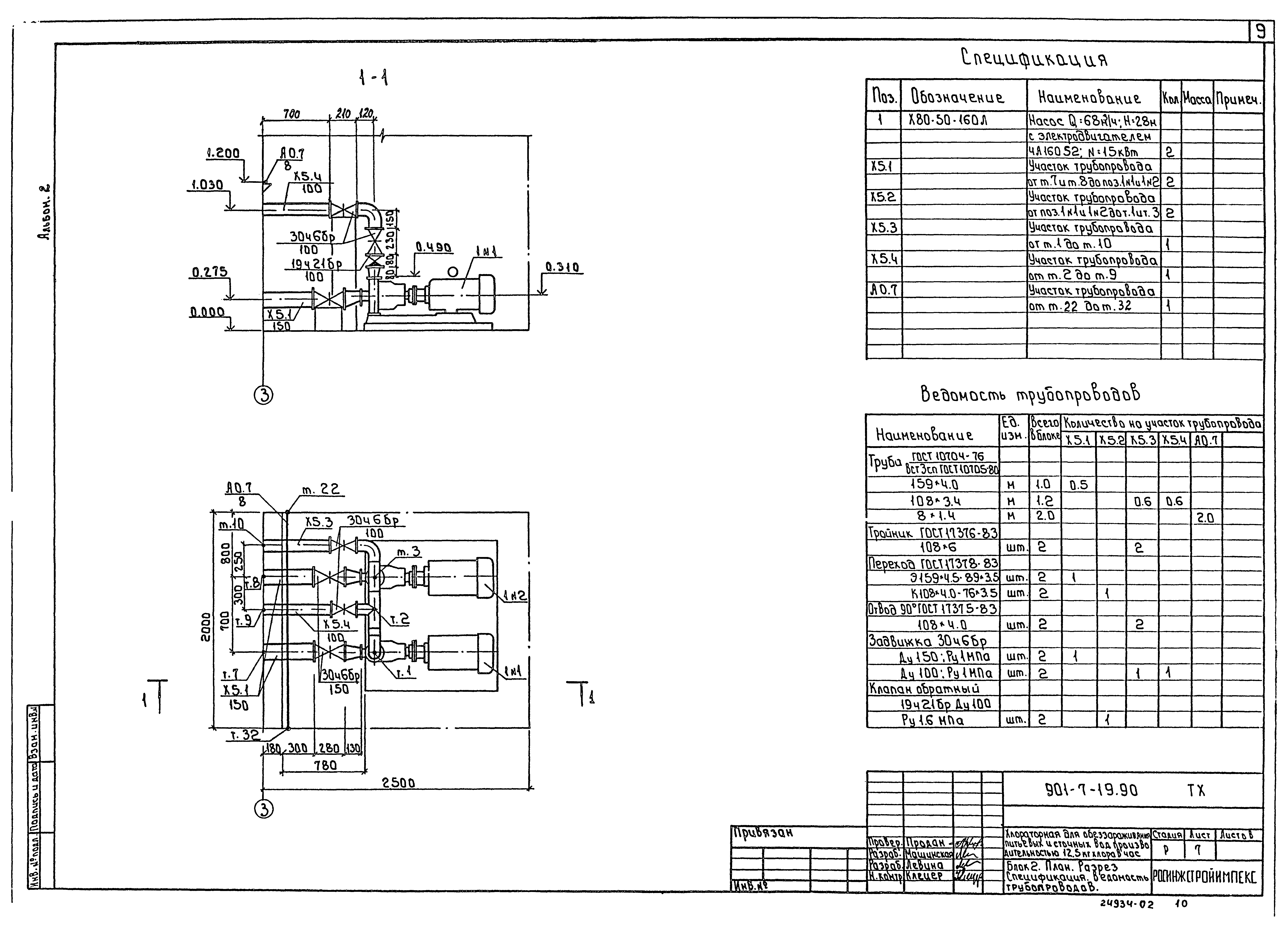
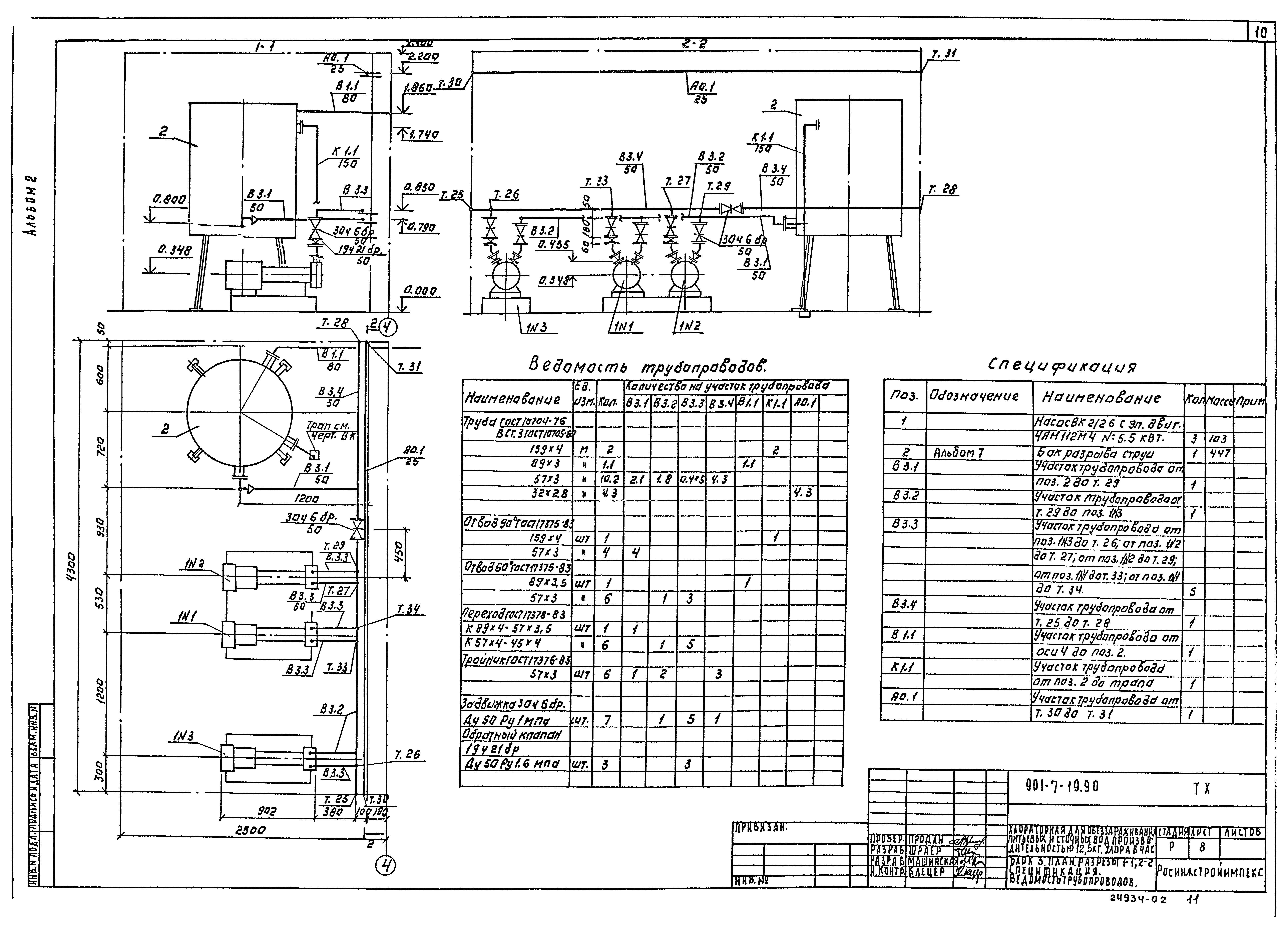
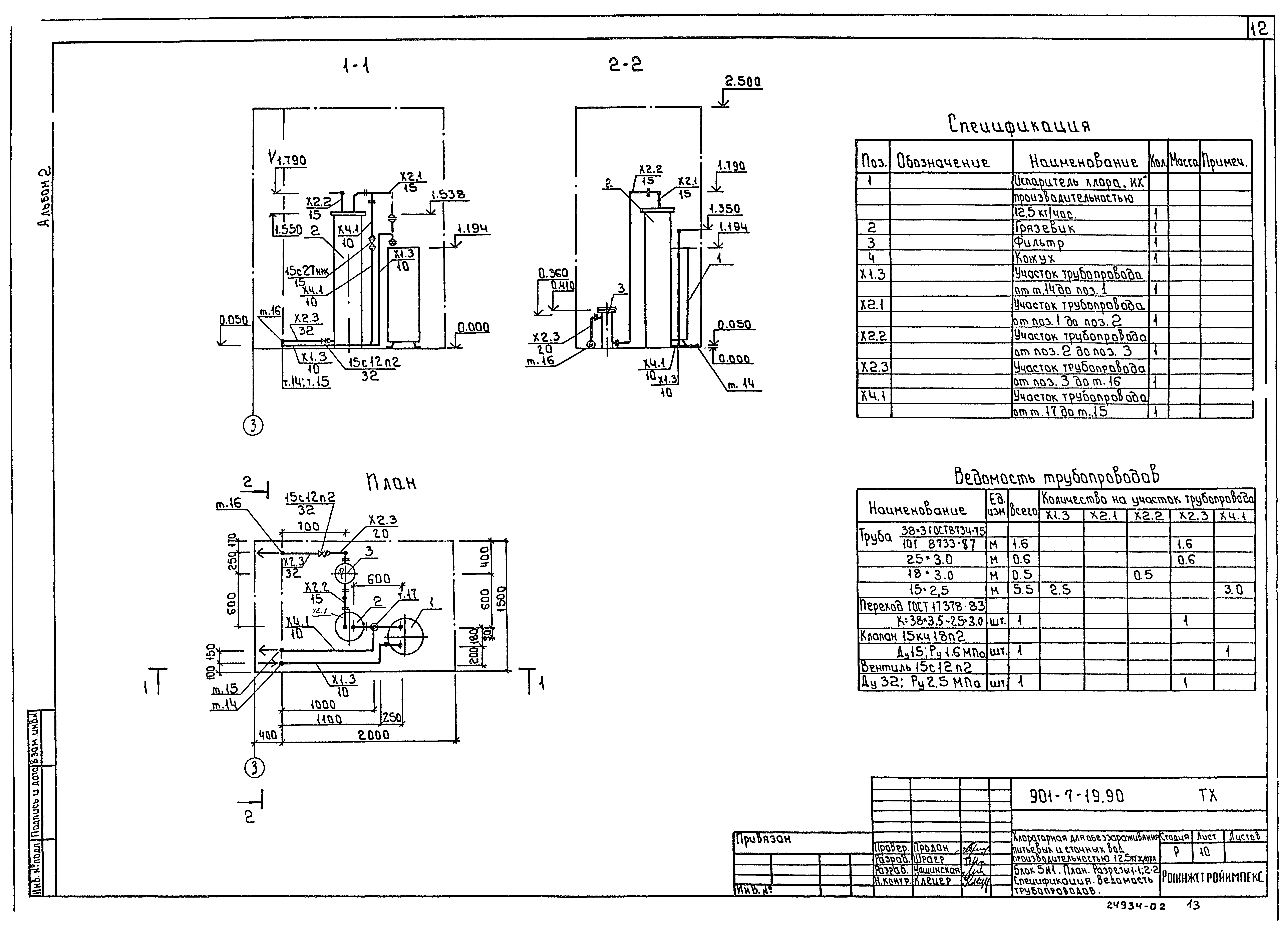
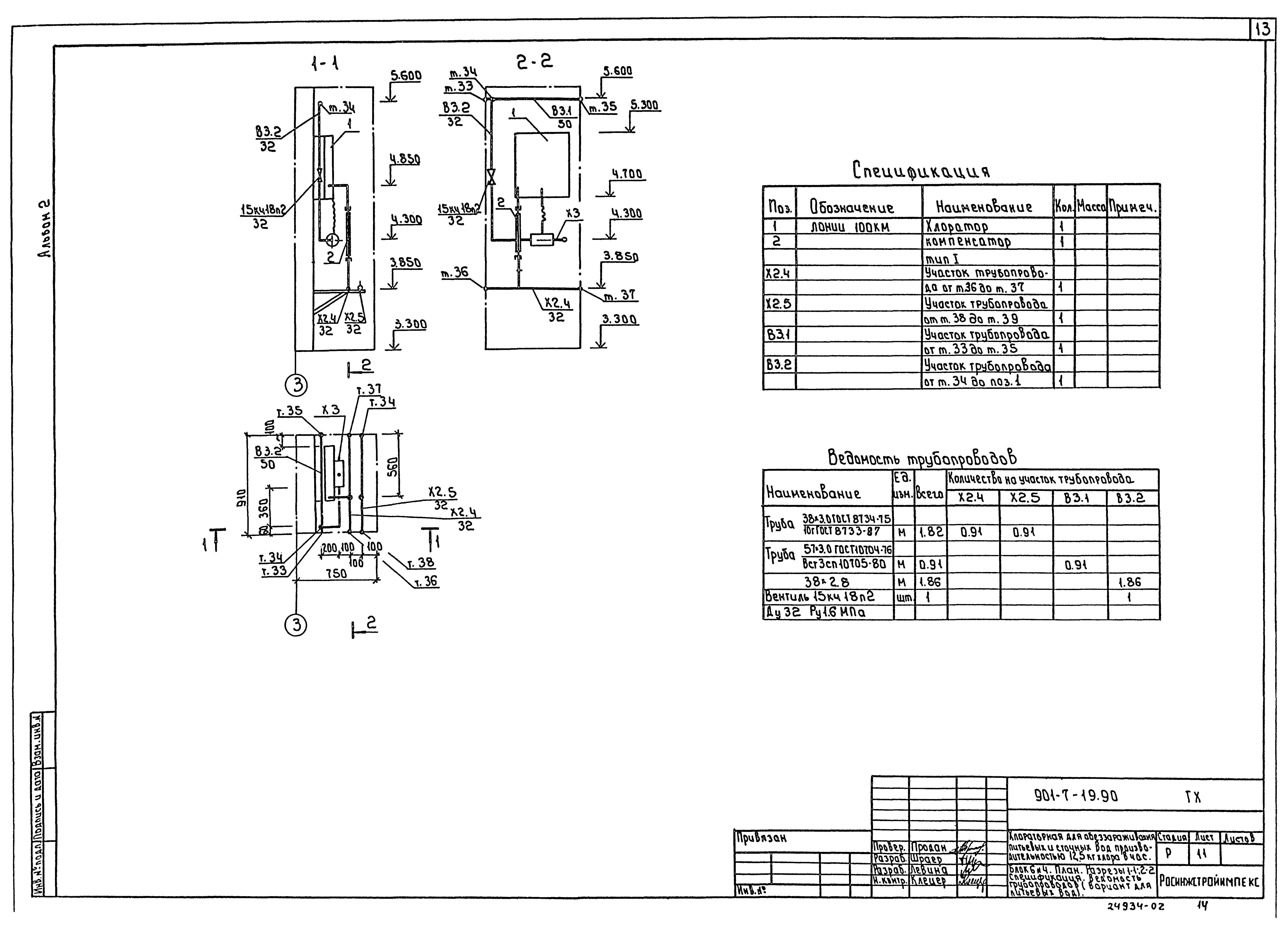
Скачать Типовой проект 901-7-19.90 Альбом 2. Технологические решения. Отопление и вентиляция. Внутренний водопровод и канализацияДата актуализации: 01.01.2021
|
| Обозначение: | Типовой проект 901-7-19.90 |
| Обозначение англ: | 901-7-19.90 |
| Статус: | отменен |
| Название рус.: | Альбом 2. Технологические решения. Отопление и вентиляция. Внутренний водопровод и канализация |
| Дата добавления в базу: | 21.05.2015 |
| Дата актуализации: | 01.01.2021 |
| Дата введения: | 28.03.1991 |
| Дата окончания срока действия: | 01.04.2003 |
| Разработан: | Росинжстройимпекс |
| Утверждён: | 07.12.1989 Госкомархитектура (225) |
| Издан: | ЦИТП Госстроя СССР (CITP, Gosstroy (USSR) 1991 г. ) |
| Заменяет собой: |



























