Скачать Нормы затрат труда на техническое обслуживание и ремонт автоматических систем противозадымления в жилых зданиях повышенной этажности

Дата актуализации: 01.01.2021

Нормы затрат труда на техническое обслуживание и ремонт автоматических систем противозадымления в жилых зданиях повышенной этажности

Статус:не определен законодательством
Название рус.:Нормы затрат труда на техническое обслуживание и ремонт автоматических систем противозадымления в жилых зданиях повышенной этажности
Дата добавления в базу:21.05.2015
Дата актуализации:01.01.2021
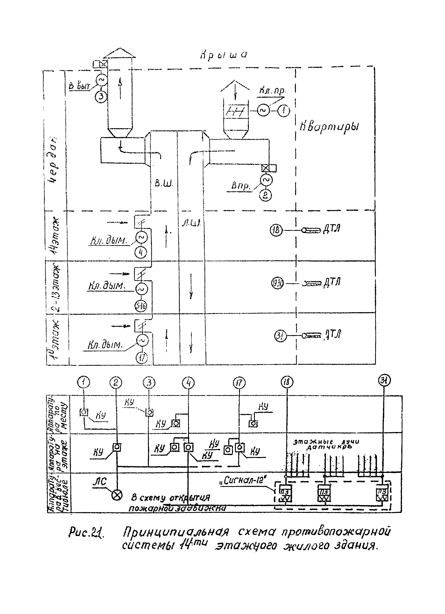
Область применения:Нормы предназначены для работников жилищно-эксплуатационных организаций, а также для работников специализированных служб, осуществляющих на договорных условиях техническое обслуживание автоматических противопожарных систем в жилых зданиях повышенной этажности. В нормах показаны виды работ и правила их проведения, определен весь состав работ по техническому обслуживанию противопожарных систем. Приведены нормы затрат труда и времени на все виды технического обслуживания и ремонта противопожарных систем.
Оглавление:Введение
1. Общая часть
2. Назначение и устройство автоматических противопожарных систем
3. Виды работ и правила их проведения при техническом обслуживании и ремонте автоматических противопожарных систем
4. Состав работ и нормы трудозатрат на еженедельное обслуживание противопожарных систем
5. Состав работ и нормы трудозатрат на ежемесячное обслуживание противопожарных систем (текущий ремонт)
6. Состав работ и нормы трудозатрат на ежегодное обслуживание и ремонт противопожарных систем (малый капитальный ремонт)
7. Состав работ и единичные нормы трудозатрат на капитальный ремонт противопожарных систем
Разработан: Академия коммунального хозяйства им. К.Д. Памфилова
Утверждён:23.10.1978 Министерство жилищно-коммунального хозяйства РСФСР (476)
Нормативные ссылки: