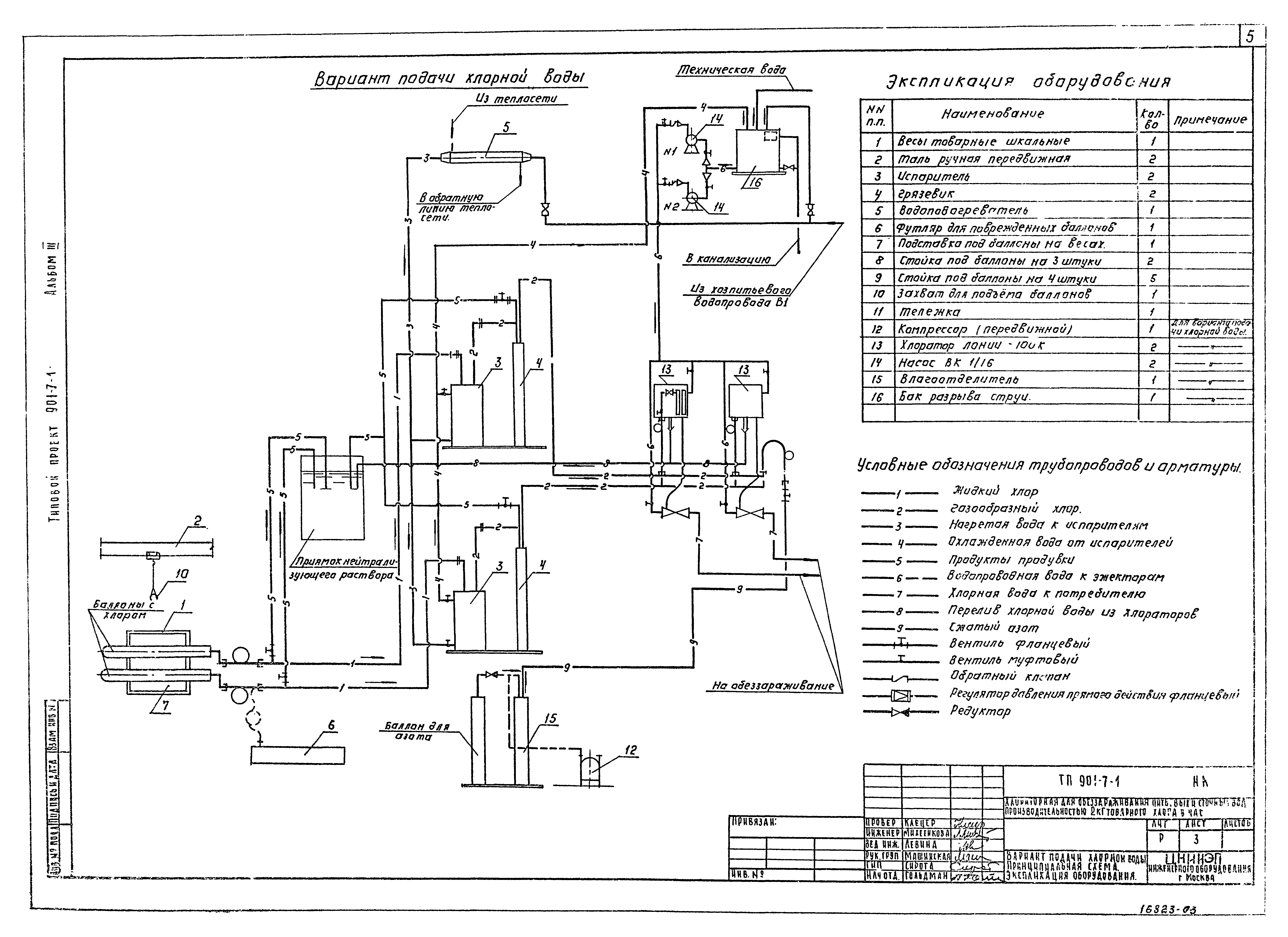
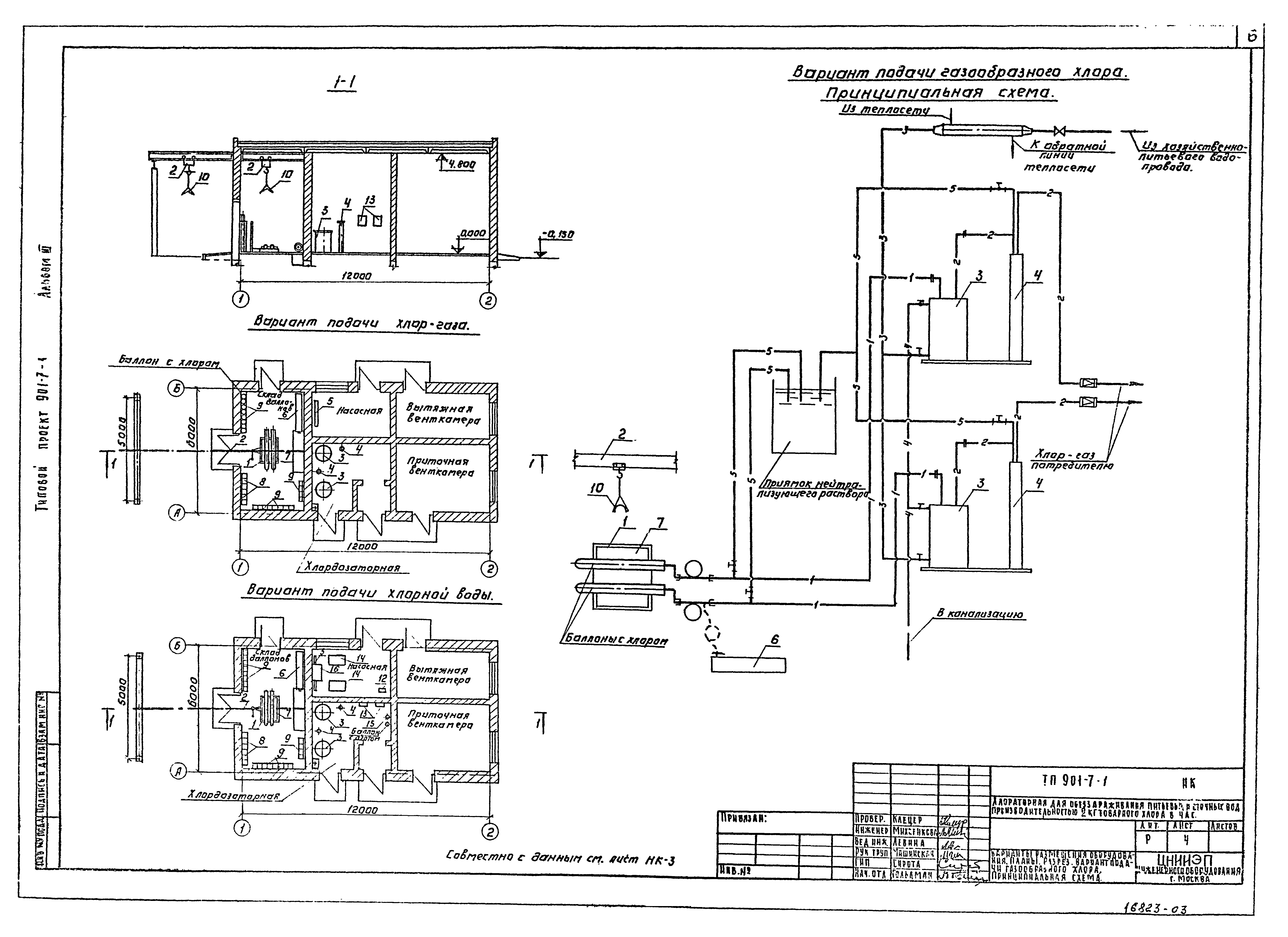
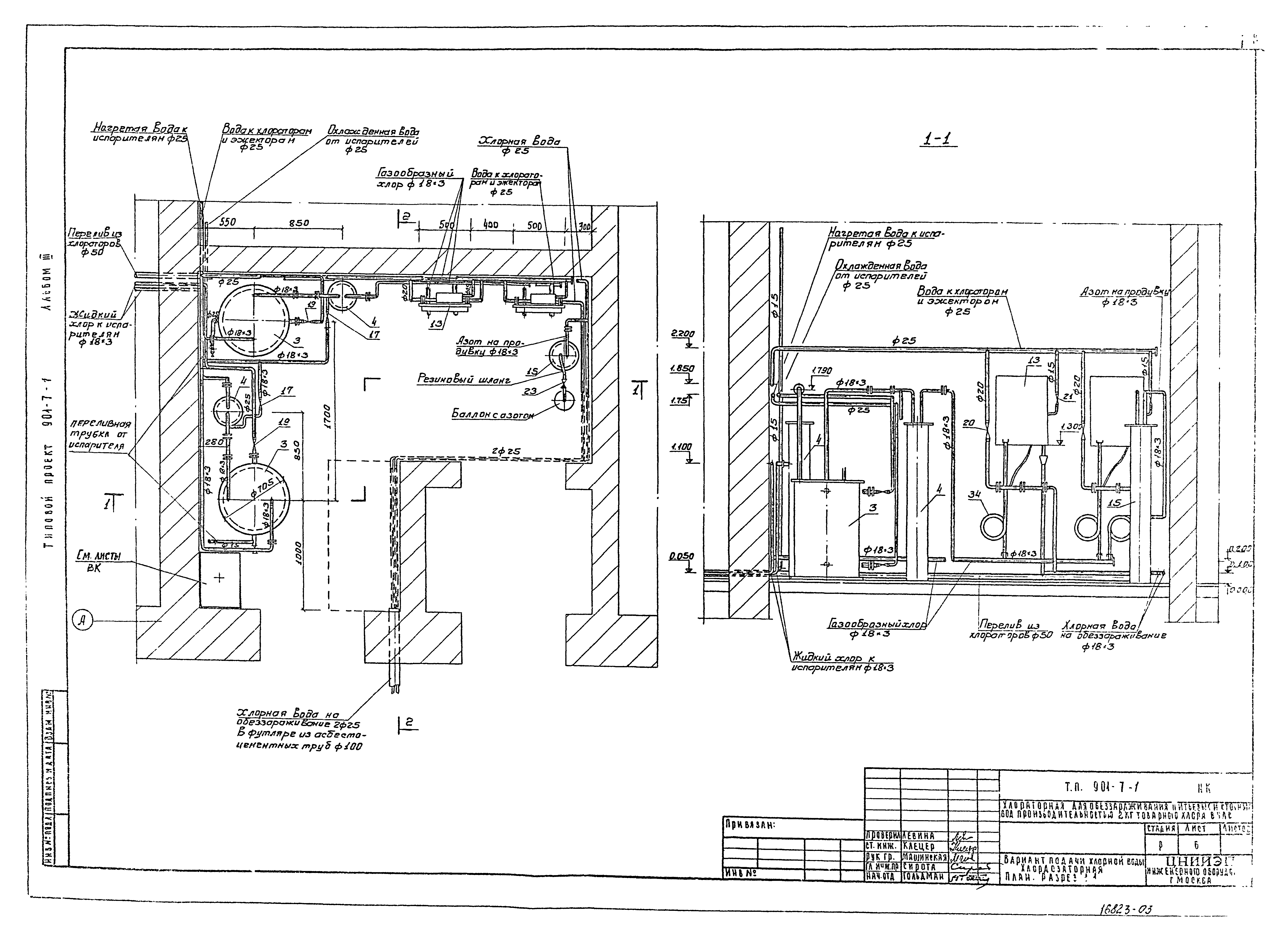
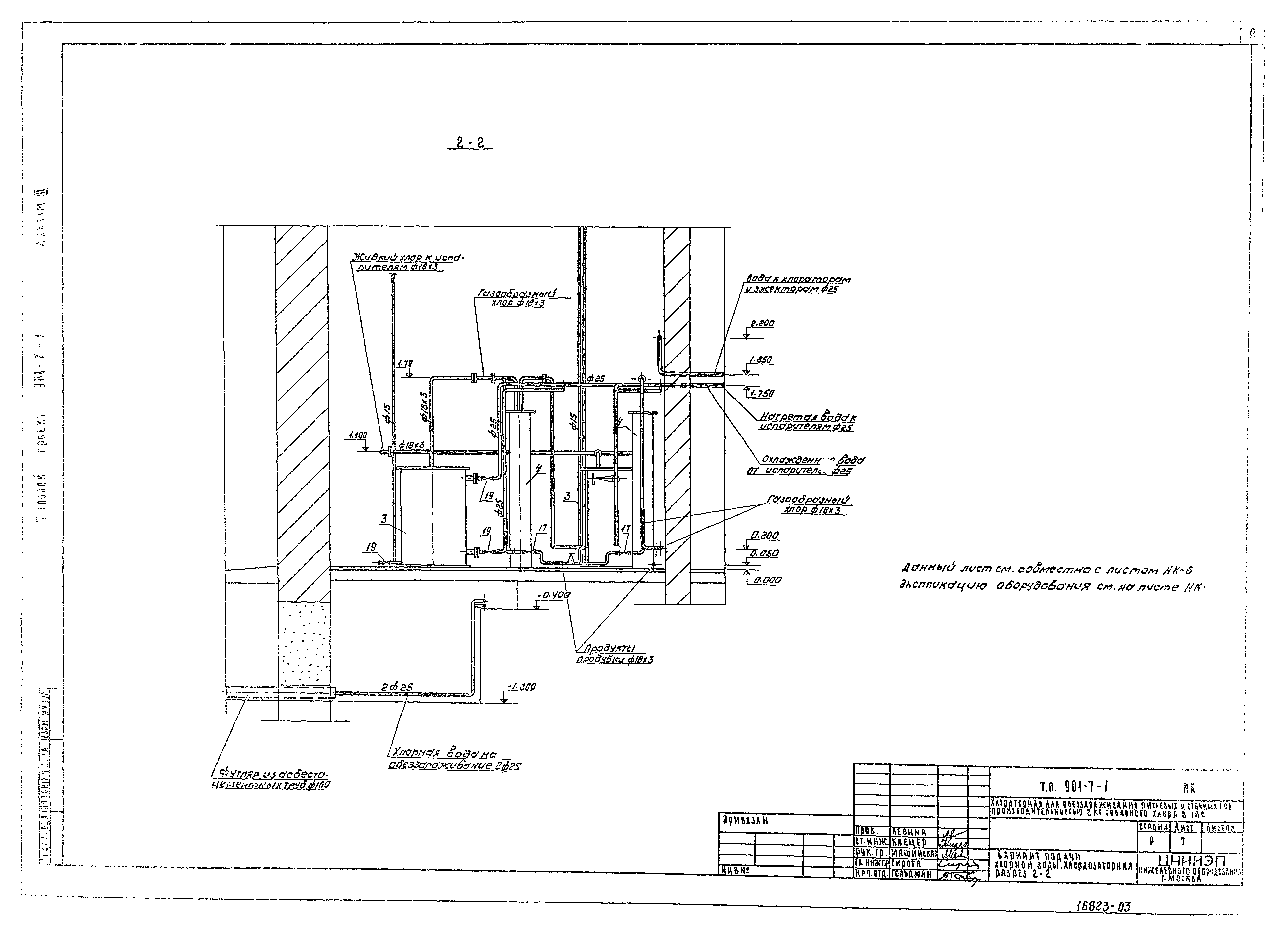
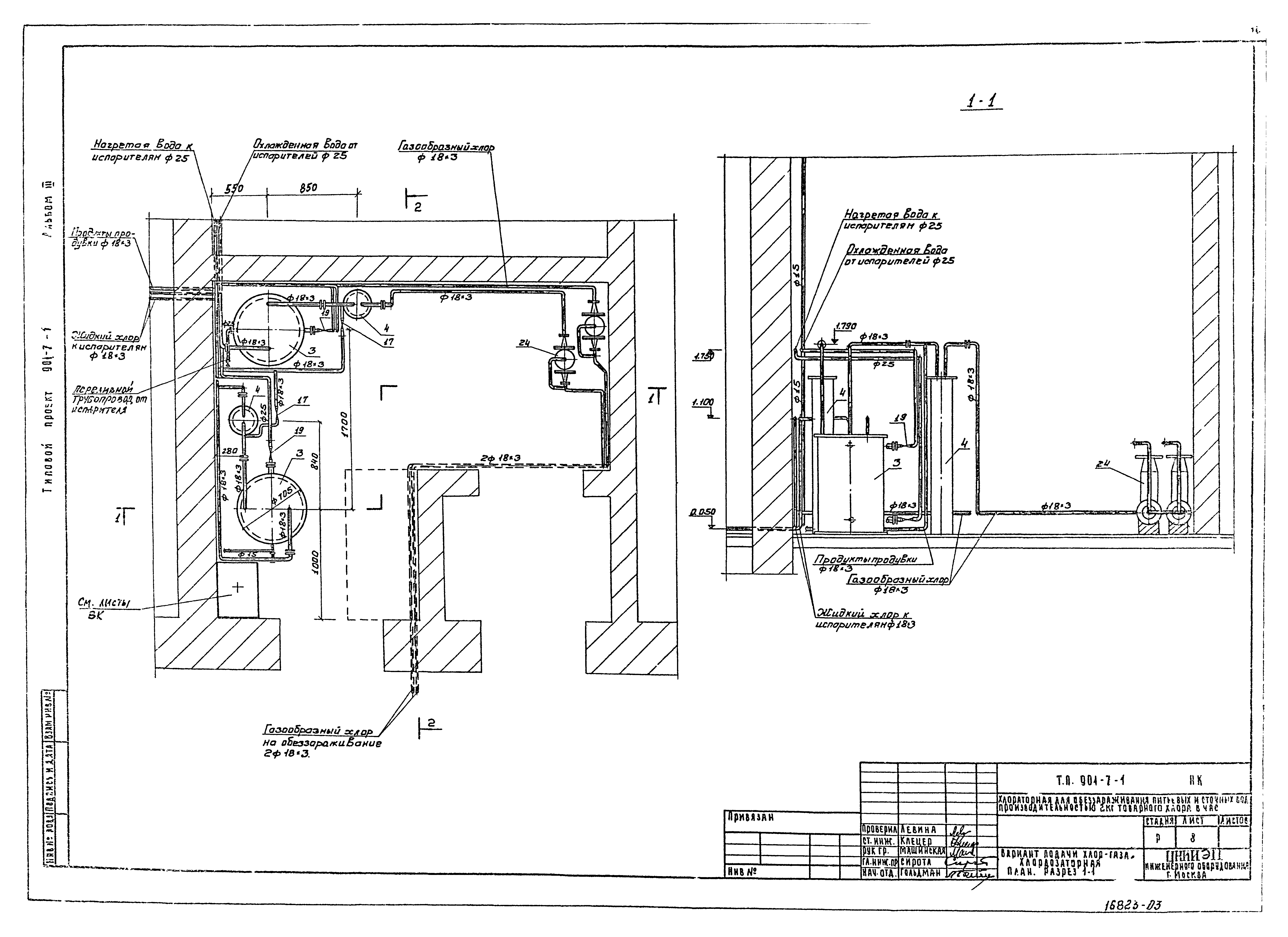
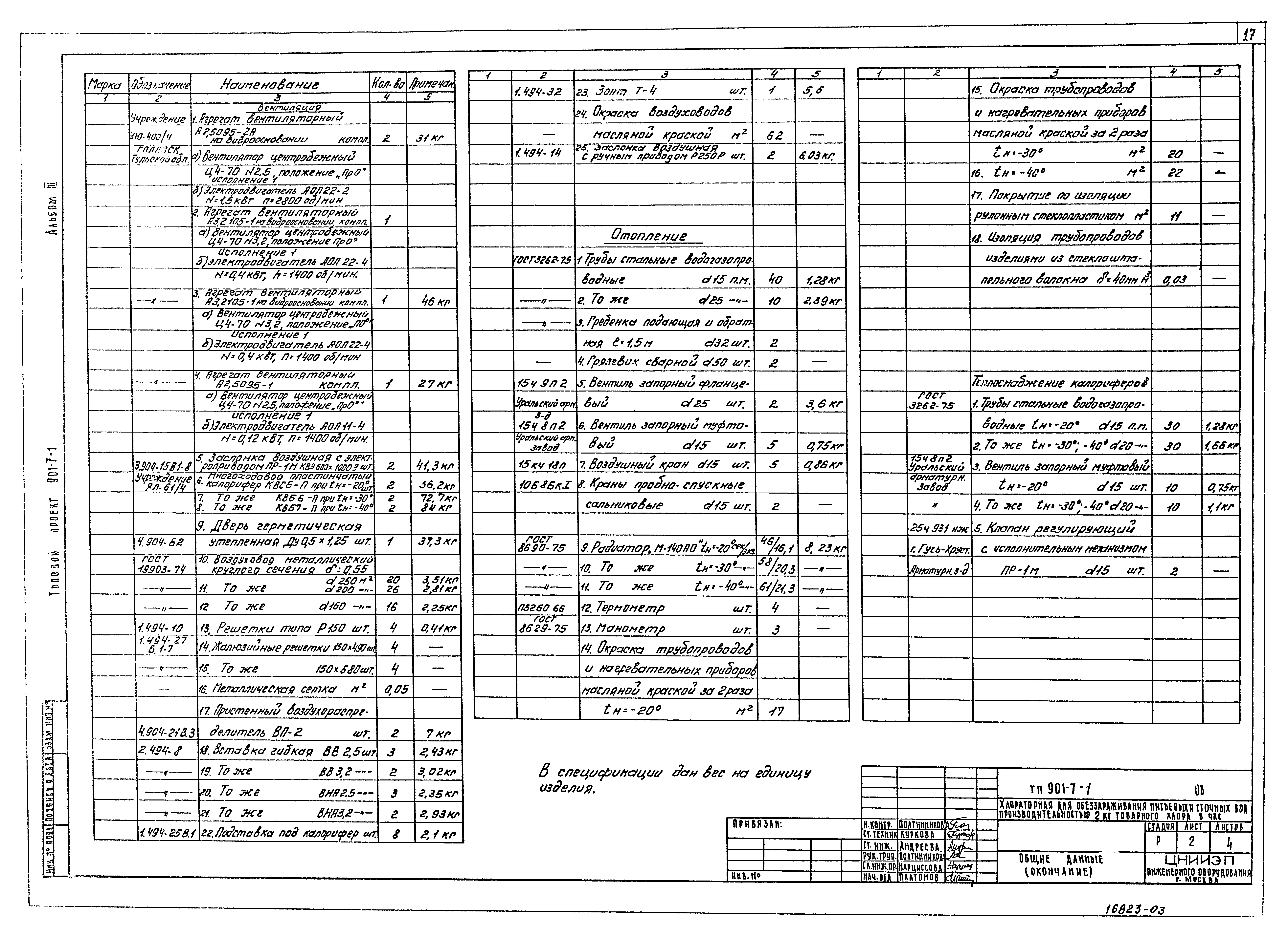
Скачать Типовой проект 901-7-1 Альбом III. Технологическая и санитарно-техническая части. Вариант обеззараживания сточных водДата актуализации: 01.01.2021
|
| Обозначение: | Типовой проект 901-7-1 |
| Обозначение англ: | 901-7-1 |
| Статус: | заменен |
| Название рус.: | Альбом III. Технологическая и санитарно-техническая части. Вариант обеззараживания сточных вод |
| Дата добавления в базу: | 12.02.2016 |
| Дата актуализации: | 01.01.2021 |
| Дата введения: | 15.04.1980 |
| Дата окончания срока действия: | 01.07.1984 |
| Разработан: | ЦНИИЭП инженерного оборудования |
| Утверждён: | 27.12.1979 Госгражданстрой (Gosgrazhdanstroy 279) |
| Заменяет собой: |
|
| Чем заменён: |




















