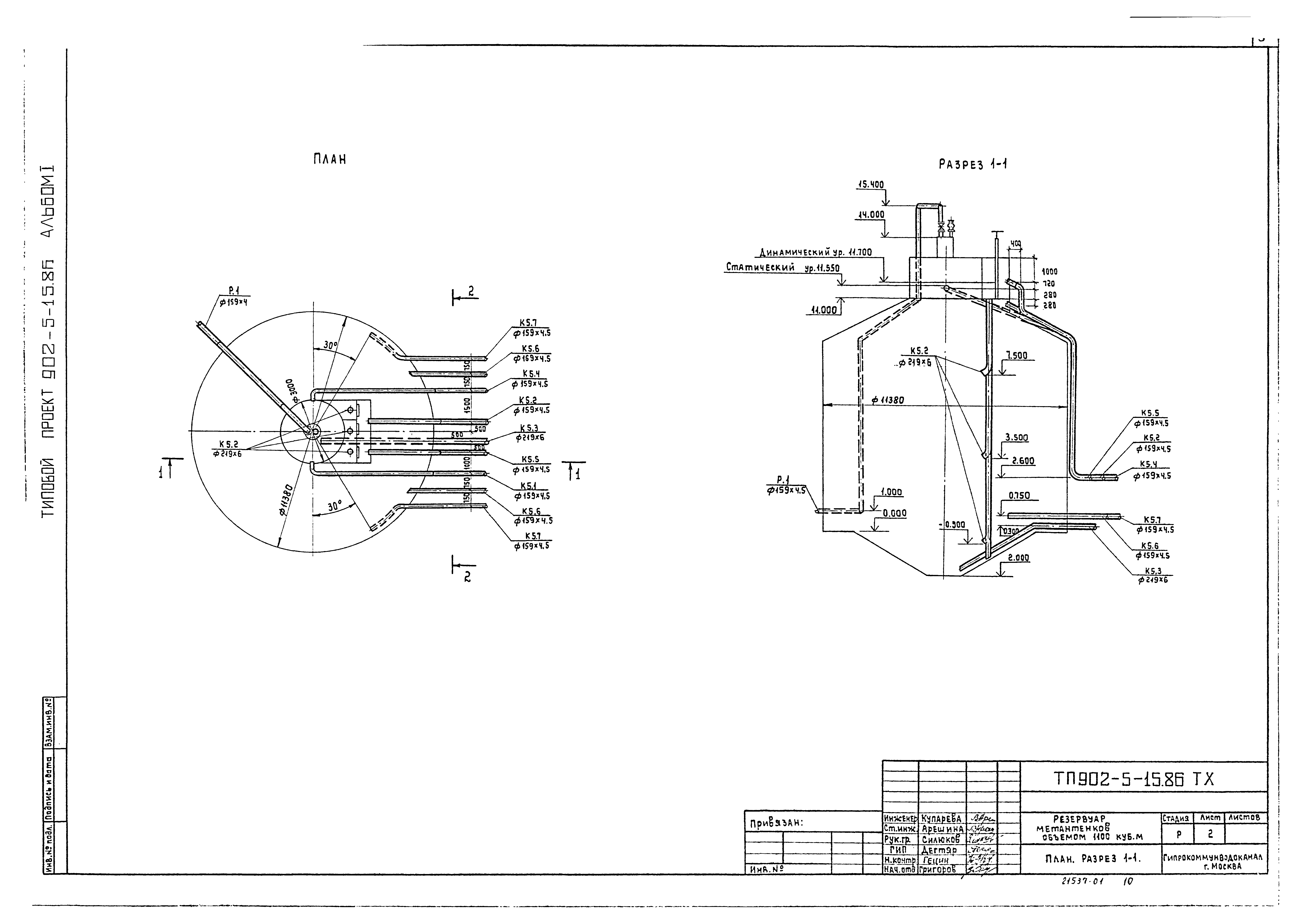
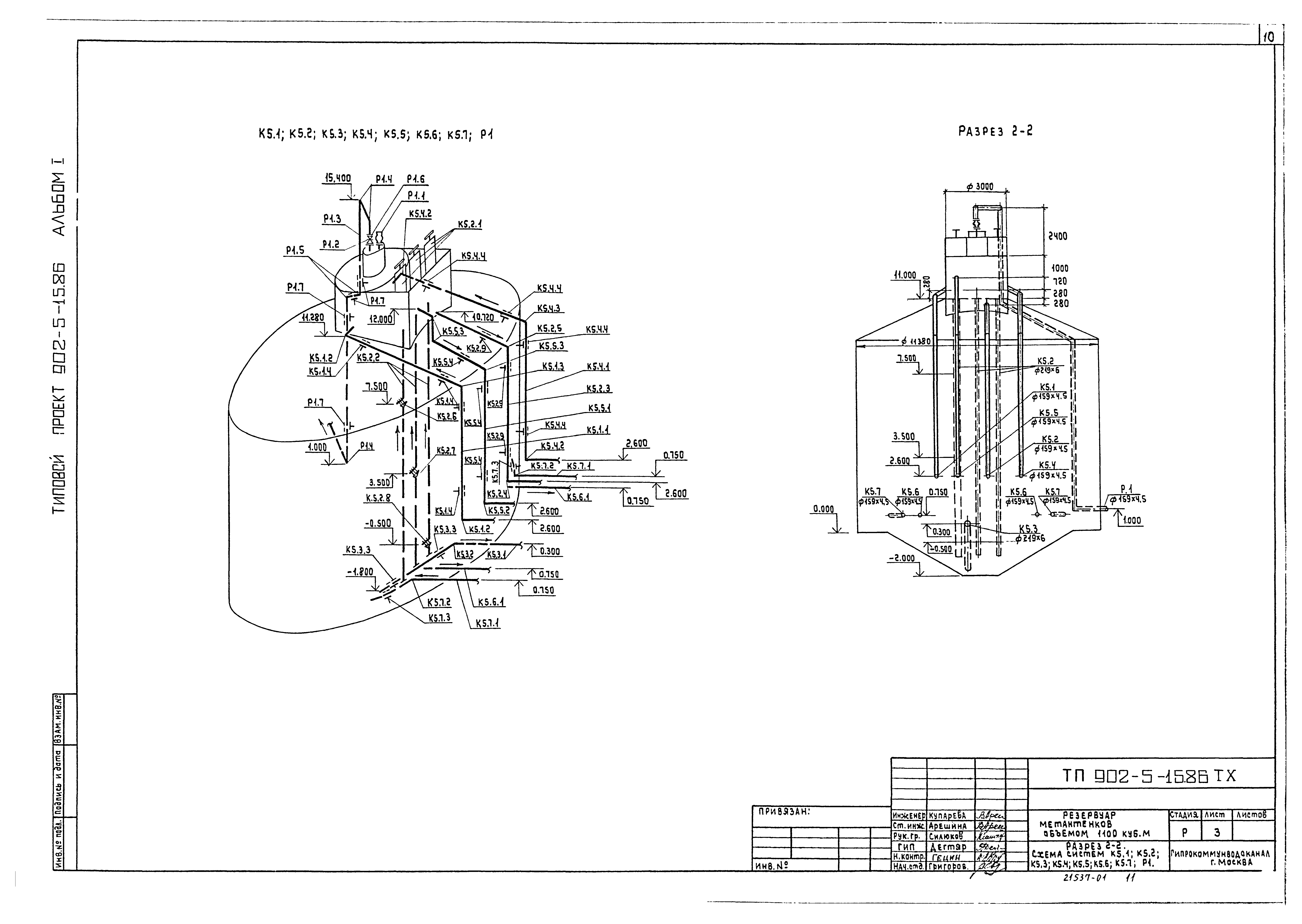
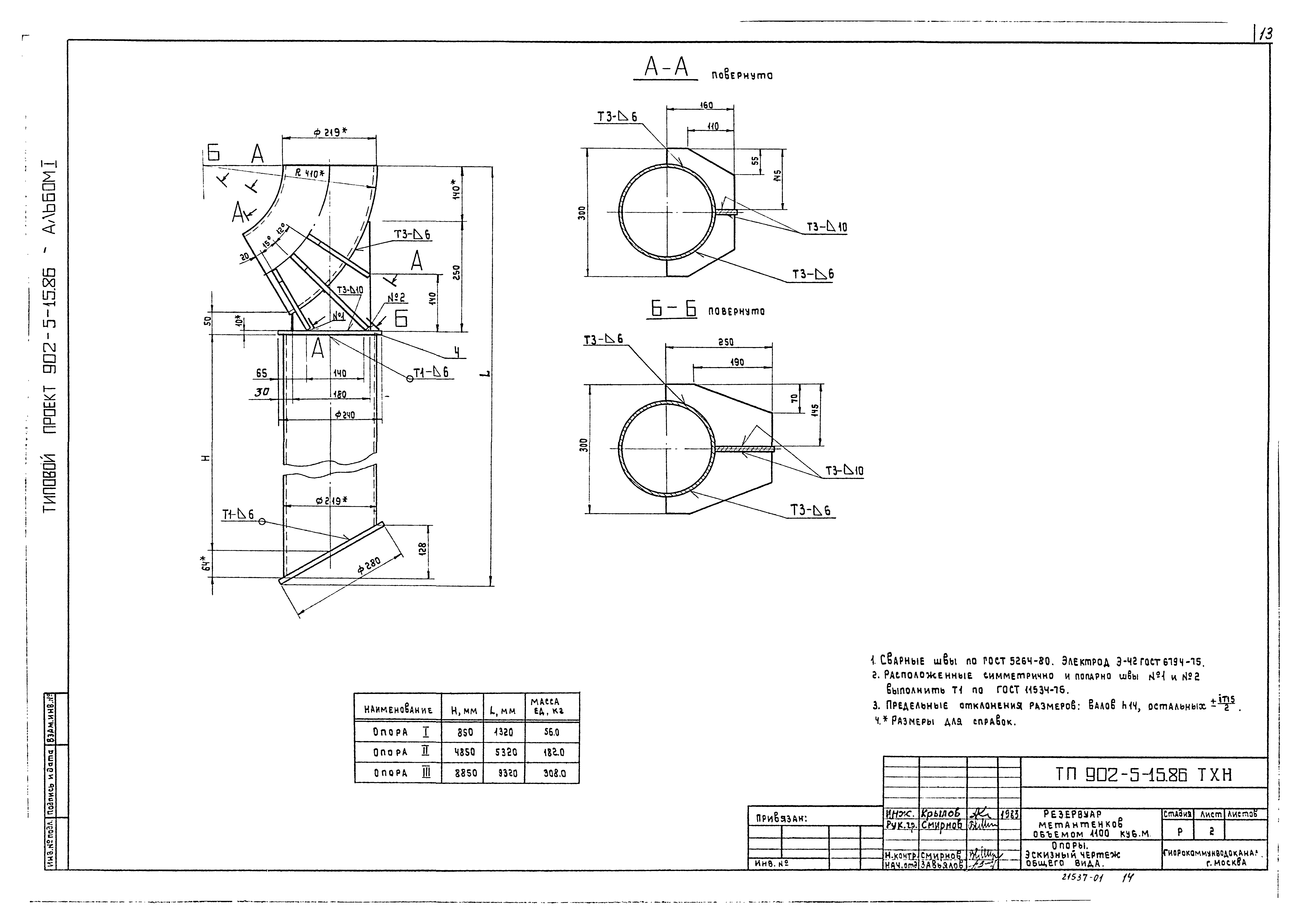
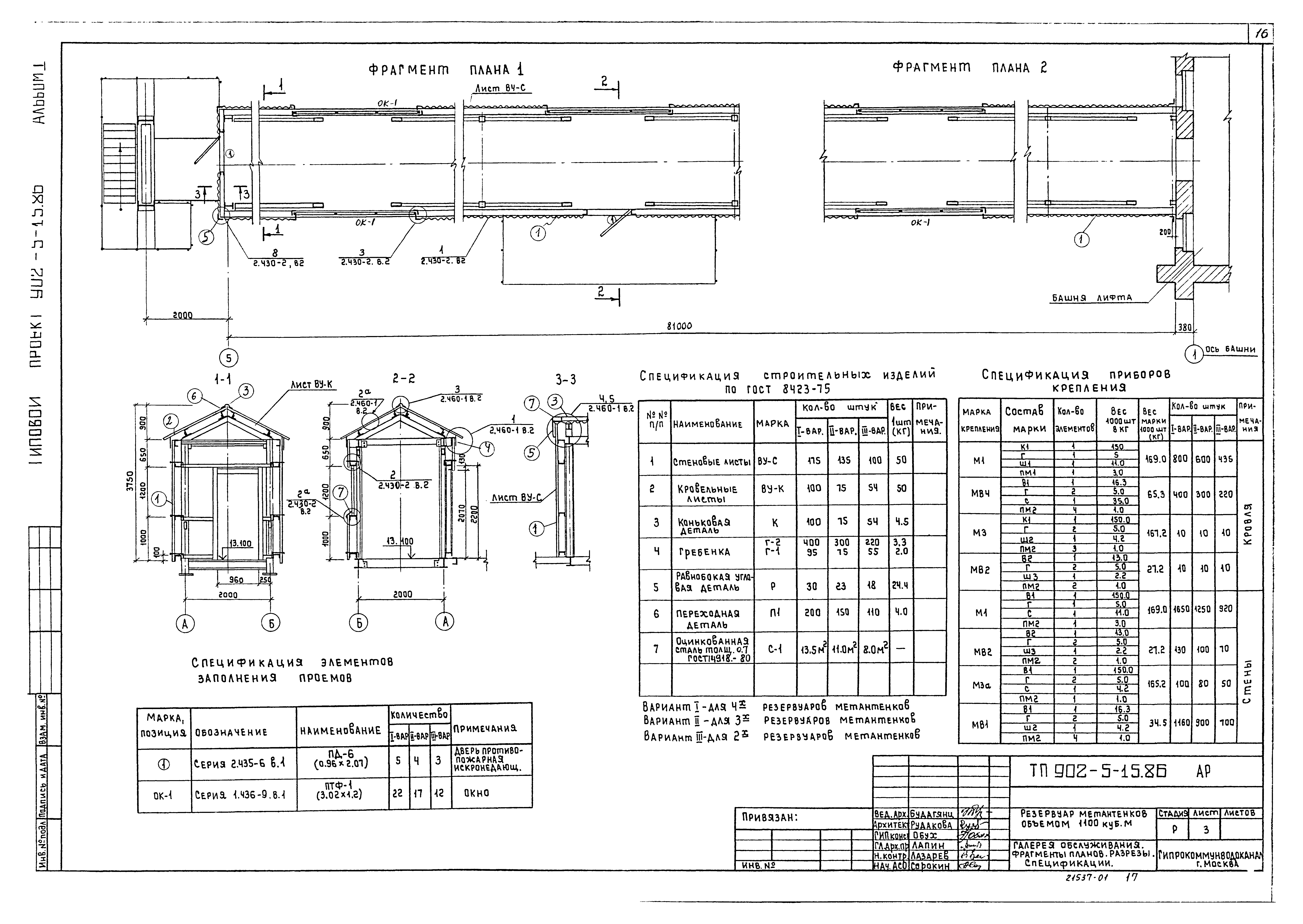
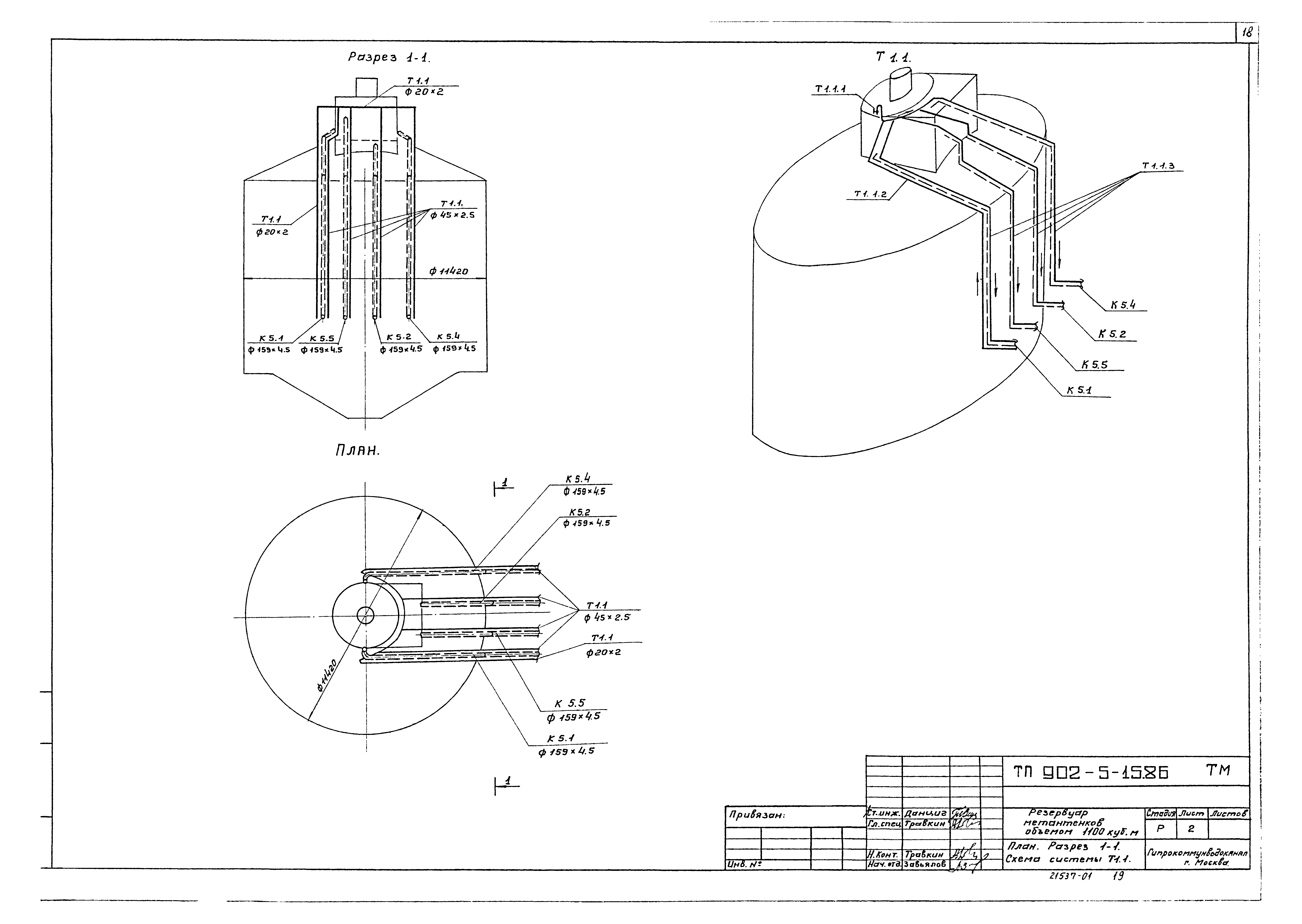
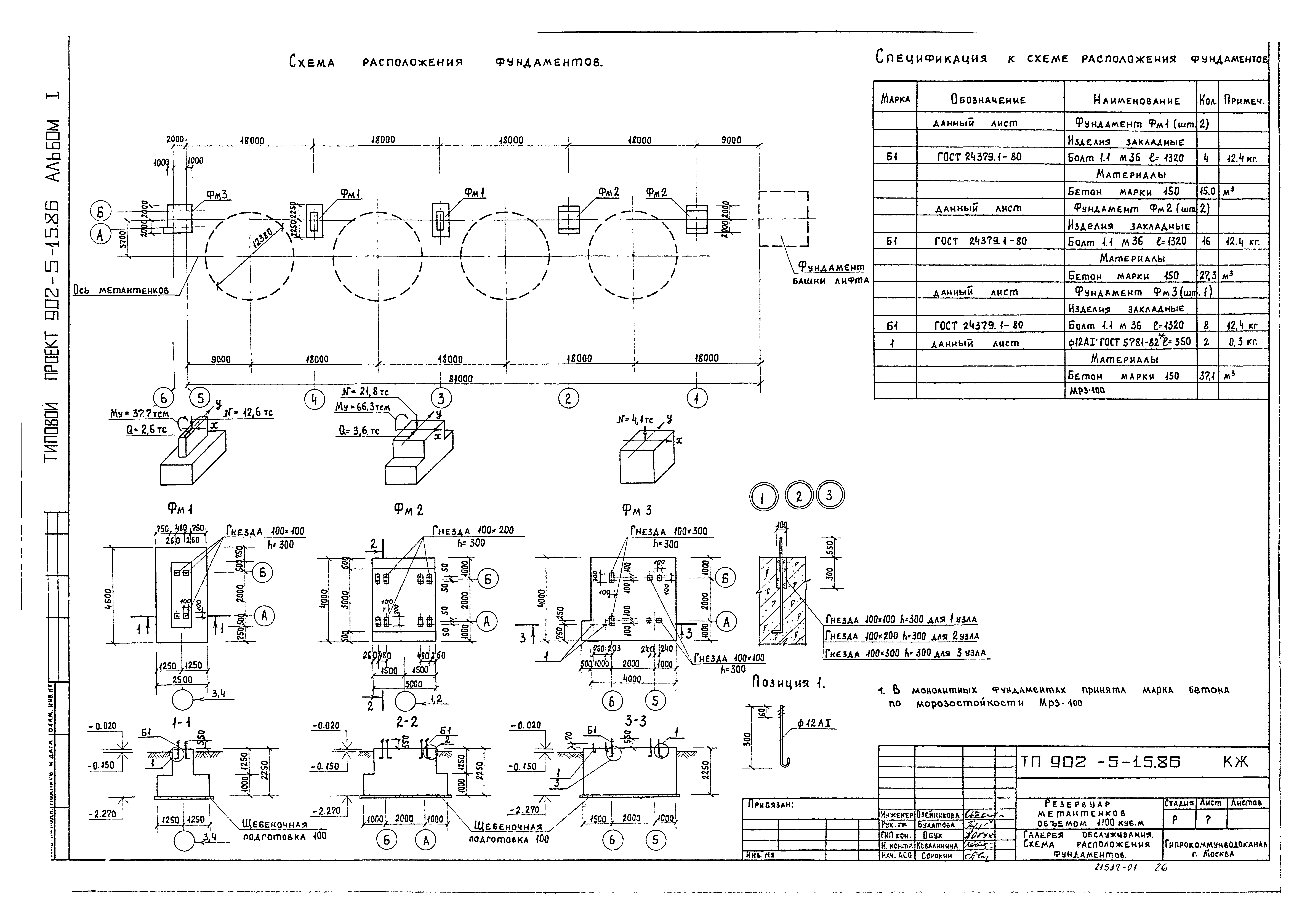
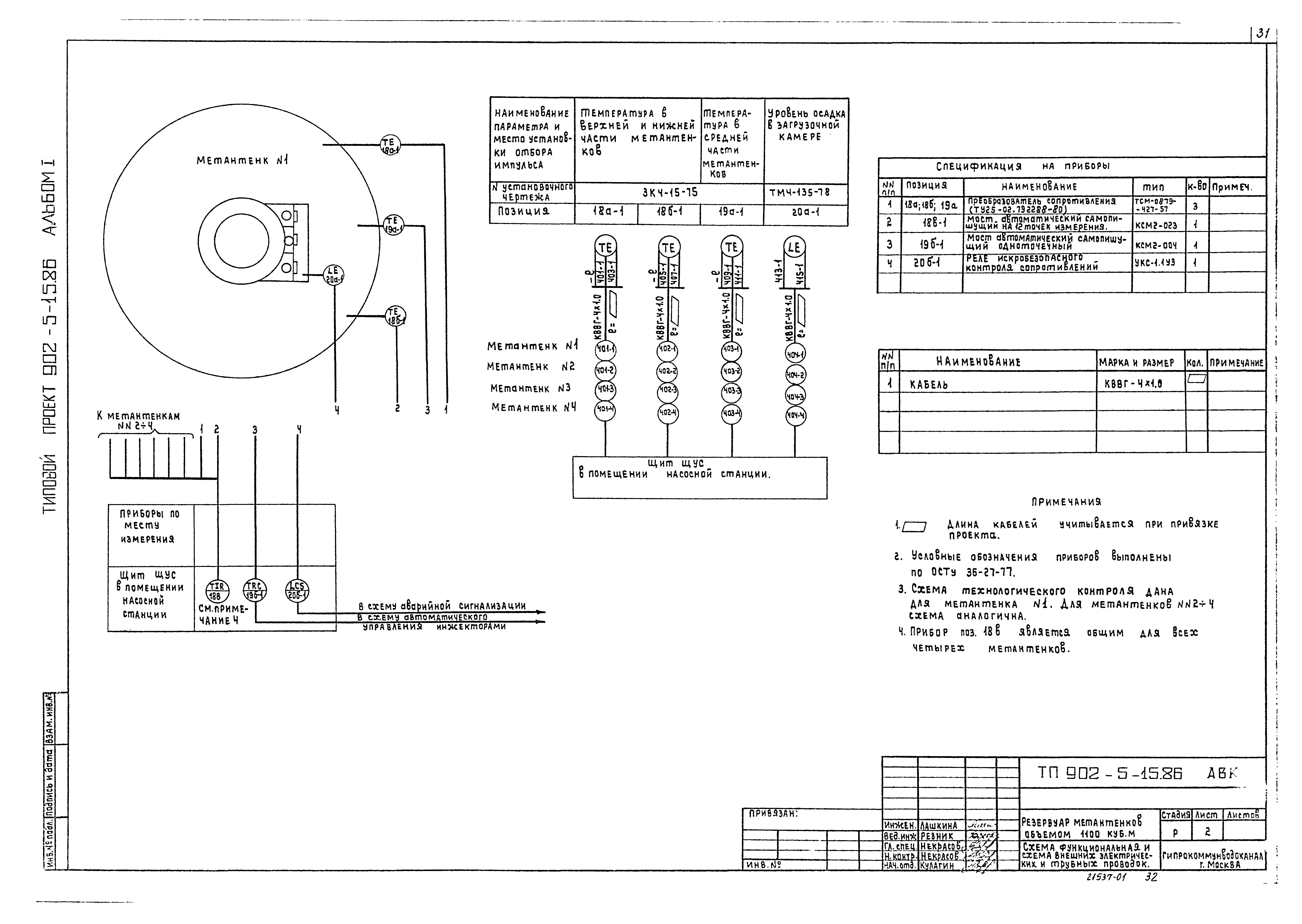
Скачать Типовой проект 902-5-15.86 Альбом I. Технологические, архитектурные, тепломеханические решения. Конструкции железобетонные. Электротехнические решения и технологический контрольДата актуализации: 01.01.2021 Типовой проект 902-5-15.86
Альбом I. Технологические, архитектурные, тепломеханические решения. Конструкции железобетонные. Электротехнические решения и технологический контроль| Обозначение: | Типовой проект 902-5-15.86 | | Обозначение англ: | 902-5-15.86 | | Статус: | не определен законодательством | | Название рус.: | Альбом I. Технологические, архитектурные, тепломеханические решения. Конструкции железобетонные. Электротехнические решения и технологический контроль | | Дата добавления в базу: | 12.02.2016 | | Дата актуализации: | 01.01.2021 | | Дата введения: | 12.03.1986 | | Дата окончания срока действия: | 30.06.2003 | | Разработан: | Гипрокоммунводоканал Минжилкомхоза РСФСР
| | Утверждён: | 04.03.1986 МЖКХ РСФСР (111)
|
                               
|