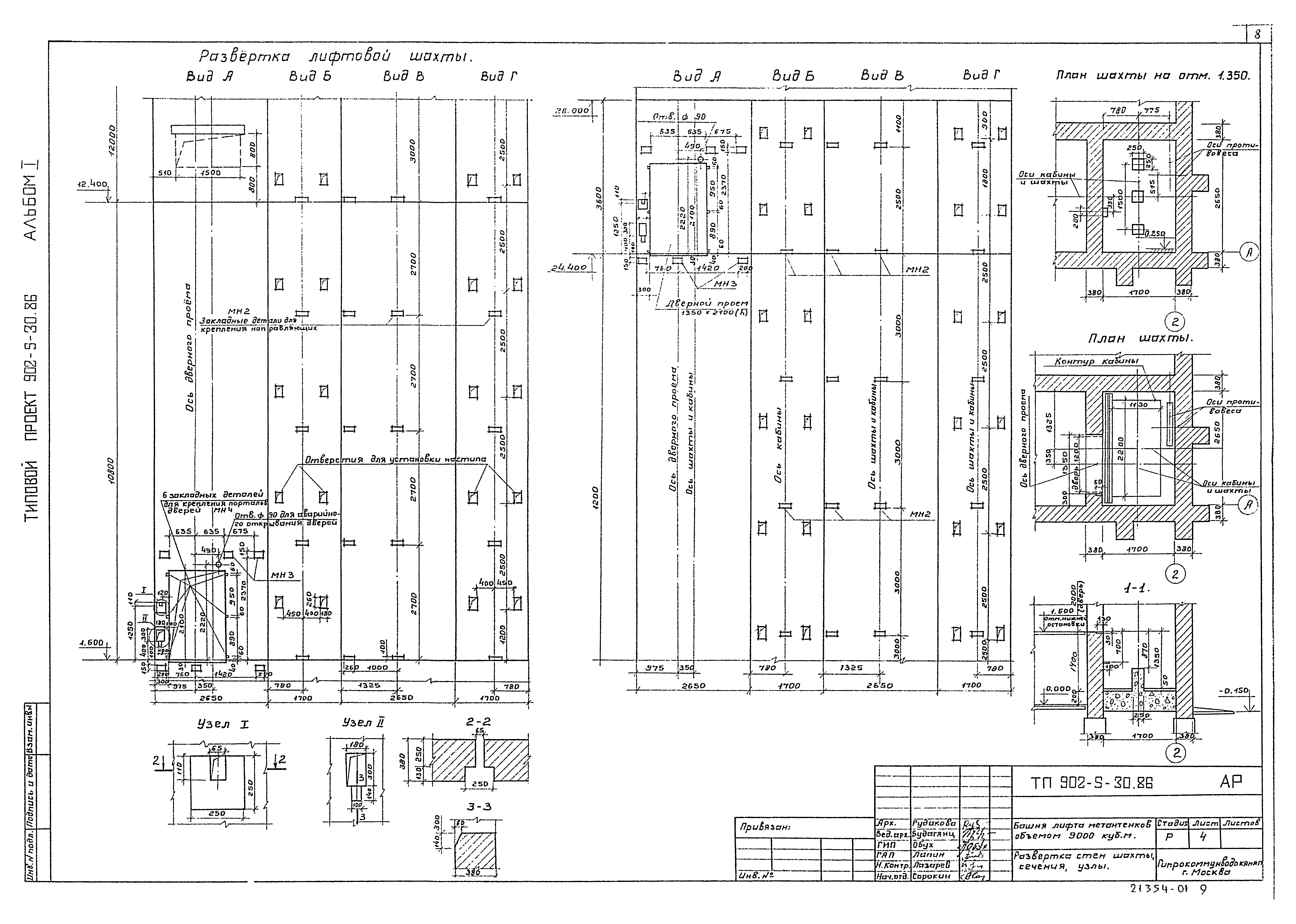
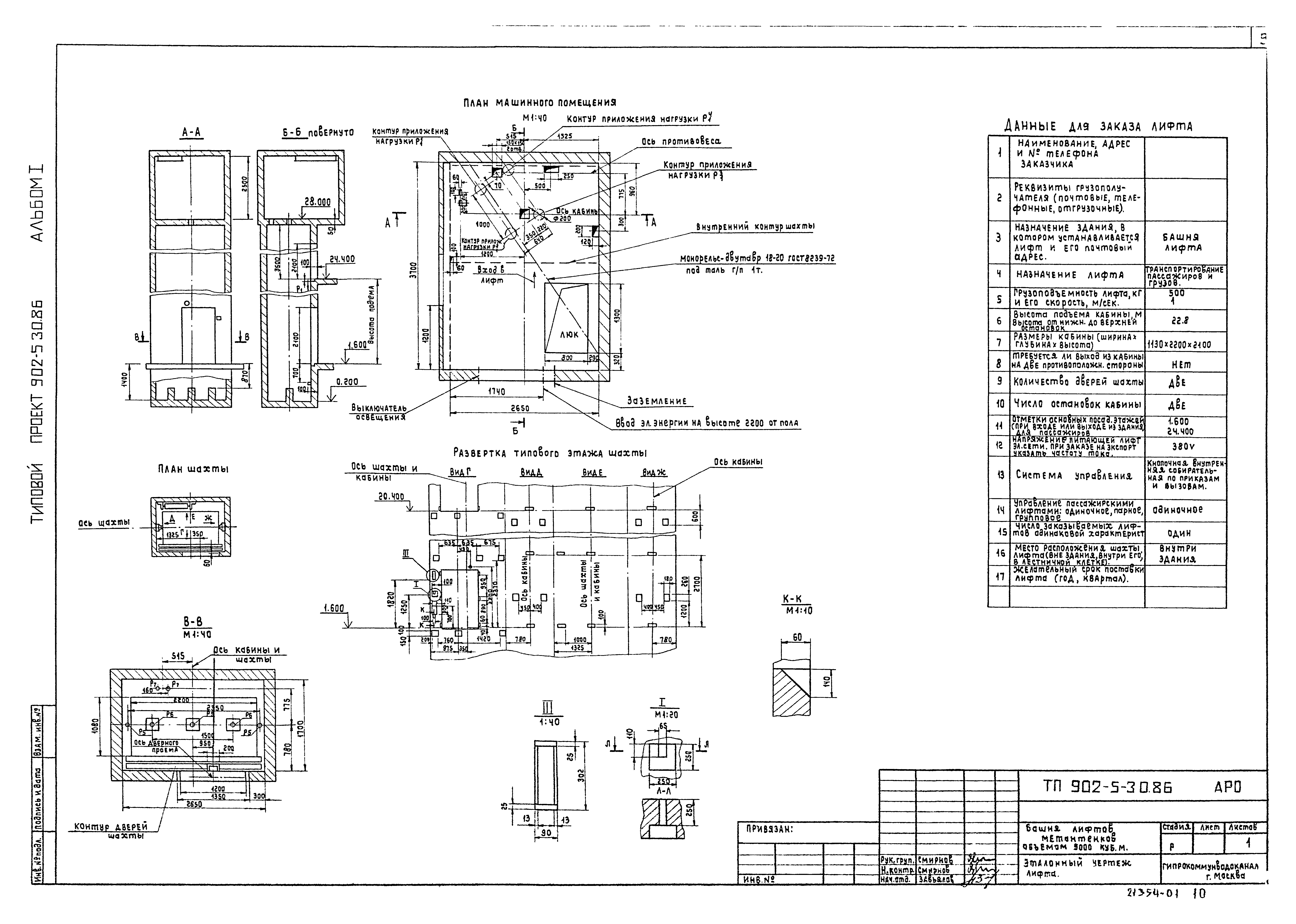
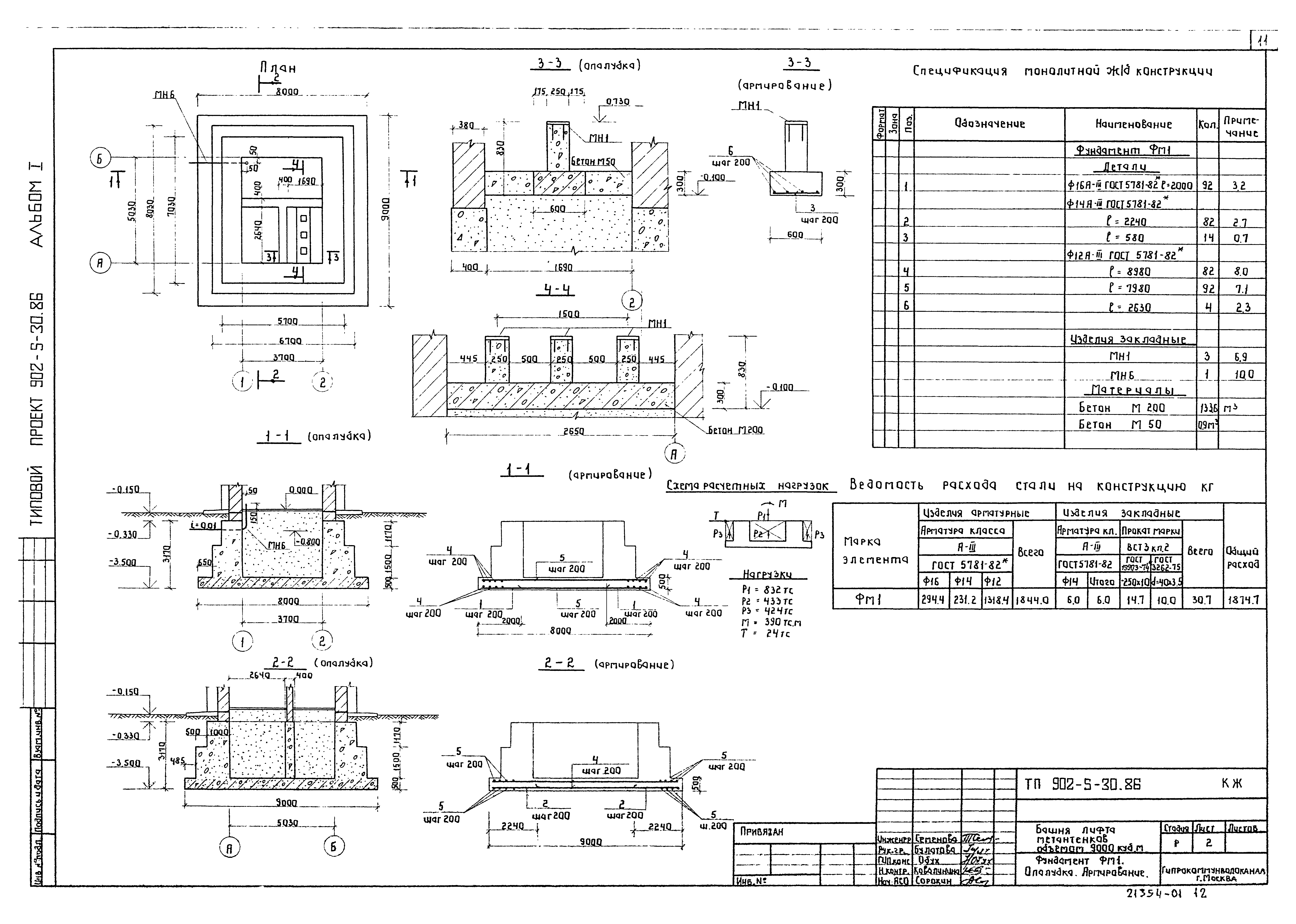
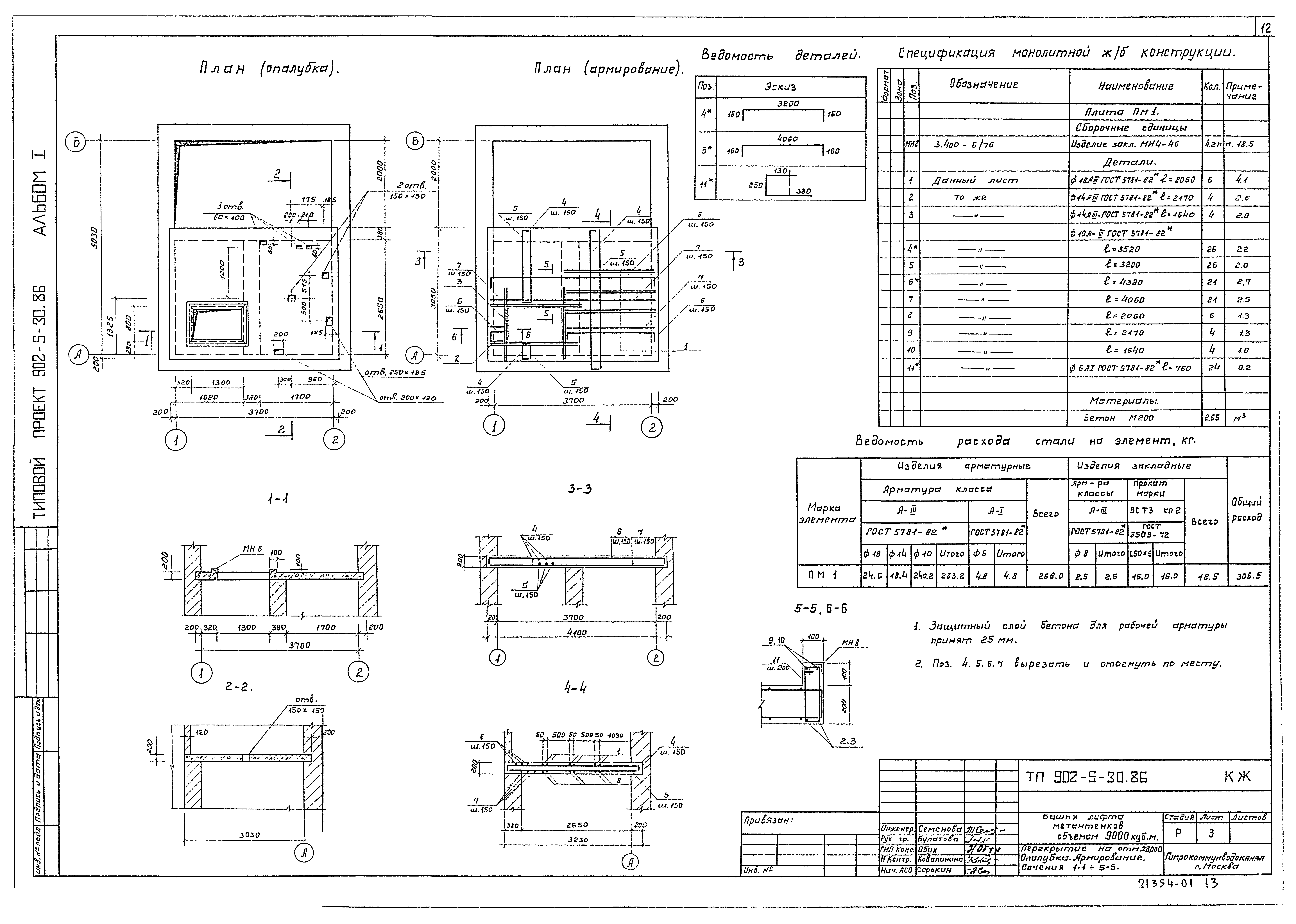
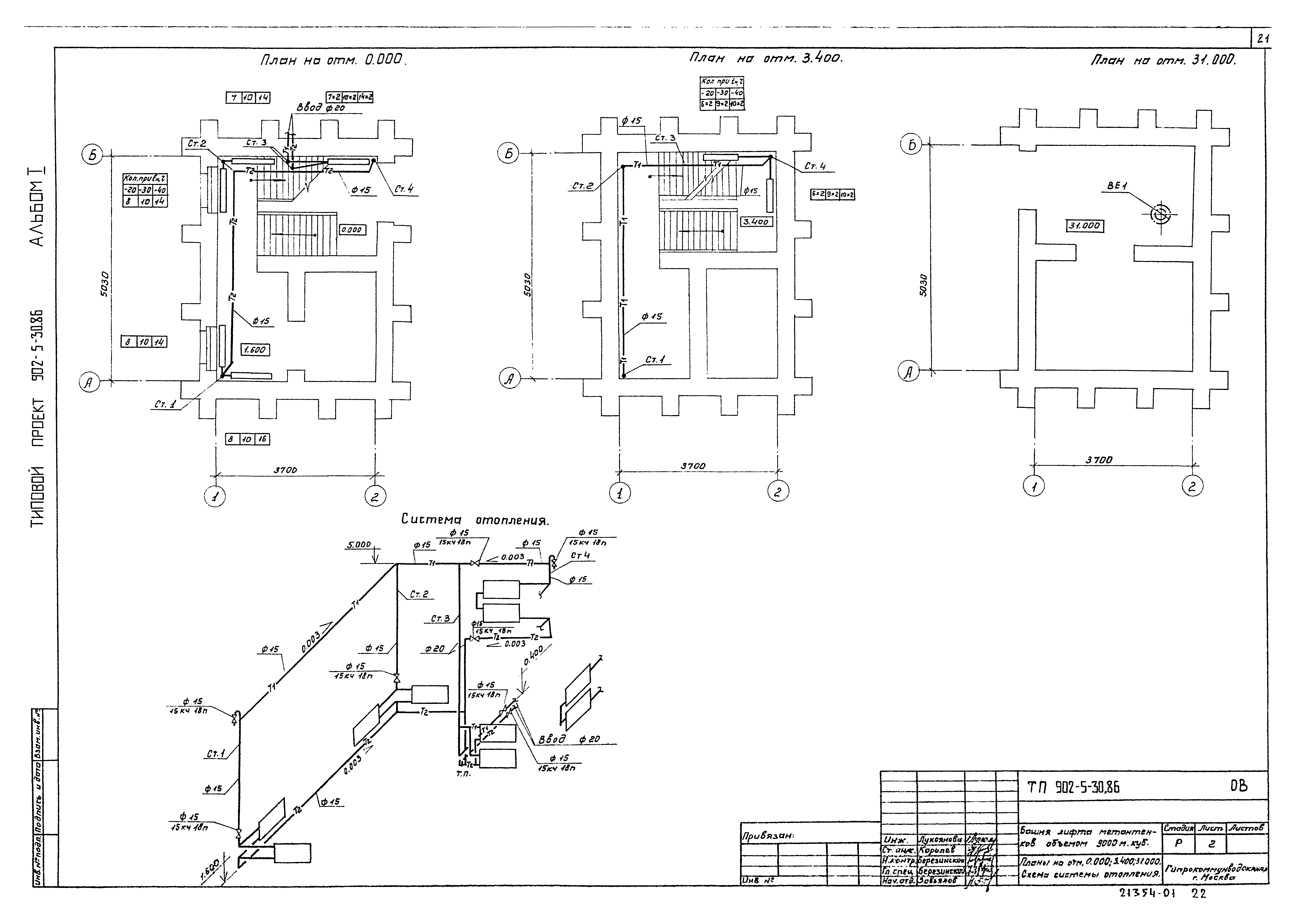
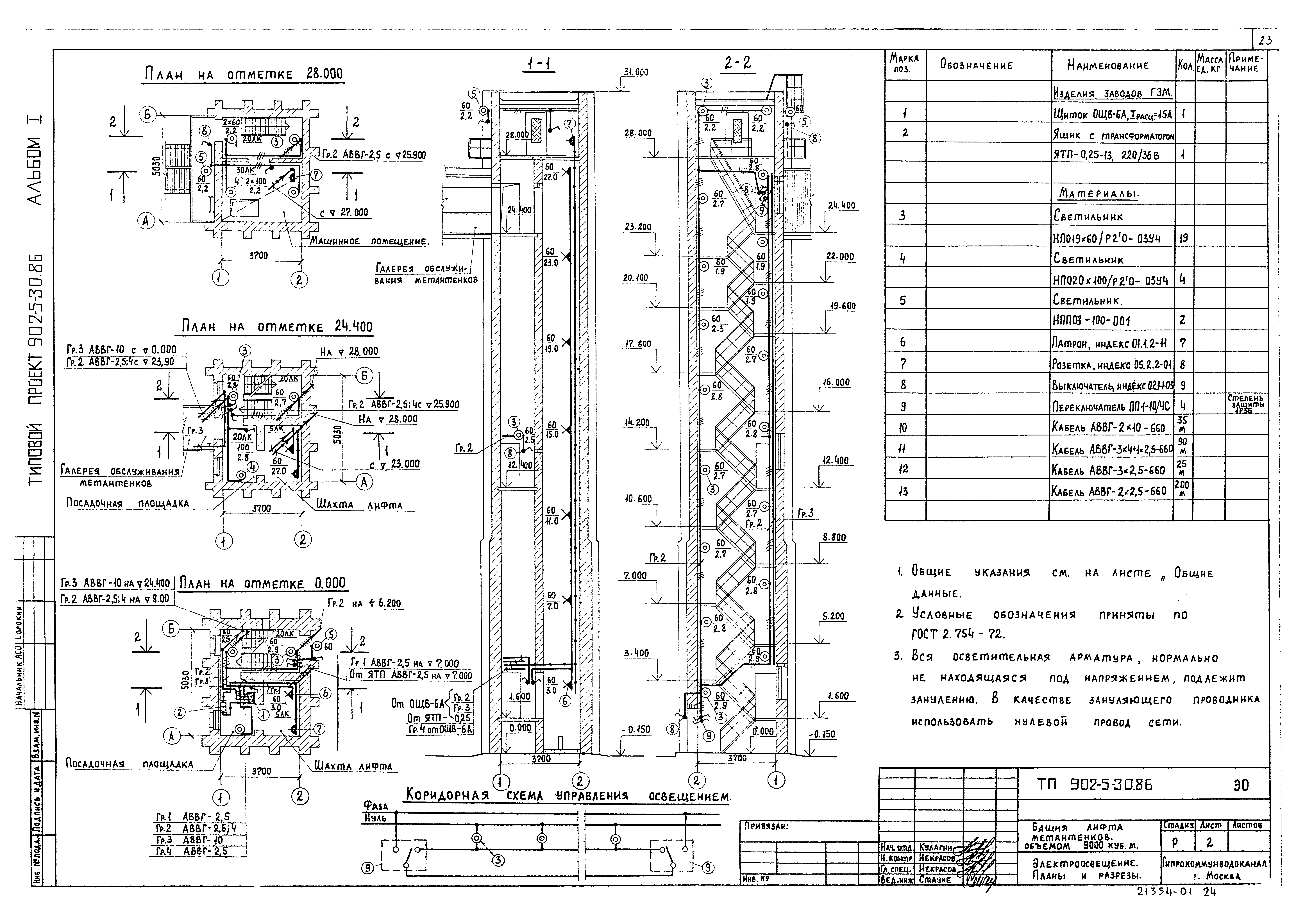
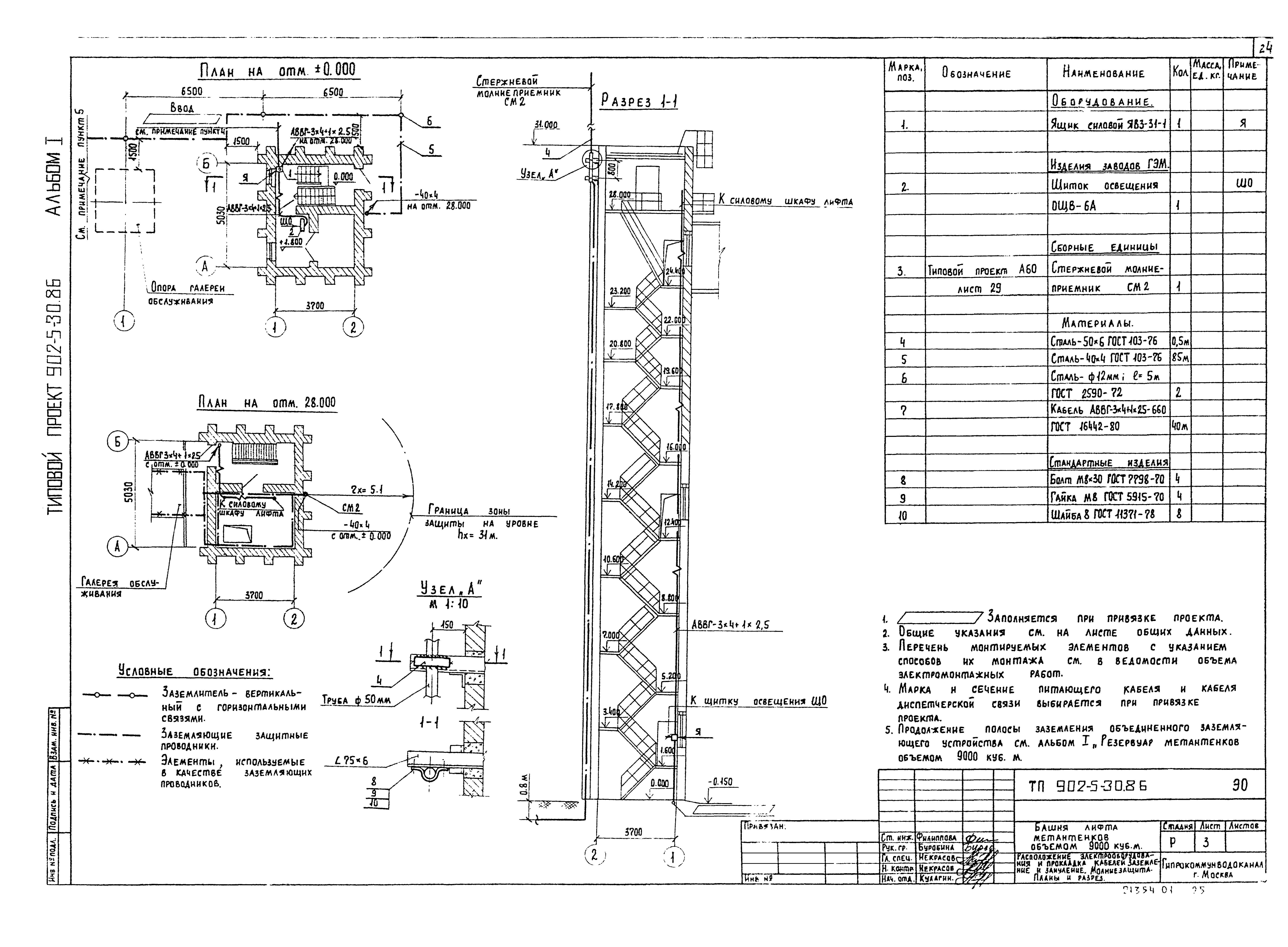
Скачать Типовой проект 902-5-30.86 Альбом I. Архитектурные, конструктивные, санитарно-технические, электротехнические решенияДата актуализации: 01.01.2021 Типовой проект 902-5-30.86
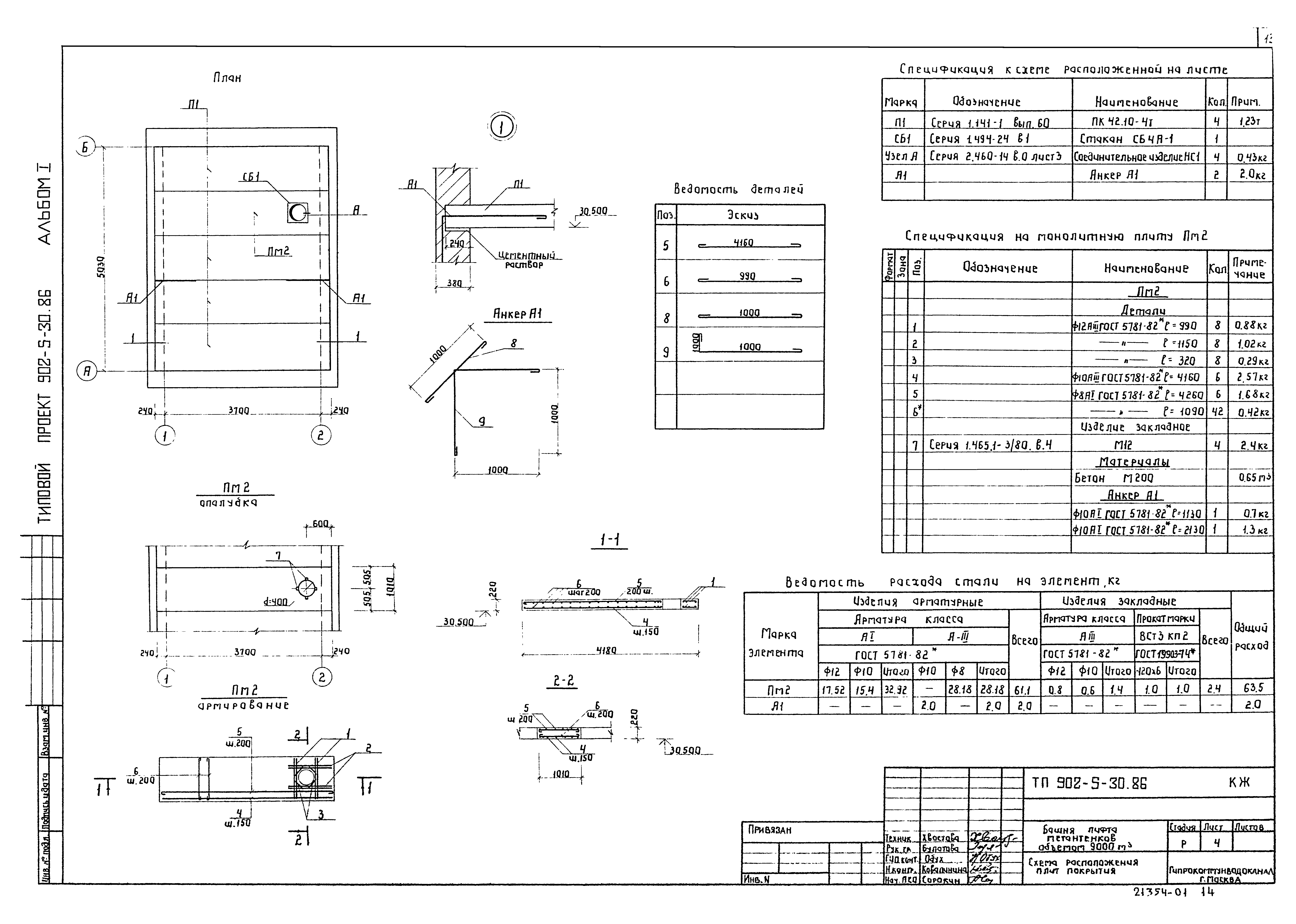
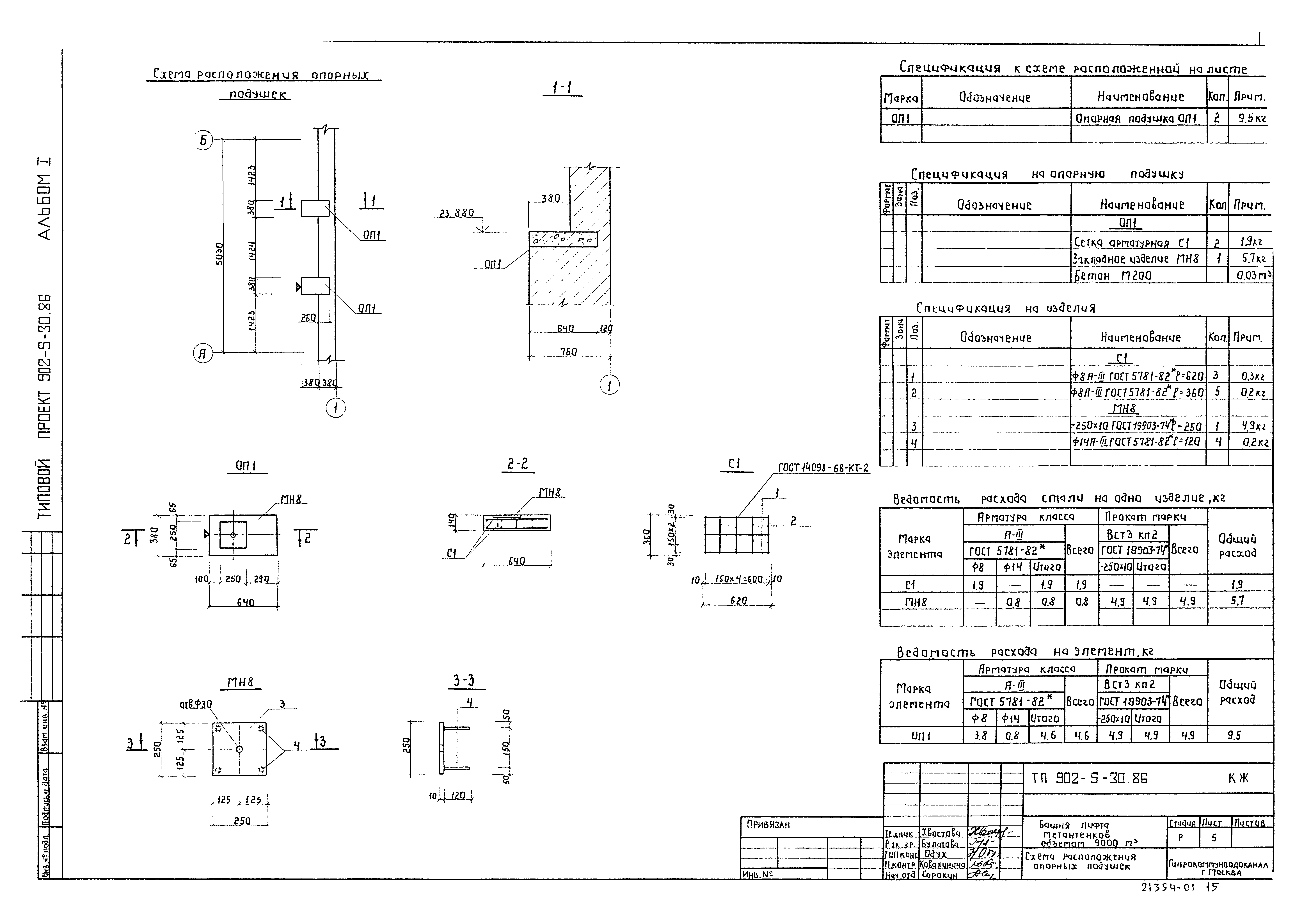
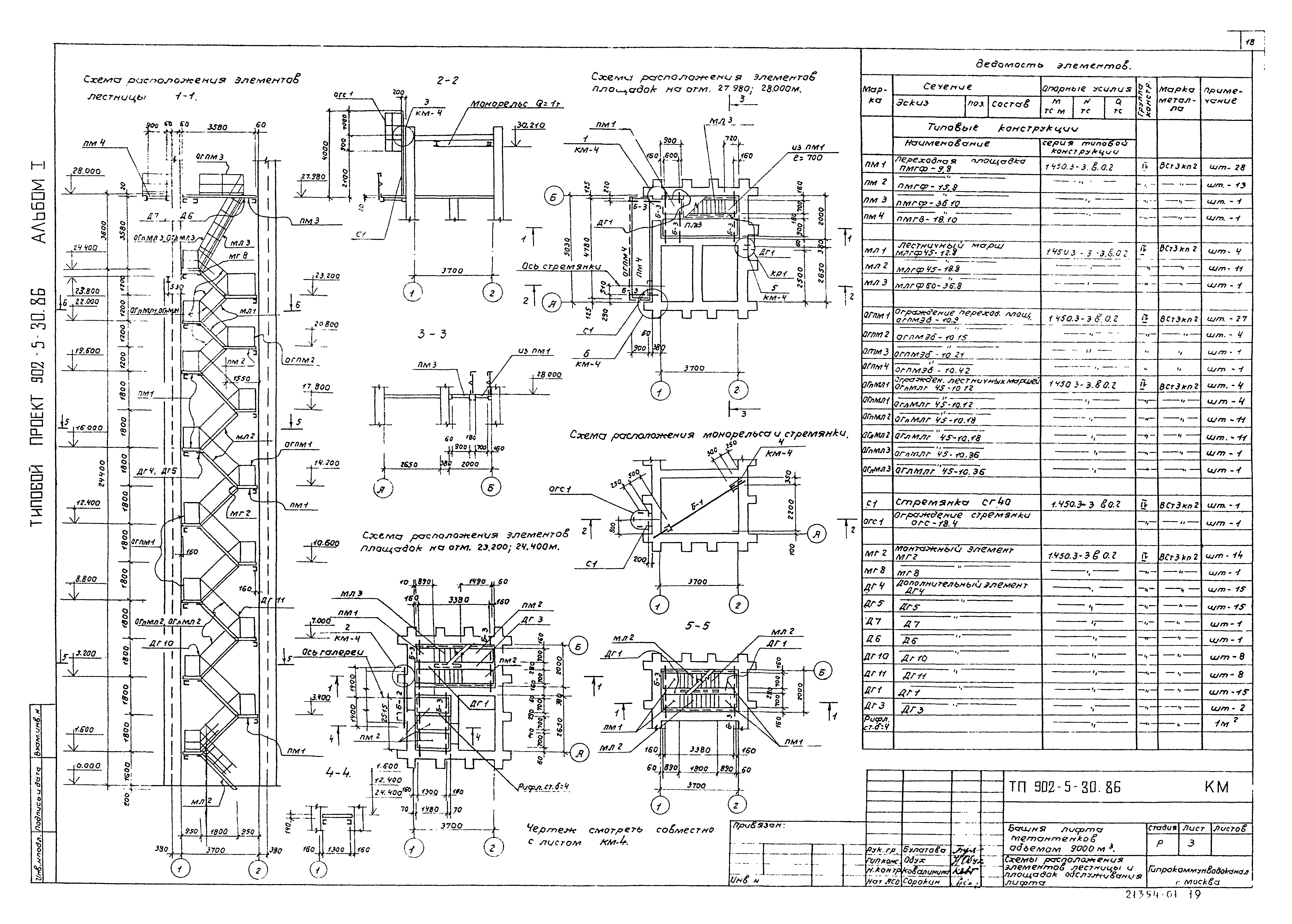
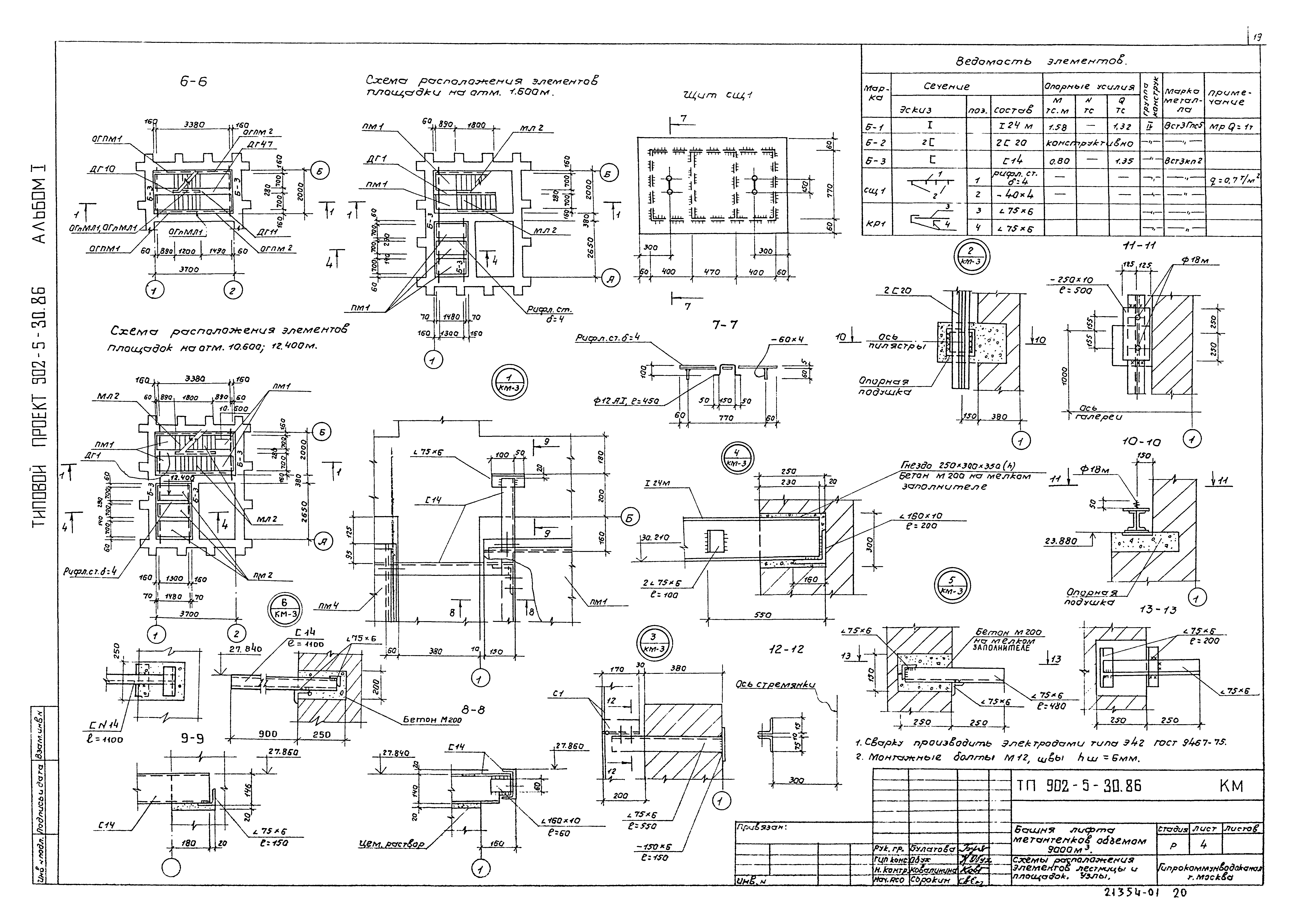
Альбом I. Архитектурные, конструктивные, санитарно-технические, электротехнические решения| Обозначение: | Типовой проект 902-5-30.86 | | Обозначение англ: | 902-5-30.86 | | Статус: | не определен законодательством | | Название рус.: | Альбом I. Архитектурные, конструктивные, санитарно-технические, электротехнические решения | | Дата добавления в базу: | 12.02.2016 | | Дата актуализации: | 01.01.2021 | | Дата введения: | 12.03.1986 | | Дата окончания срока действия: | 30.06.2003 | | Разработан: | Гипрокоммунводоканал Минжилкомхоза РСФСР
| | Утверждён: | 04.03.1986 МЖКХ РСФСР (111)
|
                        
|