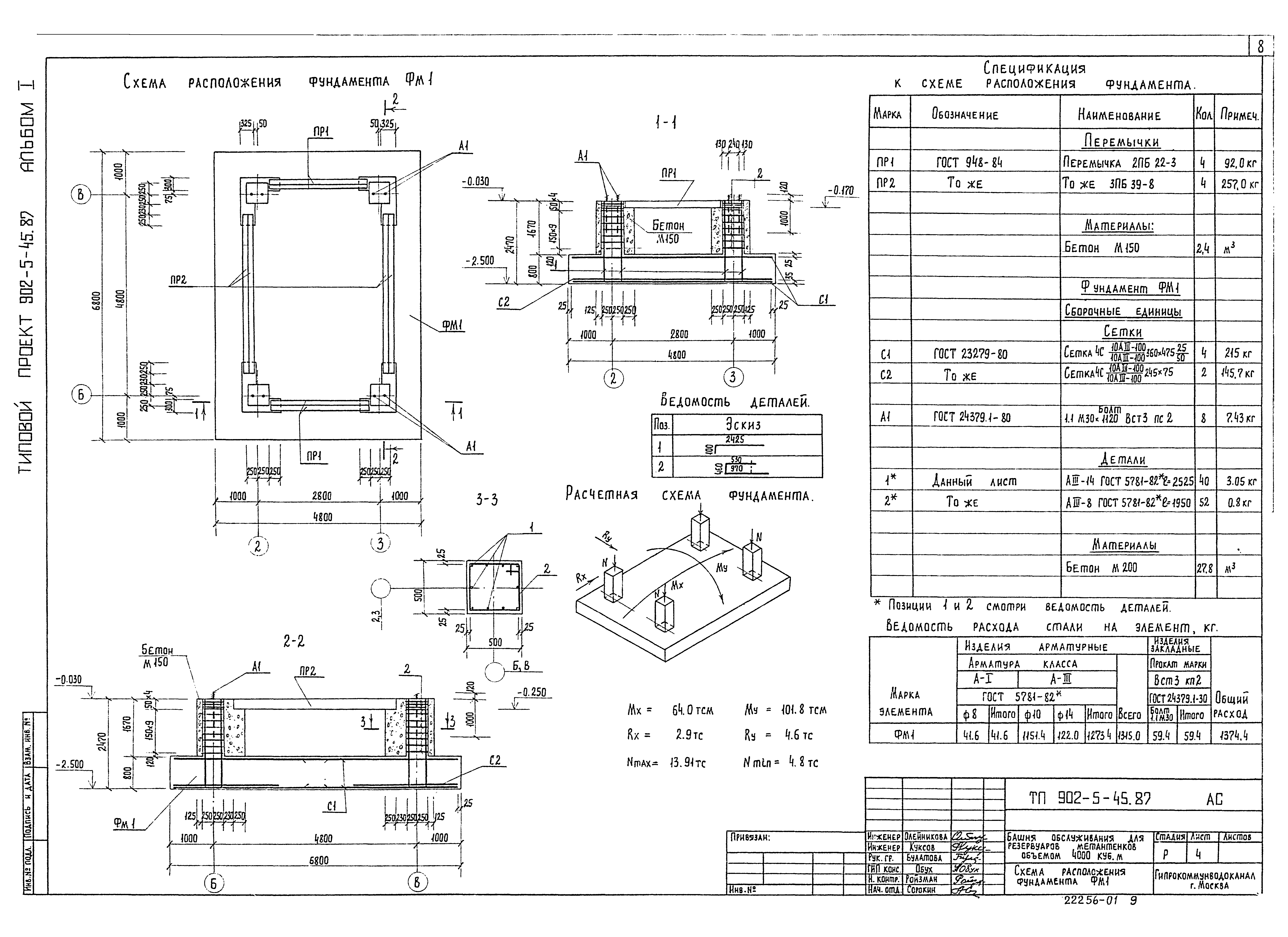
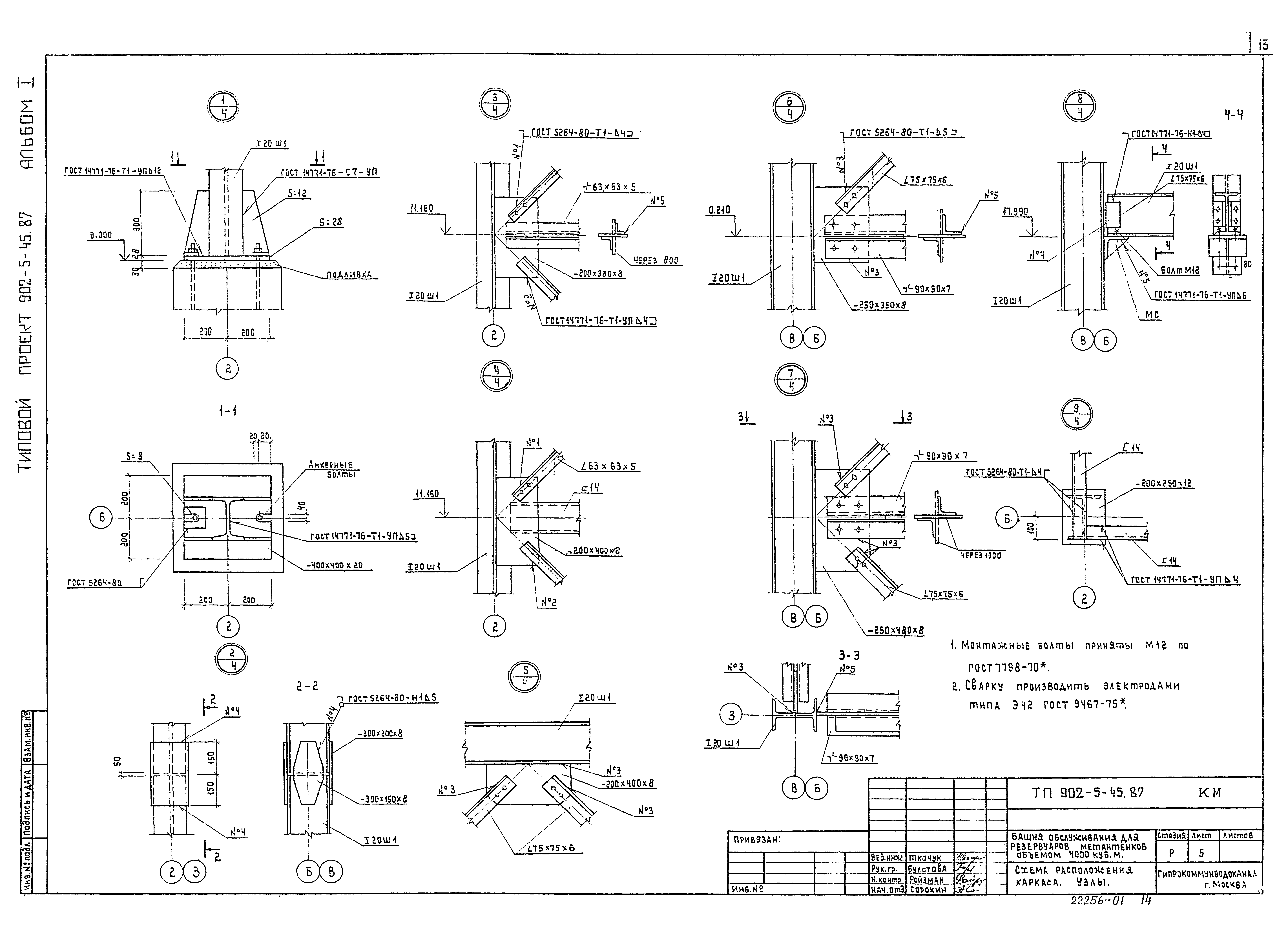
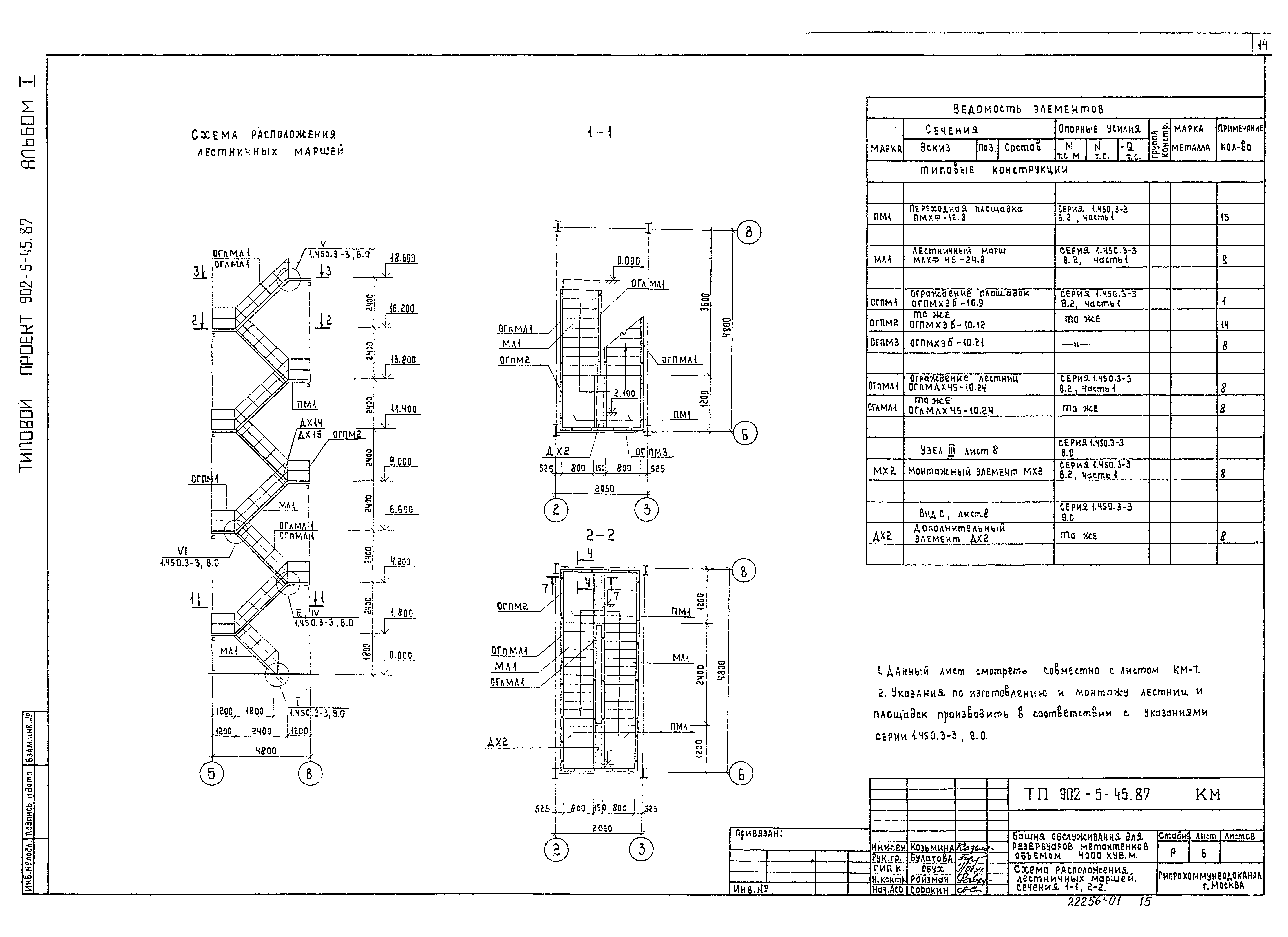
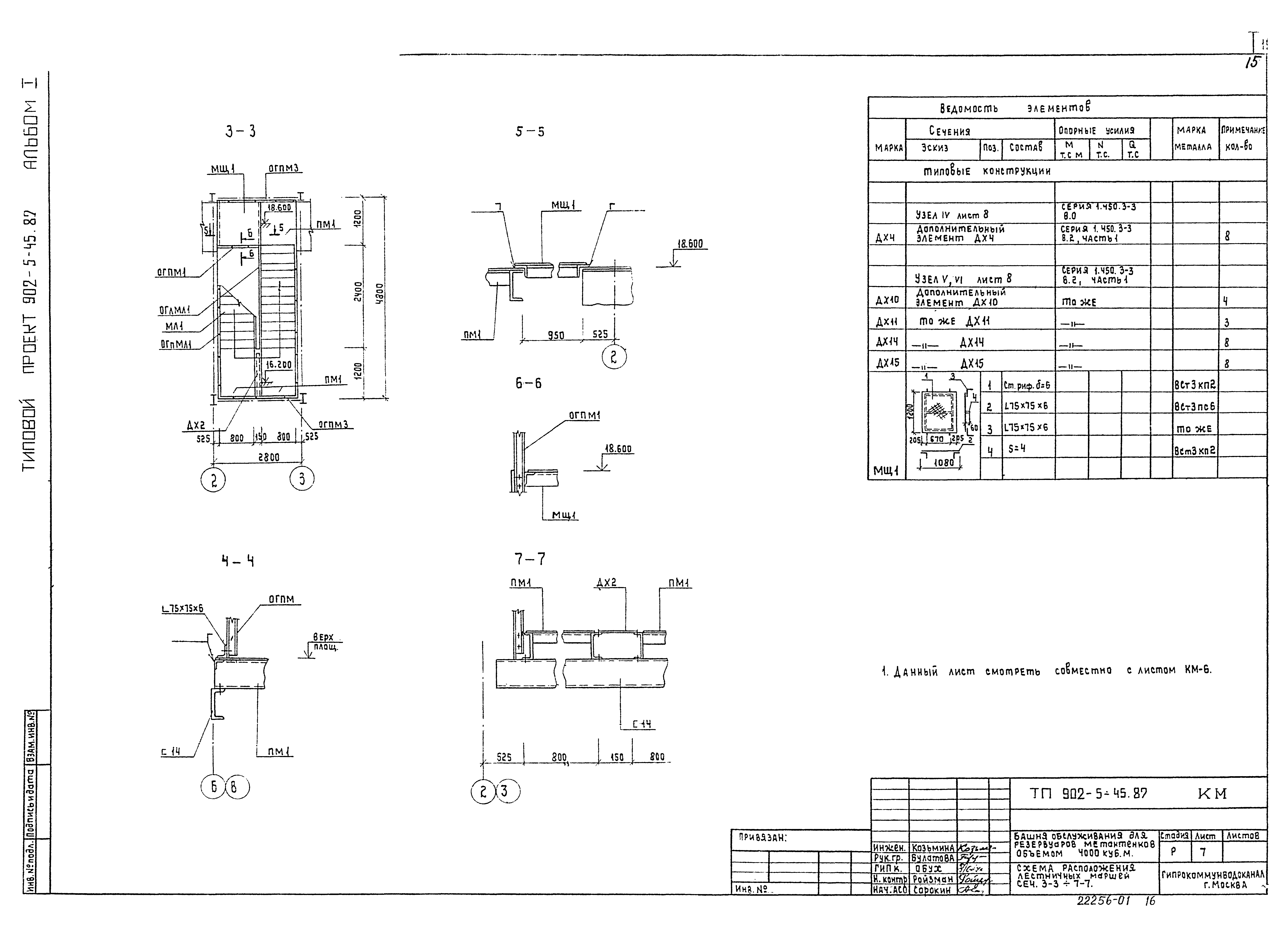
Скачать Типовой проект 902-5-45.87 Альбом I. Архитектурно-строительные решения, конструкции металлические, электротехнические решенияДата актуализации: 01.01.2021 Типовой проект 902-5-45.87
Альбом I. Архитектурно-строительные решения, конструкции металлические, электротехнические решения| Обозначение: | Типовой проект 902-5-45.87 | | Обозначение англ: | 902-5-45.87 | | Статус: | не определен законодательством | | Название рус.: | Альбом I. Архитектурно-строительные решения, конструкции металлические, электротехнические решения | | Дата добавления в базу: | 12.02.2016 | | Дата актуализации: | 01.01.2021 | | Дата введения: | 13.05.1987 | | Дата окончания срока действия: | 30.06.2003 | | Разработан: | Гипрокоммунводоканал Минжилкомхоза РСФСР
| | Утверждён: | 13.05.1987 МЖКХ РСФСР (5-ТД)
|
                   
|