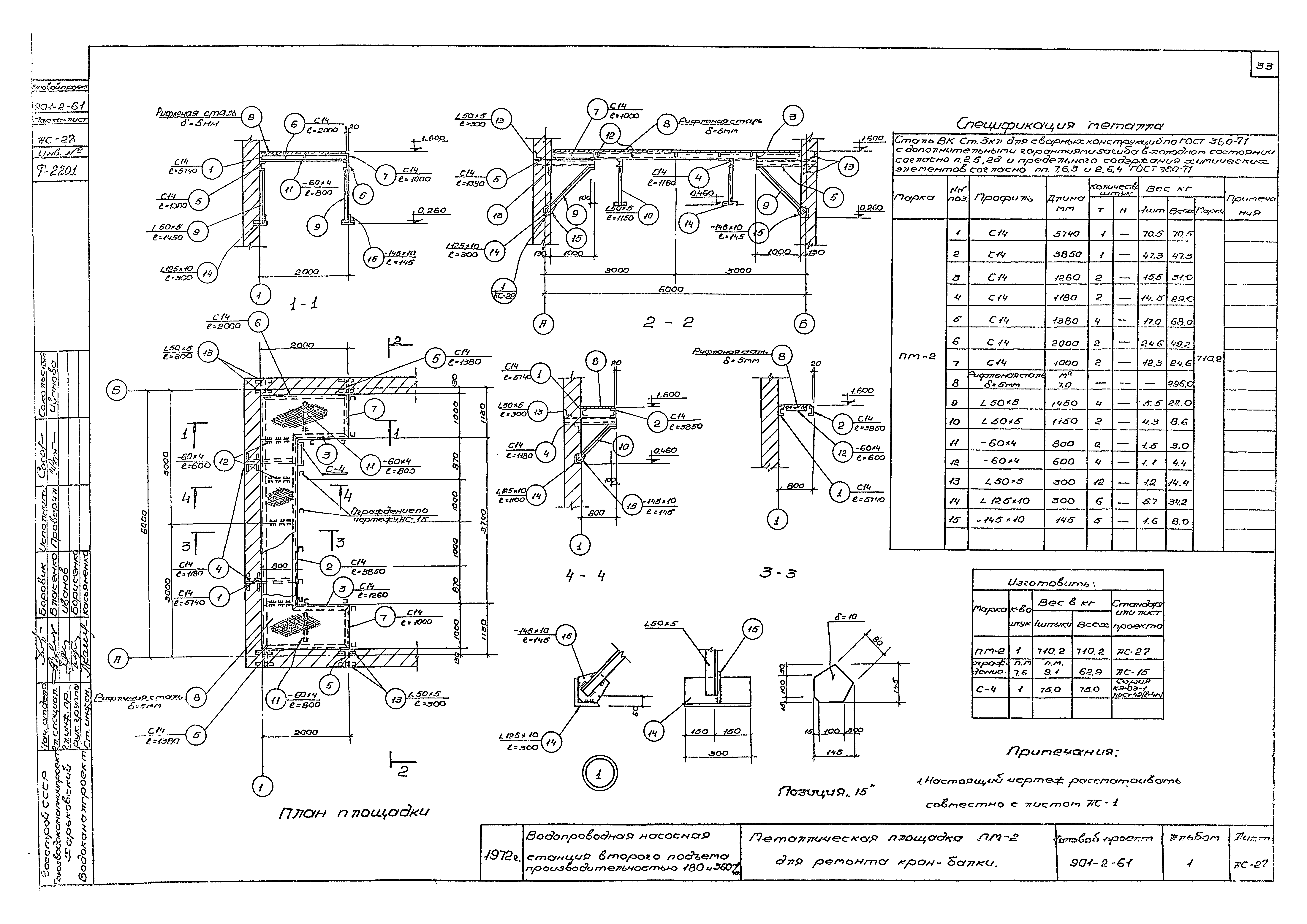
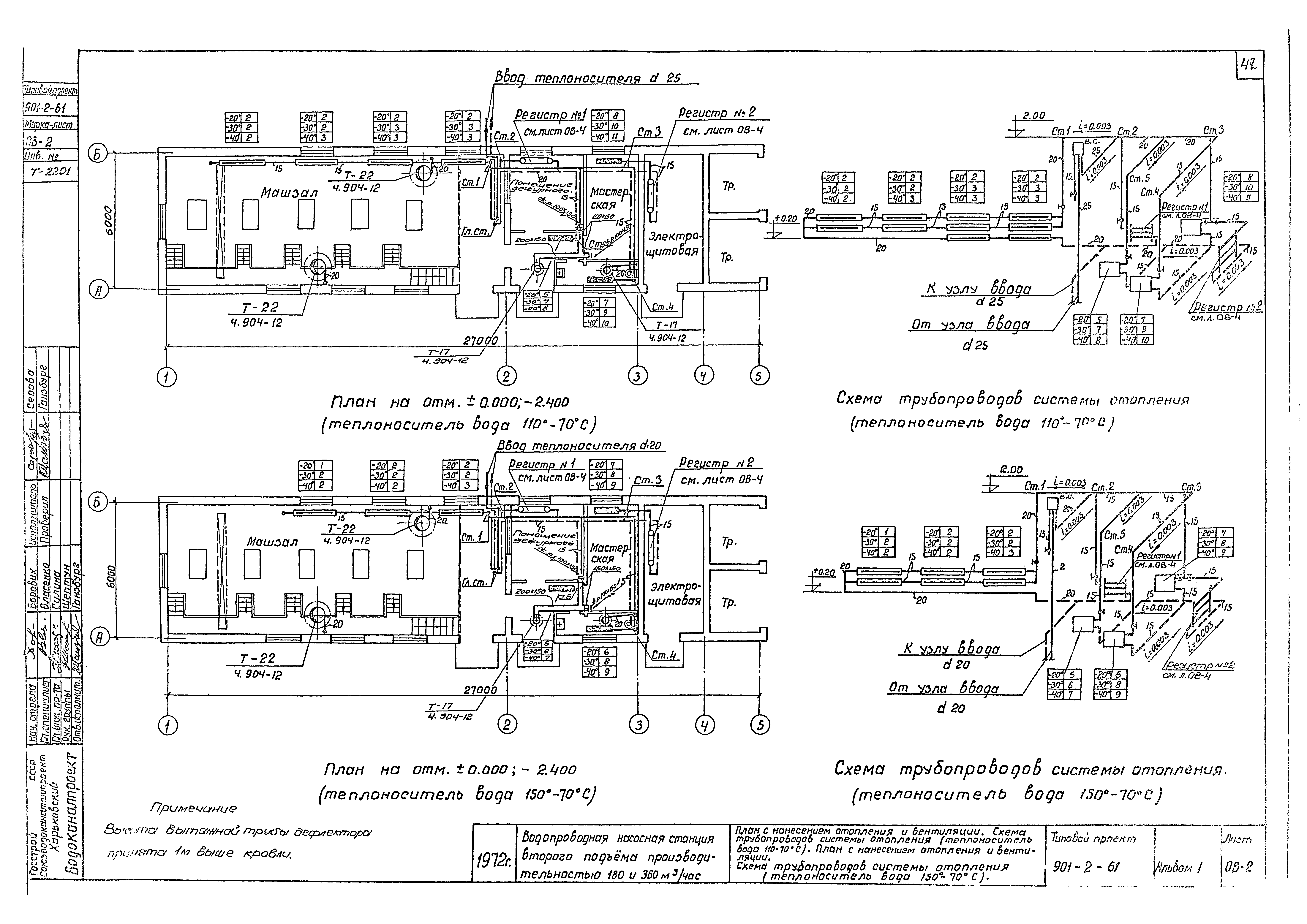
Скачать Типовой проект 901-2-61 Альбом I. Архитектурно-строительная, технологическая механическая и санитарно-техническая частиДата актуализации: 01.01.2021 Типовой проект 901-2-61
Альбом I. Архитектурно-строительная, технологическая механическая и санитарно-техническая части| Обозначение: | Типовой проект 901-2-61 | | Обозначение англ: | 901-2-61 | | Статус: | отменен | | Название рус.: | Альбом I. Архитектурно-строительная, технологическая механическая и санитарно-техническая части | | Дата добавления в базу: | 12.02.2016 | | Дата актуализации: | 01.01.2021 | | Дата введения: | 22.03.1973 | | Дата окончания срока действия: | 01.04.1984 | | Разработан: | Харьковский Водоканалпроект
| | Утверждён: | 19.03.1973 СоюзводоканалНИИпроект (SoyuzvodokanalNIIproject 58)
| | Заменяет собой: | |
                                            
|