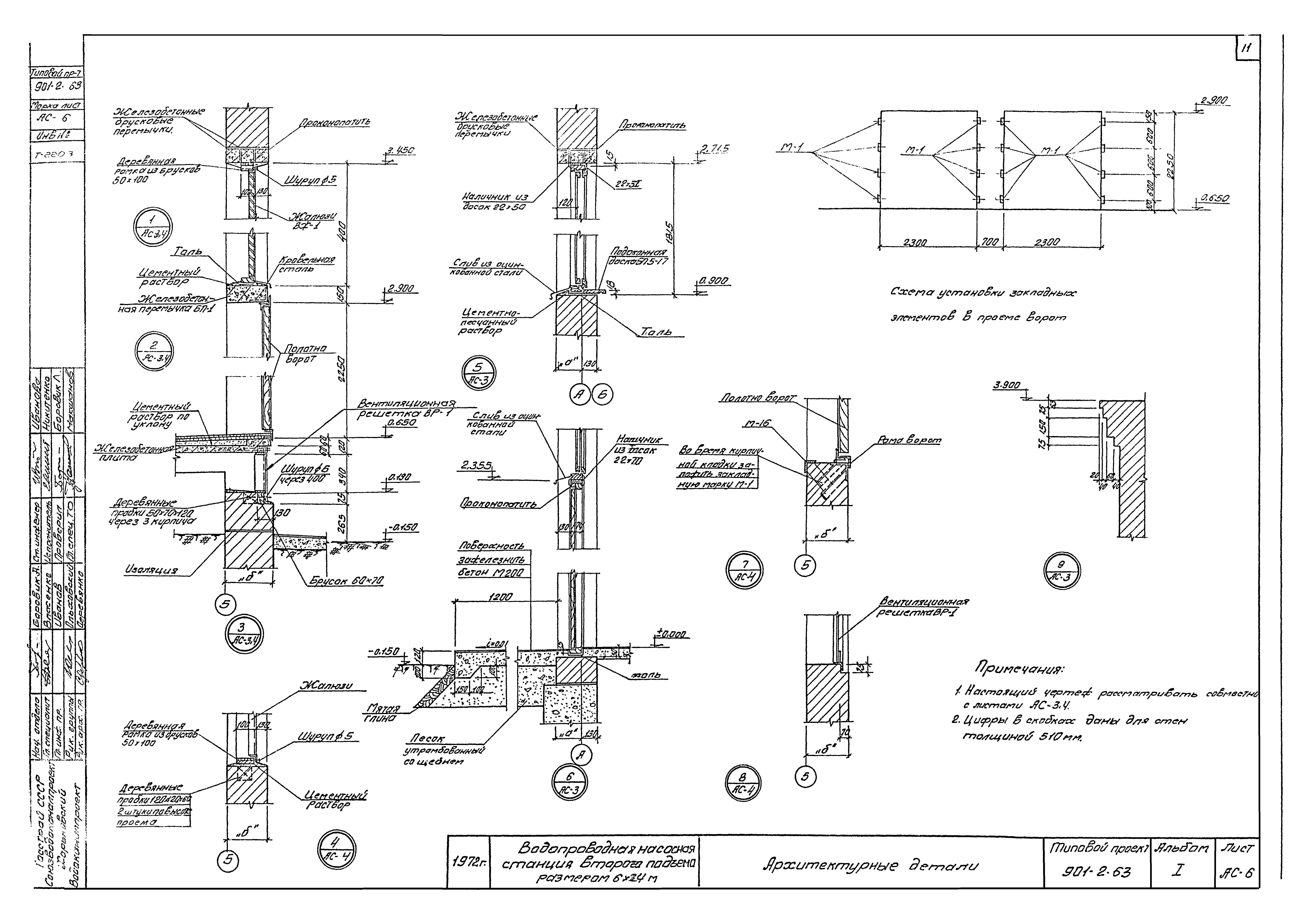
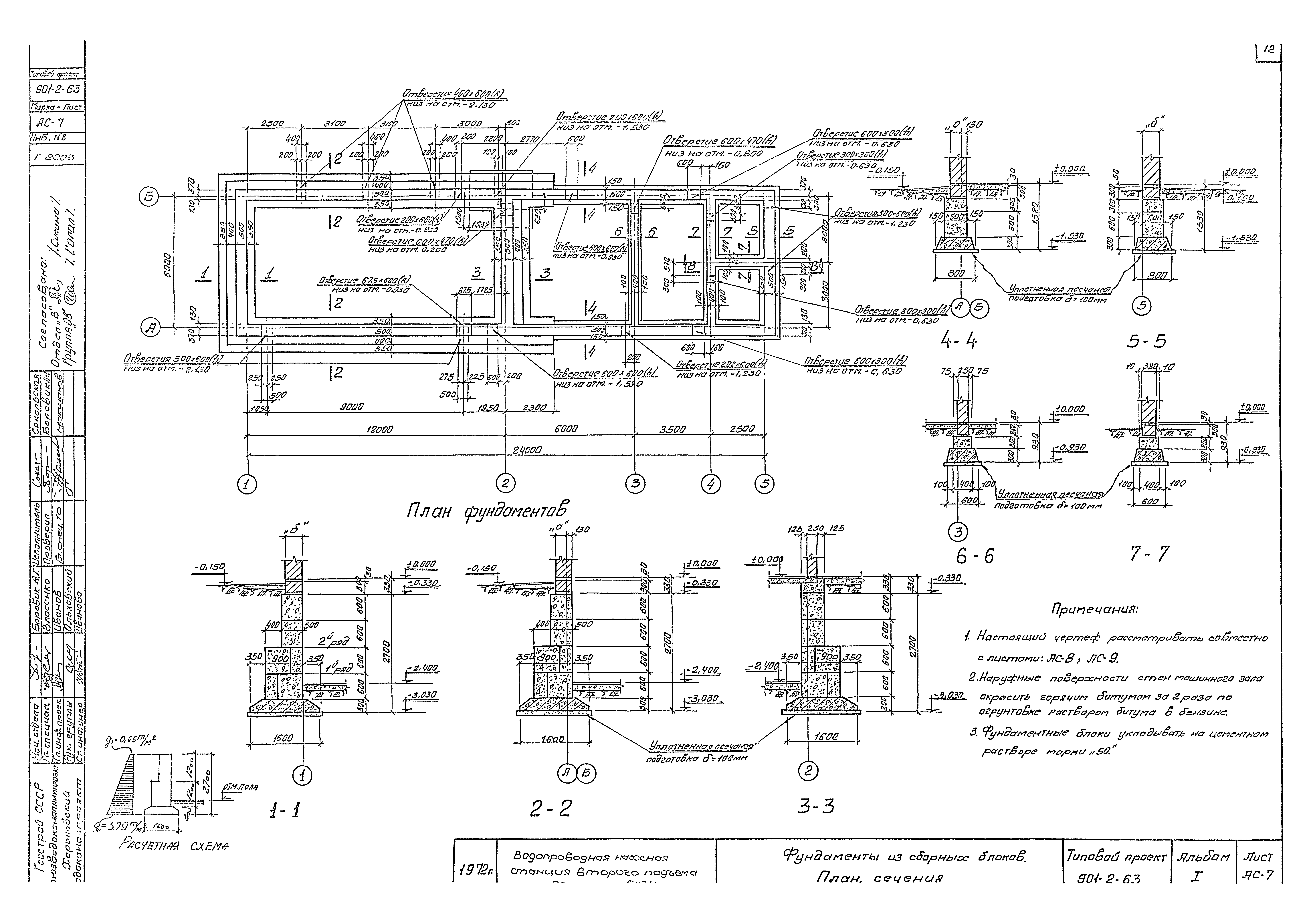
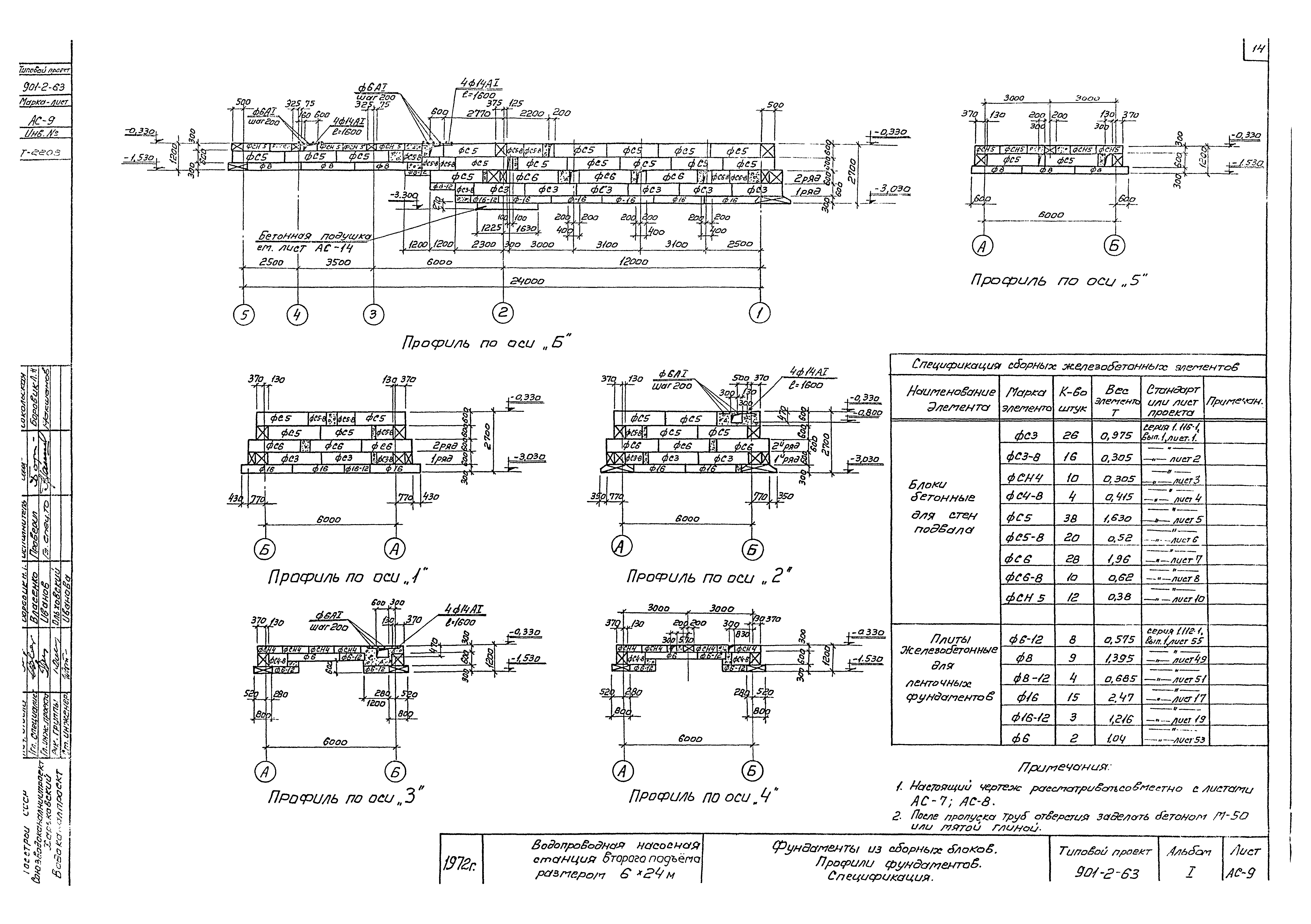
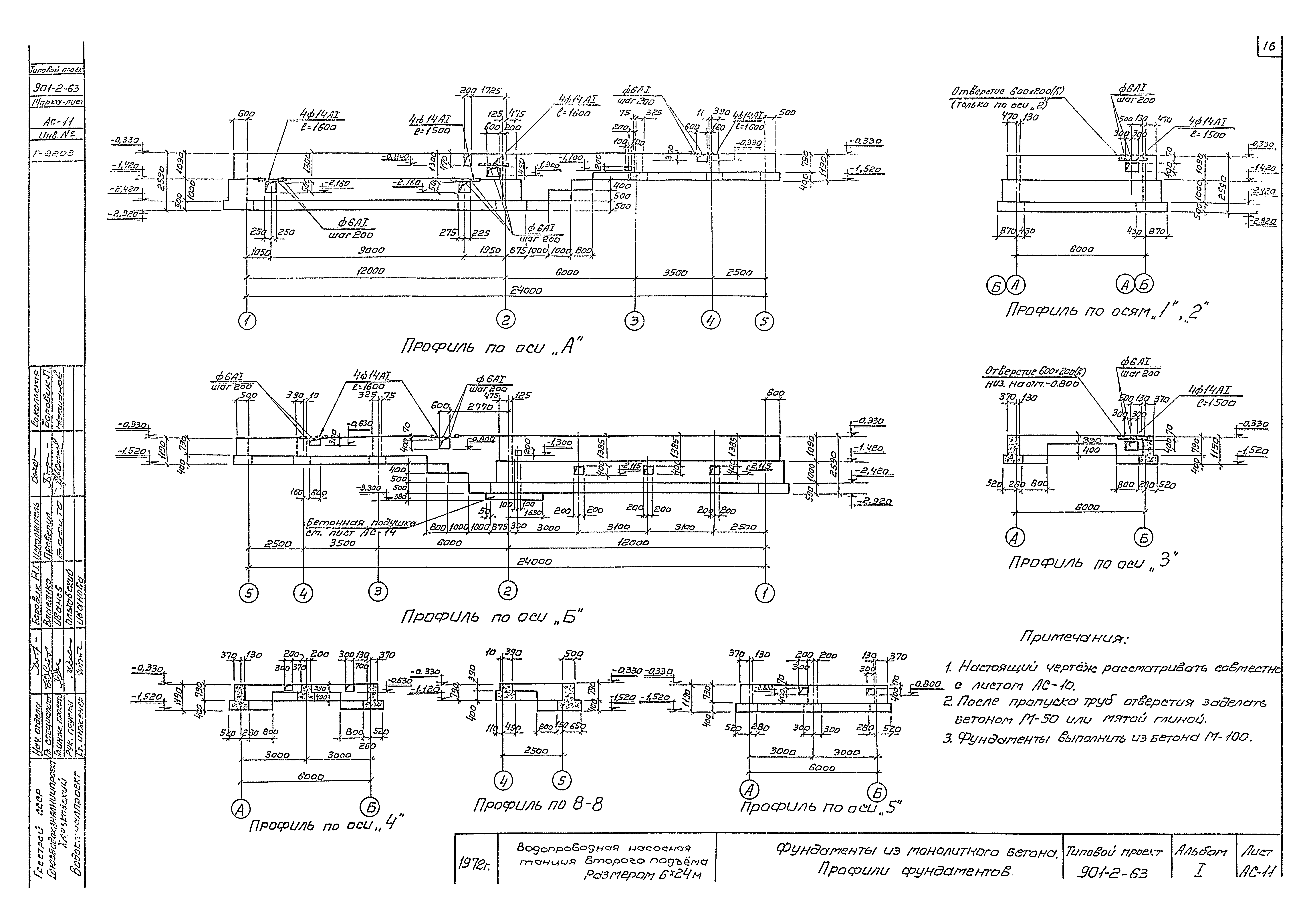
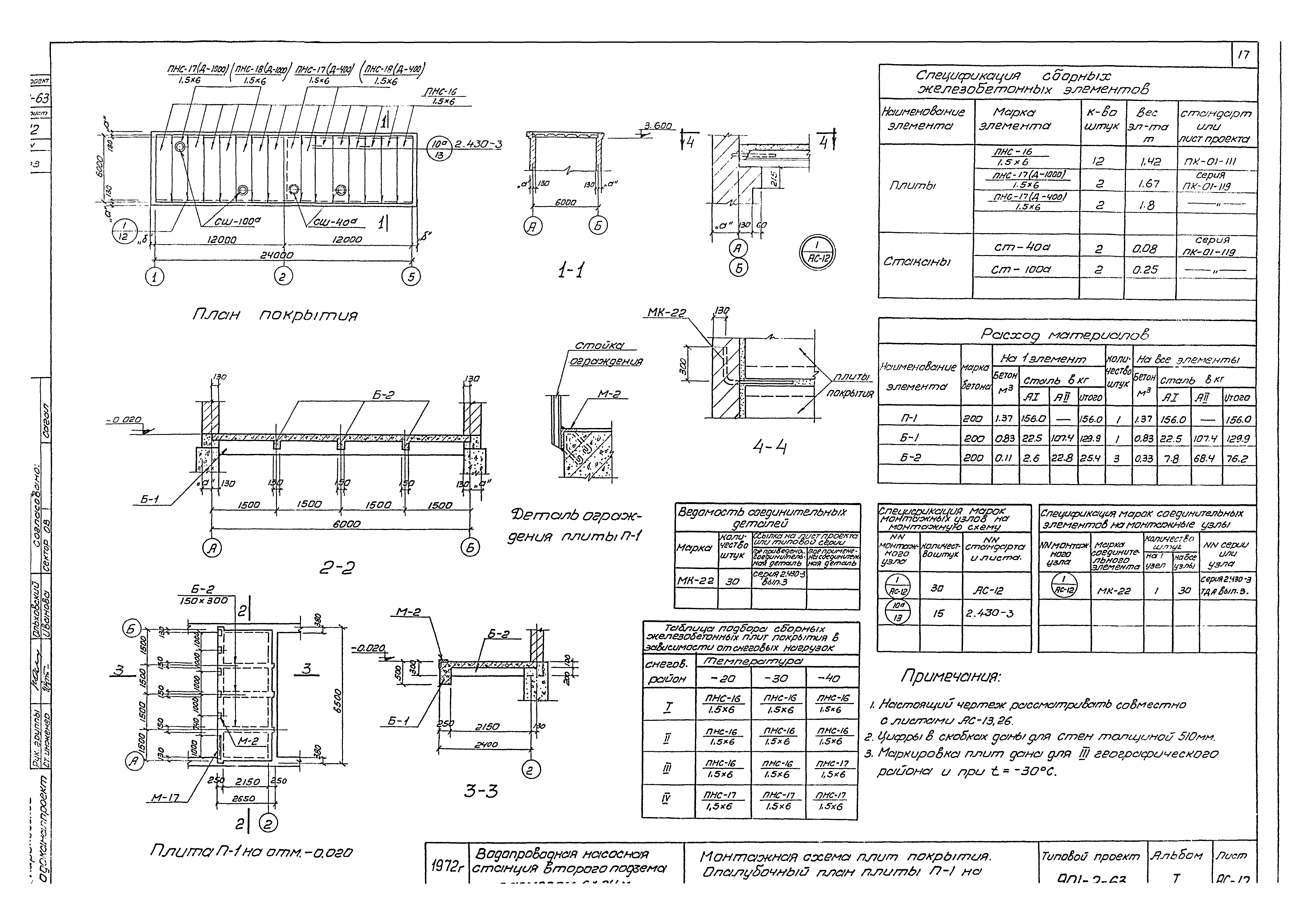
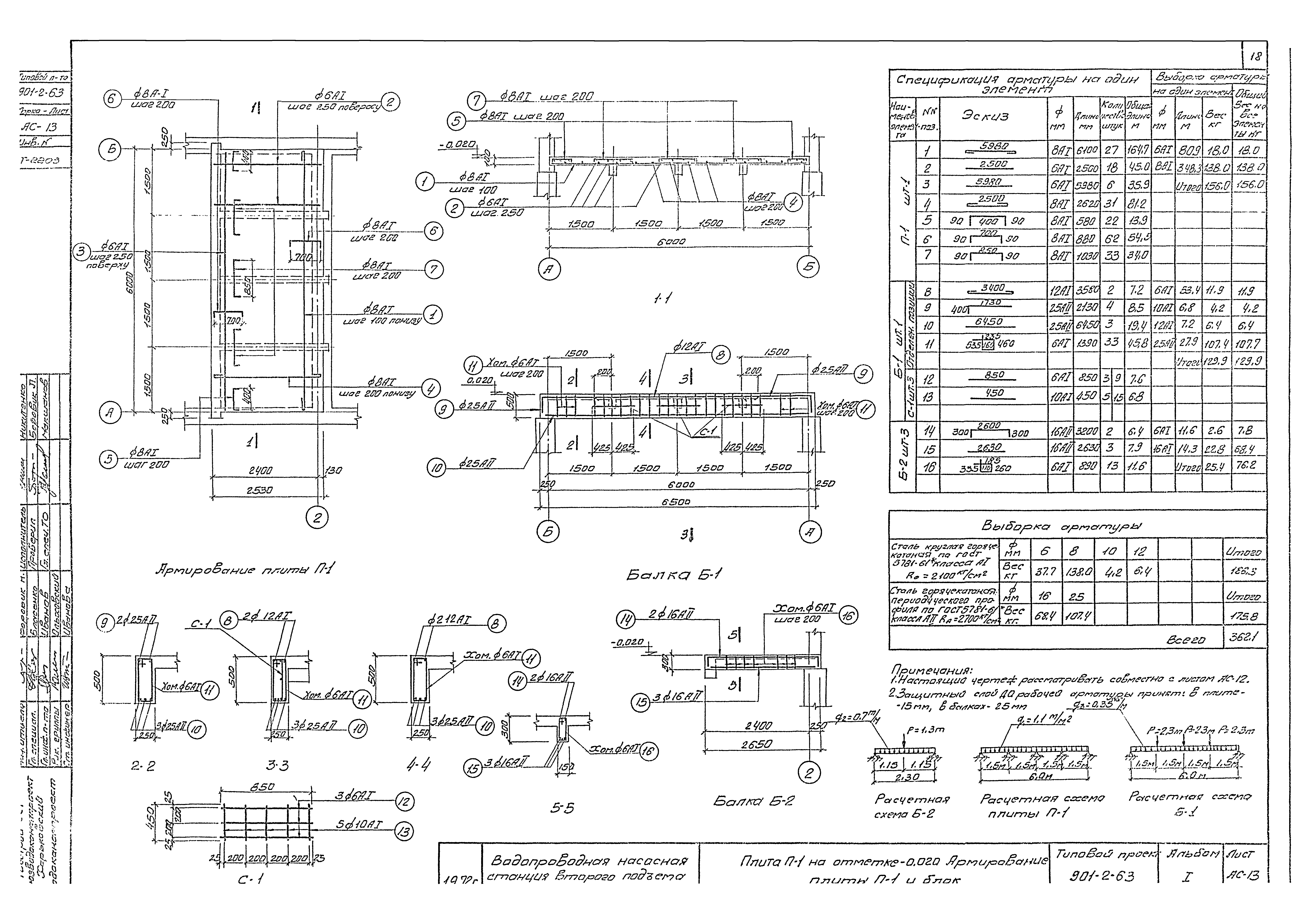
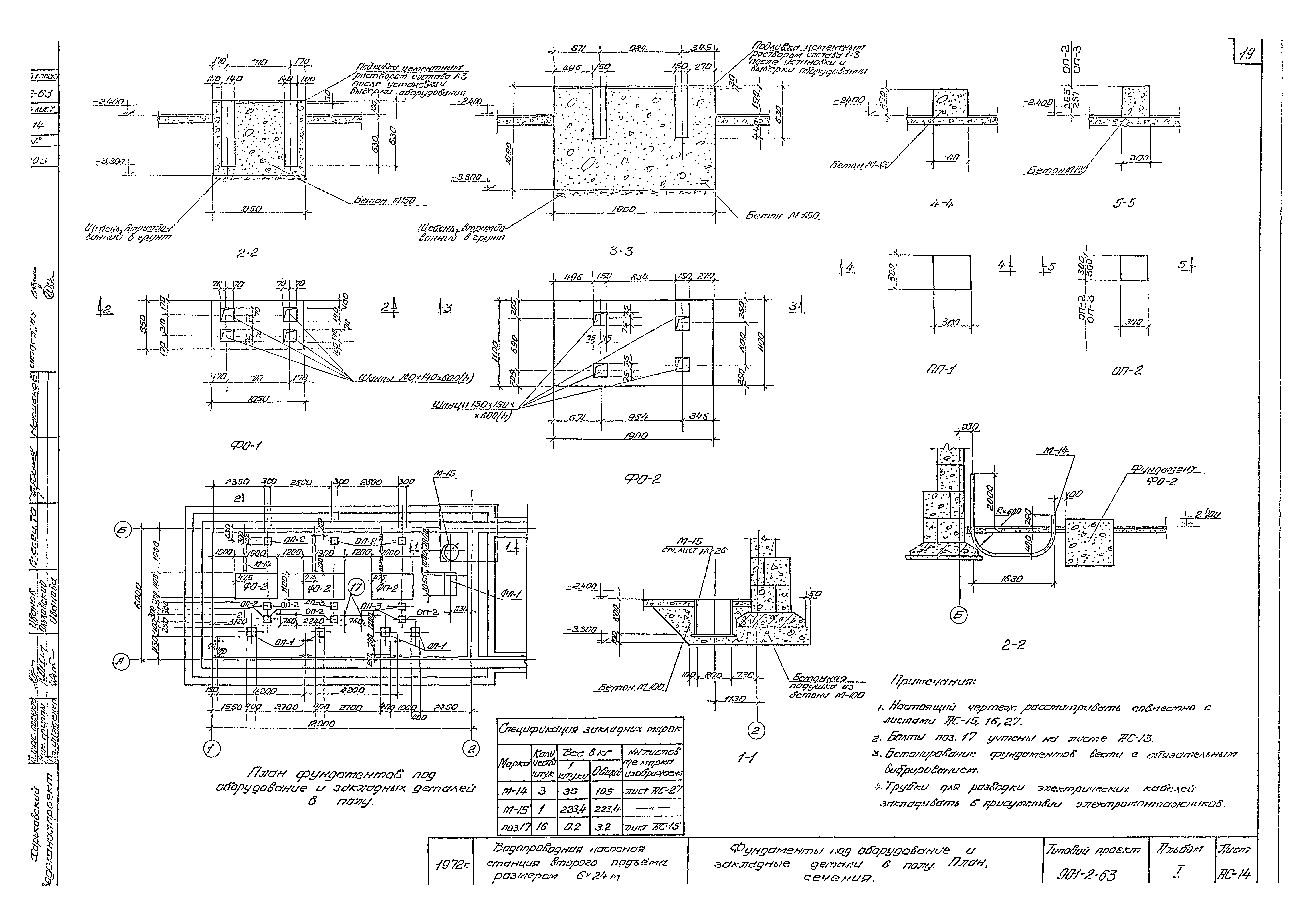
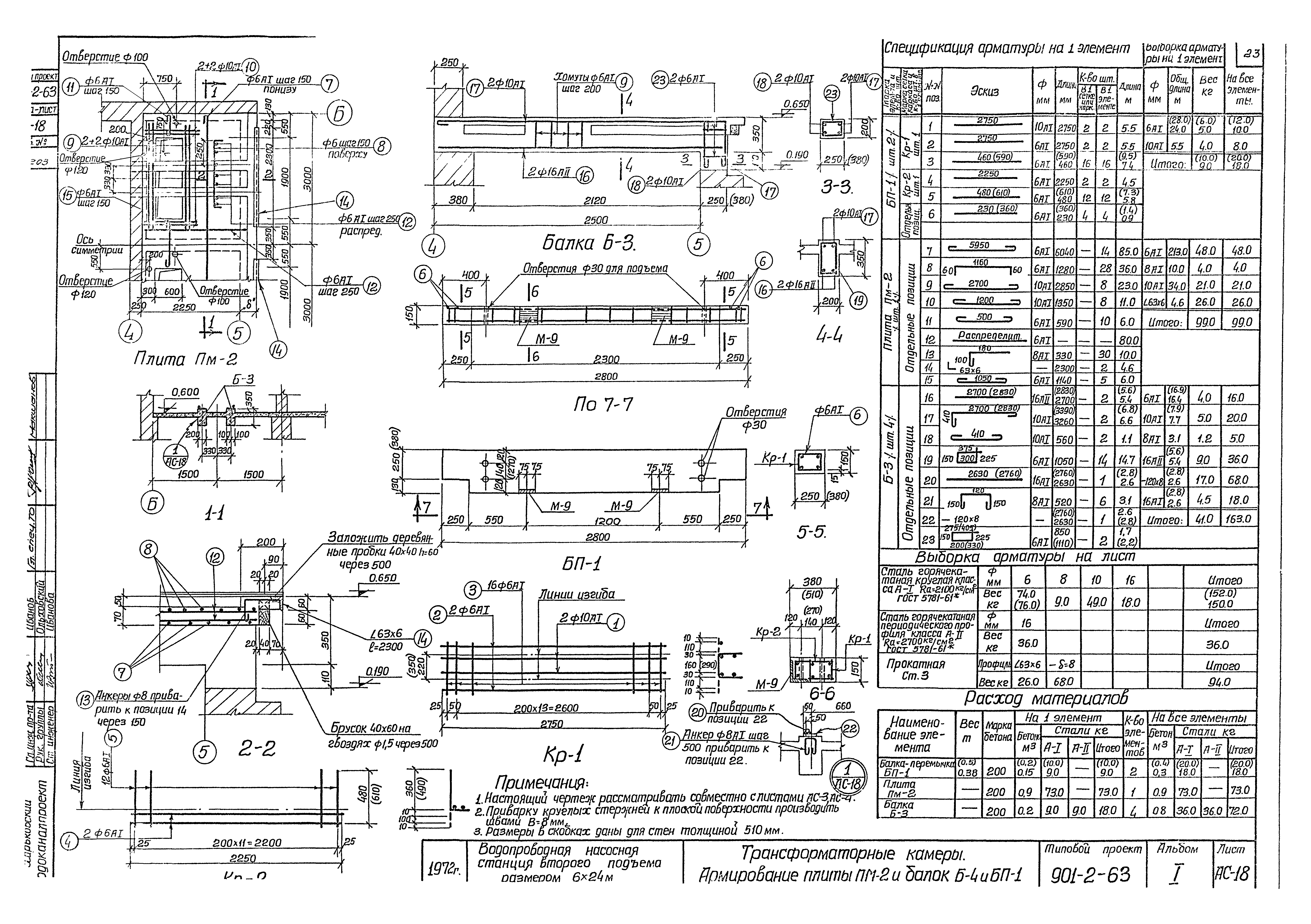
Скачать Типовой проект 901-2-63 Альбом I. Архитектурно-строительная, технологическая, механическая и санитарно-техническая частиДата актуализации: 01.01.2021 Типовой проект 901-2-63
Альбом I. Архитектурно-строительная, технологическая, механическая и санитарно-техническая части| Обозначение: | Типовой проект 901-2-63 | | Обозначение англ: | 901-2-63 | | Статус: | отменен | | Название рус.: | Альбом I. Архитектурно-строительная, технологическая, механическая и санитарно-техническая части | | Дата добавления в базу: | 12.02.2016 | | Дата актуализации: | 01.01.2021 | | Дата введения: | 22.03.1973 | | Дата окончания срока действия: | 01.04.1984 | | Разработан: | Харьковский Водоканалпроект
| | Утверждён: | 19.03.1973 СоюзводоканалНИИпроект (SoyuzvodokanalNIIproject 59)
| | Заменяет собой: | - Типовой проект 901-2-39
- Типовой проект 901-2-40
- Типовой проект 901-2-41
|
                                          
|