Скачать Типовой проект 901-7-15.85 Альбом II. Технологическая и санитарно-техническая части. Вариант обеззараживания питьевых вод

Дата актуализации: 01.01.2021

Типовой проект 901-7-15.85

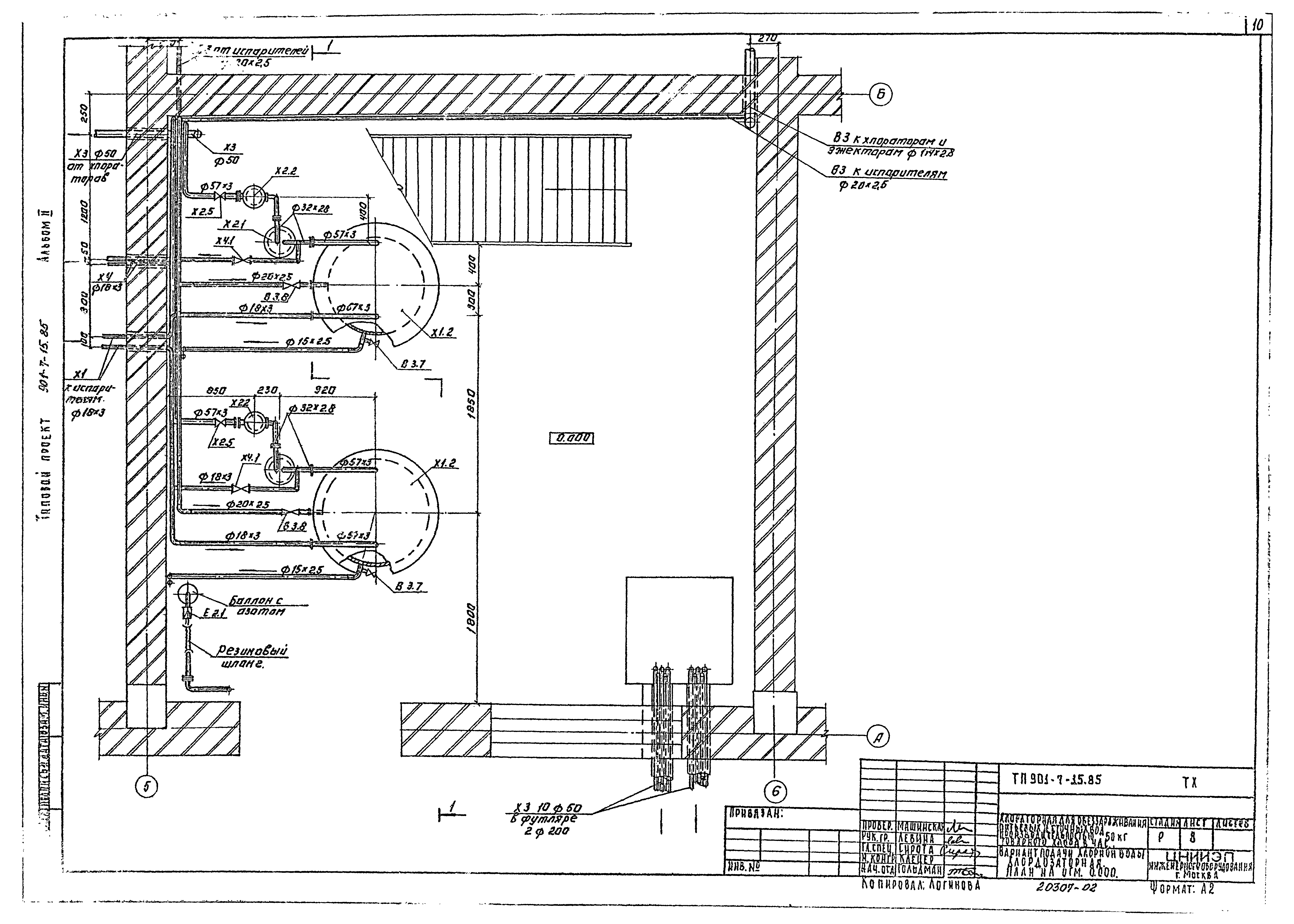
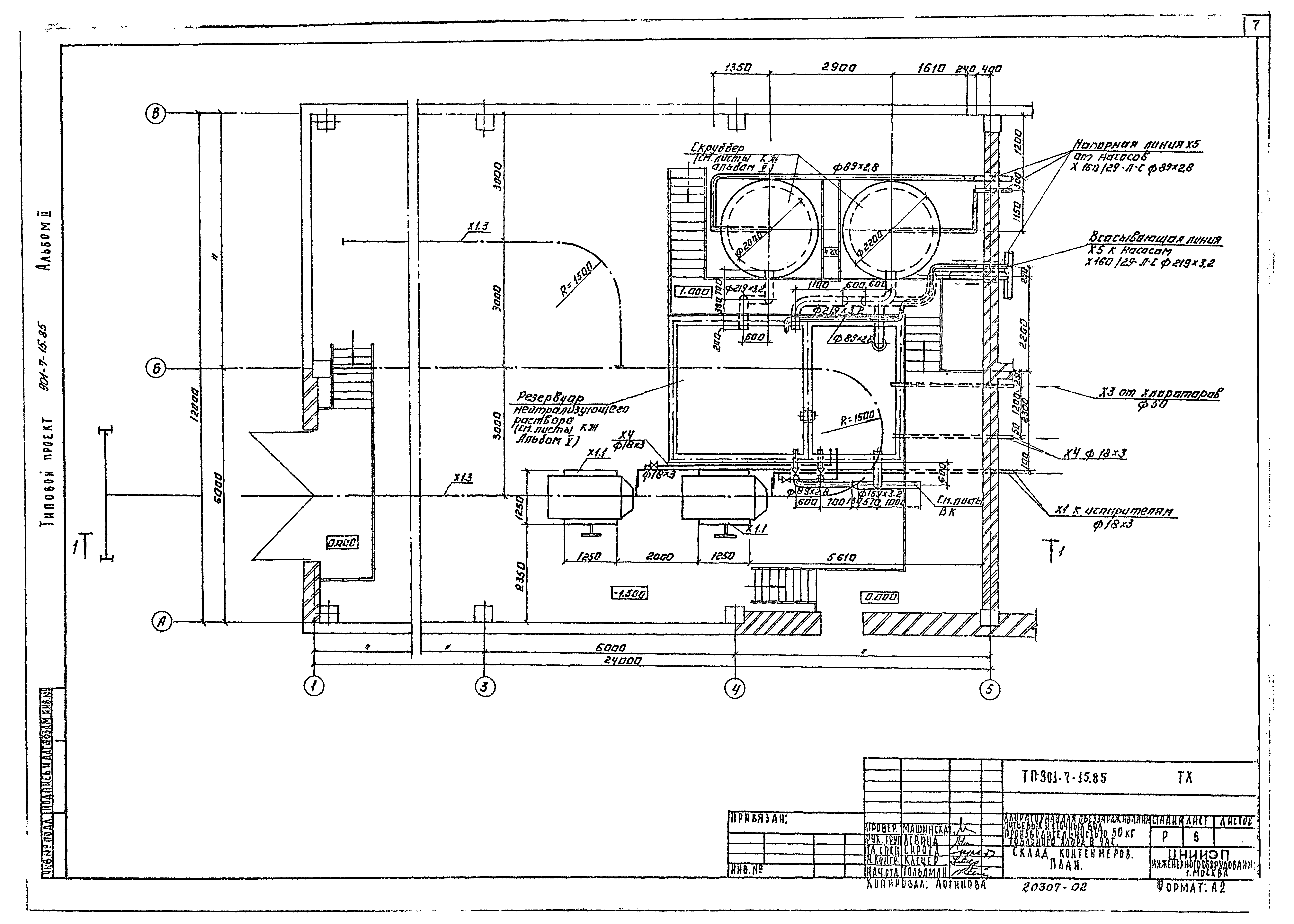
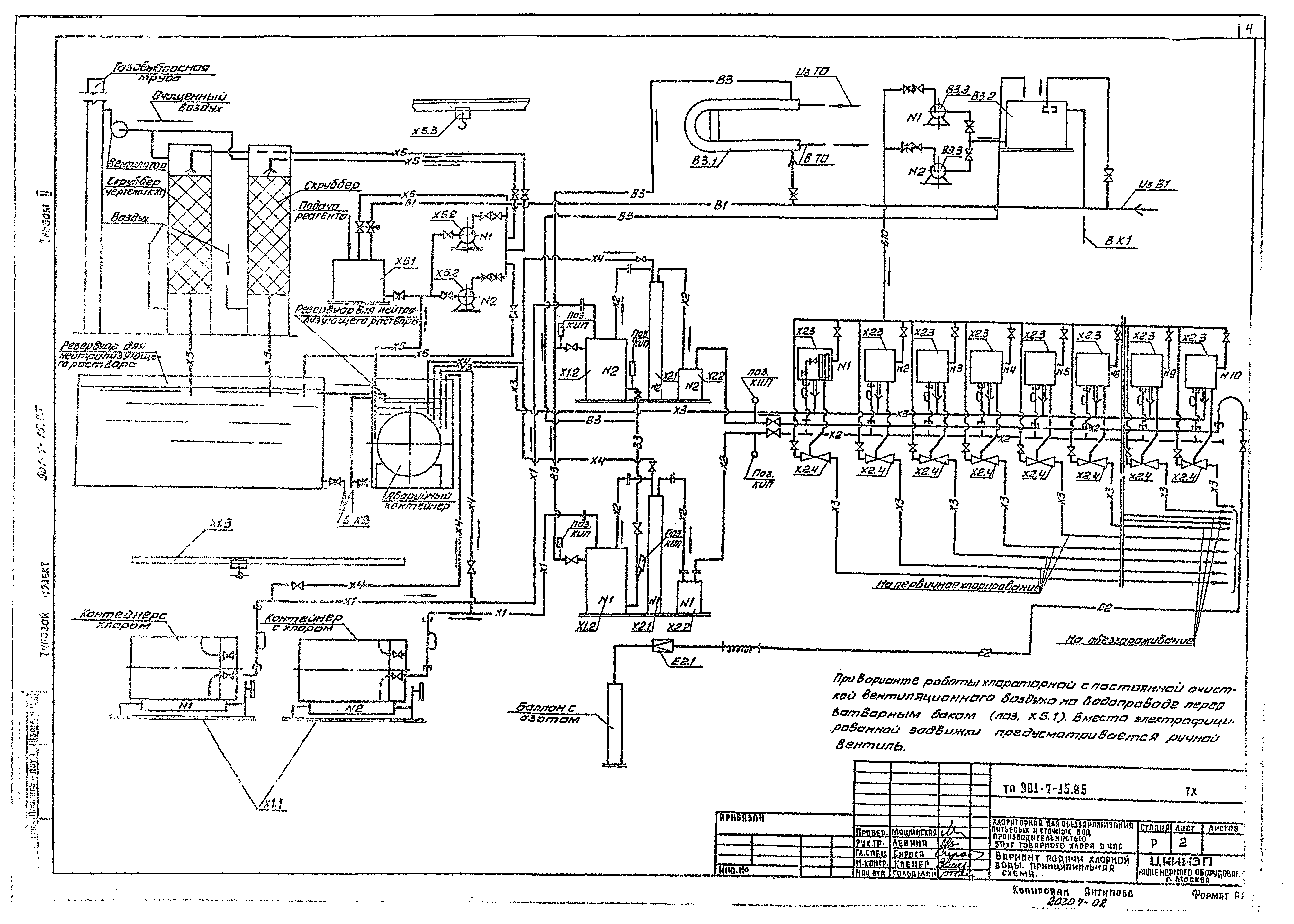
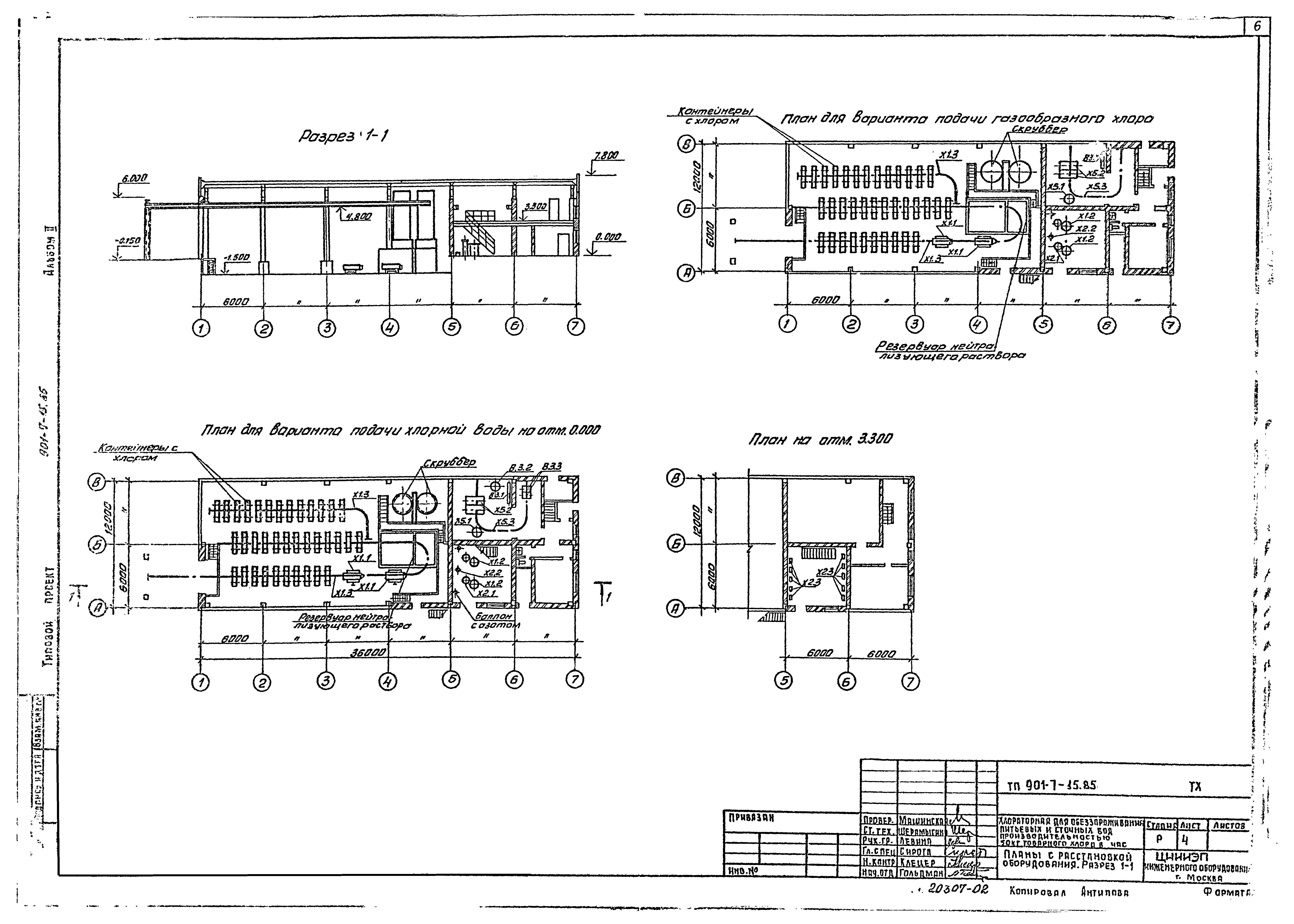
Альбом II. Технологическая и санитарно-техническая части. Вариант обеззараживания питьевых вод

Обозначение: Типовой проект 901-7-15.85
Обозначение англ: 901-7-15.85
Статус:заменен
Название рус.:Альбом II. Технологическая и санитарно-техническая части. Вариант обеззараживания питьевых вод
Дата добавления в базу:12.02.2016
Дата актуализации:01.01.2021
Дата введения:27.12.1984
Дата окончания срока действия:01.04.1991
Разработан: ЦНИИЭП инженерного оборудования
Утверждён:12.03.1979 Госгражданстрой (Gosgrazhdanstroy 56)
Издан: ЦИТП Госстроя СССР (CITP, Gosstroy (USSR) 1985 г. )
Заменяет собой:
Чем заменён:
Типовой проект 901-7-15.85Типовой проект 901-7-15.85Типовой проект 901-7-15.85Типовой проект 901-7-15.85Типовой проект 901-7-15.85Типовой проект 901-7-15.85Типовой проект 901-7-15.85Типовой проект 901-7-15.85Типовой проект 901-7-15.85Типовой проект 901-7-15.85Типовой проект 901-7-15.85Типовой проект 901-7-15.85Типовой проект 901-7-15.85Типовой проект 901-7-15.85Типовой проект 901-7-15.85Типовой проект 901-7-15.85Типовой проект 901-7-15.85Типовой проект 901-7-15.85Типовой проект 901-7-15.85Типовой проект 901-7-15.85Типовой проект 901-7-15.85Типовой проект 901-7-15.85Типовой проект 901-7-15.85Типовой проект 901-7-15.85Типовой проект 901-7-15.85Типовой проект 901-7-15.85