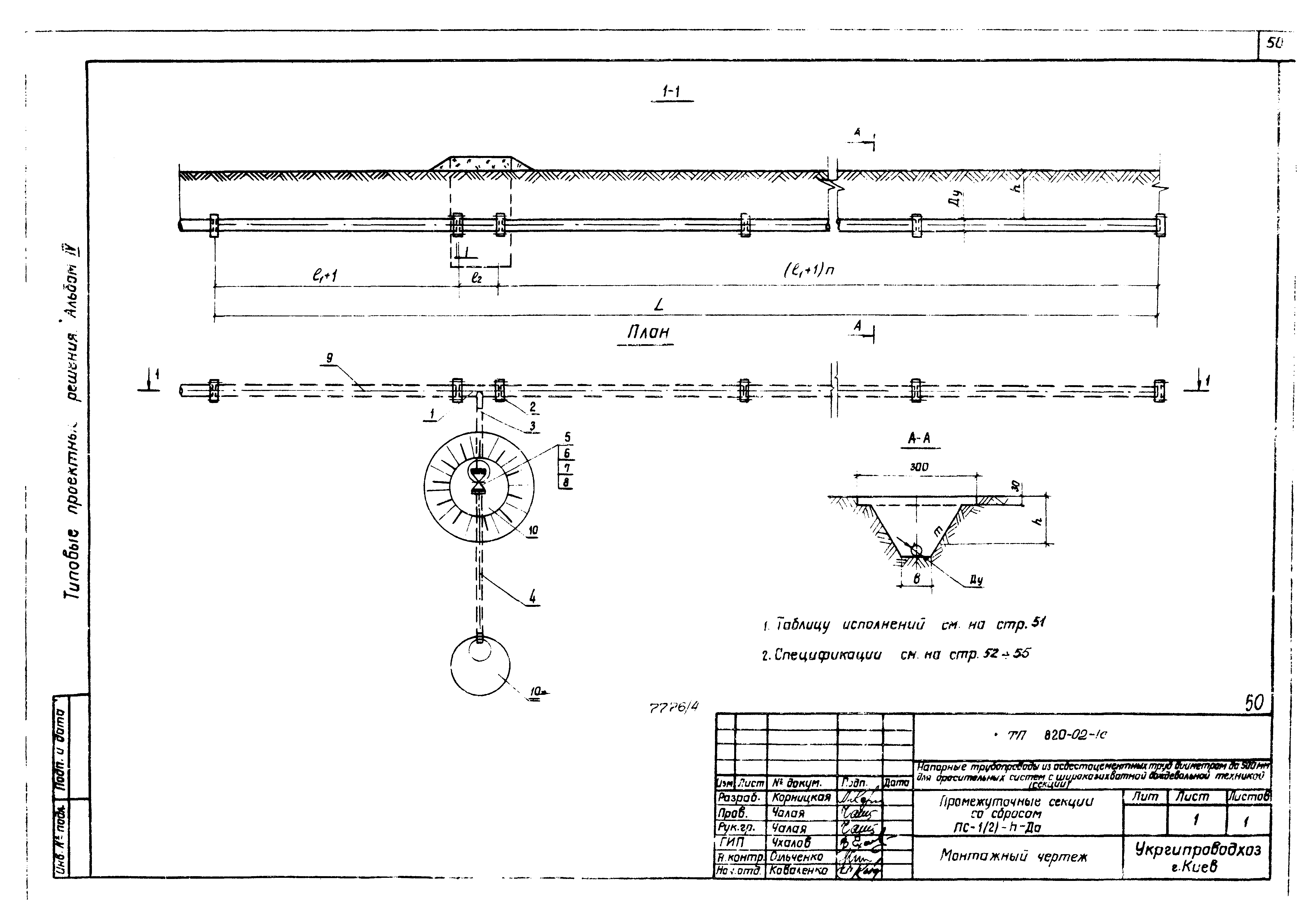
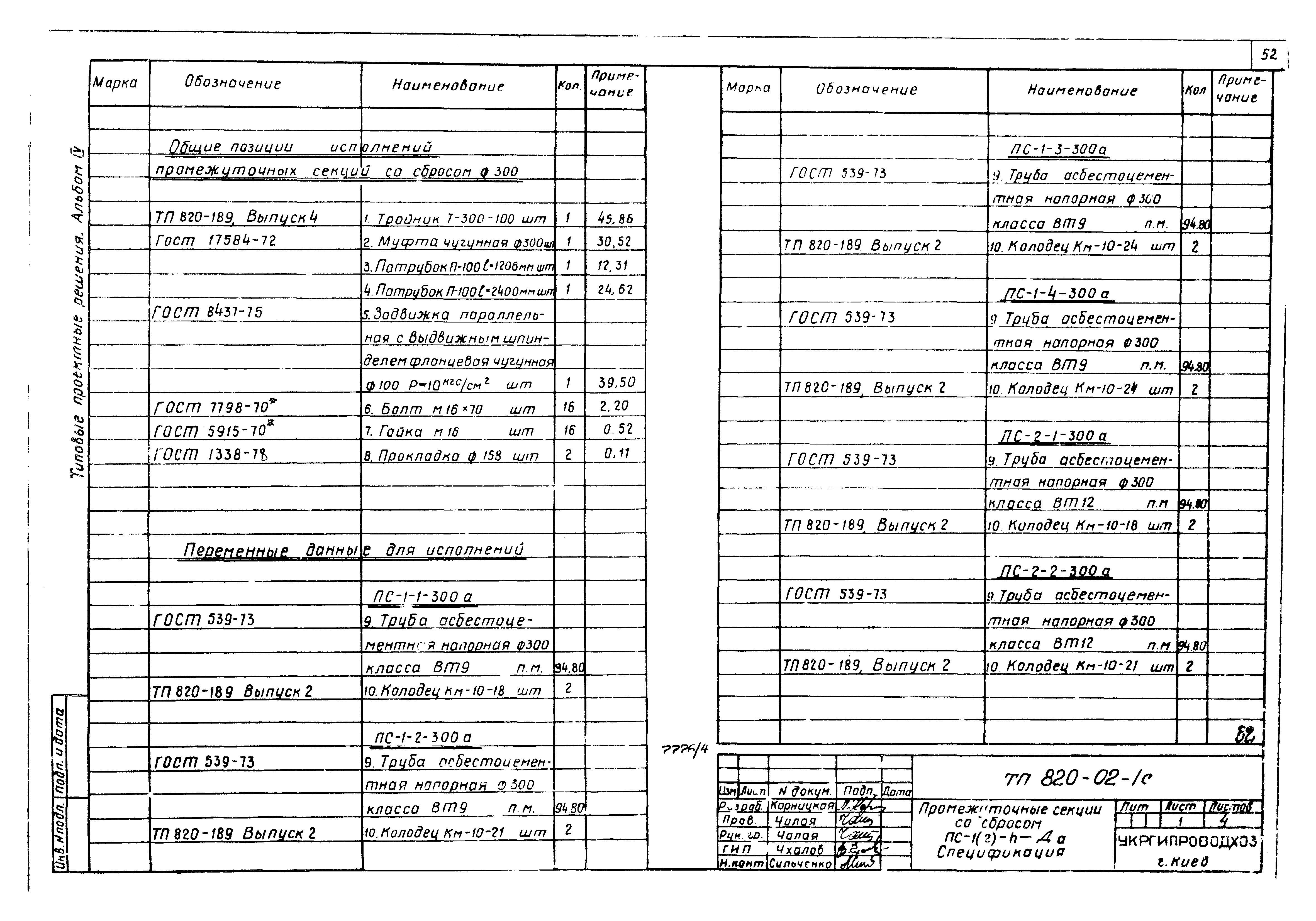
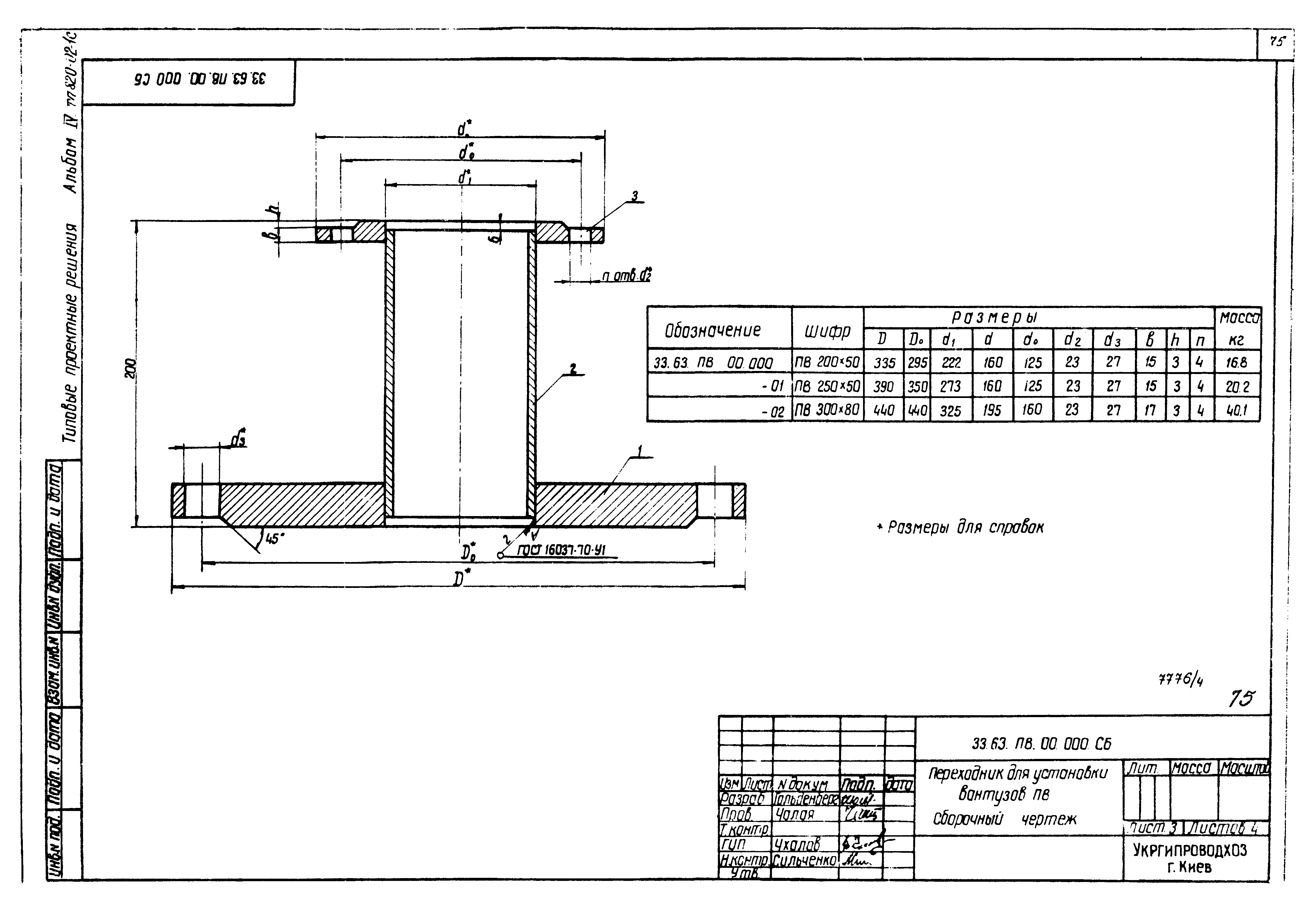
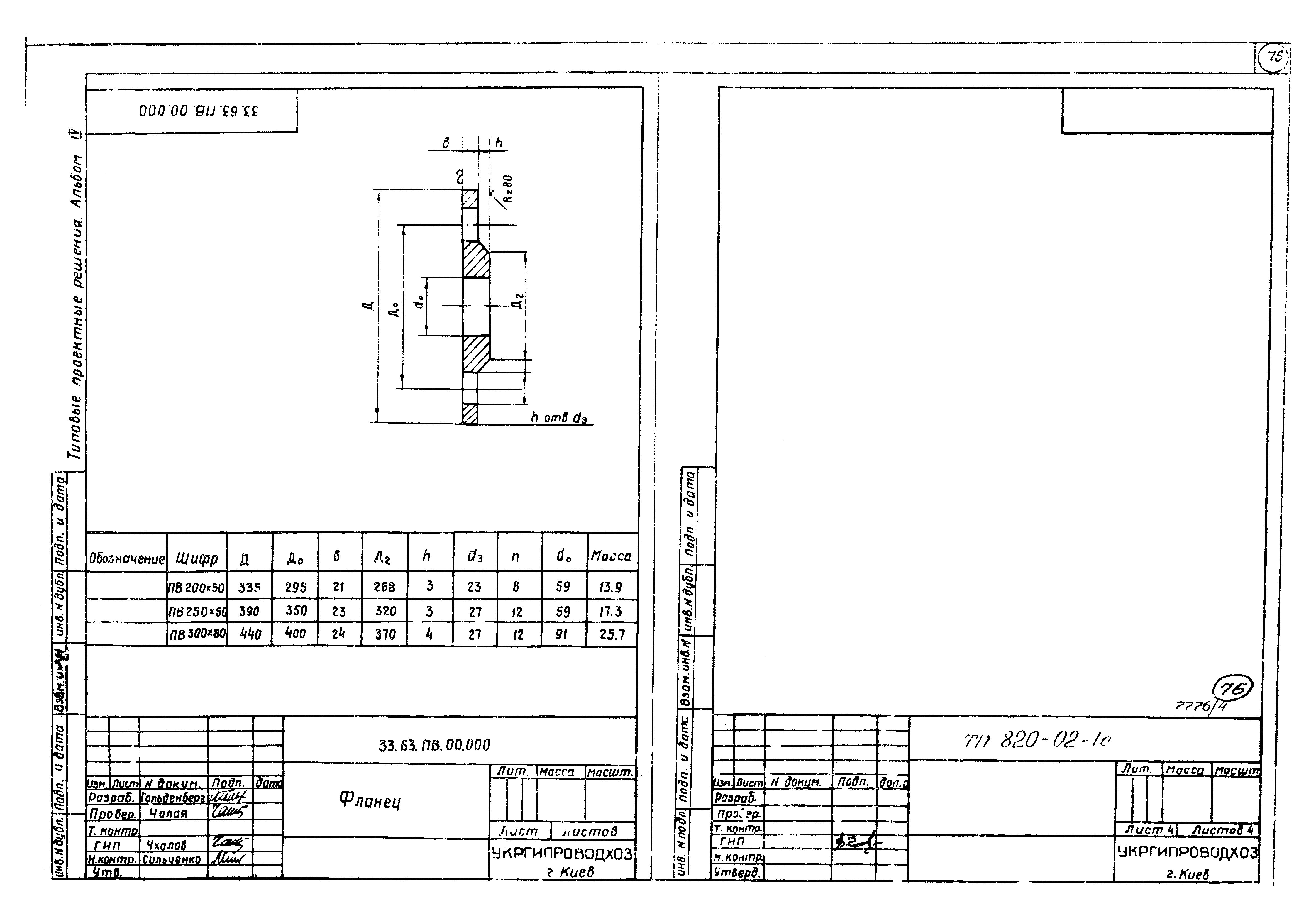
Скачать Типовые проектные решения 820-02-1с Альбом IV. Секции распределительных напорных трубопроводов из асбестоцементных труб диаметром 300 - 500 мм. Строительно-монтажные чертежиДата актуализации: 01.01.2021 Типовые проектные решения 820-02-1с
Альбом IV. Секции распределительных напорных трубопроводов из асбестоцементных труб диаметром 300 - 500 мм. Строительно-монтажные чертежи| Обозначение: | Типовые проектные решения 820-02-1с | | Обозначение англ: | 820-02-1с | | Статус: | не действует | | Название рус.: | Альбом IV. Секции распределительных напорных трубопроводов из асбестоцементных труб диаметром 300 - 500 мм. Строительно-монтажные чертежи | | Дата добавления в базу: | 12.02.2016 | | Дата актуализации: | 01.01.2021 | | Дата окончания срока действия: | 01.01.1984 | | Разработан: | Союзводпроект
| | Утверждён: | 27.12.1978 Минводхоз СССР (USSR Minvodkhoz 319)
|
                                                                            
|