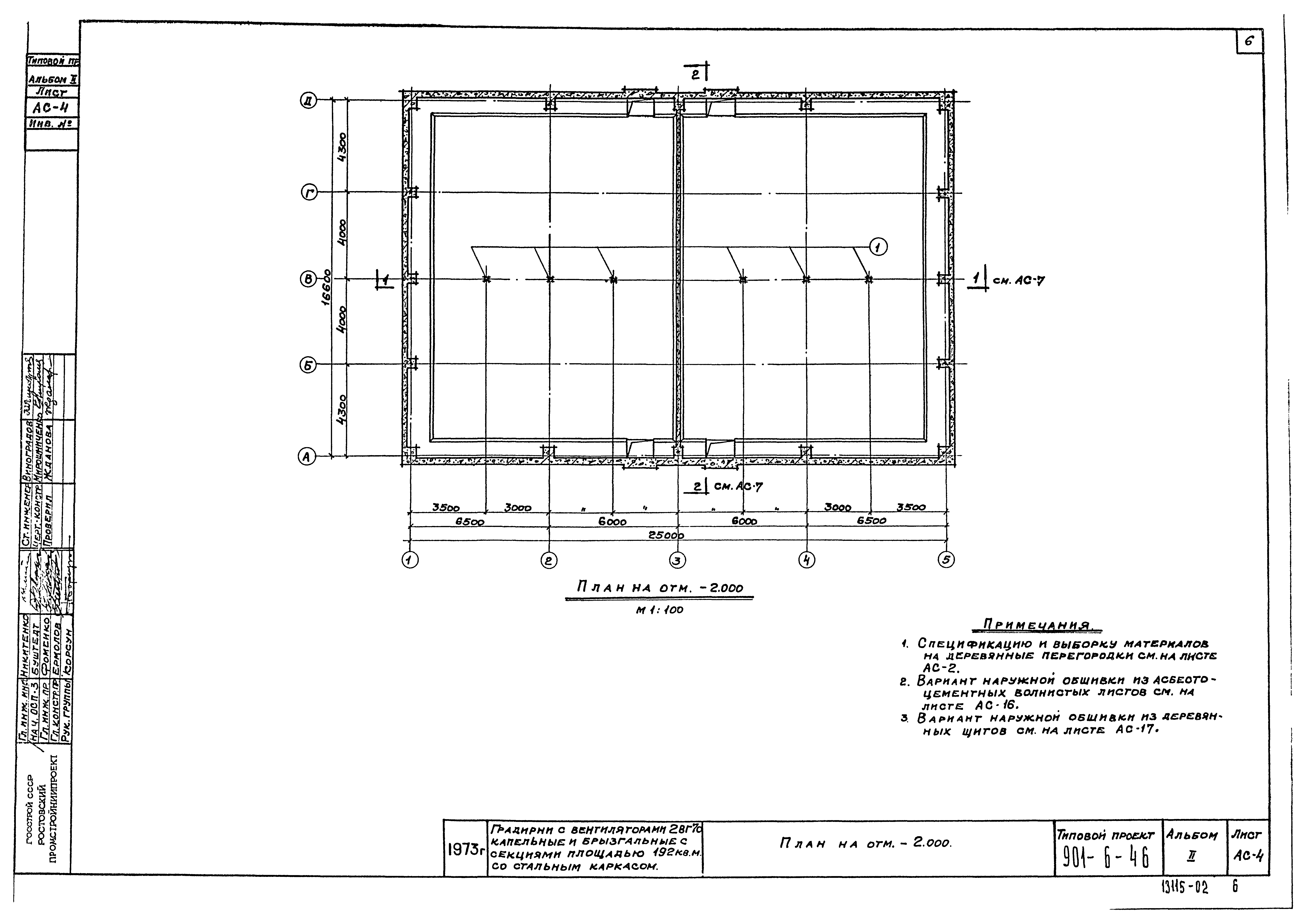
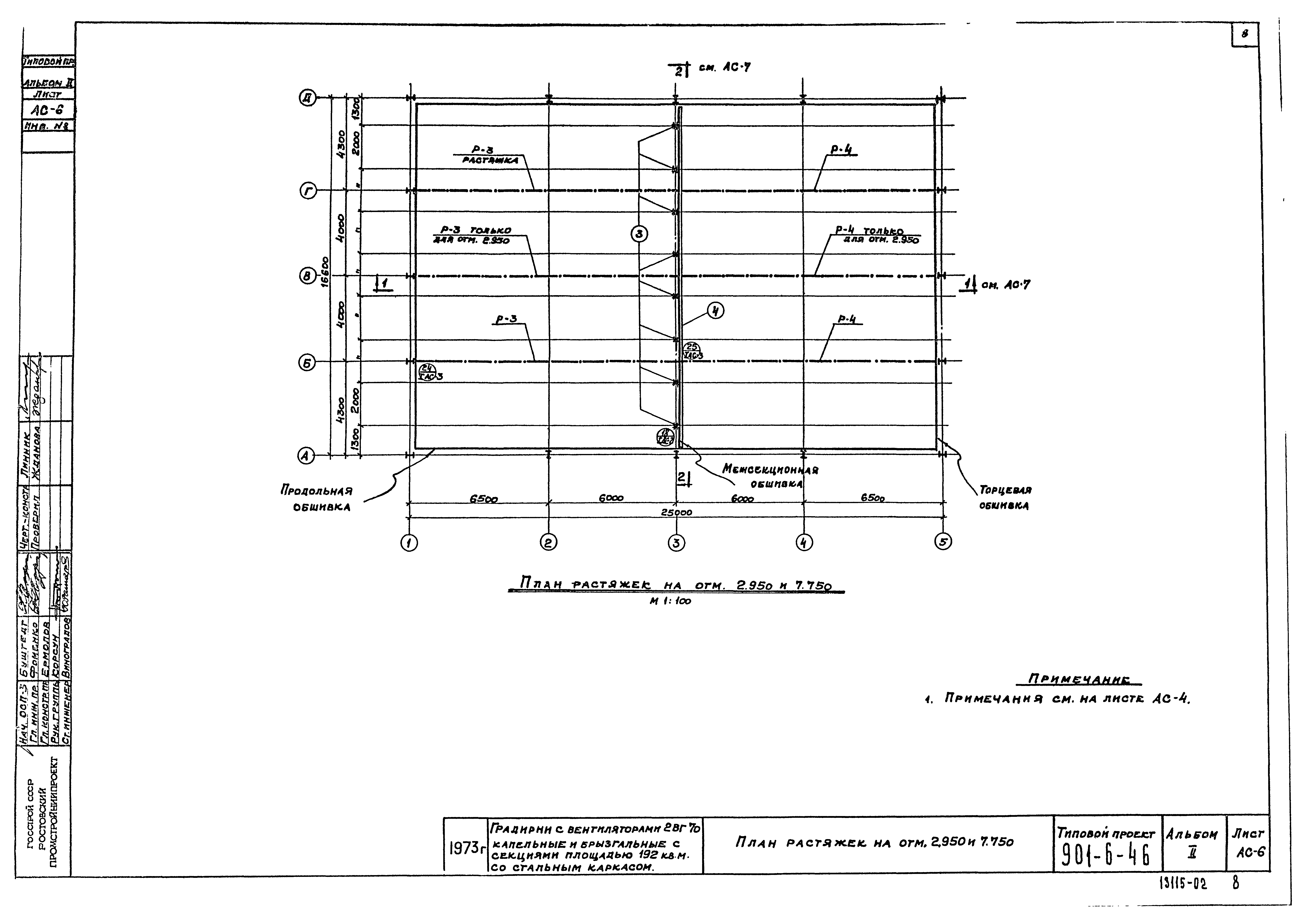
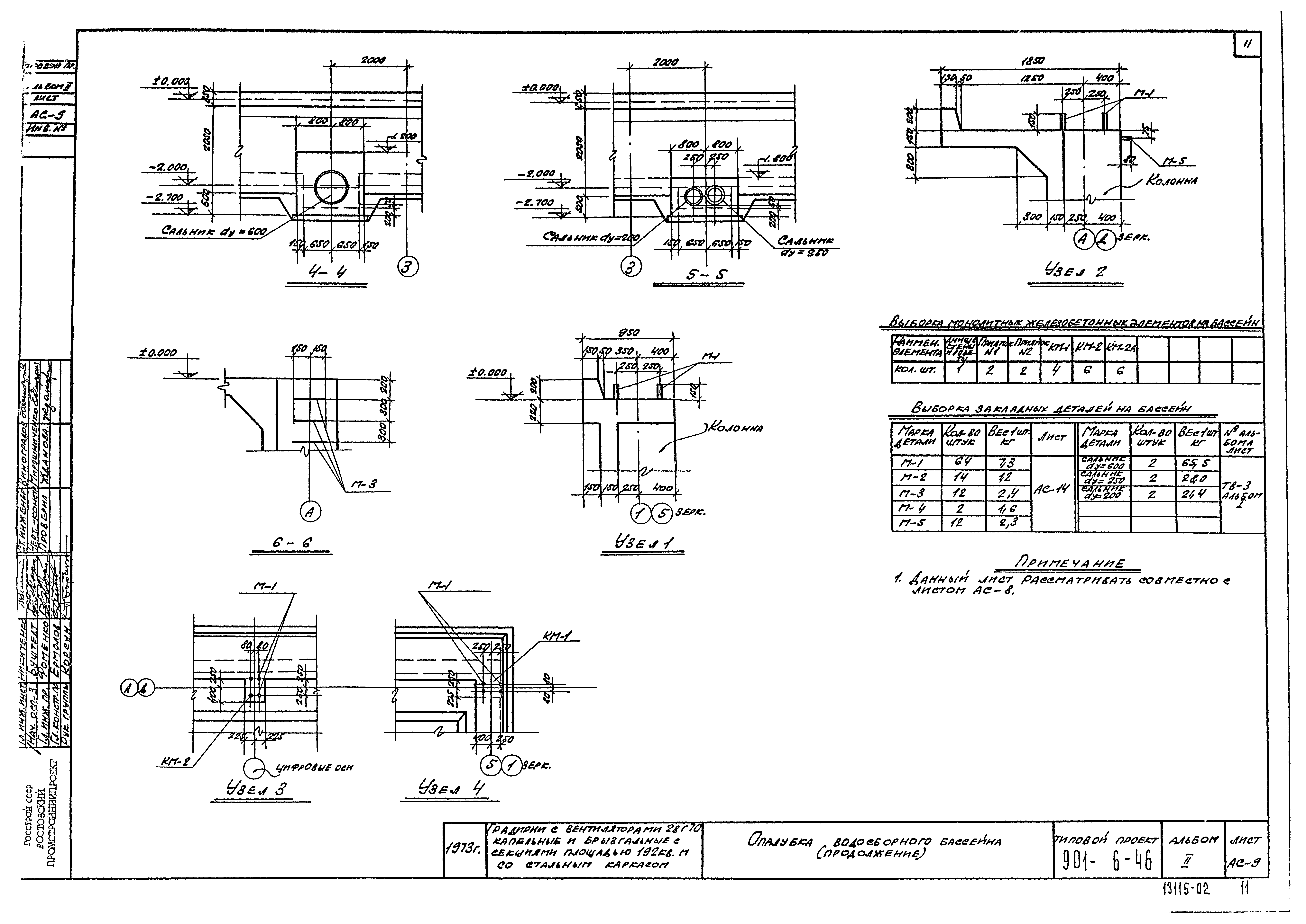
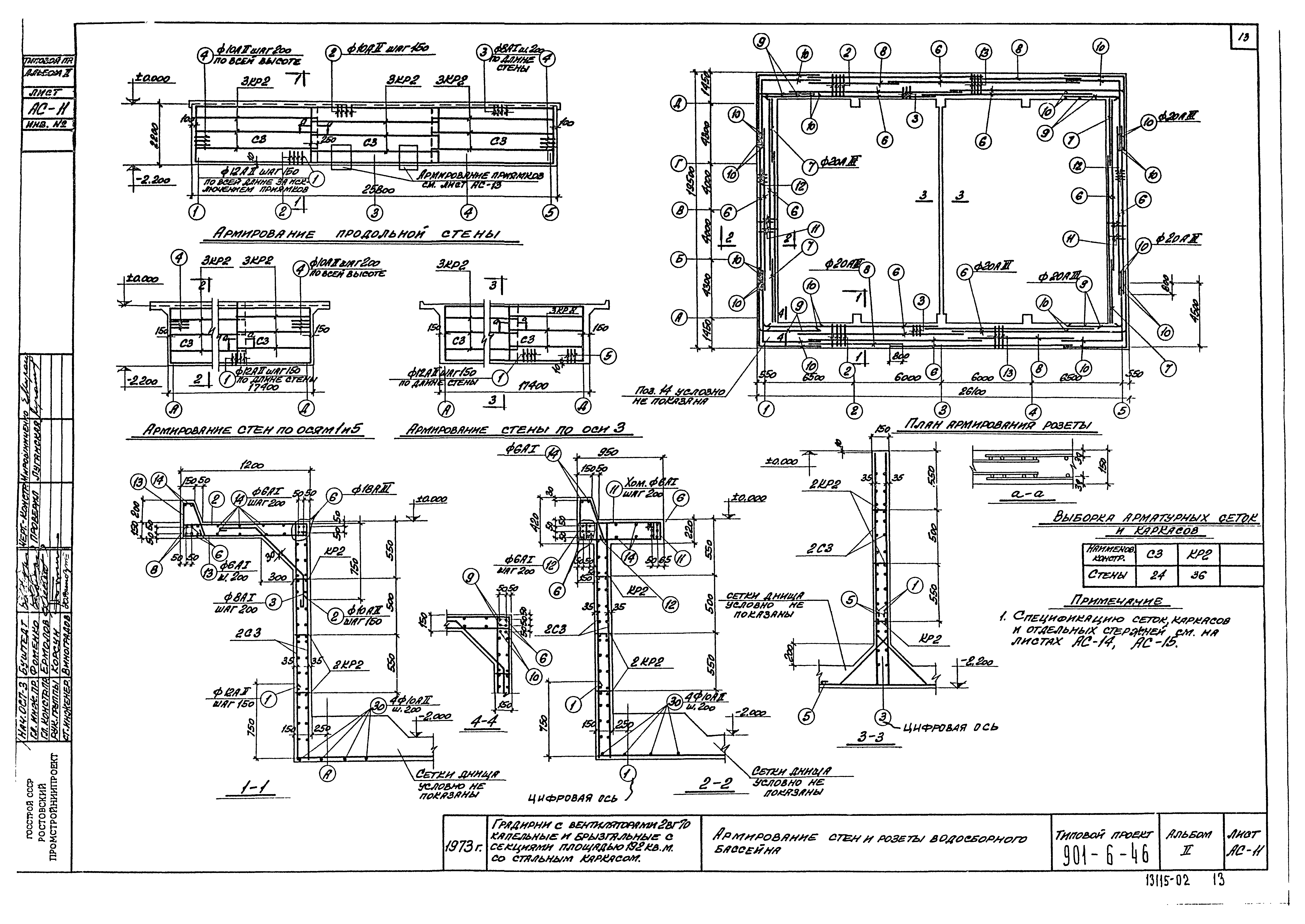
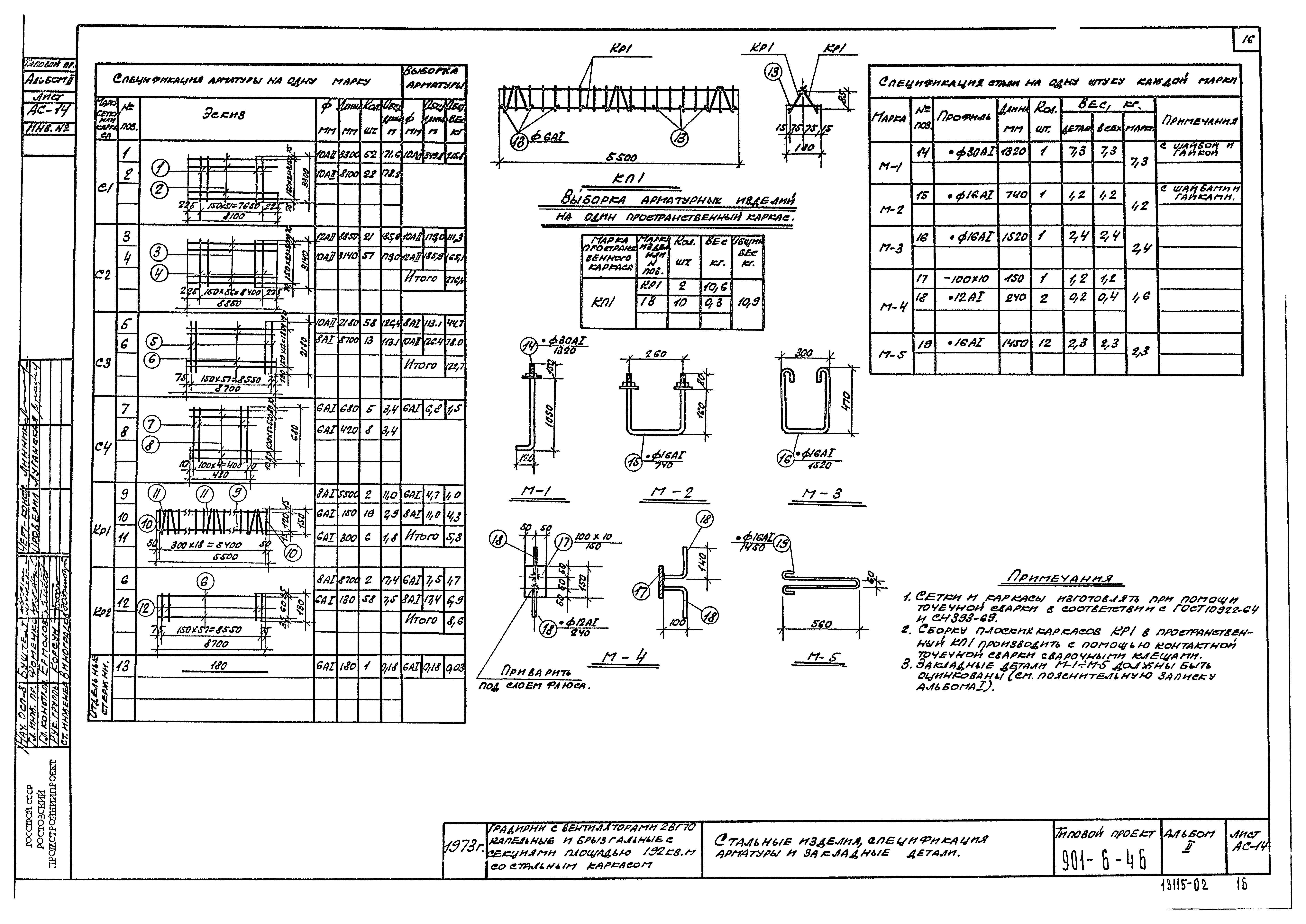
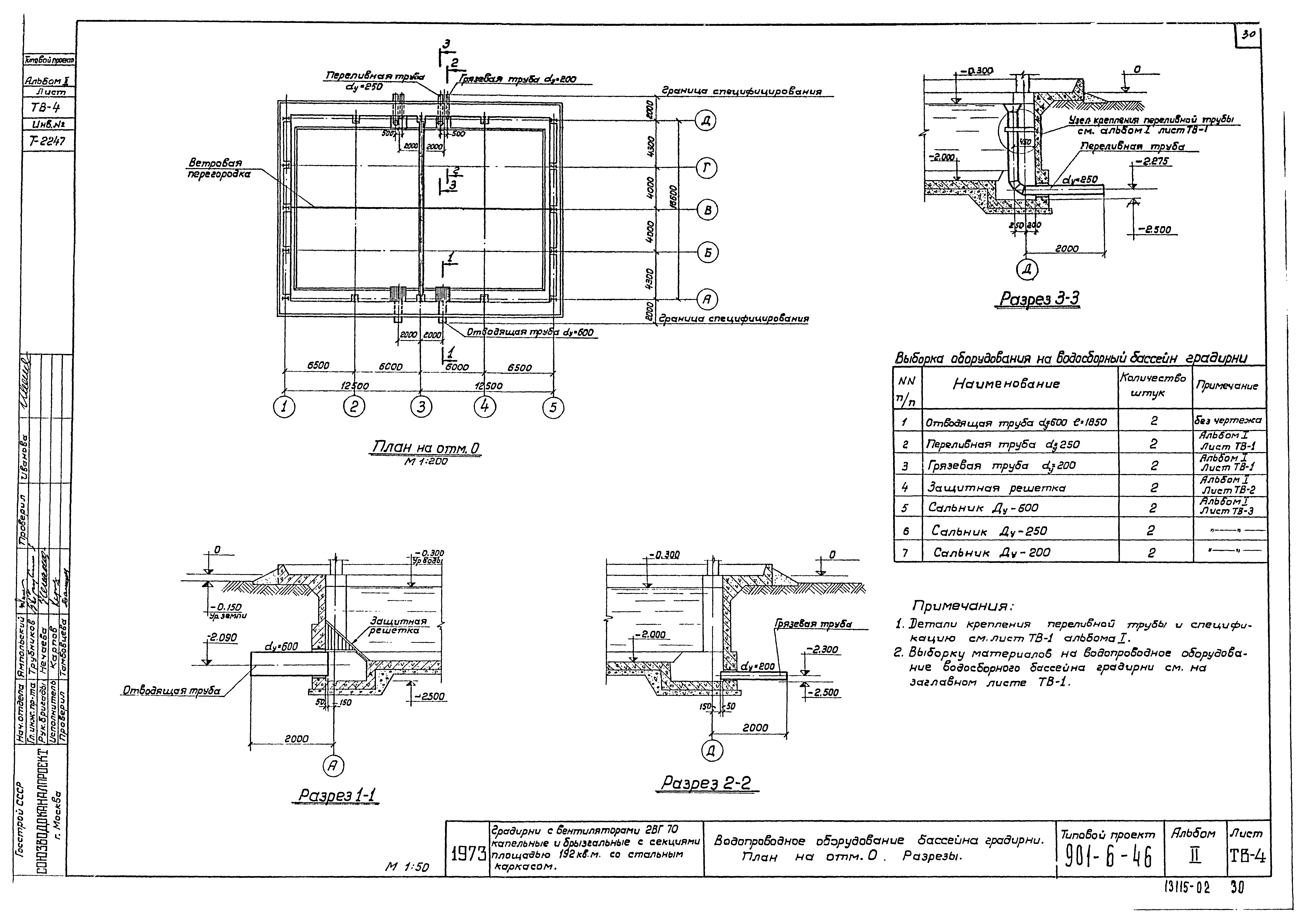
Скачать Типовой проект 901-6-46 Альбом II. Двухсекционные градирниДата актуализации: 01.01.2021 Типовой проект 901-6-46
Альбом II. Двухсекционные градирни| Обозначение: | Типовой проект 901-6-46 | | Обозначение англ: | 901-6-46 | | Статус: | не действует | | Название рус.: | Альбом II. Двухсекционные градирни | | Дата добавления в базу: | 12.02.2016 | | Дата актуализации: | 01.01.2021 | | Дата введения: | 25.05.1975 | | Дата окончания срока действия: | 01.01.1986 | | Разработан: | Союзводоканалпроект
| | Утверждён: | 20.05.1975 СоюзводоканалНИИпроект (SoyuzvodokanalNIIproject 109)
| | Заменяет собой: | |
                                    
|