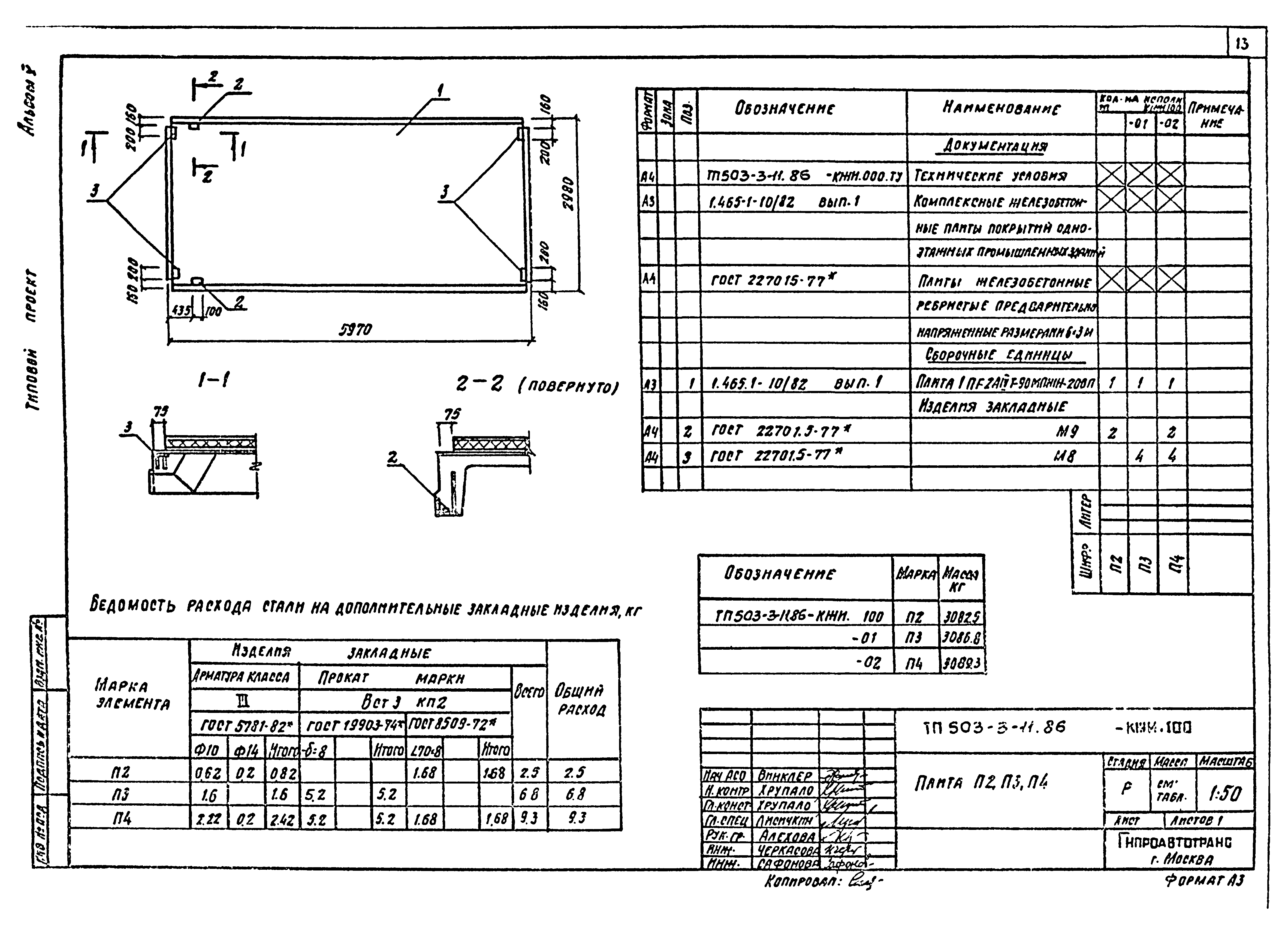
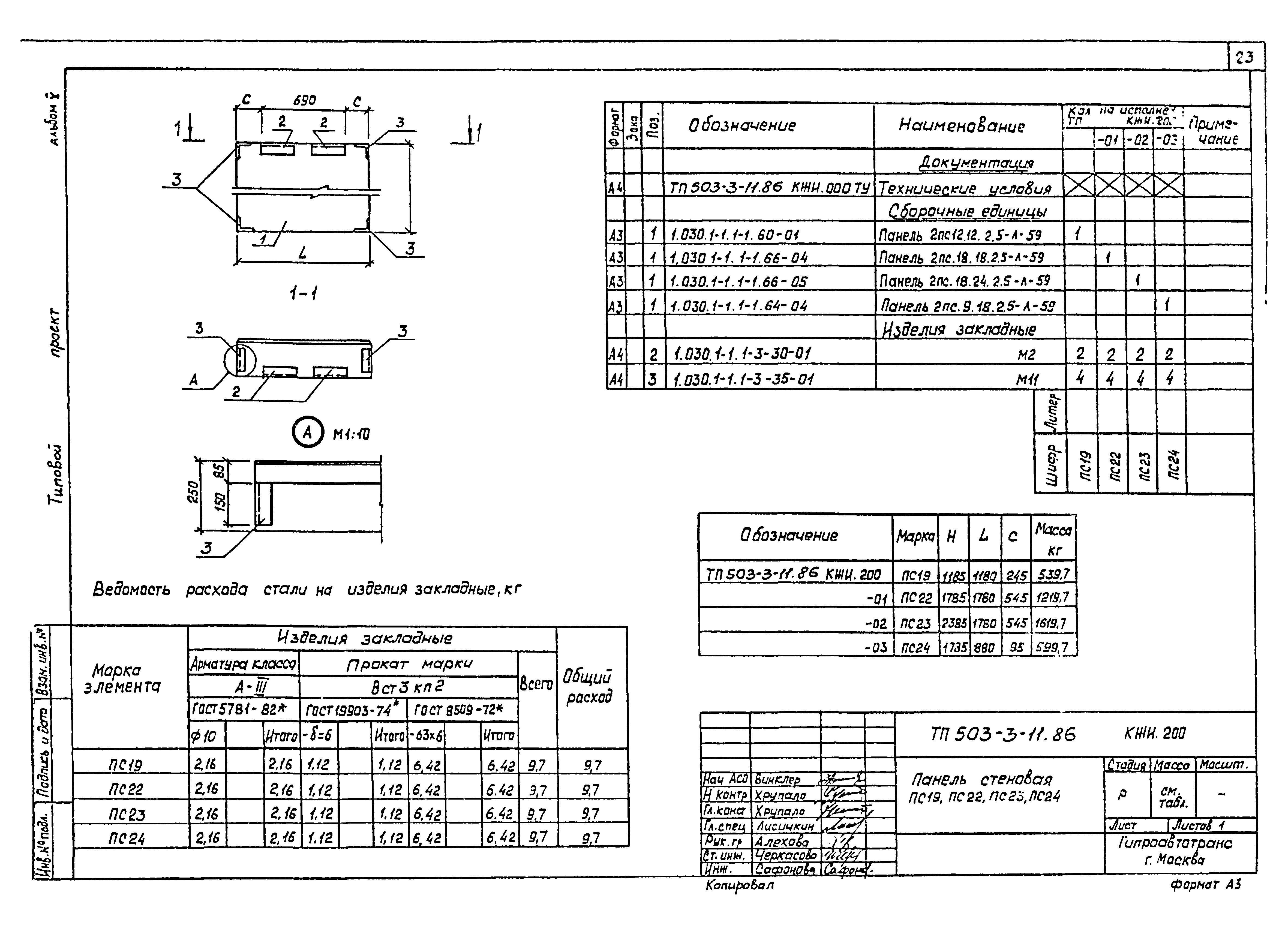
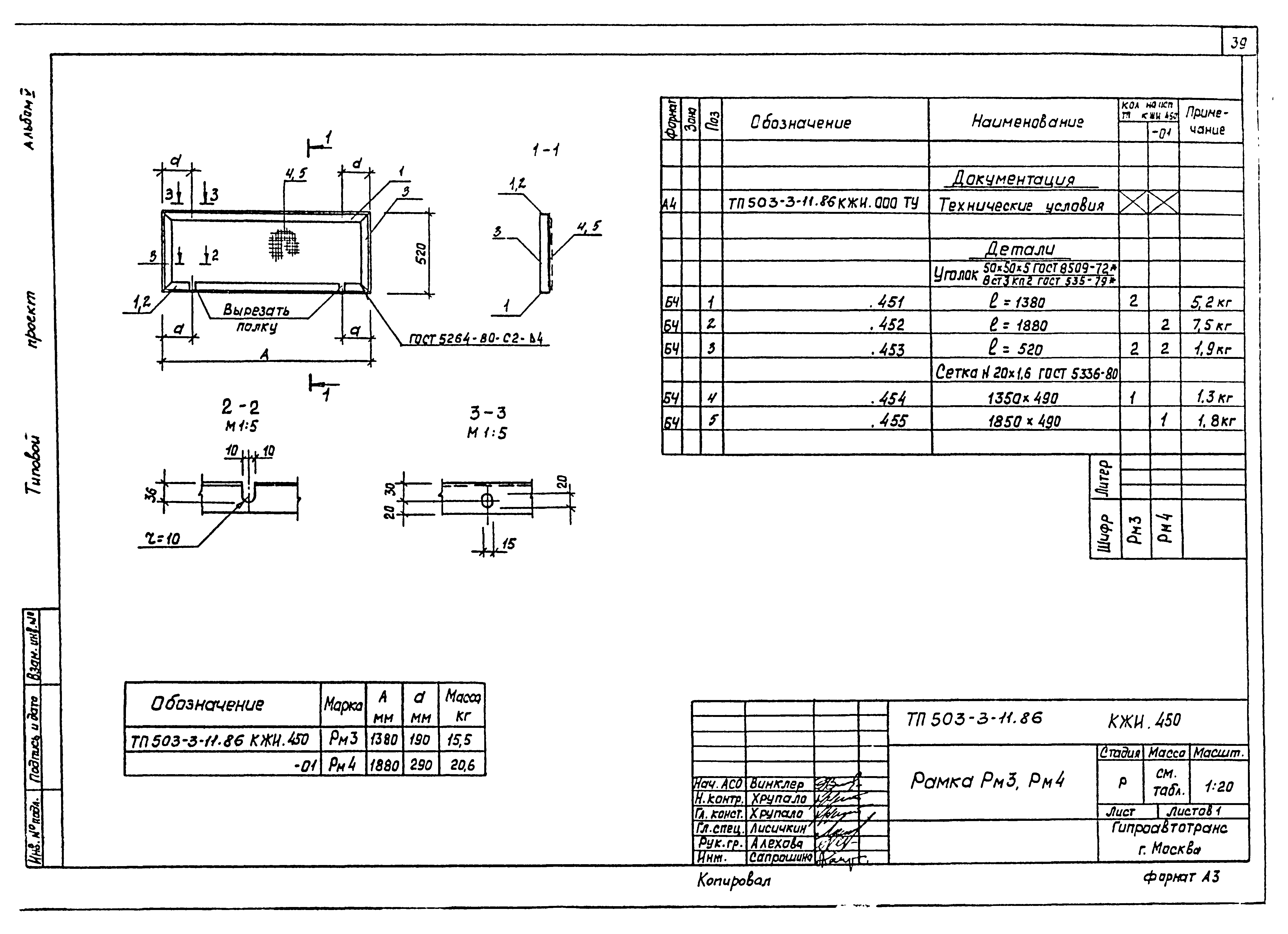
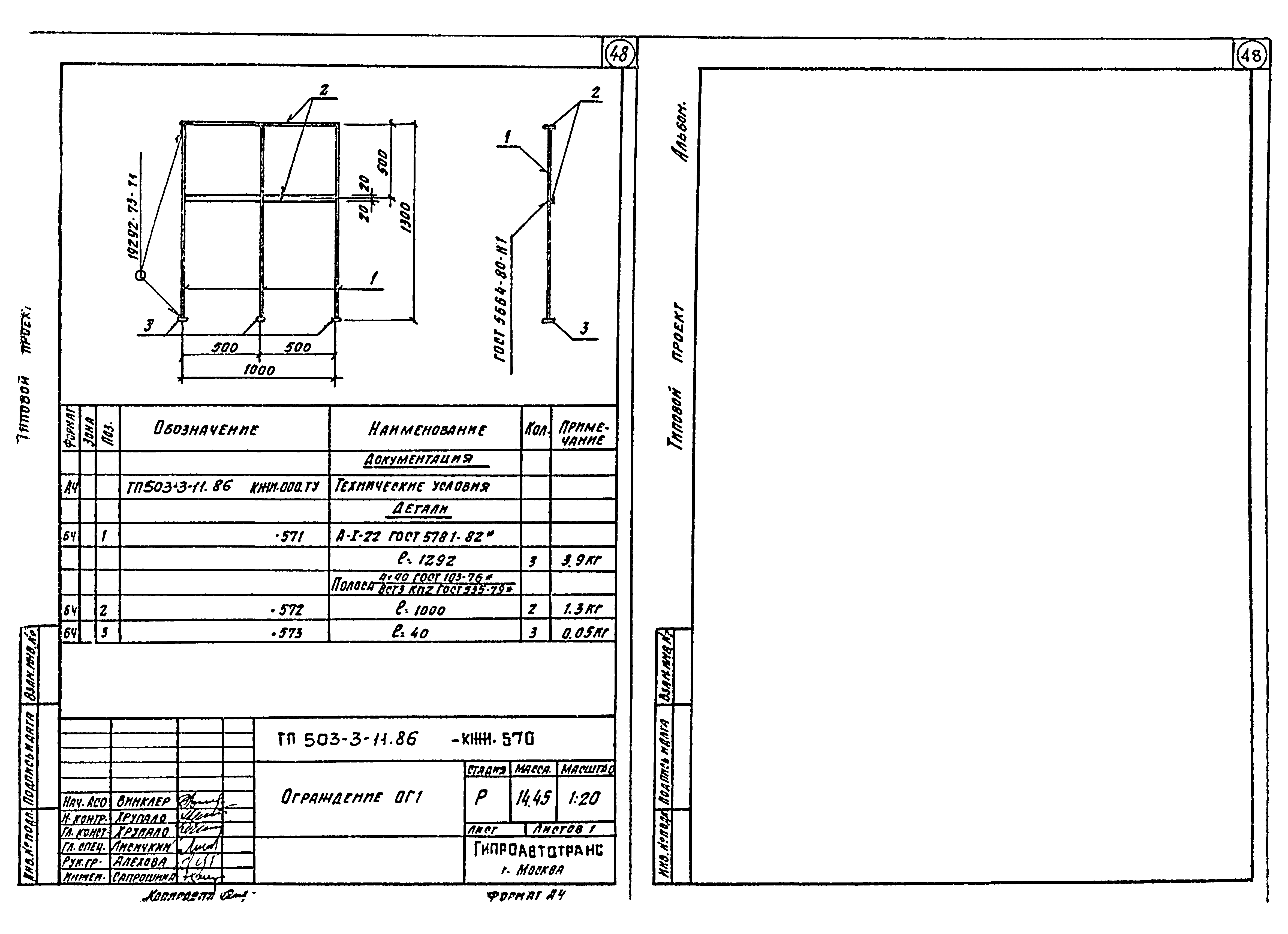
Скачать Типовой проект 503-3-11.86 Альбом V. Строительные изделияДата актуализации: 01.01.2021
|
| Обозначение: | Типовой проект 503-3-11.86 |
| Обозначение англ: | 503-3-11.86 |
| Статус: | действует |
| Название рус.: | Альбом V. Строительные изделия |
| Дата добавления в базу: | 12.02.2016 |
| Дата актуализации: | 01.01.2021 |
| Дата введения: | 28.06.1985 |
| Разработан: | Гипроавтотранс Минавтотранса РСФСР |
| Утверждён: | 28.06.1985 Минавтотранс РСФСР (Russian Federation Minavtotrans 21) |
| Издан: | ЦИТП Госстроя СССР (CITP, Gosstroy (USSR) 1987 г. ) |

















































