Скачать Типовой проект 503-1-30.85 Альбом I. Общая пояснительная записка. Технология производства. Архитектурные решения. Конструкции железобетонные и металлические. Отопление и вентиляция. Электрооборудование. Автоматизация технологического процессаДата актуализации: 01.01.2021 Типовой проект 503-1-30.85
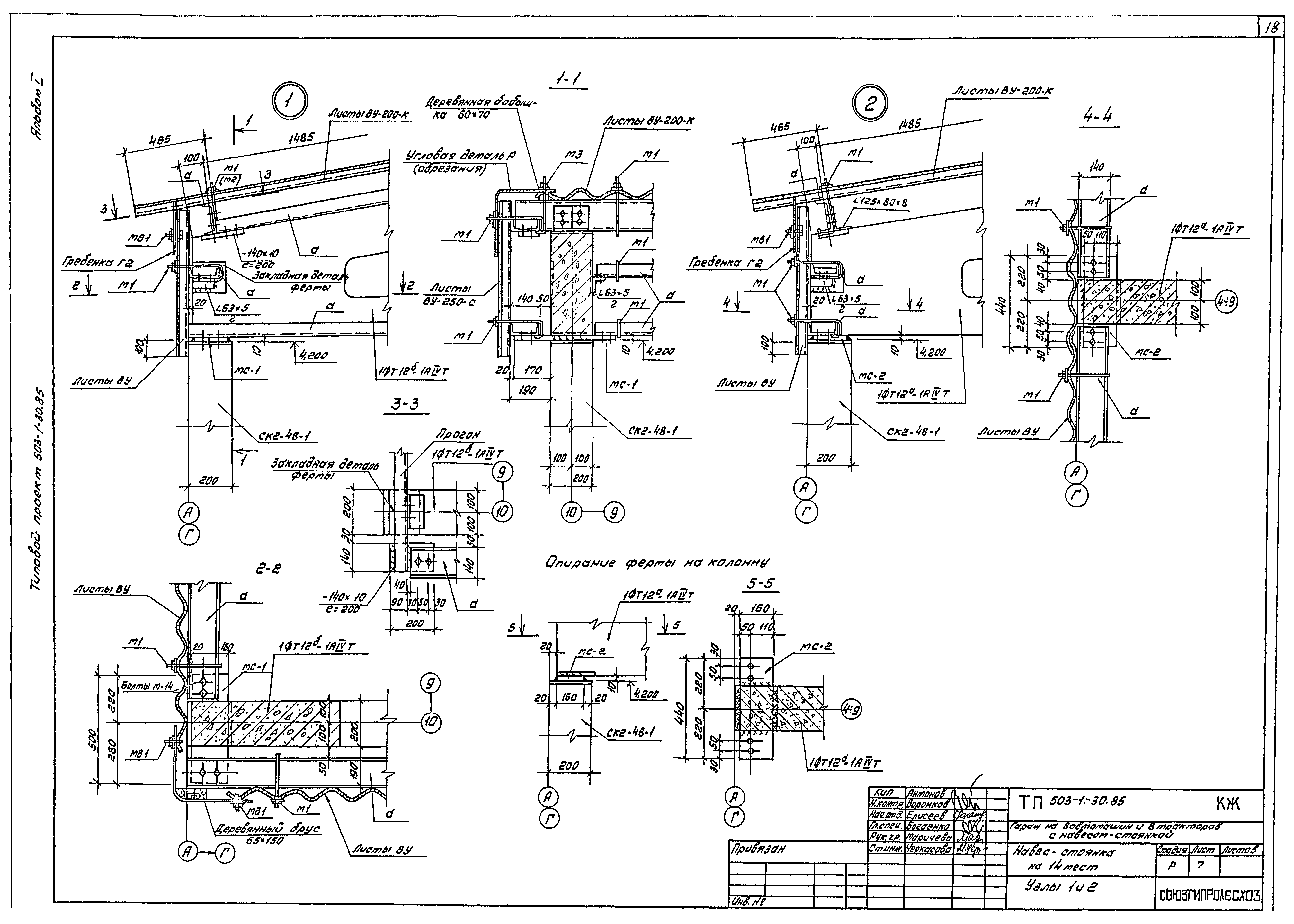
Альбом I. Общая пояснительная записка. Технология производства. Архитектурные решения. Конструкции железобетонные и металлические. Отопление и вентиляция. Электрооборудование. Автоматизация технологического процесса| Обозначение: | Типовой проект 503-1-30.85 | | Обозначение англ: | 503-1-30.85 | | Статус: | действует | | Название рус.: | Альбом I. Общая пояснительная записка. Технология производства. Архитектурные решения. Конструкции железобетонные и металлические. Отопление и вентиляция. Электрооборудование. Автоматизация технологического процесса | | Дата добавления в базу: | 12.02.2016 | | Дата актуализации: | 01.01.2021 | | Дата введения: | 13.03.1985 | | Разработан: | Союзгипролесхоз
| | Утверждён: | 13.04.1984 Гослесхоз СССР (USSR Gosleskhoz 43)
| | Заменяет собой: | |
                             
|