Скачать Типовые проектные решения 503-1-077.90 Альбом 2. Внутренний водопровод и канализация. Отопление и вентиляция. Силовое электрооборудования и электрическое освещение. Связь и сигнализация. Автоматизация санитарно-технических систем

Дата актуализации: 01.01.2021

Типовые проектные решения 503-1-077.90

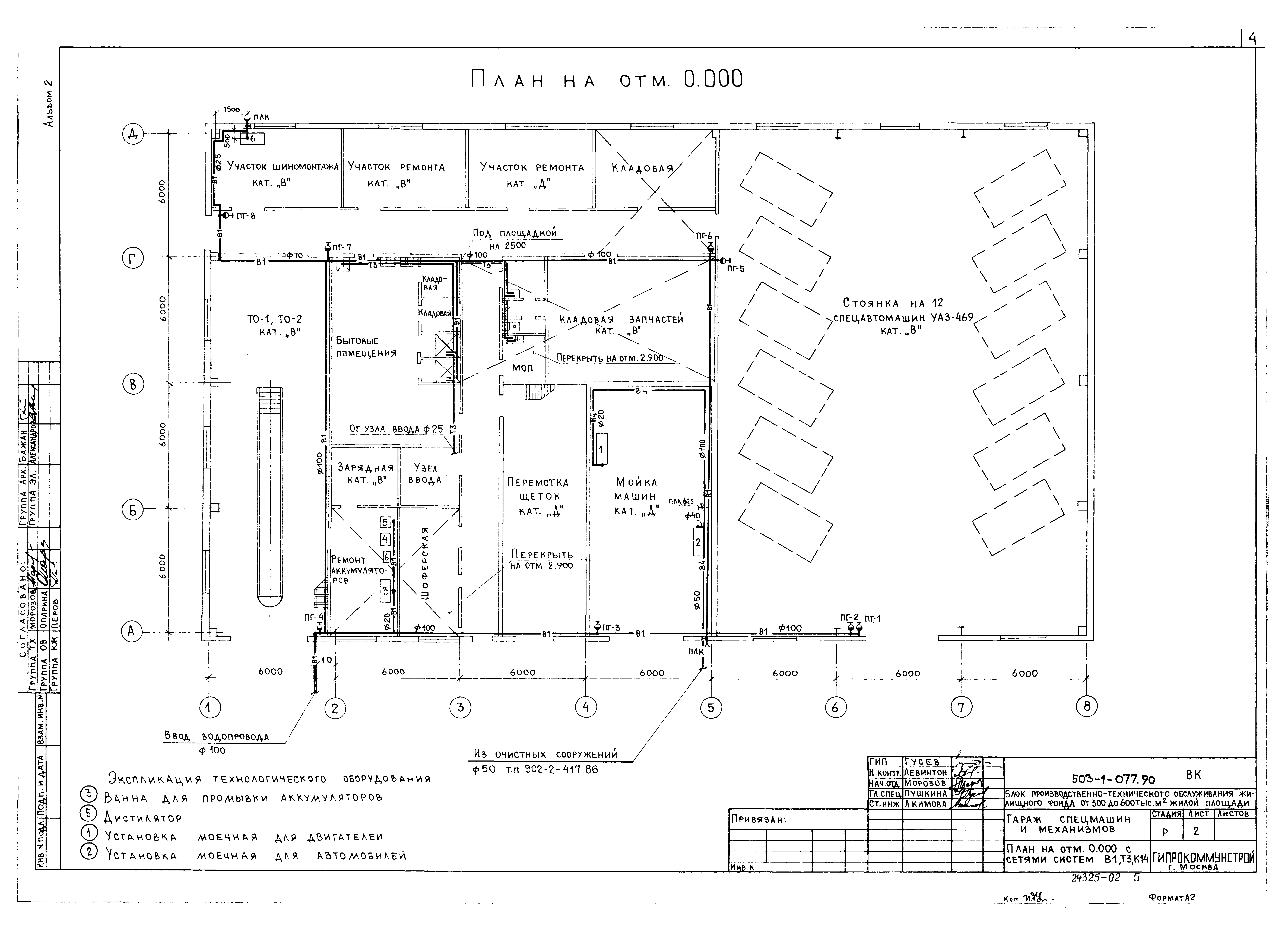
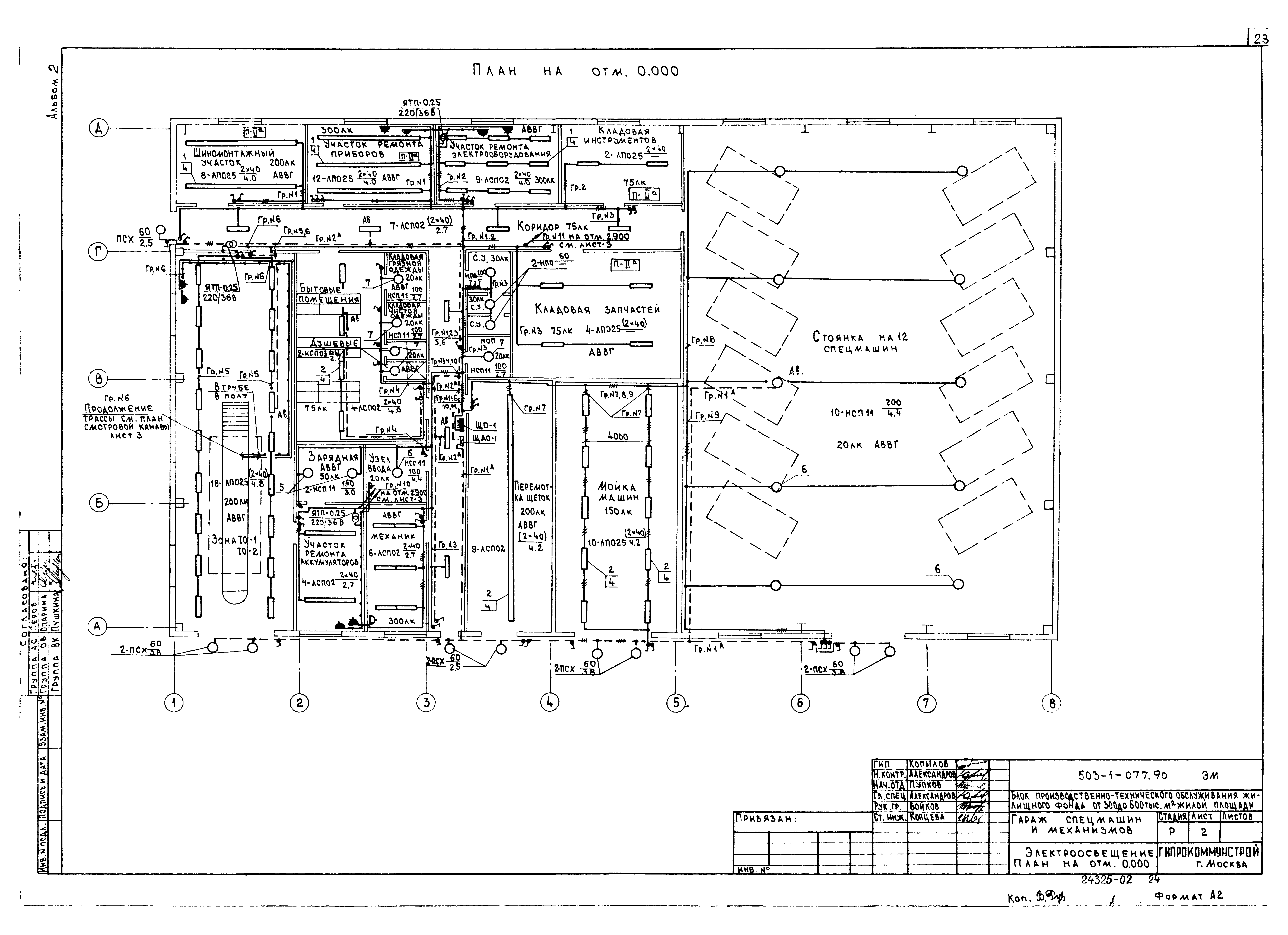
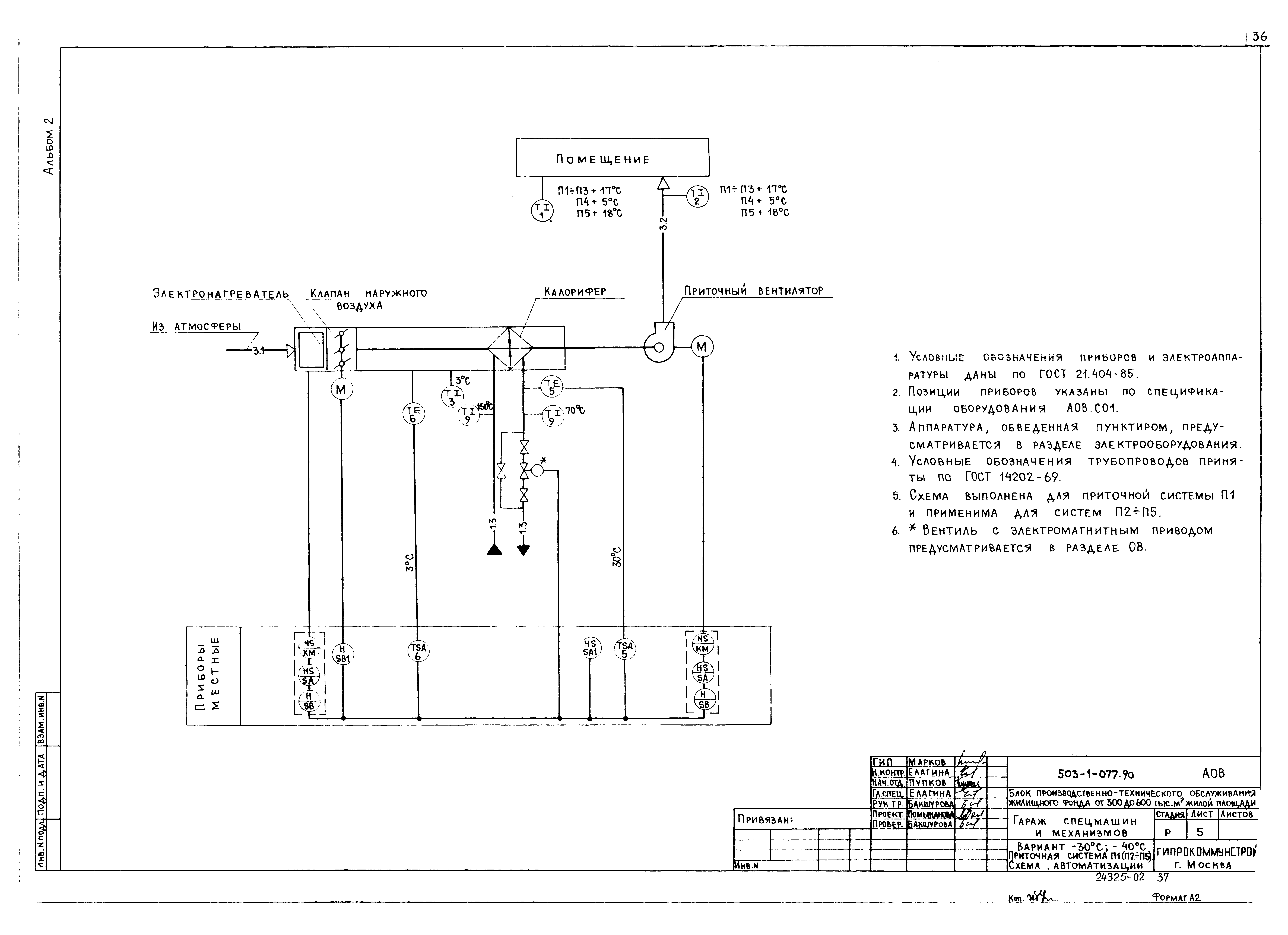
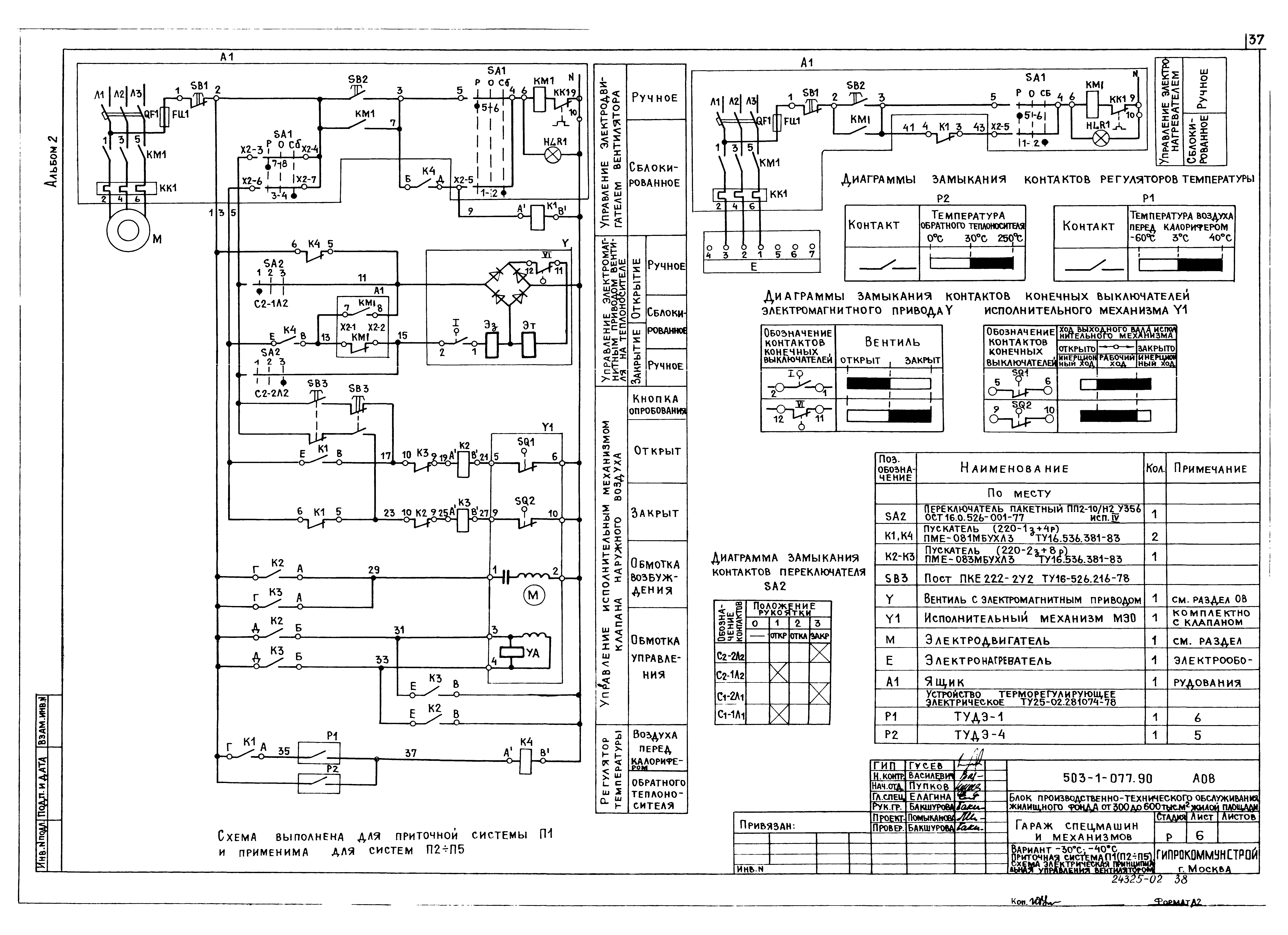
Альбом 2. Внутренний водопровод и канализация. Отопление и вентиляция. Силовое электрооборудования и электрическое освещение. Связь и сигнализация. Автоматизация санитарно-технических систем

Обозначение: Типовые проектные решения 503-1-077.90
Обозначение англ: 503-1-077.90
Статус:справочные материалы, мп, тпр
Название рус.:Альбом 2. Внутренний водопровод и канализация. Отопление и вентиляция. Силовое электрооборудования и электрическое освещение. Связь и сигнализация. Автоматизация санитарно-технических систем
Дата добавления в базу:12.02.2016
Дата актуализации:01.01.2021
Дата введения:06.10.1988
Разработан: Гипрокоммунстрой
Утверждён:06.10.1988 Минжилкомхоз РСФСР (Russian Federation Minzhilkomkhoz 252)
Издан: ЦИТП Госстроя СССР (CITP, Gosstroy (USSR) 1990 г. )
Типовые проектные решения 503-1-077.90Типовые проектные решения 503-1-077.90Типовые проектные решения 503-1-077.90Типовые проектные решения 503-1-077.90Типовые проектные решения 503-1-077.90Типовые проектные решения 503-1-077.90Типовые проектные решения 503-1-077.90Типовые проектные решения 503-1-077.90Типовые проектные решения 503-1-077.90Типовые проектные решения 503-1-077.90Типовые проектные решения 503-1-077.90Типовые проектные решения 503-1-077.90Типовые проектные решения 503-1-077.90Типовые проектные решения 503-1-077.90Типовые проектные решения 503-1-077.90Типовые проектные решения 503-1-077.90Типовые проектные решения 503-1-077.90Типовые проектные решения 503-1-077.90Типовые проектные решения 503-1-077.90Типовые проектные решения 503-1-077.90Типовые проектные решения 503-1-077.90Типовые проектные решения 503-1-077.90Типовые проектные решения 503-1-077.90Типовые проектные решения 503-1-077.90Типовые проектные решения 503-1-077.90Типовые проектные решения 503-1-077.90Типовые проектные решения 503-1-077.90Типовые проектные решения 503-1-077.90Типовые проектные решения 503-1-077.90Типовые проектные решения 503-1-077.90Типовые проектные решения 503-1-077.90Типовые проектные решения 503-1-077.90Типовые проектные решения 503-1-077.90Типовые проектные решения 503-1-077.90Типовые проектные решения 503-1-077.90Типовые проектные решения 503-1-077.90Типовые проектные решения 503-1-077.90Типовые проектные решения 503-1-077.90Типовые проектные решения 503-1-077.90Типовые проектные решения 503-1-077.90Типовые проектные решения 503-1-077.90Типовые проектные решения 503-1-077.90Типовые проектные решения 503-1-077.90