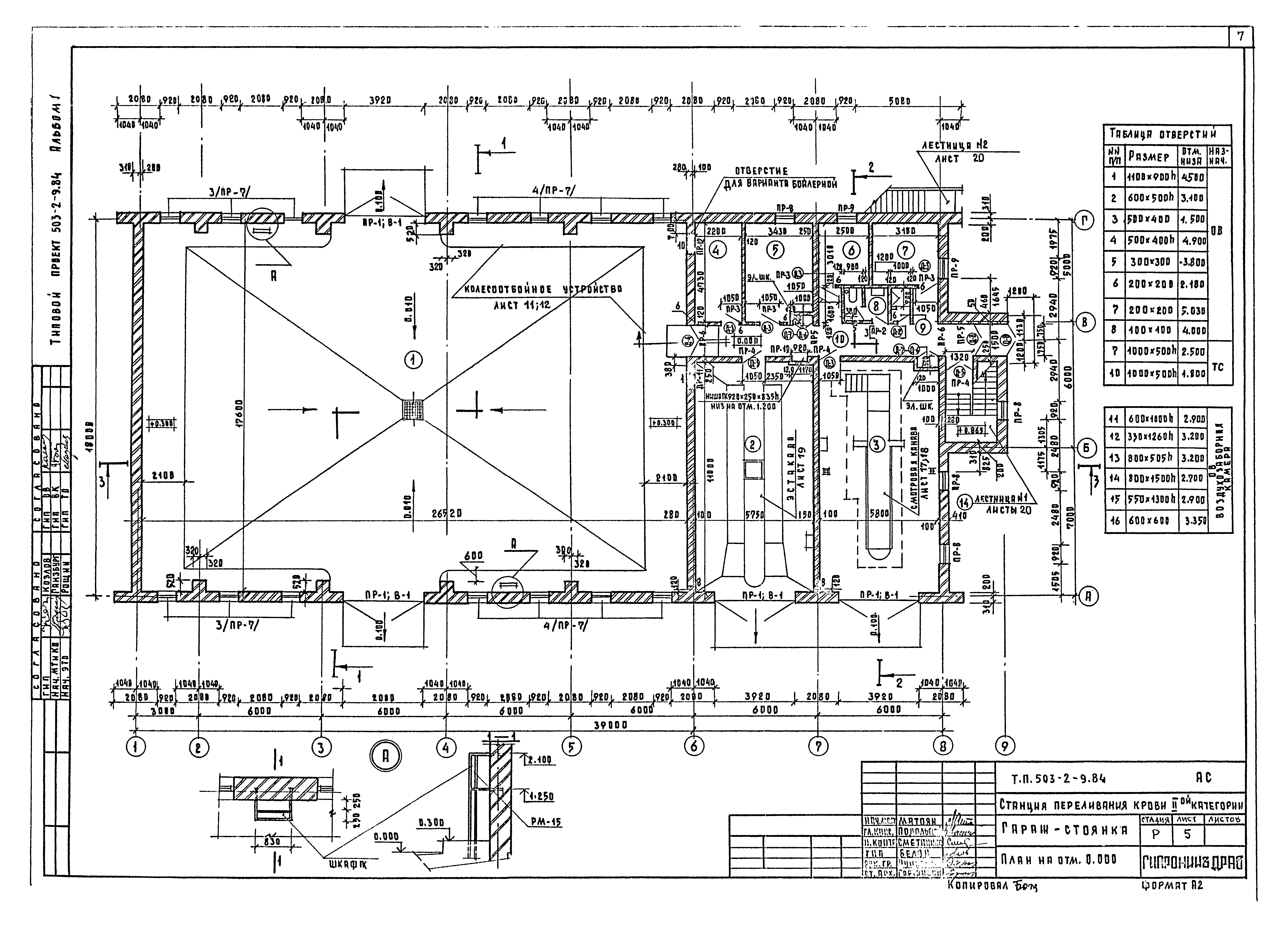
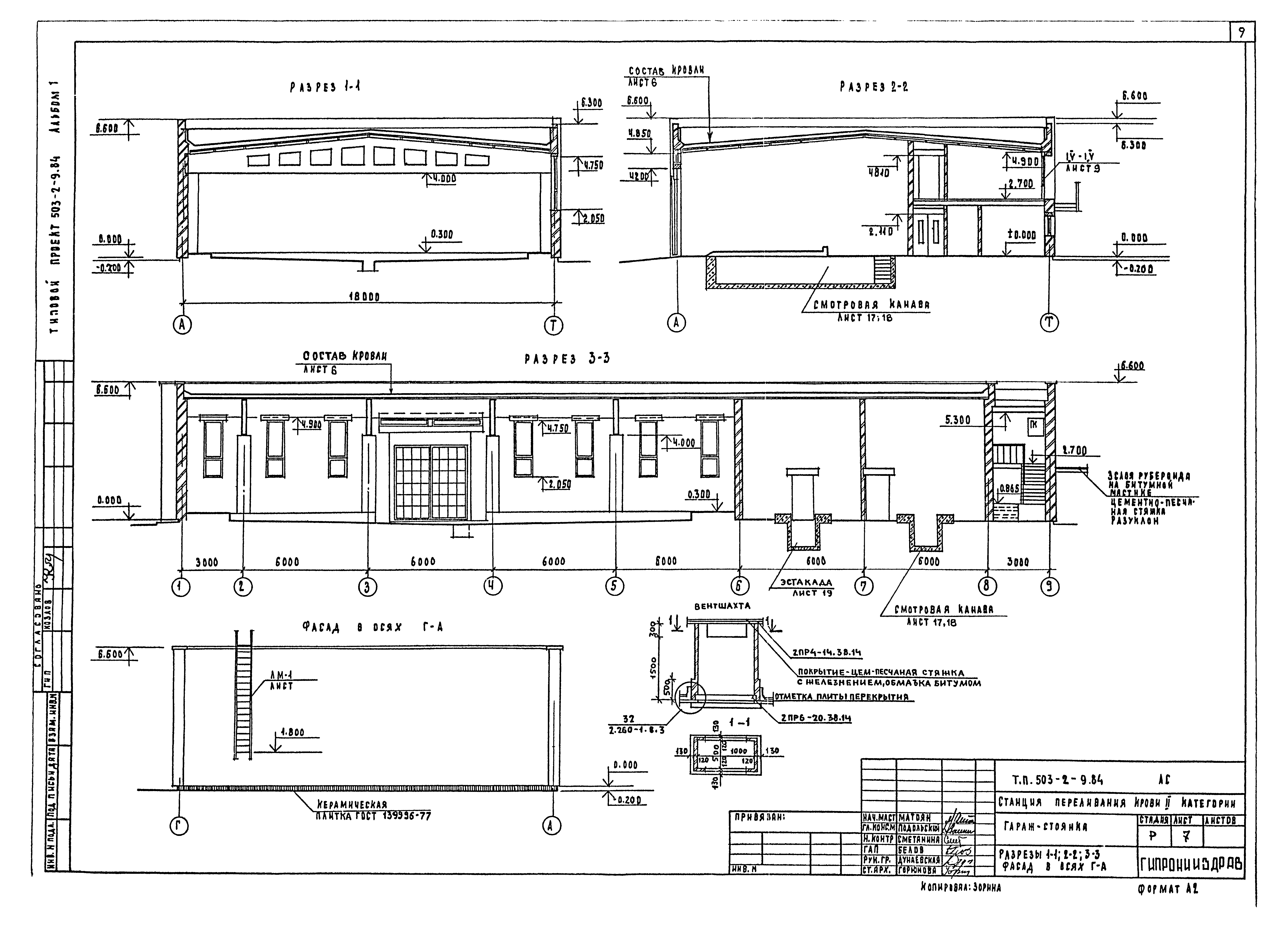
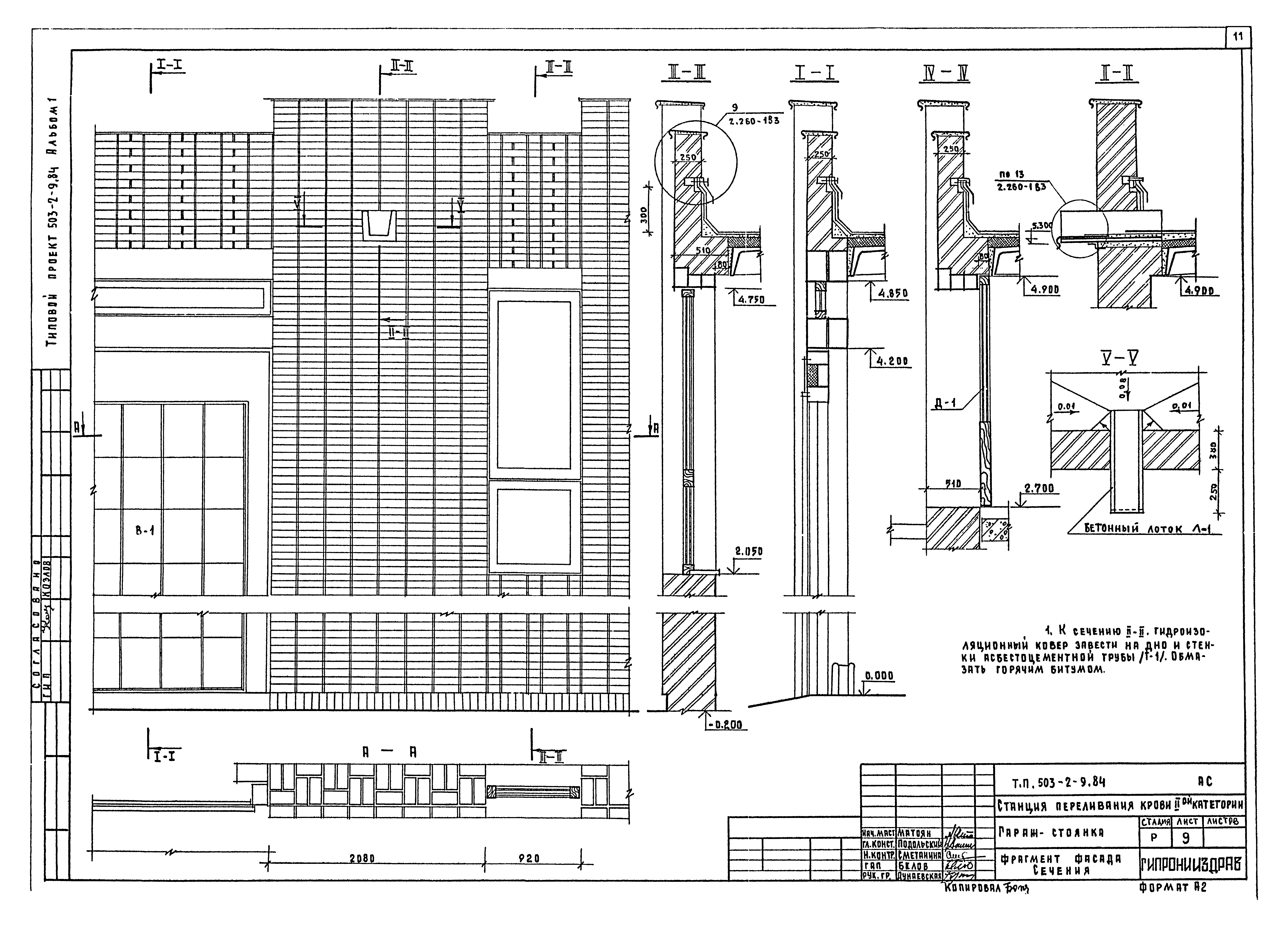
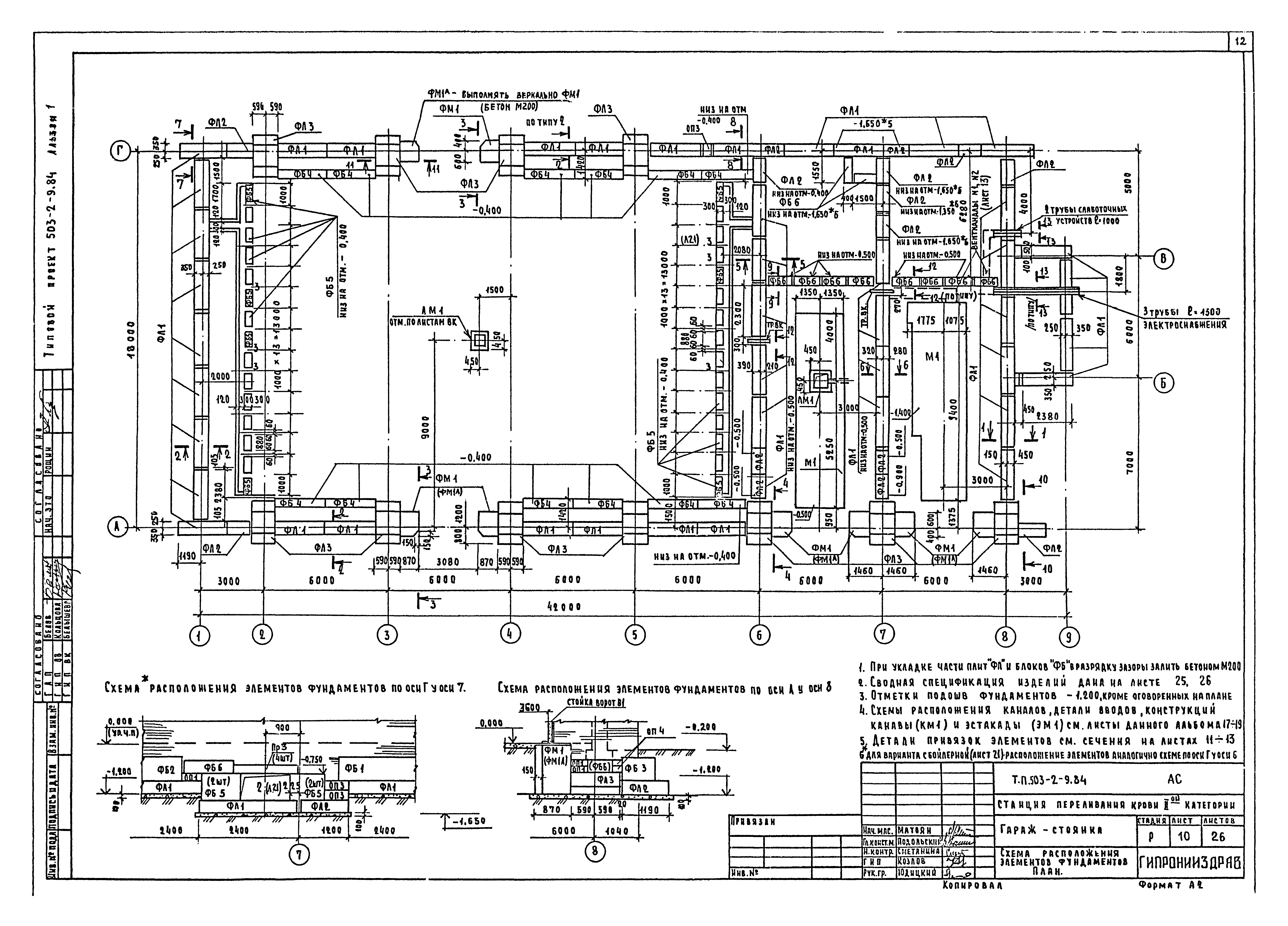
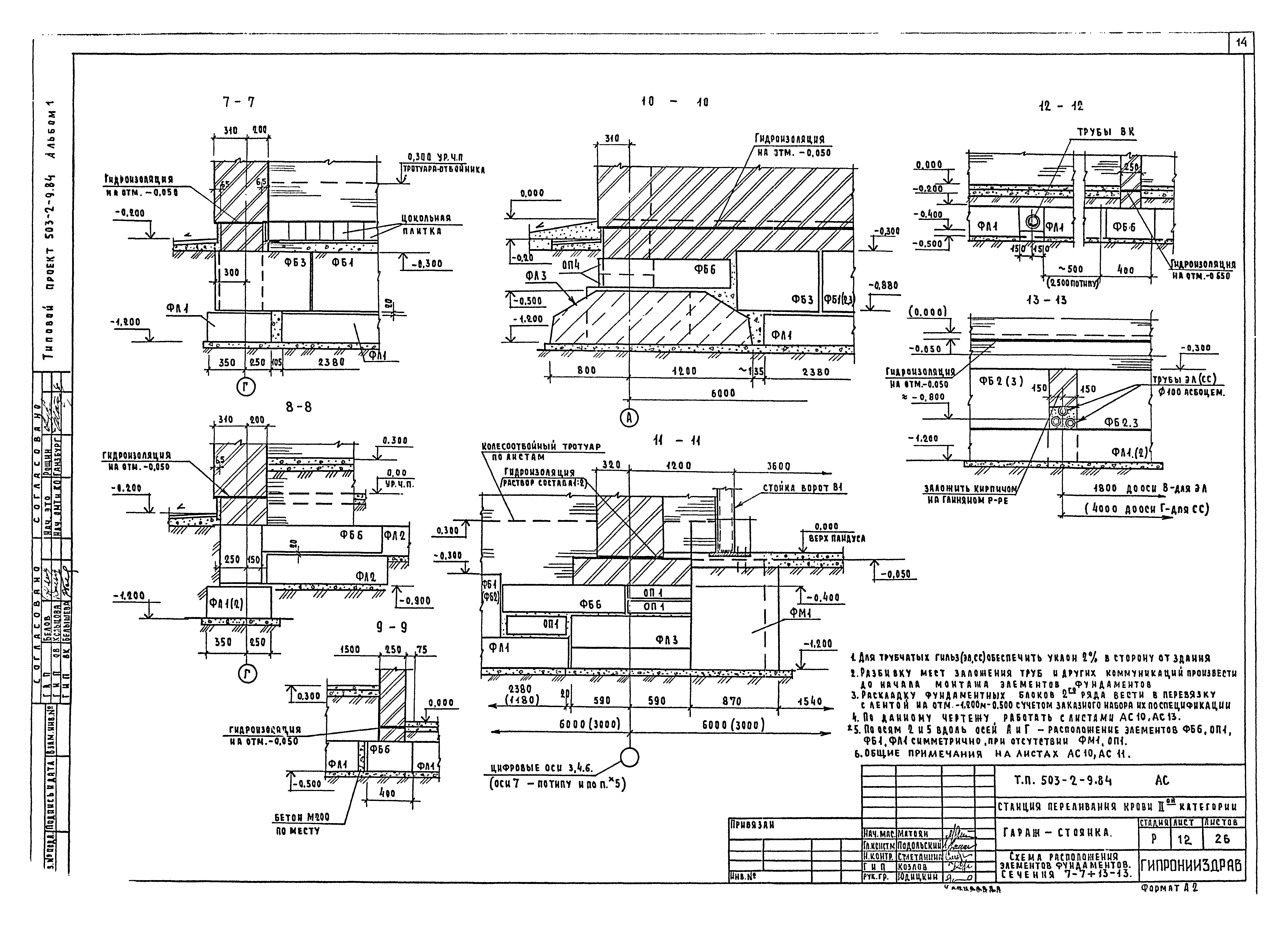
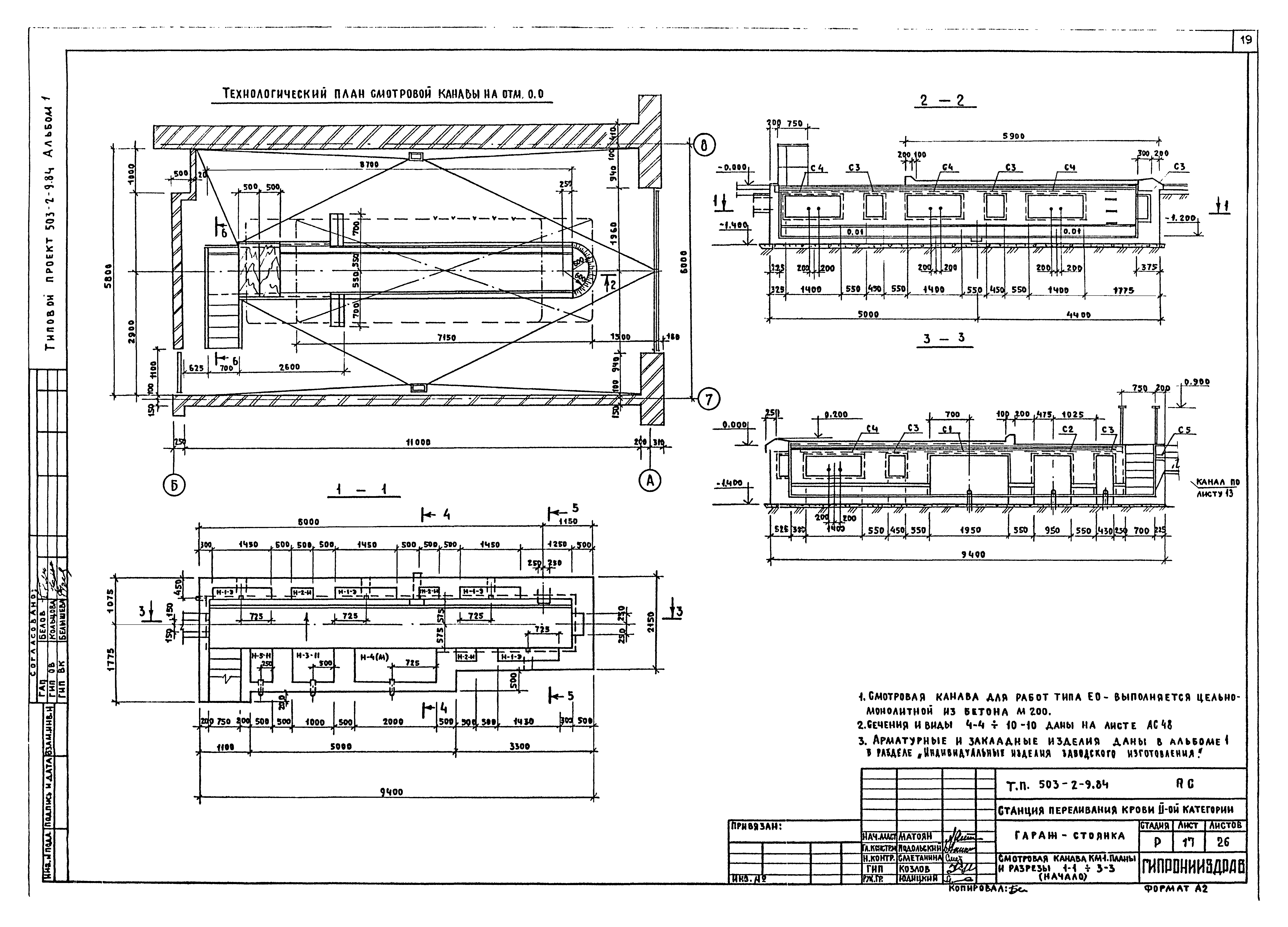
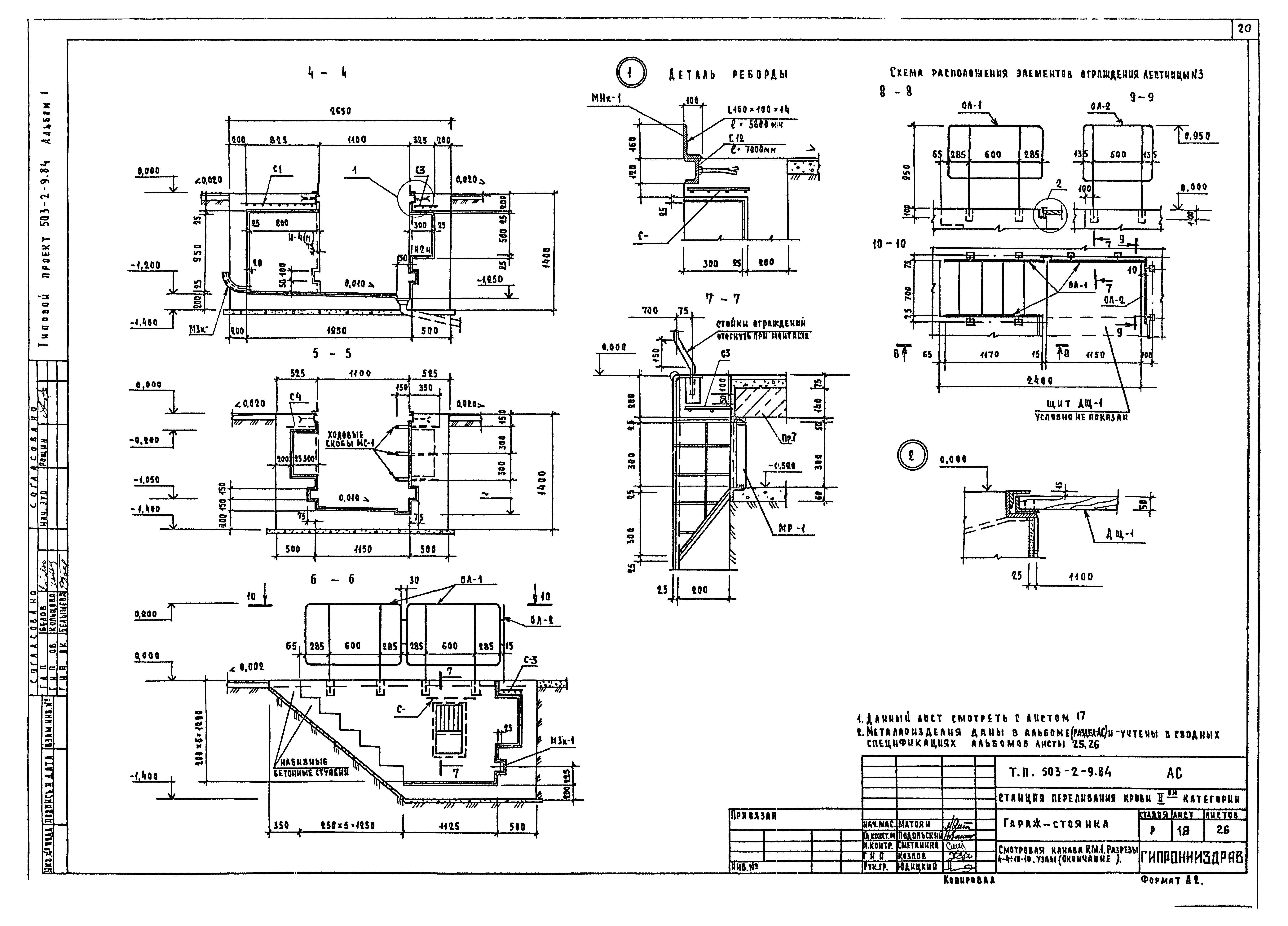
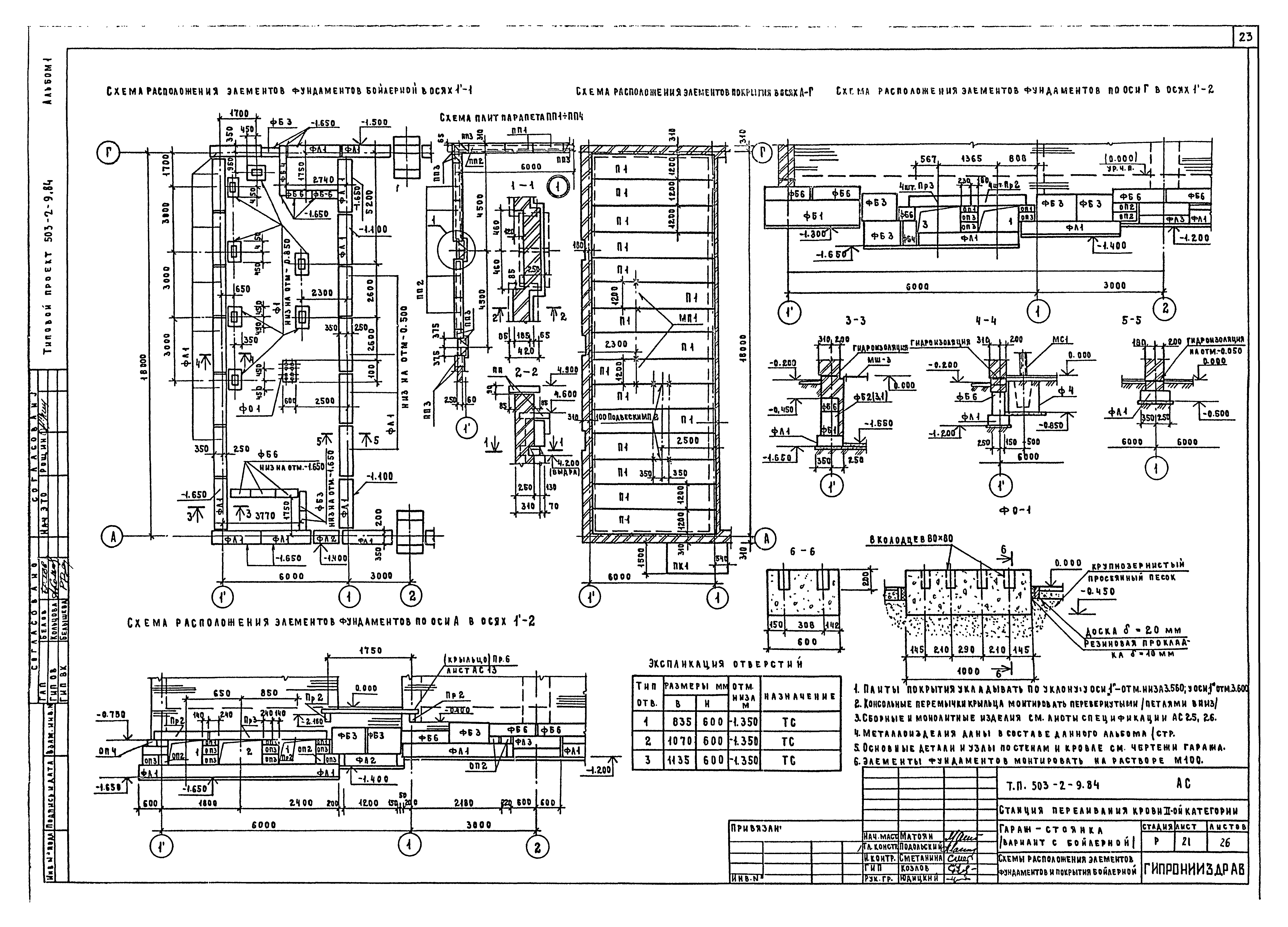
Скачать Типовой проект 503-2-9.84 Альбом 1. Архитектурно-строительные решения, технологическое решение, отопление и вентиляция, водопровод и канализация, теплоснабжение, электрооборудование, связь и сигнализация, изделия заводского изготовленияДата актуализации: 01.01.2021 Типовой проект 503-2-9.84
Альбом 1. Архитектурно-строительные решения, технологическое решение, отопление и вентиляция, водопровод и канализация, теплоснабжение, электрооборудование, связь и сигнализация, изделия заводского изготовления| Обозначение: | Типовой проект 503-2-9.84 | | Обозначение англ: | 503-2-9.84 | | Статус: | не определен законодательством | | Название рус.: | Альбом 1. Архитектурно-строительные решения, технологическое решение, отопление и вентиляция, водопровод и канализация, теплоснабжение, электрооборудование, связь и сигнализация, изделия заводского изготовления | | Дата добавления в базу: | 12.02.2016 | | Дата актуализации: | 01.01.2021 | | Дата введения: | 10.04.1984 | | Дата окончания срока действия: | 30.06.2003 | | Разработан: | ГипроНИИздрав Минздрава СССР
| | Утверждён: | 26.02.1982 Минздрав СССР (USSR Minzdrav 186)
| | Издан: | ЦИТП Госстроя СССР (CITP, Gosstroy (USSR) 1987 г. )
|
                                                                      
|