Скачать Типовой проект 503-2-14.86 Альбом I. Пояснительная записка, схема генплана, технология производства, силовое электрооборудование, электрическое освещение, автоматизация санитарно-технических систем, связь и сигнализацияДата актуализации: 01.01.2021 Типовой проект 503-2-14.86
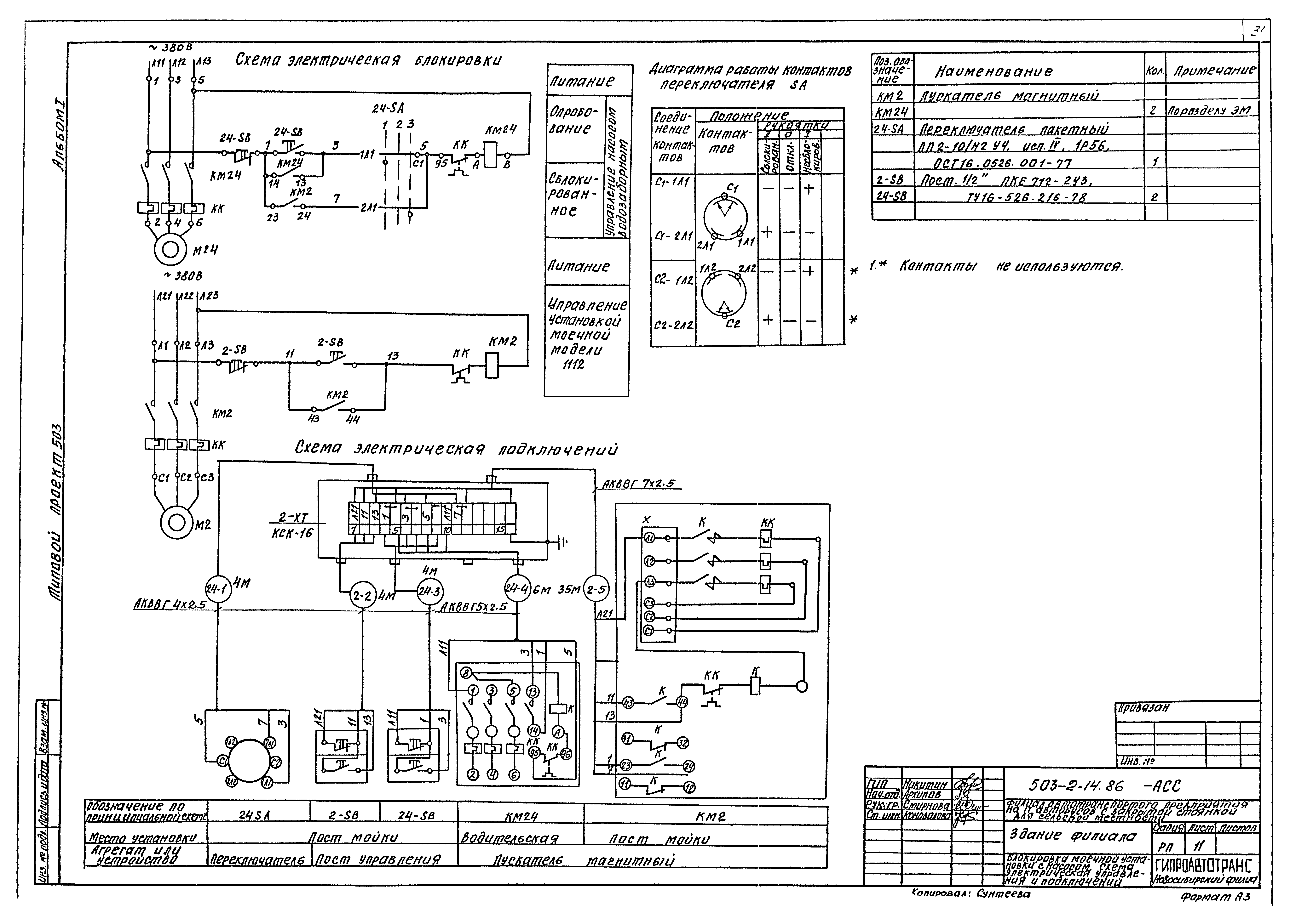
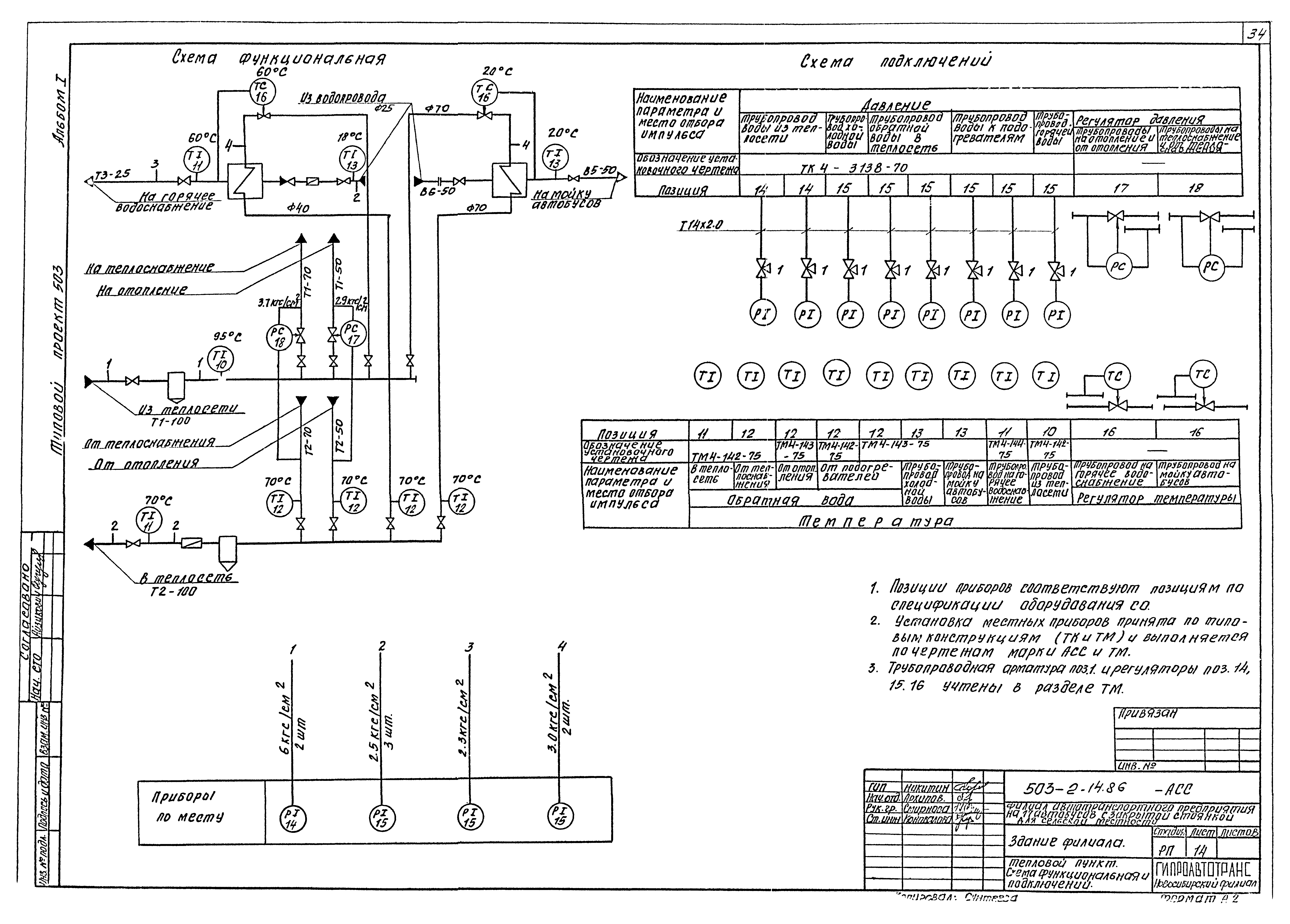
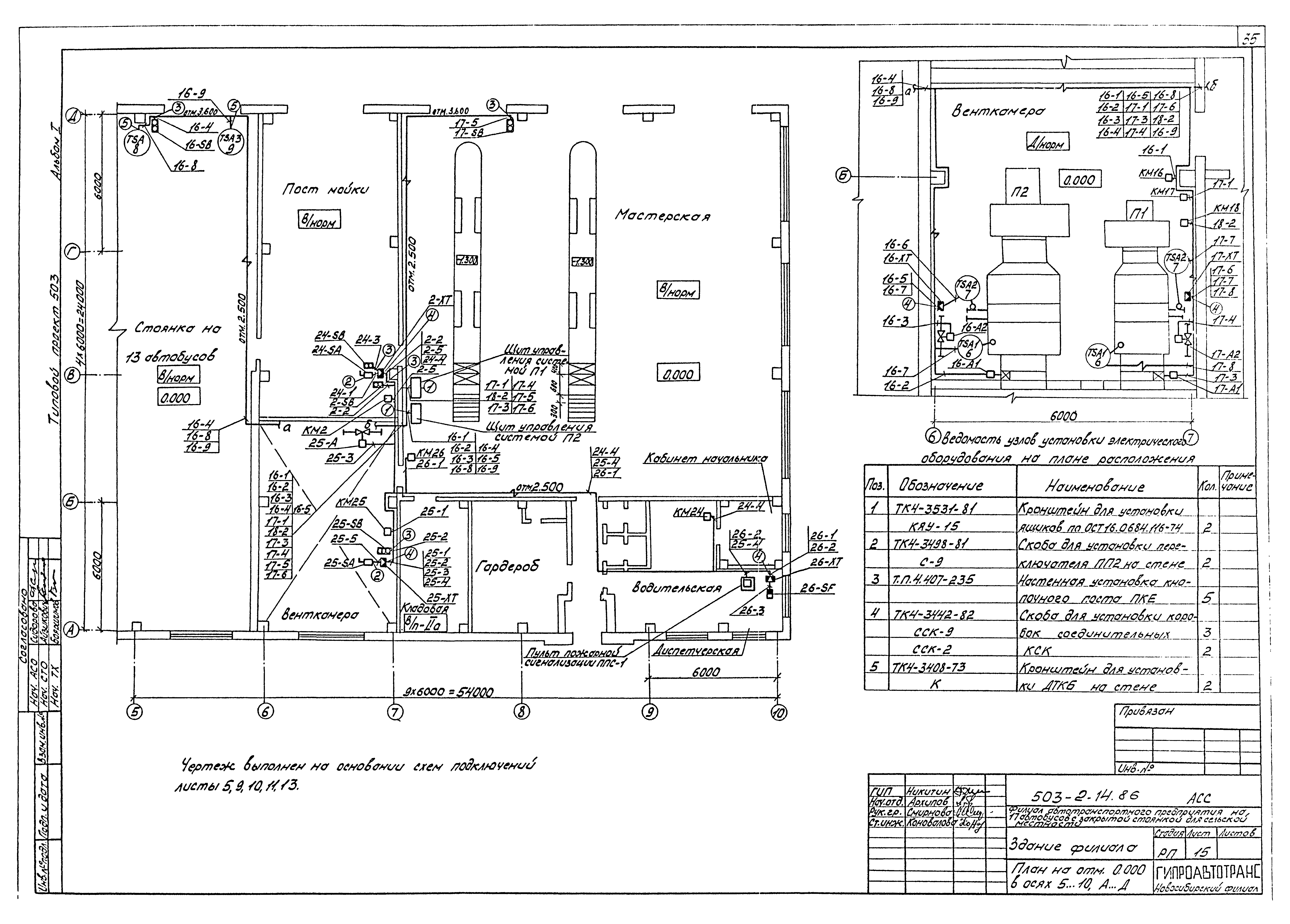
Альбом I. Пояснительная записка, схема генплана, технология производства, силовое электрооборудование, электрическое освещение, автоматизация санитарно-технических систем, связь и сигнализация| Обозначение: | Типовой проект 503-2-14.86 | | Обозначение англ: | 503-2-14.86 | | Статус: | действует | | Название рус.: | Альбом I. Пояснительная записка, схема генплана, технология производства, силовое электрооборудование, электрическое освещение, автоматизация санитарно-технических систем, связь и сигнализация | | Дата добавления в базу: | 12.02.2016 | | Дата актуализации: | 01.01.2021 | | Дата введения: | 05.02.1986 | | Разработан: | Новосибирский филиал Гипроавтотранса
| | Утверждён: | 05.02.1986 Минавтотранс РСФСР (Russian Federation Minavtotrans 3)
| | Издан: | ЦИТП Госстроя СССР (CITP, Gosstroy (USSR) 1987 г. )
| | Заменяет собой: | |
                                      
|