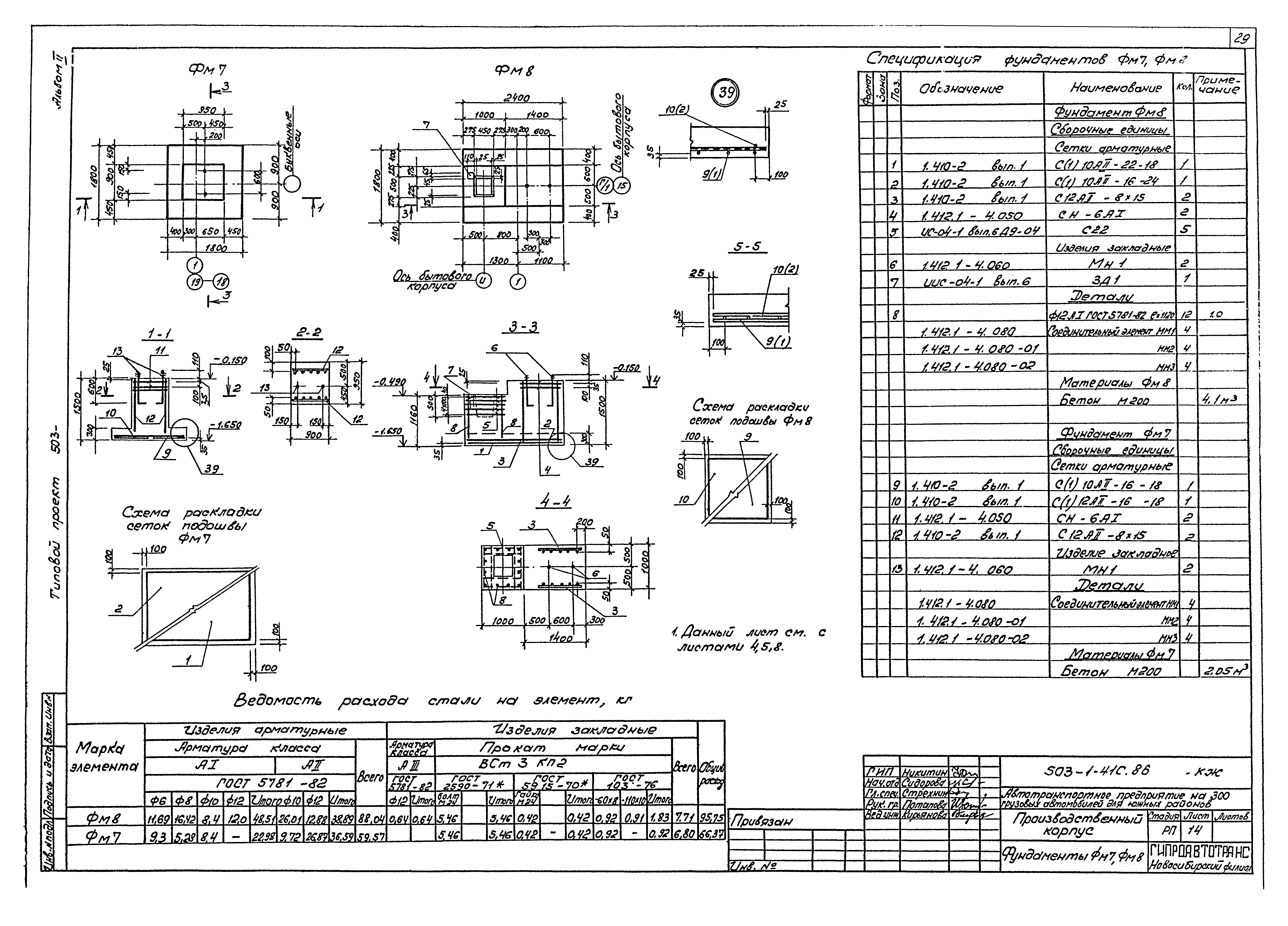
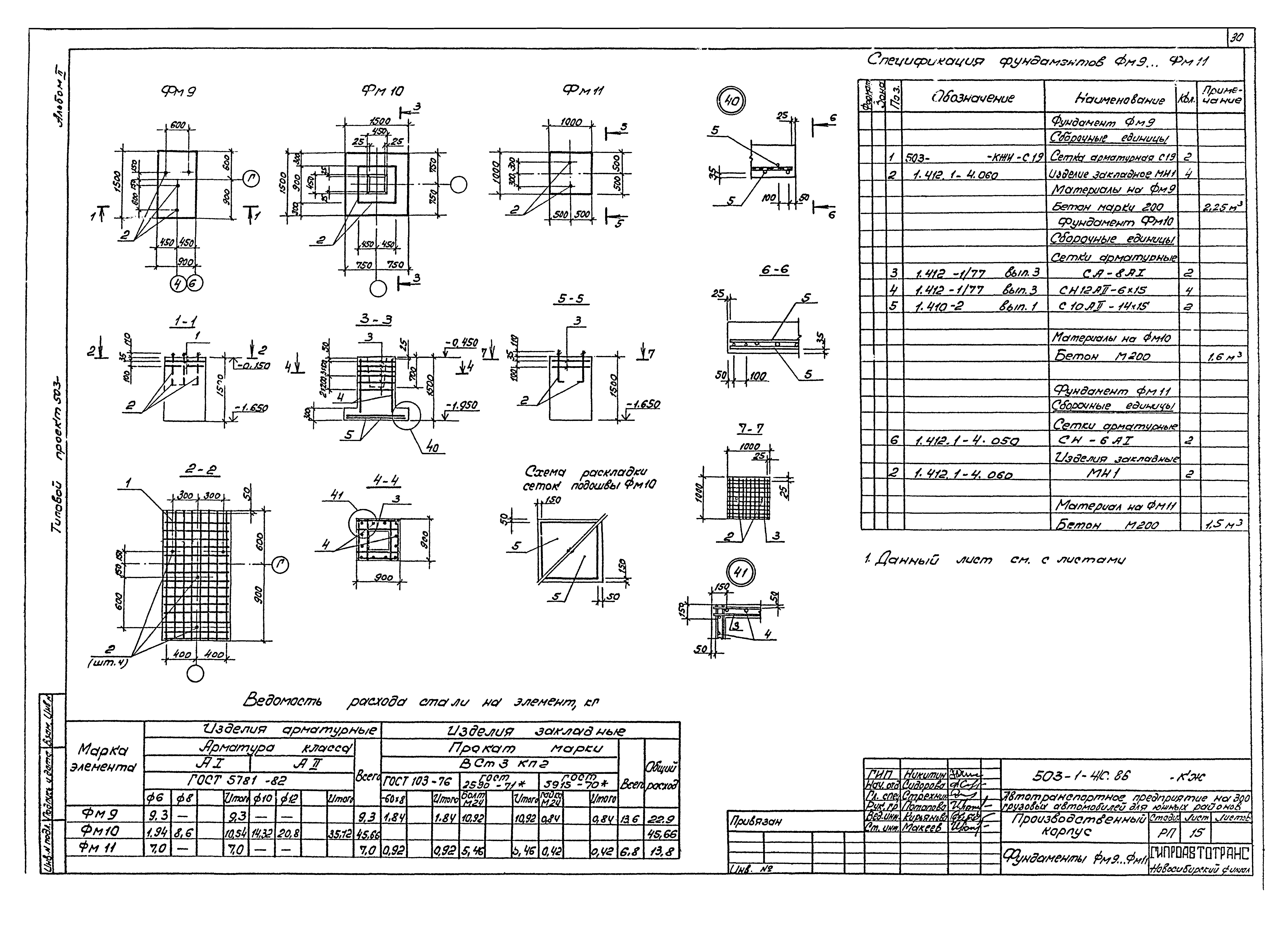
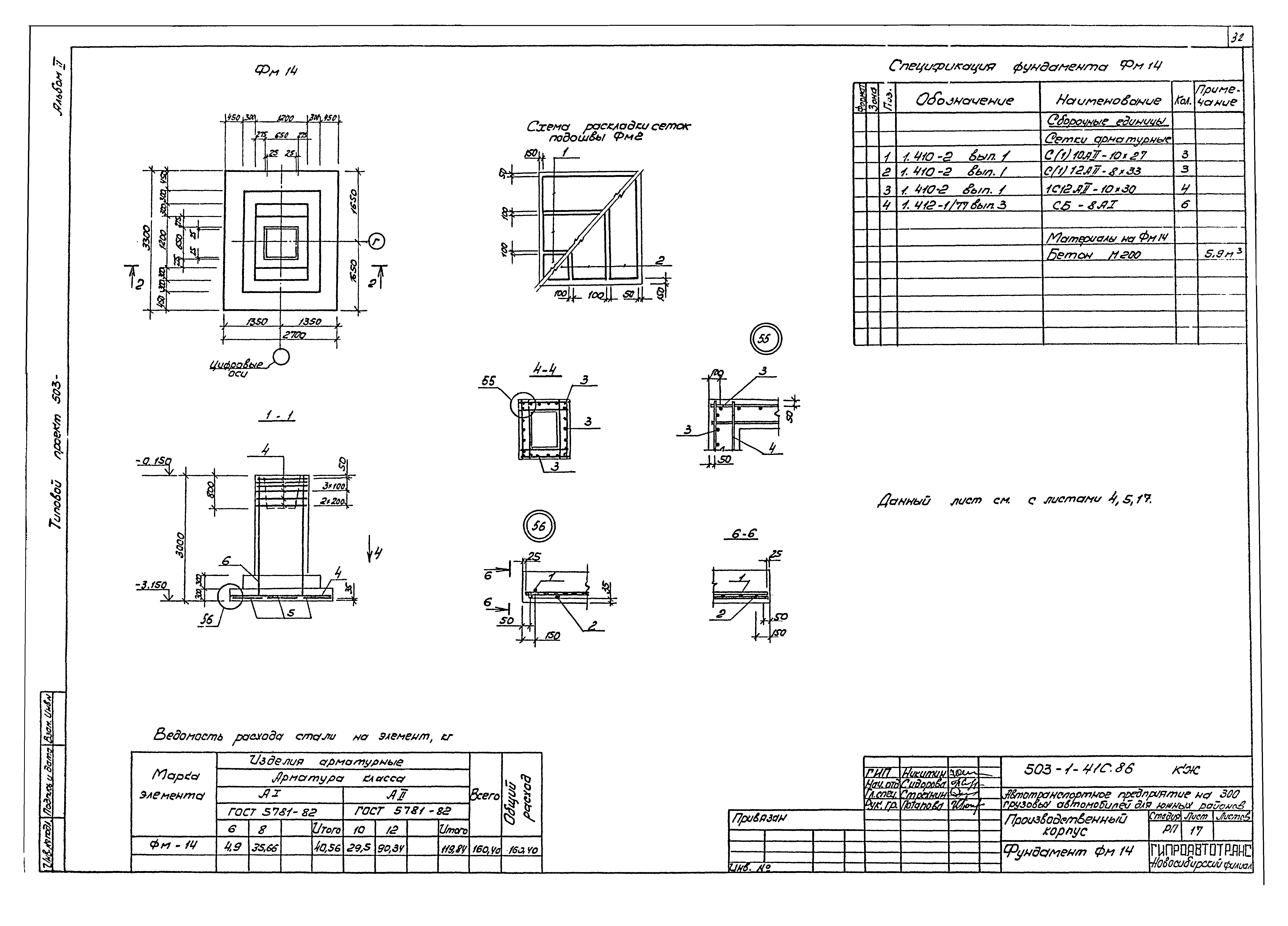
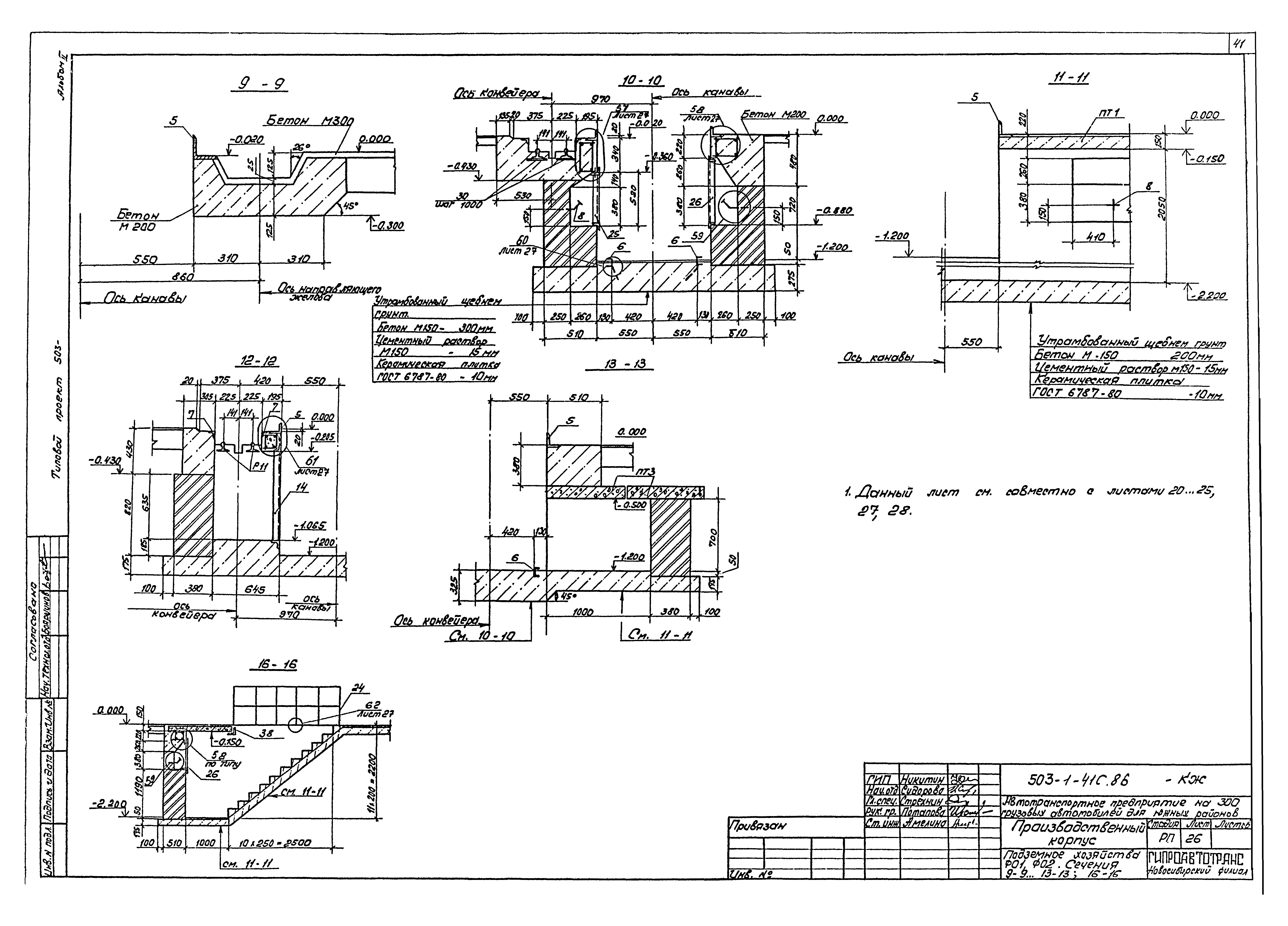
Скачать Типовой проект 503-1-41с.86 Альбом II. Архитектурные решения, конструкции железобетонные, конструкции металлические, отопление и вентиляция, внутренние водопровод и канализация (основное решение - сейсмичность 7 баллов)Дата актуализации: 01.01.2021 Типовой проект 503-1-41с.86
Альбом II. Архитектурные решения, конструкции железобетонные, конструкции металлические, отопление и вентиляция, внутренние водопровод и канализация (основное решение - сейсмичность 7 баллов)| Обозначение: | Типовой проект 503-1-41с.86 | | Обозначение англ: | 503-1-41с.86 | | Статус: | действует | | Название рус.: | Альбом II. Архитектурные решения, конструкции железобетонные, конструкции металлические, отопление и вентиляция, внутренние водопровод и канализация (основное решение - сейсмичность 7 баллов) | | Дата добавления в базу: | 12.02.2016 | | Дата актуализации: | 01.01.2021 | | Дата введения: | 28.11.1984 | | Разработан: | Новосибирский филиал Гипроавтотранса
| | Утверждён: | 28.11.1984 Минавтотранс РСФСР (Russian Federation Minavtotrans 79)
| | Издан: | ЦИТП Госстроя СССР (CITP, Gosstroy (USSR) 1987 г. )
|
                                                                                                                                      
|