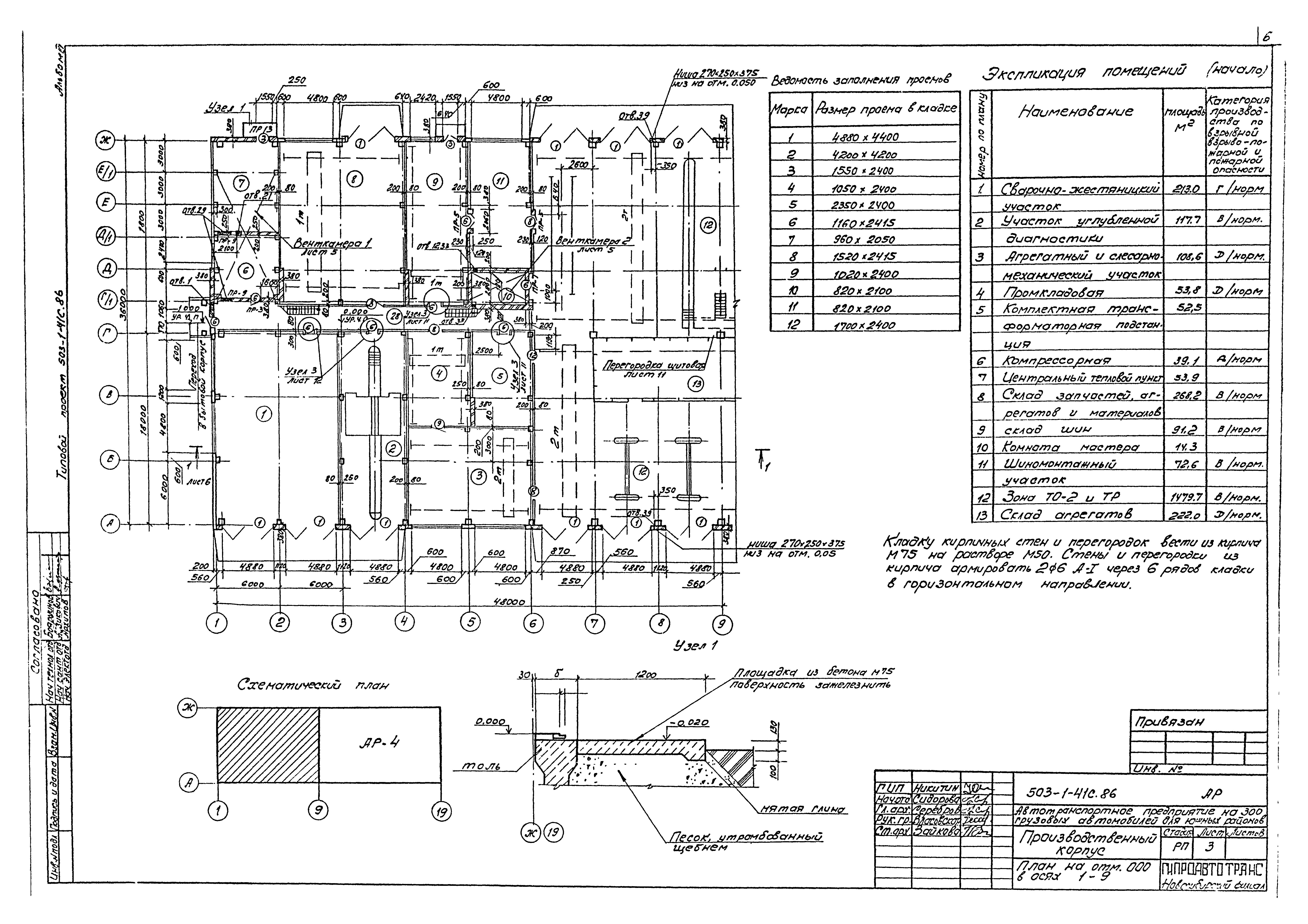
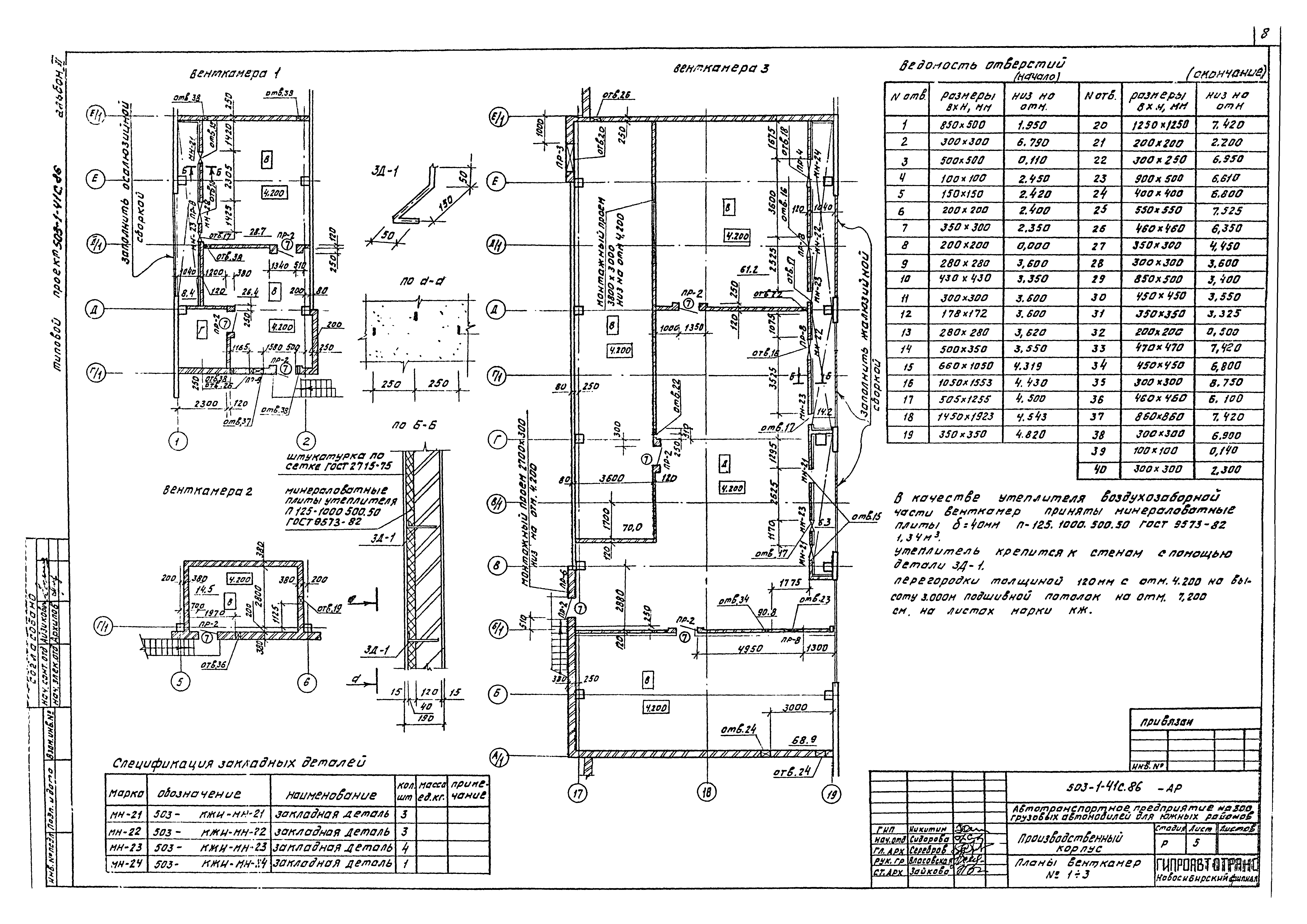
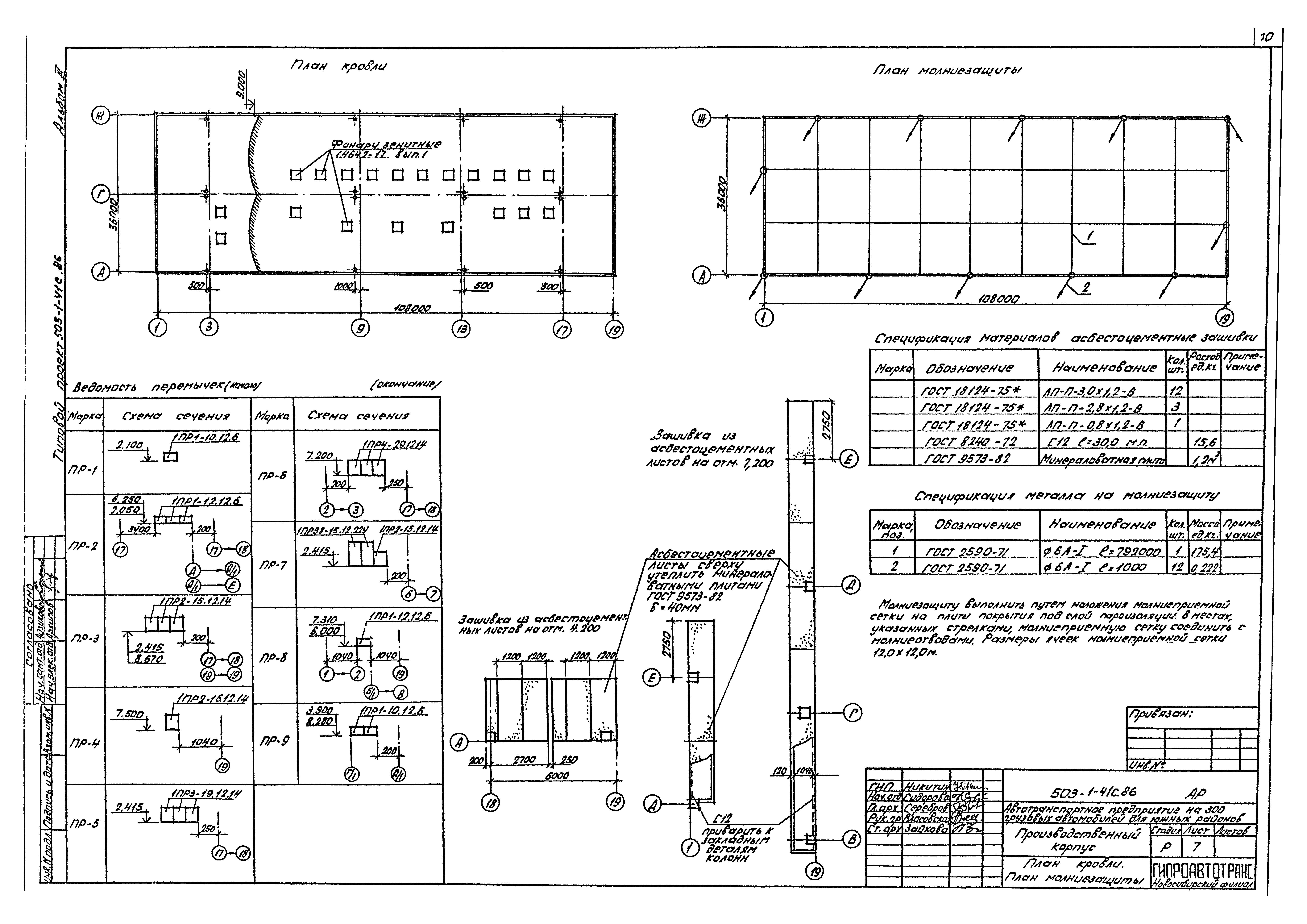
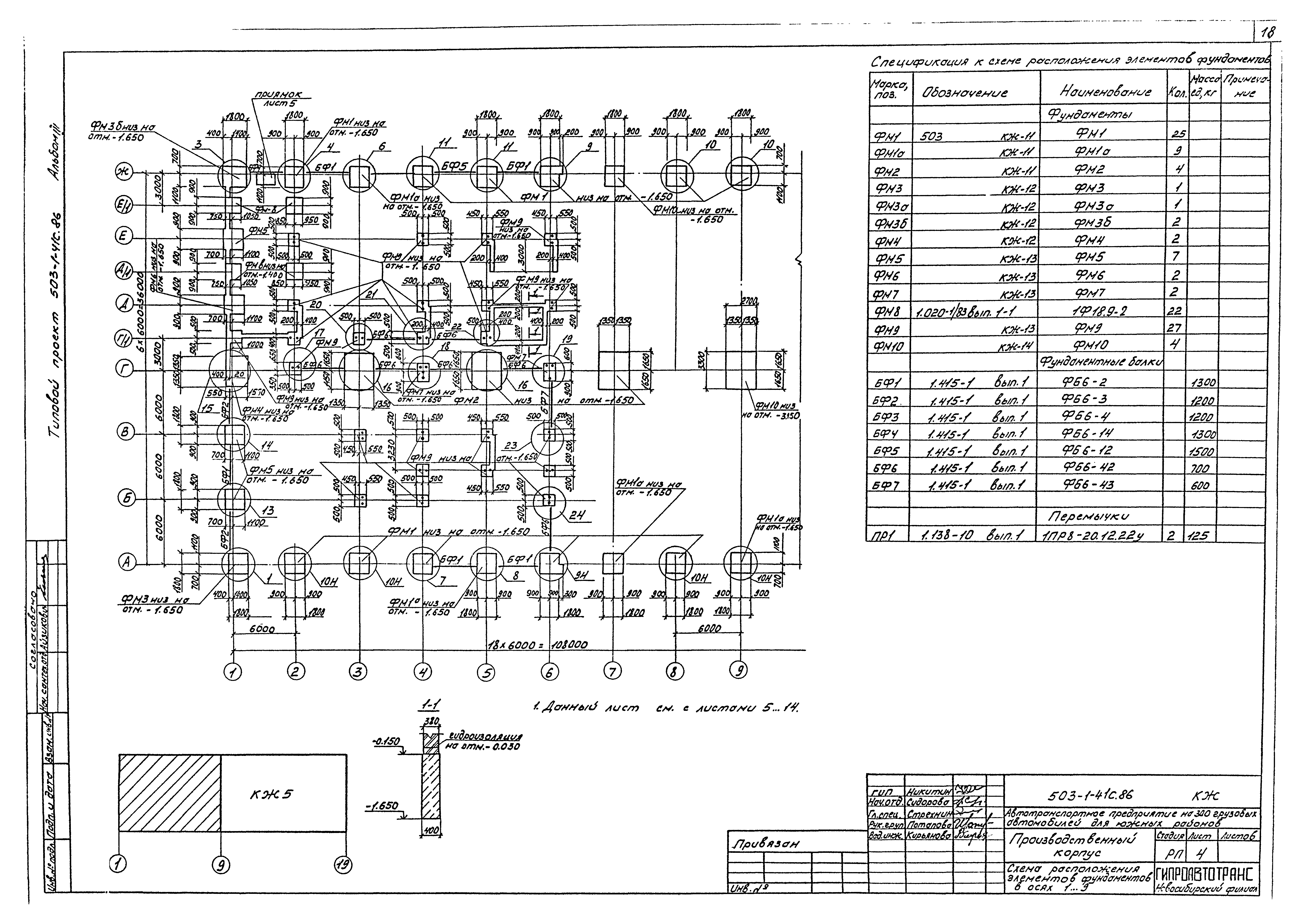
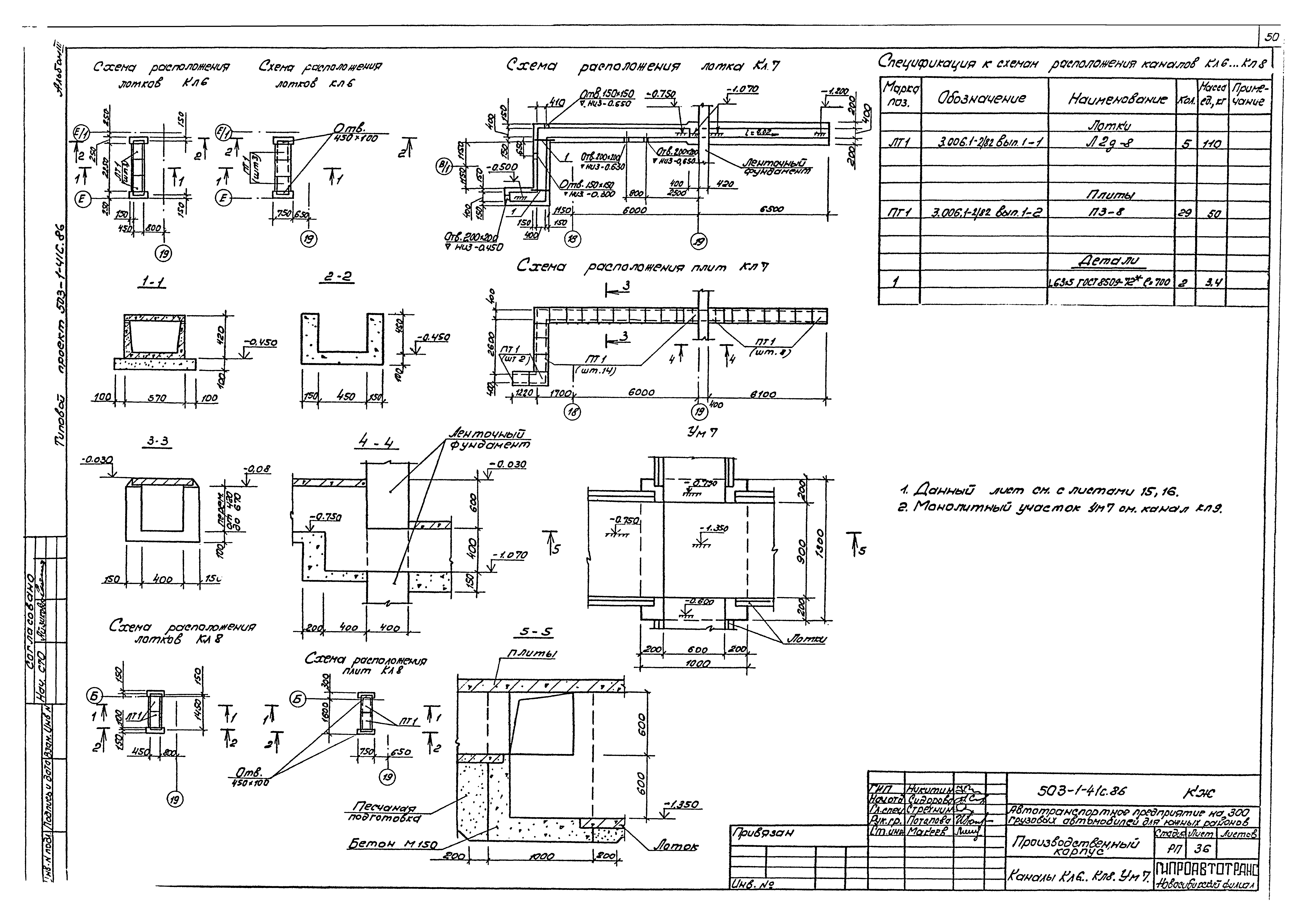
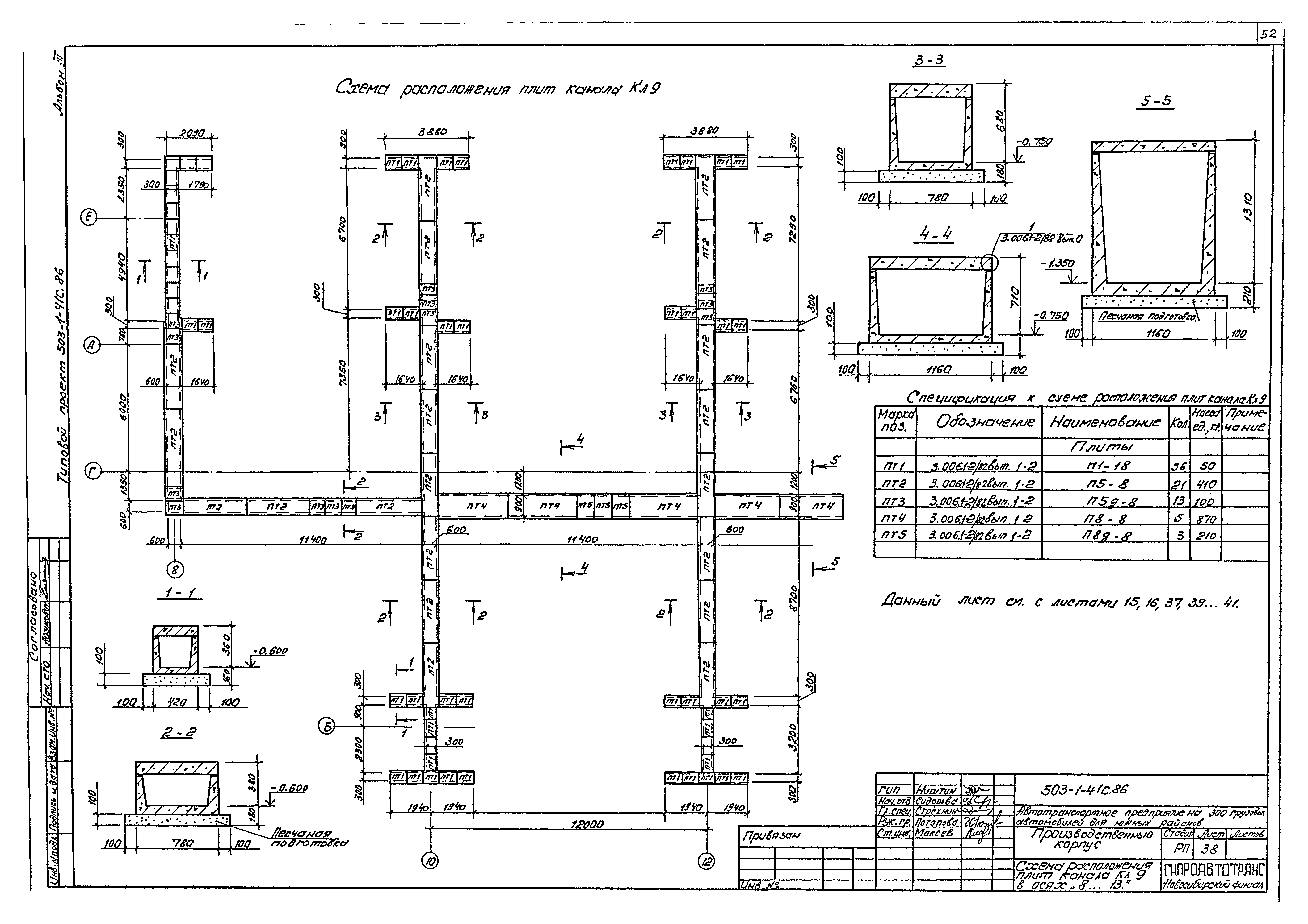
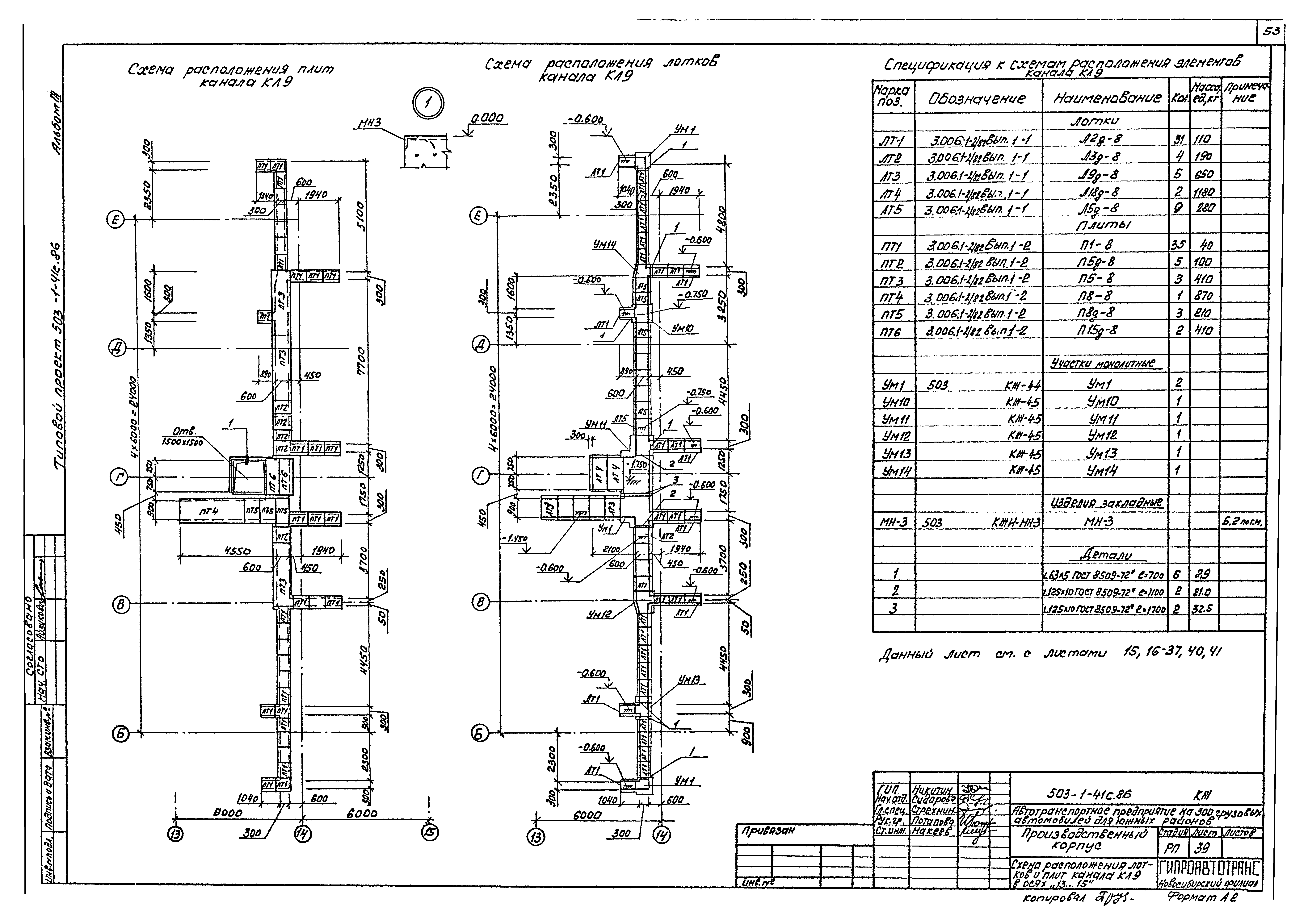
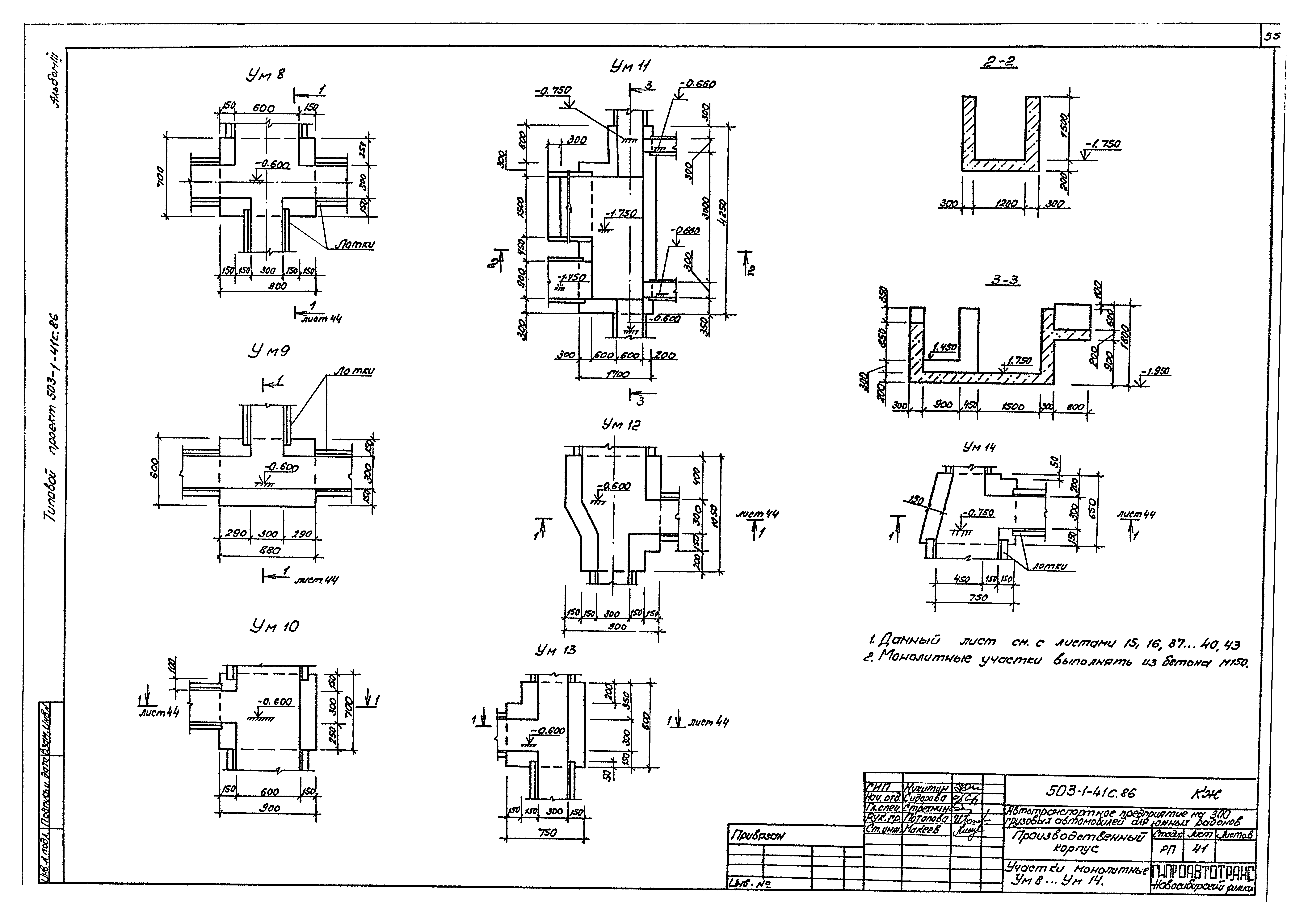
Скачать Типовой проект 503-1-41с.86 Альбом III. Архитектурные решения, конструкции железобетонные, конструкции металлические (вариант для обычных условий)Дата актуализации: 01.01.2021 Типовой проект 503-1-41с.86
Альбом III. Архитектурные решения, конструкции железобетонные, конструкции металлические (вариант для обычных условий)| Обозначение: | Типовой проект 503-1-41с.86 | | Обозначение англ: | 503-1-41с.86 | | Статус: | действует | | Название рус.: | Альбом III. Архитектурные решения, конструкции железобетонные, конструкции металлические (вариант для обычных условий) | | Дата добавления в базу: | 12.02.2016 | | Дата актуализации: | 01.01.2021 | | Дата введения: | 28.11.1984 | | Разработан: | Новосибирский филиал Гипроавтотранса
| | Утверждён: | 28.11.1984 Минавтотранс РСФСР (Russian Federation Minavtotrans 79)
| | Издан: | ЦИТП Госстроя СССР (CITP, Gosstroy (USSR) 1987 г. )
|
                                                                                    
|