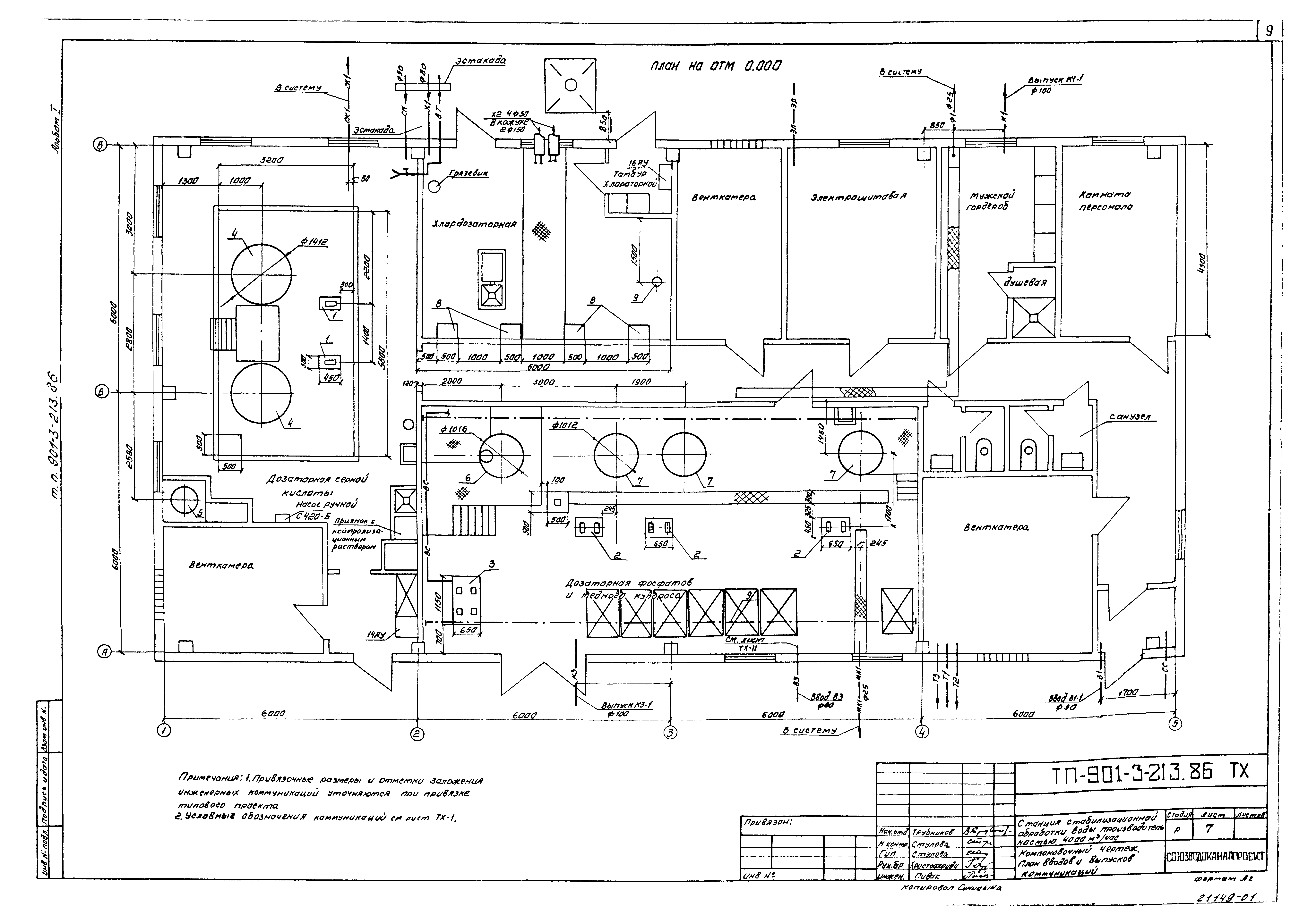
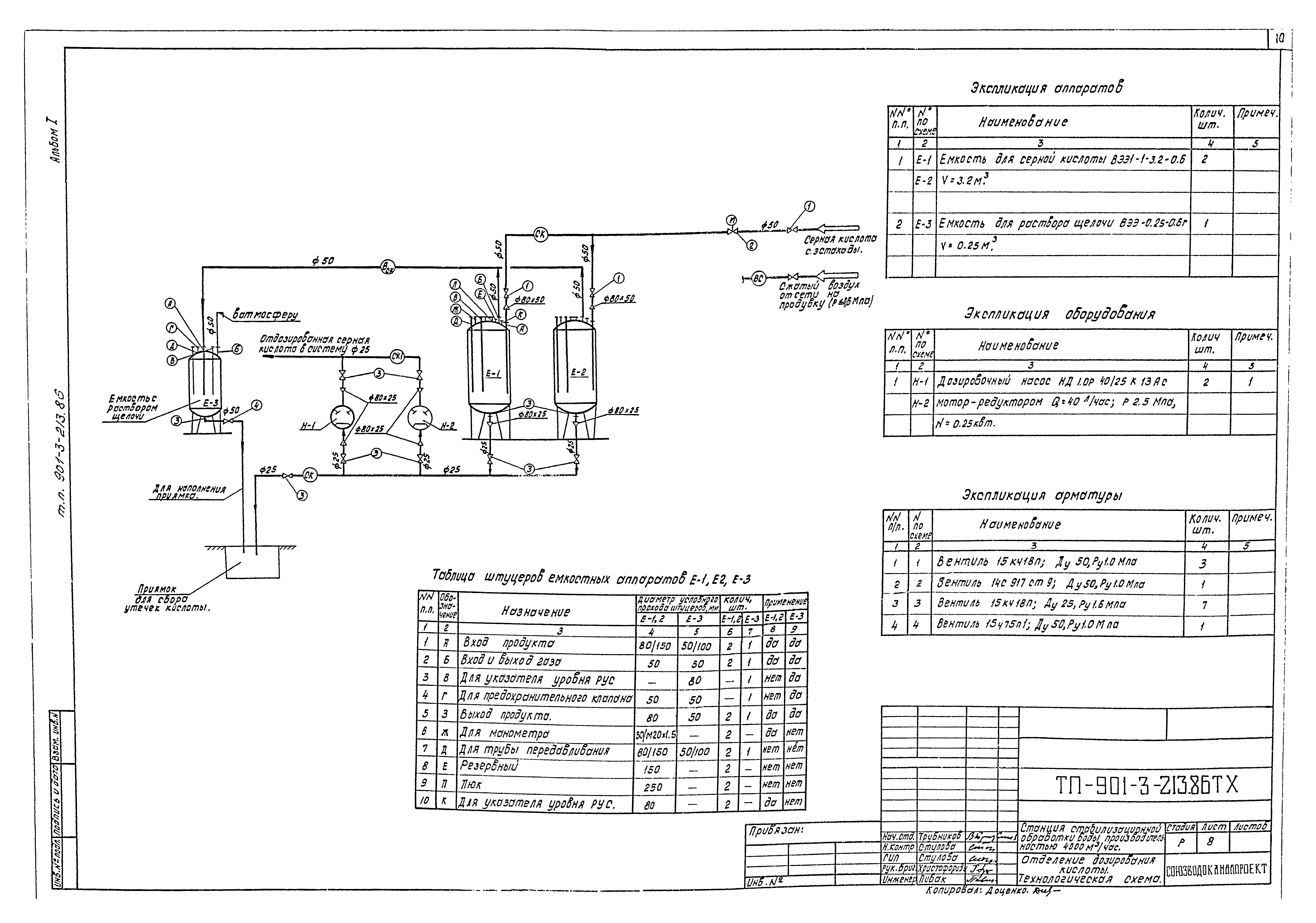
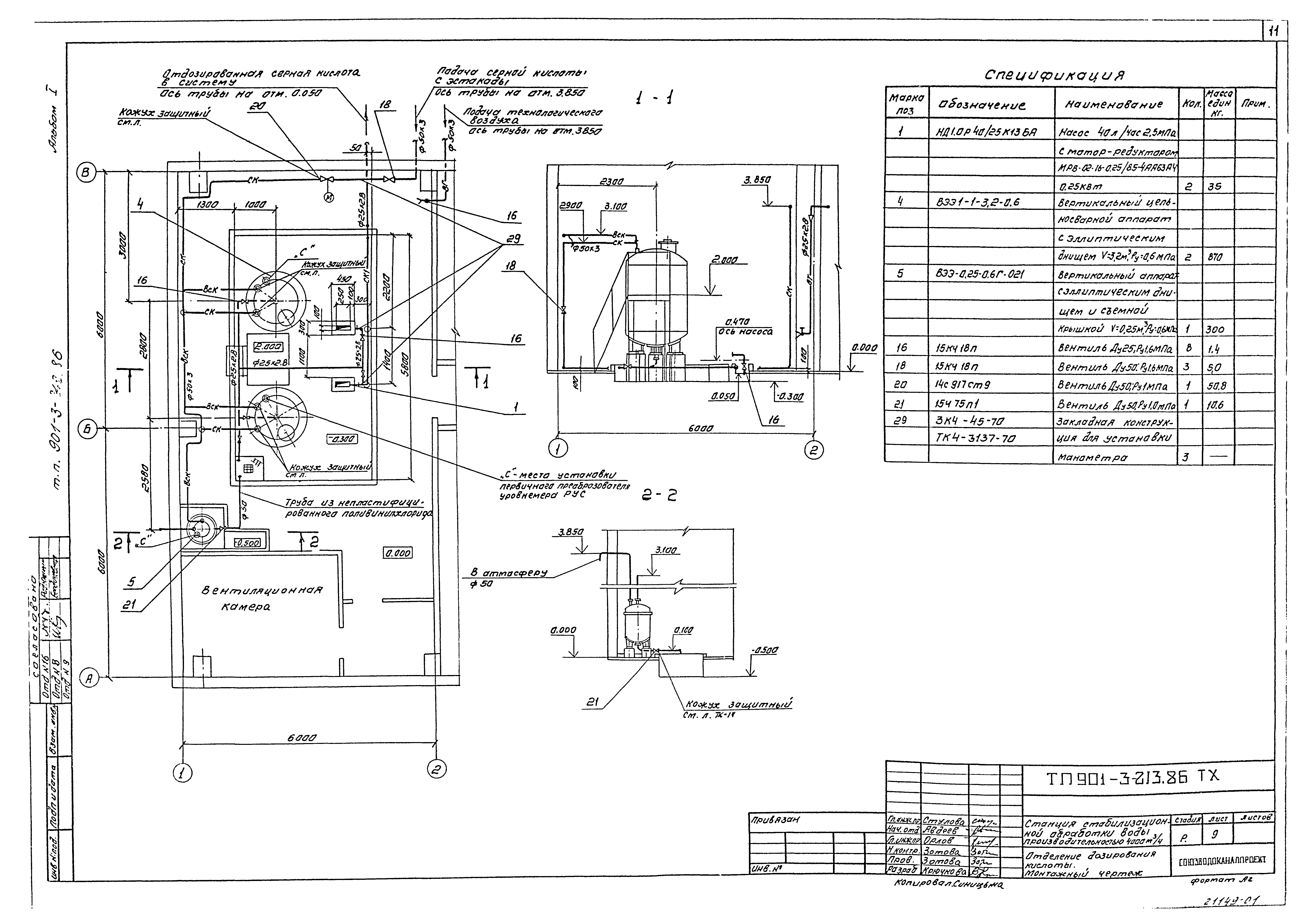
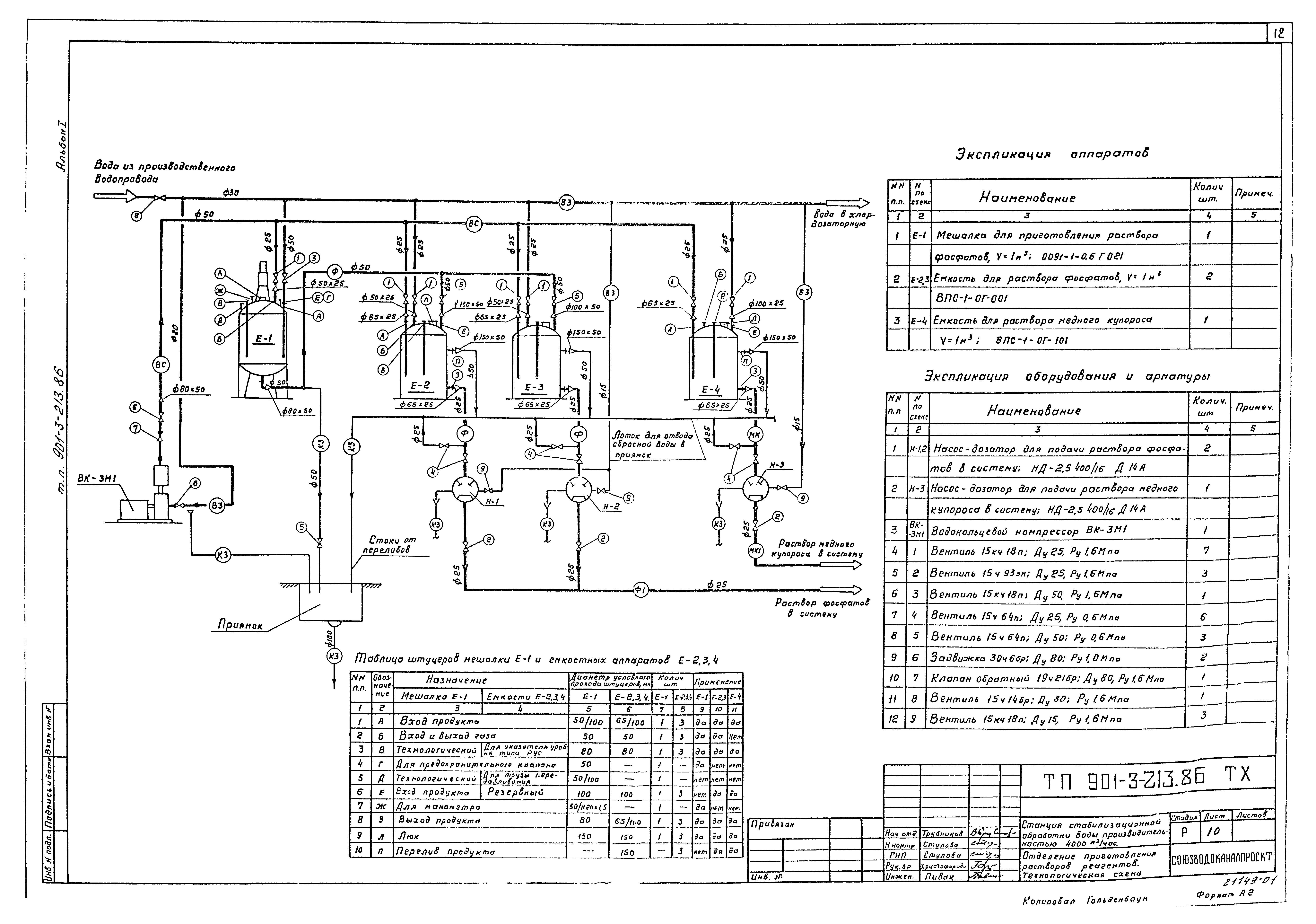
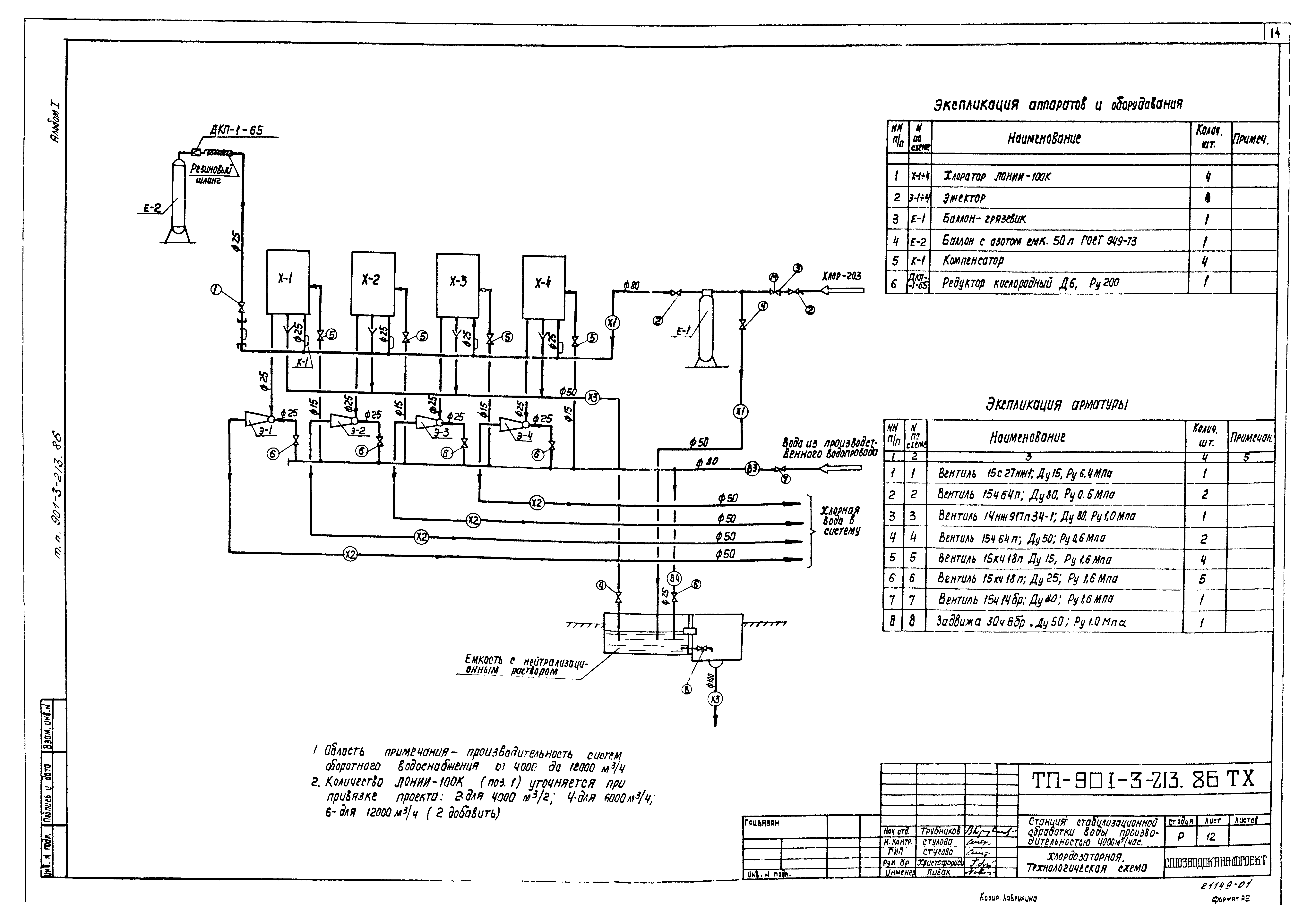
Скачать Типовой проект 901-3-213.86 Альбом I. Технологические чертежи. Водопровод и канализацияДата актуализации: 01.01.2021
|
| Обозначение: | Типовой проект 901-3-213.86 |
| Обозначение англ: | 901-3-213.86 |
| Статус: | отменен |
| Название рус.: | Альбом I. Технологические чертежи. Водопровод и канализация |
| Дата добавления в базу: | 12.02.2016 |
| Дата актуализации: | 01.01.2021 |
| Дата введения: | 24.03.1986 |
| Дата окончания срока действия: | 01.01.1994 |
| Разработан: | Союзводоканалпроект |
| Утверждён: | 30.12.1985 Госстрой СССР (19/5-3583) |
| Издан: | ЦИТП Госстроя СССР (CITP, Gosstroy (USSR) 1986 г. ) |
| Заменяет собой: |
|




















