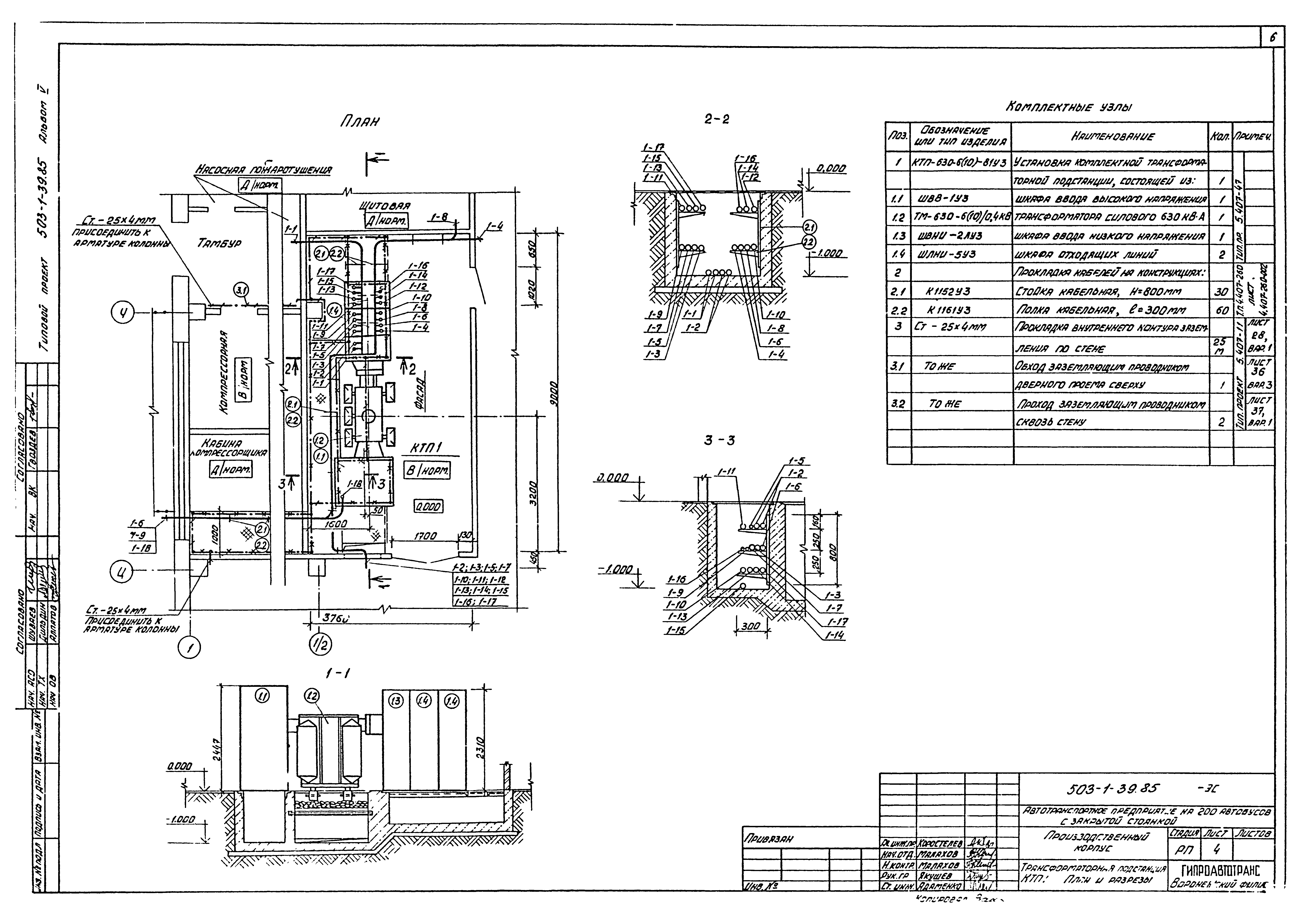
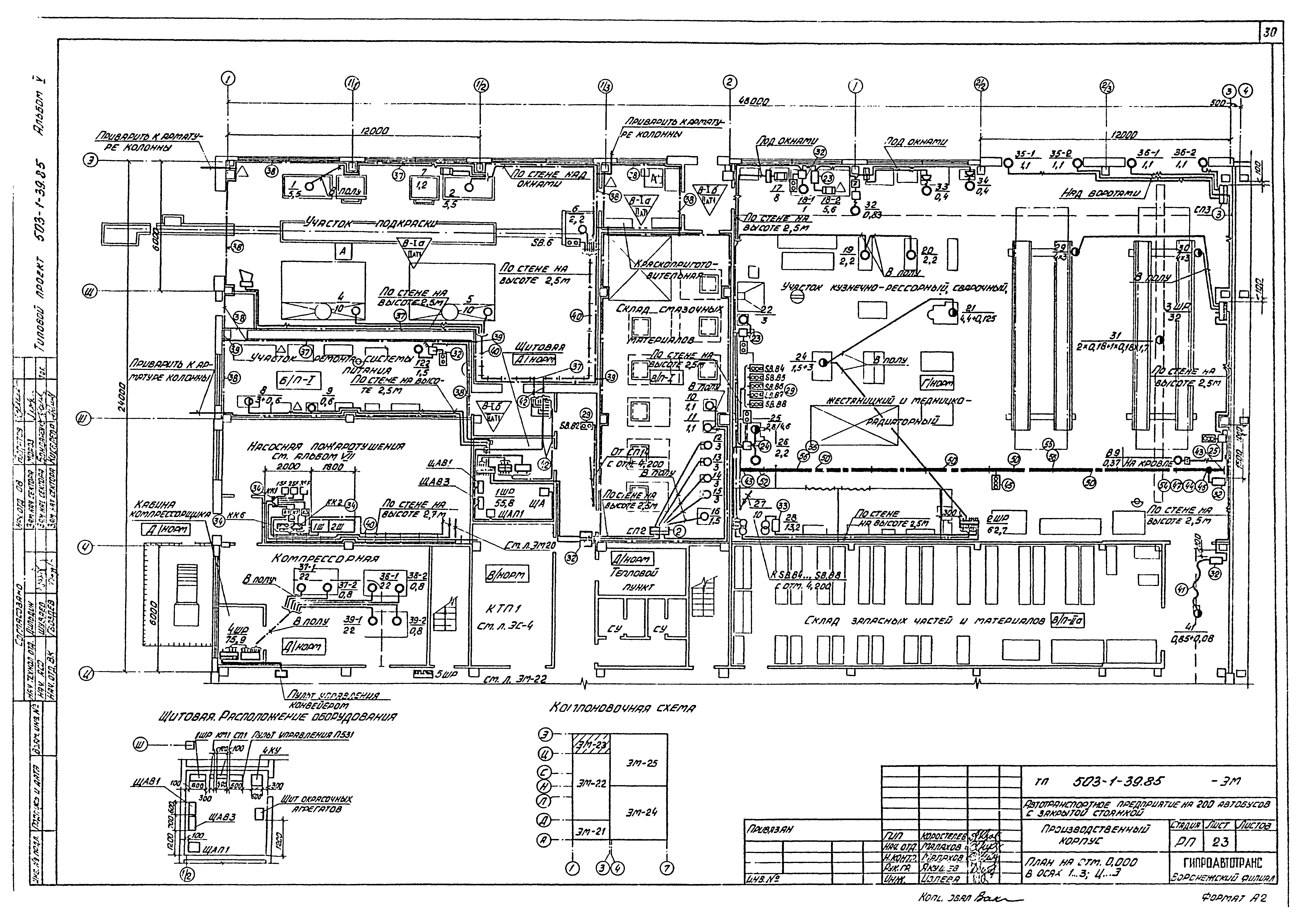
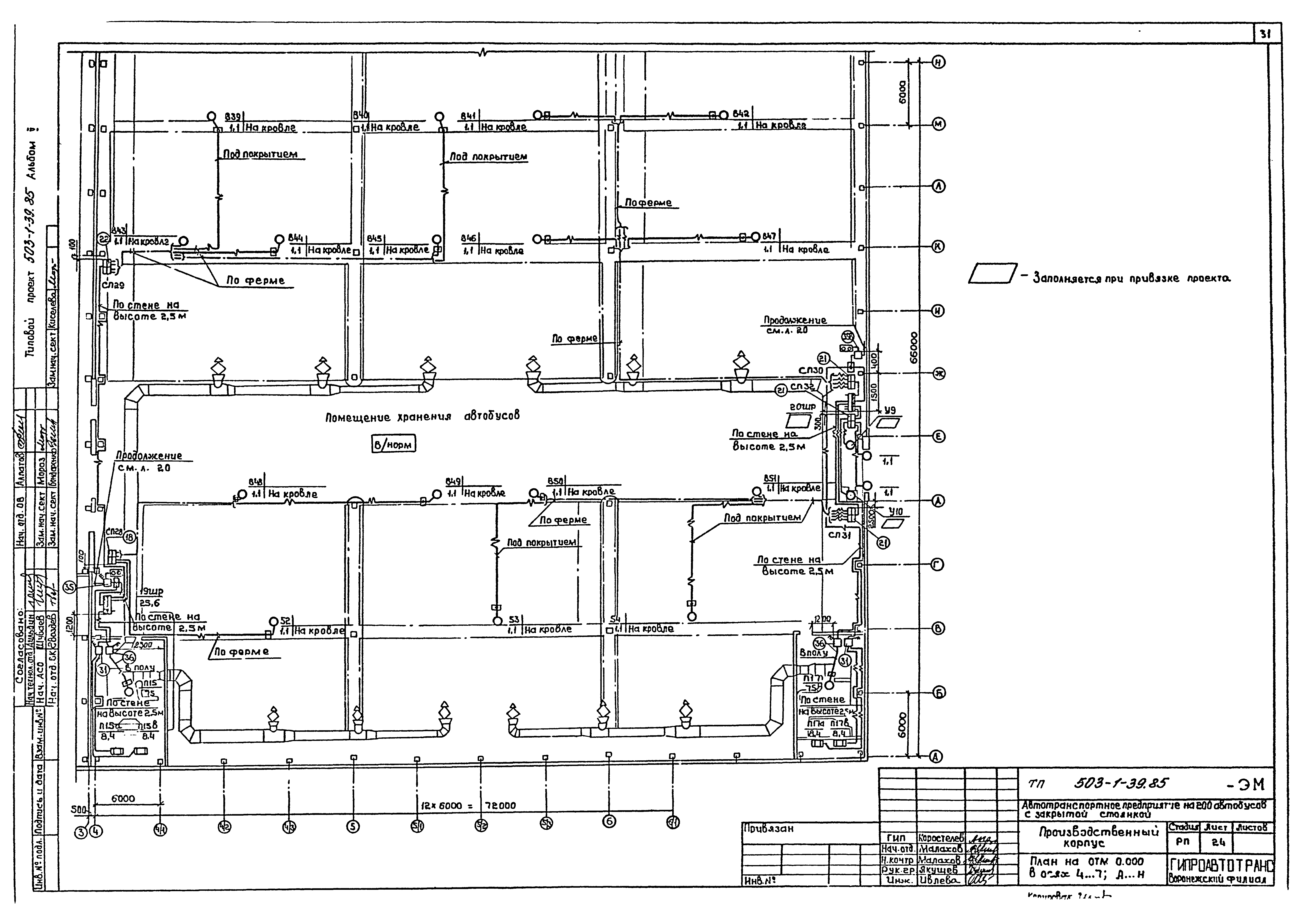
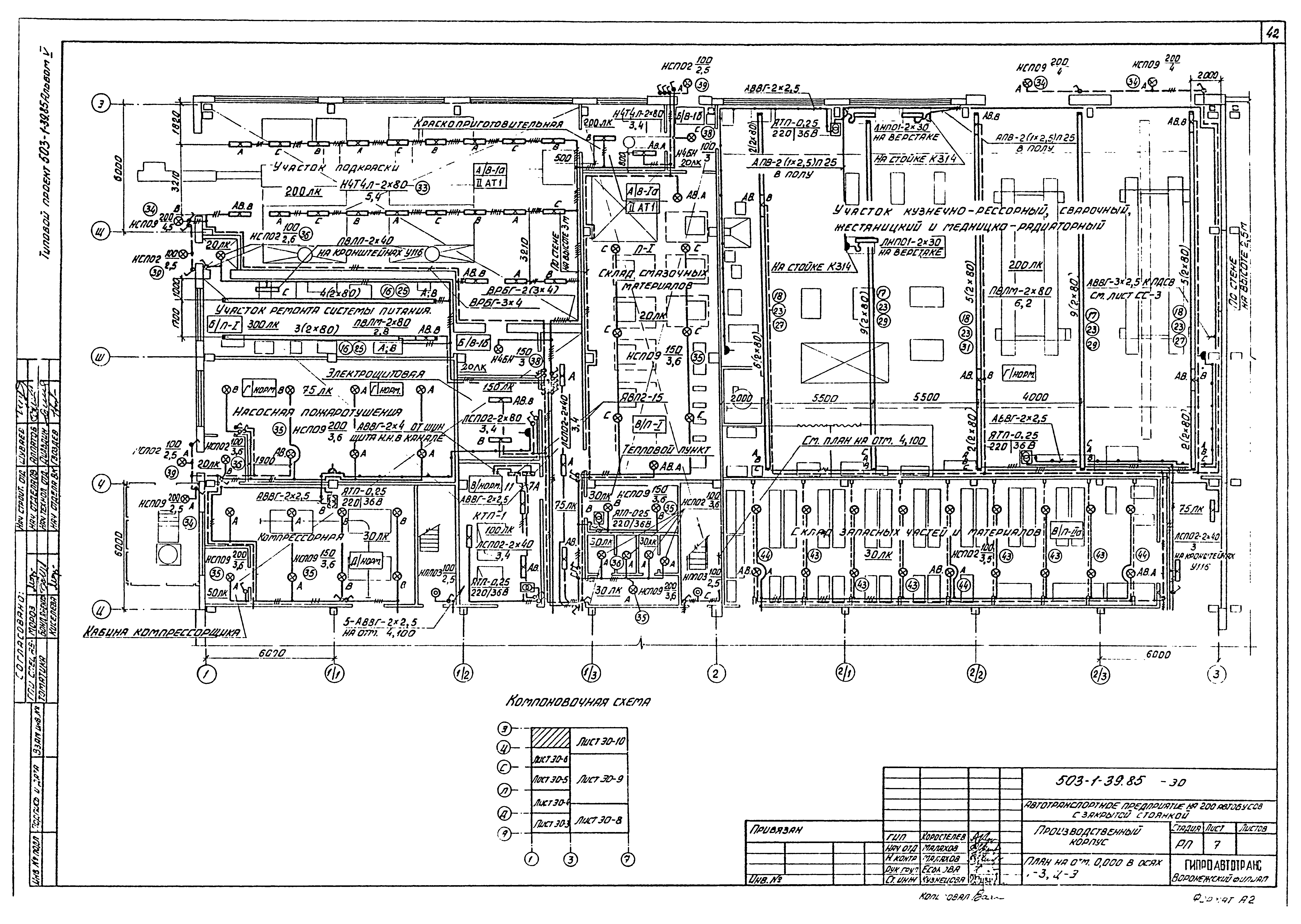
Скачать Типовой проект 503-1-39.85 Альбом V. Электроснабжение, электрооборудование, связь и сигнализацияДата актуализации: 01.01.2021 Типовой проект 503-1-39.85
Альбом V. Электроснабжение, электрооборудование, связь и сигнализация| Обозначение: | Типовой проект 503-1-39.85 | | Обозначение англ: | 503-1-39.85 | | Статус: | действует | | Название рус.: | Альбом V. Электроснабжение, электрооборудование, связь и сигнализация | | Дата добавления в базу: | 12.02.2016 | | Дата актуализации: | 01.01.2021 | | Дата введения: | 18.01.1985 | | Разработан: | Воронежский филиал Гипроавтотранс
| | Утверждён: | 18.01.1985 Минавтотранс РСФСР (Russian Federation Minavtotrans 9)
| | Издан: | ЦИТП Госстроя СССР (CITP, Gosstroy (USSR) 1986 г. )
|
                                                     
|