Скачать Типовой проект 503-3-12.86 Альбом V. Чертежи задания заводу-изготовителю на автоматизацию

Дата актуализации: 01.01.2021

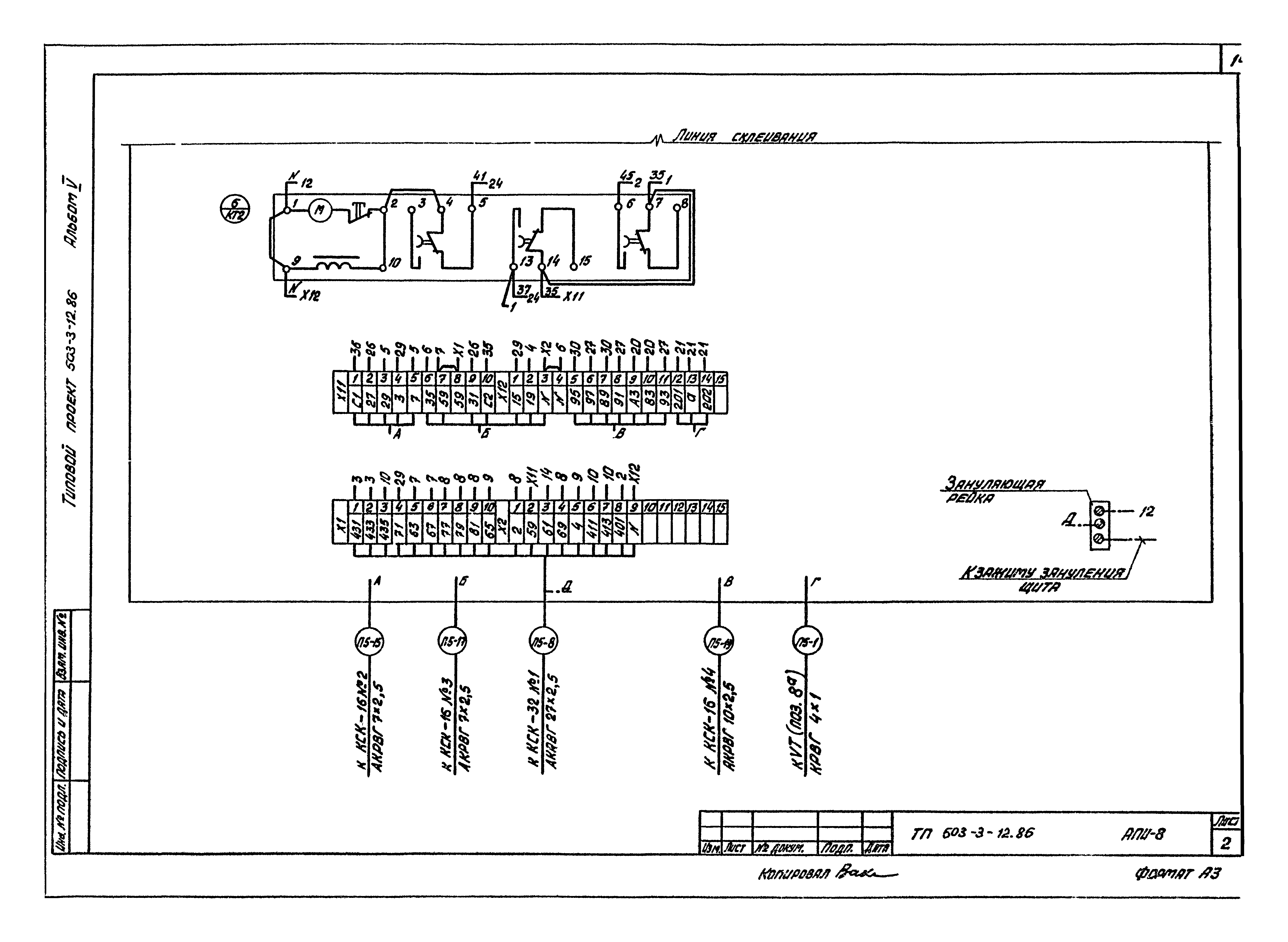
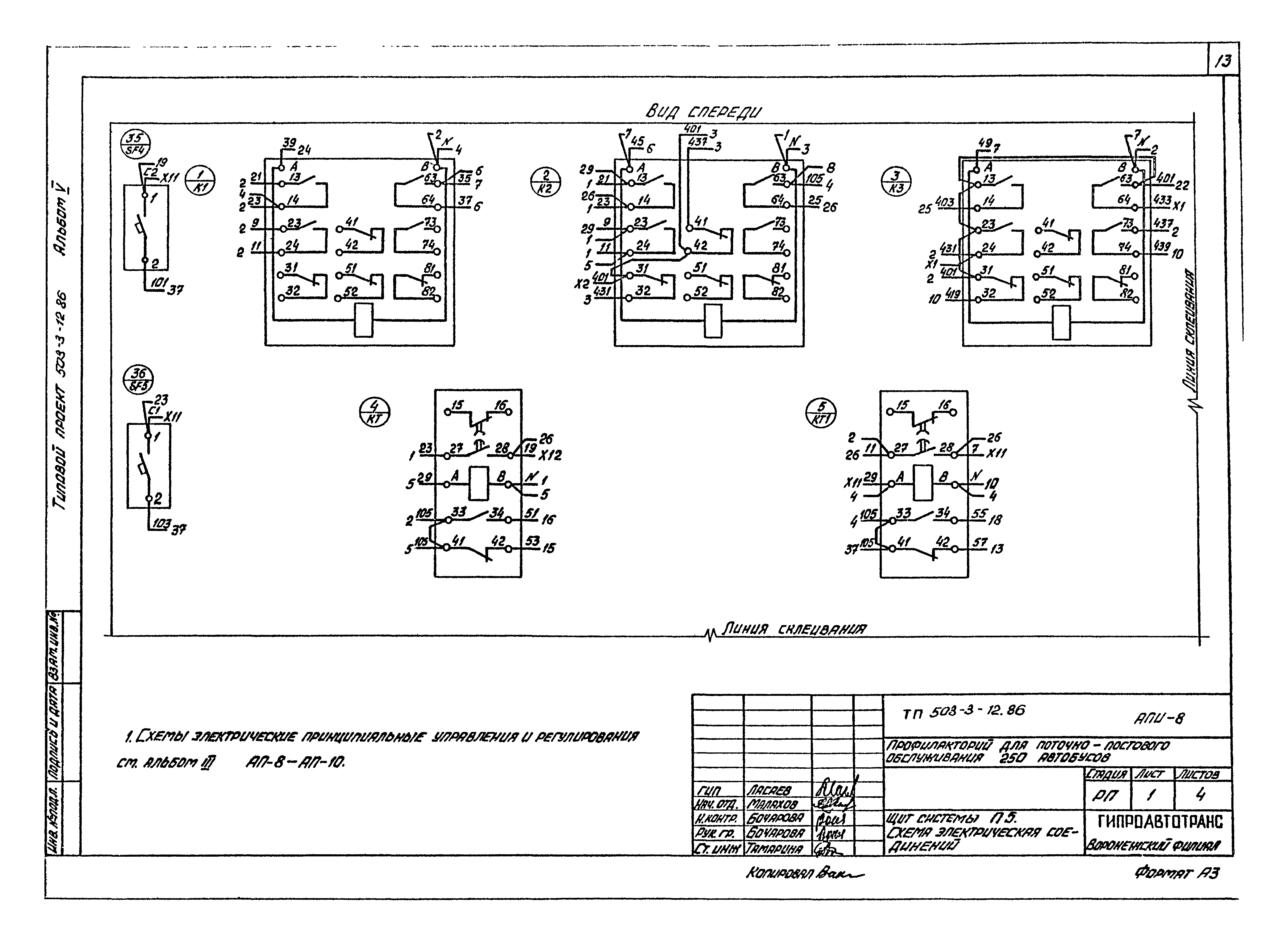
Типовой проект 503-3-12.86

Альбом V. Чертежи задания заводу-изготовителю на автоматизацию

Обозначение: Типовой проект 503-3-12.86
Обозначение англ: 503-3-12.86
Статус:действует
Название рус.:Альбом V. Чертежи задания заводу-изготовителю на автоматизацию
Дата добавления в базу:12.02.2016
Дата актуализации:01.01.2021
Дата введения:31.05.1985
Разработан: Воронежский филиал Гипроавтотранс
Утверждён:31.05.1985 Минавтотранс РСФСР (Russian Federation Minavtotrans 24)
Издан: ЦИТП Госстроя СССР (CITP, Gosstroy (USSR) 1986 г. )
Заменяет собой:
  • Типовой проект 503-143 «Профилакторий для поточного обслуживания 250 автобусов»
Типовой проект 503-3-12.86Типовой проект 503-3-12.86Типовой проект 503-3-12.86Типовой проект 503-3-12.86Типовой проект 503-3-12.86Типовой проект 503-3-12.86Типовой проект 503-3-12.86Типовой проект 503-3-12.86Типовой проект 503-3-12.86Типовой проект 503-3-12.86Типовой проект 503-3-12.86Типовой проект 503-3-12.86Типовой проект 503-3-12.86Типовой проект 503-3-12.86Типовой проект 503-3-12.86Типовой проект 503-3-12.86Типовой проект 503-3-12.86Типовой проект 503-3-12.86Типовой проект 503-3-12.86Типовой проект 503-3-12.86Типовой проект 503-3-12.86Типовой проект 503-3-12.86Типовой проект 503-3-12.86Типовой проект 503-3-12.86