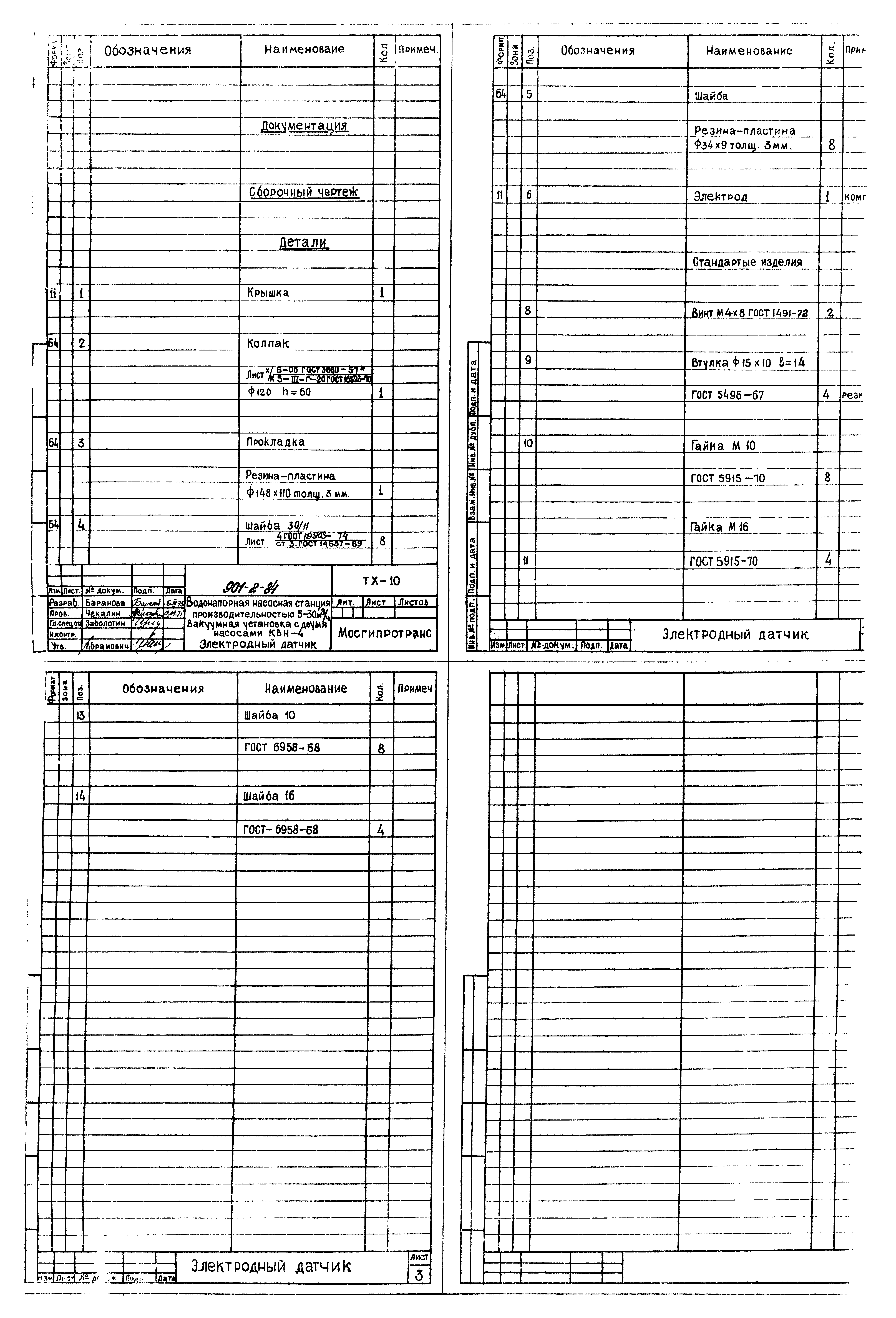
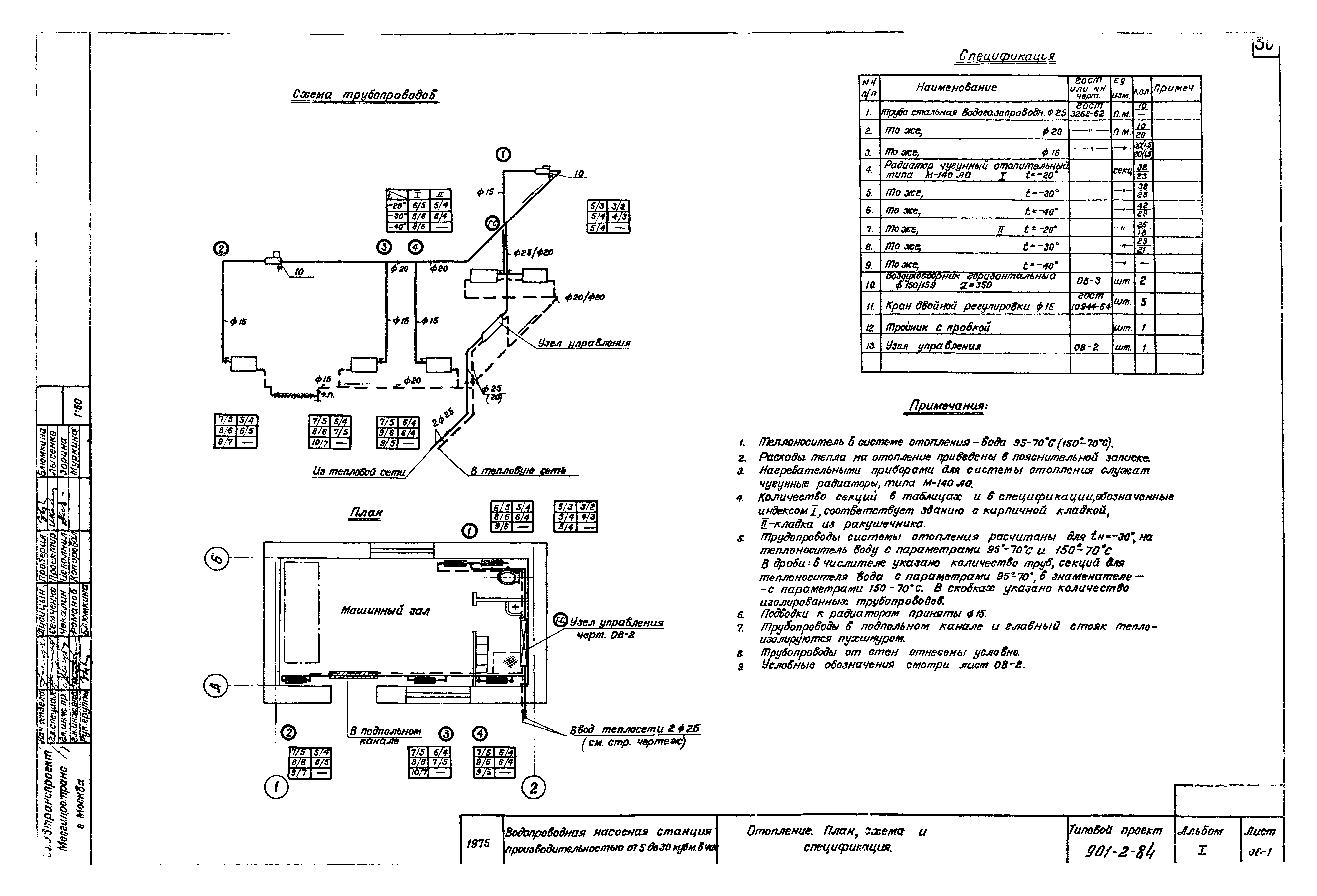
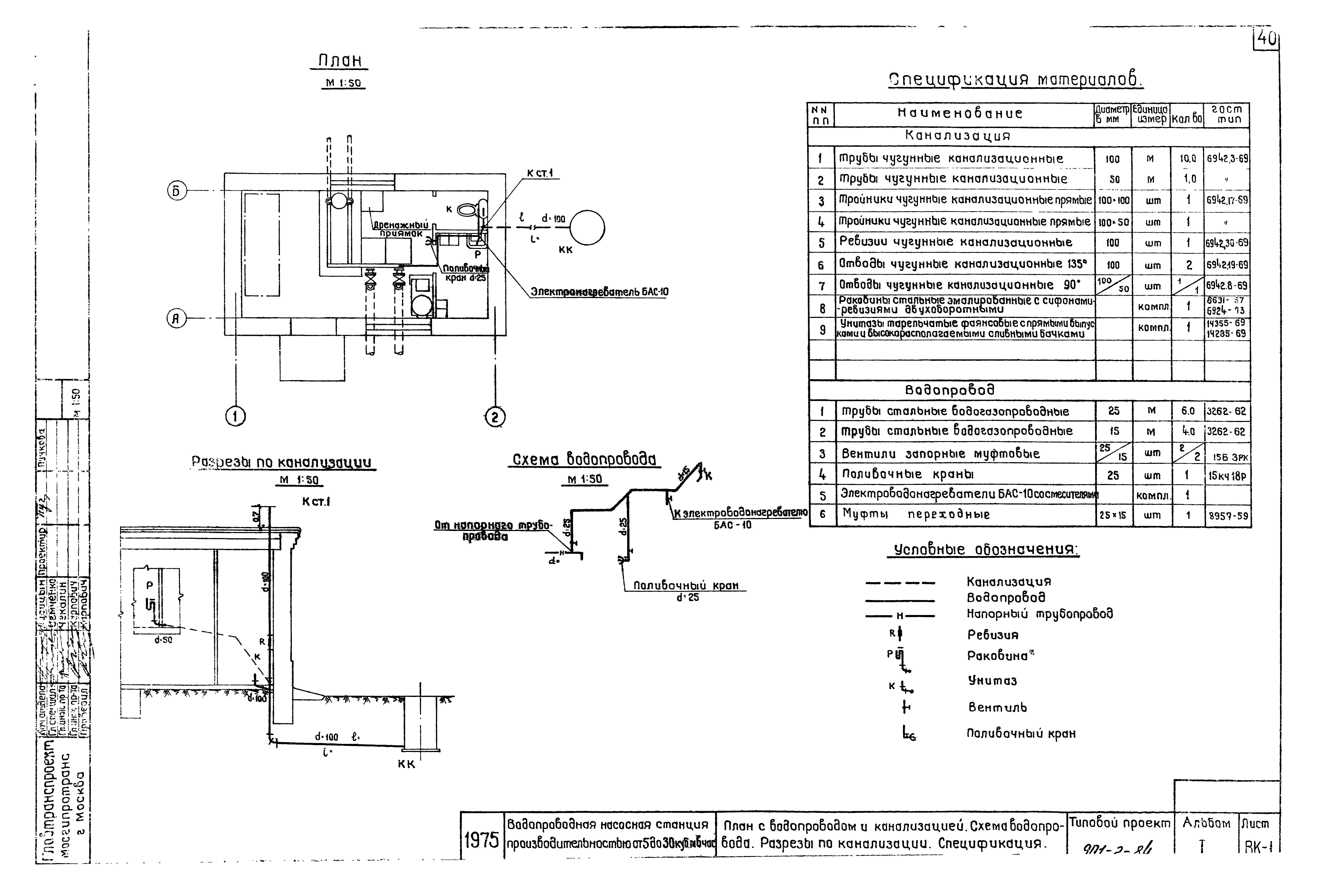
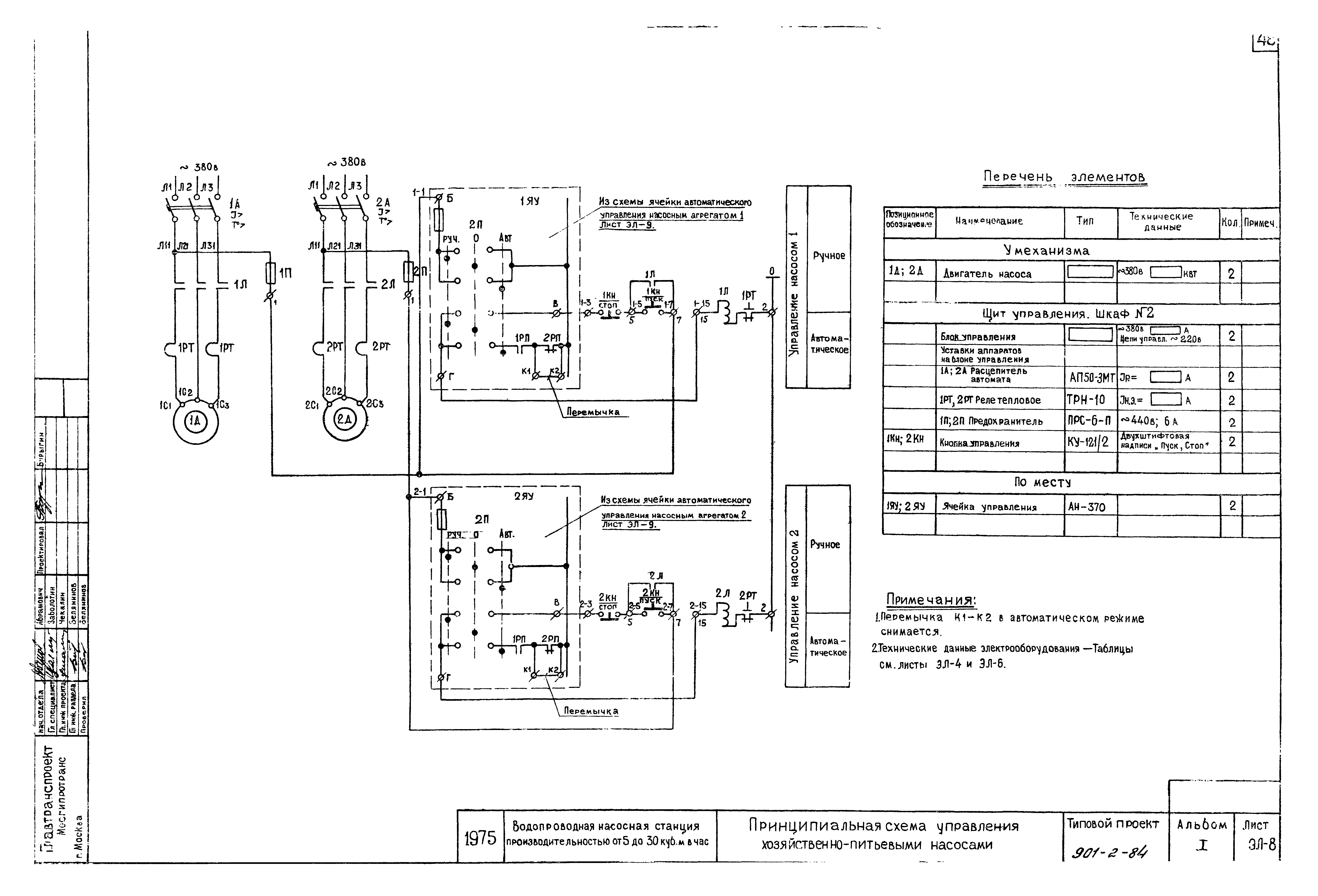
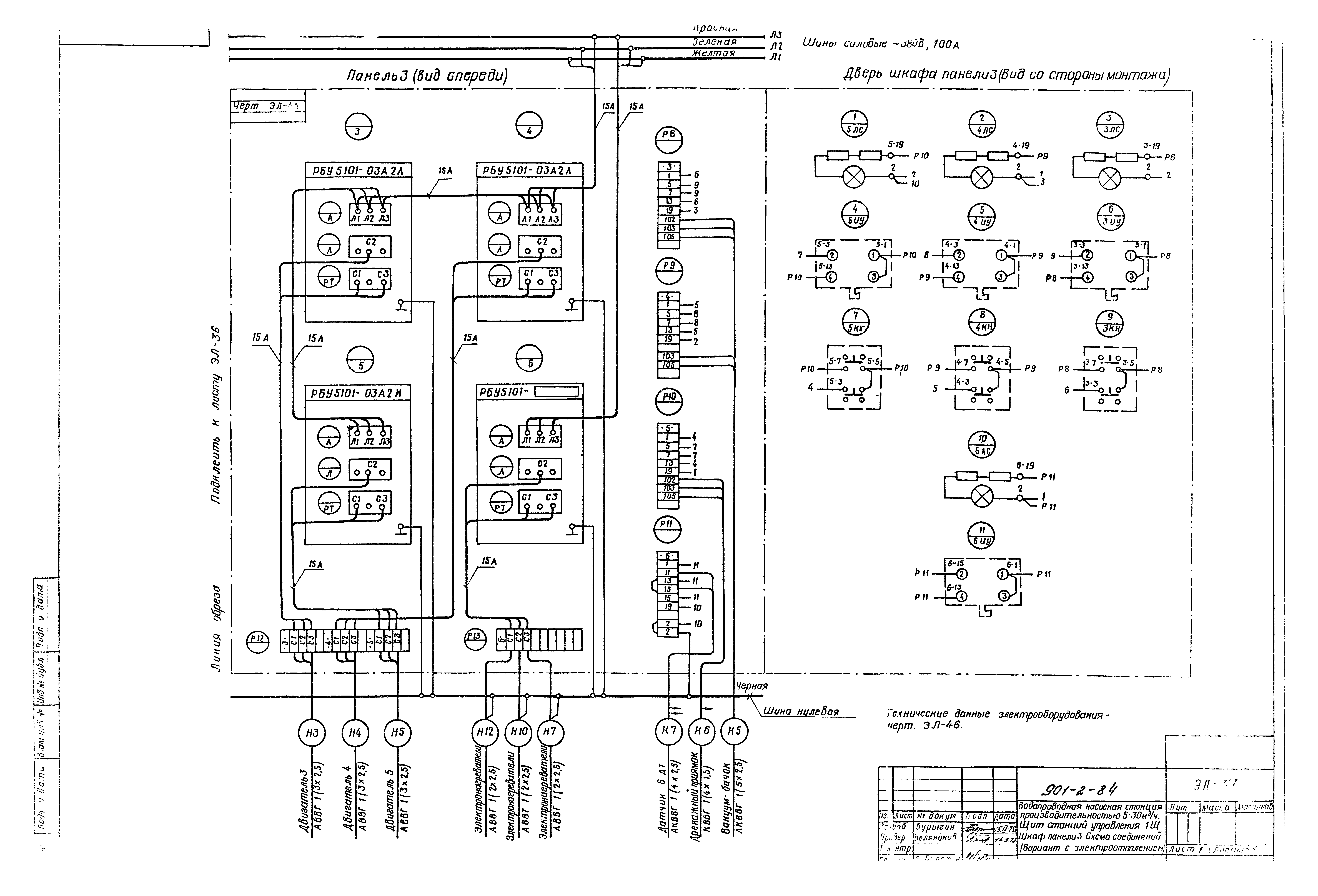
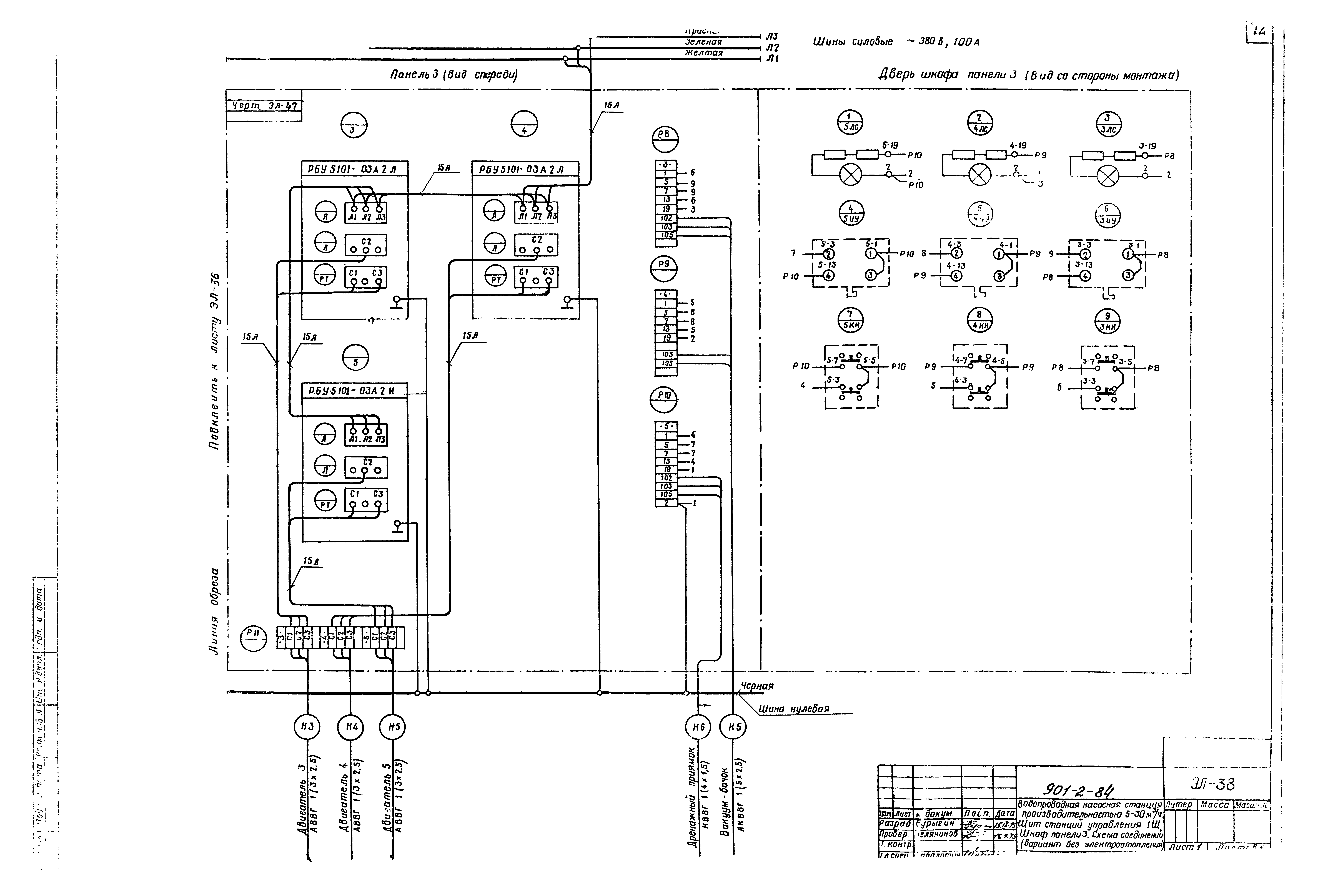
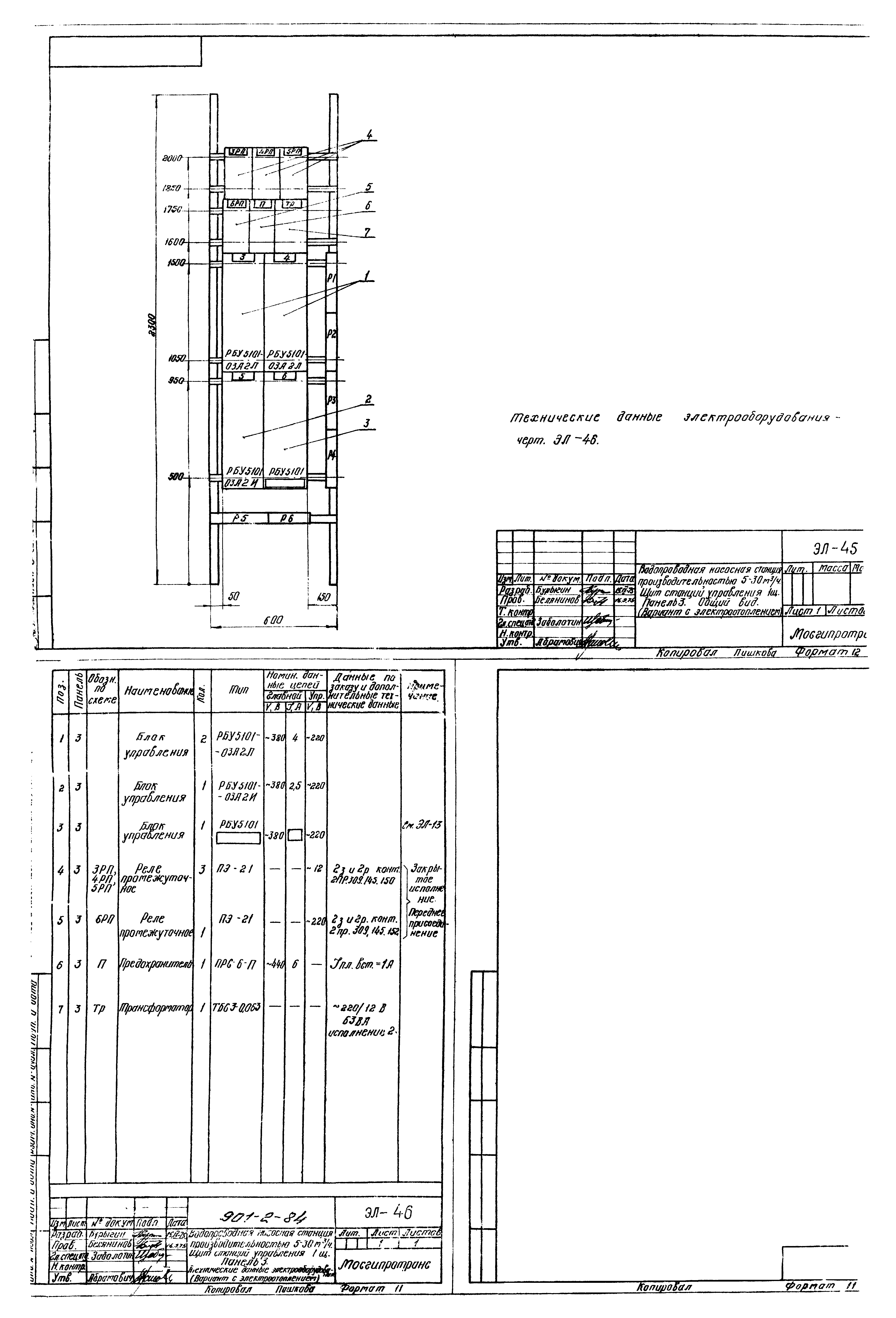
Скачать Типовой проект 901-2-84 Альбом I. Архитектурно-строительная, технологическая, санитарно-техническая и электрическая частиДата актуализации: 01.01.2021 Типовой проект 901-2-84
Альбом I. Архитектурно-строительная, технологическая, санитарно-техническая и электрическая части| Обозначение: | Типовой проект 901-2-84 | | Обозначение англ: | 901-2-84 | | Статус: | не действует | | Название рус.: | Альбом I. Архитектурно-строительная, технологическая, санитарно-техническая и электрическая части | | Дата добавления в базу: | 12.02.2016 | | Дата актуализации: | 01.01.2021 | | Дата введения: | 01.02.1977 | | Дата окончания срока действия: | 01.01.1986 | | Разработан: | Мосгипротранс
| | Утверждён: | 31.12.1976 Министерство путей сообщения СССР (USSR Ministry of Railroads П41067)
| | Издан: | ЦИТП Госстроя СССР (CITP, Gosstroy (USSR) 1977 г. )
| | Заменяет собой: | |
                                                                              
|