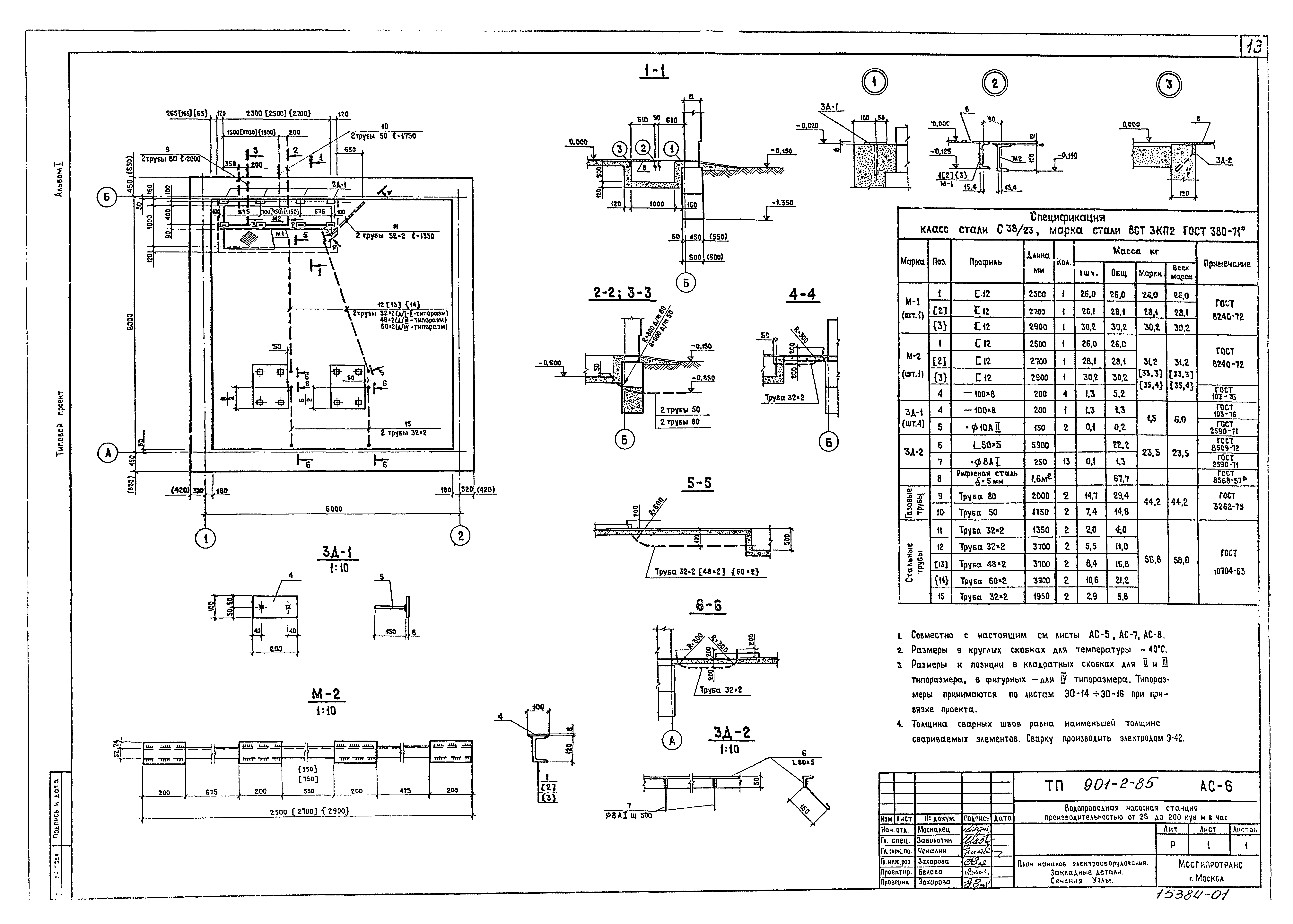
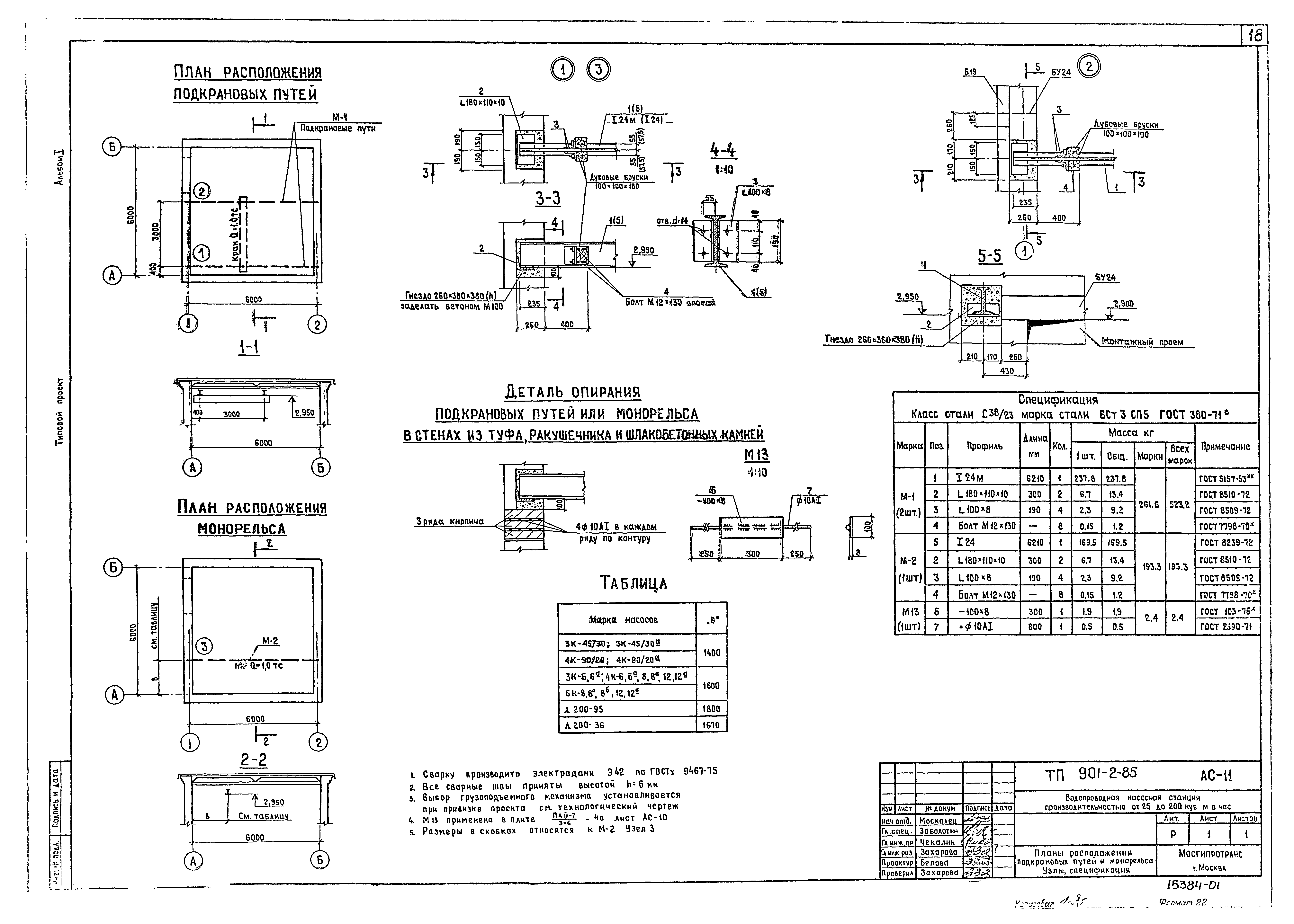
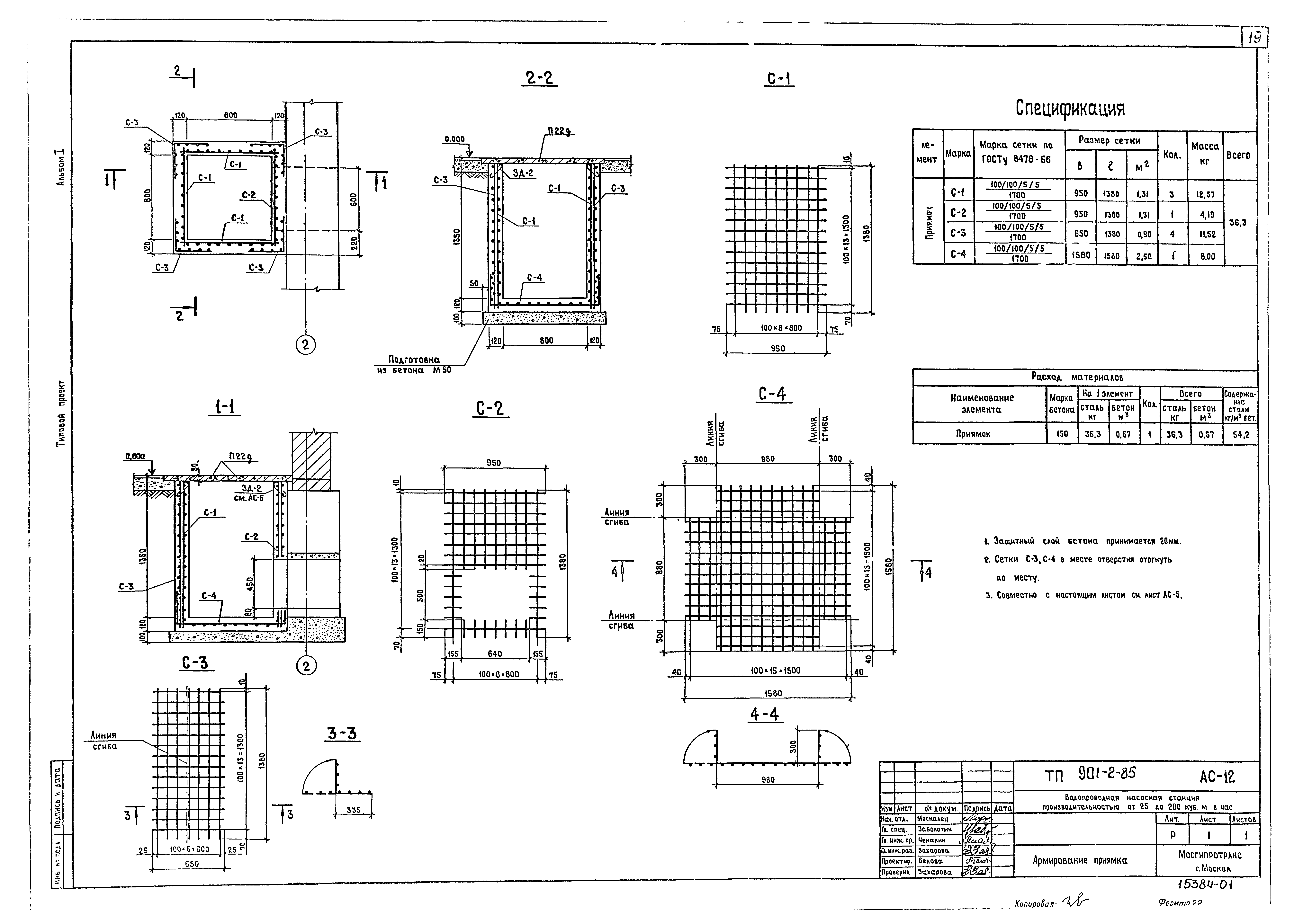
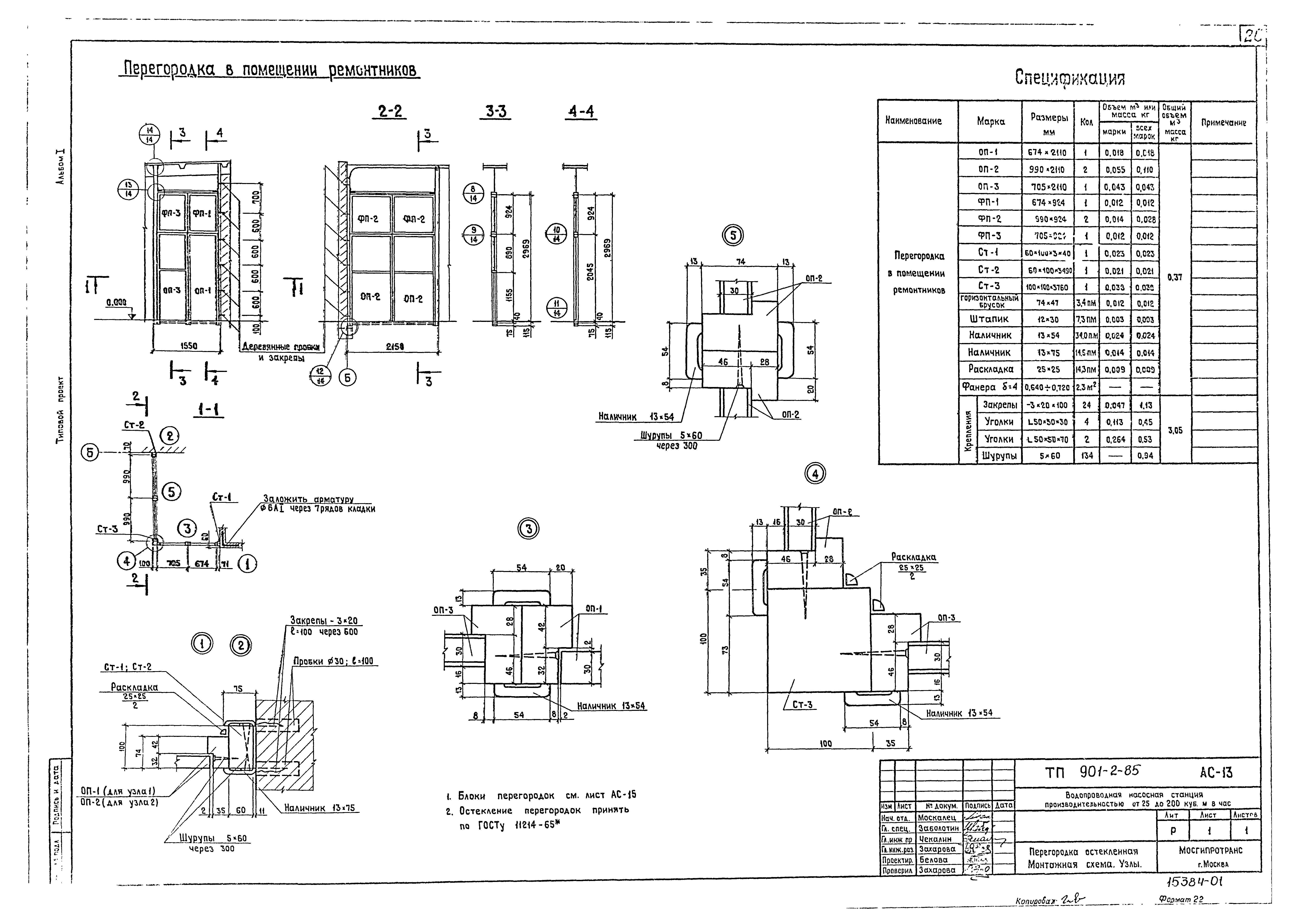
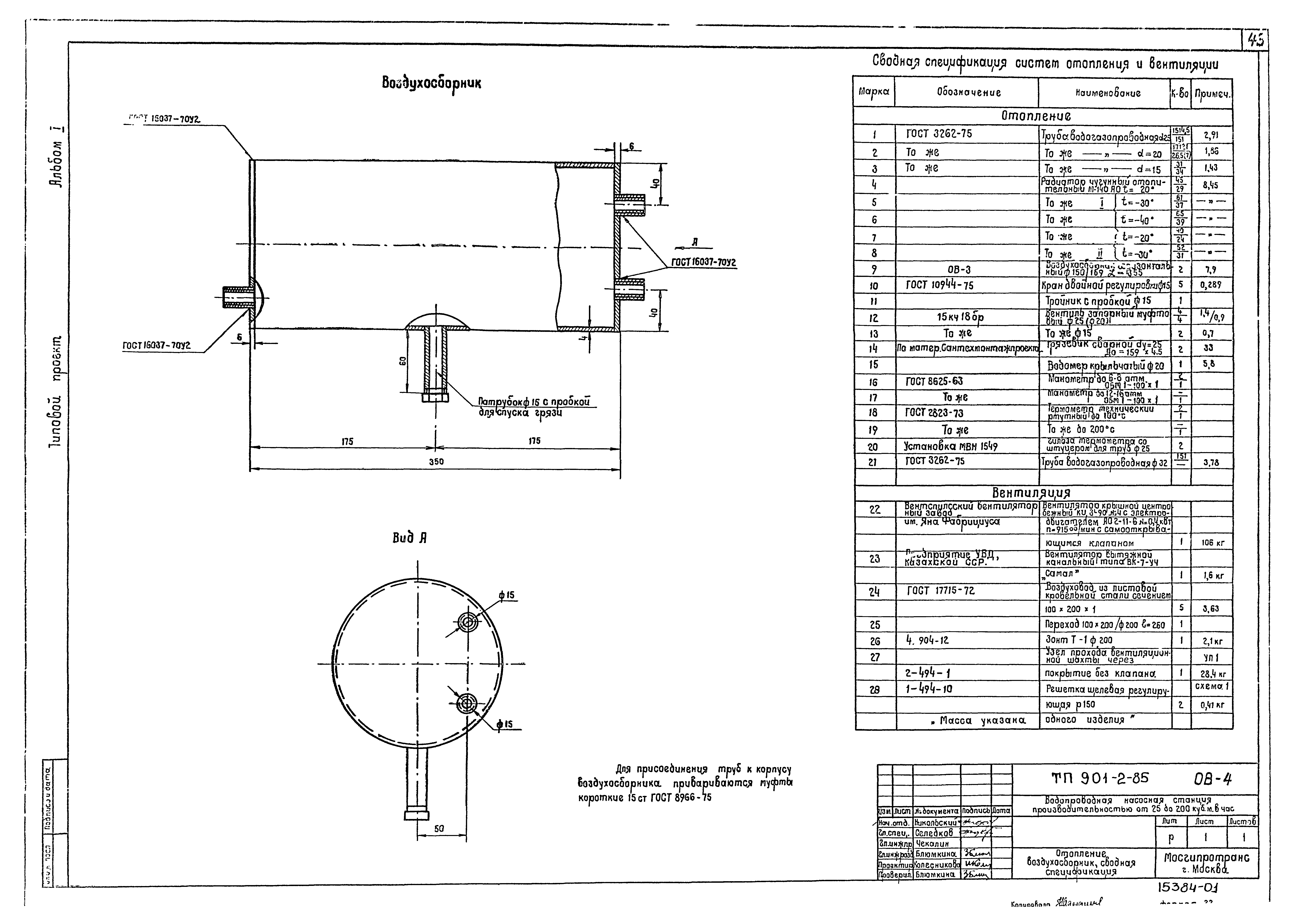
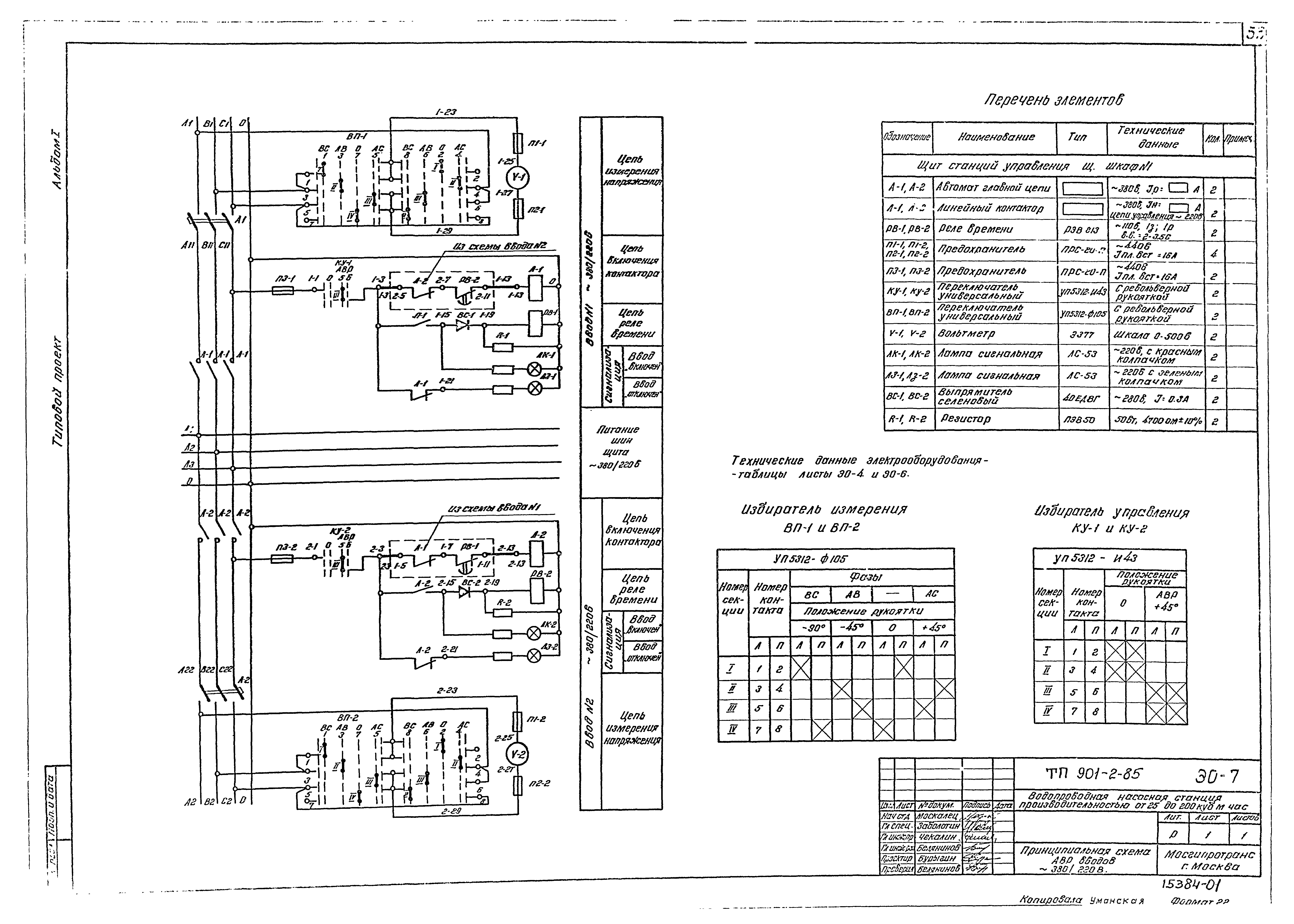
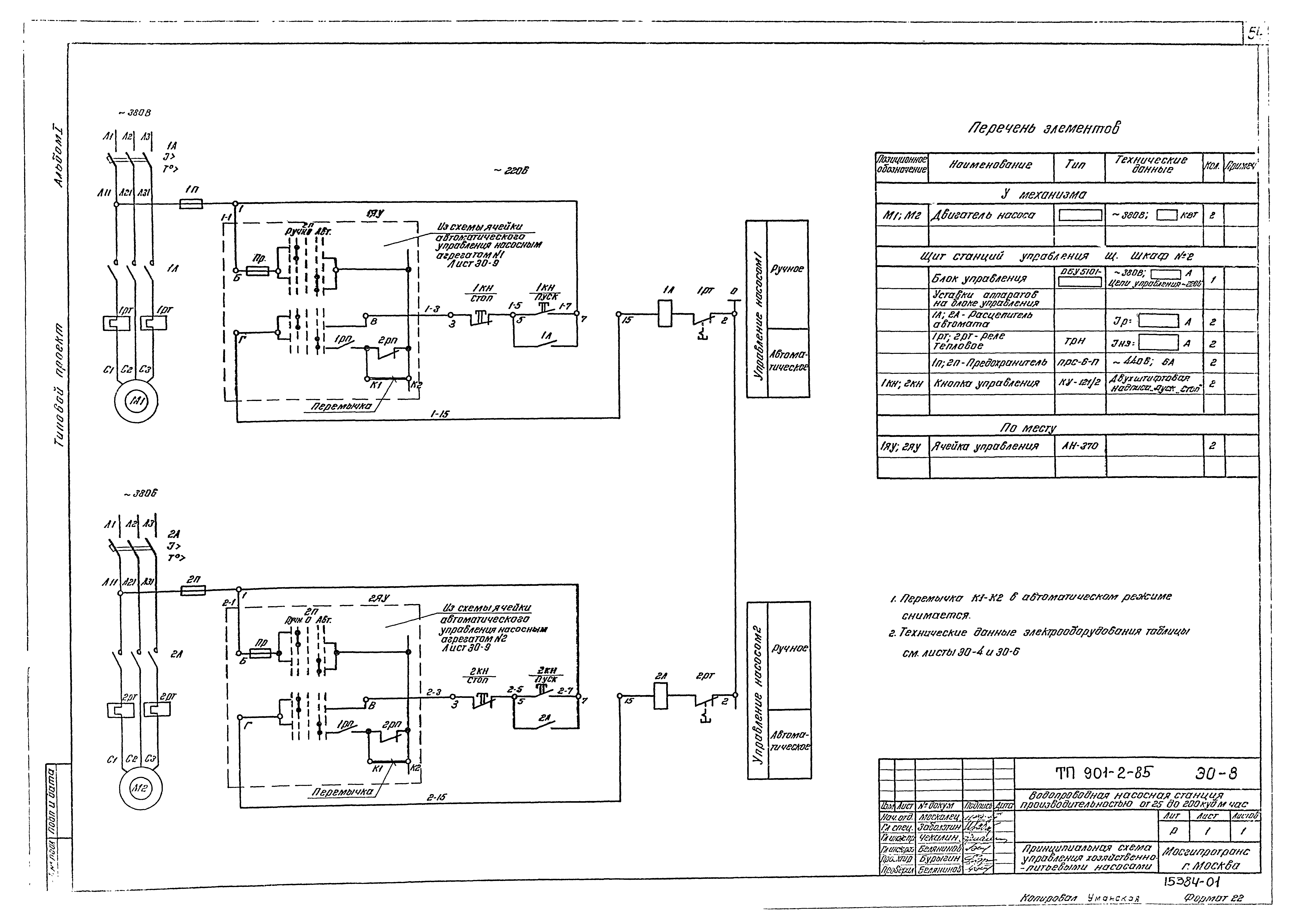
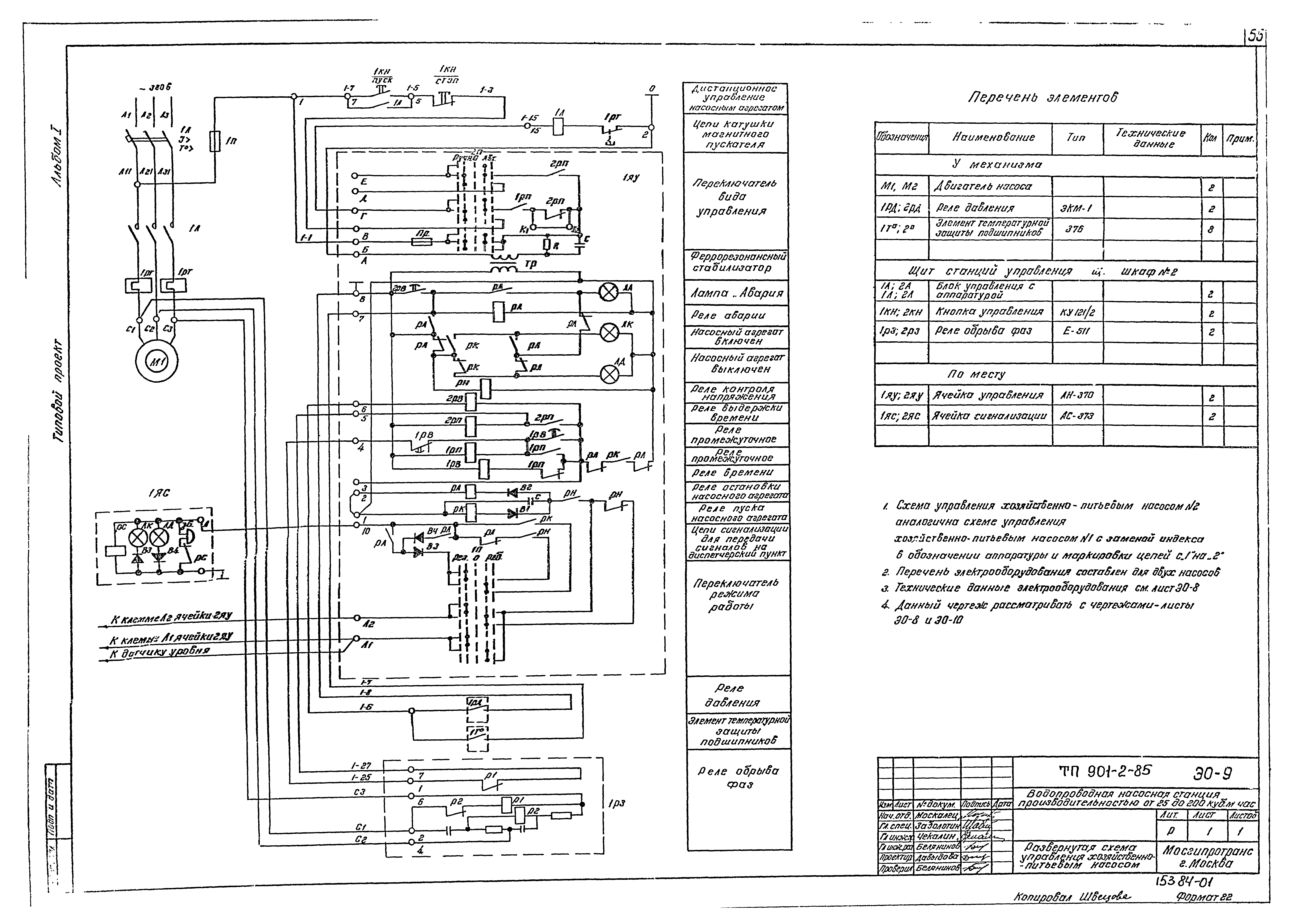
Скачать Типовой проект 901-2-85 Альбом I. Архитектурно-строительная, технологическая, санитарно-техническая и электрическая частиДата актуализации: 01.01.2021 Типовой проект 901-2-85
Альбом I. Архитектурно-строительная, технологическая, санитарно-техническая и электрическая части| Обозначение: | Типовой проект 901-2-85 | | Обозначение англ: | 901-2-85 | | Статус: | отменен | | Название рус.: | Альбом I. Архитектурно-строительная, технологическая, санитарно-техническая и электрическая части | | Дата добавления в базу: | 12.02.2016 | | Дата актуализации: | 01.01.2021 | | Дата введения: | 01.03.1978 | | Дата окончания срока действия: | 01.01.1986 | | Разработан: | Мосгипротранс
| | Утверждён: | 30.12.1977 Министерство путей сообщения СССР (USSR Ministry of Railroads П41208)
| | Издан: | ЦИТП Госстроя СССР (CITP, Gosstroy (USSR) 1983 г. )
| | Заменяет собой: | |
                                                                   
|