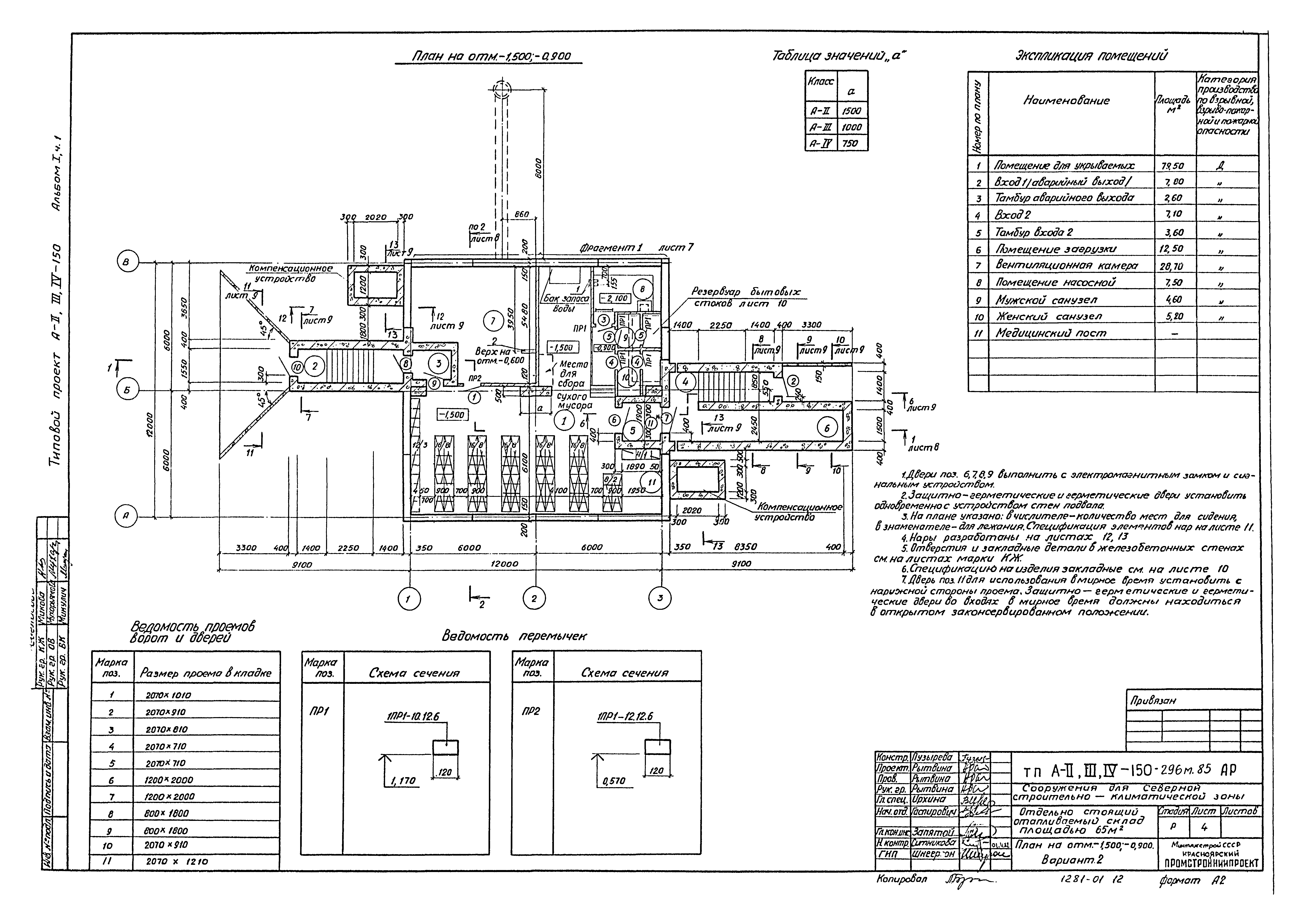
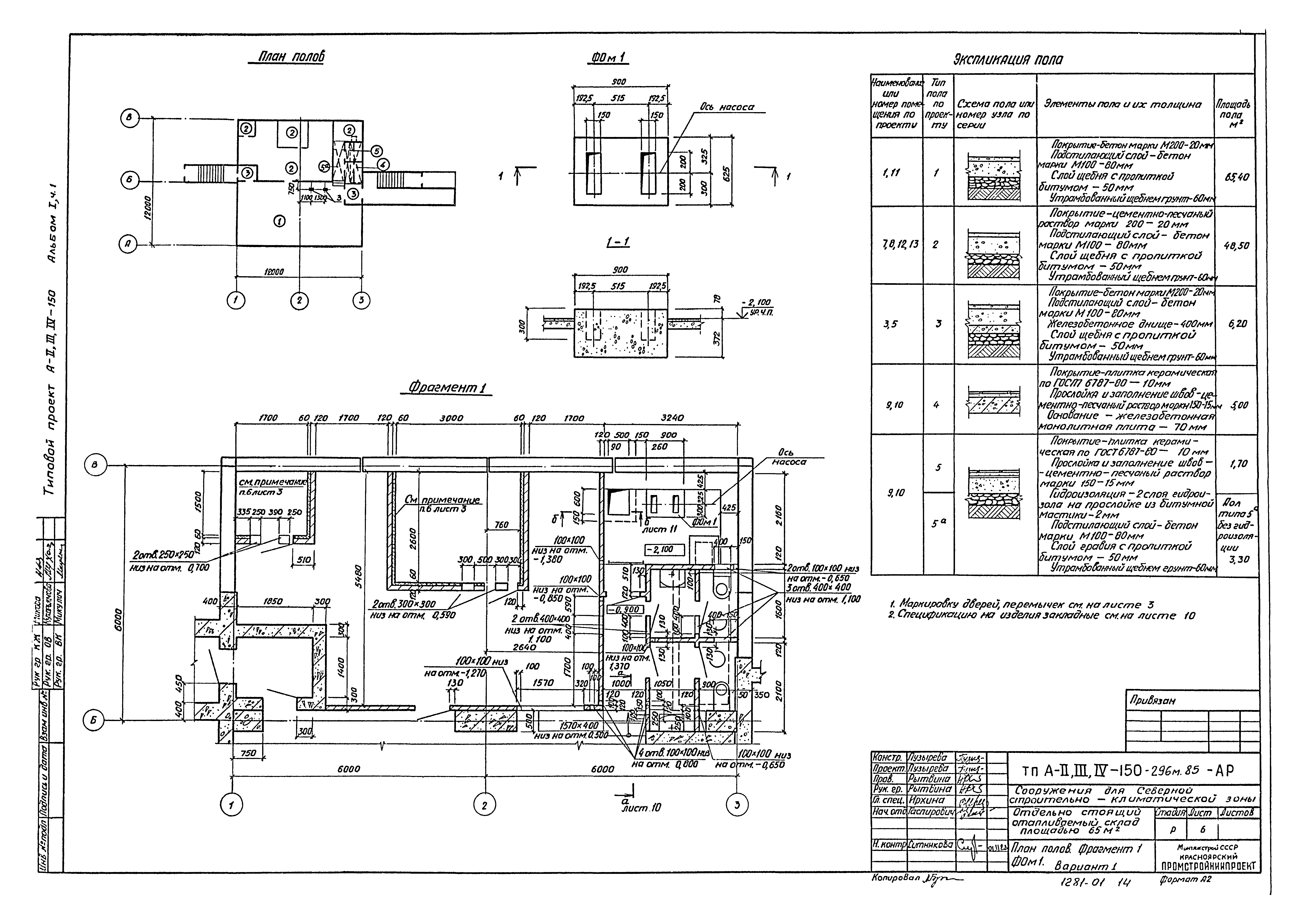
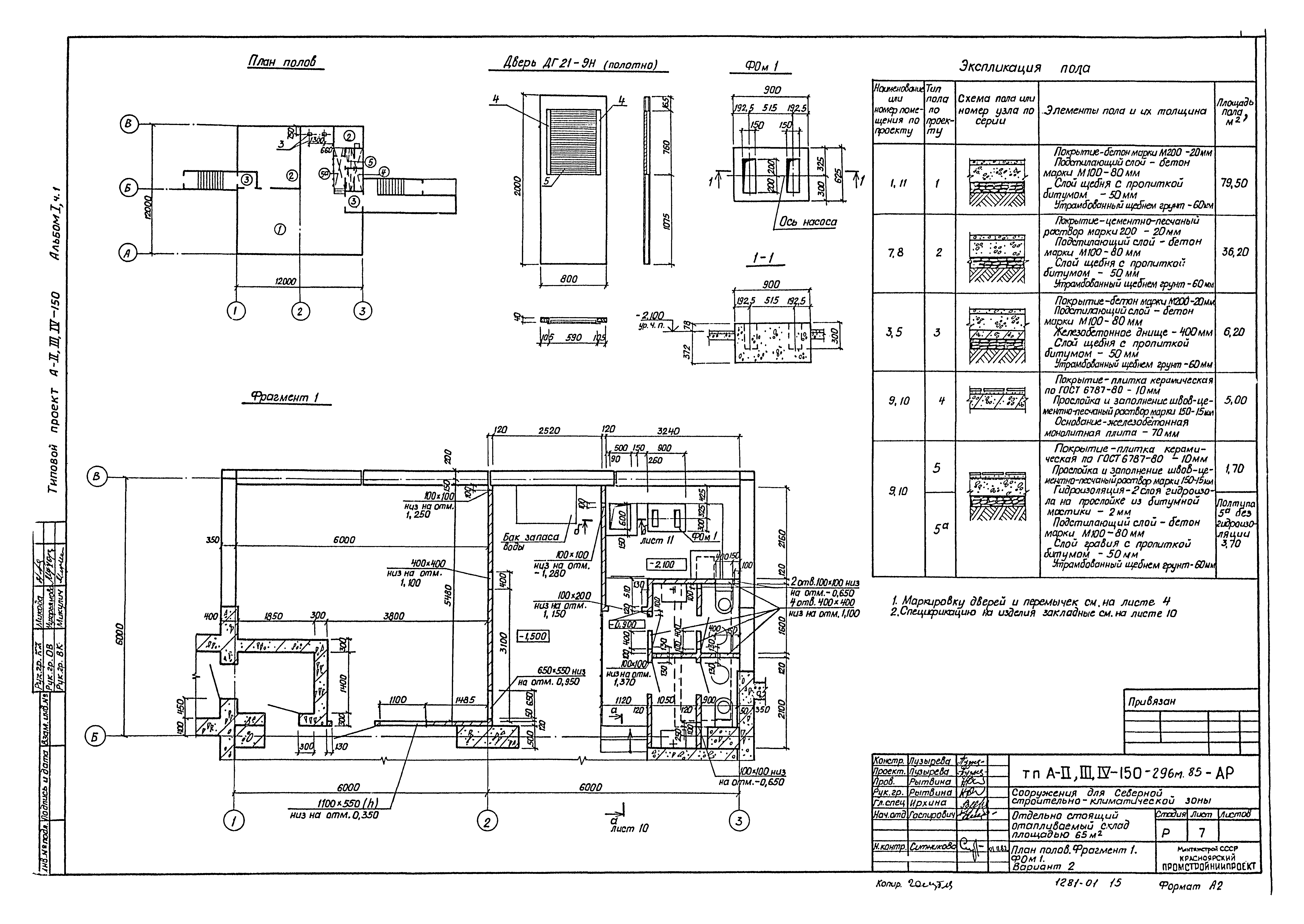
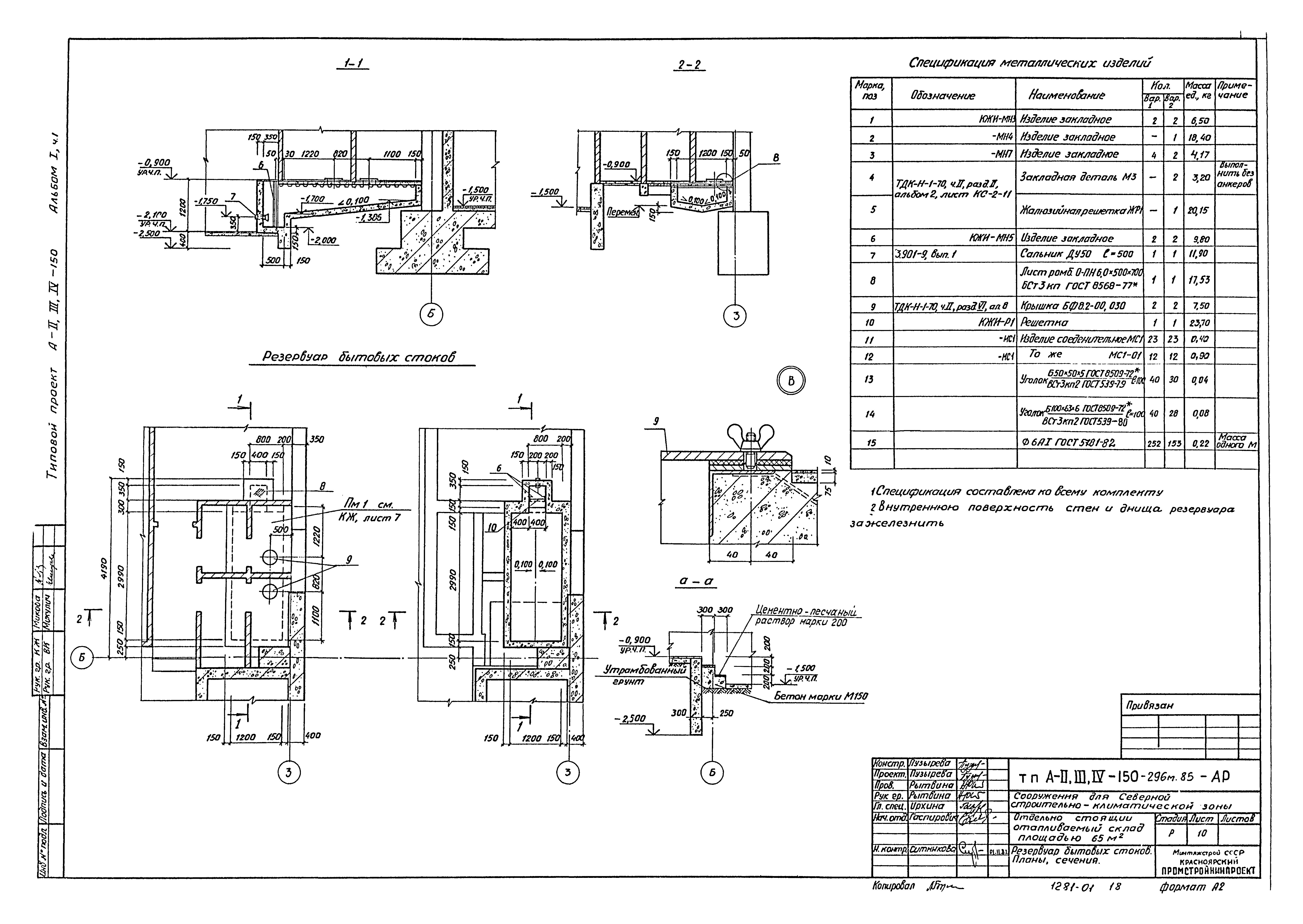
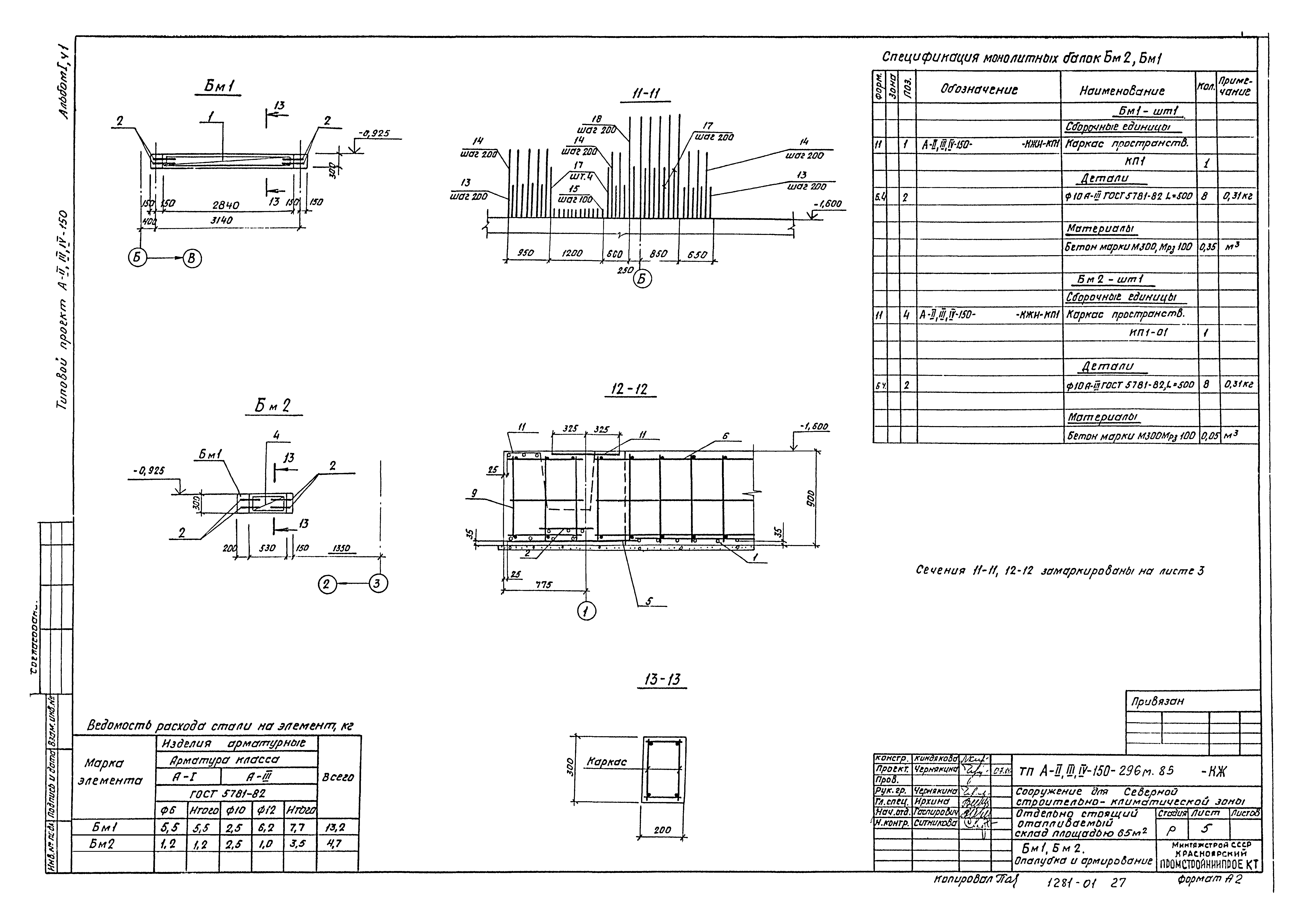
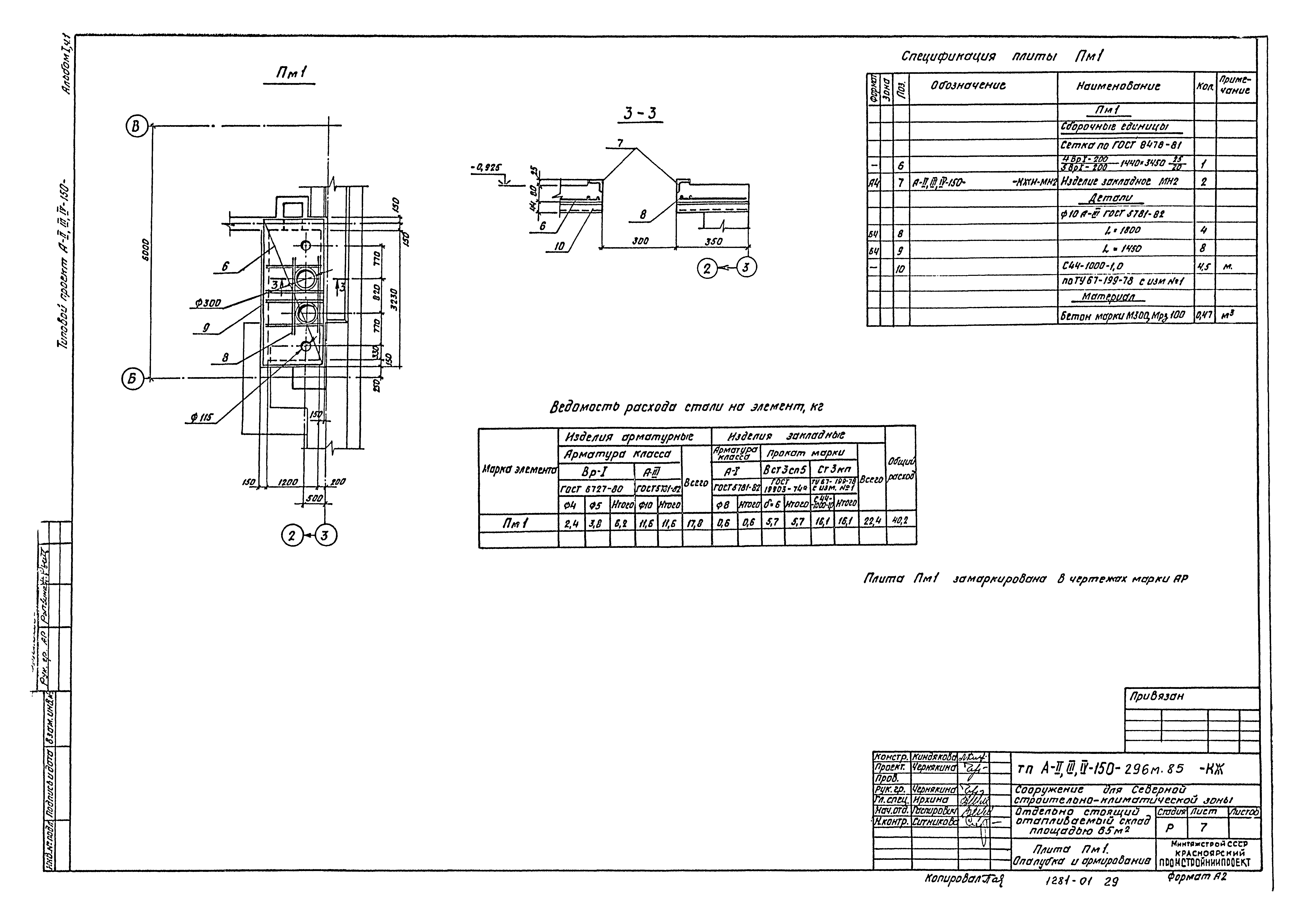
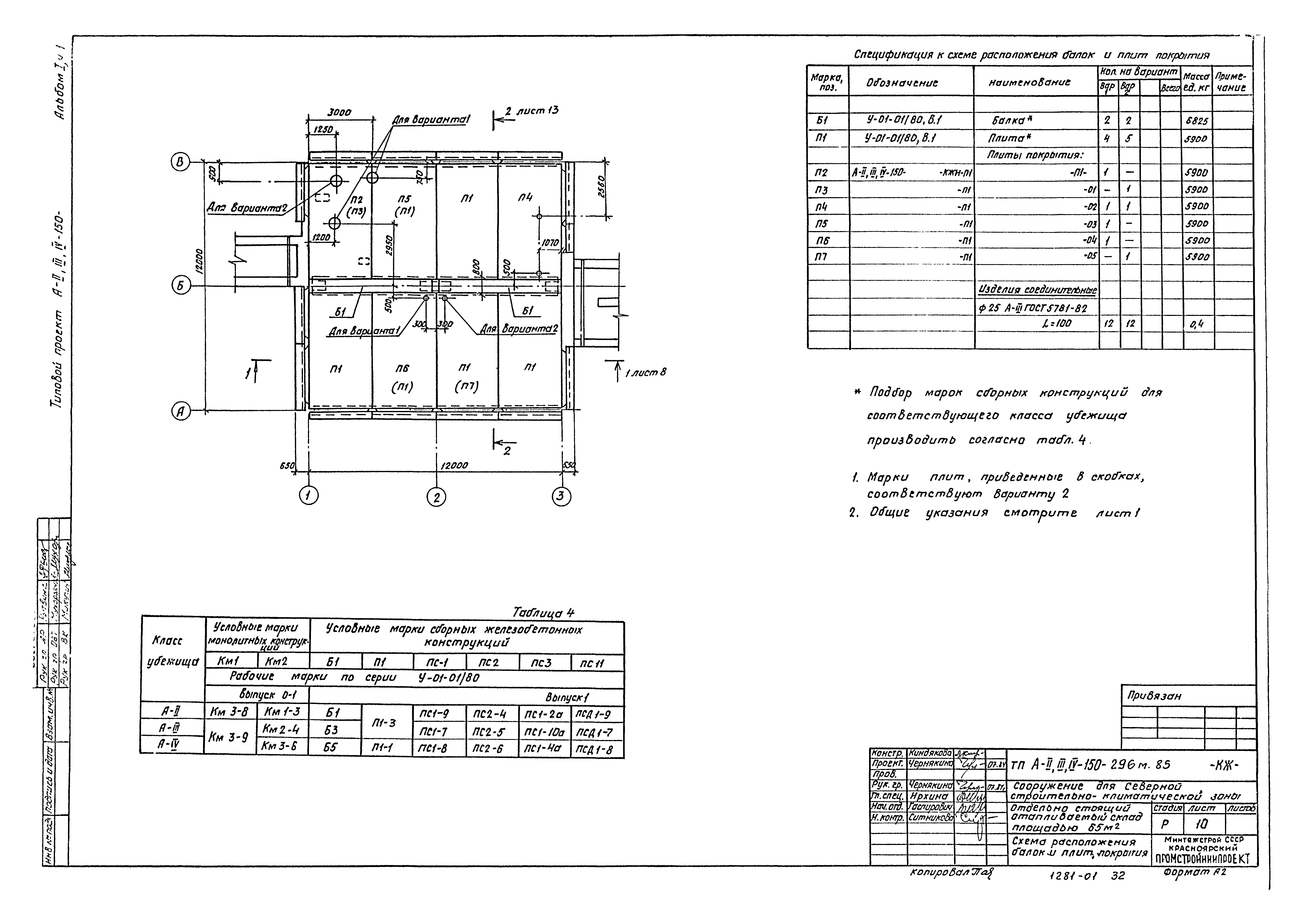
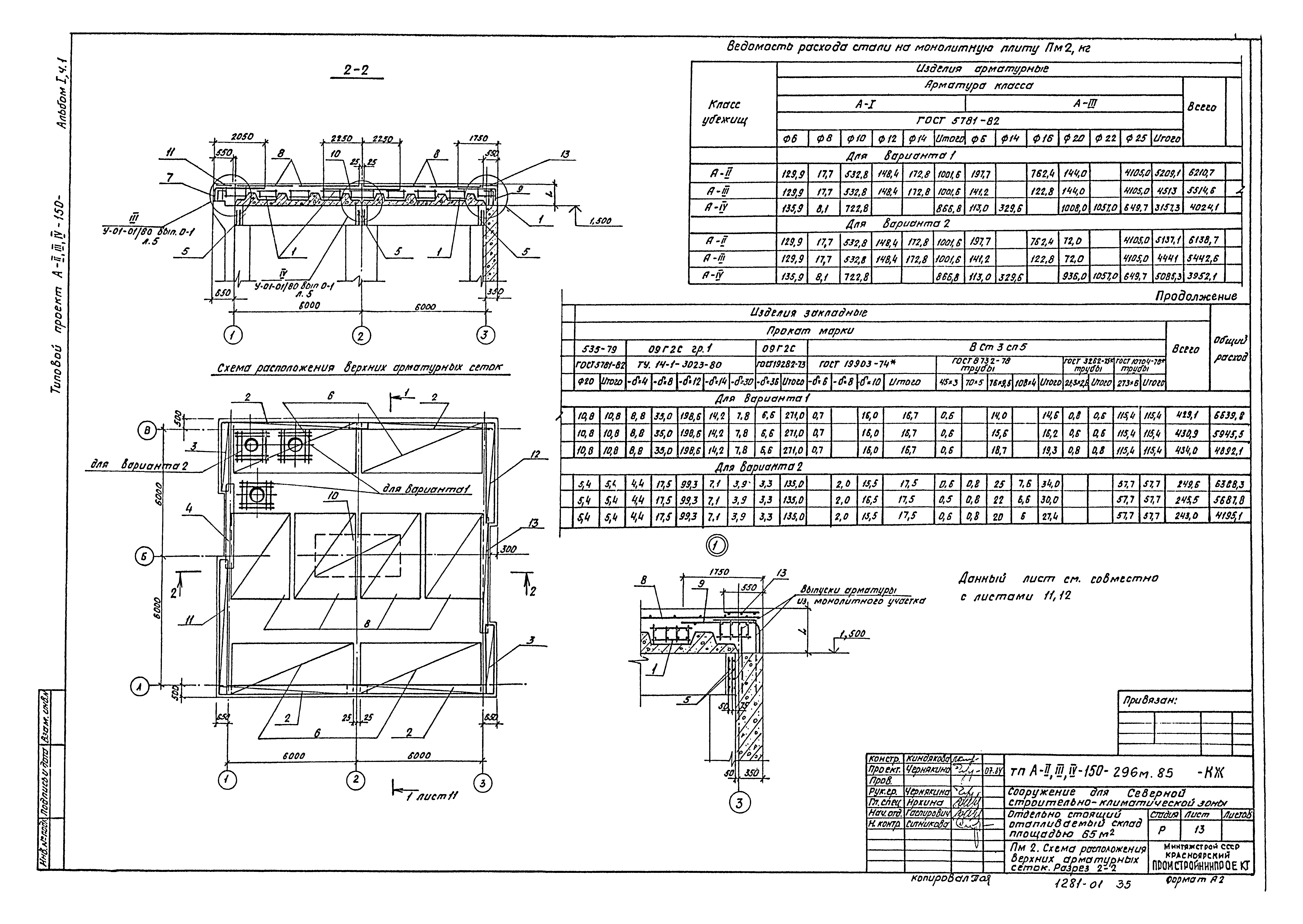
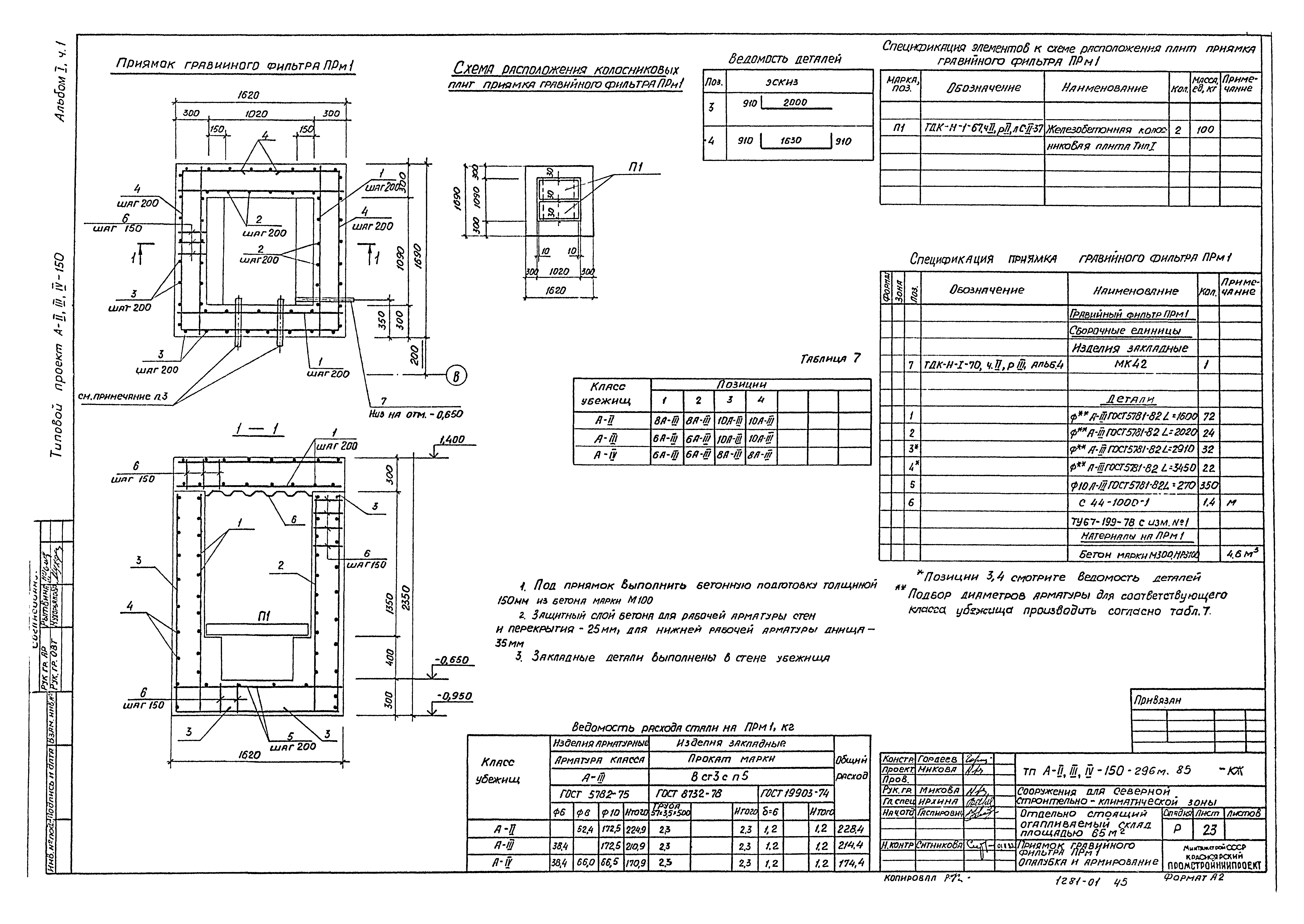
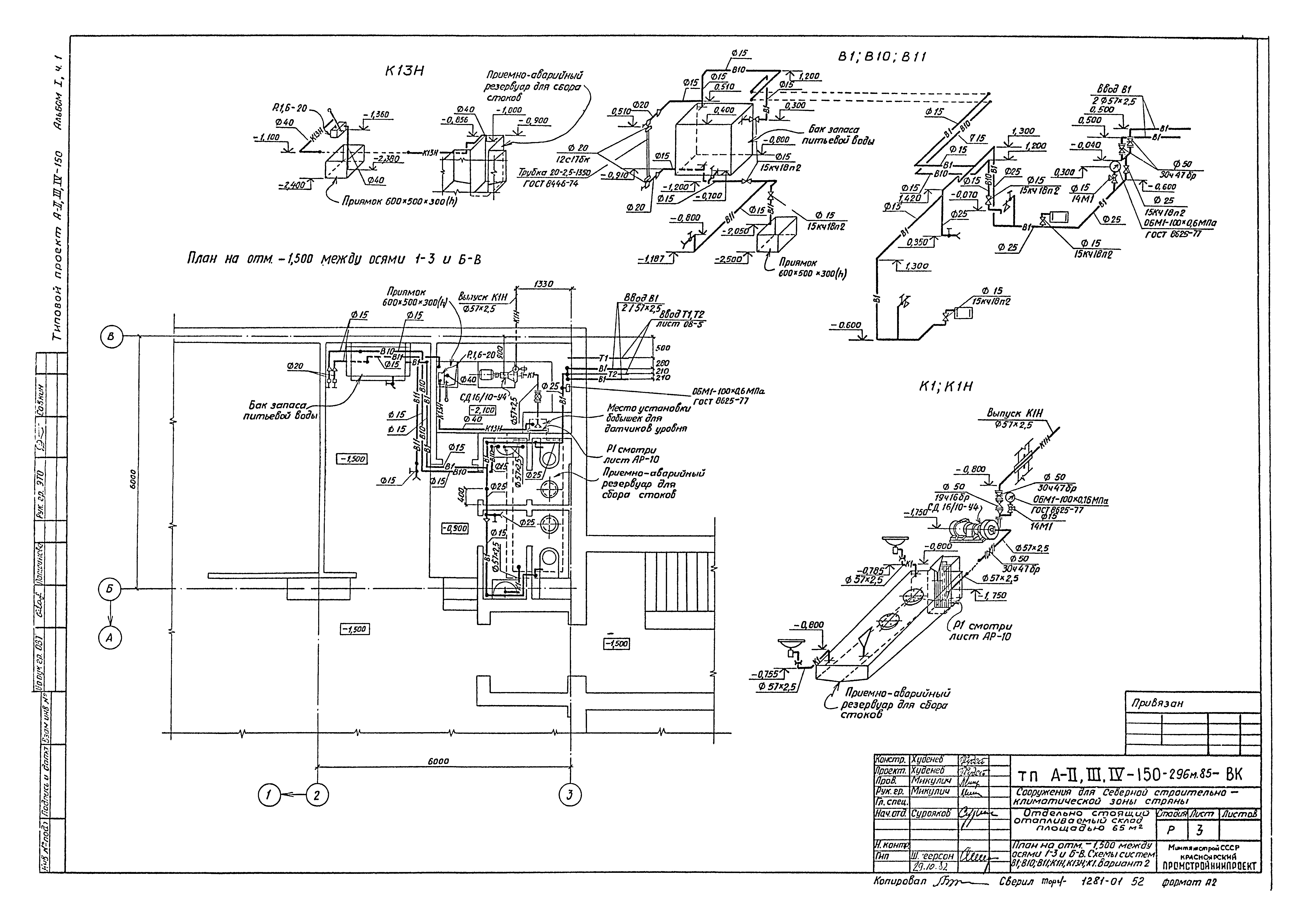
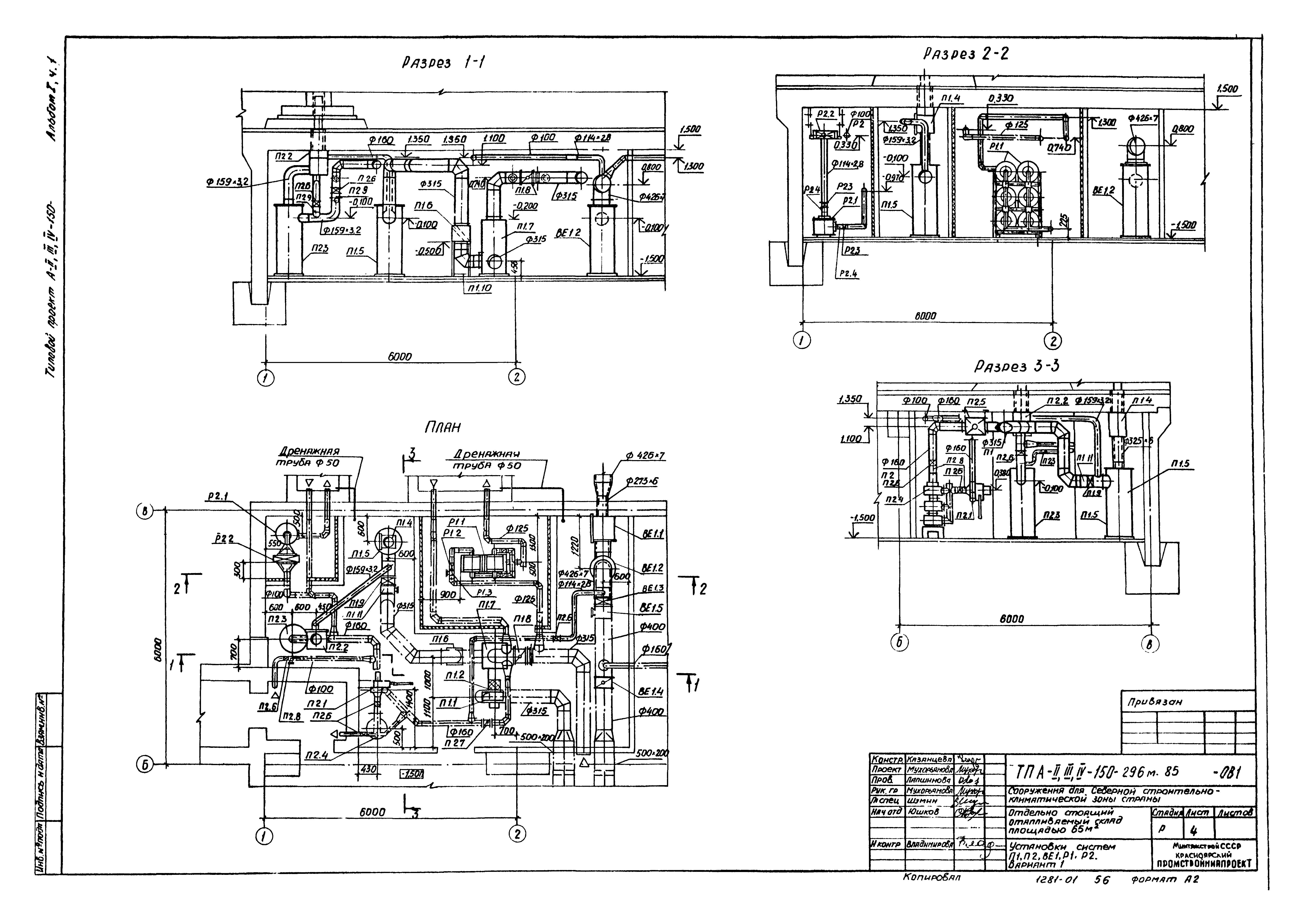
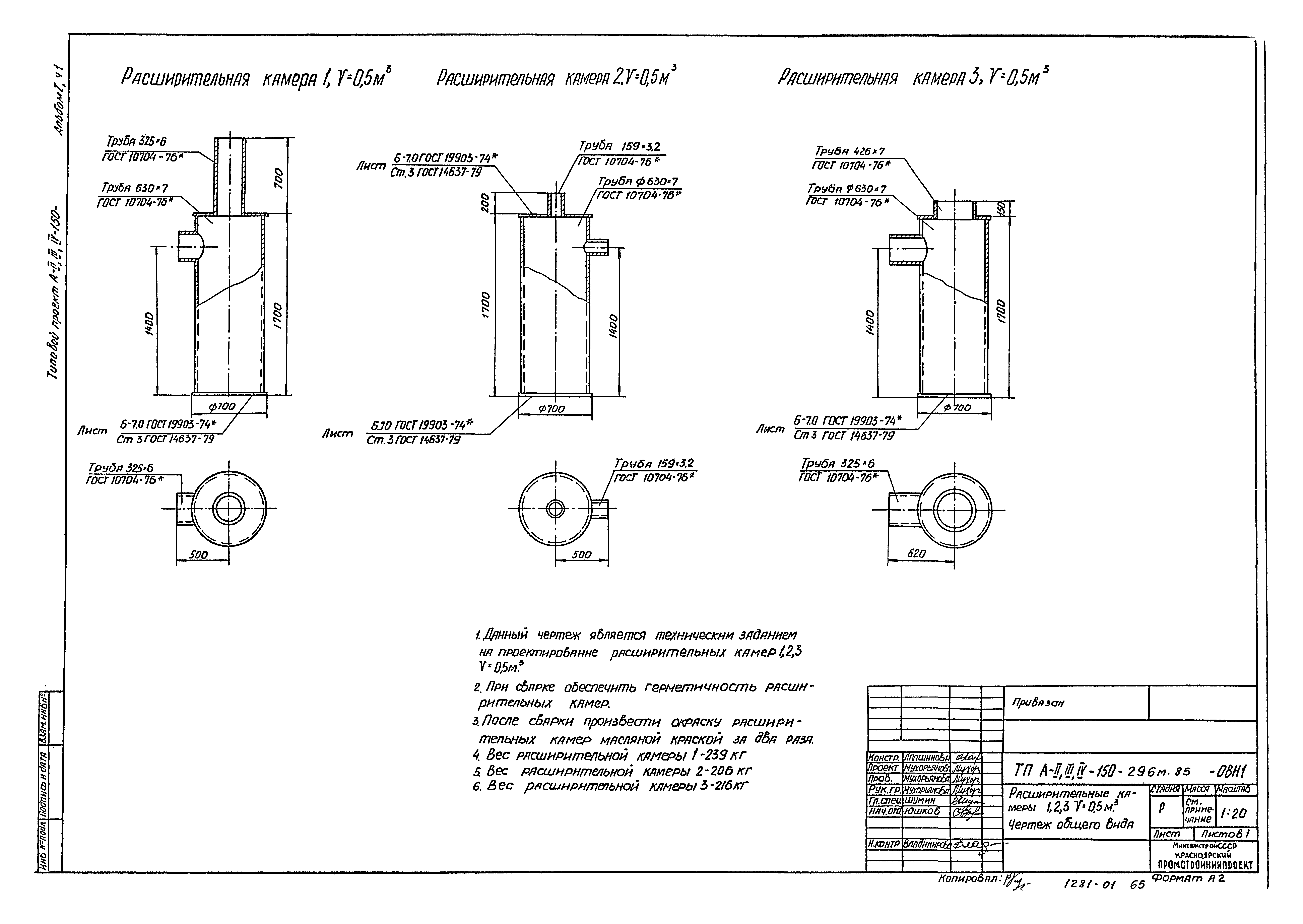
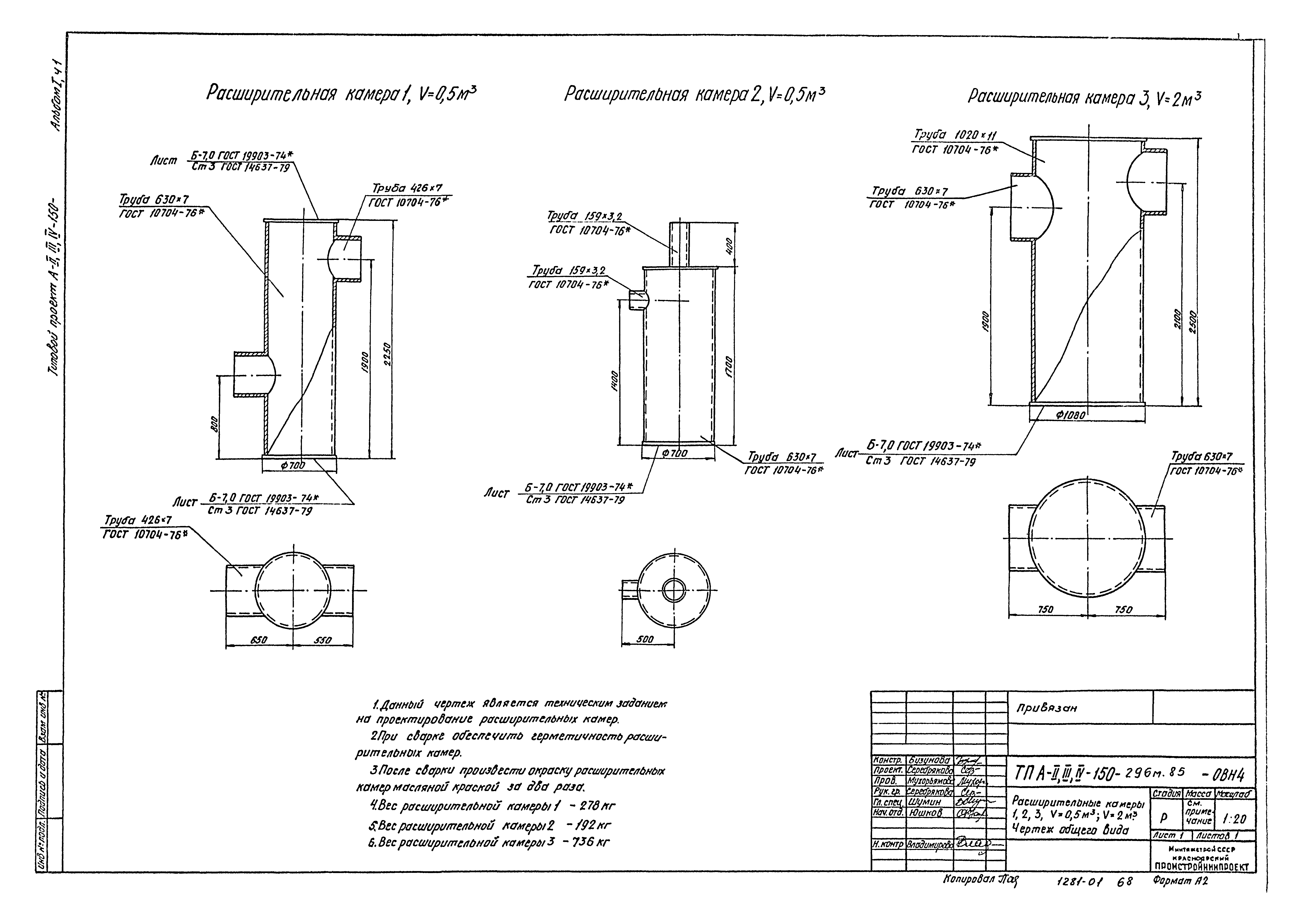
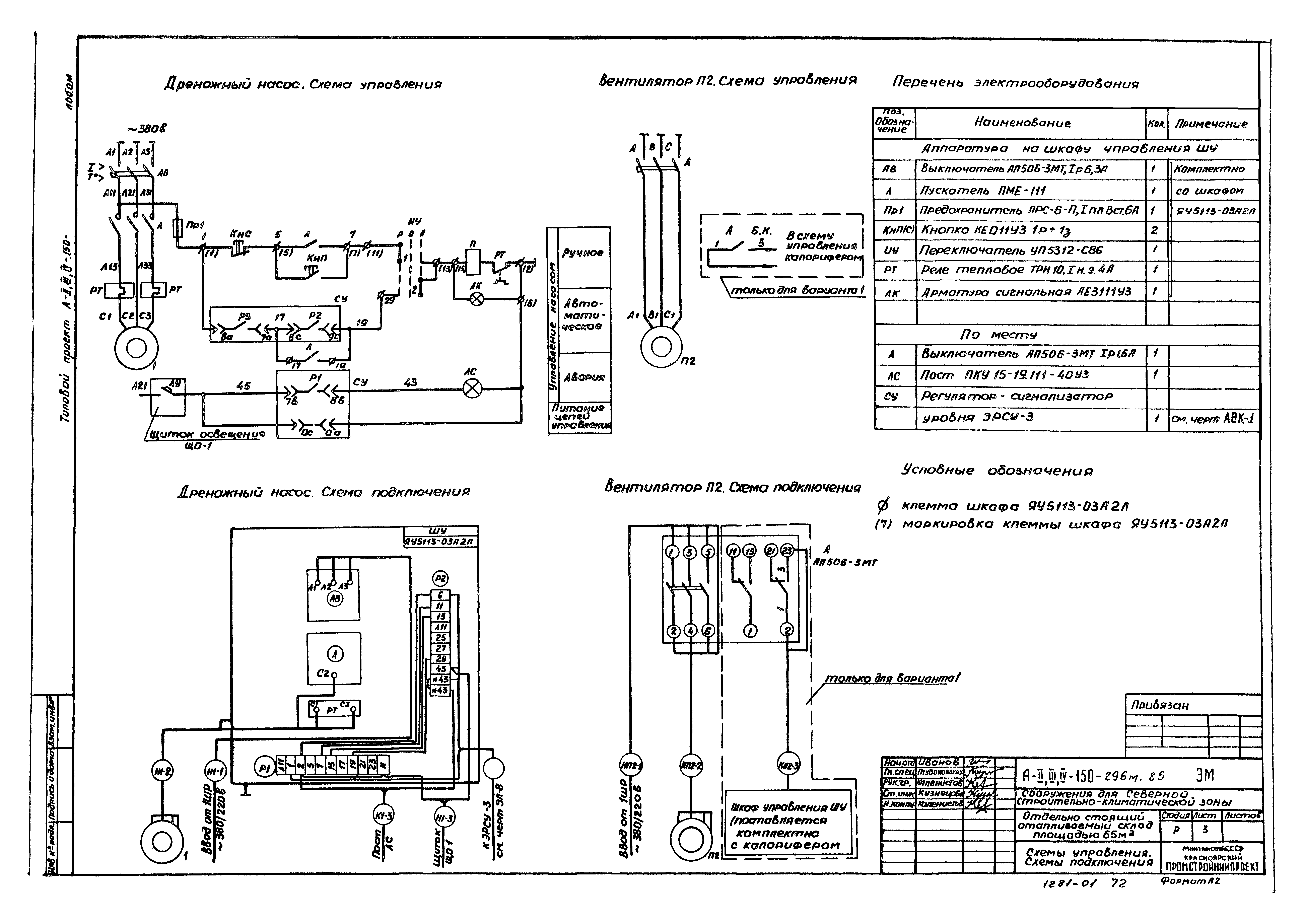
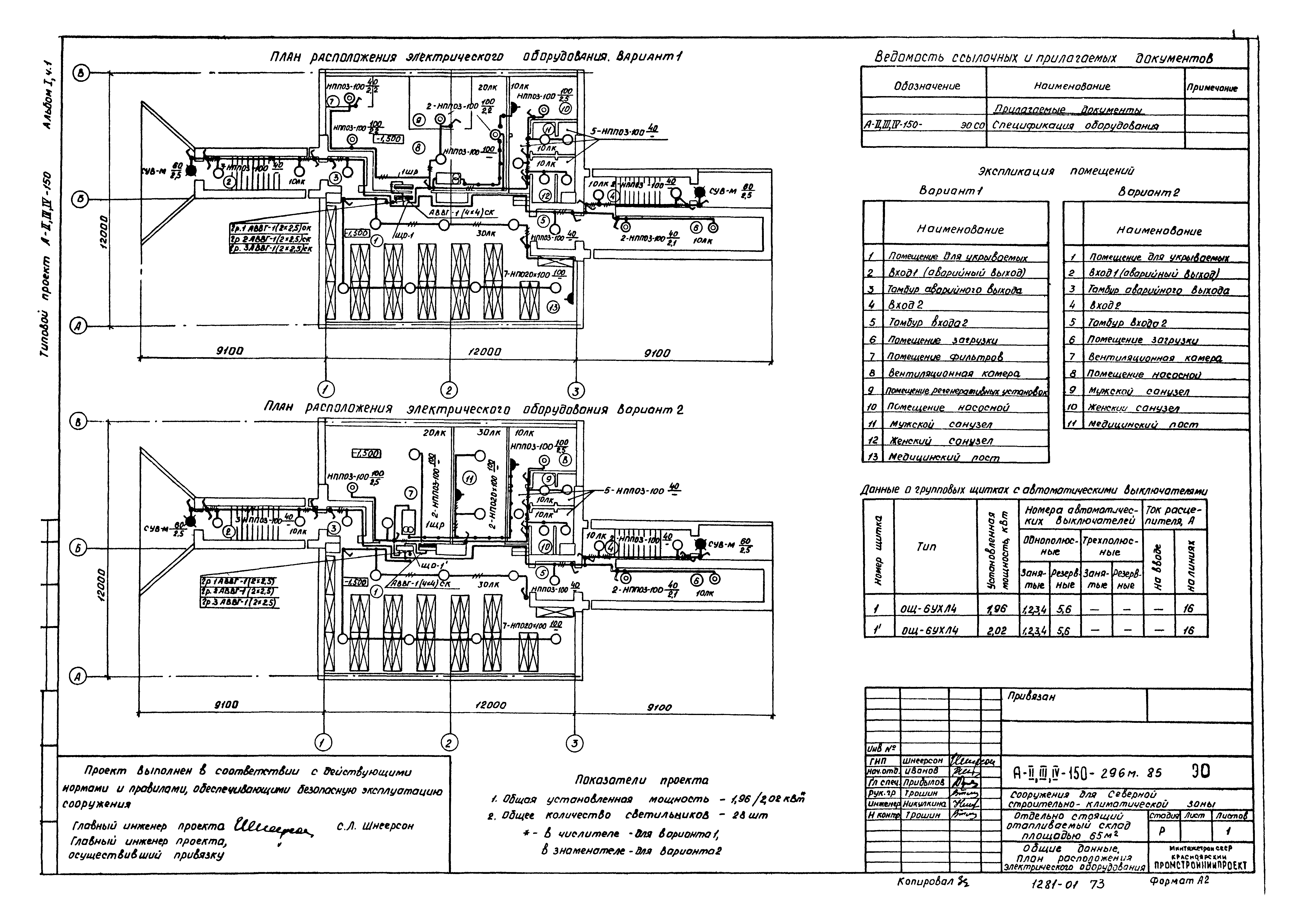
Скачать Типовой проект А-II,III,IV-150-296м.85 Альбом I. Часть 1. Общая пояснительная записка. Архитектурные решения. Конструкции железобетонные. Конструкции металлические. Внутренние водопровод и канализация. Отопление и вентиляция. Электротехническая частьДата актуализации: 01.01.2021 Типовой проект А-II,III,IV-150-296м.85
Альбом I. Часть 1. Общая пояснительная записка. Архитектурные решения. Конструкции железобетонные. Конструкции металлические. Внутренние водопровод и канализация. Отопление и вентиляция. Электротехническая часть| Обозначение: | Типовой проект А-II,III,IV-150-296м.85 | | Обозначение англ: | А-II,III,IV-150-296м.85 | | Статус: | не определен законодательством | | Название рус.: | Альбом I. Часть 1. Общая пояснительная записка. Архитектурные решения. Конструкции железобетонные. Конструкции металлические. Внутренние водопровод и канализация. Отопление и вентиляция. Электротехническая часть | | Дата добавления в базу: | 12.02.2016 | | Дата актуализации: | 01.01.2021 | | Дата введения: | 11.04.1985 | | Дата окончания срока действия: | 30.06.2003 | | Разработан: | Красноярский Промстройниипроект Госстроя СССР
| | Утверждён: | 26.03.1985 Минтяжстрой СССР (USSR Mintyazhstroy 1 ДСП)
| | Издан: | ЦИТП Госстроя СССР (CITP, Gosstroy (USSR) 1987 г. )
|
                                                                          
|