Скачать Рекомендации по типовому проектированию и реконструкции сельских домов фермерских хозяйств для различных природно-климатических зон

Дата актуализации: 01.01.2021

Рекомендации по типовому проектированию и реконструкции сельских домов фермерских хозяйств для различных природно-климатических зон

Статус:действует
Название рус.:Рекомендации по типовому проектированию и реконструкции сельских домов фермерских хозяйств для различных природно-климатических зон
Дата добавления в базу:12.02.2016
Дата актуализации:01.01.2021
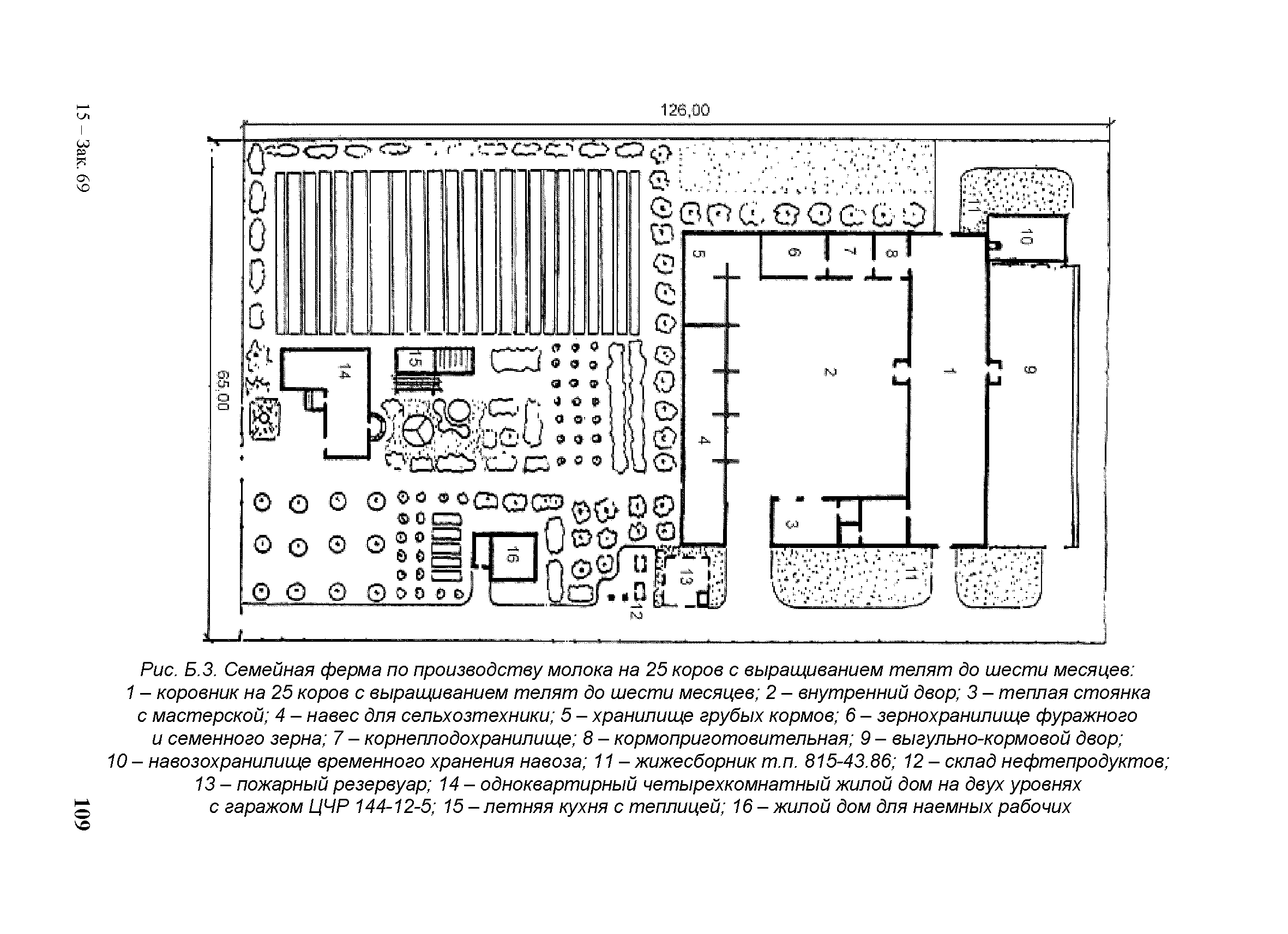
Область применения:Рекомендации распространяются на проектирование жилых одноквартирных сельских домов в составе фермерских хозяйств различной специализации. В рекомендациях отражены основные методы строительства жилых сельских одноквартирных домов с учетом влияния природно-климатических условий различных районов нашей страны.
Оглавление:Введение
1. Общие положения
2. Принципы размещения фермерских хозяйств
3. Способы планировочной организации фермерских хозяйств
4. Типологические особенности формирования крестьянского жилища
5. Объемно-планировочные решения дома
6. Строительные решения жилья
   6.1. Фундаменты и цоколь
   6.2. Стены
   6.3. Полы и перекрытия
   6.4. Крыши и кровли
7. Летние помещения
8. Печи и камины
9. Отделочные работы
10. Благоустройство участка
11. Основные экологические аспекты формирования фермерских хозяйств
12. Водоснабжение и канализация
13. Системы водяного отопления
Разработан: РАСХН
Утверждён:29.01.2007 Министерство сельского хозяйства России (1)
Издан: ФГНУ Росиформагротех (2007 г. )