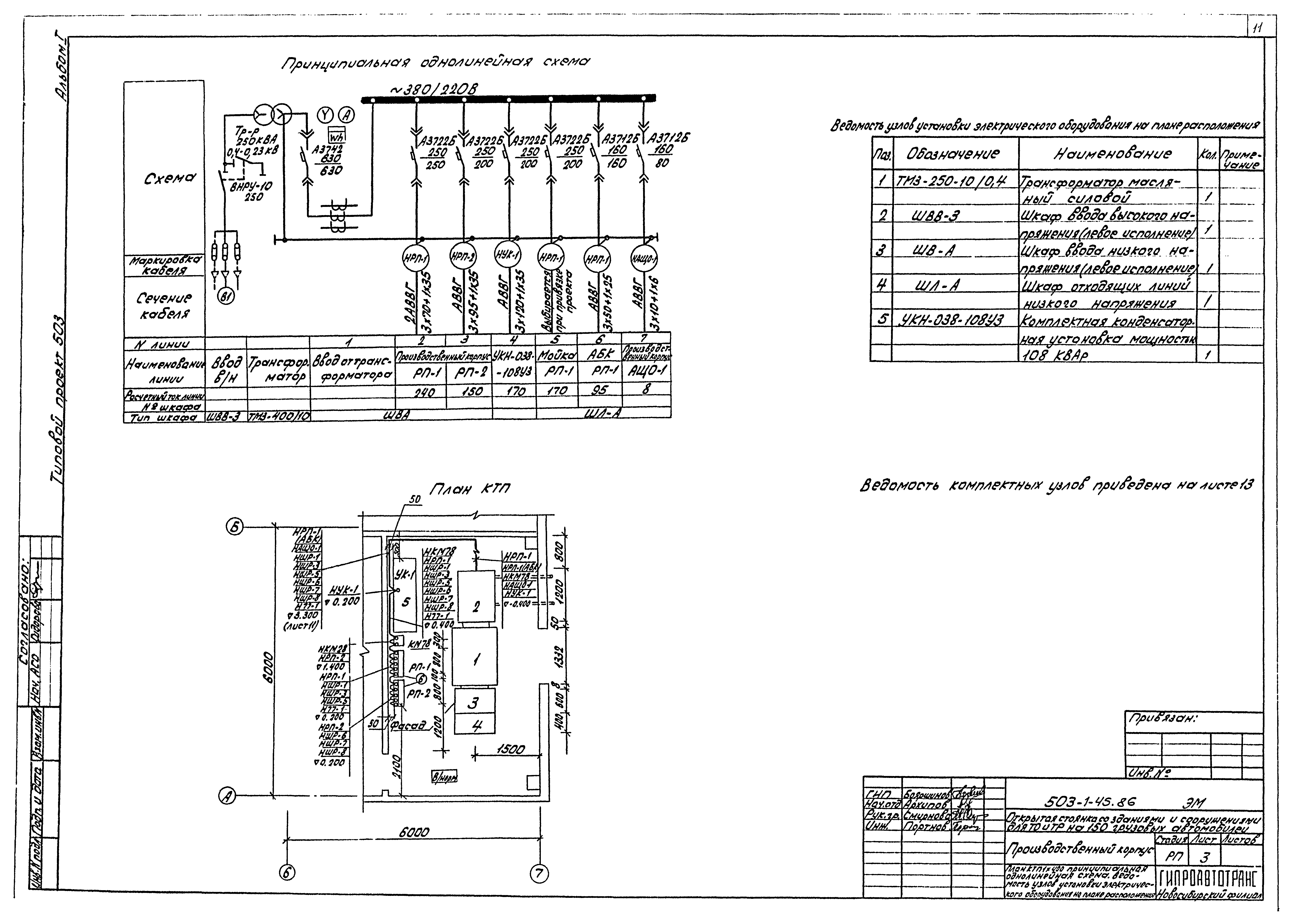
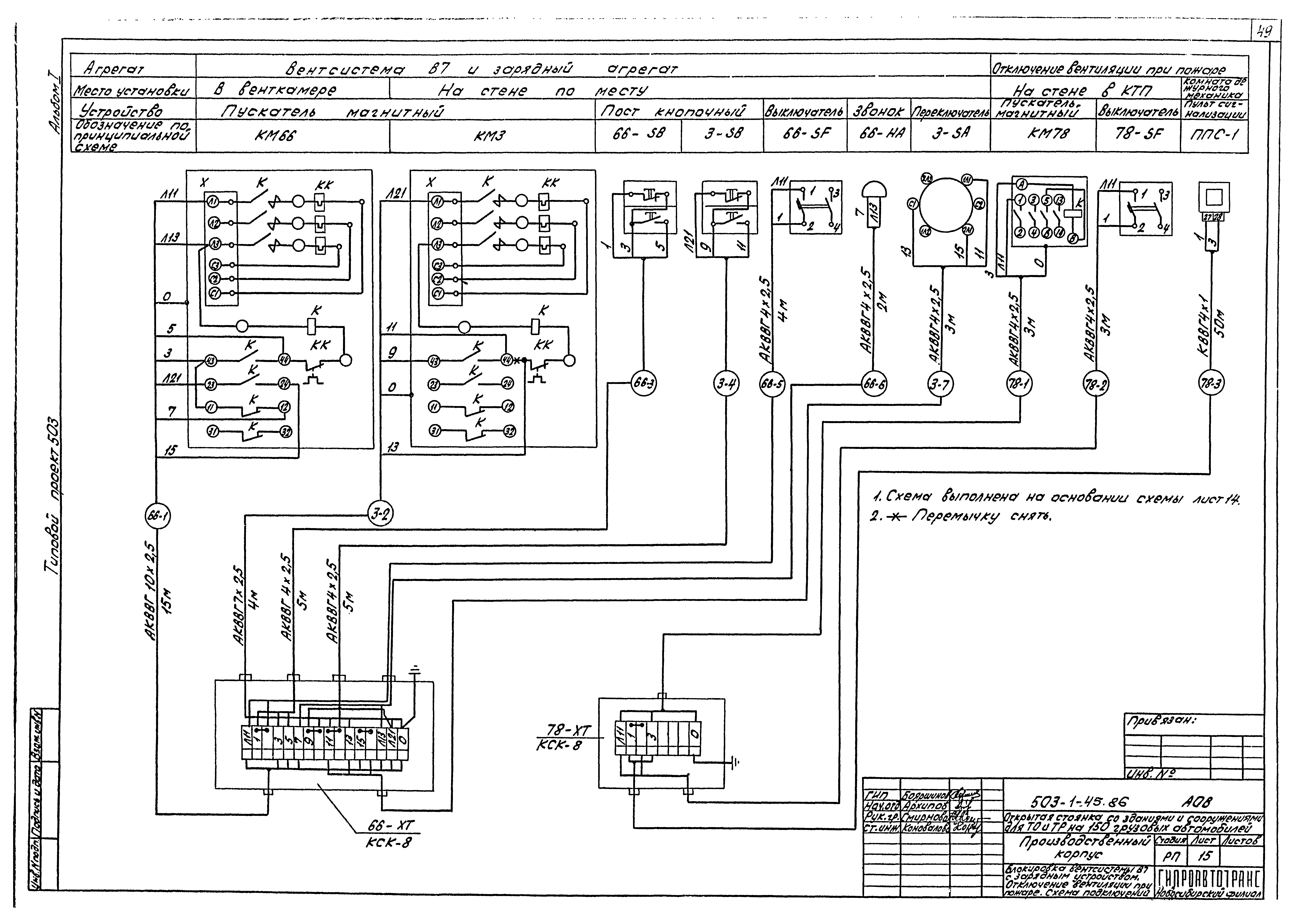
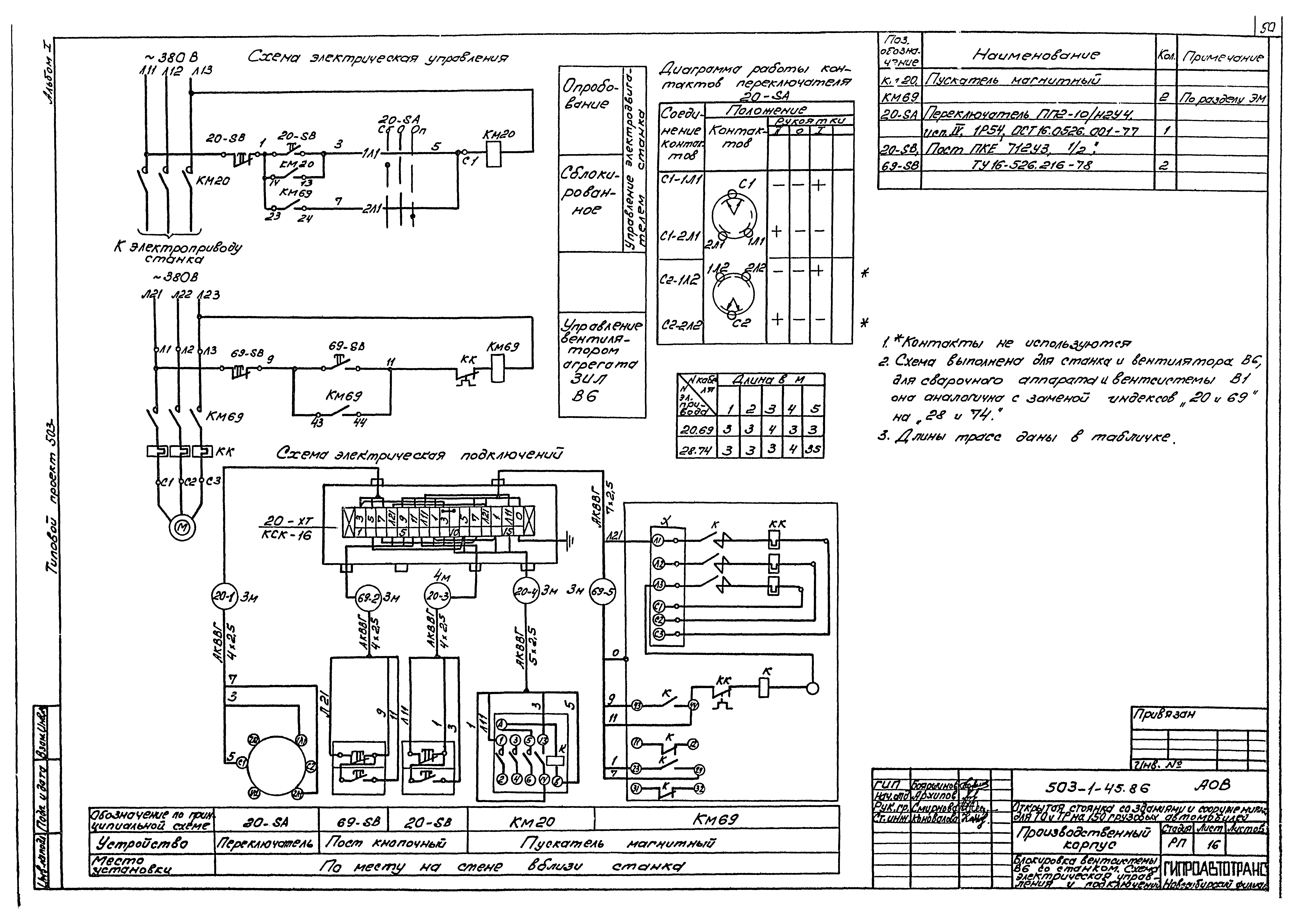
Скачать Типовой проект 503-1-45.86 Альбом I. Технология производства, силовое электрооборудование, электрическое освещение, автоматизация санитарно-технических систем, связь и сигнализацияДата актуализации: 01.01.2021 Типовой проект 503-1-45.86
Альбом I. Технология производства, силовое электрооборудование, электрическое освещение, автоматизация санитарно-технических систем, связь и сигнализация| Обозначение: | Типовой проект 503-1-45.86 | | Обозначение англ: | 503-1-45.86 | | Статус: | не определен законодательством | | Название рус.: | Альбом I. Технология производства, силовое электрооборудование, электрическое освещение, автоматизация санитарно-технических систем, связь и сигнализация | | Дата добавления в базу: | 12.02.2016 | | Дата актуализации: | 01.01.2021 | | Дата введения: | 13.12.1985 | | Дата окончания срока действия: | 30.06.2003 | | Разработан: | Новосибирский филиал Гипроавтотранса
| | Утверждён: | 13.12.1985 Госкомсельхозтехника СССР (81-85)
| | Издан: | ЦИТП Госстроя СССР (CITP, Gosstroy (USSR) 1987 г. )
|
                                                         
|