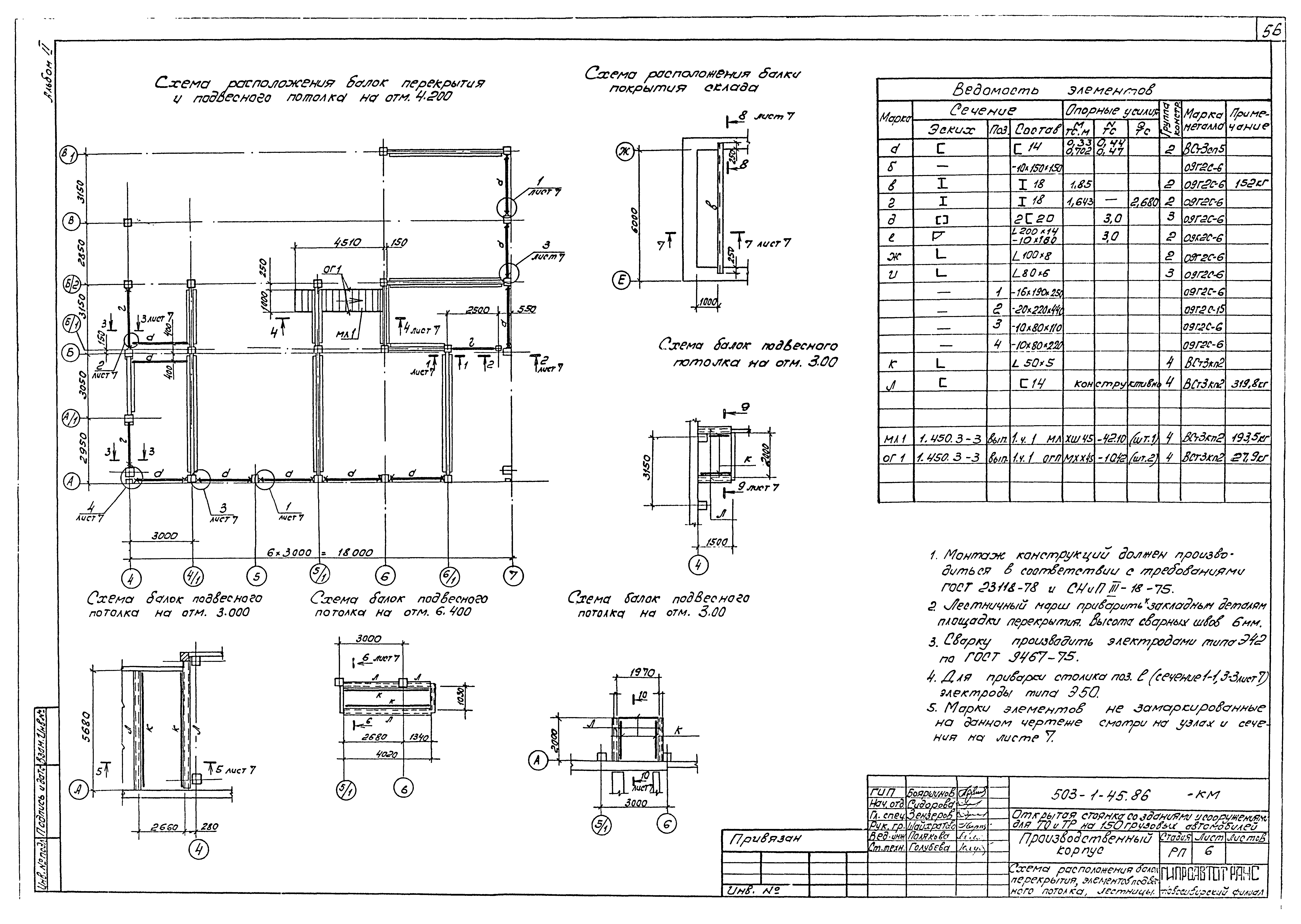
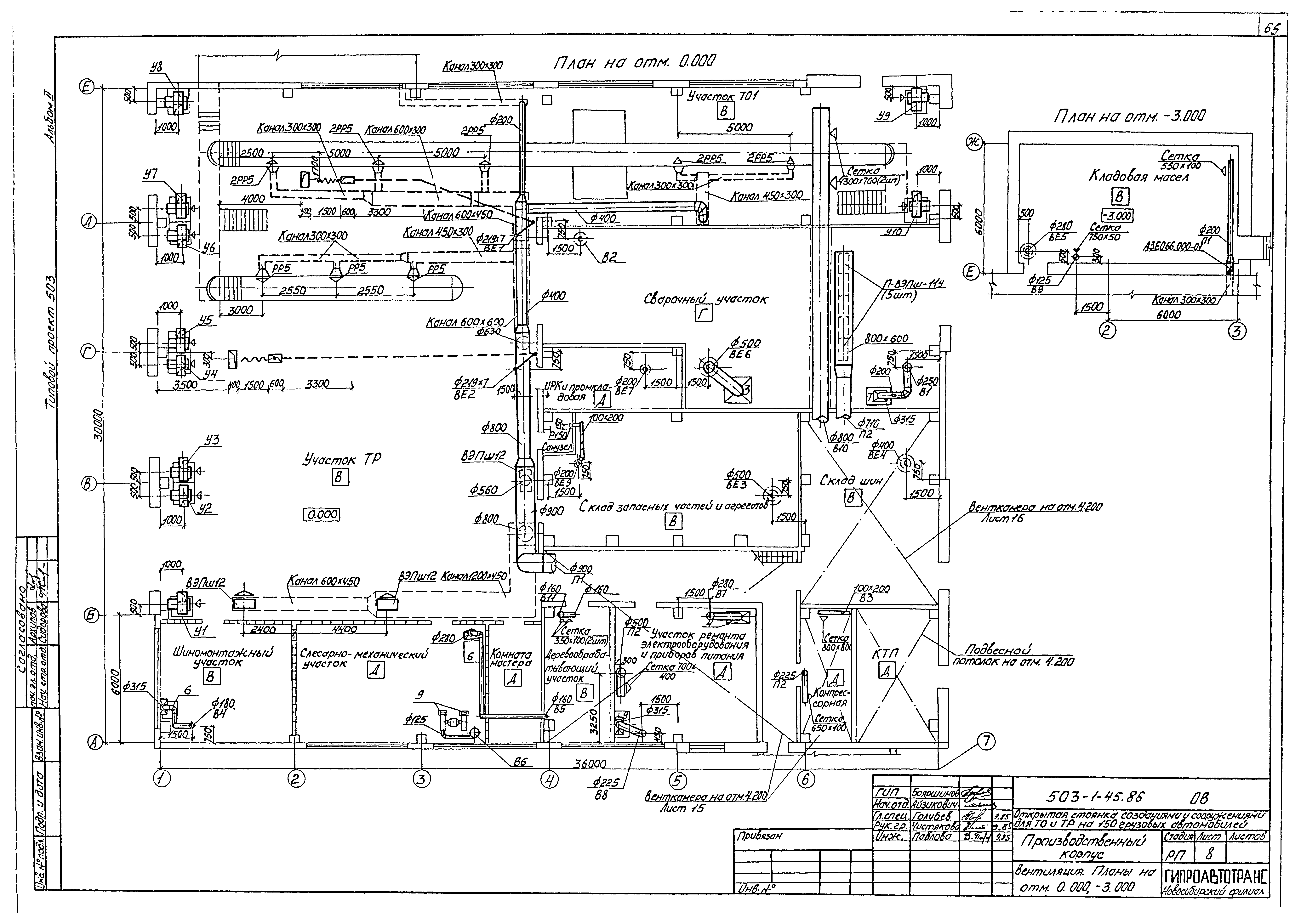
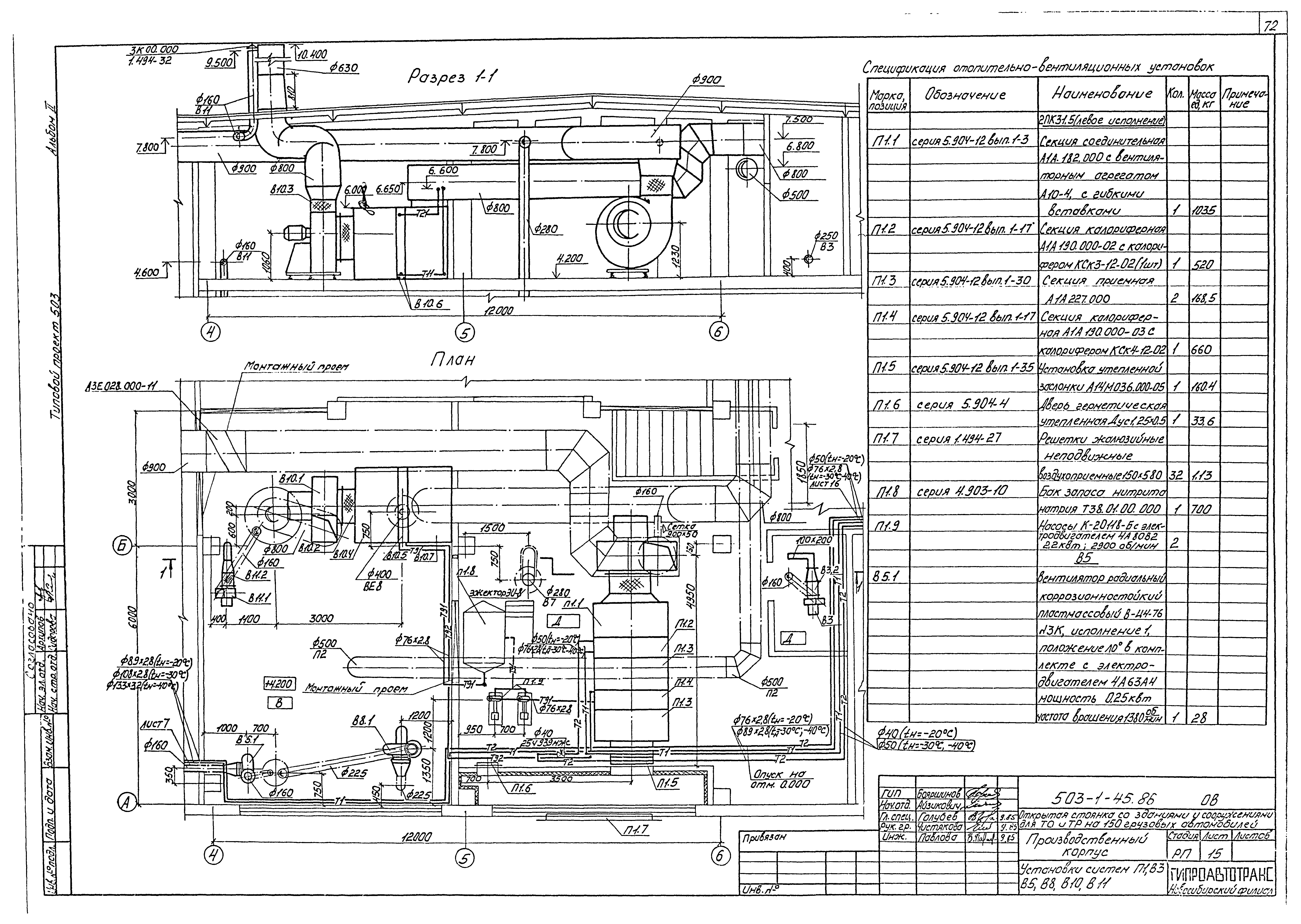
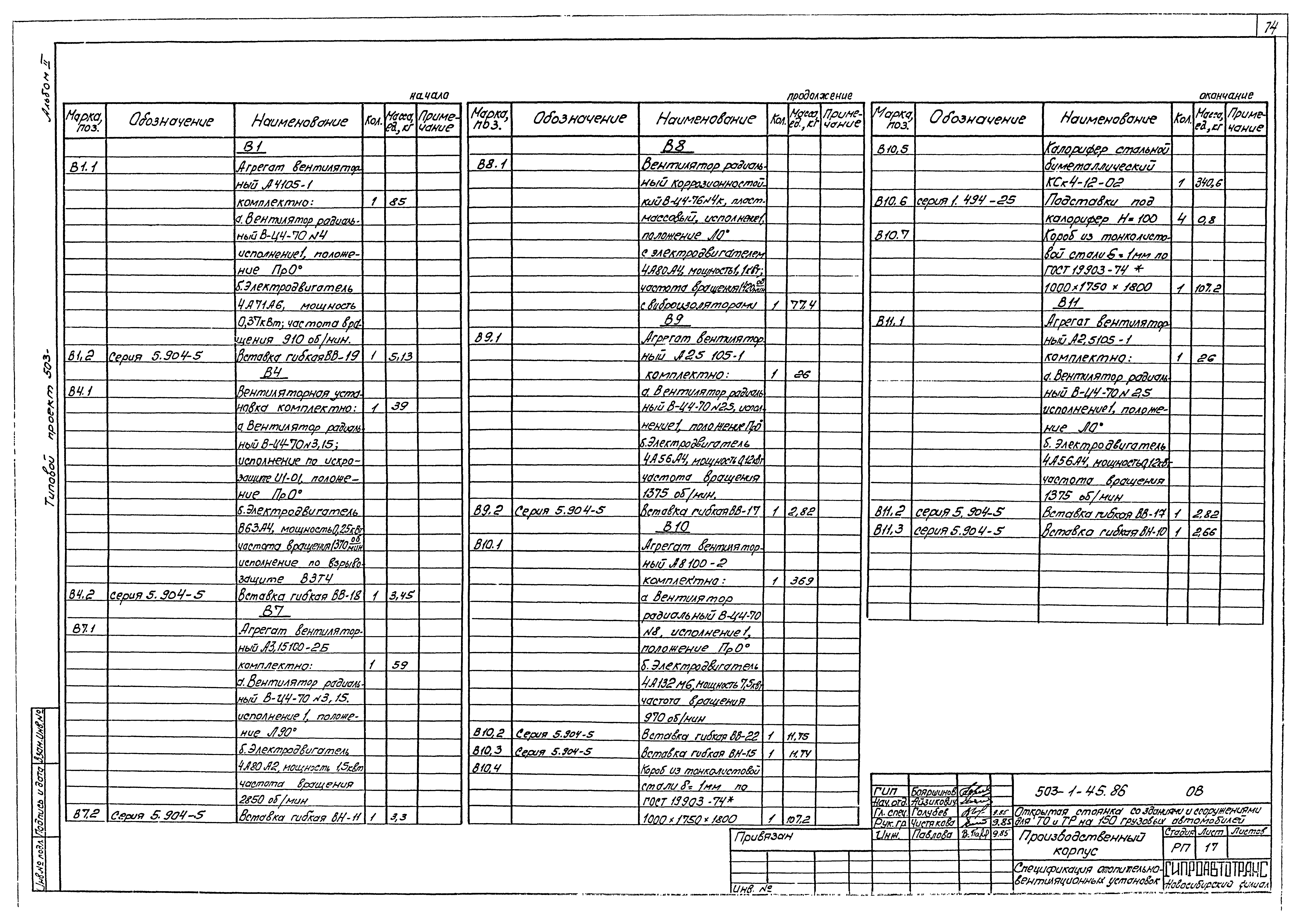
Скачать Типовой проект 503-1-45.86 Альбом II. Архитектурные решения, конструкции железобетонные, металлические отопление и вентиляция, внутренние водопровод и канализацияДата актуализации: 01.01.2021 Типовой проект 503-1-45.86
Альбом II. Архитектурные решения, конструкции железобетонные, металлические отопление и вентиляция, внутренние водопровод и канализация| Обозначение: | Типовой проект 503-1-45.86 | | Обозначение англ: | 503-1-45.86 | | Статус: | не определен законодательством | | Название рус.: | Альбом II. Архитектурные решения, конструкции железобетонные, металлические отопление и вентиляция, внутренние водопровод и канализация | | Дата добавления в базу: | 12.02.2016 | | Дата актуализации: | 01.01.2021 | | Дата введения: | 13.12.1985 | | Дата окончания срока действия: | 30.06.2003 | | Разработан: | Новосибирский филиал Гипроавтотранса
| | Утверждён: | 13.12.1985 Госкомсельхозтехника СССР (81-85)
| | Издан: | ЦИТП Госстроя СССР (CITP, Gosstroy (USSR) 1987 г. )
|
                                                                               
|