Скачать Типовой проект 503-1-72.89 Альбом III. Силовое электрооборудование. Электрическое освещение. Автоматизация сантехнических и технологических установок. Связь и сигнализация

Дата актуализации: 01.01.2021

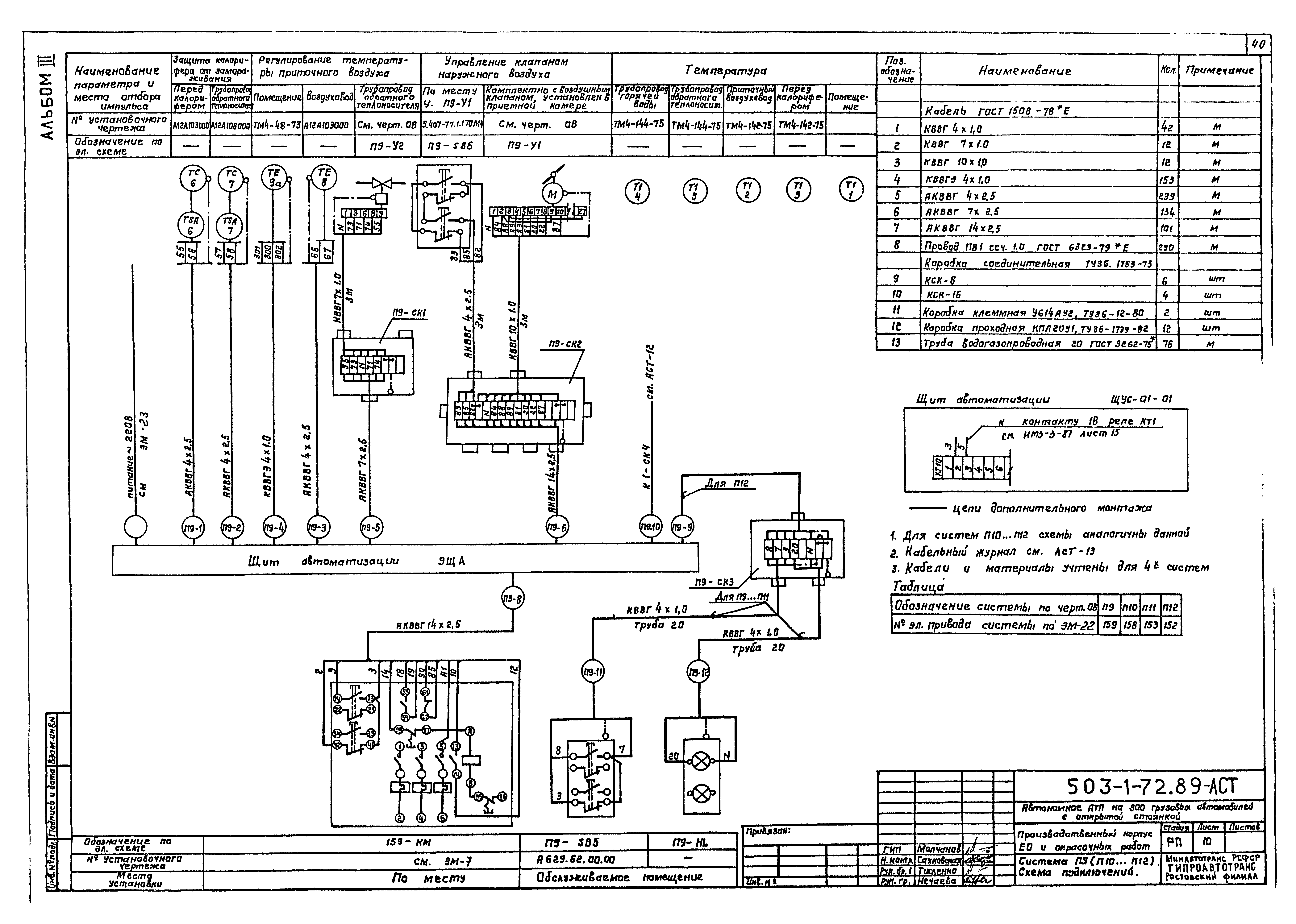
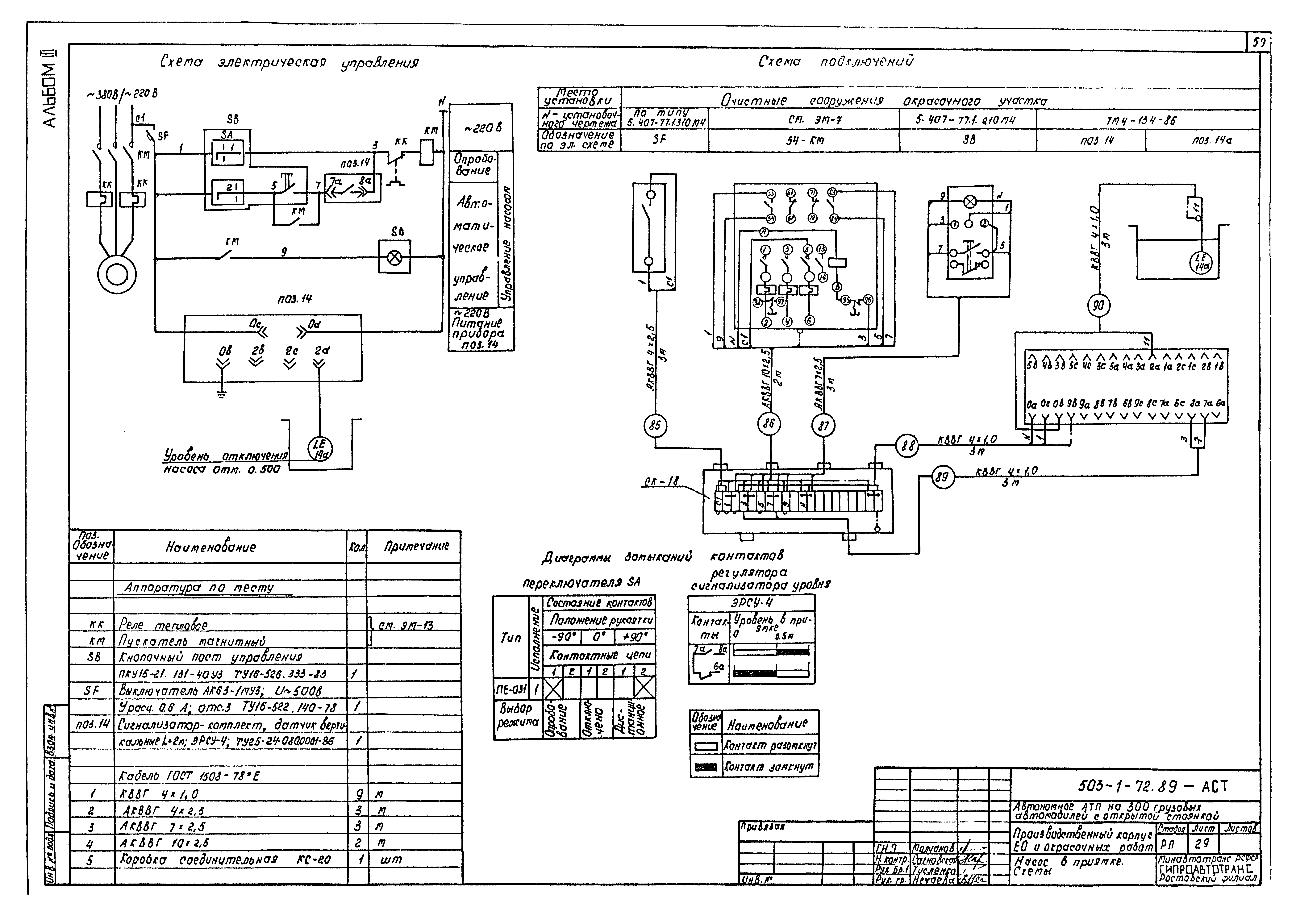
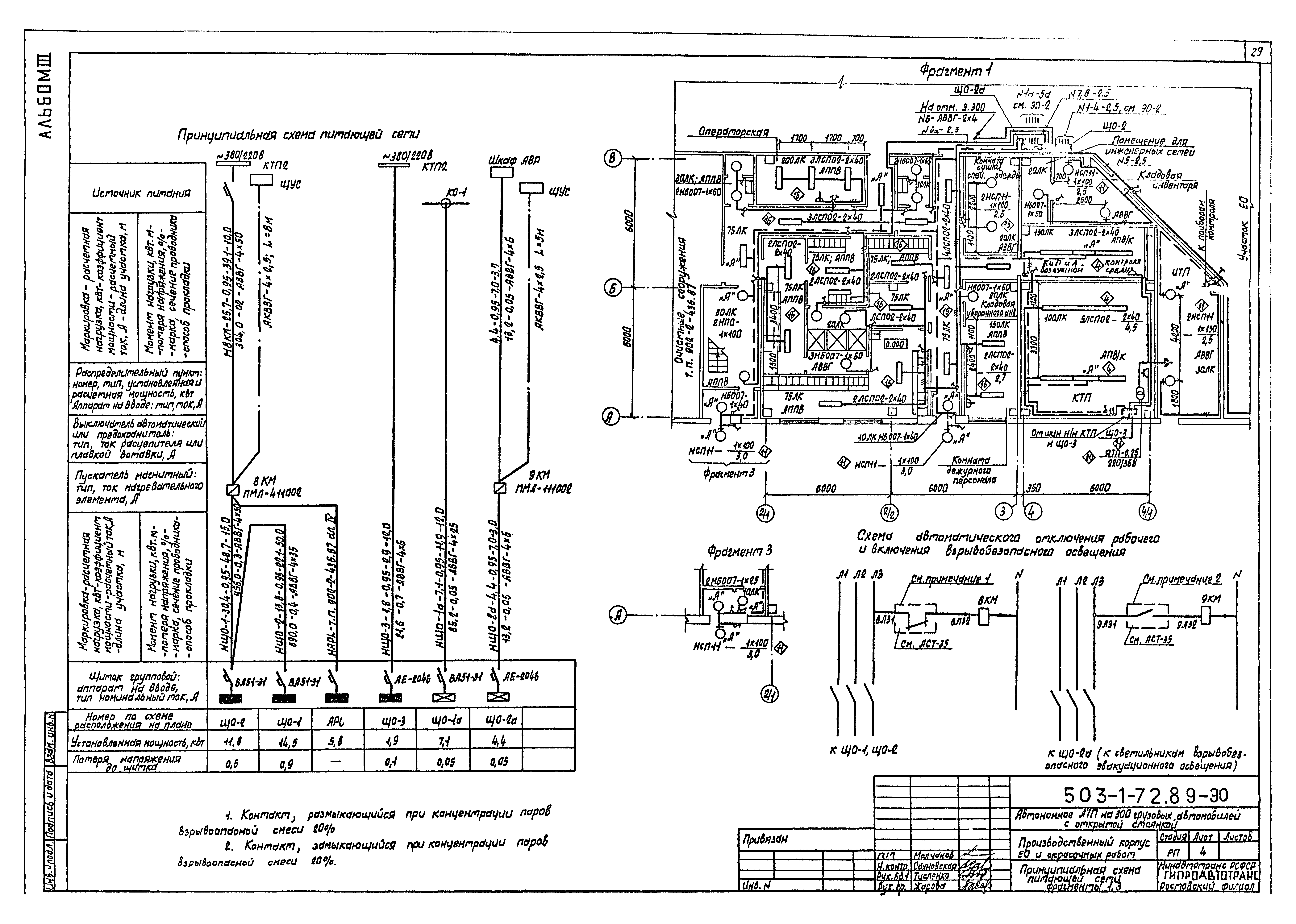
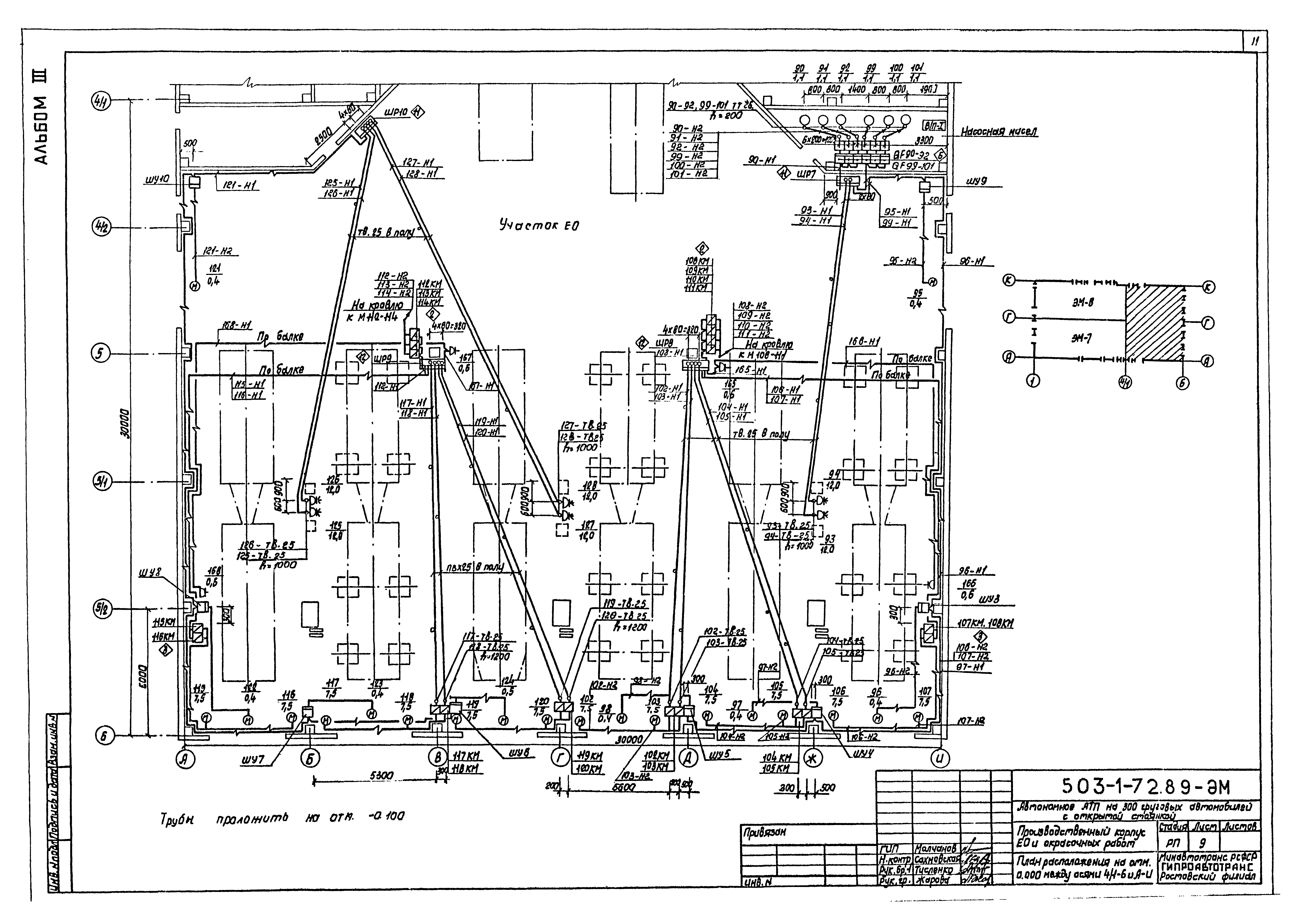
Типовой проект 503-1-72.89

Альбом III. Силовое электрооборудование. Электрическое освещение. Автоматизация сантехнических и технологических установок. Связь и сигнализация

Обозначение: Типовой проект 503-1-72.89
Обозначение англ: 503-1-72.89
Статус:не определен законодательством
Название рус.:Альбом III. Силовое электрооборудование. Электрическое освещение. Автоматизация сантехнических и технологических установок. Связь и сигнализация
Дата добавления в базу:12.02.2016
Дата актуализации:01.01.2021
Дата введения:23.05.1989
Дата окончания срока действия:30.06.2003
Разработан: ГПИ Спецавтоматика Минприбора
Ростовский филиал Гипроавтотранса Минавтотранса РСФСР
Утверждён:23.05.1989 Минавтотранс РСФСР (Russian Federation Minavtotrans 4)
Издан: ЦИТП Госстроя СССР (CITP, Gosstroy (USSR) 1990 г. )
Типовой проект 503-1-72.89Типовой проект 503-1-72.89Типовой проект 503-1-72.89Типовой проект 503-1-72.89Типовой проект 503-1-72.89Типовой проект 503-1-72.89Типовой проект 503-1-72.89Типовой проект 503-1-72.89Типовой проект 503-1-72.89Типовой проект 503-1-72.89Типовой проект 503-1-72.89Типовой проект 503-1-72.89Типовой проект 503-1-72.89Типовой проект 503-1-72.89Типовой проект 503-1-72.89Типовой проект 503-1-72.89Типовой проект 503-1-72.89Типовой проект 503-1-72.89Типовой проект 503-1-72.89Типовой проект 503-1-72.89Типовой проект 503-1-72.89Типовой проект 503-1-72.89Типовой проект 503-1-72.89Типовой проект 503-1-72.89Типовой проект 503-1-72.89Типовой проект 503-1-72.89Типовой проект 503-1-72.89Типовой проект 503-1-72.89Типовой проект 503-1-72.89Типовой проект 503-1-72.89Типовой проект 503-1-72.89Типовой проект 503-1-72.89Типовой проект 503-1-72.89Типовой проект 503-1-72.89Типовой проект 503-1-72.89Типовой проект 503-1-72.89Типовой проект 503-1-72.89Типовой проект 503-1-72.89Типовой проект 503-1-72.89Типовой проект 503-1-72.89Типовой проект 503-1-72.89Типовой проект 503-1-72.89Типовой проект 503-1-72.89Типовой проект 503-1-72.89Типовой проект 503-1-72.89Типовой проект 503-1-72.89Типовой проект 503-1-72.89Типовой проект 503-1-72.89Типовой проект 503-1-72.89Типовой проект 503-1-72.89Типовой проект 503-1-72.89Типовой проект 503-1-72.89Типовой проект 503-1-72.89Типовой проект 503-1-72.89Типовой проект 503-1-72.89Типовой проект 503-1-72.89Типовой проект 503-1-72.89Типовой проект 503-1-72.89Типовой проект 503-1-72.89Типовой проект 503-1-72.89Типовой проект 503-1-72.89Типовой проект 503-1-72.89Типовой проект 503-1-72.89Типовой проект 503-1-72.89Типовой проект 503-1-72.89Типовой проект 503-1-72.89Типовой проект 503-1-72.89Типовой проект 503-1-72.89Типовой проект 503-1-72.89Типовой проект 503-1-72.89Типовой проект 503-1-72.89Типовой проект 503-1-72.89Типовой проект 503-1-72.89Типовой проект 503-1-72.89Типовой проект 503-1-72.89