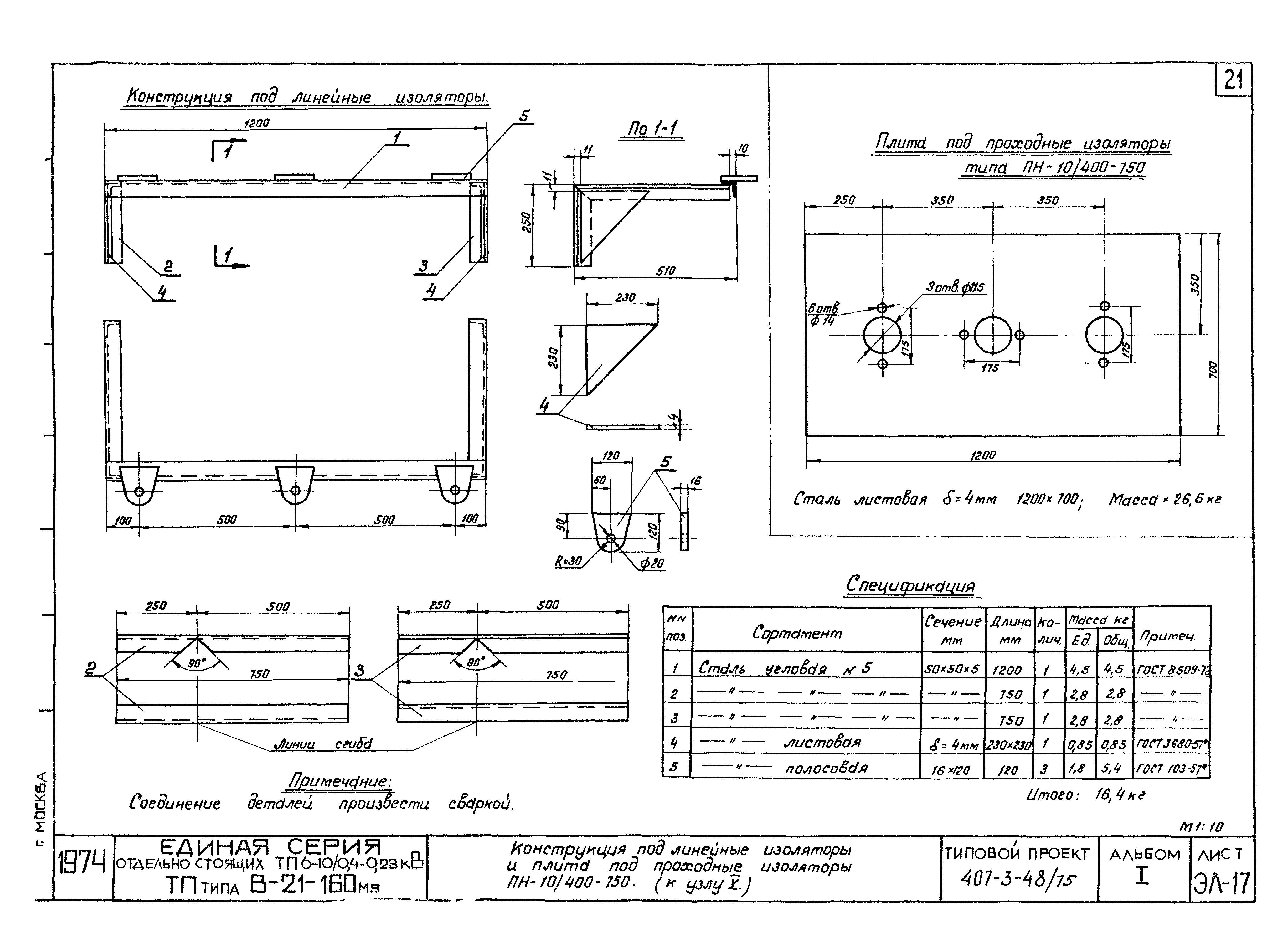
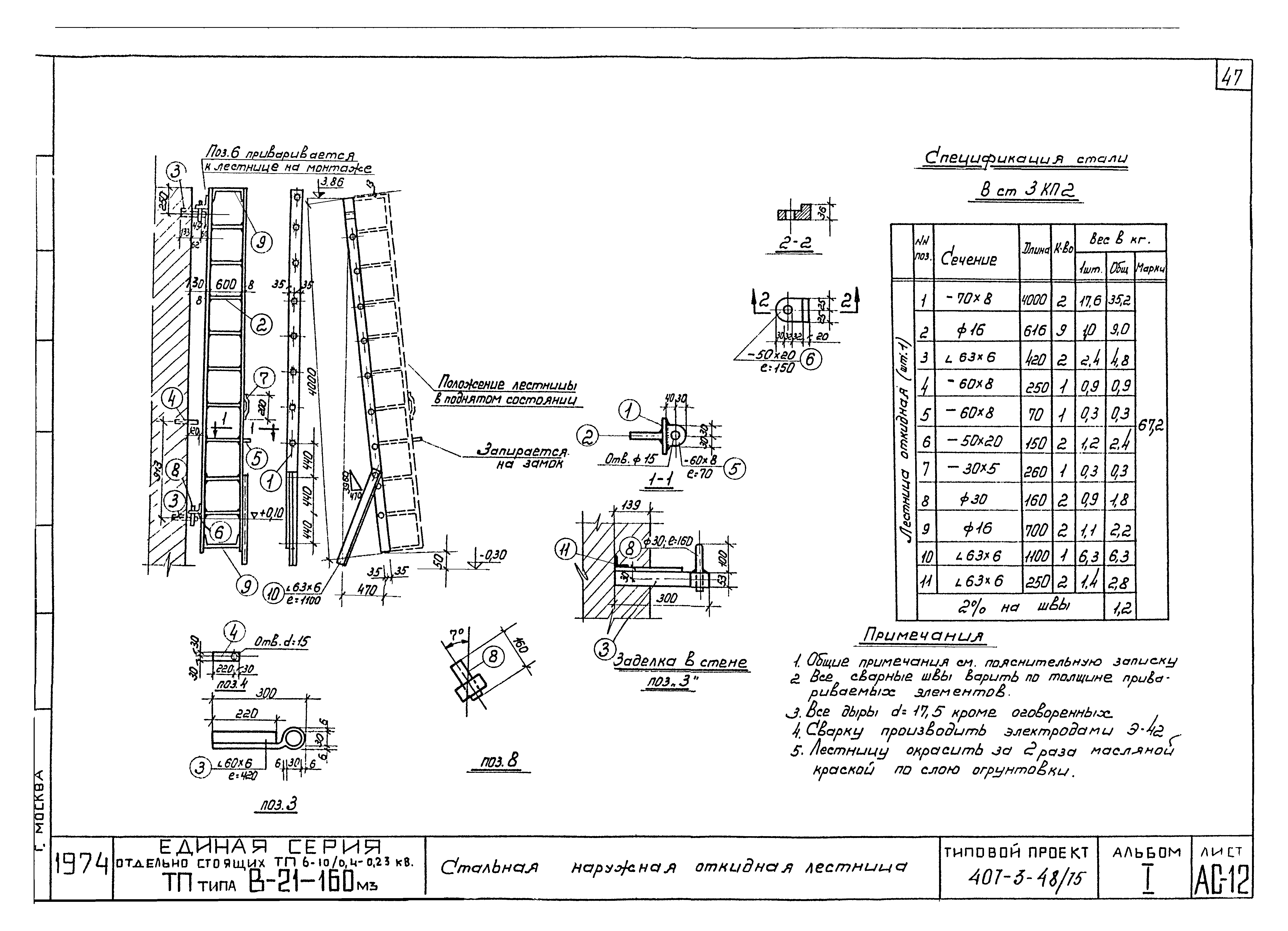
Скачать Типовой проект 407-3-48/75 Альбом I. Электротехническая и архитектурно-строительная частиДата актуализации: 01.01.2021
|
| Обозначение: | Типовой проект 407-3-48/75 |
| Обозначение англ: | 407-3-48/75 |
| Статус: | заменен |
| Название рус.: | Альбом I. Электротехническая и архитектурно-строительная части |
| Дата добавления в базу: | 12.02.2016 |
| Дата актуализации: | 01.01.2021 |
| Дата введения: | 16.06.1975 |
| Дата окончания срока действия: | 01.06.1982 |
| Разработан: | Гипрокоммунэнерго |
| Утверждён: | 02.09.1974 Минжилкомхоз РСФСР (Russian Federation Minzhilkomkhoz 22тд) |
| Издан: | ЦИТП Госстроя СССР (CITP, Gosstroy (USSR) 1975 г. ) |
| Заменяет собой: |
|
| Чем заменён: |

















































