Скачать ВСН 9-72 Временные указания по проектированию, изготовлению и применению в жилищном строительстве полов раздельного типа с основанием из легкобетонных панелейДата актуализации: 01.01.2021
|
| Обозначение: | ВСН 9-72 |
| Обозначение англ: | VSN 9-72 |
| Статус: | взамен |
| Название рус.: | Временные указания по проектированию, изготовлению и применению в жилищном строительстве полов раздельного типа с основанием из легкобетонных панелей |
| Дата добавления в базу: | 01.01.2019 |
| Дата актуализации: | 01.01.2021 |
| Дата введения: | 01.10.1972 |
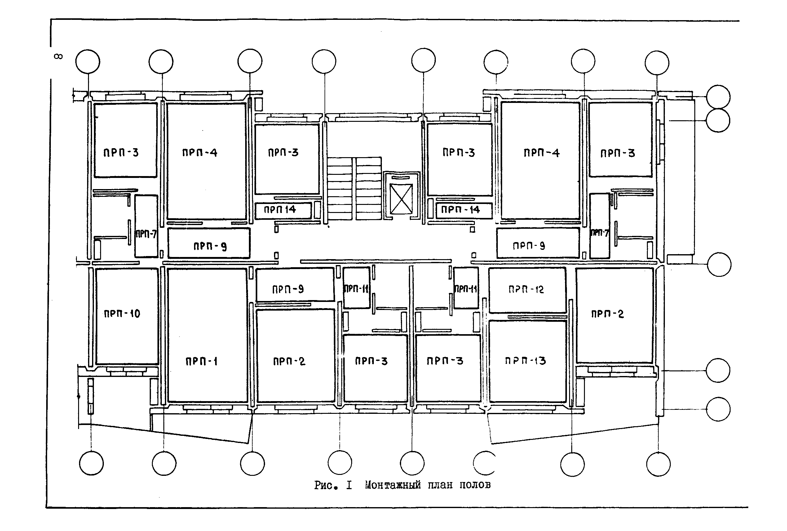
| Область применения: | В указаниях содержатся требования к легкобетонным панелям оснований пола, монтируемым раздельно от конструкции несущей части перекрытий |
| Оглавление: | 1 Общие положения 2 Технические требования на легкобетонные панели основания пола 3 Указания по проектированию легкобетонных панелей основания пола 4 Указания по изготовлению легкобетонных панелей основания пола в кассетных установках 5 Приемка, маркировка, хранение и транспортирование панелей 6 Правила монтажа и приёмки панельного основания пола |
| Разработан: | Госгражданстрой ЦНИИЭП жилища |
| Утверждён: | 01.10.1972 Государственный комитет по гражданскому строительству и архитектуре при Госстрое СССР |
| Заменяет собой: |
|
| Нормативные ссылки: |





























