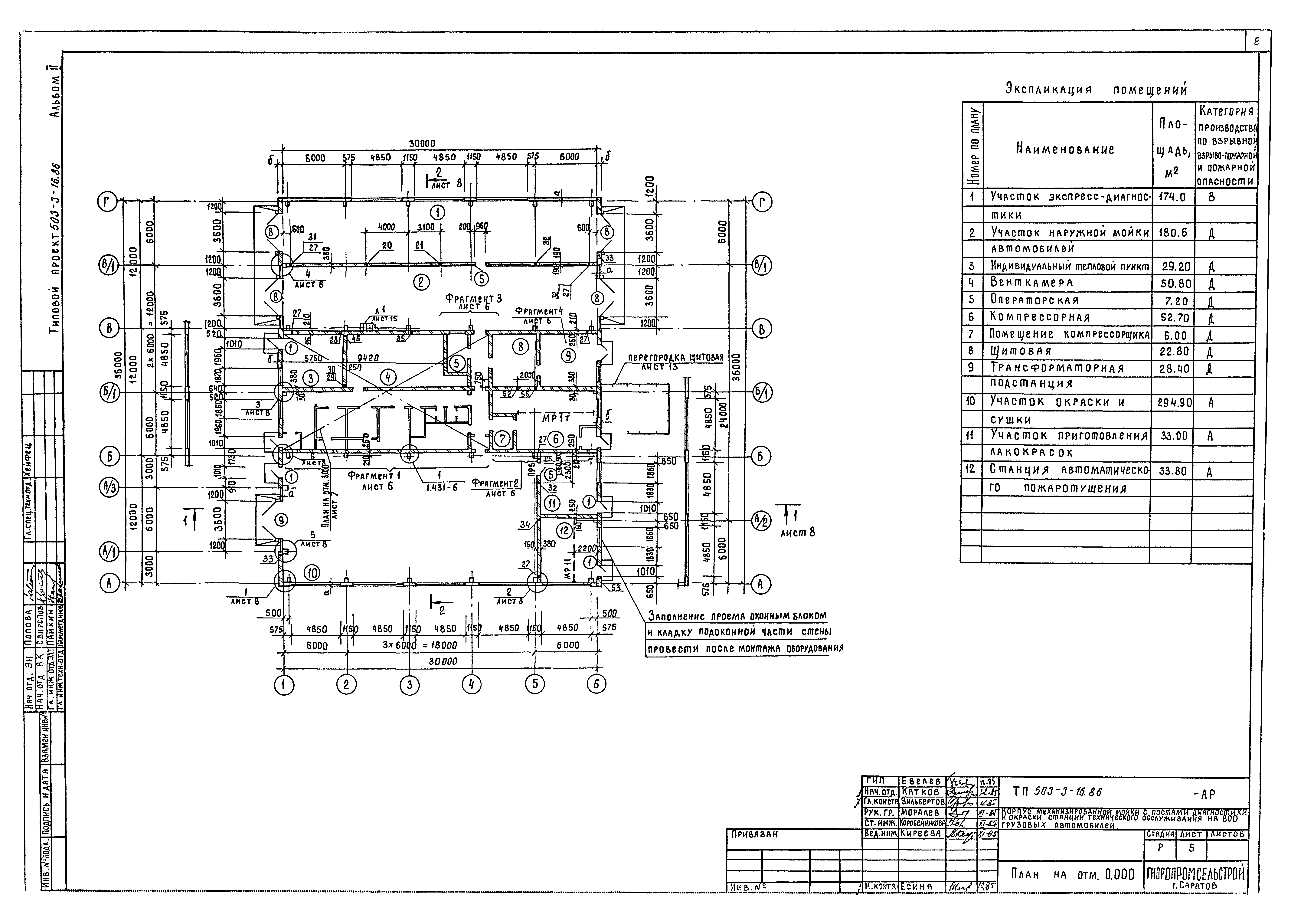
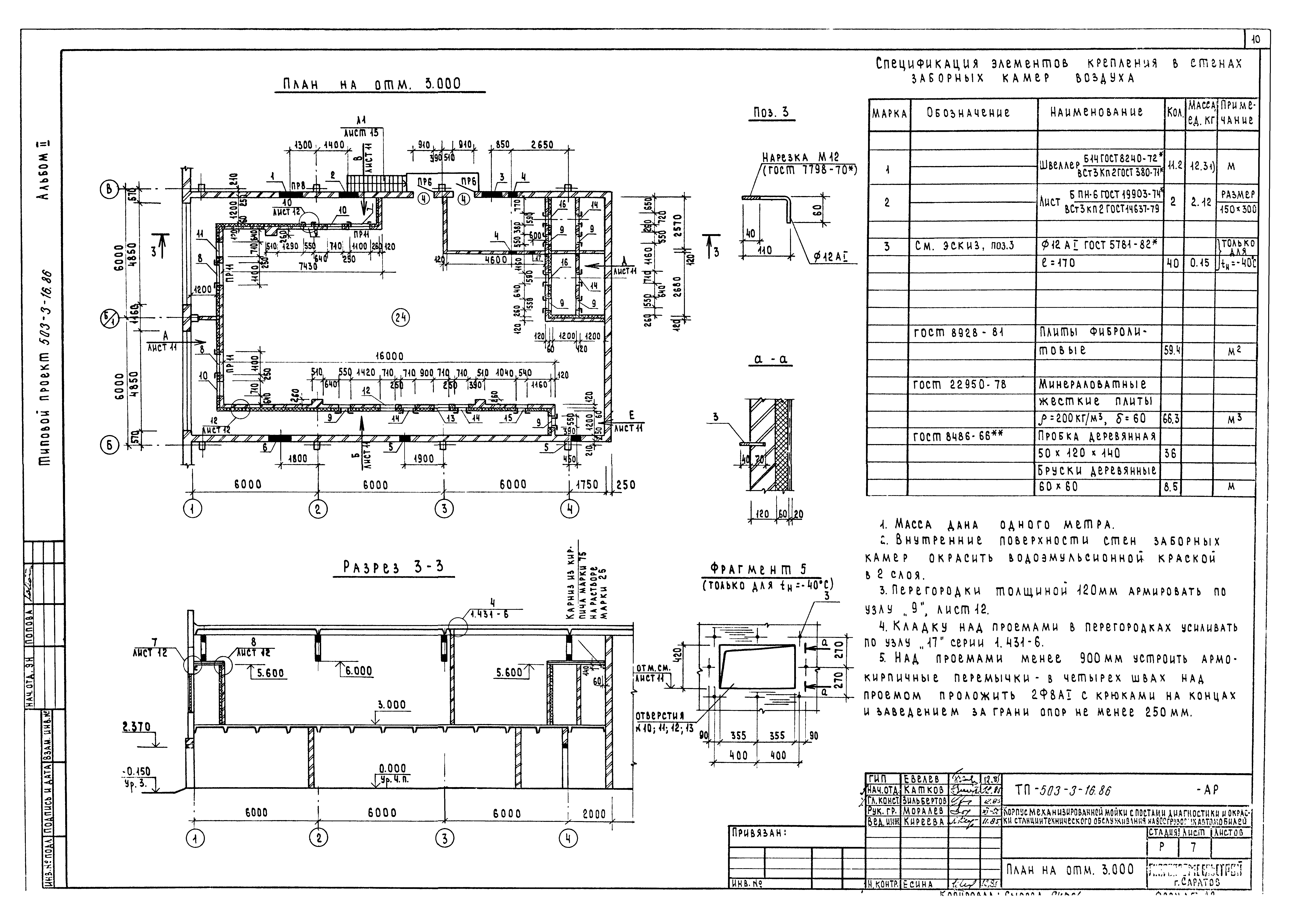
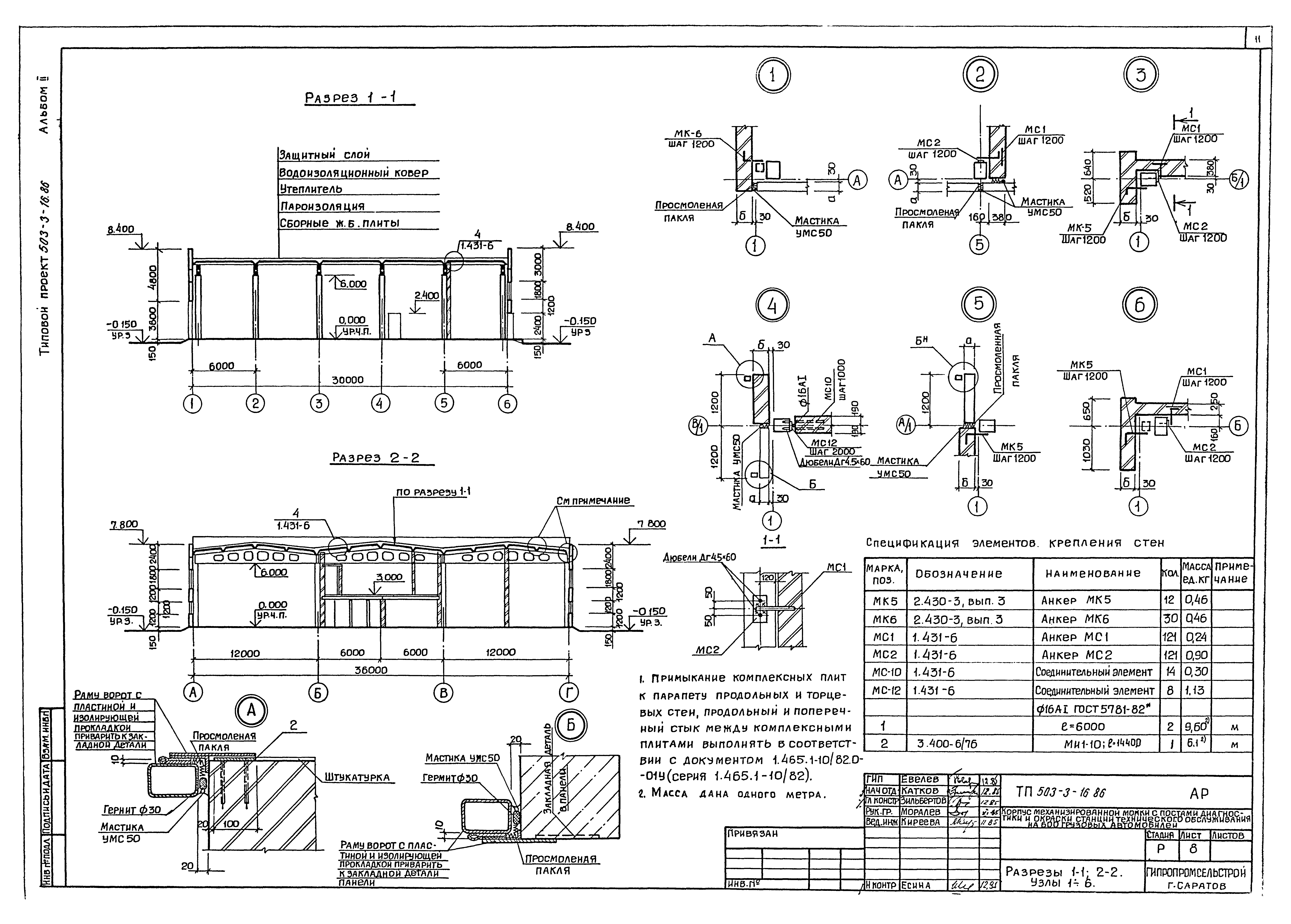
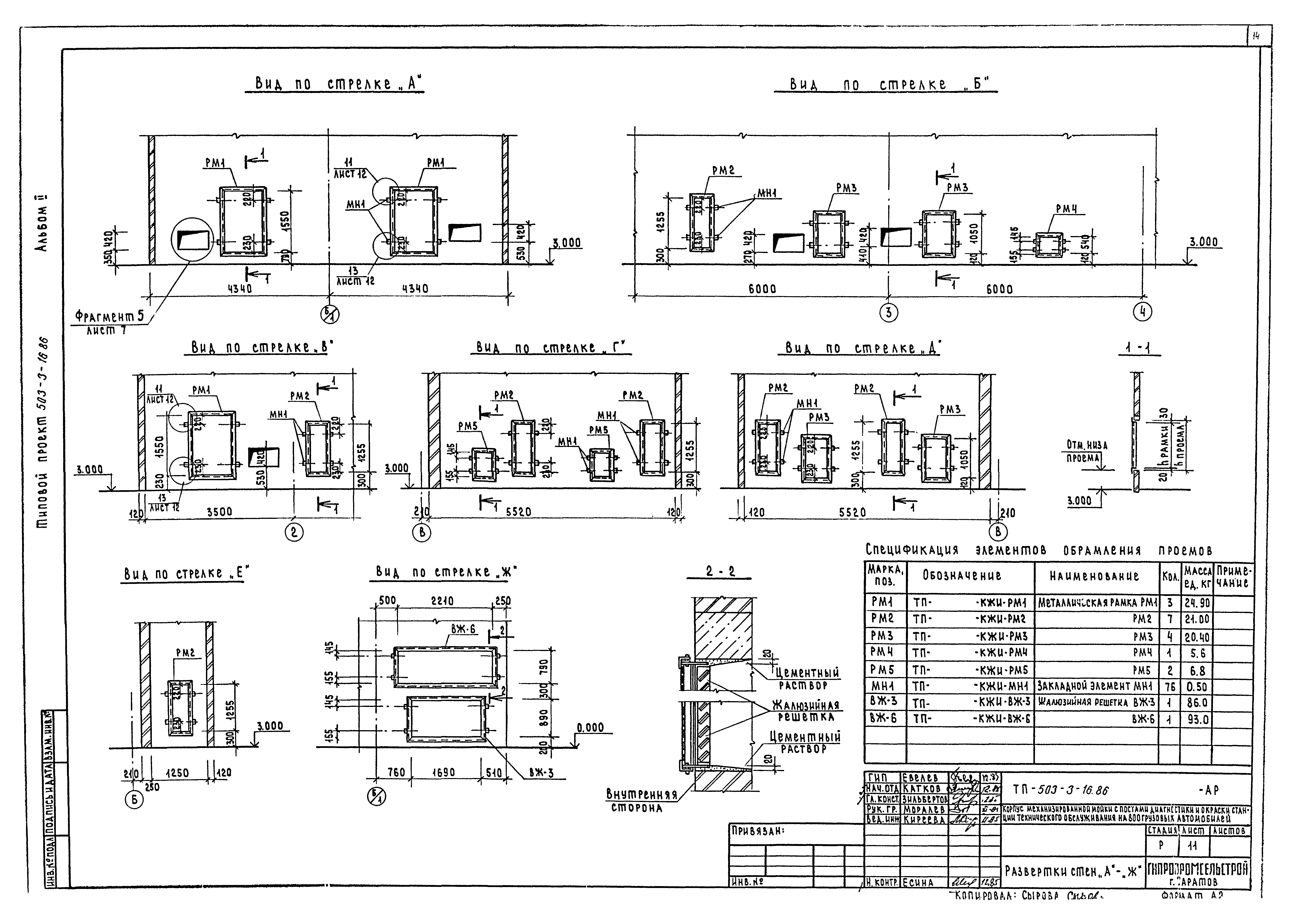
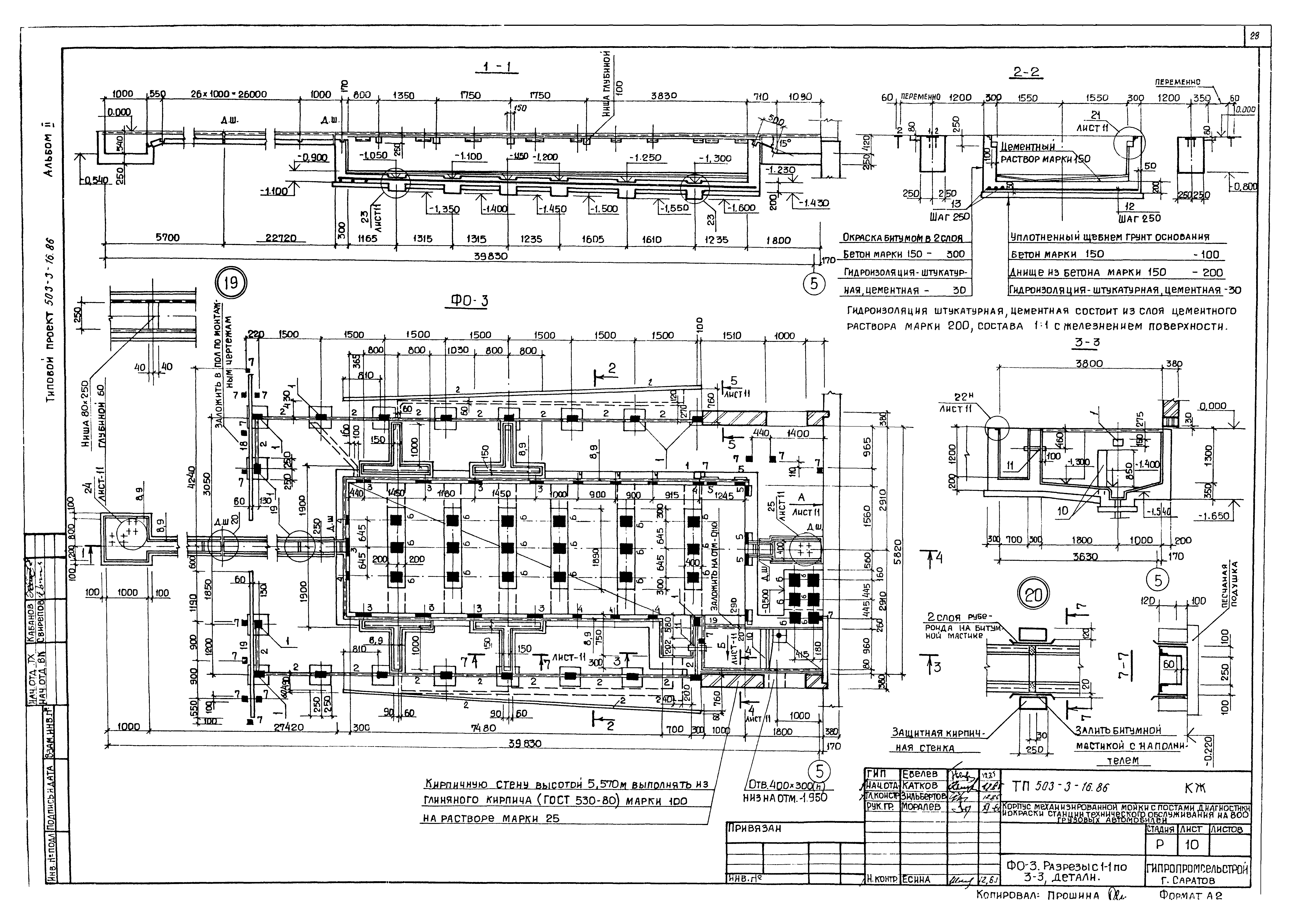
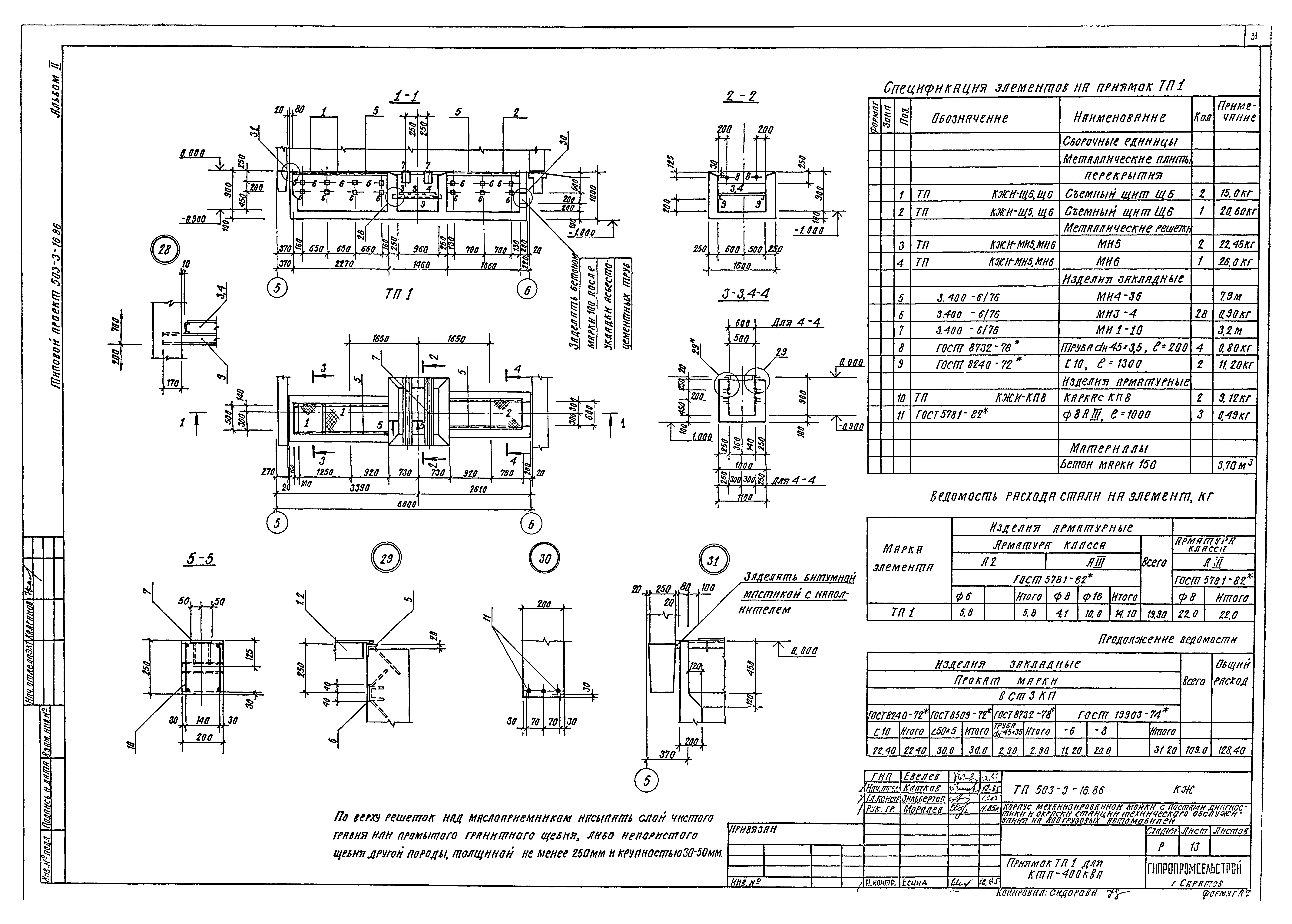
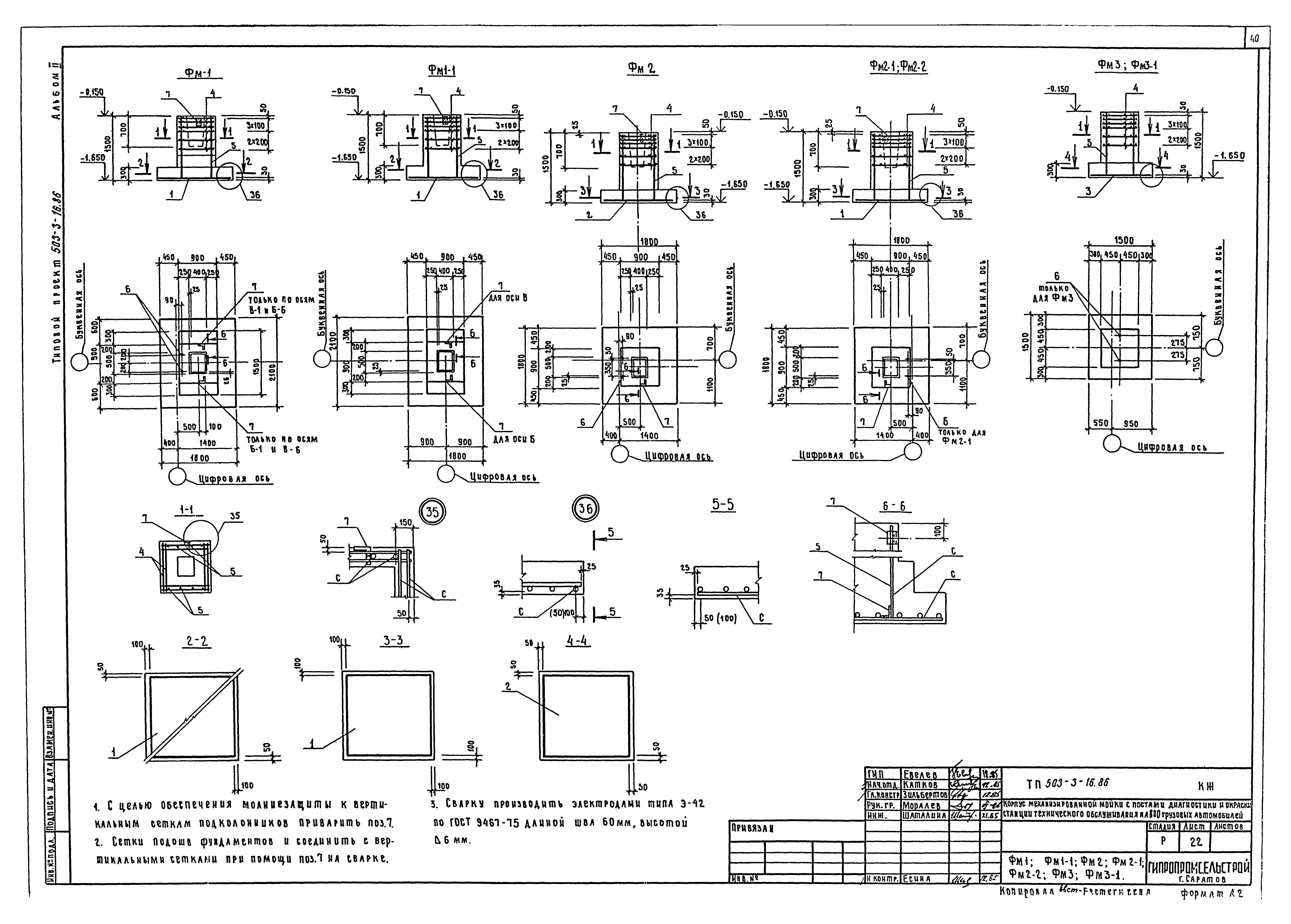
Скачать Типовой проект 503-3-16.86 Альбом II. Архитектурные решения. Конструкции железобетонныеДата актуализации: 01.01.2021
|
| Обозначение: | Типовой проект 503-3-16.86 |
| Обозначение англ: | 503-3-16.86 |
| Статус: | не определен законодательством |
| Название рус.: | Альбом II. Архитектурные решения. Конструкции железобетонные |
| Дата добавления в базу: | 01.02.2017 |
| Дата актуализации: | 01.01.2021 |
| Дата введения: | 04.12.1985 |
| Дата окончания срока действия: | 30.06.2003 |
| Разработан: | Гипропромсельстрой |
| Утверждён: | 04.12.1985 Госкомсельхозтехника СССР (67-85) |
| Издан: | ЦИТП Госстроя СССР (CITP, Gosstroy (USSR) 1987 г. ) |
| Заменяет собой: |
|









































