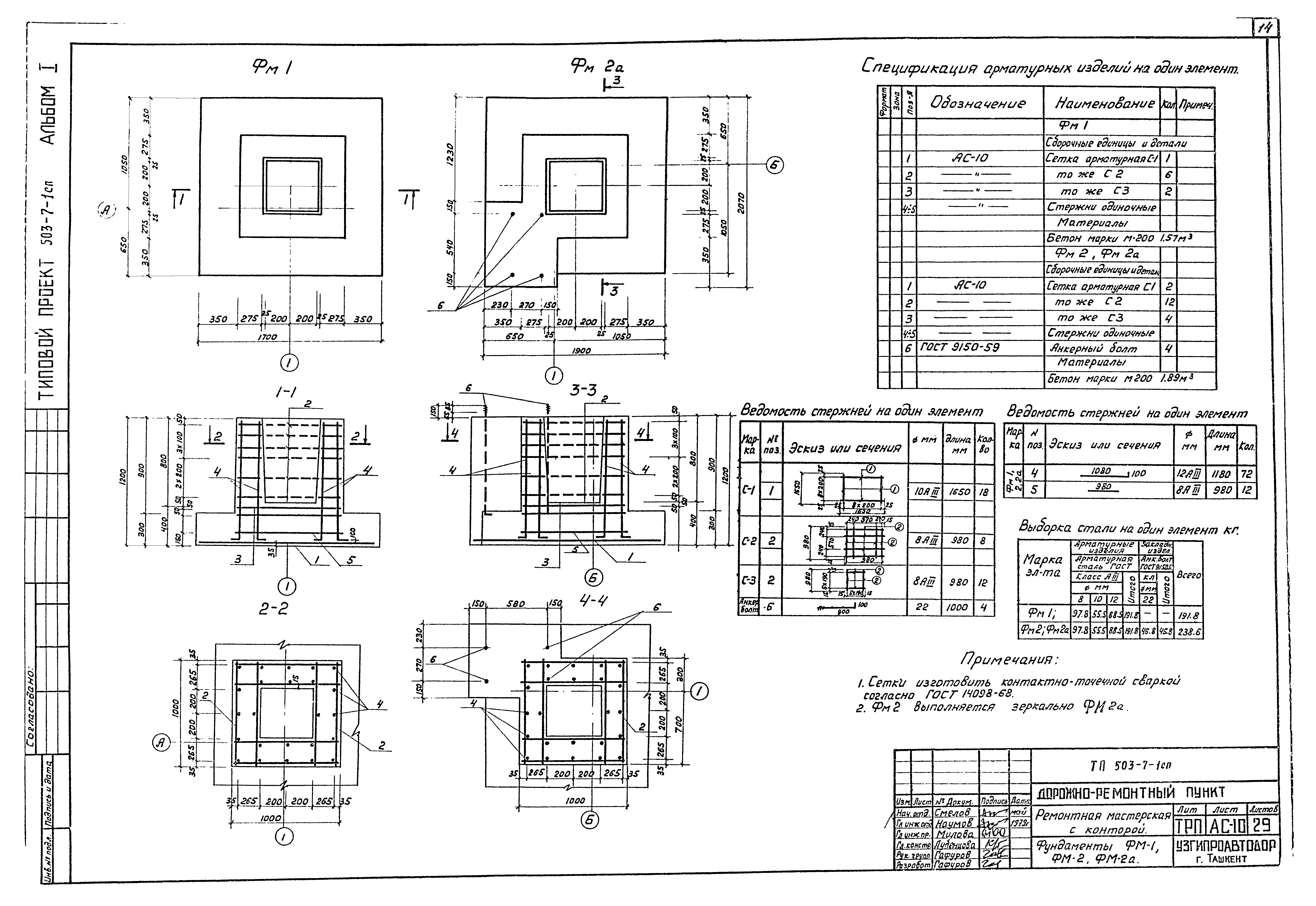
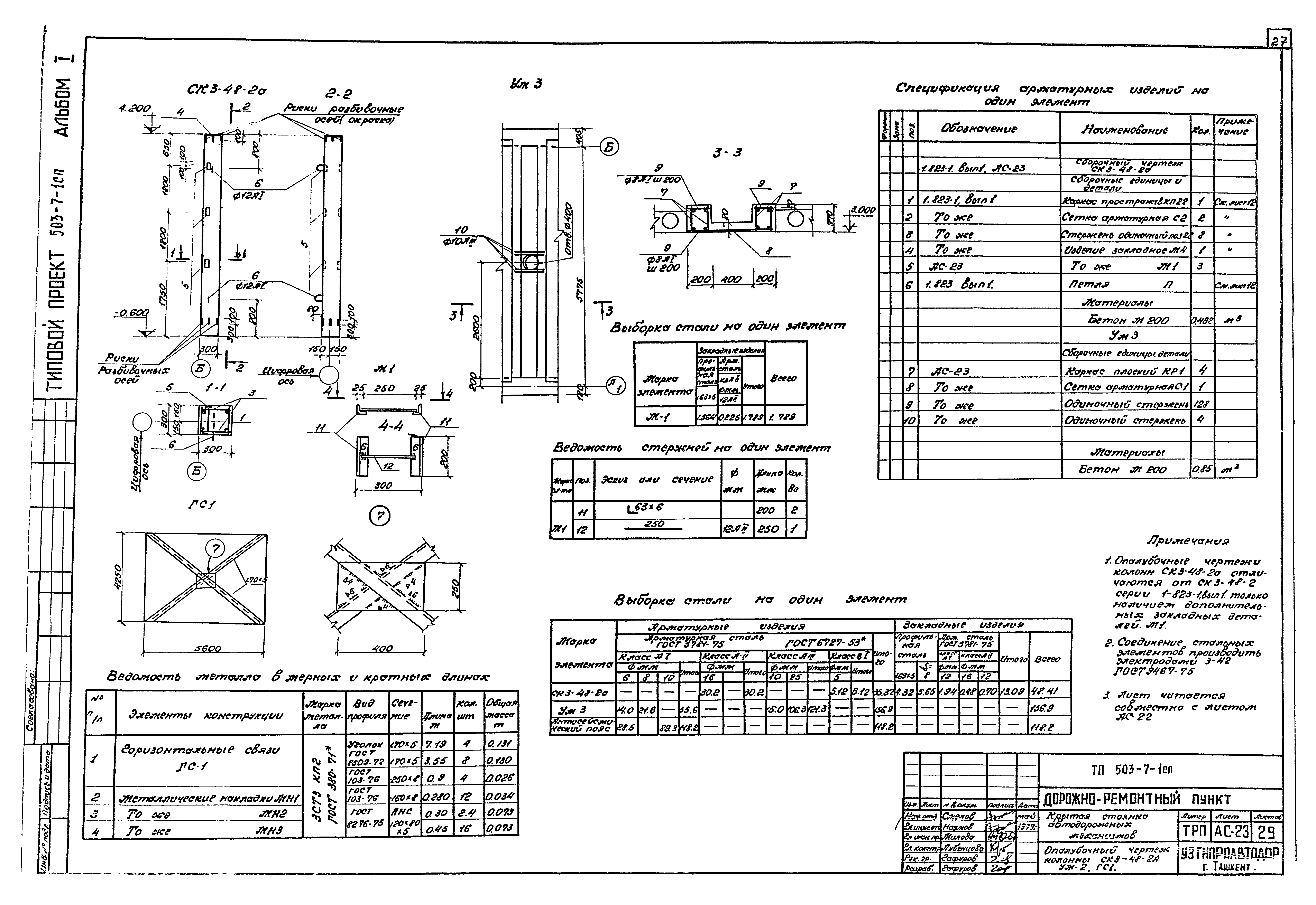
Скачать Типовой проект 503-7-1сп Альбом I. Архитектурно-строительные и технологические чертежиДата актуализации: 01.01.2021 Типовой проект 503-7-1сп
Альбом I. Архитектурно-строительные и технологические чертежи| Обозначение: | Типовой проект 503-7-1сп | | Обозначение англ: | 503-7-1сп | | Статус: | действует | | Название рус.: | Альбом I. Архитектурно-строительные и технологические чертежи | | Дата добавления в базу: | 01.02.2017 | | Дата актуализации: | 01.01.2021 | | Дата введения: | 28.05.1980 | | Разработан: | Узгипроавтодор
| | Утверждён: | 09.08.1979 Госстрой УзССР (148)
|
                                   
|