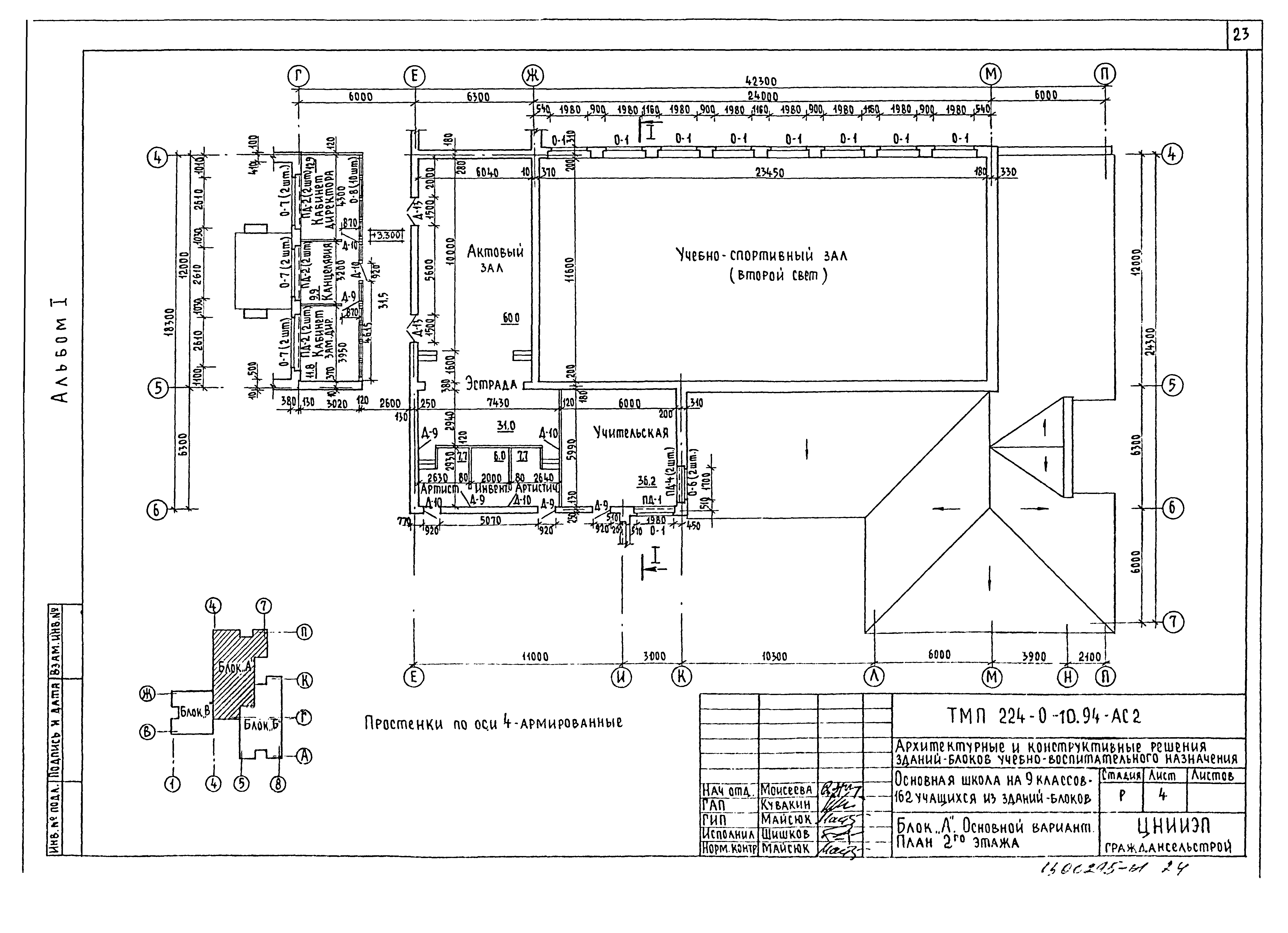
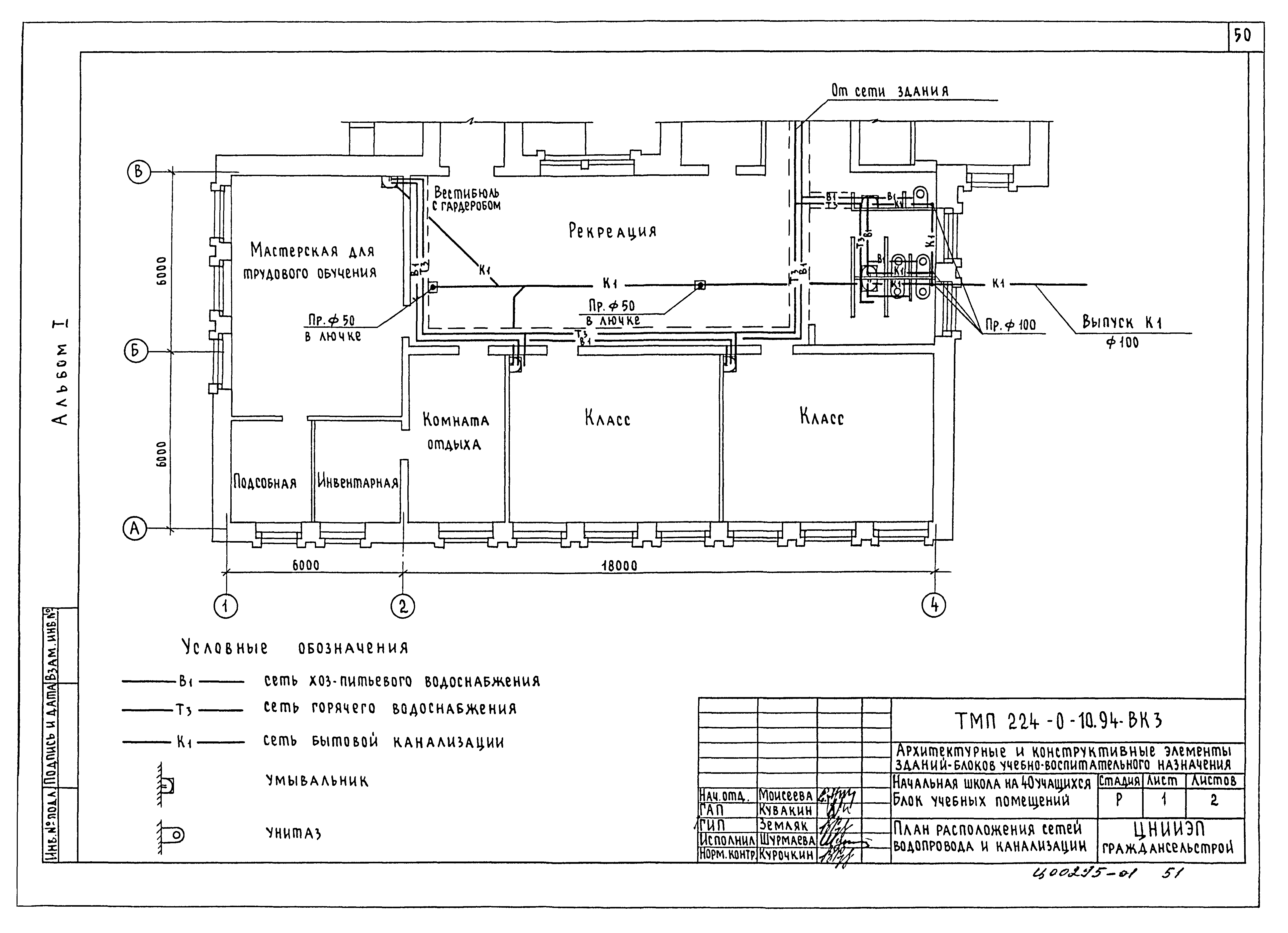
Скачать Типовые материалы для проектирования 224-0-10.94 Альбом I. Пояснительная записка. Архитектурно-строительные решения. Отопление и вентиляция. Внутренние водопровод и канализация. Электроосвещение. Связь и сигнализацияДата актуализации: 01.01.2021 Типовые материалы для проектирования 224-0-10.94
Альбом I. Пояснительная записка. Архитектурно-строительные решения. Отопление и вентиляция. Внутренние водопровод и канализация. Электроосвещение. Связь и сигнализация| Обозначение: | Типовые материалы для проектирования 224-0-10.94 | | Обозначение англ: | 224-0-10.94 | | Статус: | справочные материалы, мп, тпр | | Название рус.: | Альбом I. Пояснительная записка. Архитектурно-строительные решения. Отопление и вентиляция. Внутренние водопровод и канализация. Электроосвещение. Связь и сигнализация | | Дата добавления в базу: | 01.02.2017 | | Дата актуализации: | 01.01.2021 | | Дата введения: | 24.01.1995 | | Разработан: | ЦНИИЭП граждансельстрой
| | Утверждён: | 23.01.1995 Главпроект Минстроя России (9-3-1/20)
|
                                                      
|