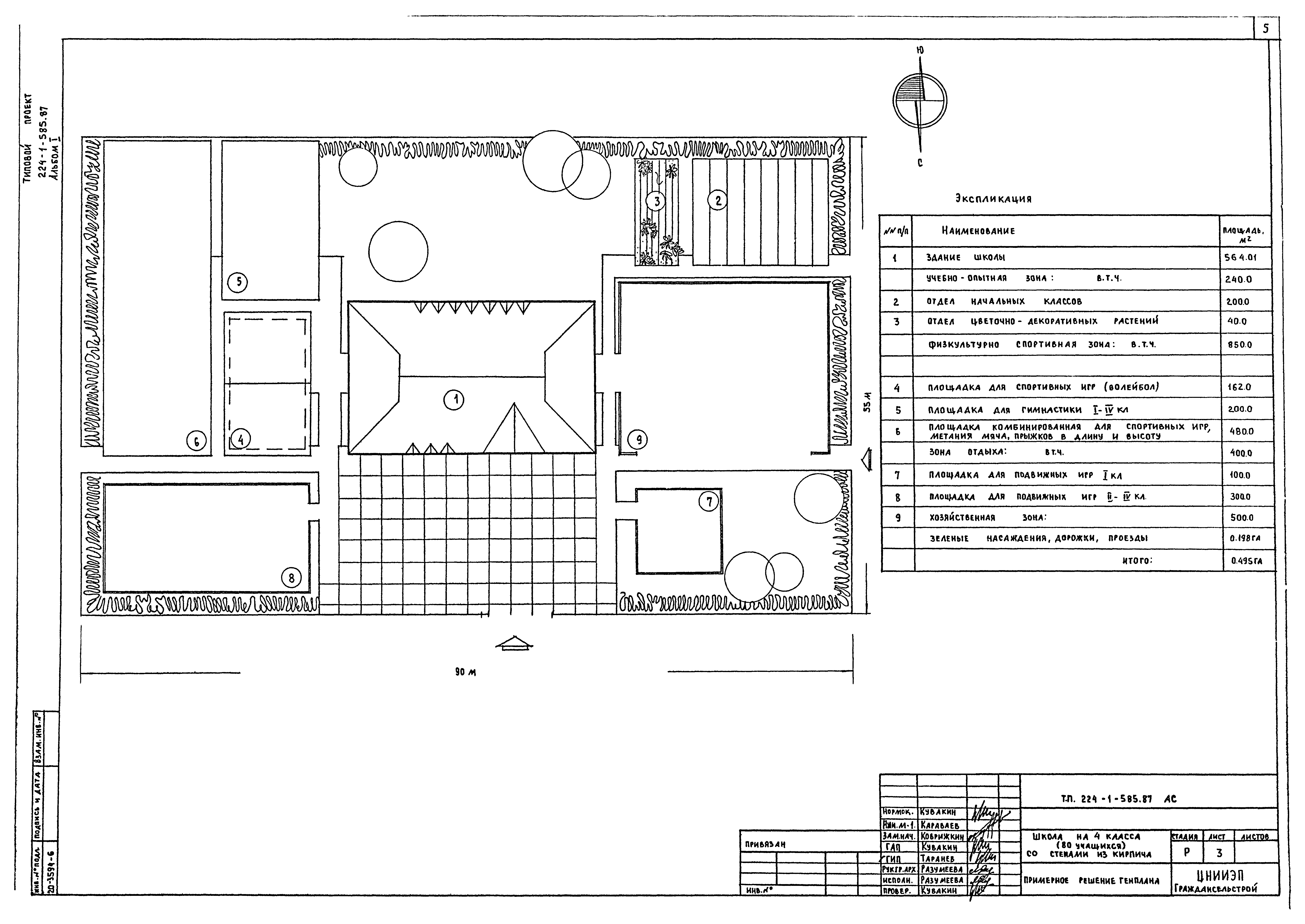
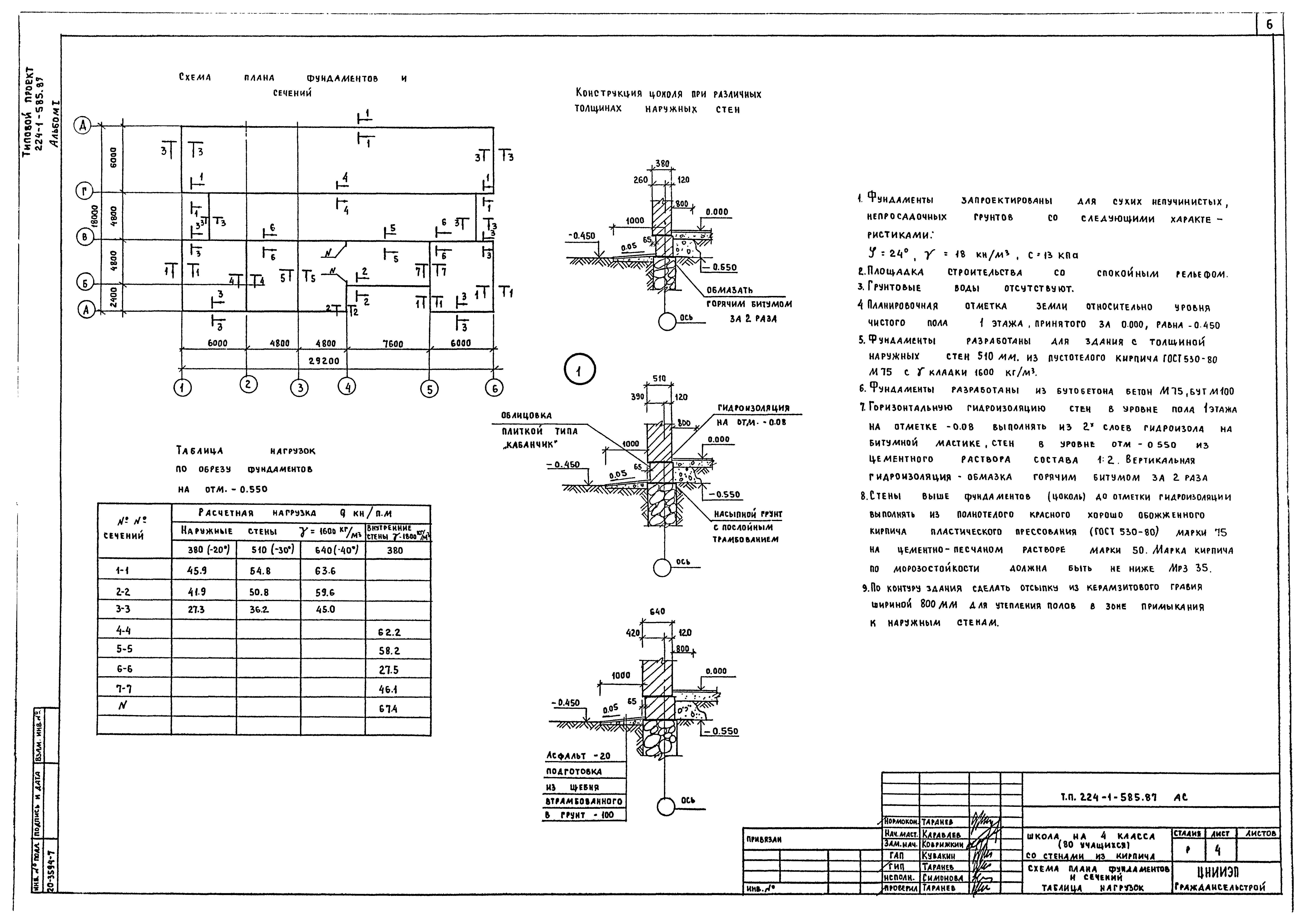
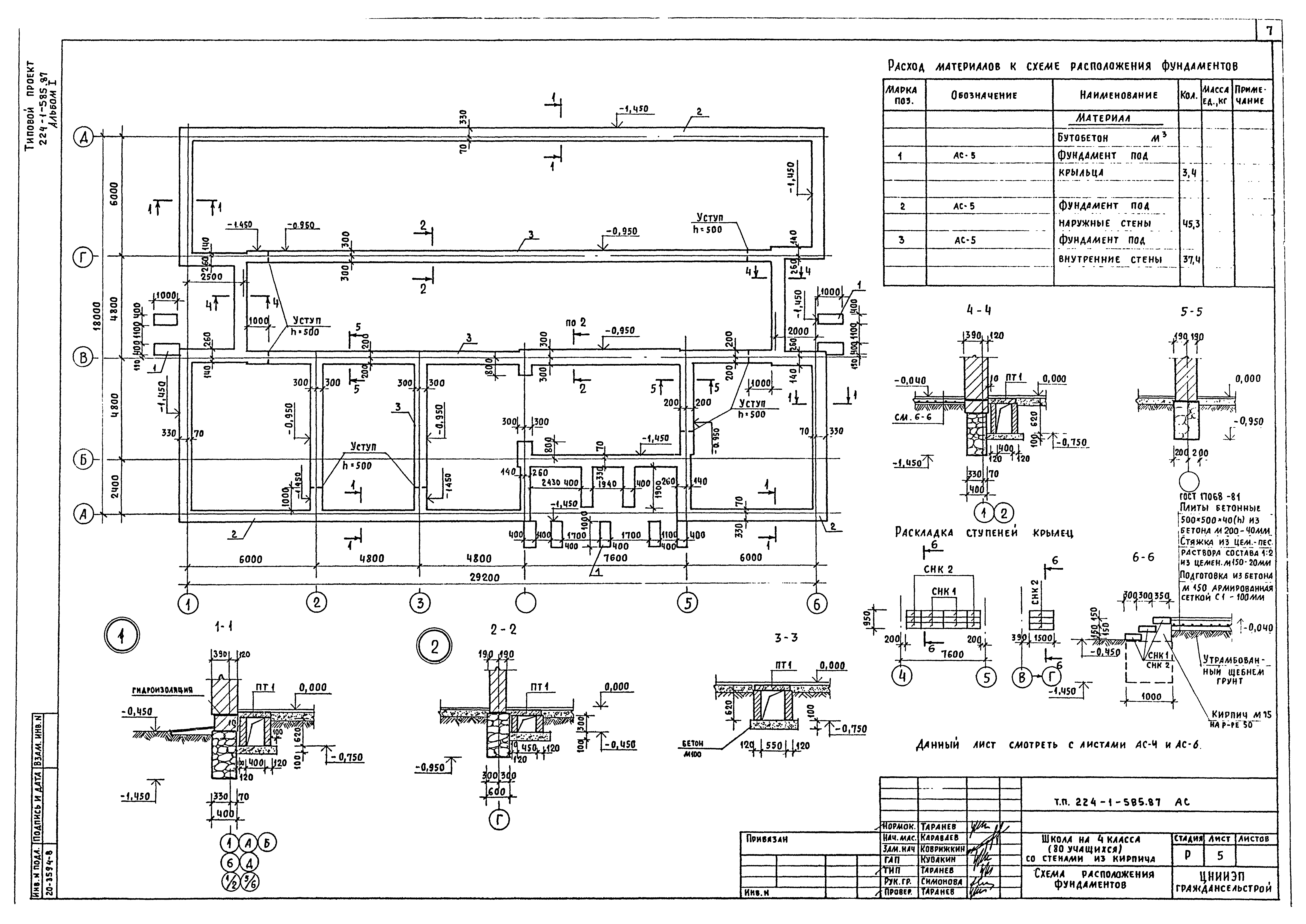
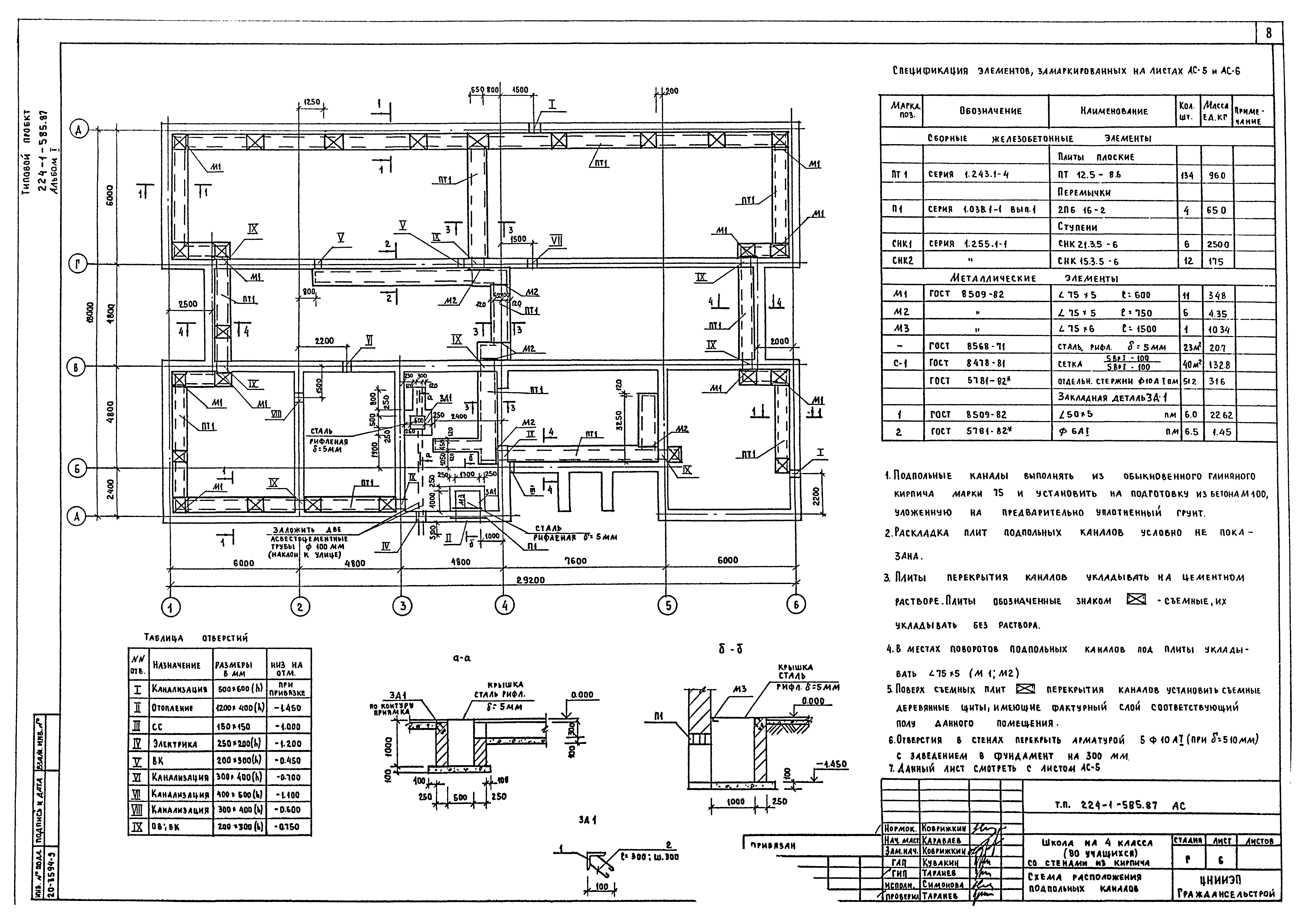
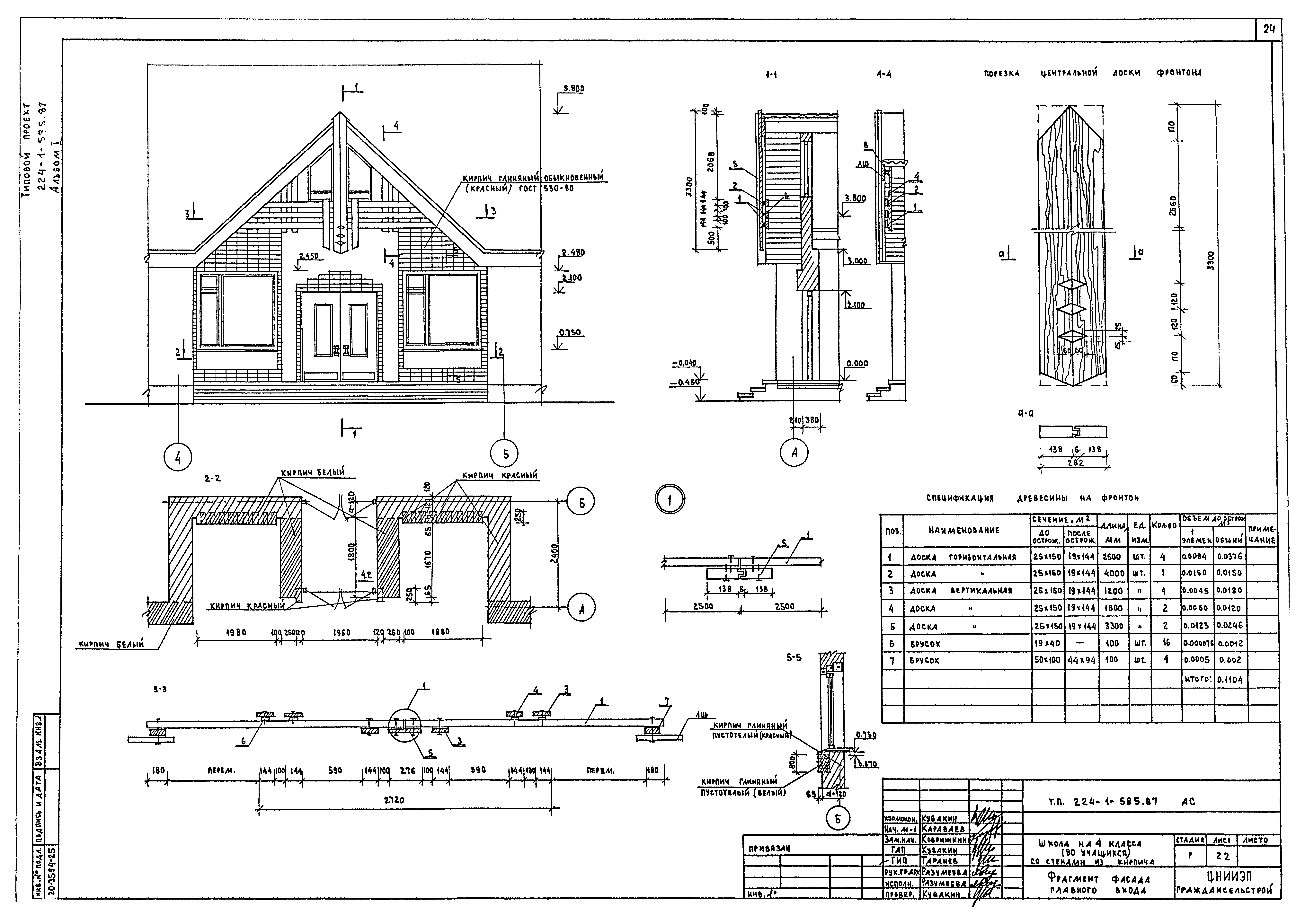
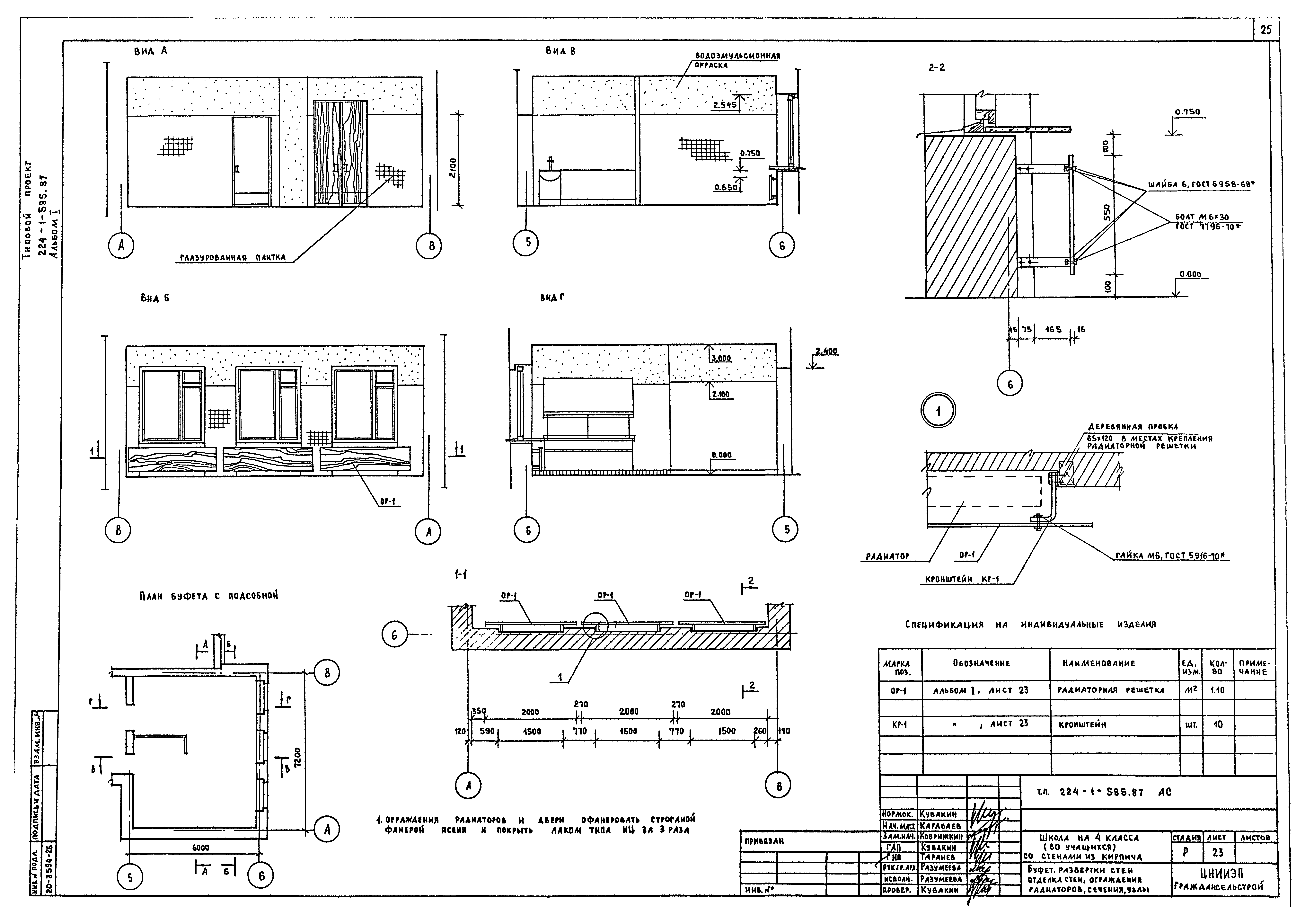
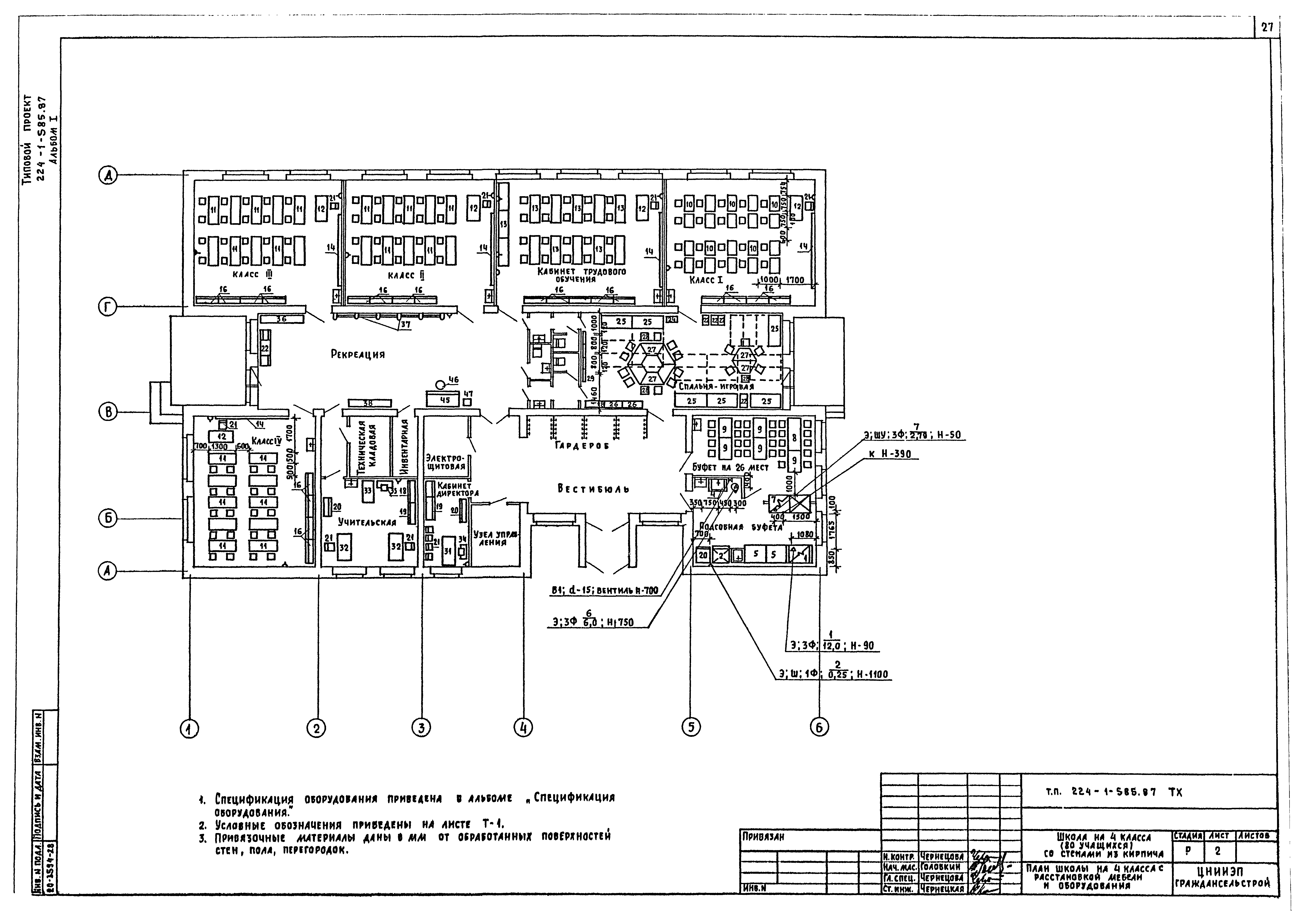
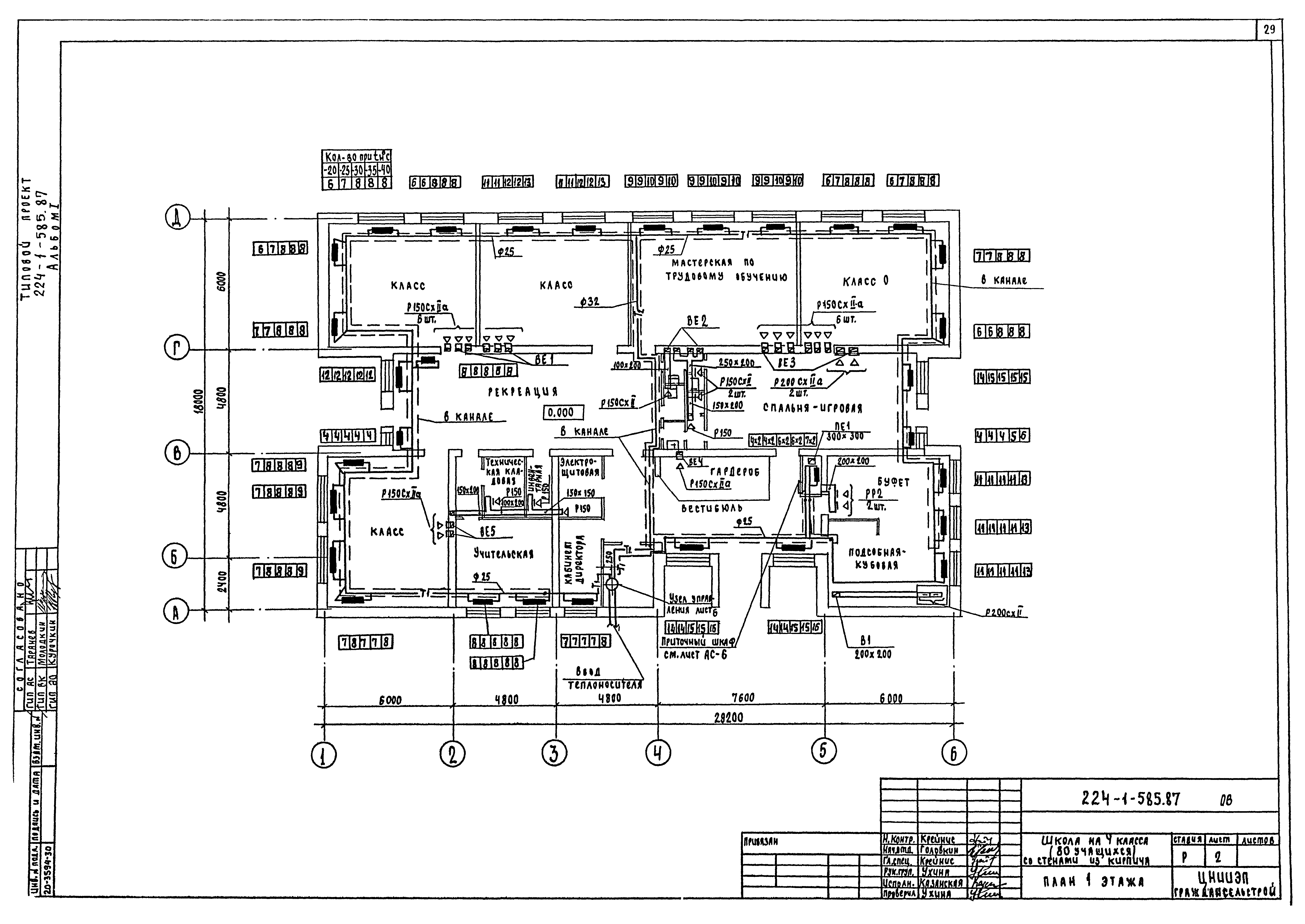
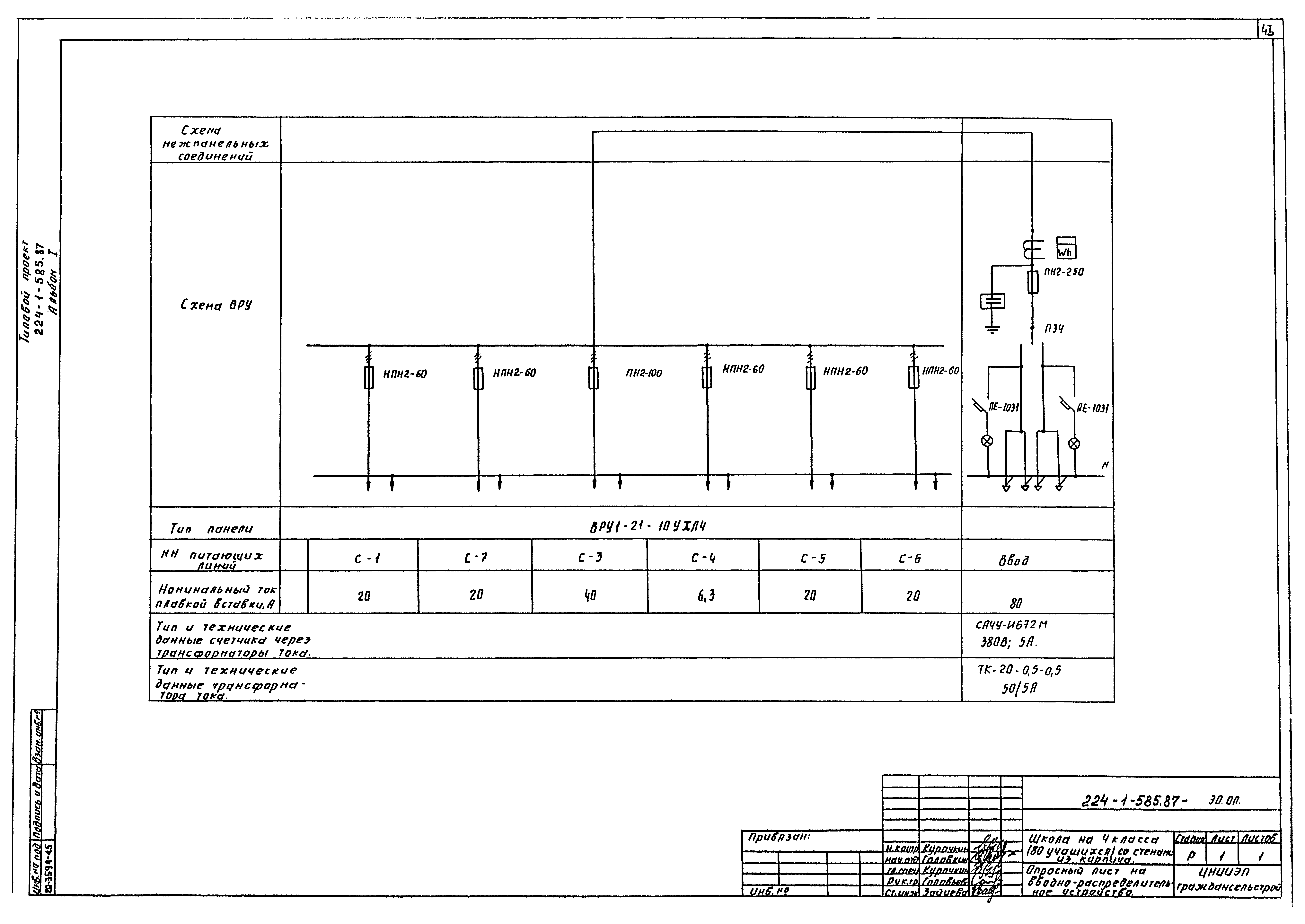
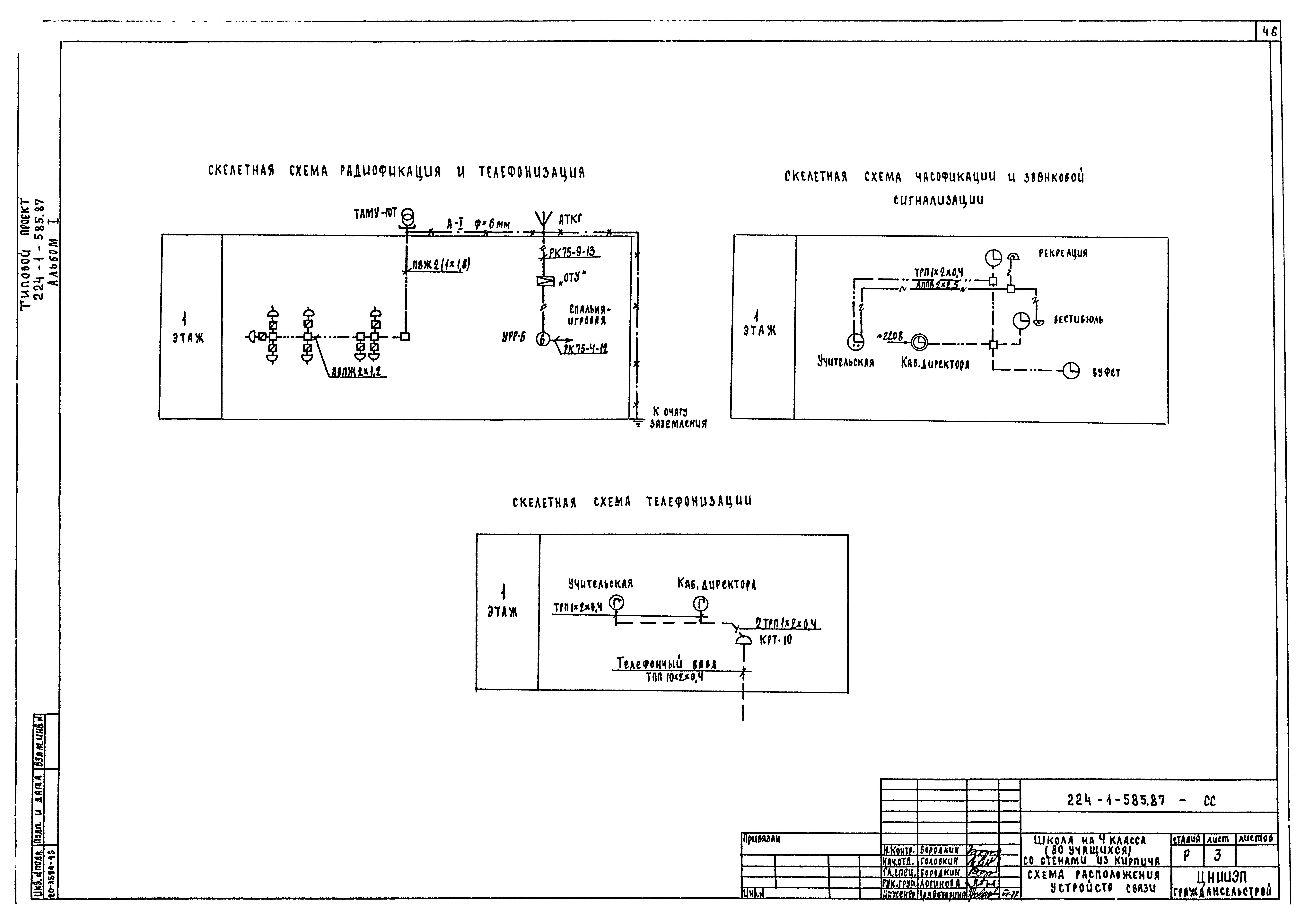
Скачать Типовой проект 224-1-585.87 Альбом I. Архитектурно-строительные, технологические, санитарно-технические чертежи, электрооборудования, связи и сигнализацииДата актуализации: 01.01.2021 Типовой проект 224-1-585.87
Альбом I. Архитектурно-строительные, технологические, санитарно-технические чертежи, электрооборудования, связи и сигнализации| Обозначение: | Типовой проект 224-1-585.87 | | Обозначение англ: | 224-1-585.87 | | Статус: | не определен законодательством | | Название рус.: | Альбом I. Архитектурно-строительные, технологические, санитарно-технические чертежи, электрооборудования, связи и сигнализации | | Дата добавления в базу: | 01.02.2017 | | Дата актуализации: | 01.01.2021 | | Дата введения: | 23.10.1987 | | Дата окончания срока действия: | 30.06.2003 | | Разработан: | ЦНИИЭП граждансельстрой
| | Утверждён: | 23.10.1987 Госгражданстрой (Gosgrazhdanstroy 323)
|
                                              
|