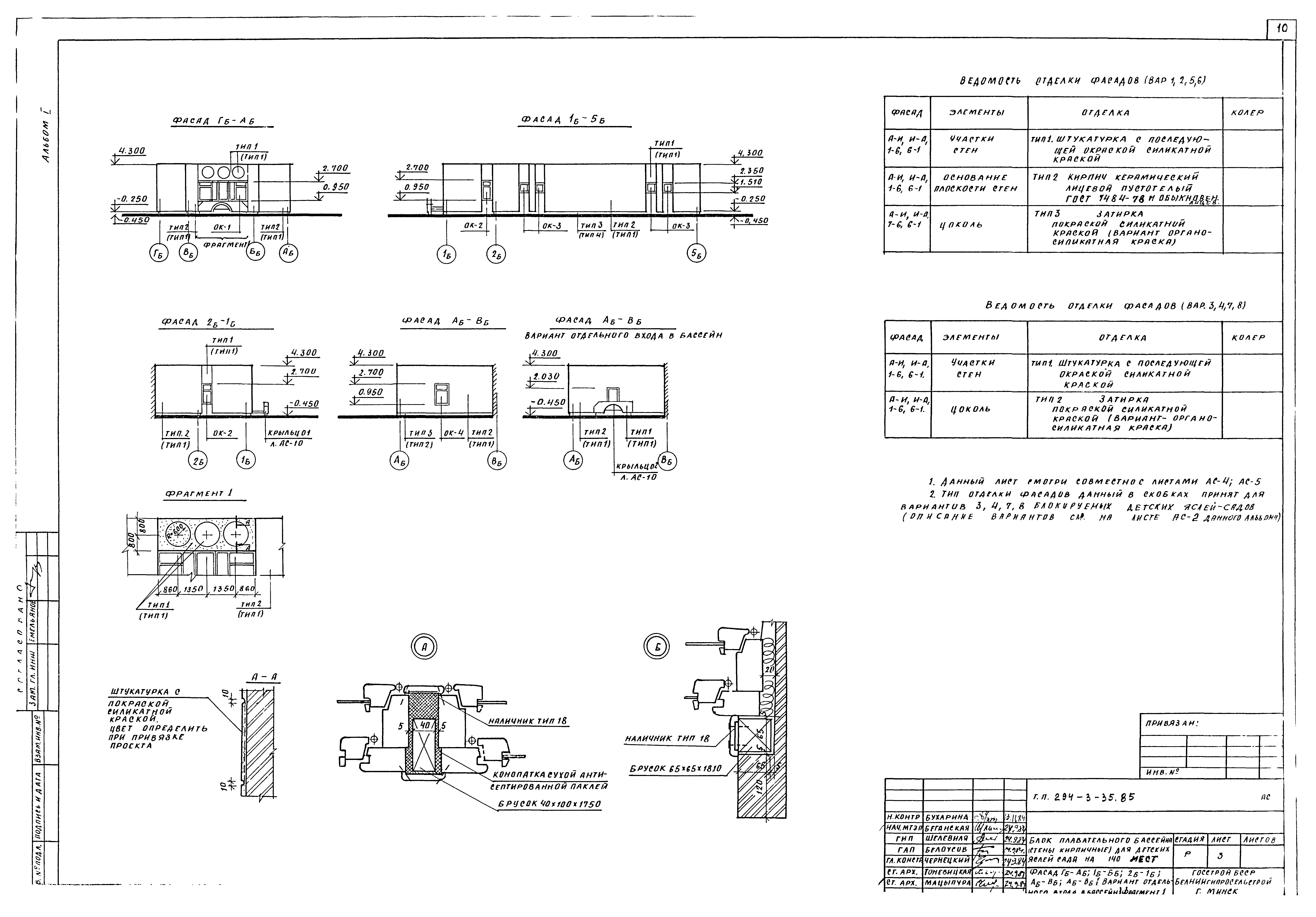
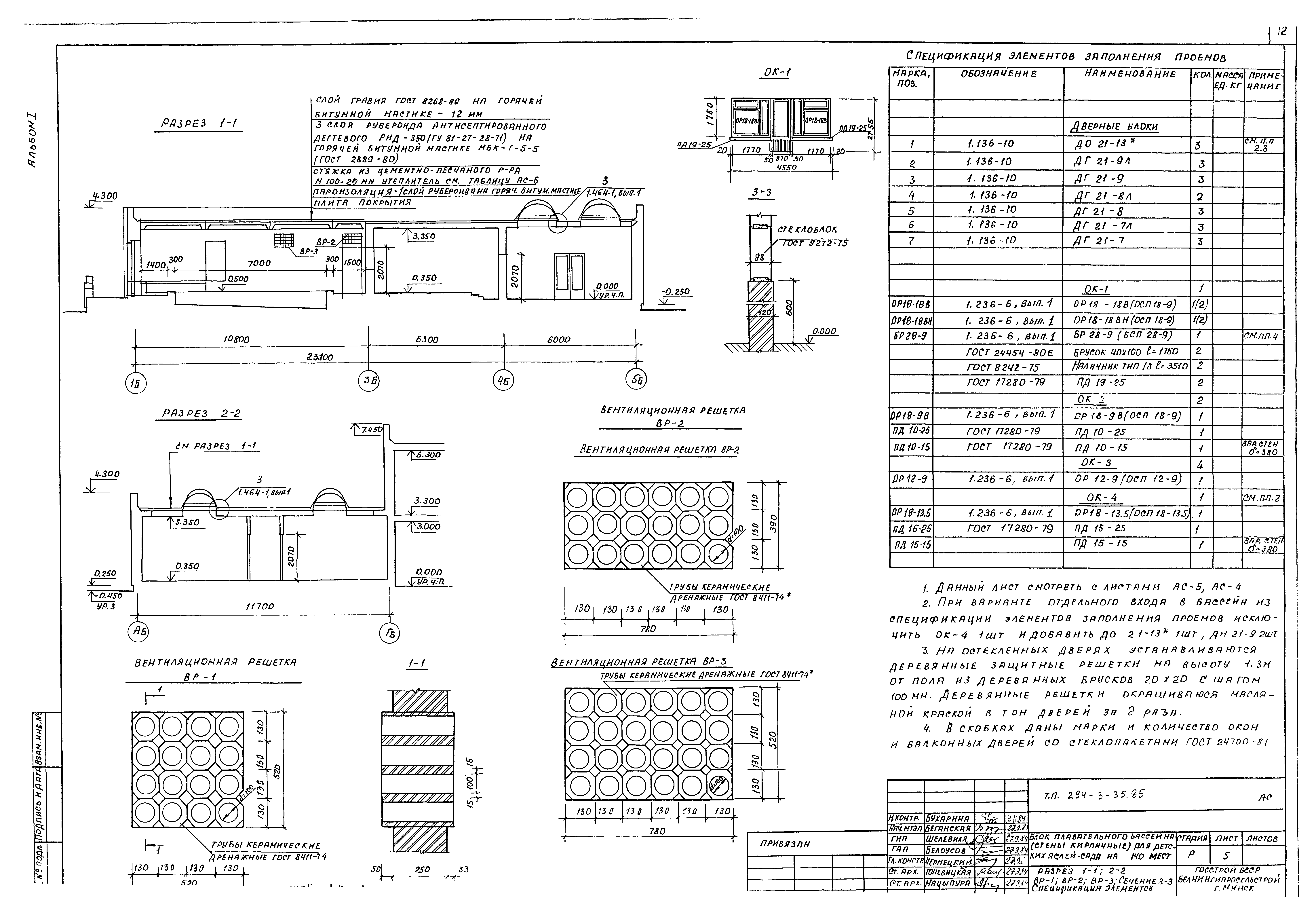
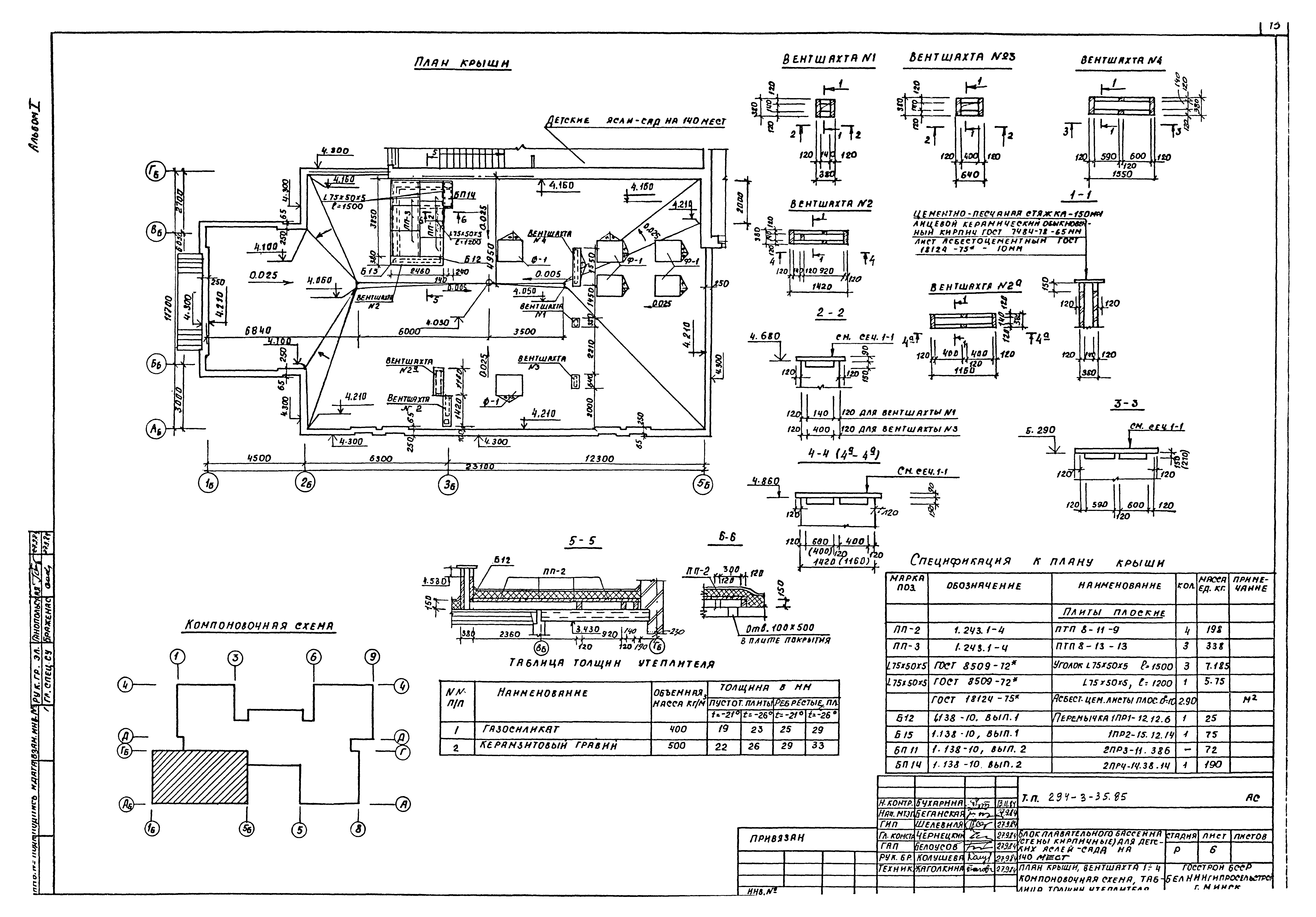
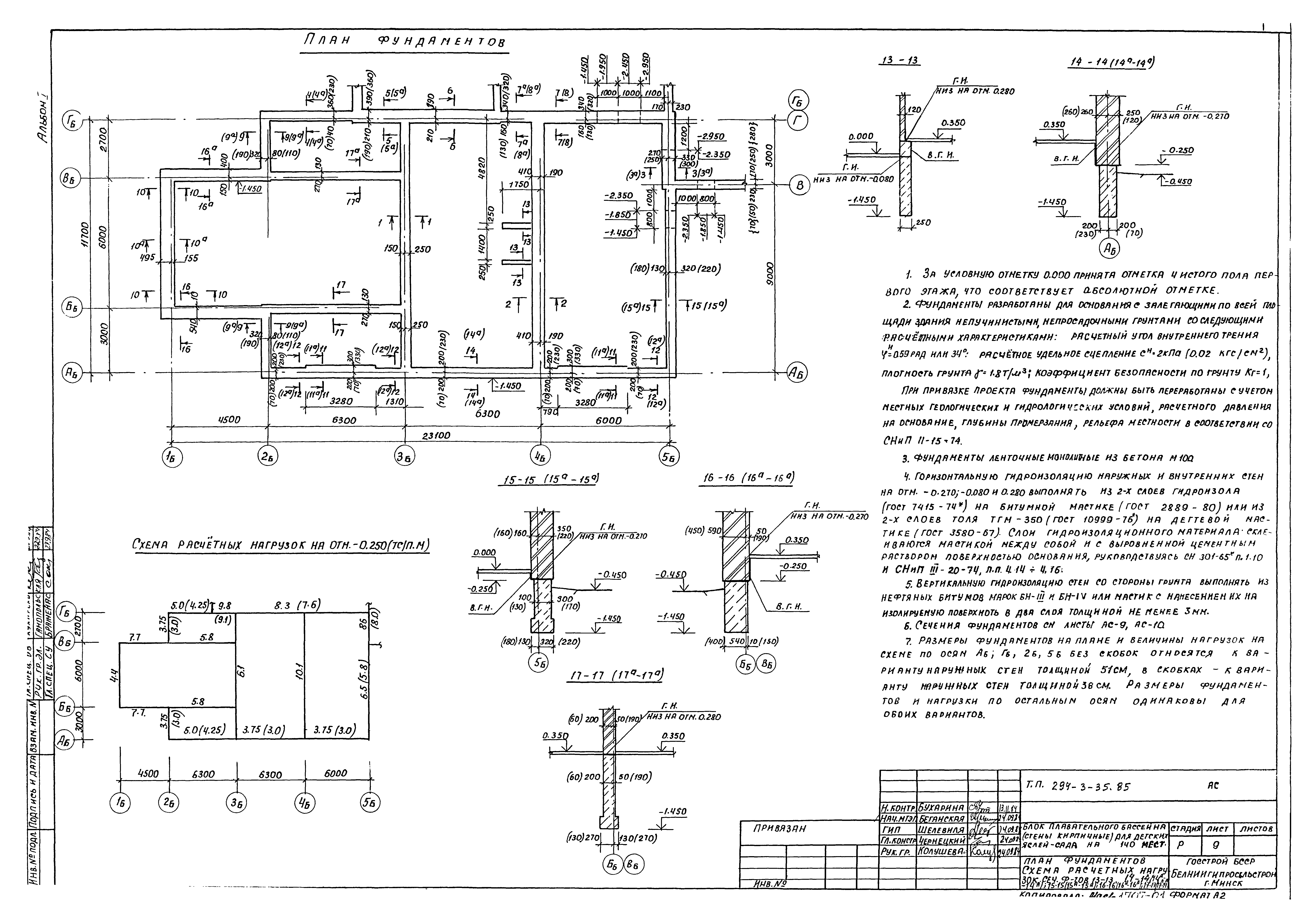
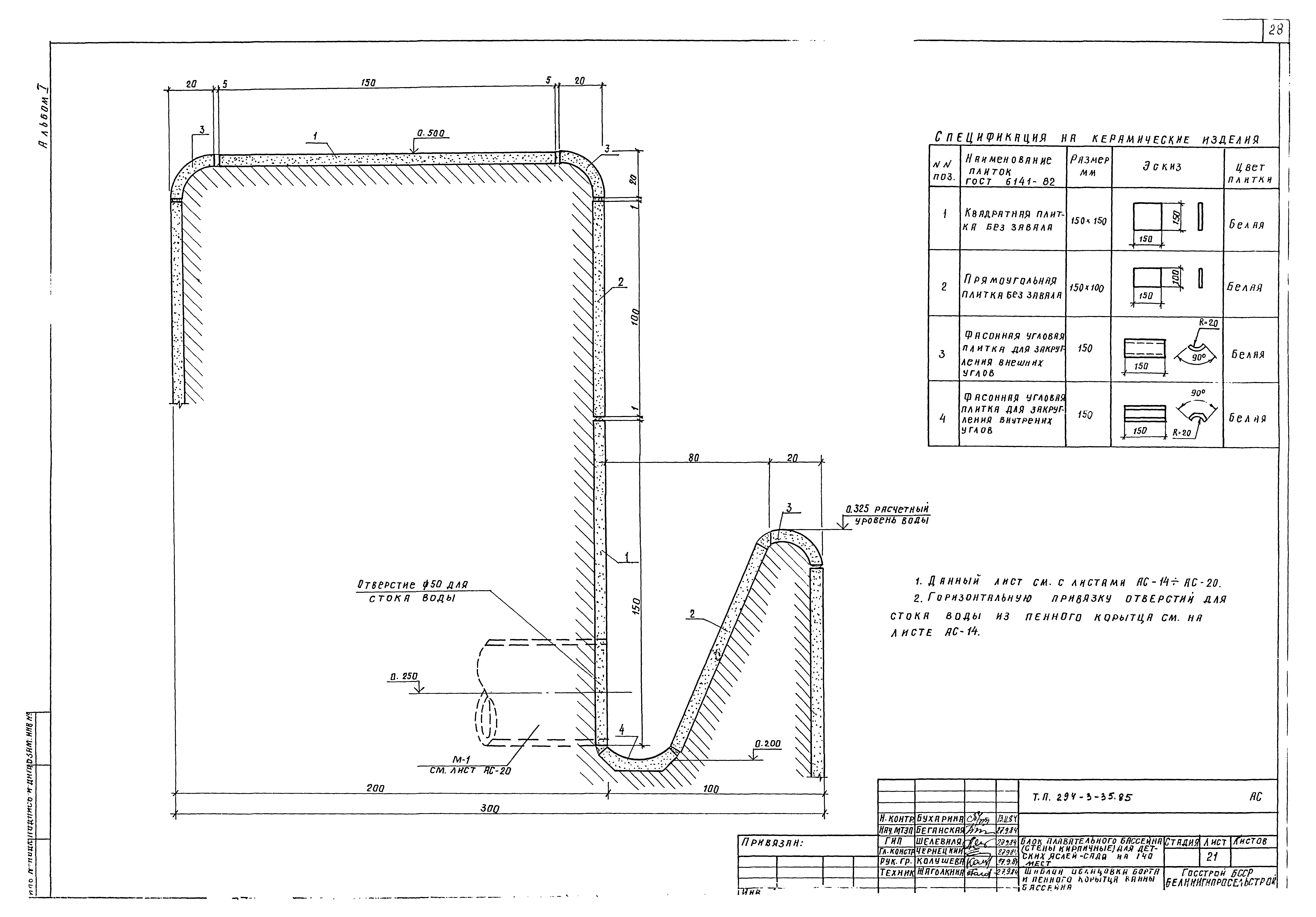
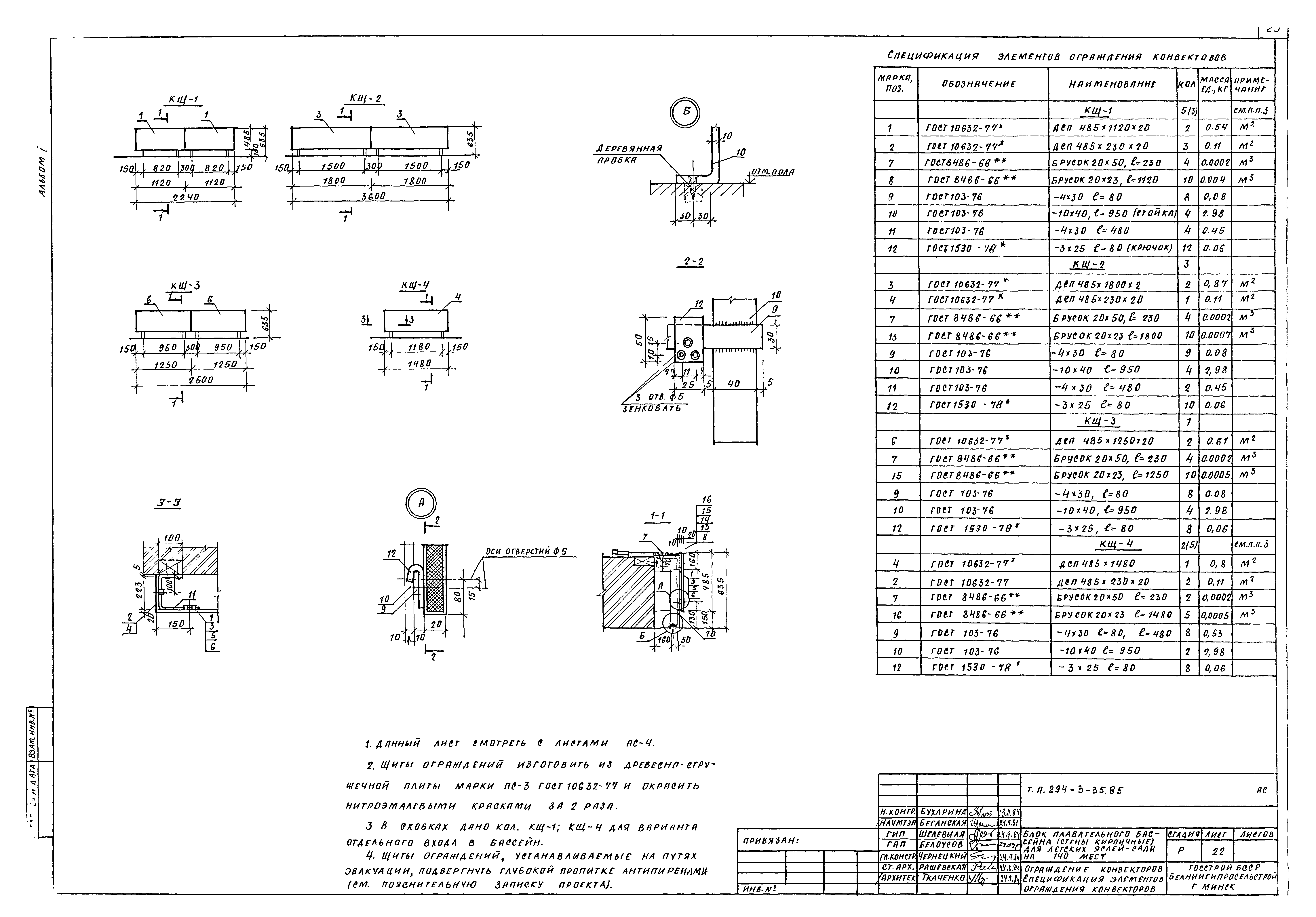
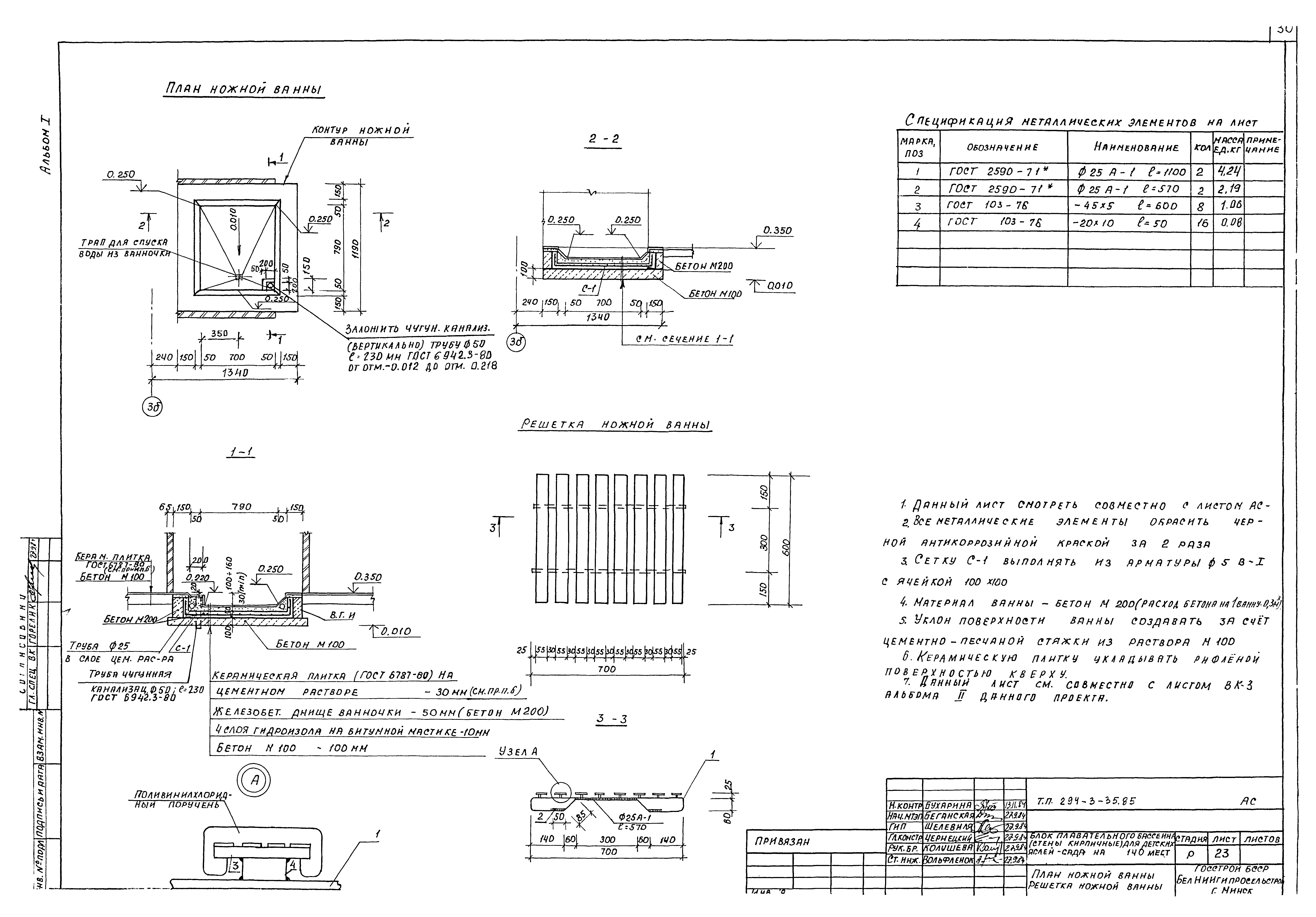
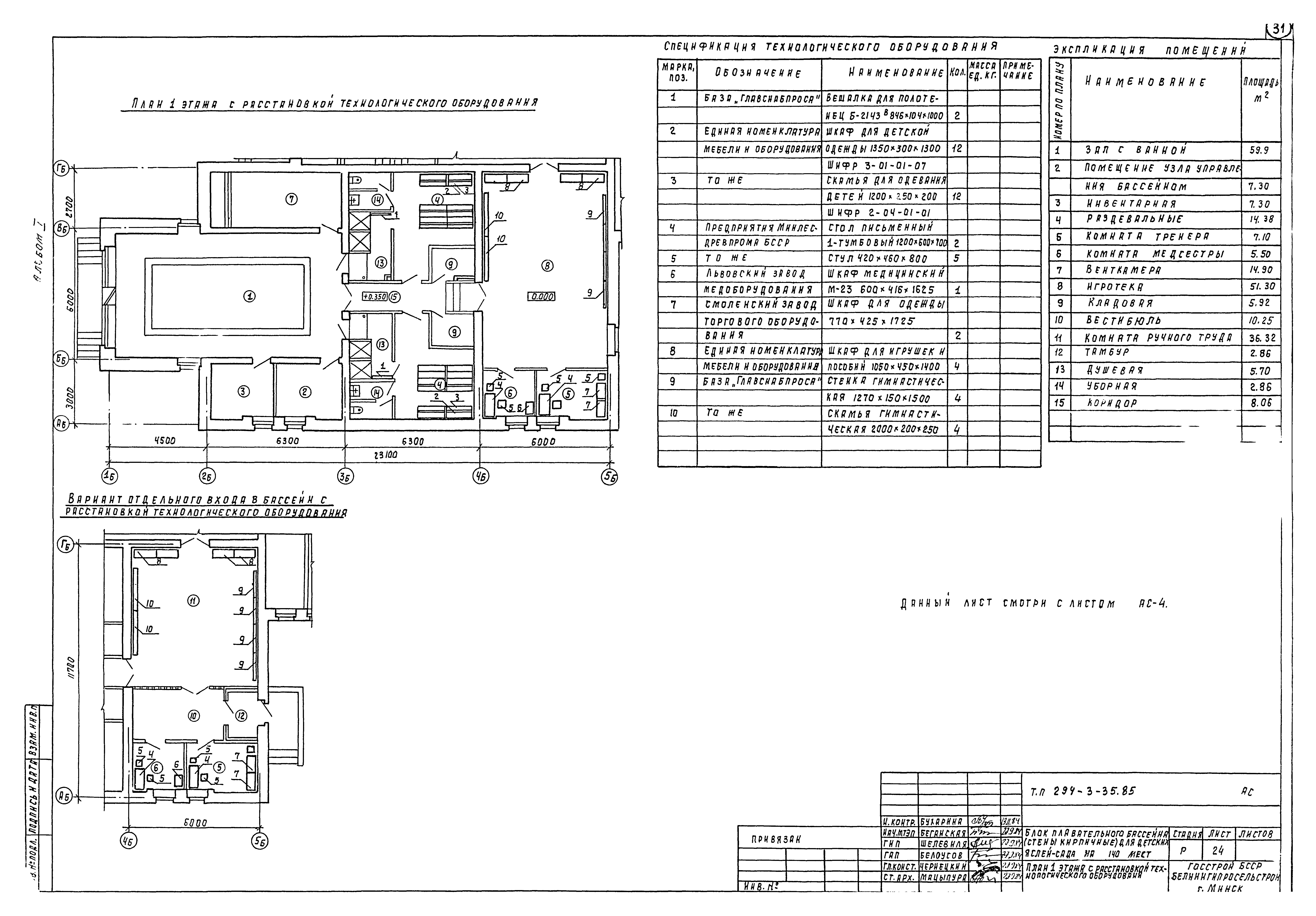
Скачать Типовой проект 294-3-35.85 Альбом I. Архитектурно-строительные и технологические решенияДата актуализации: 01.01.2021 Типовой проект 294-3-35.85
Альбом I. Архитектурно-строительные и технологические решения| Обозначение: | Типовой проект 294-3-35.85 | | Обозначение англ: | 294-3-35.85 | | Статус: | действует | | Название рус.: | Альбом I. Архитектурно-строительные и технологические решения | | Дата добавления в базу: | 01.02.2017 | | Дата актуализации: | 01.01.2021 | | Дата введения: | 21.06.1985 | | Разработан: | БелНИИгипросельстрой
| | Утверждён: | 27.05.1985 Госстрой БССР (BSSR Gosstroy 76)
|
                               
|