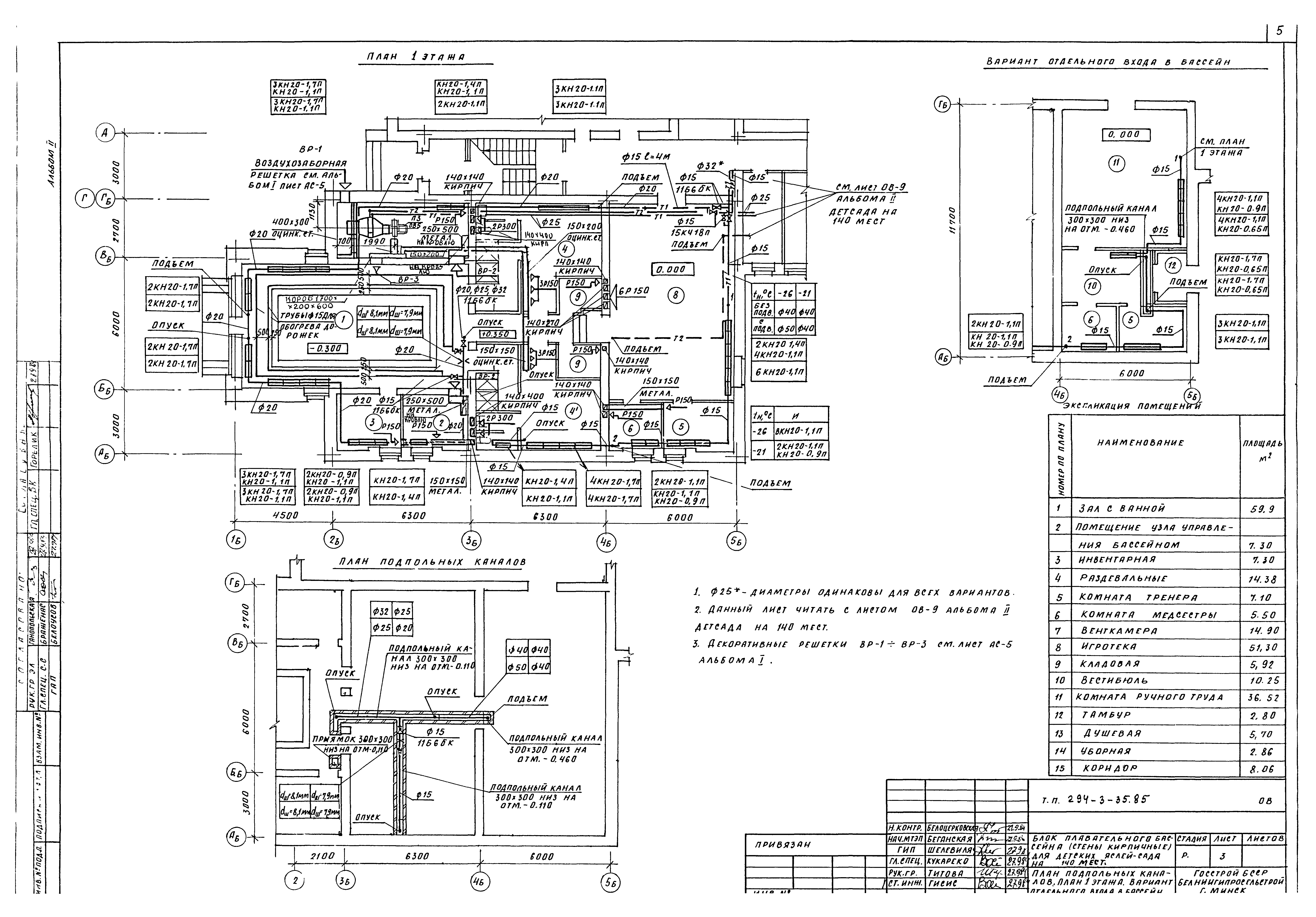
Скачать Типовой проект 294-3-35.85 Альбом II. Внутренний водопровод и канализация, отопление и вентиляция, электротехническая часть и устройства связиДата актуализации: 01.01.2021 Типовой проект 294-3-35.85
Альбом II. Внутренний водопровод и канализация, отопление и вентиляция, электротехническая часть и устройства связи| Обозначение: | Типовой проект 294-3-35.85 | | Обозначение англ: | 294-3-35.85 | | Статус: | действует | | Название рус.: | Альбом II. Внутренний водопровод и канализация, отопление и вентиляция, электротехническая часть и устройства связи | | Дата добавления в базу: | 01.02.2017 | | Дата актуализации: | 01.01.2021 | | Дата введения: | 21.06.1985 | | Разработан: | БелНИИгипросельстрой
| | Утверждён: | 27.05.1985 Госстрой БССР (BSSR Gosstroy 76)
|
                            
|