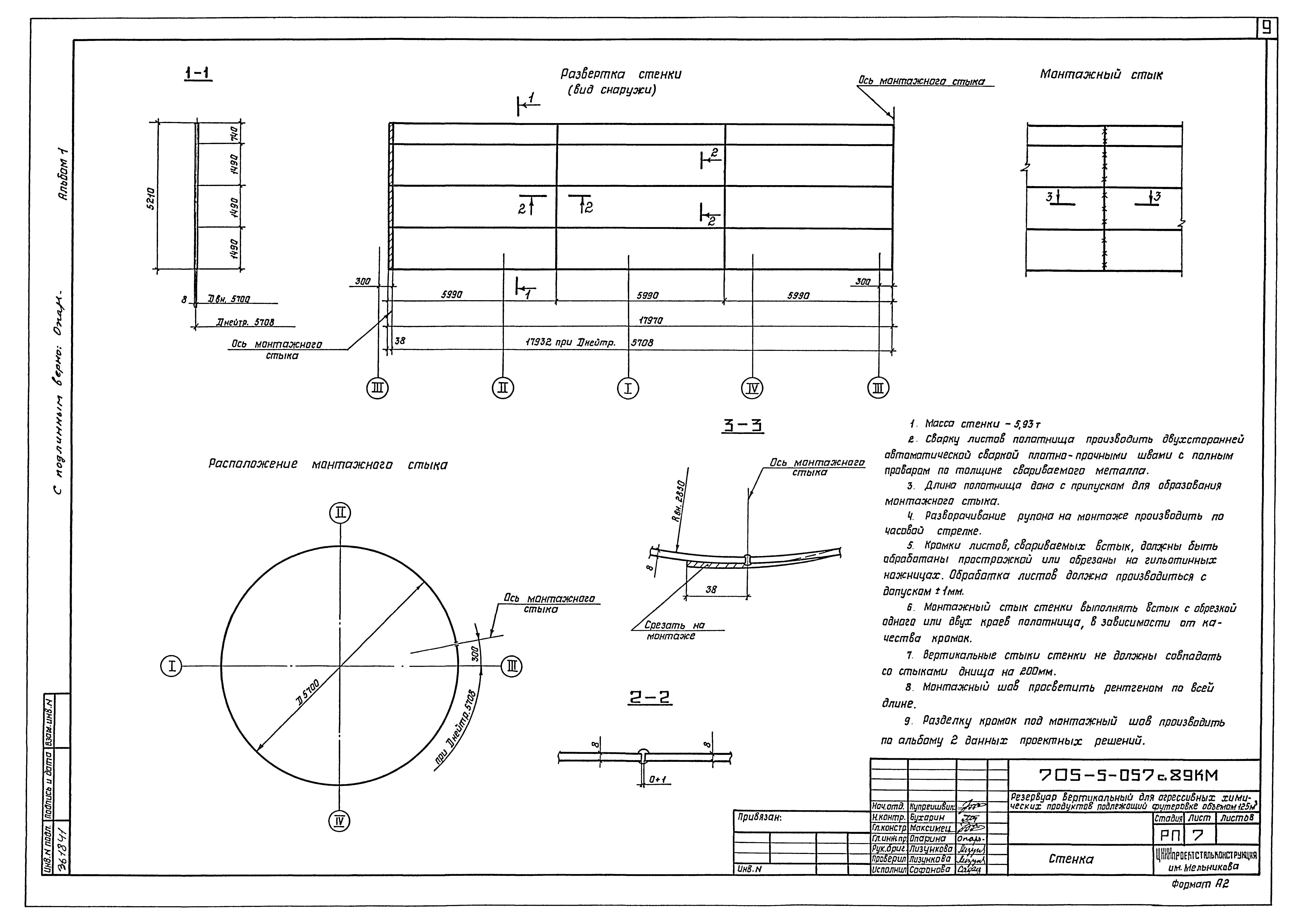
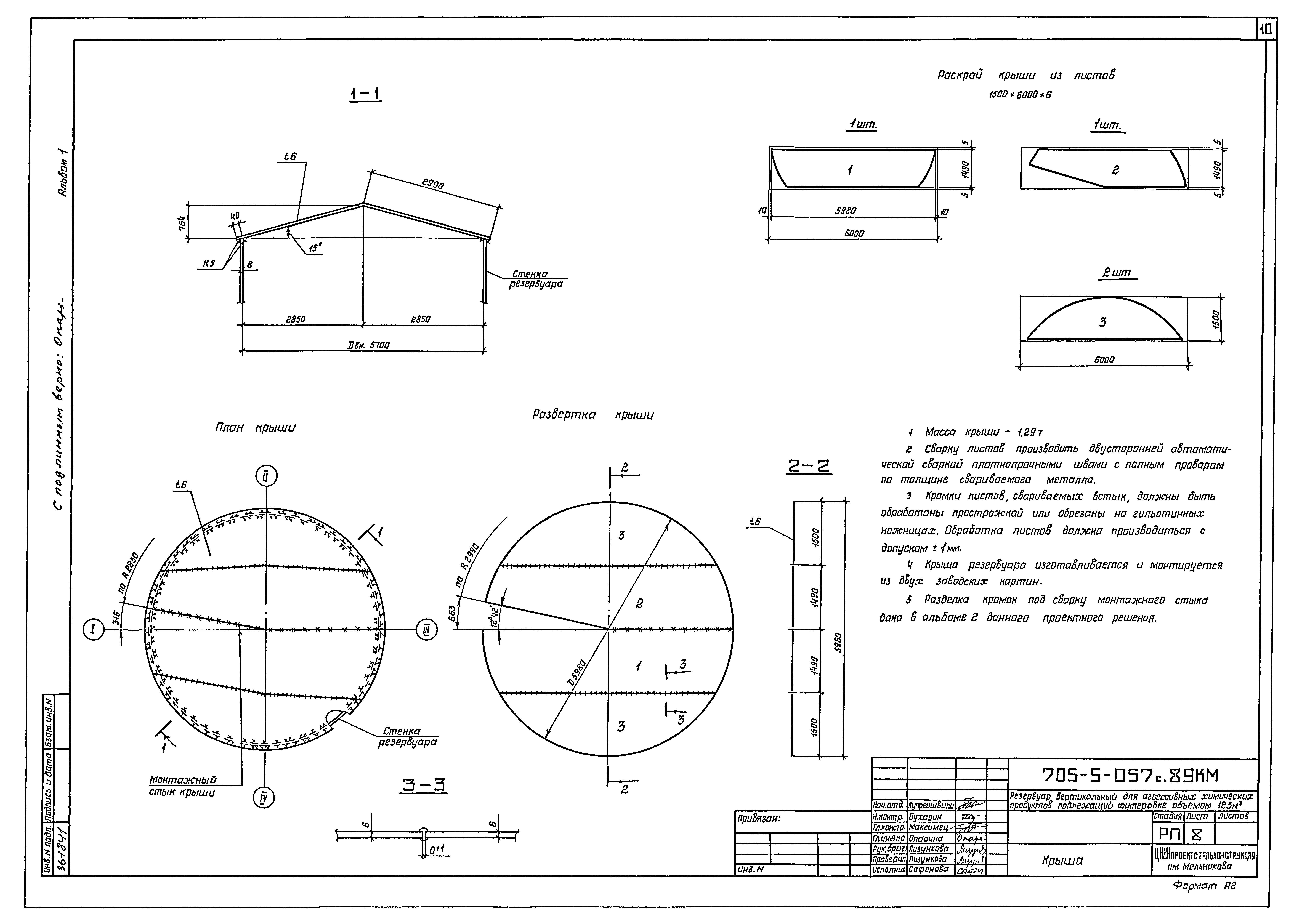
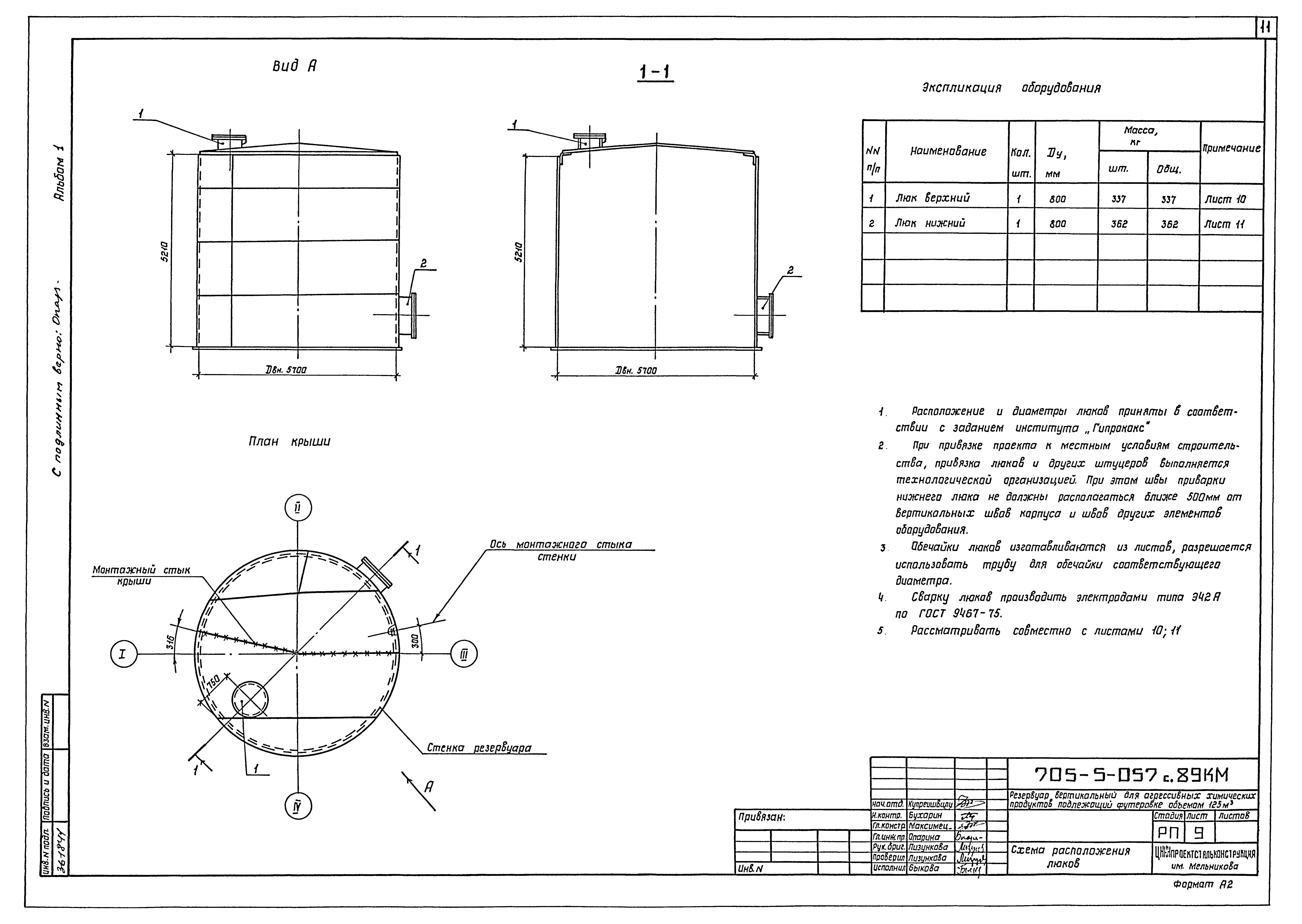
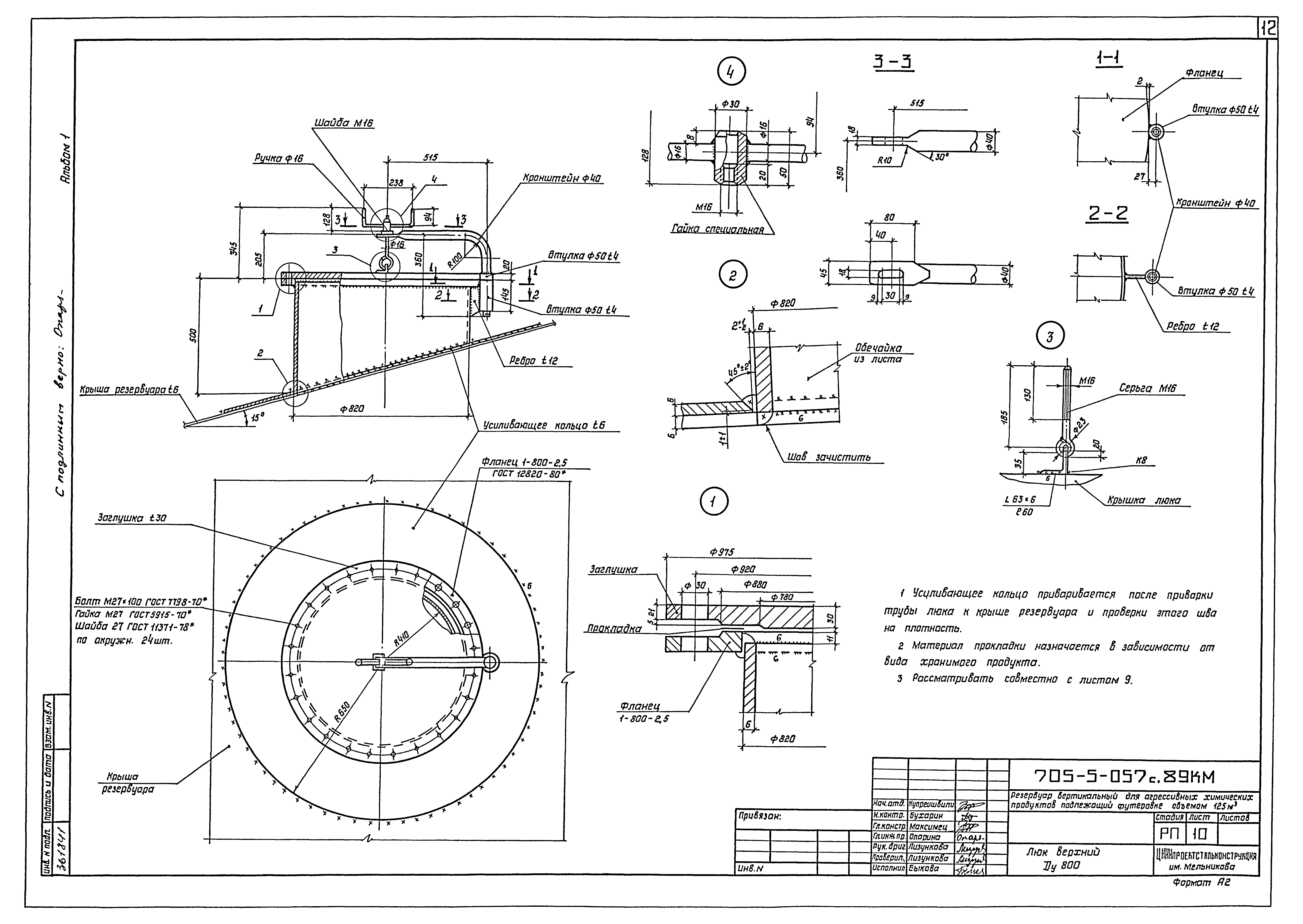
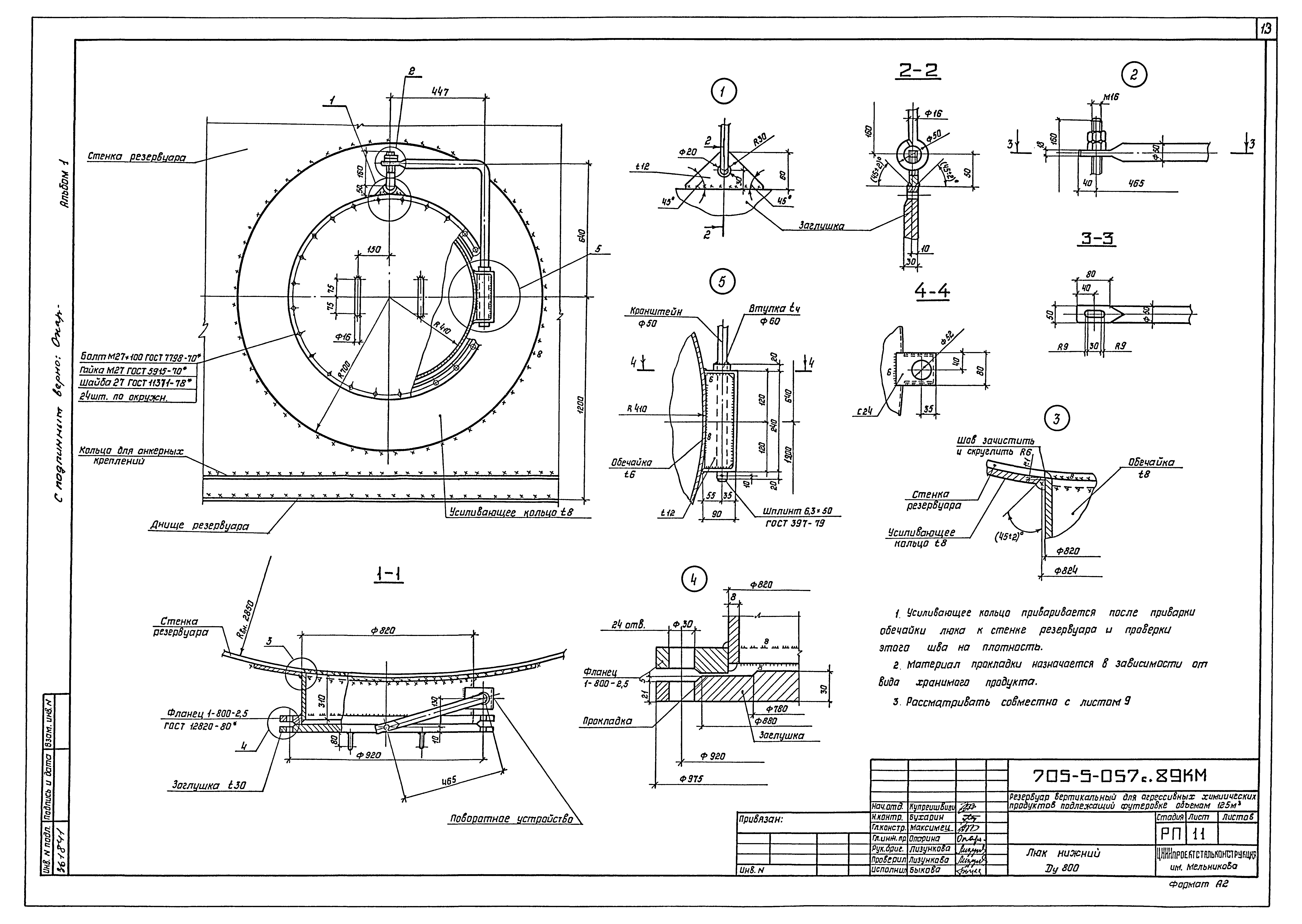
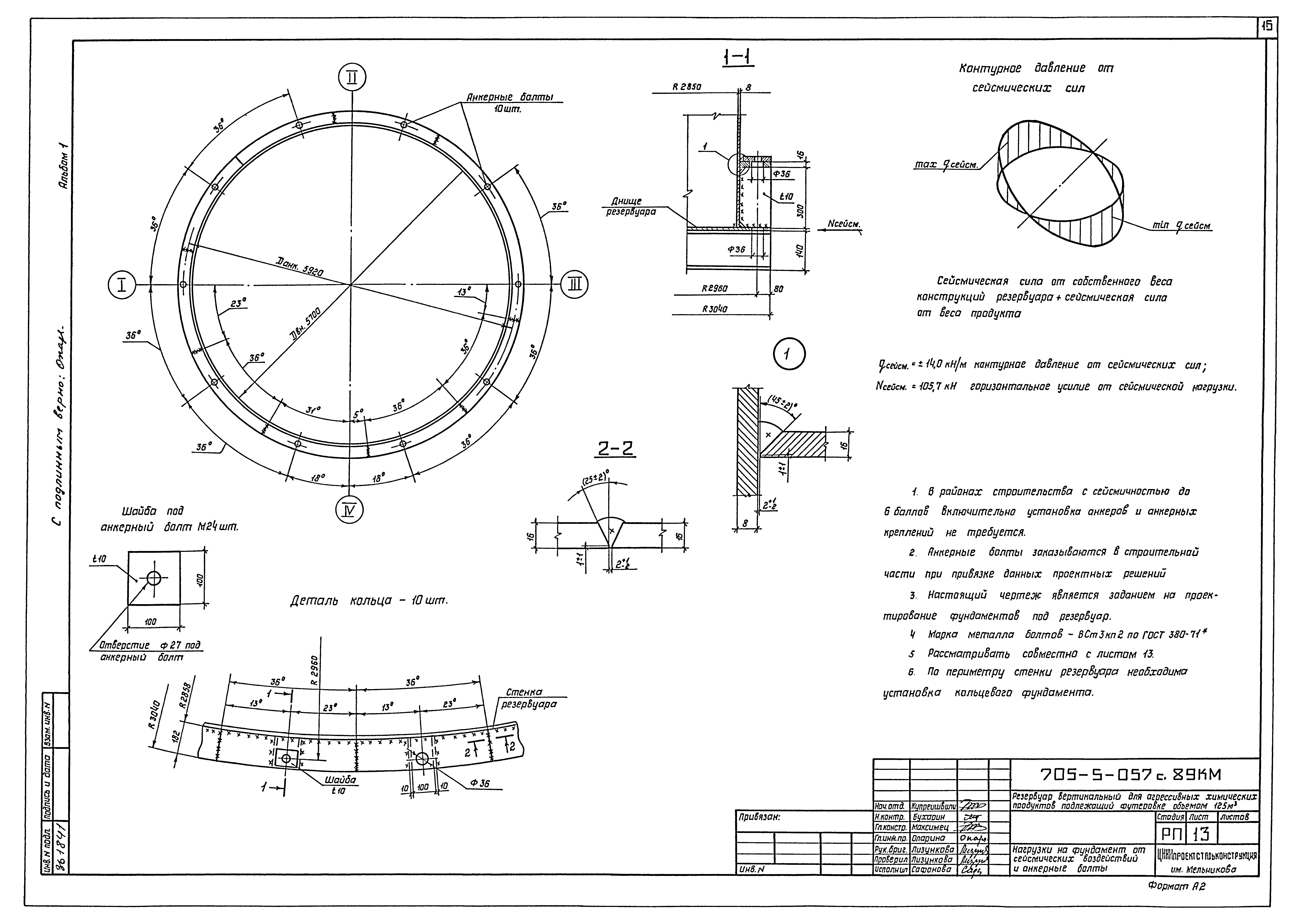
Скачать Типовые проектные решения 705-5-057с.89 Альбом 1. Пояснительная записка. Конструкции металлическиеДата актуализации: 01.01.2021
|
| Обозначение: | Типовые проектные решения 705-5-057с.89 |
| Обозначение англ: | 705-5-057с.89 |
| Статус: | справочные материалы, мп, тпр |
| Название рус.: | Альбом 1. Пояснительная записка. Конструкции металлические |
| Дата добавления в базу: | 01.02.2017 |
| Дата актуализации: | 01.01.2021 |
| Дата окончания срока действия: | 31.07.1989 |
| Разработан: | ЦНИИпроектстальконструкция Гипрококс |
| Утверждён: | 31.07.1989 Министерство металлургии СССР (USSR Ministry of Metallurgy 62) |
| Заменяет собой: |
|
















