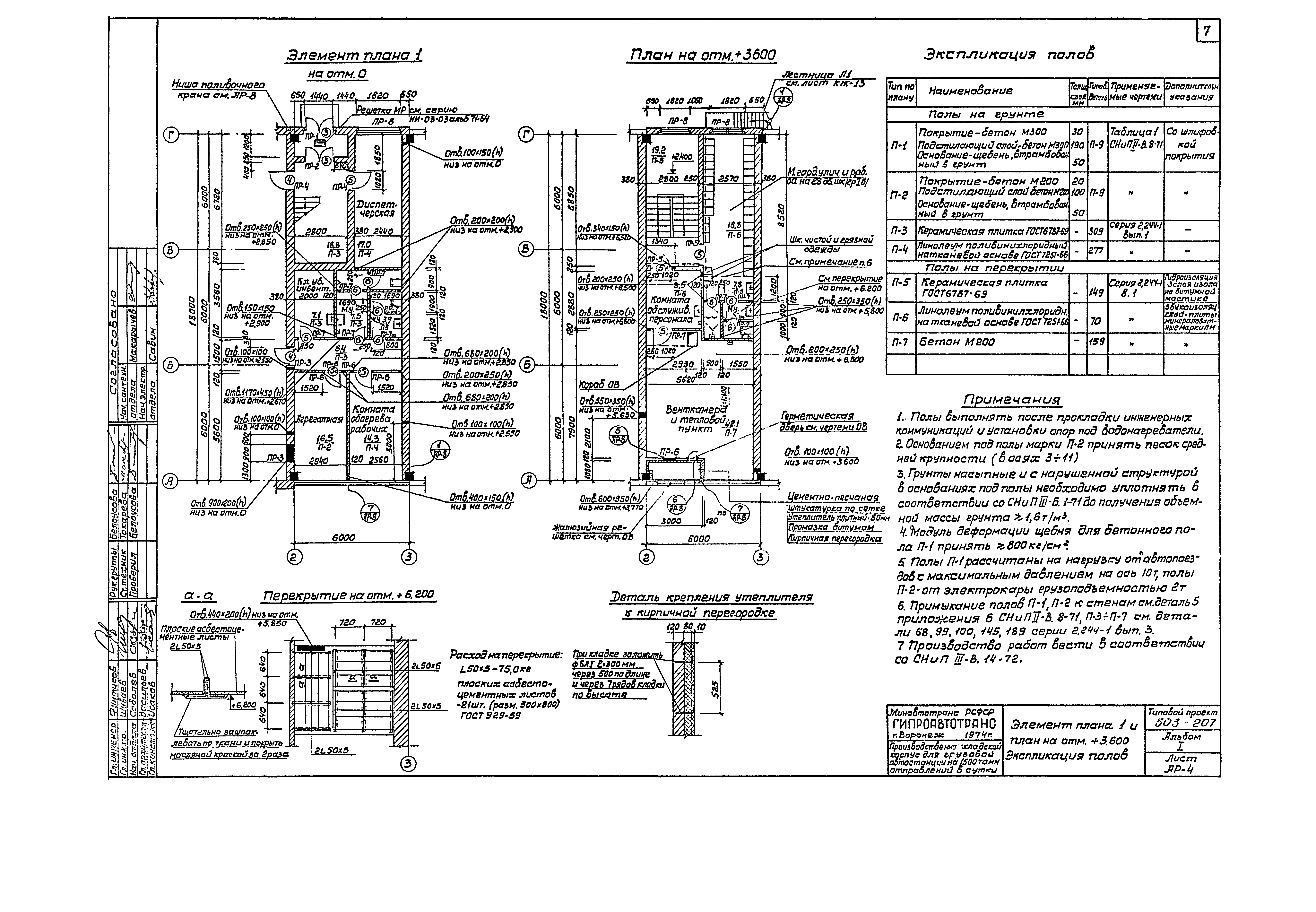
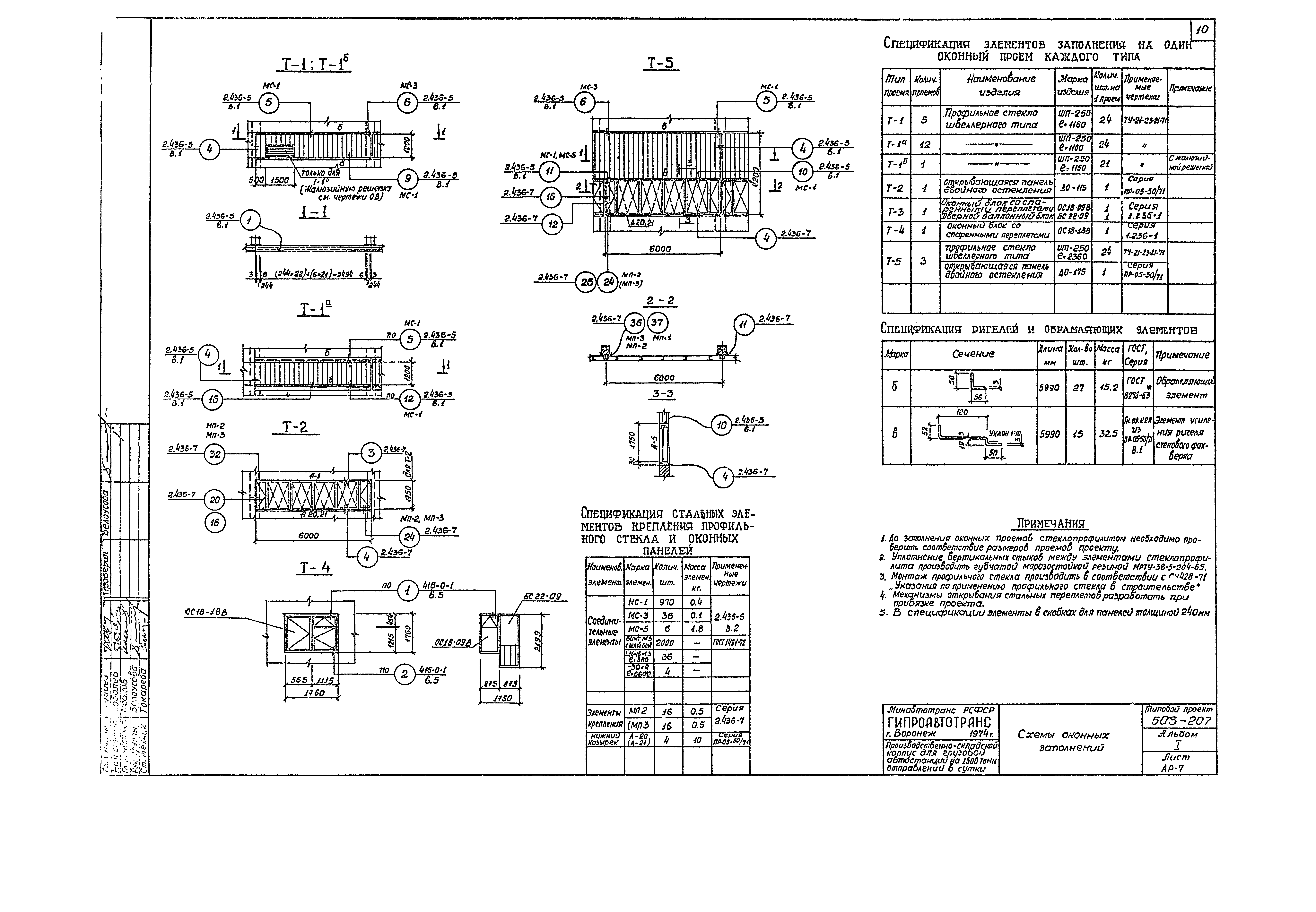
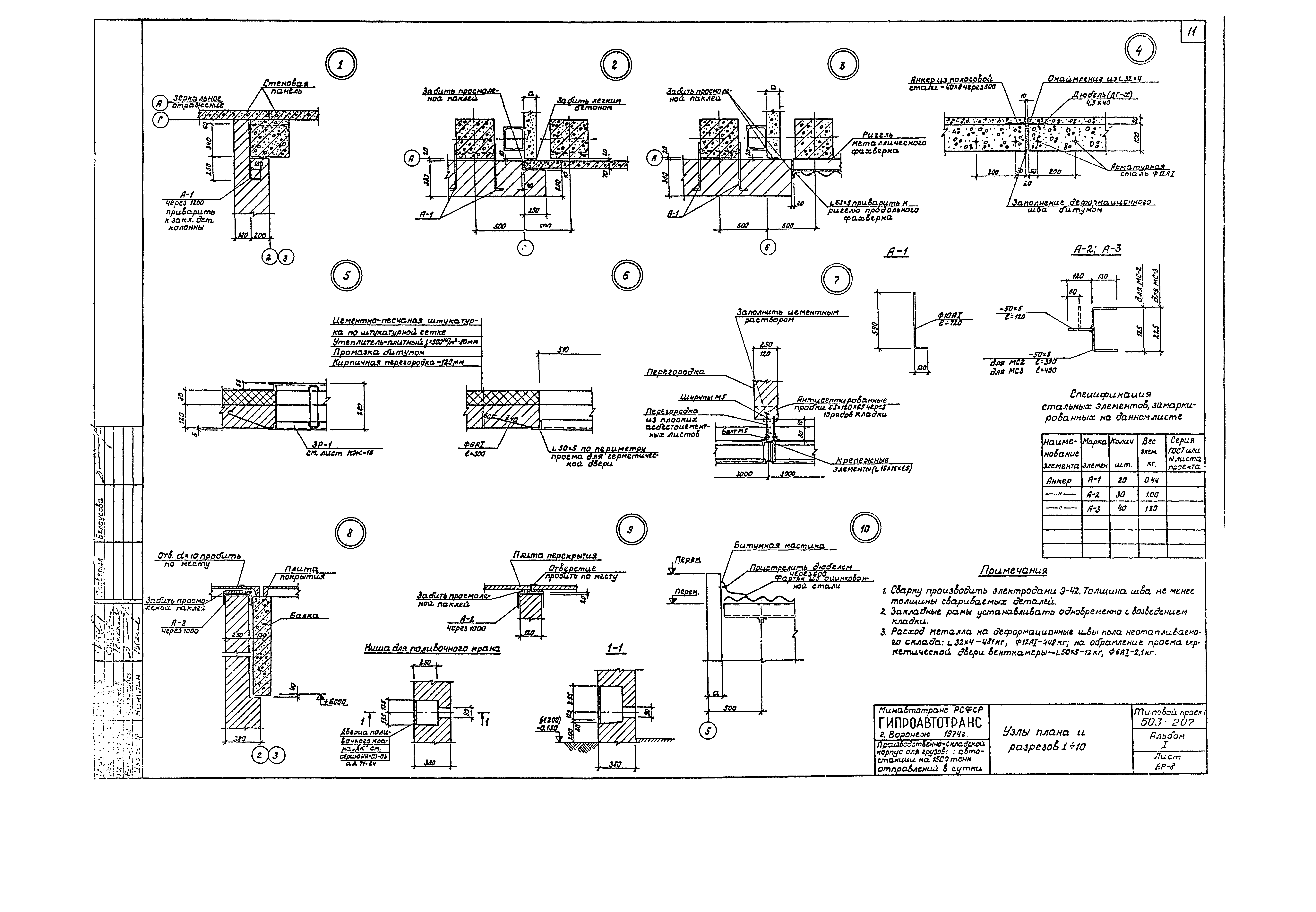
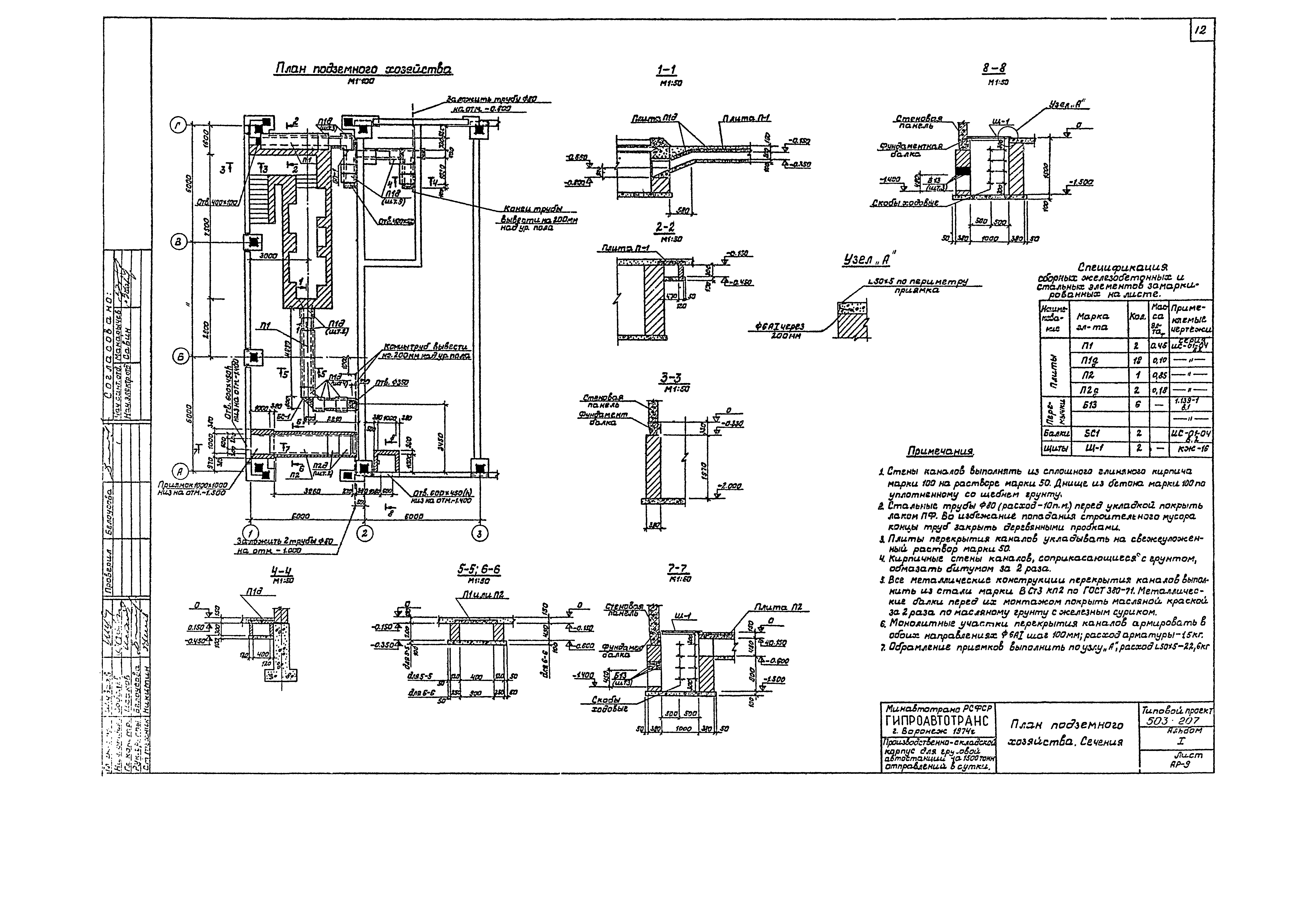
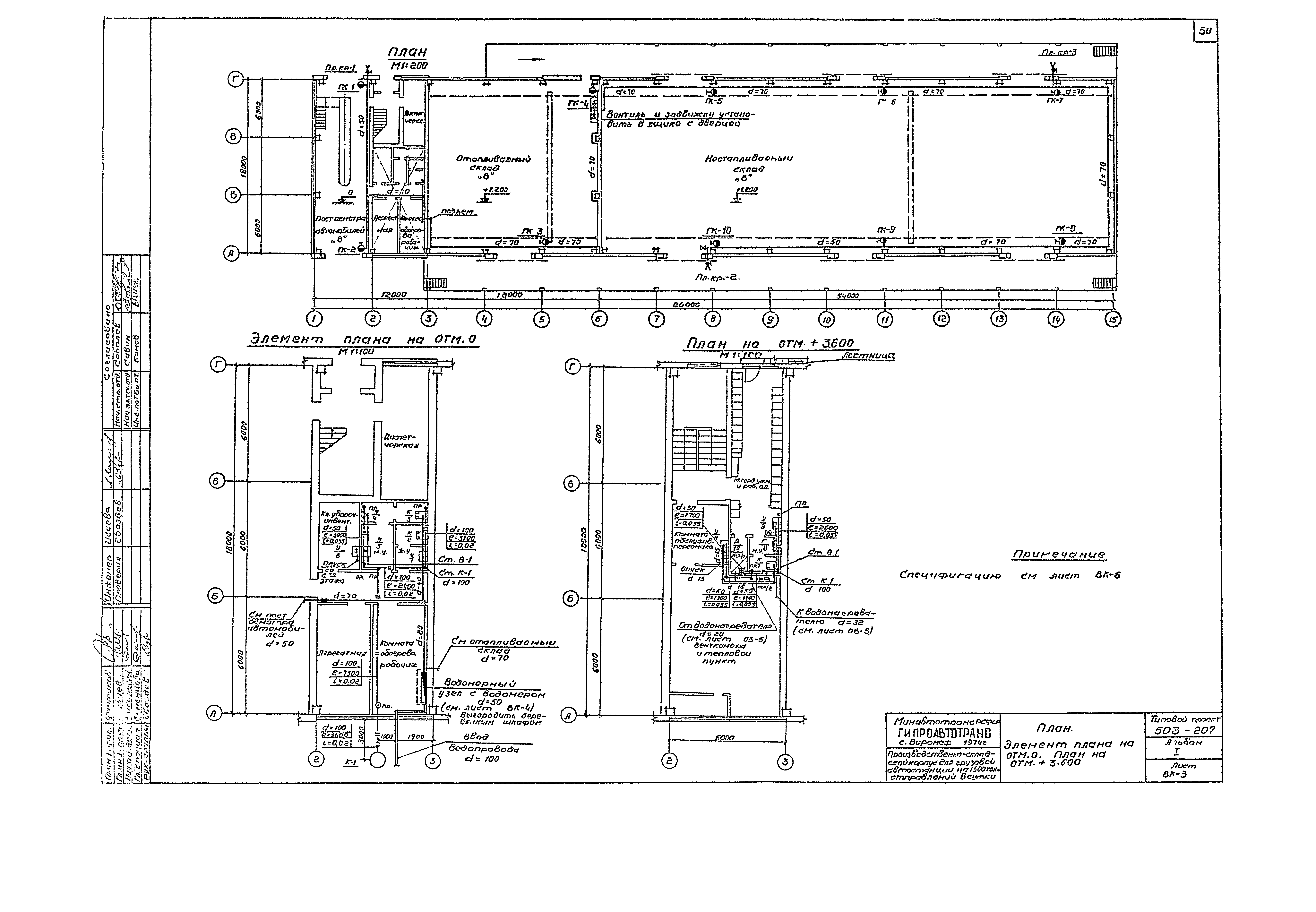
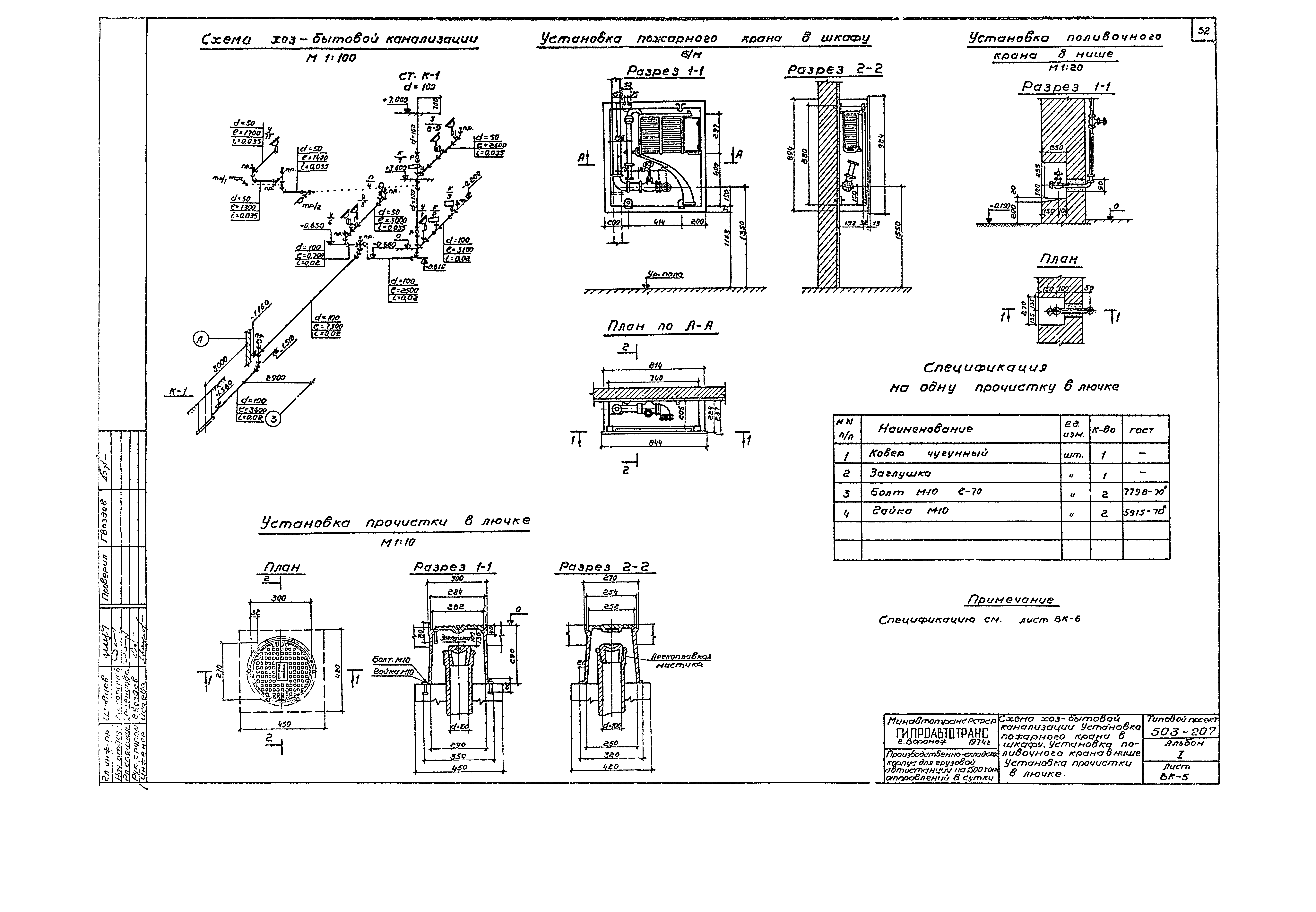
Скачать Типовой проект 503-207 Альбом I. Технологические чертежи. Архитектурно-строительные чертежи. Чертежи санитарно-технических систем и устройствДата актуализации: 01.01.2021 Типовой проект 503-207
Альбом I. Технологические чертежи. Архитектурно-строительные чертежи. Чертежи санитарно-технических систем и устройств| Обозначение: | Типовой проект 503-207 | | Обозначение англ: | 503-207 | | Статус: | действует | | Название рус.: | Альбом I. Технологические чертежи. Архитектурно-строительные чертежи. Чертежи санитарно-технических систем и устройств | | Дата добавления в базу: | 01.02.2017 | | Дата актуализации: | 01.01.2021 | | Дата введения: | 23.12.1974 | | Разработан: | Воронежский филиал Гипроавтотранс
| | Утверждён: | 23.12.1974 Минавтотранс РСФСР (Russian Federation Minavtotrans 128)
| | Издан: | ЦИТП Госстроя СССР (CITP, Gosstroy (USSR) 1981 г. )
|
                                                    
|