Скачать Типовой проект 503-208 Альбом I. Пояснительная записка, схема генплана, технологические чертежи. Архитектурно-строительные чертежиДата актуализации: 01.01.2021 Типовой проект 503-208
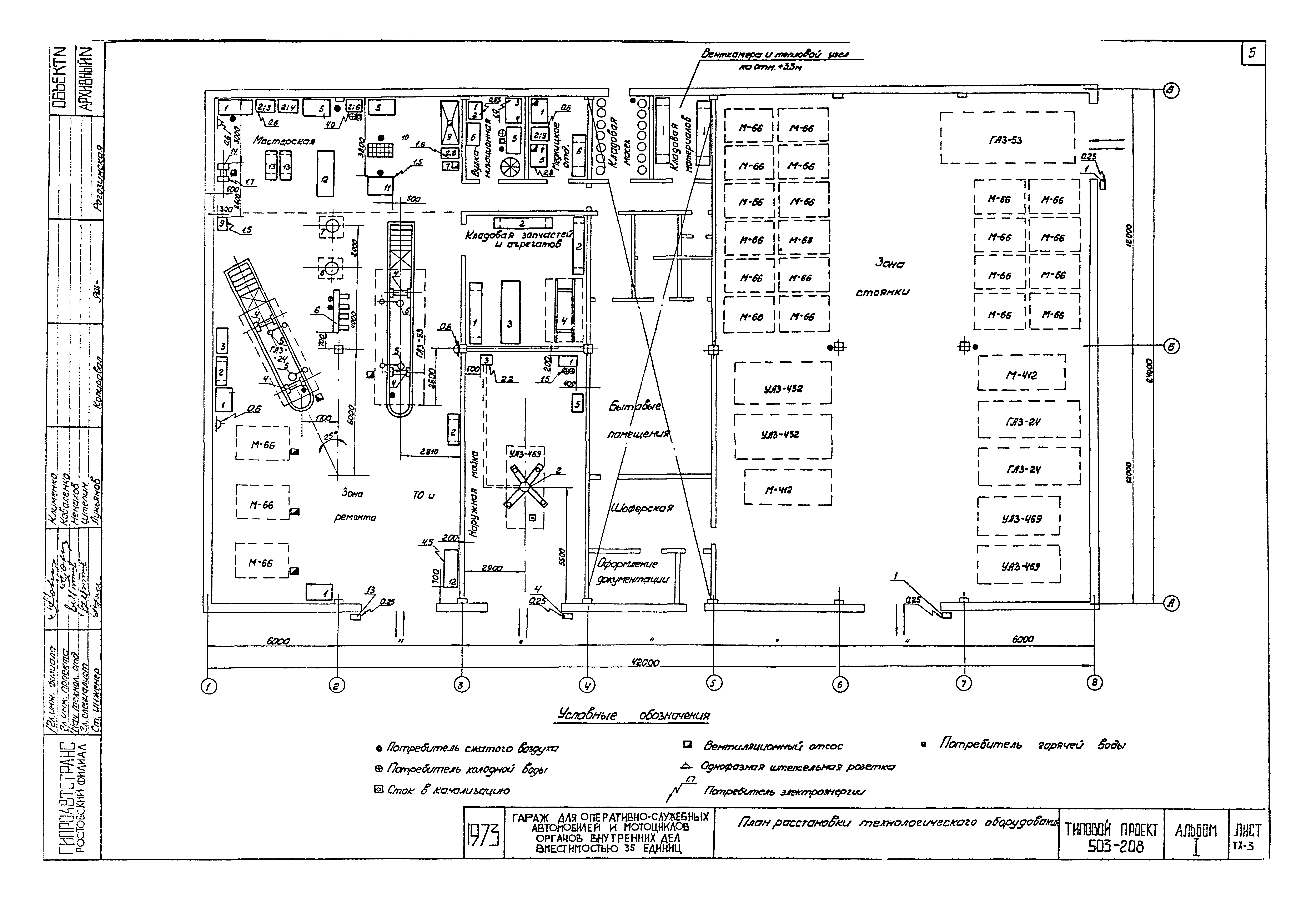
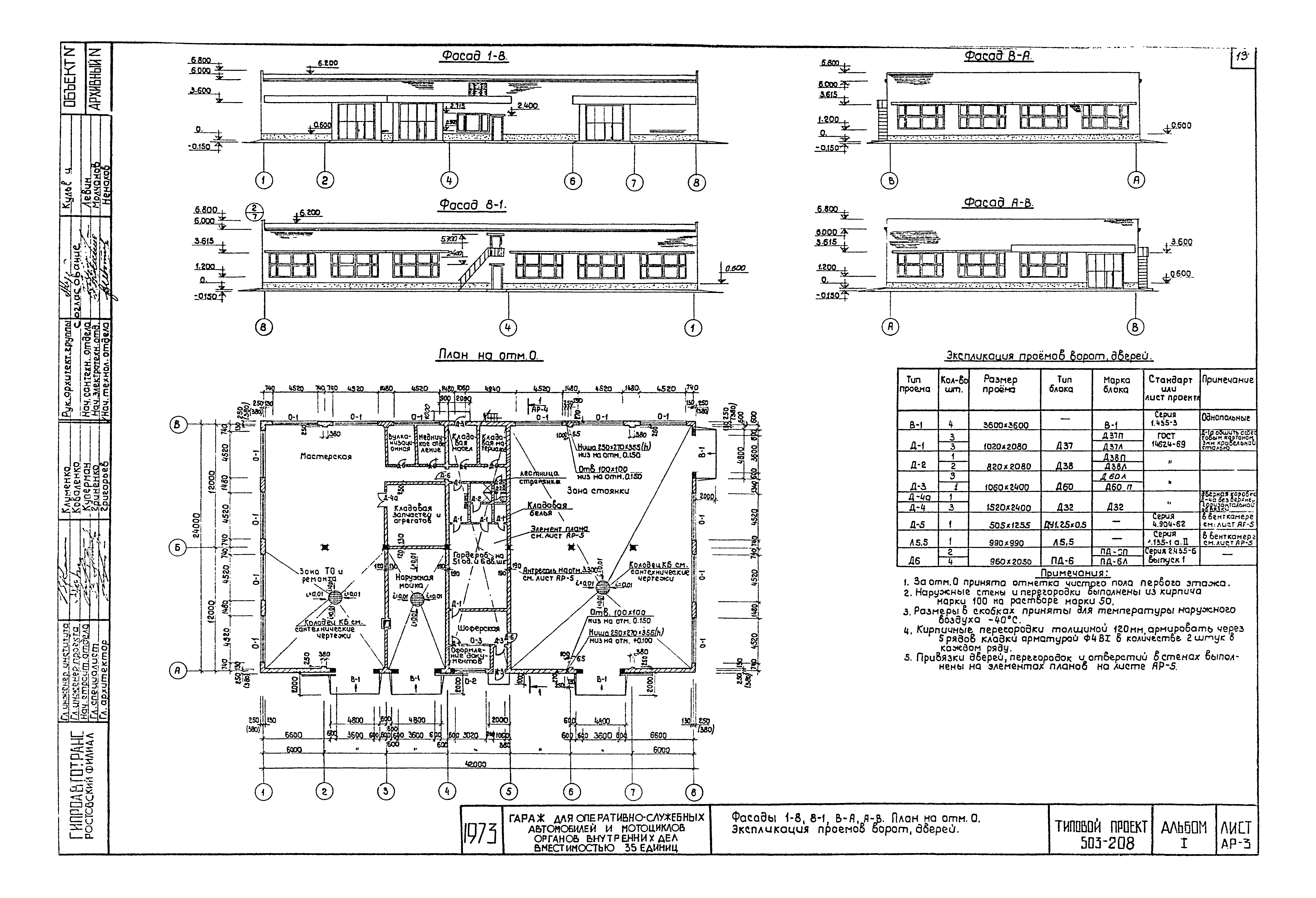
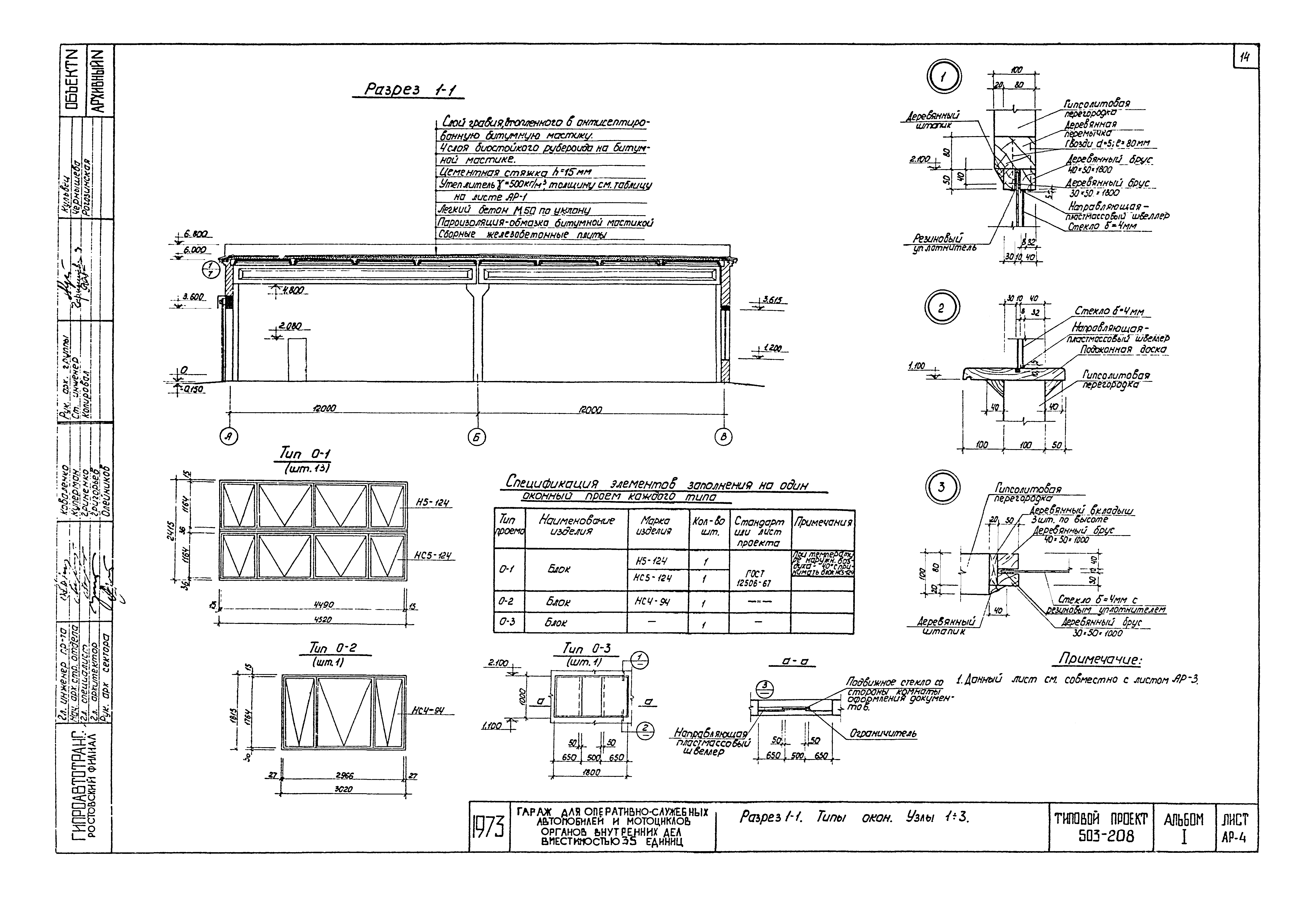
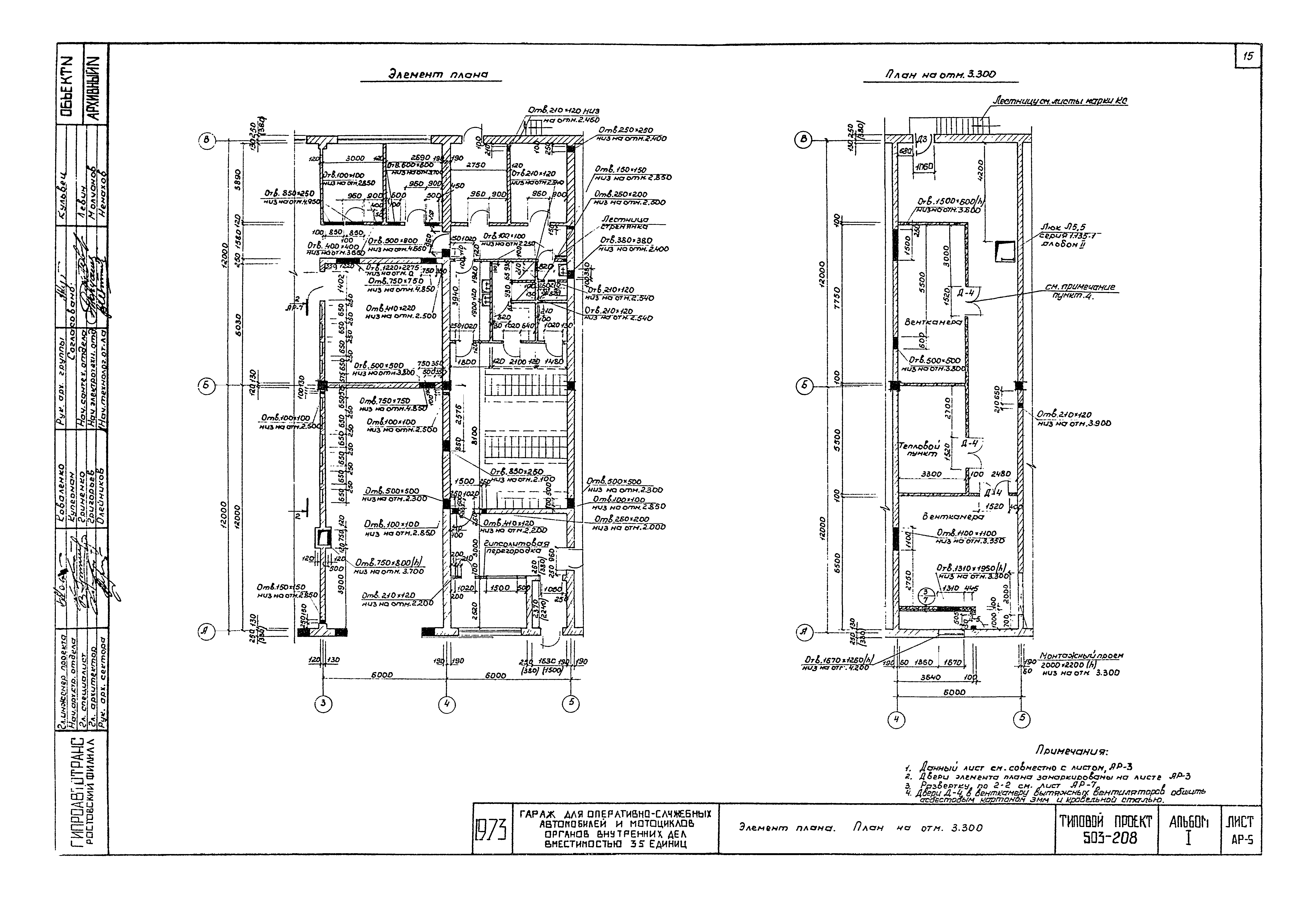
Альбом I. Пояснительная записка, схема генплана, технологические чертежи. Архитектурно-строительные чертежи| Обозначение: | Типовой проект 503-208 | | Обозначение англ: | 503-208 | | Статус: | действует | | Название рус.: | Альбом I. Пояснительная записка, схема генплана, технологические чертежи. Архитектурно-строительные чертежи | | Дата добавления в базу: | 01.02.2017 | | Дата актуализации: | 01.01.2021 | | Дата введения: | 06.02.1974 | | Разработан: | Ростовский филиал Гипроавтотранса Минавтотранса РСФСР
| | Утверждён: | 06.02.1974 Министерство внутренних дел СССР (USSR Ministry of Internal Affairs 47-74)
| | Издан: | ЦИТП Госстроя СССР (CITP, Gosstroy (USSR) 1975 г. )
|
                                   
|