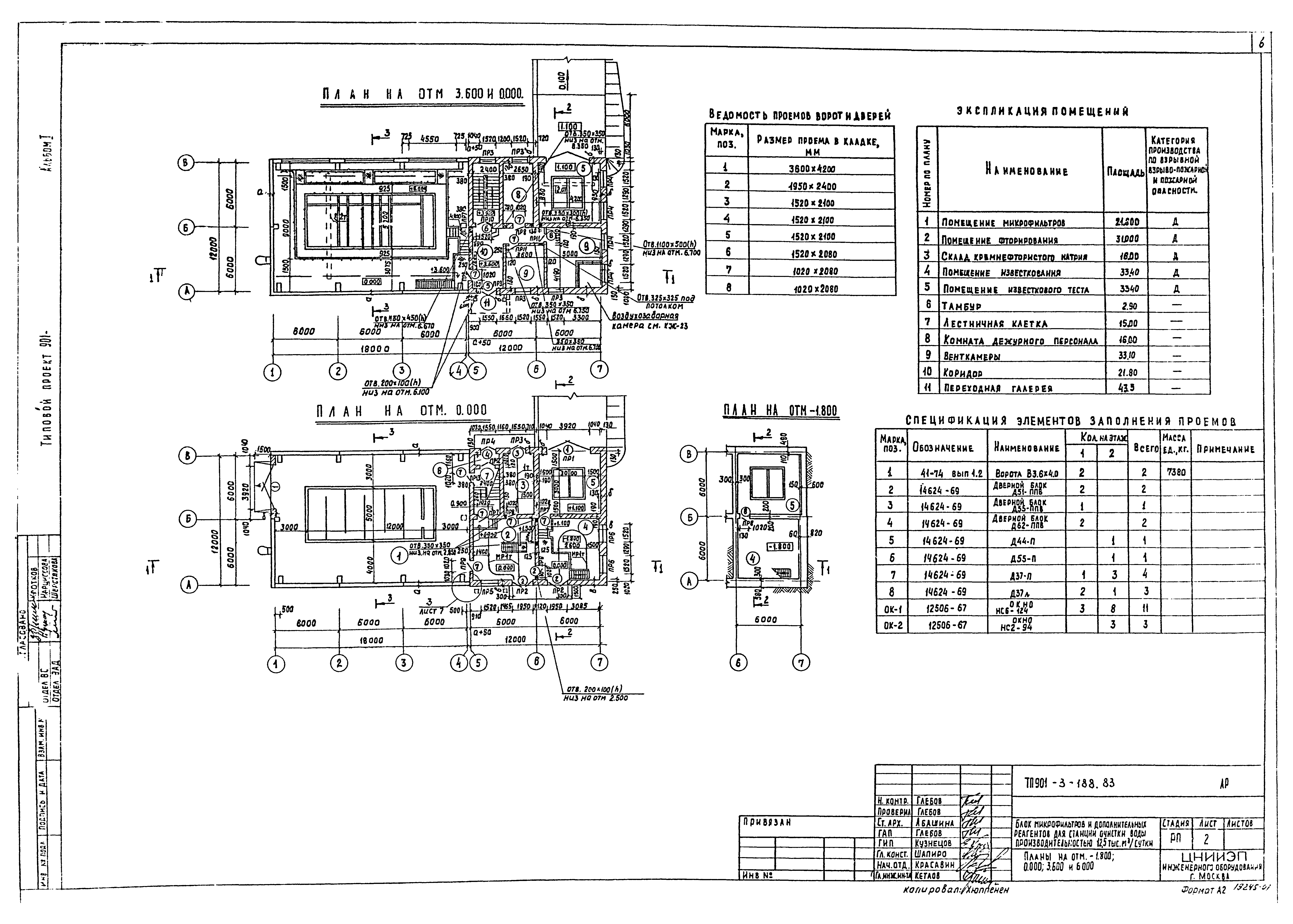
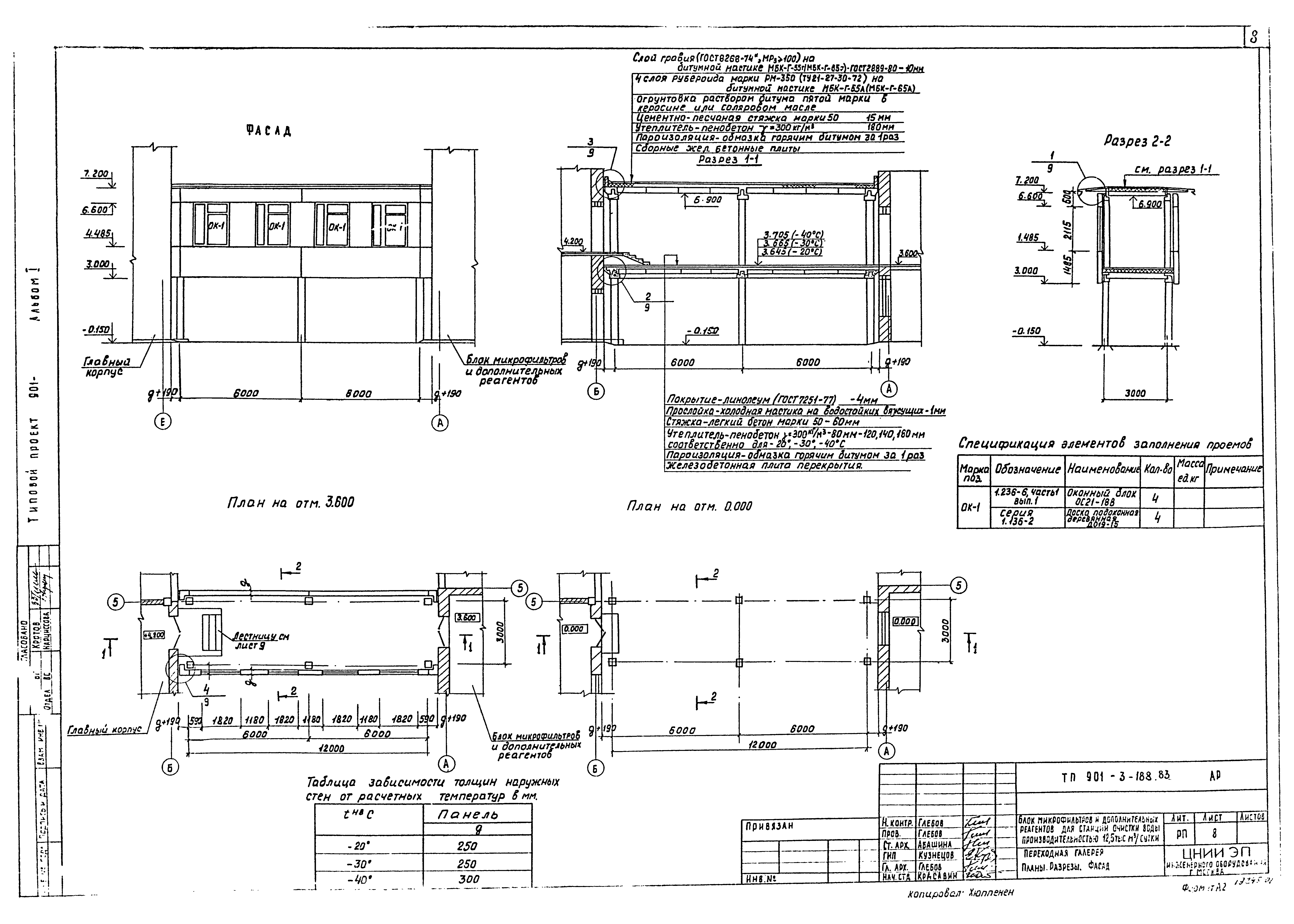
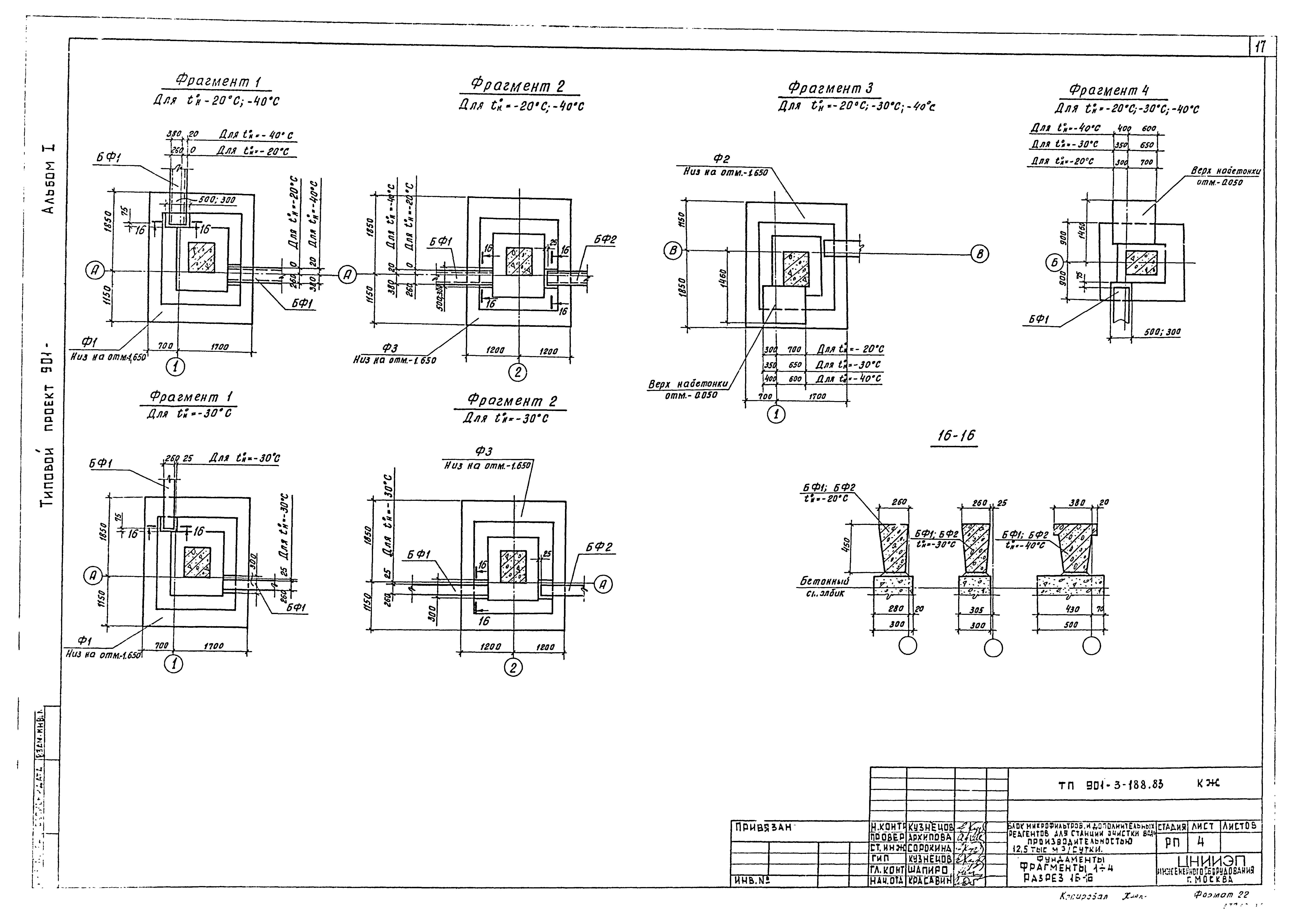
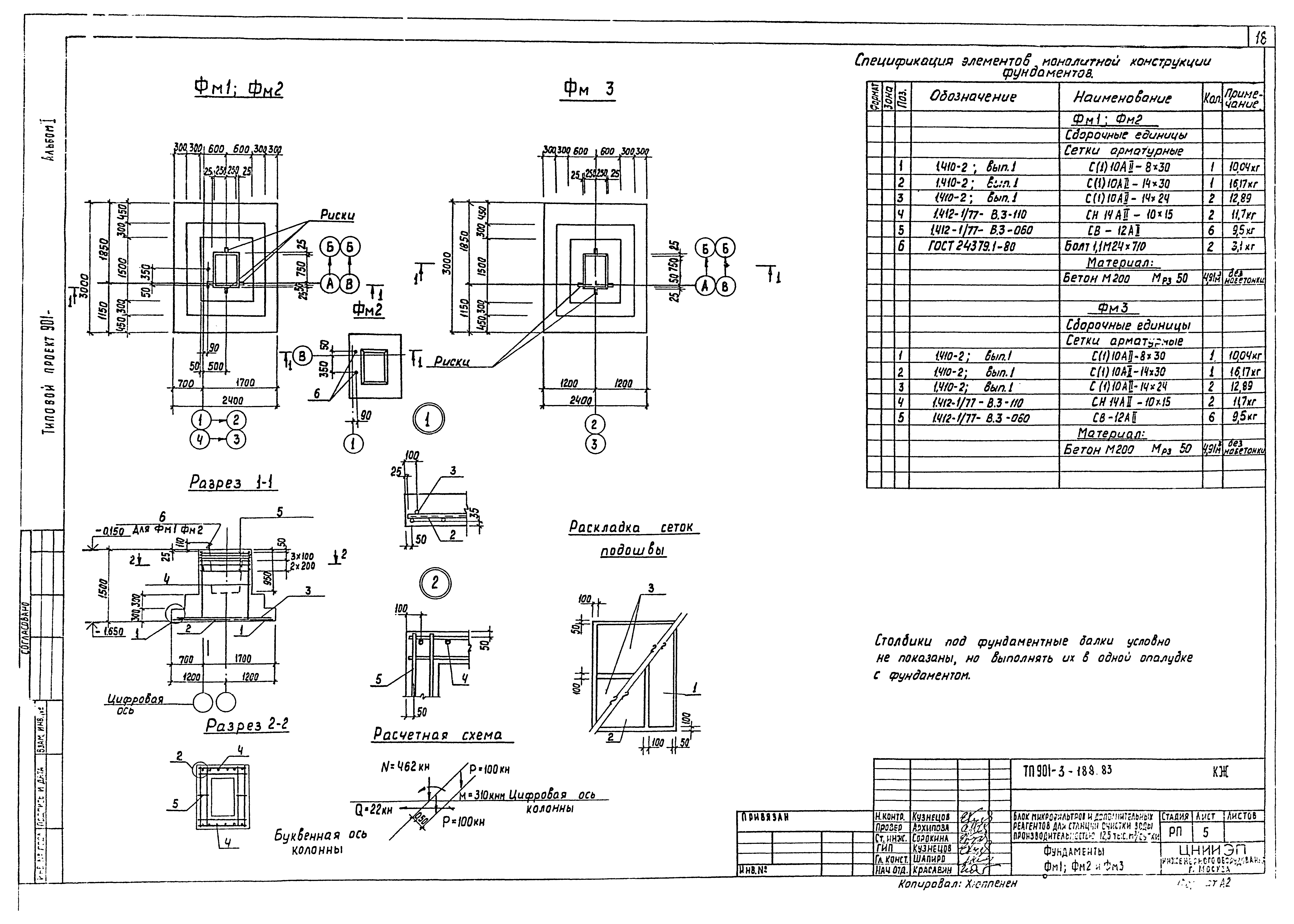
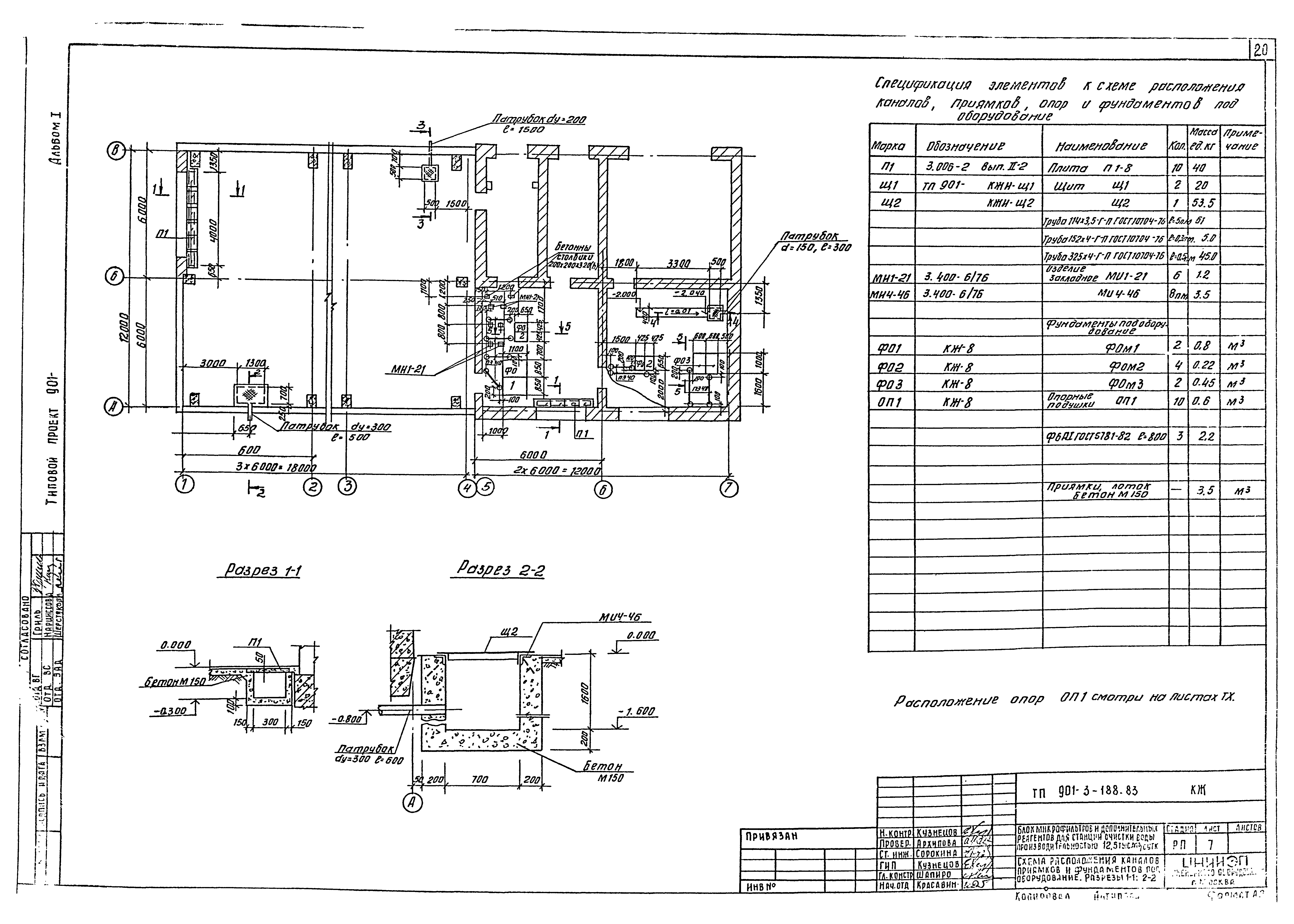
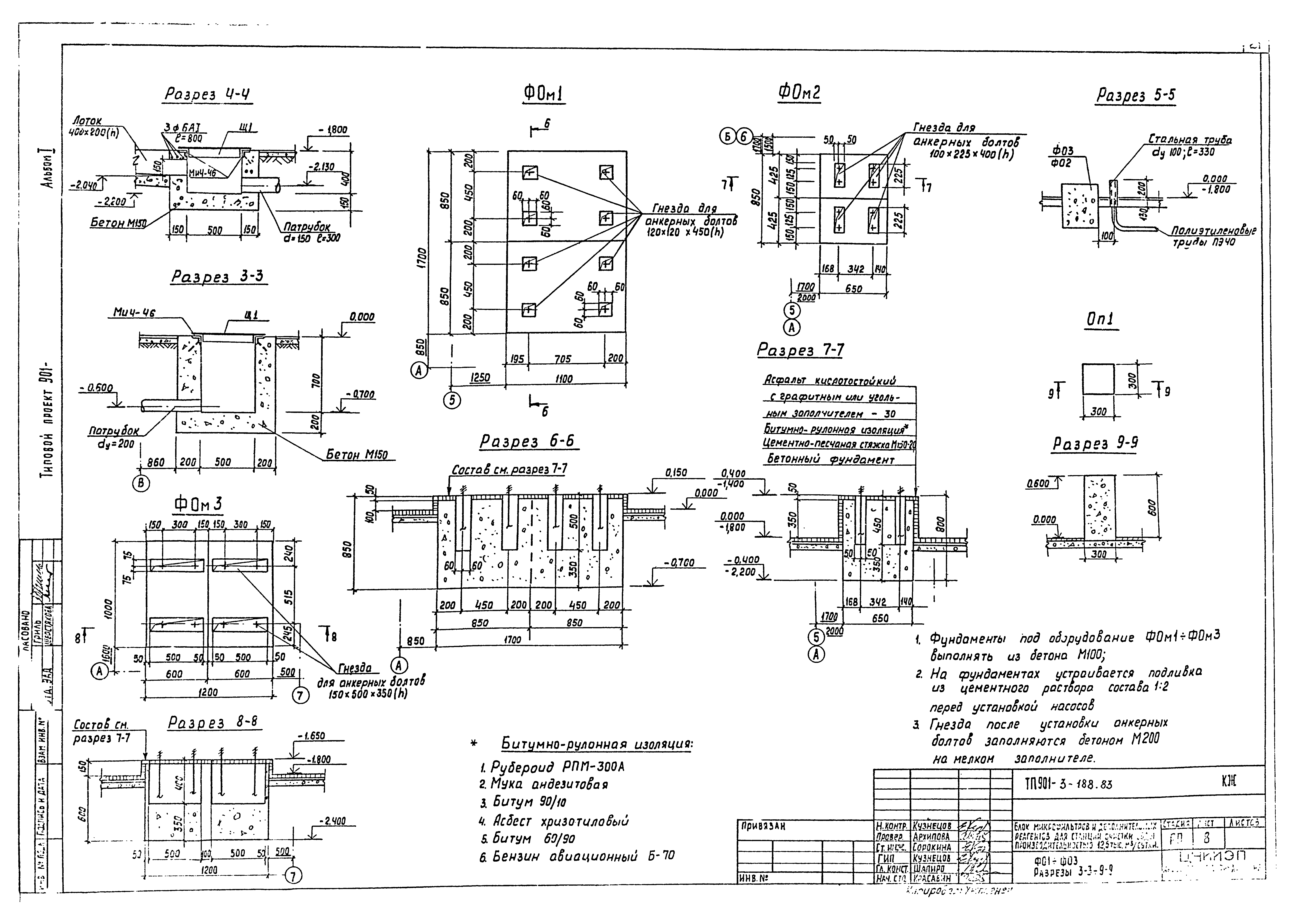
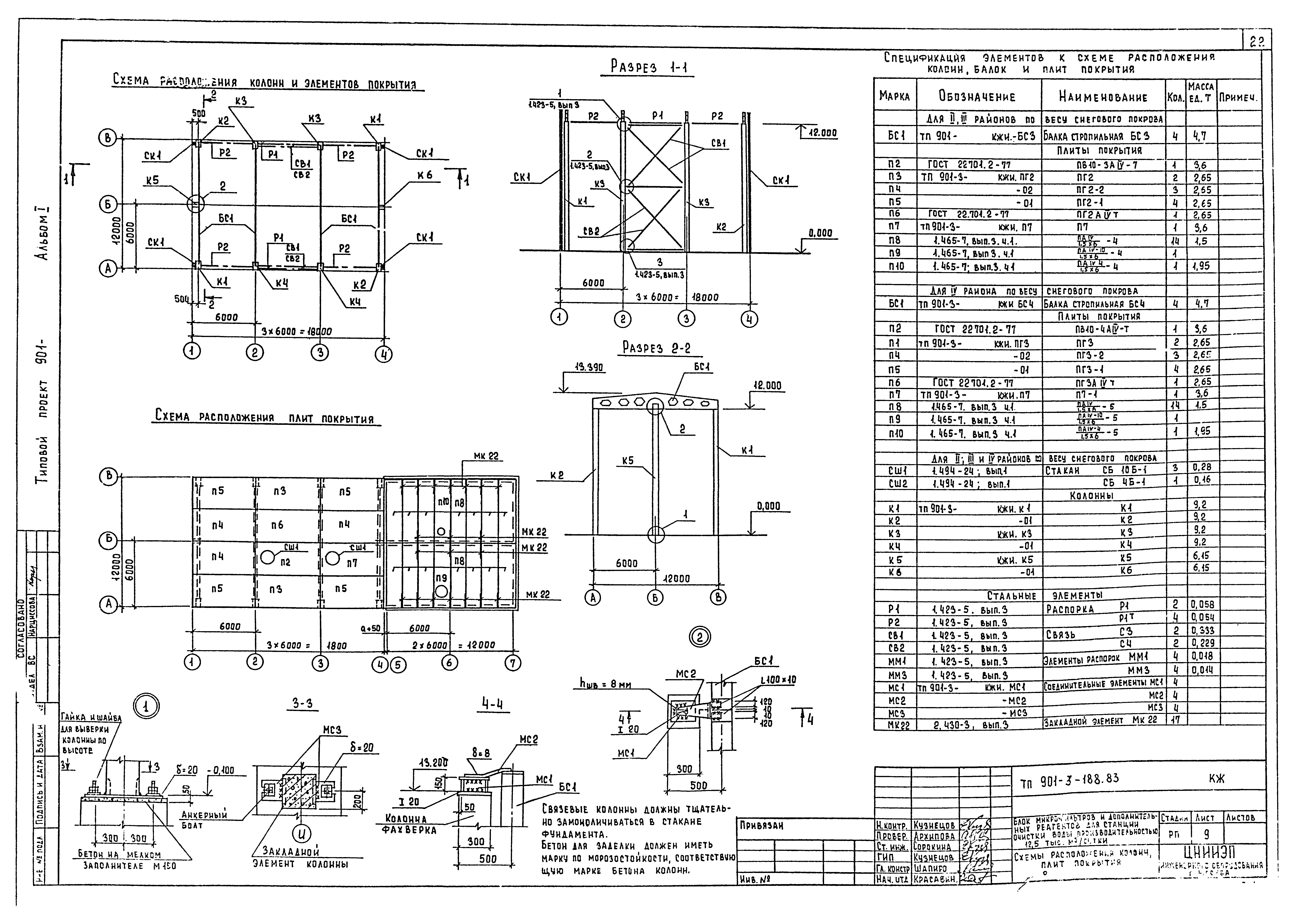
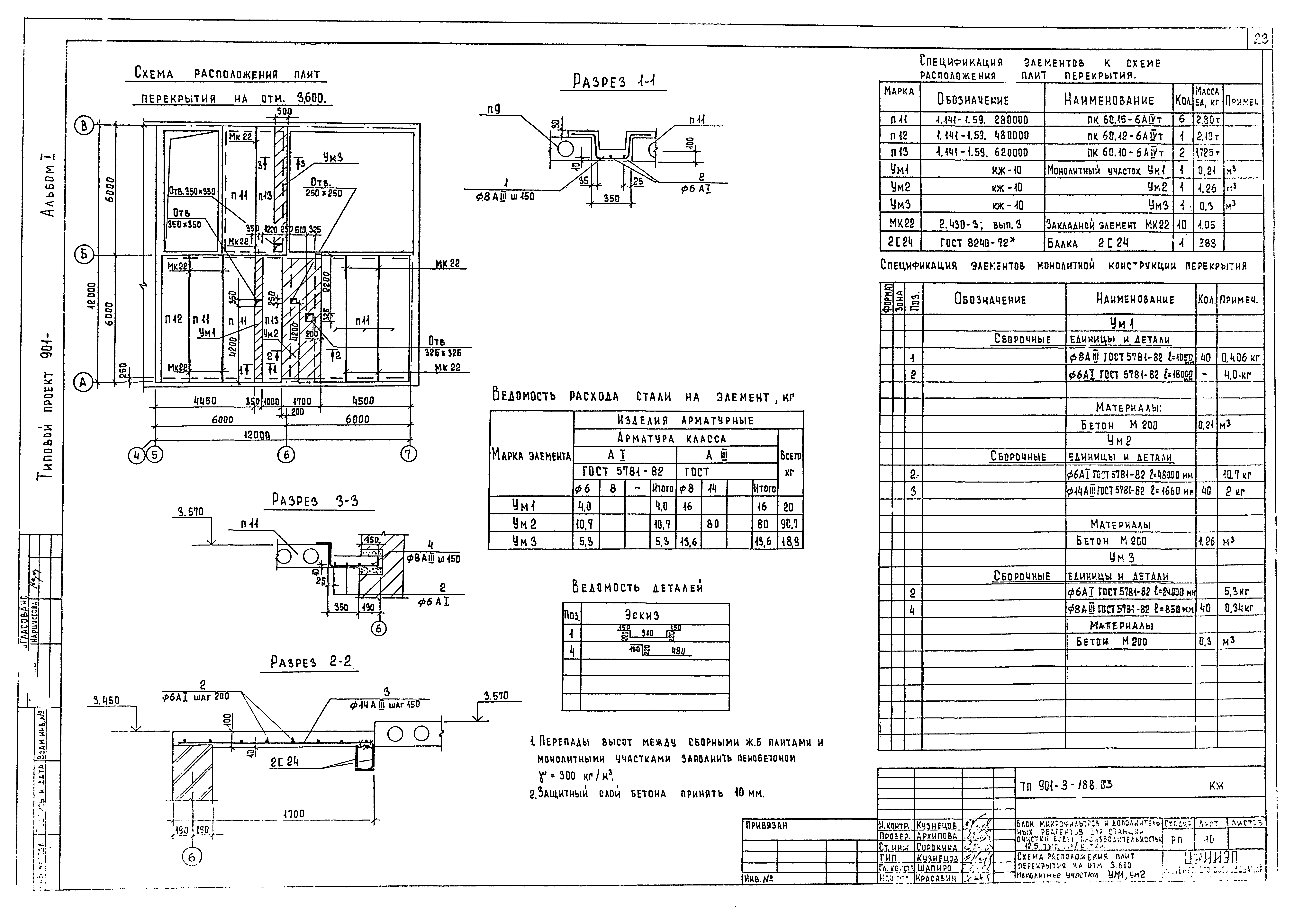
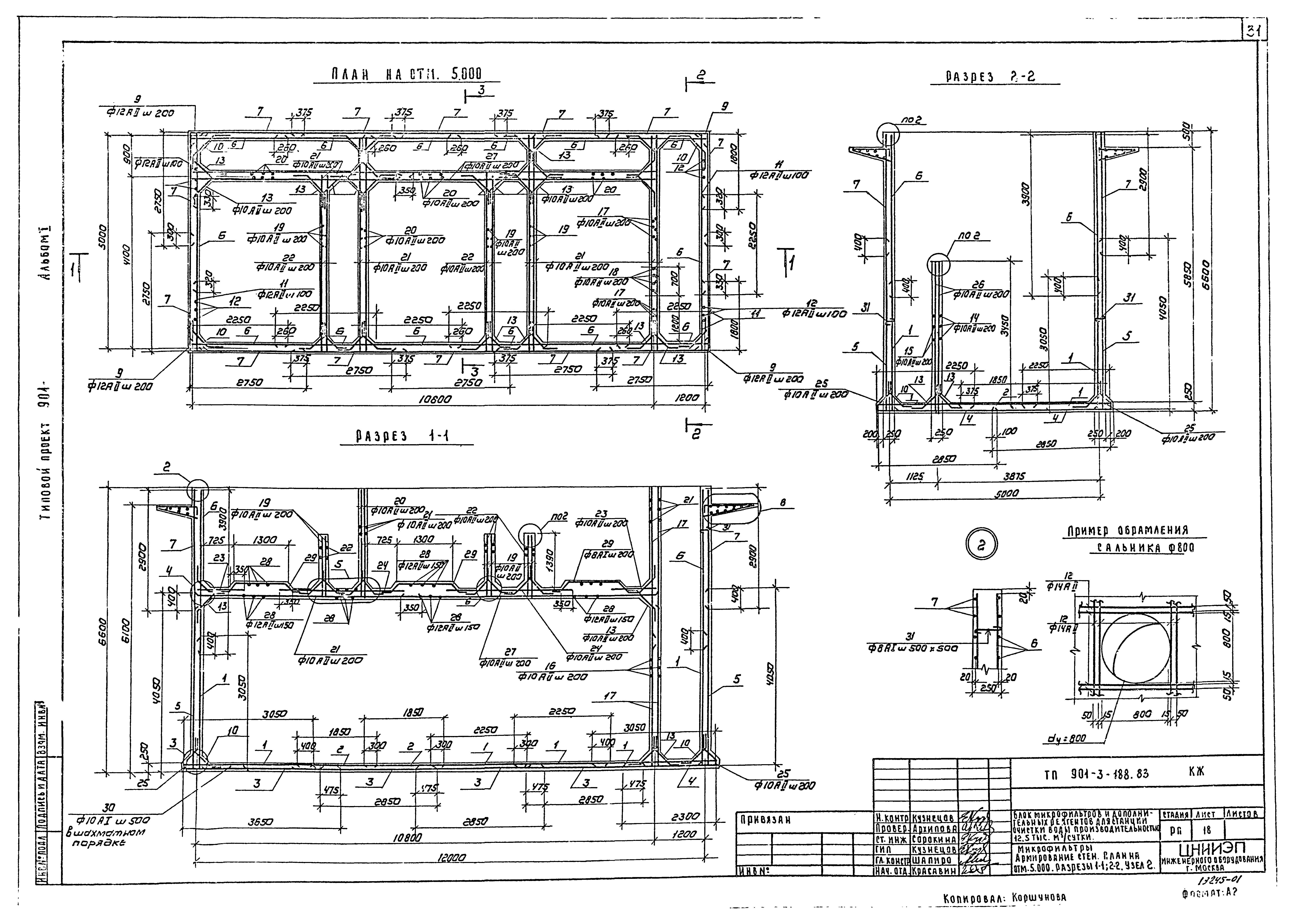
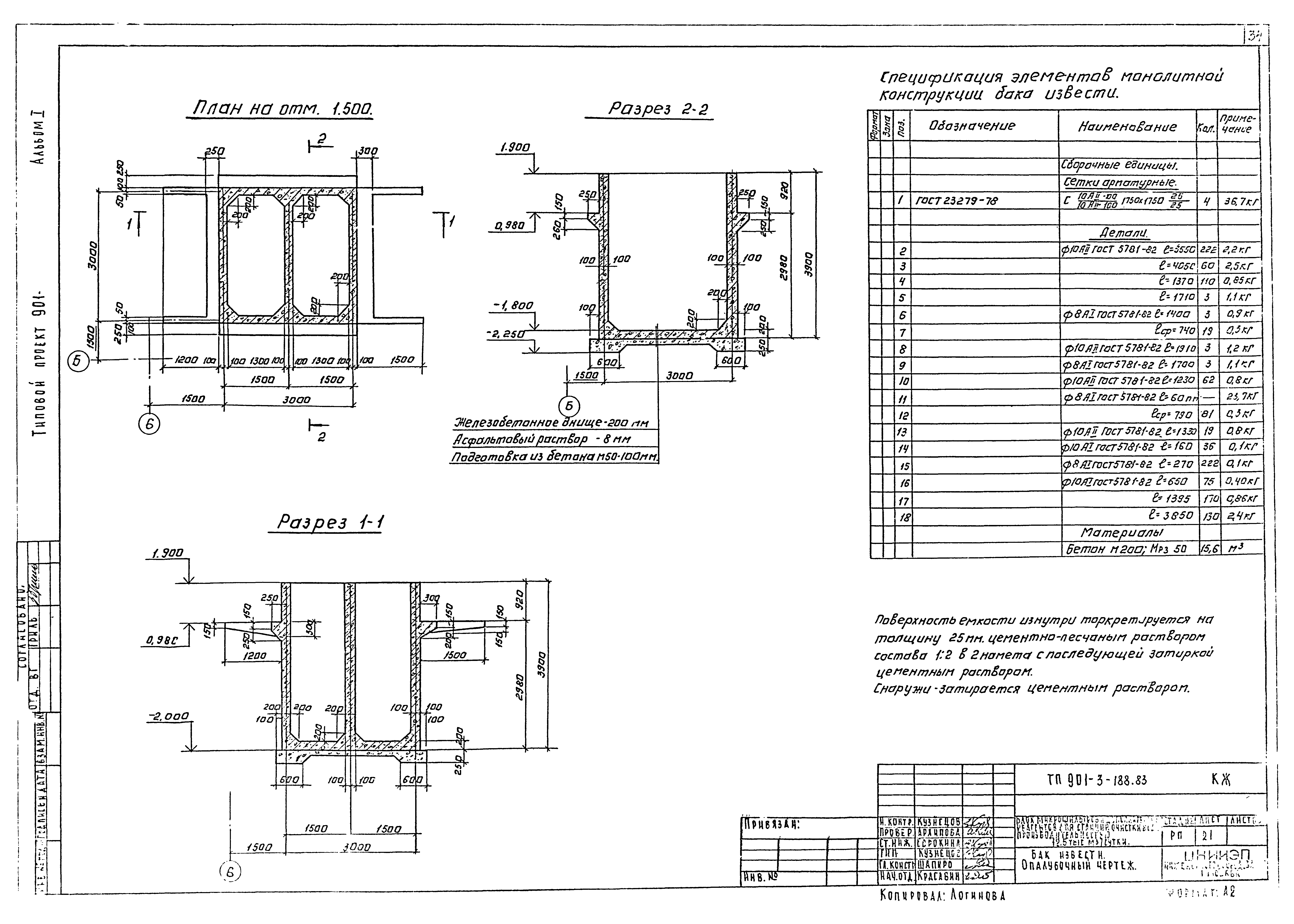
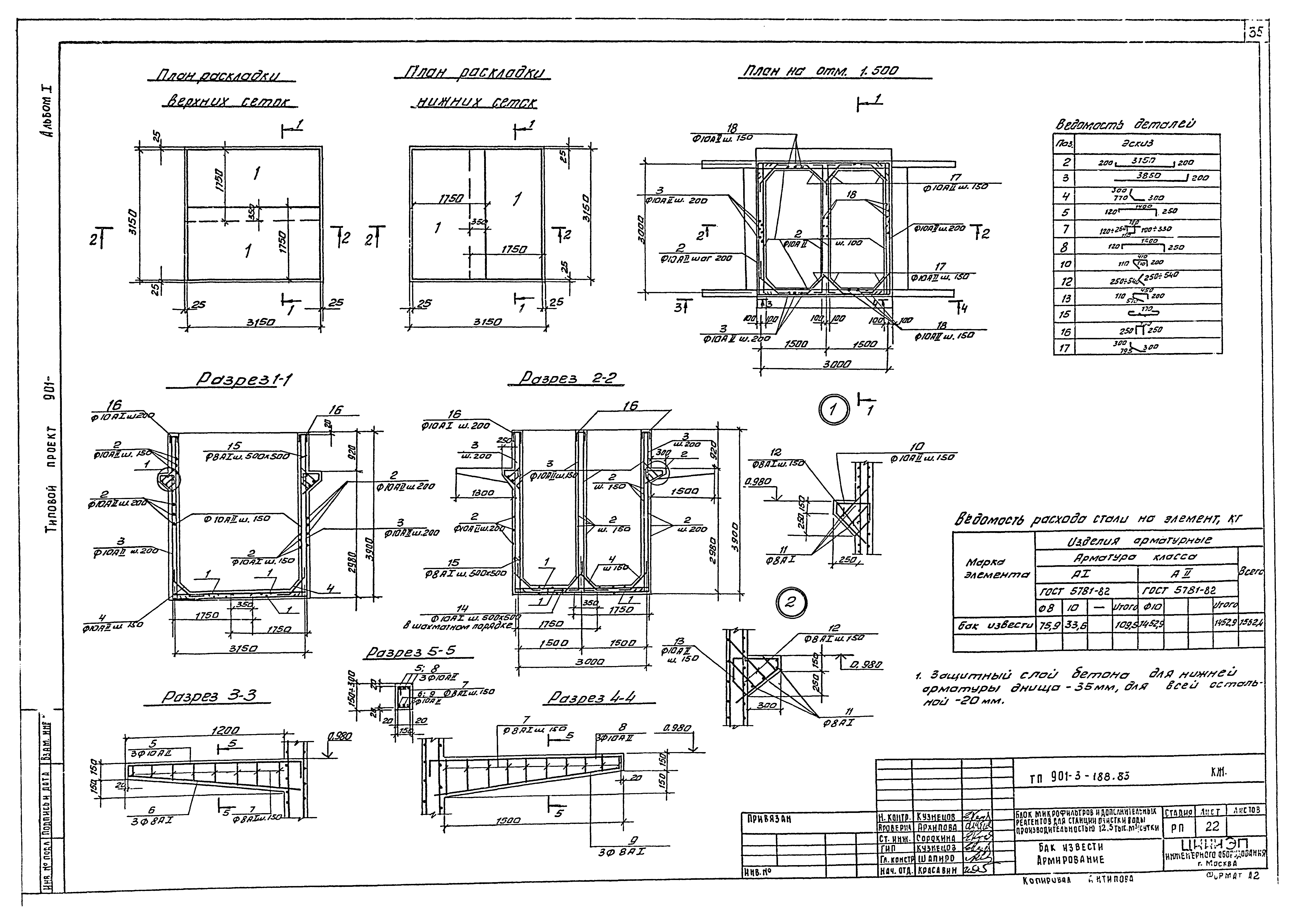
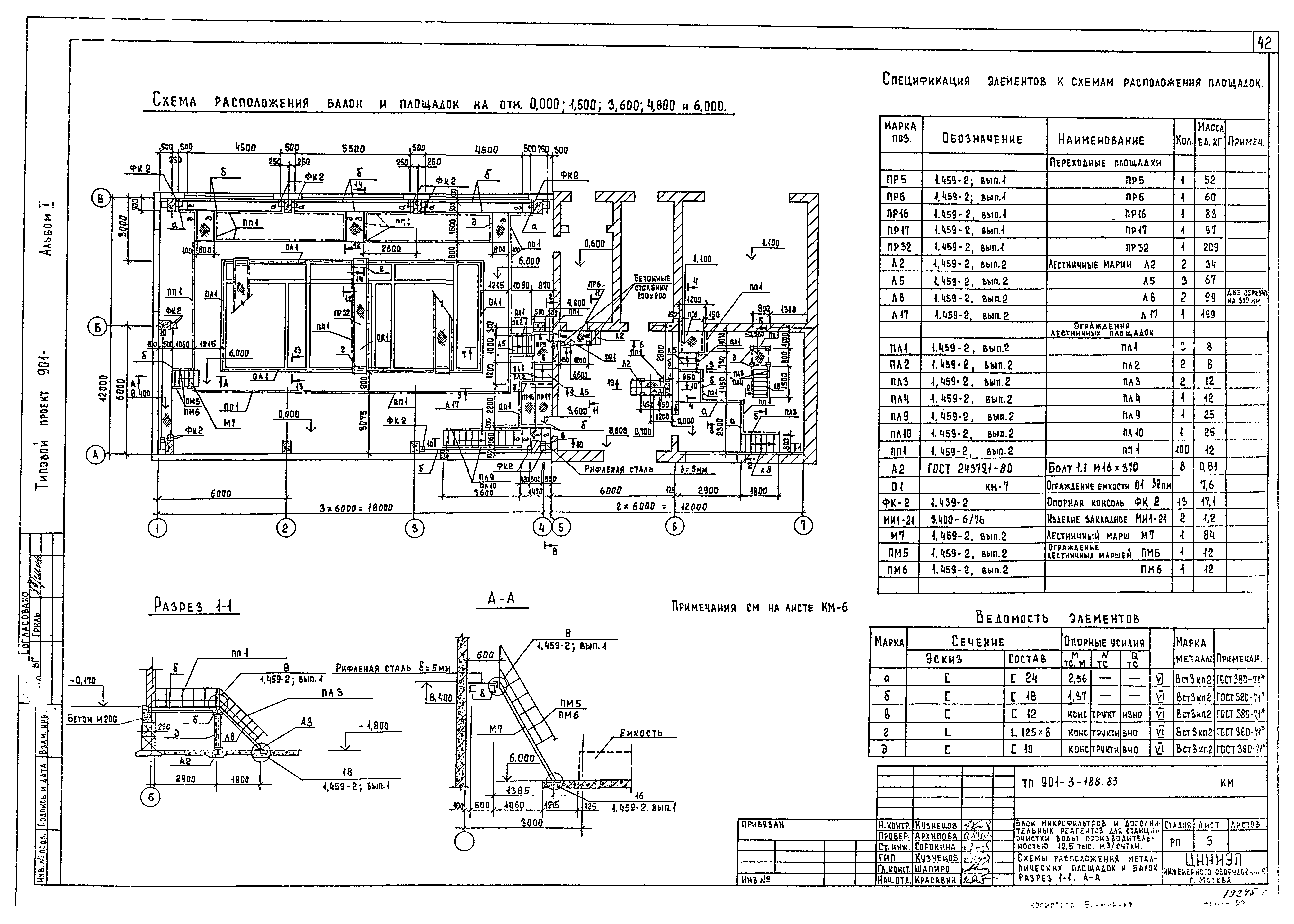
Скачать Типовой проект 901-3-188.83 Альбом I. Архитектурно-строительная, технологическая, санитарно-техническая, электротехническая части, связь и сигнализация, нестандартизированное оборудованиеДата актуализации: 01.01.2021 Типовой проект 901-3-188.83
Альбом I. Архитектурно-строительная, технологическая, санитарно-техническая, электротехническая части, связь и сигнализация, нестандартизированное оборудование| Обозначение: | Типовой проект 901-3-188.83 | | Обозначение англ: | 901-3-188.83 | | Статус: | не определен законодательством | | Название рус.: | Альбом I. Архитектурно-строительная, технологическая, санитарно-техническая, электротехническая части, связь и сигнализация, нестандартизированное оборудование | | Дата добавления в базу: | 01.02.2017 | | Дата актуализации: | 01.01.2021 | | Дата введения: | 23.06.1983 | | Дата окончания срока действия: | 30.06.2003 | | Разработан: | ЦНИИЭП инженерного оборудования
| | Утверждён: | 23.11.1982 Госгражданстрой (Gosgrazhdanstroy 313)
| | Издан: | ЦИТП Госстроя СССР (CITP, Gosstroy (USSR) 1983 г. )
|
                                                                                       
|