Скачать Типовой проект 902-3-53.86 Альбом III. ИзделияДата актуализации: 01.01.2021
|
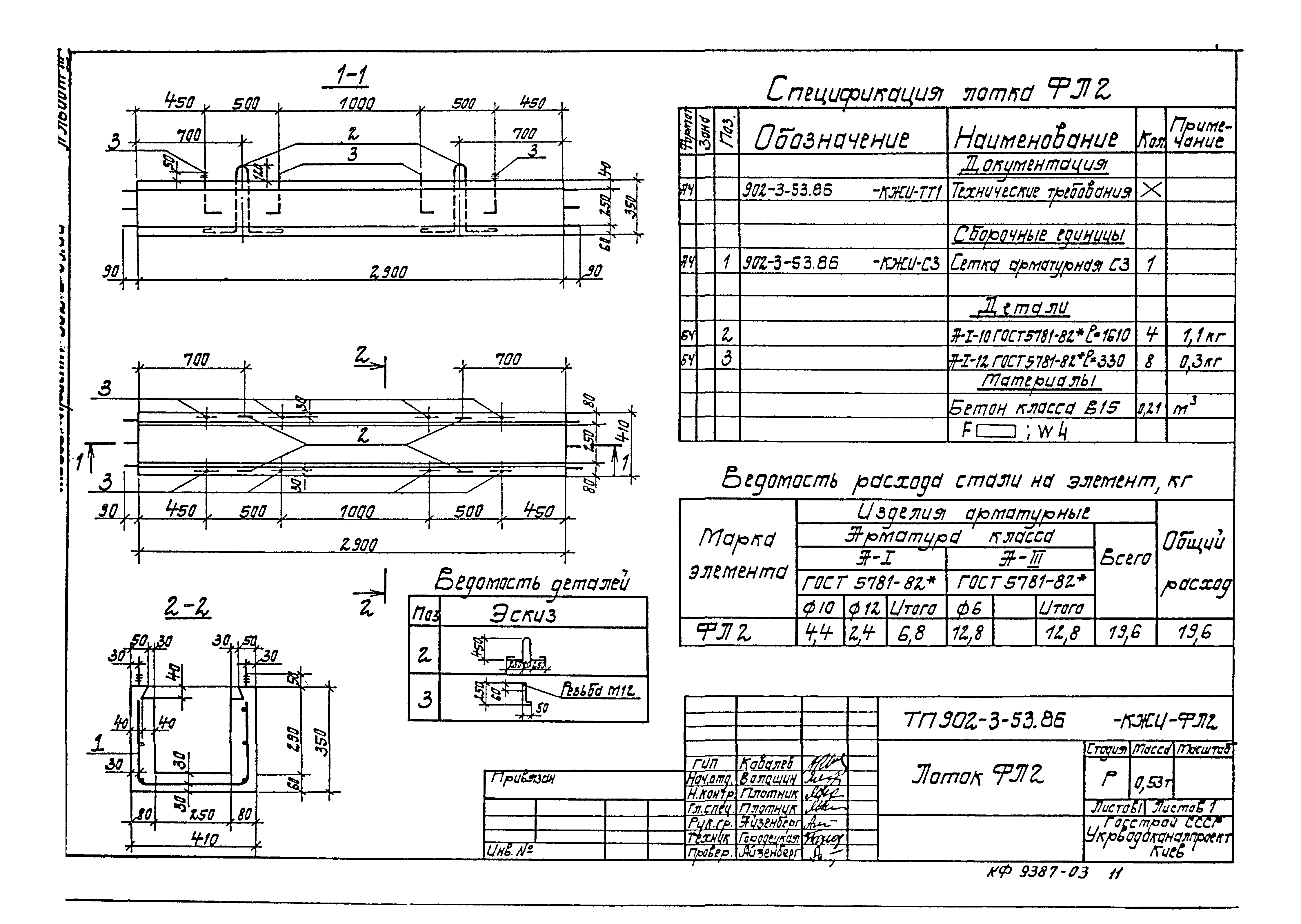
| Обозначение: | Типовой проект 902-3-53.86 |
| Обозначение англ: | 902-3-53.86 |
| Статус: | не определен законодательством |
| Название рус.: | Альбом III. Изделия |
| Дата добавления в базу: | 01.02.2017 |
| Дата актуализации: | 01.01.2021 |
| Дата введения: | 30.07.1986 |
| Дата окончания срока действия: | 30.06.2003 |
| Разработан: | Укрводоканалпроект |
| Утверждён: | 03.07.1986 Госстрой СССР (ИИ-19) |
| Издан: | ЦИТП Госстроя СССР (CITP, Gosstroy (USSR) 1987 г. ) |




















