Скачать Типовой проект 901-3-138 Альбом II. Технологическая, санитарно-техническая части и нестандартизированное оборудование здания станции обезжелезивания

Дата актуализации: 01.01.2021

Типовой проект 901-3-138

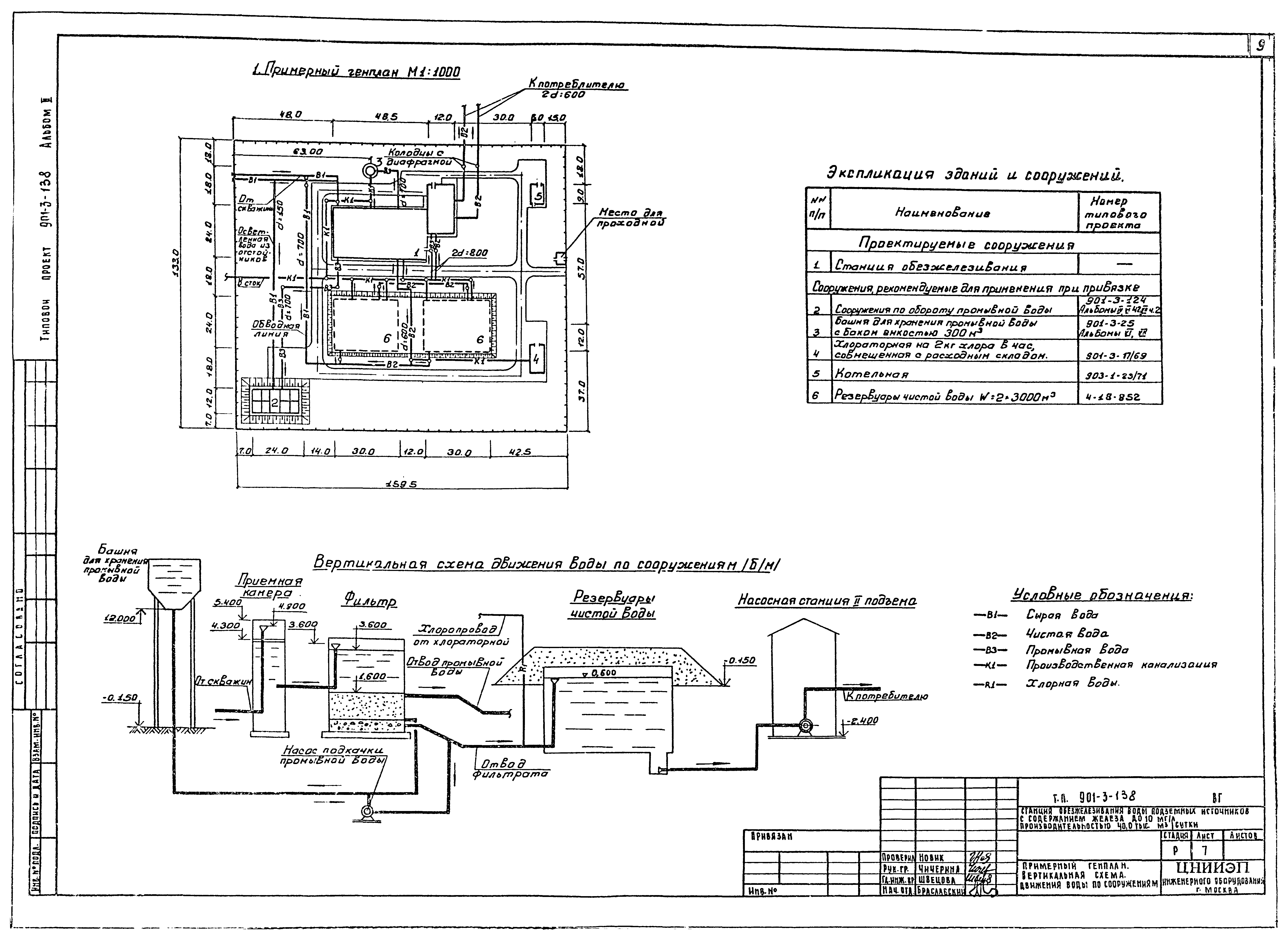
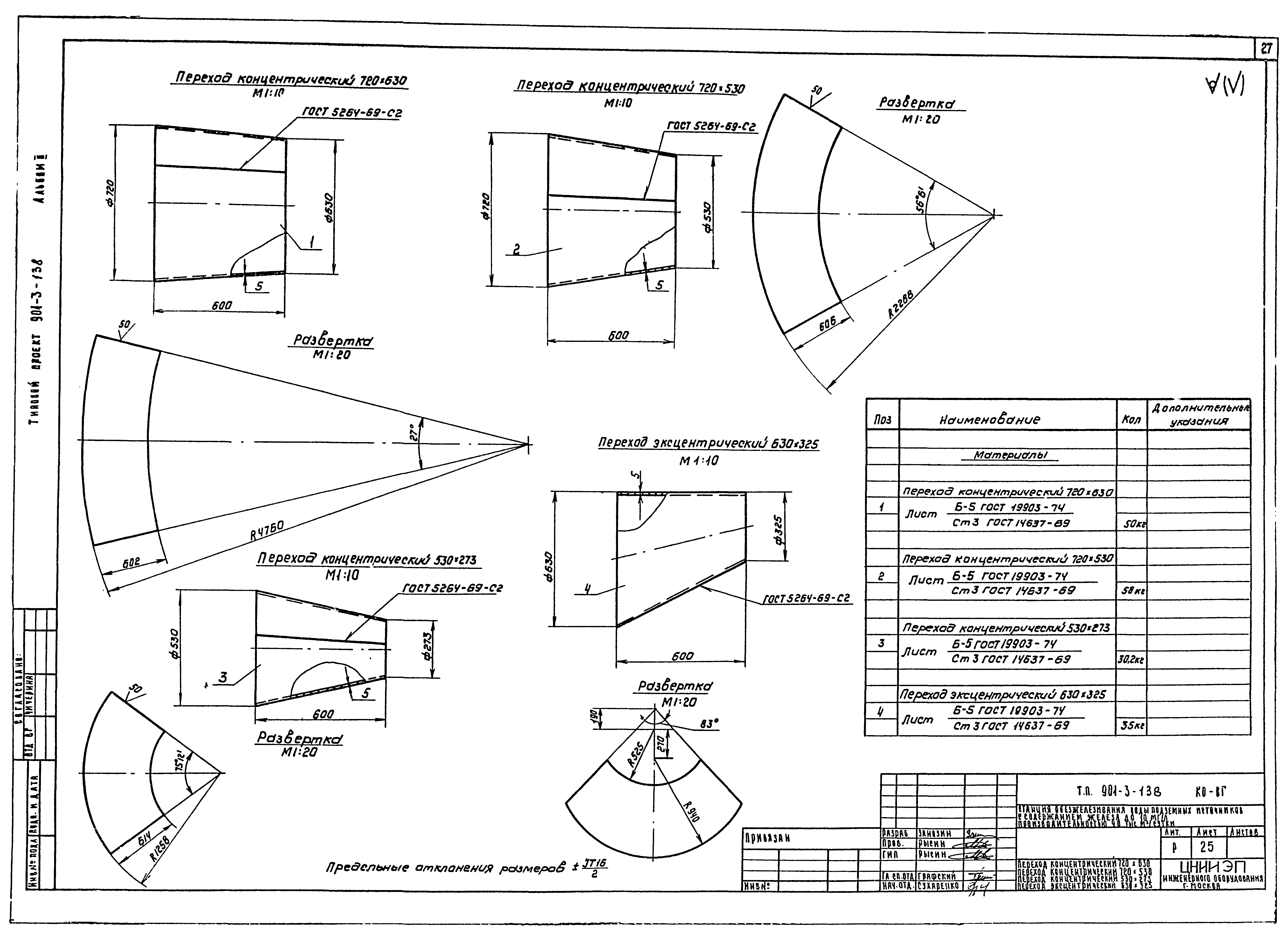
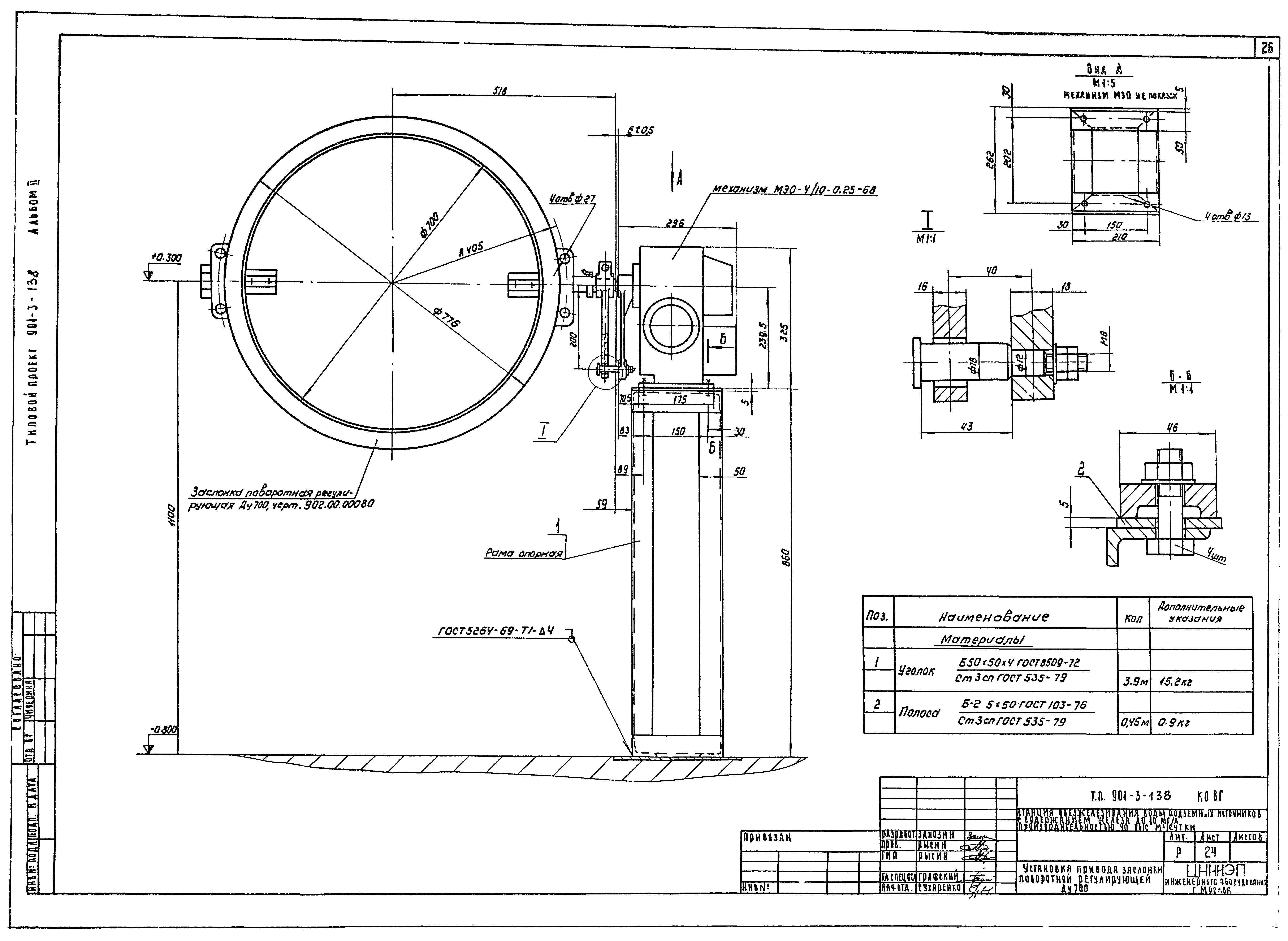
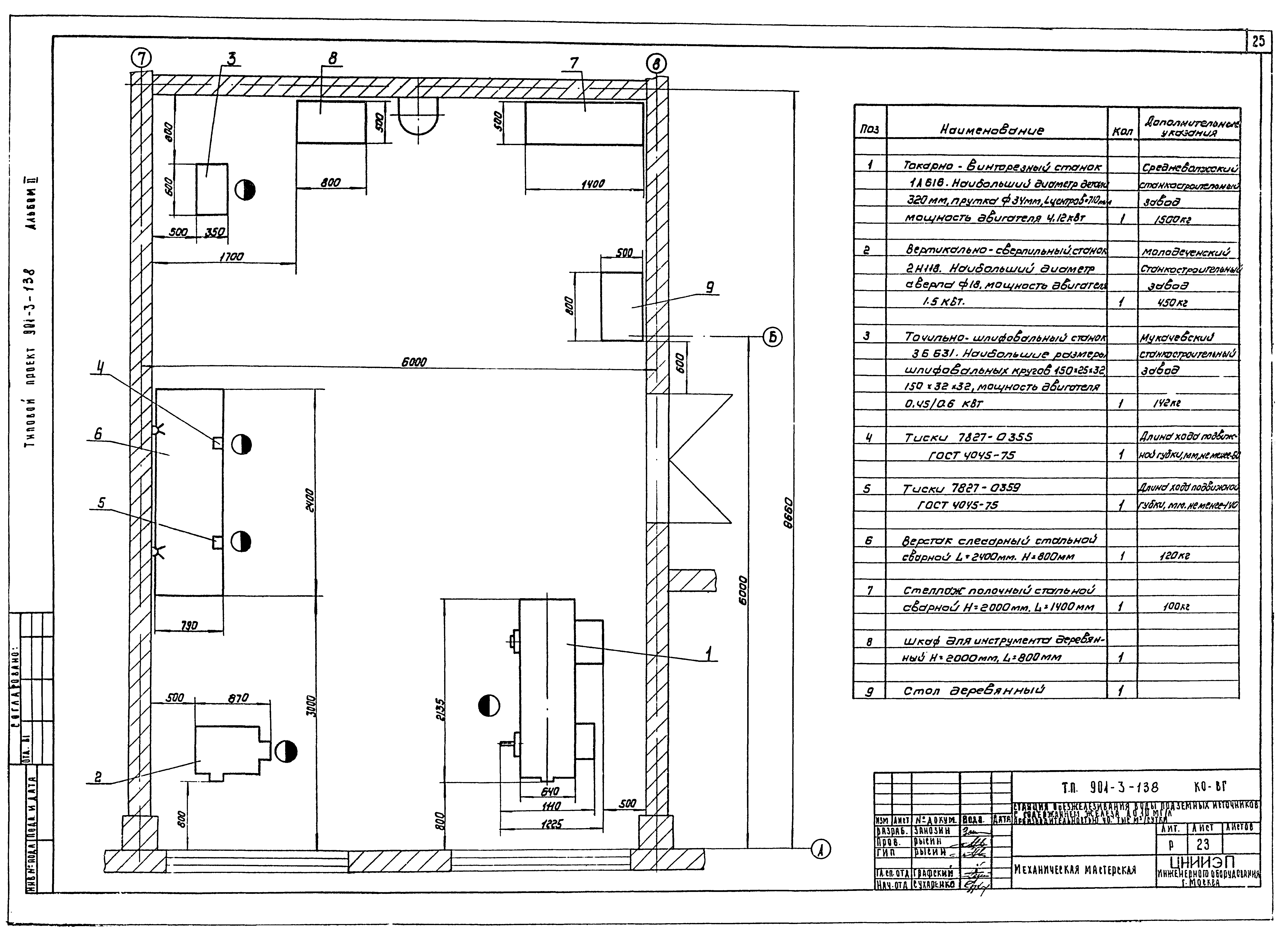
Альбом II. Технологическая, санитарно-техническая части и нестандартизированное оборудование здания станции обезжелезивания

Обозначение: Типовой проект 901-3-138
Обозначение англ: 901-3-138
Статус:заменен
Название рус.:Альбом II. Технологическая, санитарно-техническая части и нестандартизированное оборудование здания станции обезжелезивания
Дата добавления в базу:01.02.2017
Дата актуализации:01.01.2021
Дата введения:05.06.1980
Дата окончания срока действия:01.09.1989
Разработан: ЦНИИЭП инженерного оборудования
Утверждён:07.07.1977 Госгражданстрой (Gosgrazhdanstroy 131)
Издан: ЦИТП Госстроя СССР (CITP, Gosstroy (USSR) 1981 г. )
Заменяет собой:
  • Типовой проект 901-3-49 «Водопроводная станция обезжелезивания воды подземных источников производительностью 40 тыс. м3/сут»
Чем заменён:
Типовой проект 901-3-138Типовой проект 901-3-138Типовой проект 901-3-138Типовой проект 901-3-138Типовой проект 901-3-138Типовой проект 901-3-138Типовой проект 901-3-138Типовой проект 901-3-138Типовой проект 901-3-138Типовой проект 901-3-138Типовой проект 901-3-138Типовой проект 901-3-138Типовой проект 901-3-138Типовой проект 901-3-138Типовой проект 901-3-138Типовой проект 901-3-138Типовой проект 901-3-138Типовой проект 901-3-138Типовой проект 901-3-138Типовой проект 901-3-138Типовой проект 901-3-138Типовой проект 901-3-138Типовой проект 901-3-138Типовой проект 901-3-138Типовой проект 901-3-138Типовой проект 901-3-138Типовой проект 901-3-138Типовой проект 901-3-138Типовой проект 901-3-138Типовой проект 901-3-138Типовой проект 901-3-138Типовой проект 901-3-138Типовой проект 901-3-138Типовой проект 901-3-138Типовой проект 901-3-138Типовой проект 901-3-138Типовой проект 901-3-138Типовой проект 901-3-138Типовой проект 901-3-138Типовой проект 901-3-138Типовой проект 901-3-138Типовой проект 901-3-138