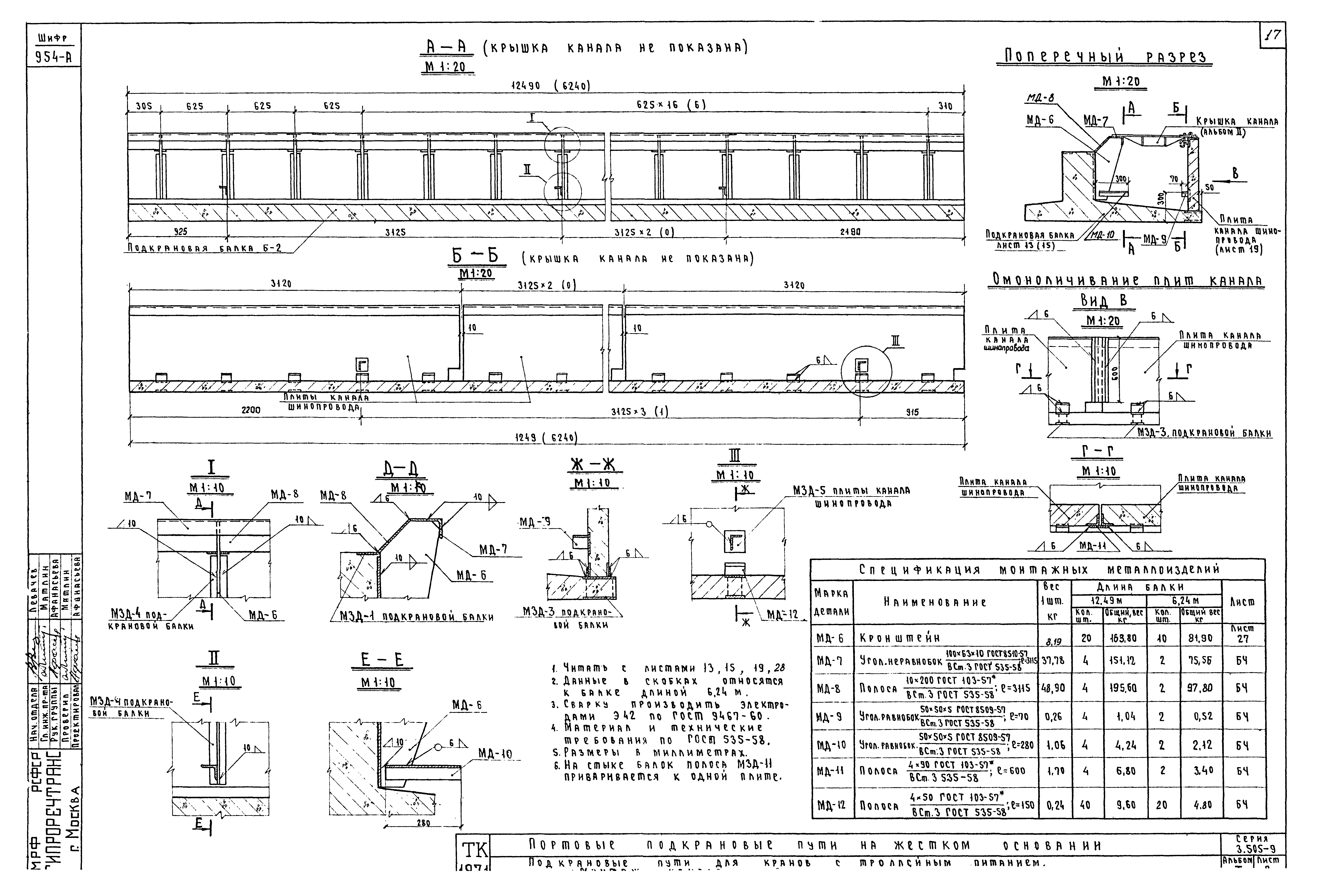
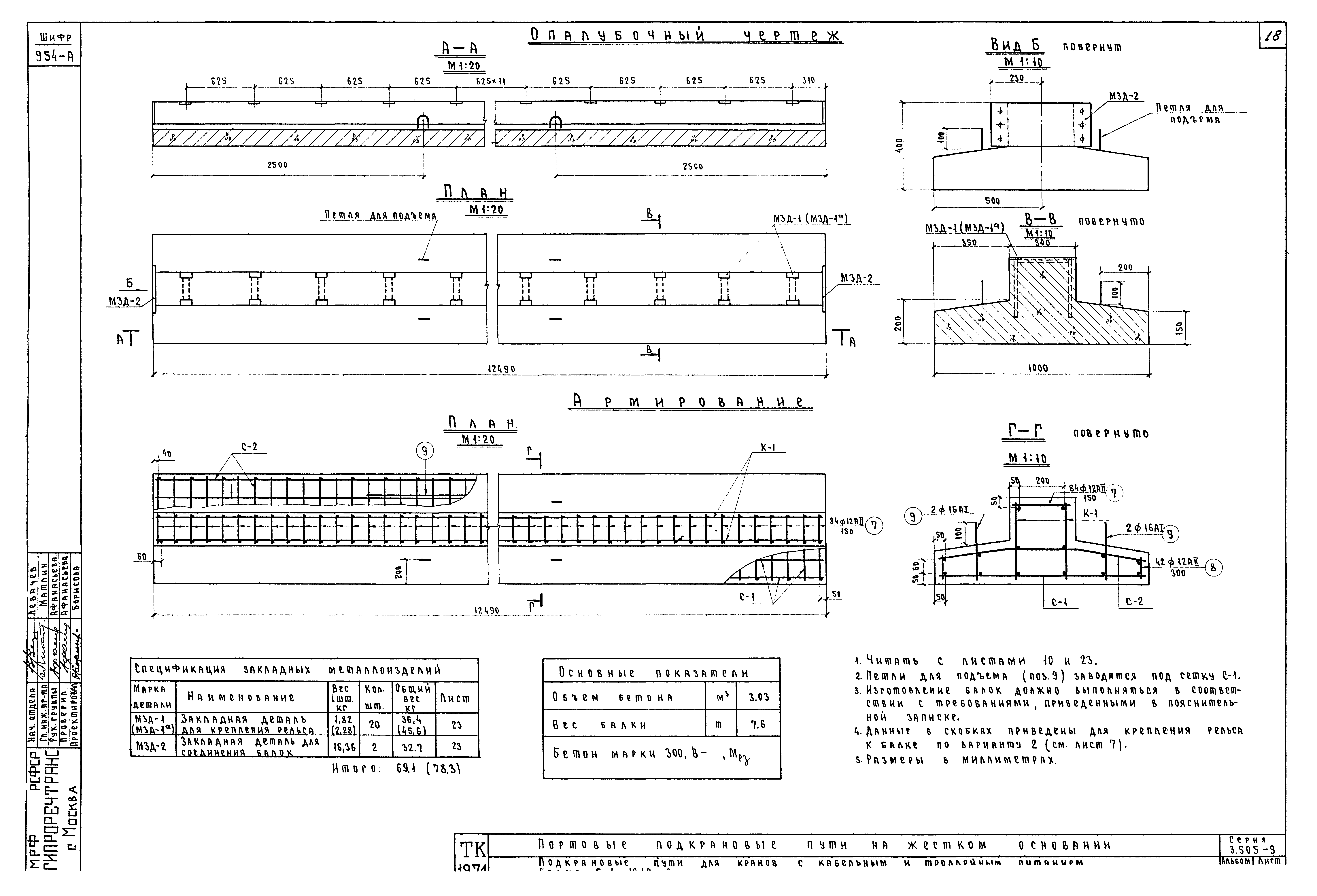
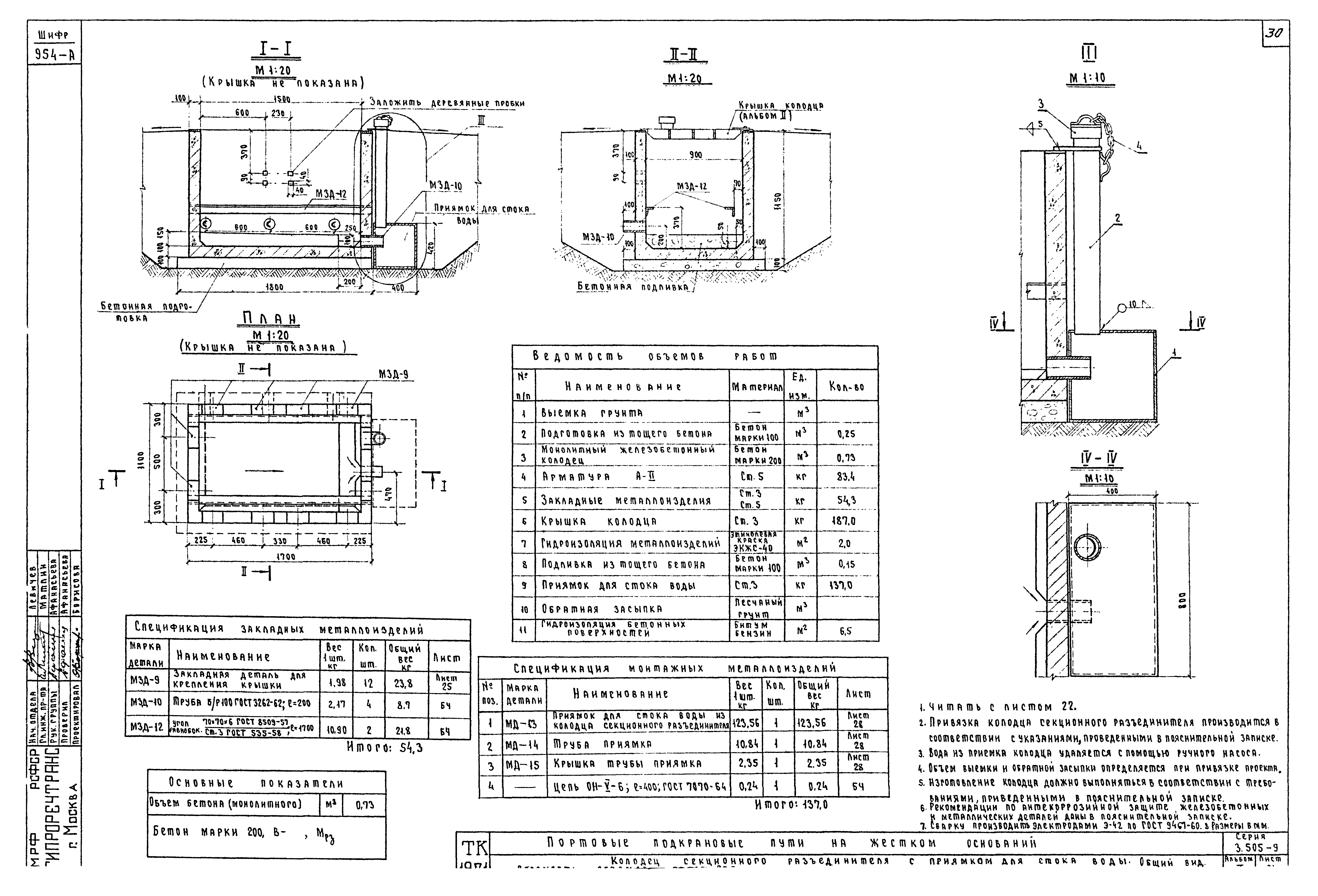
Скачать Серия 3.505-9 Альбом I. Строительная частьДата актуализации: 01.01.2021
|
| Обозначение: | Серия 3.505-9 |
| Обозначение англ: | Series 3.505-9 |
| Статус: | заменен |
| Название рус.: | Альбом I. Строительная часть |
| Дата добавления в базу: | 01.02.2017 |
| Дата актуализации: | 01.01.2021 |
| Дата введения: | 01.04.1972 |
| Дата окончания срока действия: | 01.10.1983 |
| Разработан: | Гипроречтранс |
| Утверждён: | 01.04.1972 Министерство речного флота СССР |
| Принят: | 16.12.1971 ЦК профсоюза рабочих морского и речного флота (Central Committee of the Labor Union of Maritime and River Fleet Workers ) |
| Чем заменён: |
|







































