Скачать Типовой проект 901-1-92.88 Альбом VII.1. Задания заводам изготовителям на комплектные электротехнические устройства (из ТП 901-1-91.88)Дата актуализации: 01.01.2021
|
| Обозначение: | Типовой проект 901-1-92.88 |
| Обозначение англ: | 901-1-92.88 |
| Статус: | не определен законодательством |
| Название рус.: | Альбом VII.1. Задания заводам изготовителям на комплектные электротехнические устройства (из ТП 901-1-91.88) |
| Дата добавления в базу: | 01.02.2017 |
| Дата актуализации: | 01.01.2021 |
| Дата введения: | 05.07.1988 |
| Дата окончания срока действия: | 30.06.2003 |
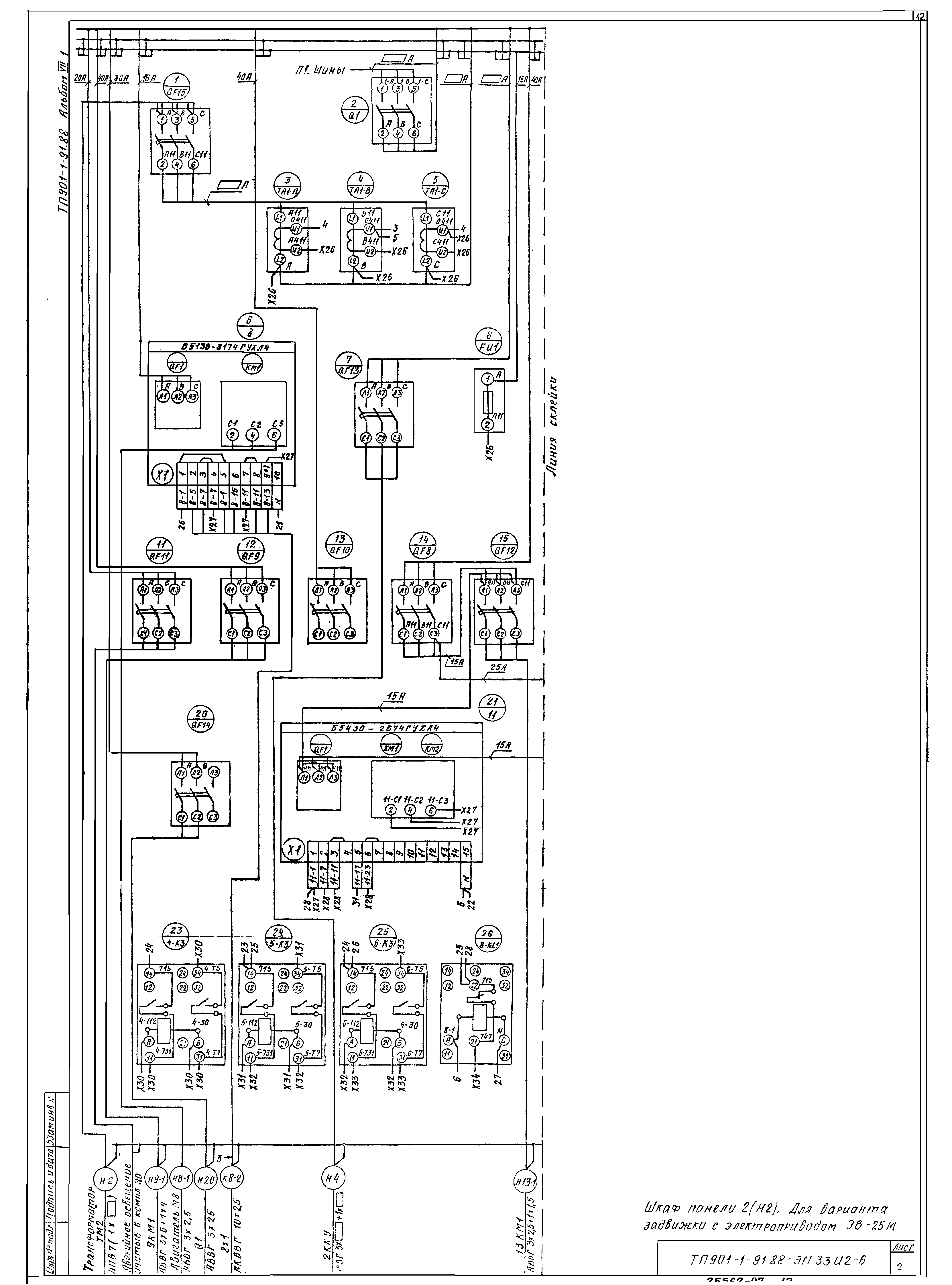
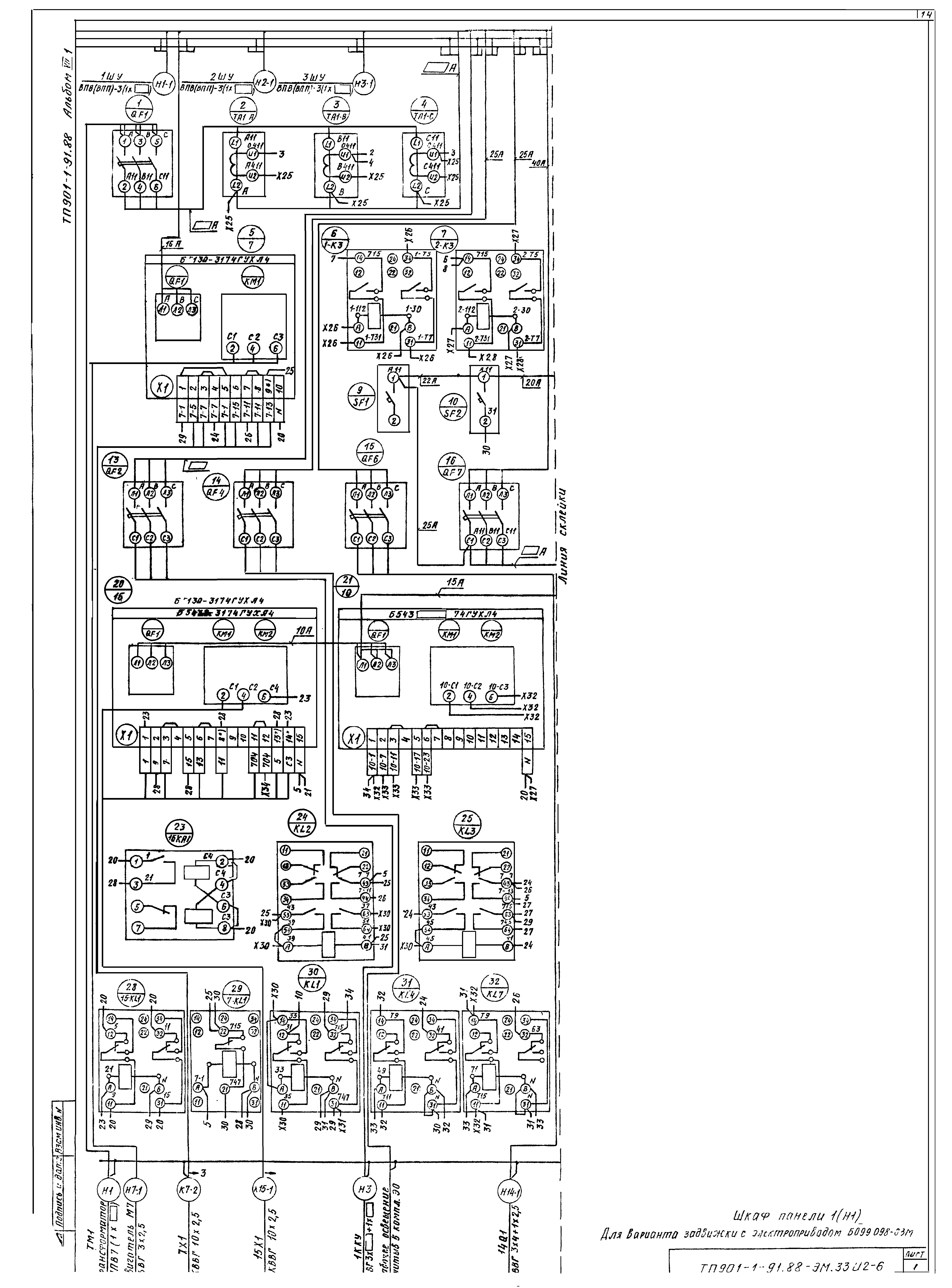
| Оглавление: | Задание заводу-изготовителю на РУ ЭМ.33И1-1 РУ кВ. Опросный лист Задание заводу-изготовителю на НКУ ЭМ.33И2-1 Перечень чертежей ЭМ 33И2 ЭМ.33И2-2 Перечень комплектных устройств Щит станций управления 1Щ ЭМ.33И2-3 Общий вид ЭМ.33И2-4 Технические данные аппаратов ЭМ.33И2-5 Перечень надписей ЭМ.33И2-6 Схема электрическая соединений Щит станций управления и сигнализации 2Щ ЭМ.33И2-7 Общий вид ЭМ.33И2-8 Технические данные аппаратов ЭМ.33И2-9 Перечень надписей ЭМ.33И2-10 Схема электрическая соединений |
| Разработан: | Ленинградский Водоканалпроект |
| Утверждён: | 06.04.1988 Госстрой СССР (25) |
| Издан: | ЦИТП Госстроя СССР (CITP, Gosstroy (USSR) 1988 г. ) |
| Заменяет собой: | |
| Нормативные ссылки: |



















