Скачать Типовые проектные решения 903-1-0255.8.87 Альбом 1. Решения тепломеханические. Автоматизация. Спецификации оборудования. Ведомости потребности в материалахДата актуализации: 01.01.2021 Типовые проектные решения 903-1-0255.8.87
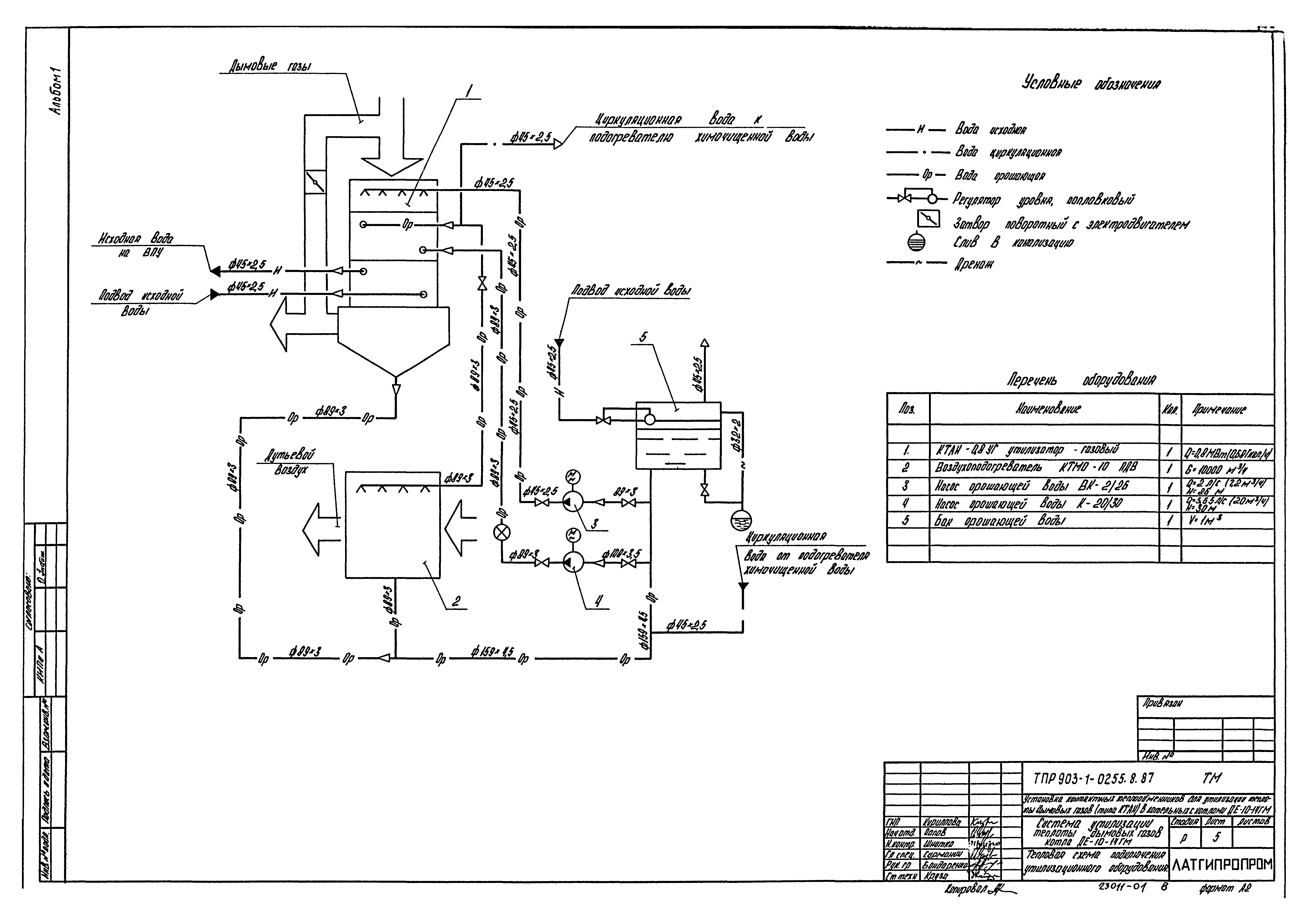
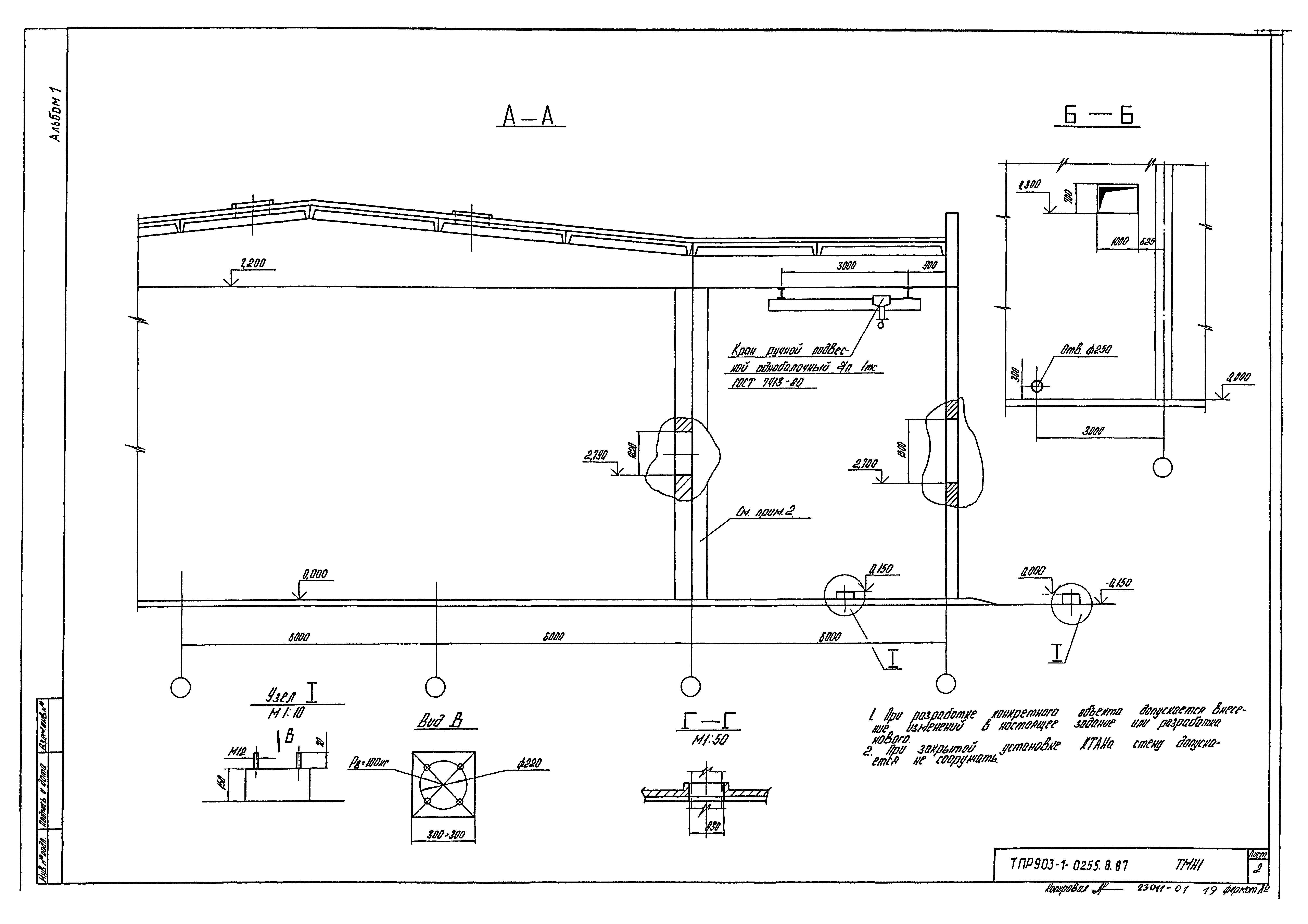
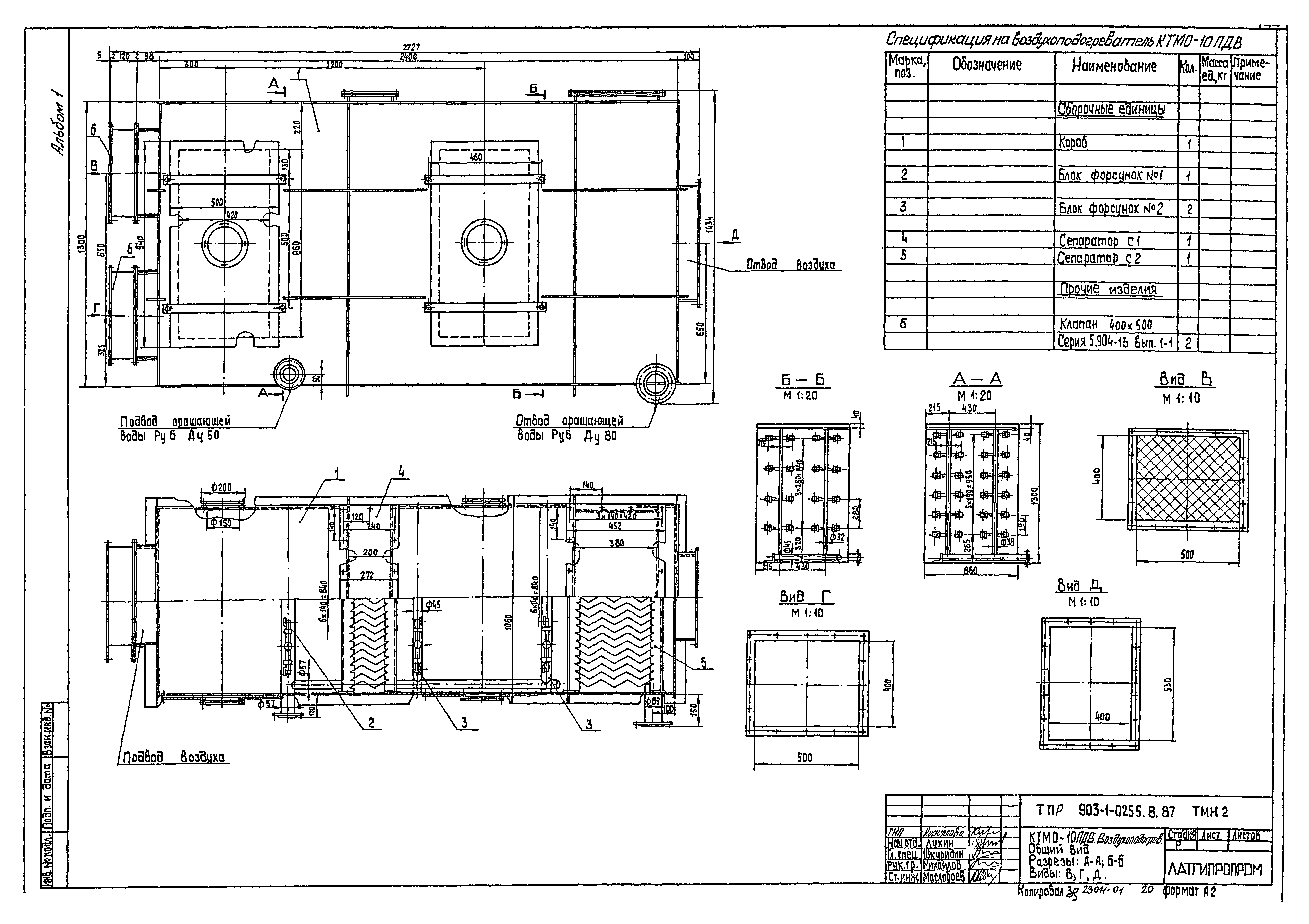
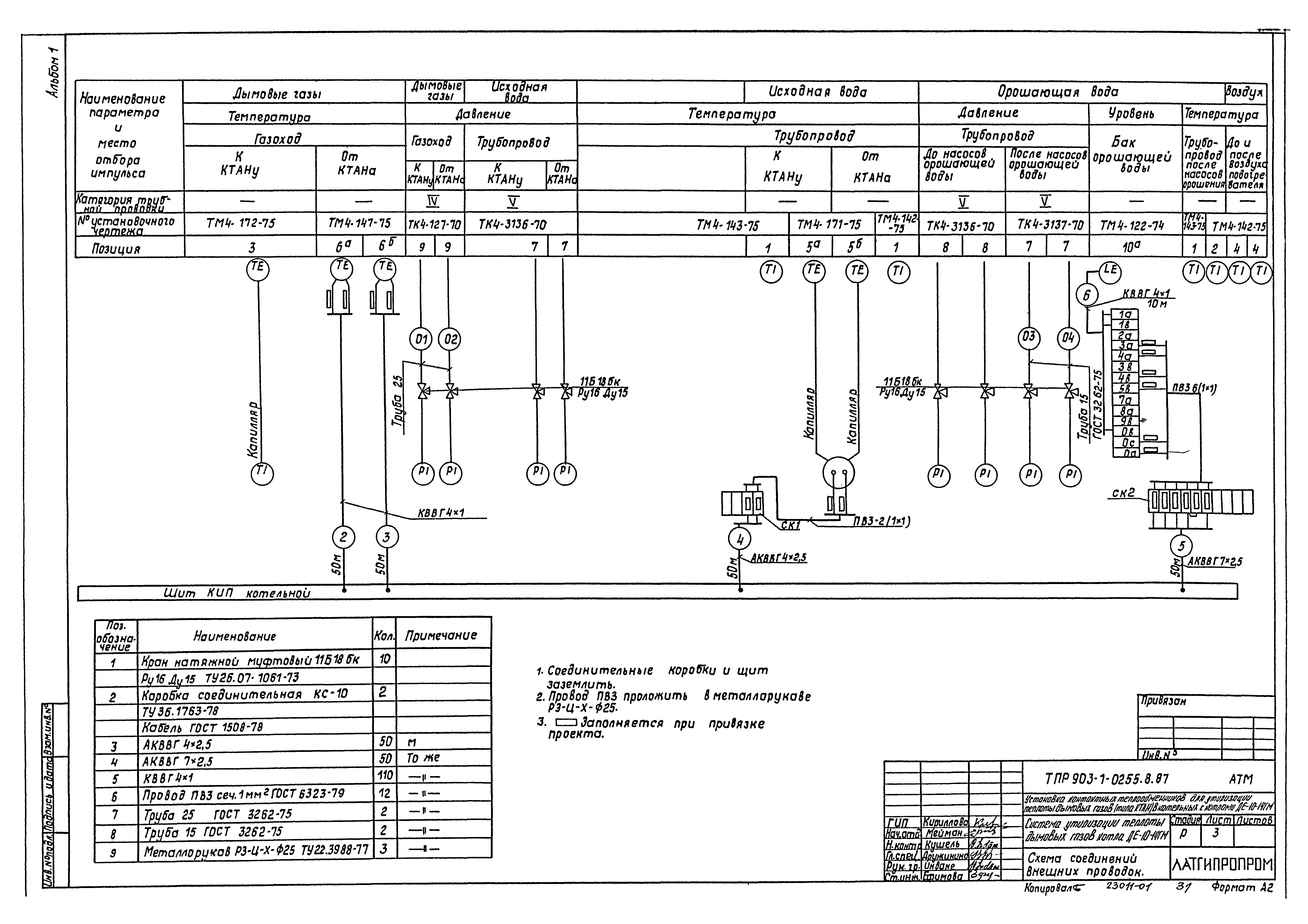
Альбом 1. Решения тепломеханические. Автоматизация. Спецификации оборудования. Ведомости потребности в материалах| Обозначение: | Типовые проектные решения 903-1-0255.8.87 | | Обозначение англ: | 903-1-0255.8.87 | | Статус: | справочные материалы, мп, тпр | | Название рус.: | Альбом 1. Решения тепломеханические. Автоматизация. Спецификации оборудования. Ведомости потребности в материалах | | Дата добавления в базу: | 01.02.2017 | | Дата актуализации: | 01.01.2021 | | Дата введения: | 22.01.1988 | | Разработан: | Латгипропром
| | Утверждён: | 22.01.1988 Госстрой Латвийской ССР (11)
| | Нормативные ссылки: | |
                               
|