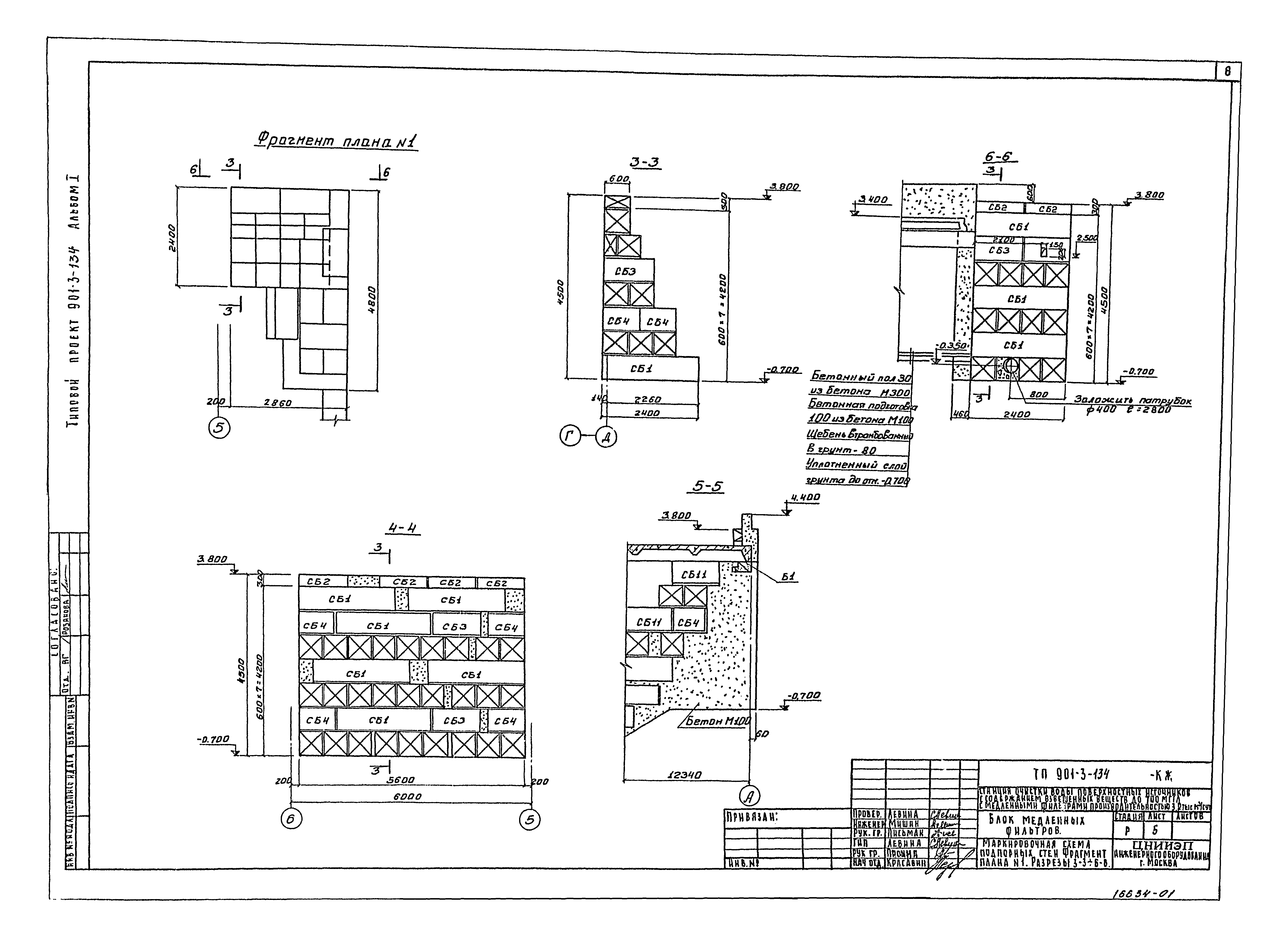
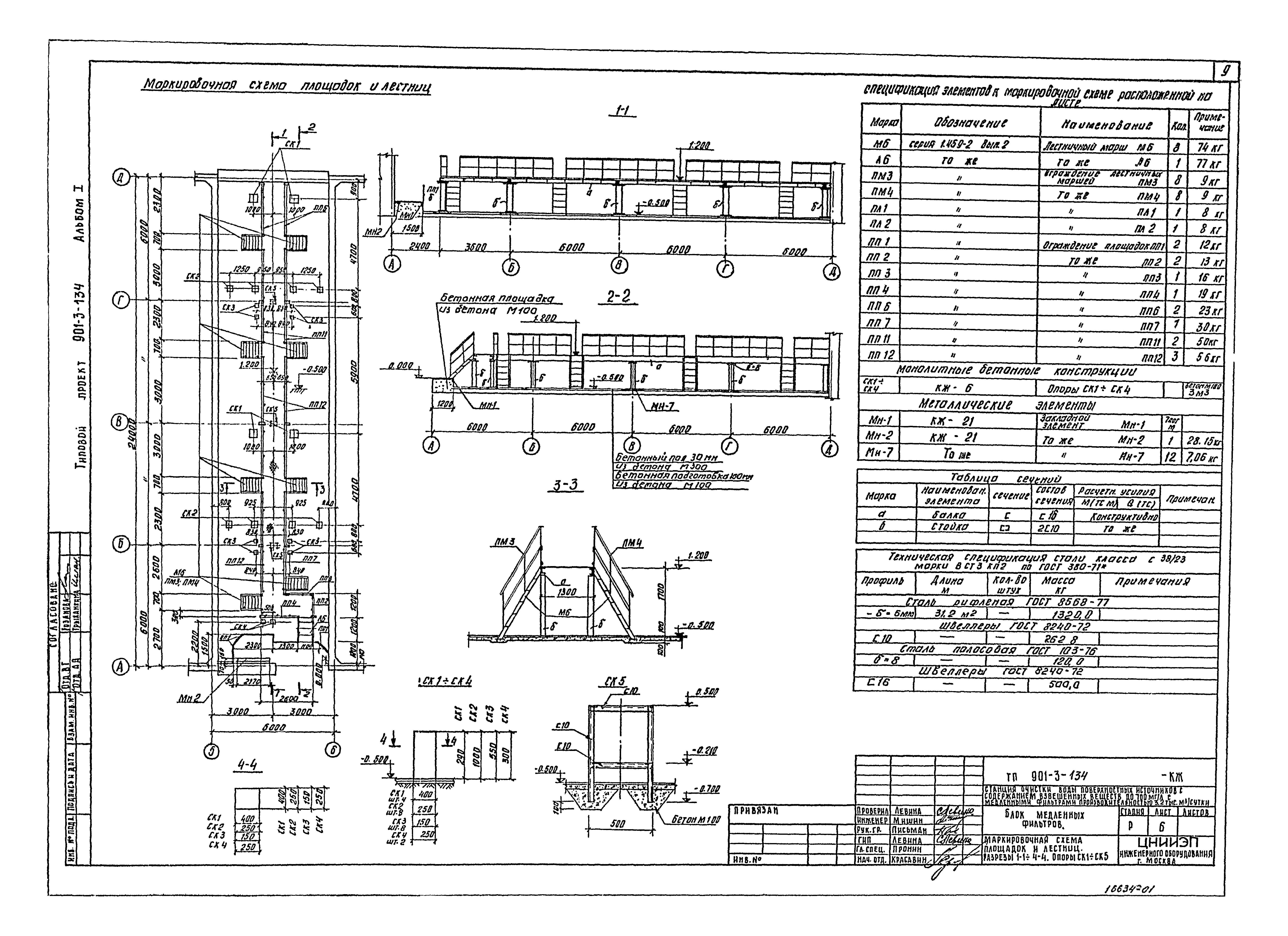
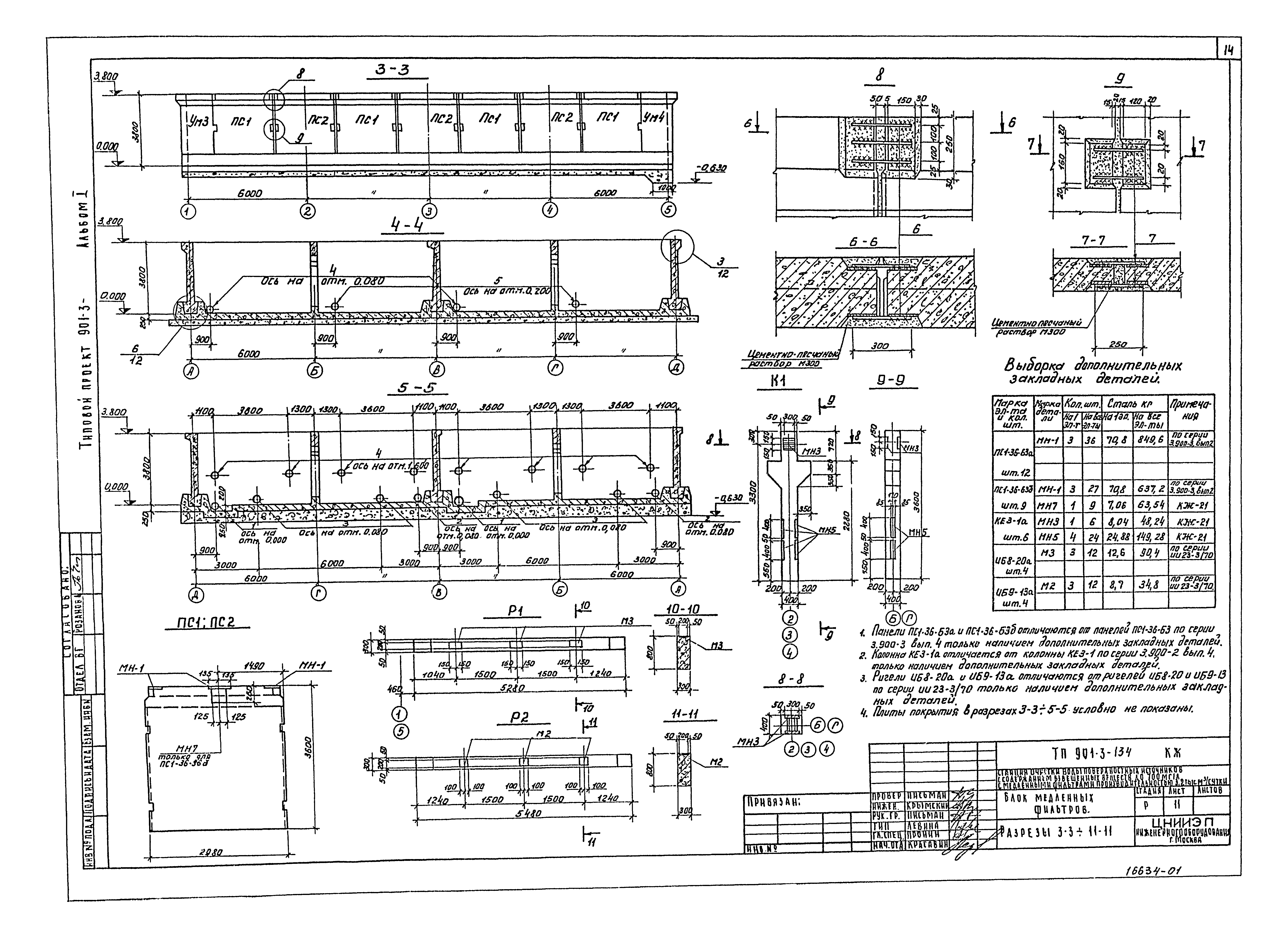
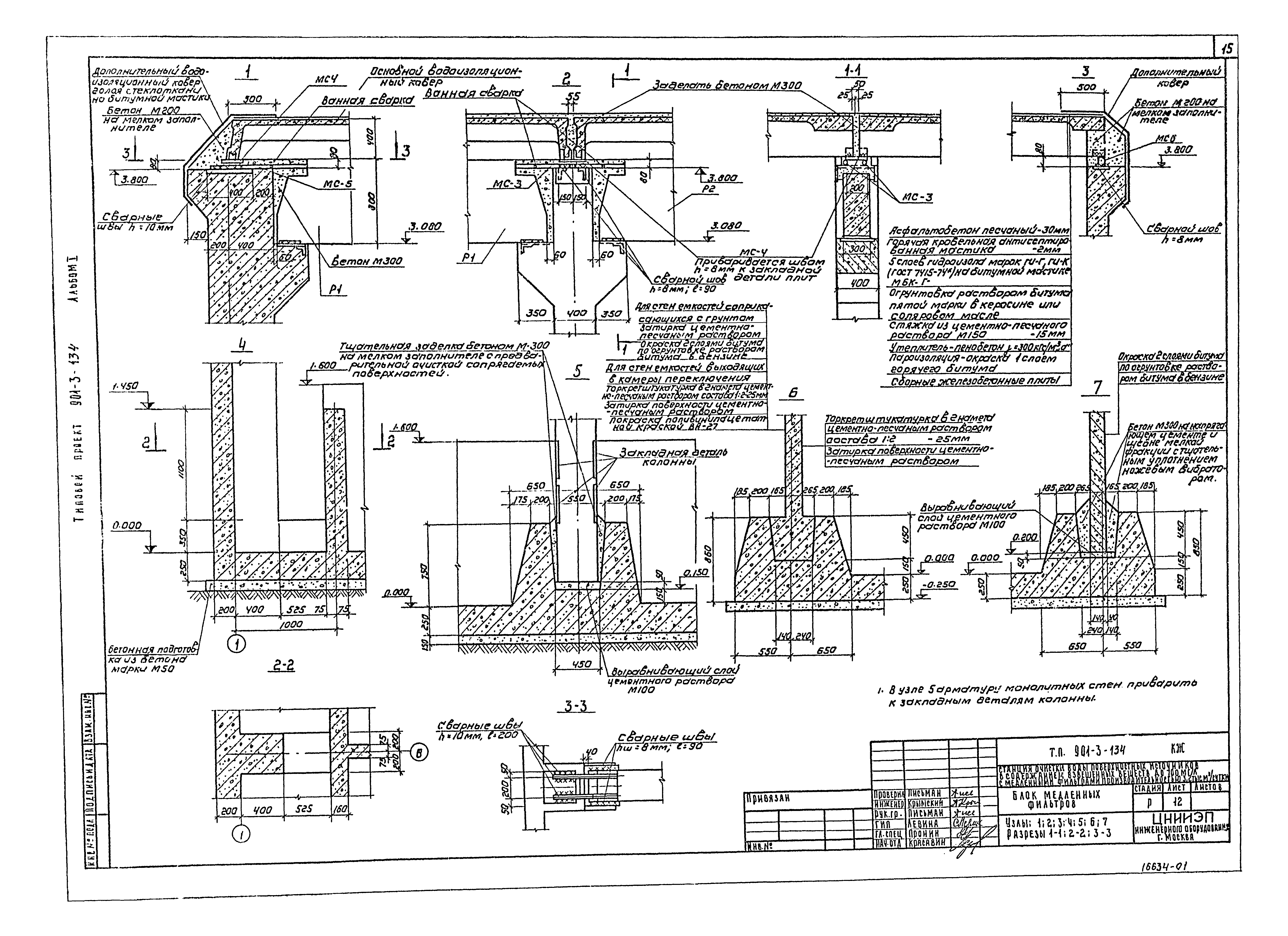
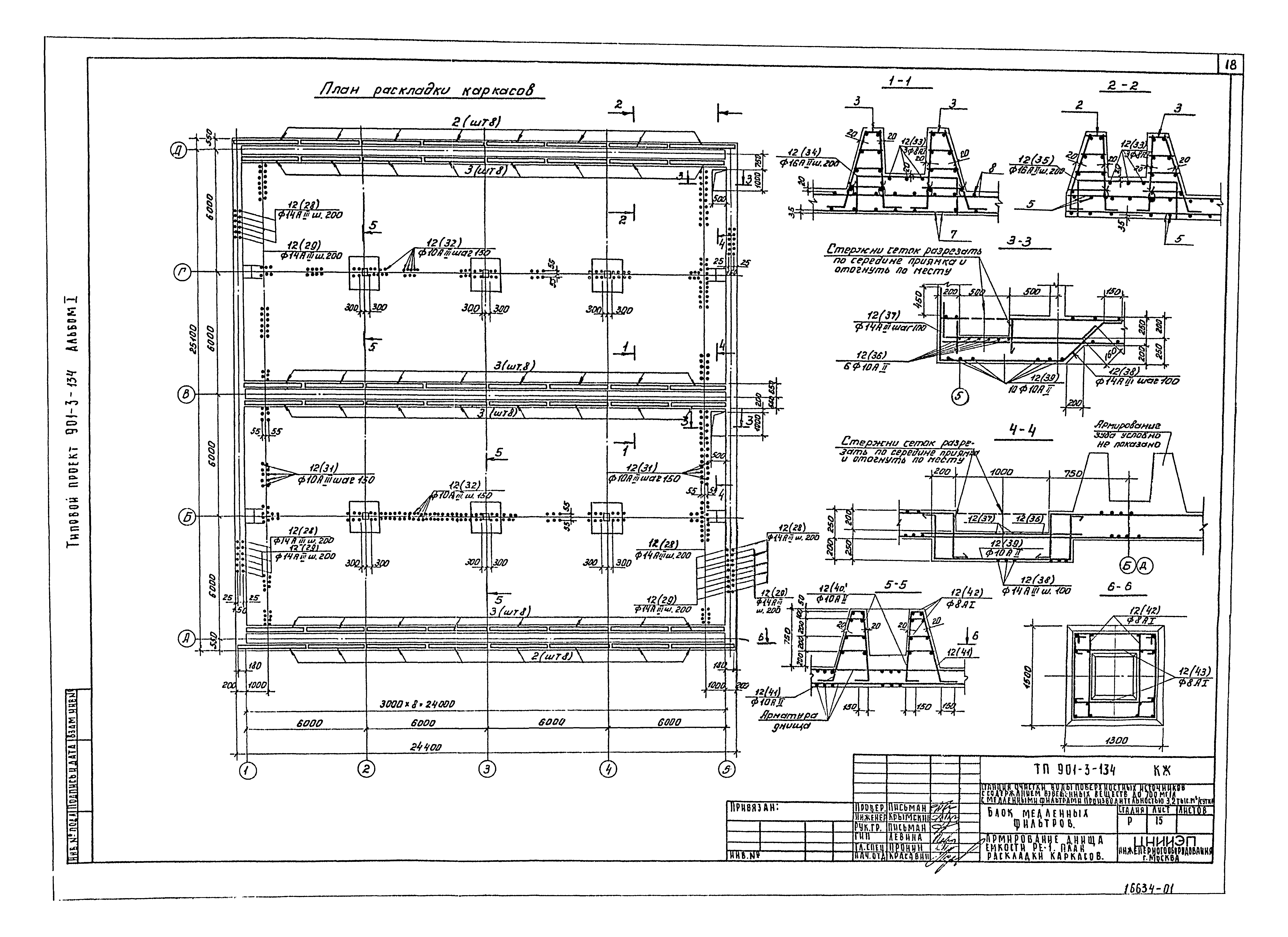
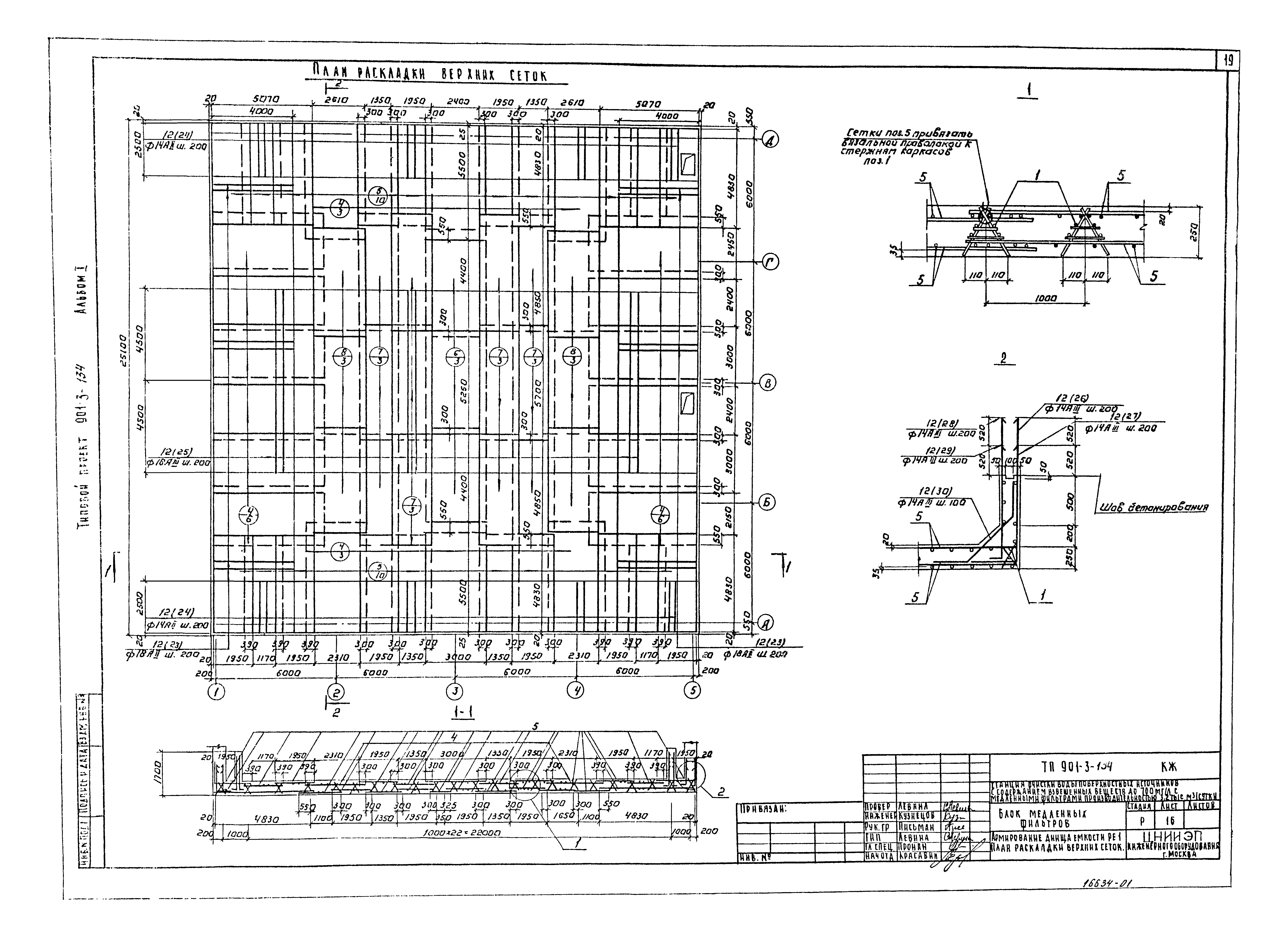
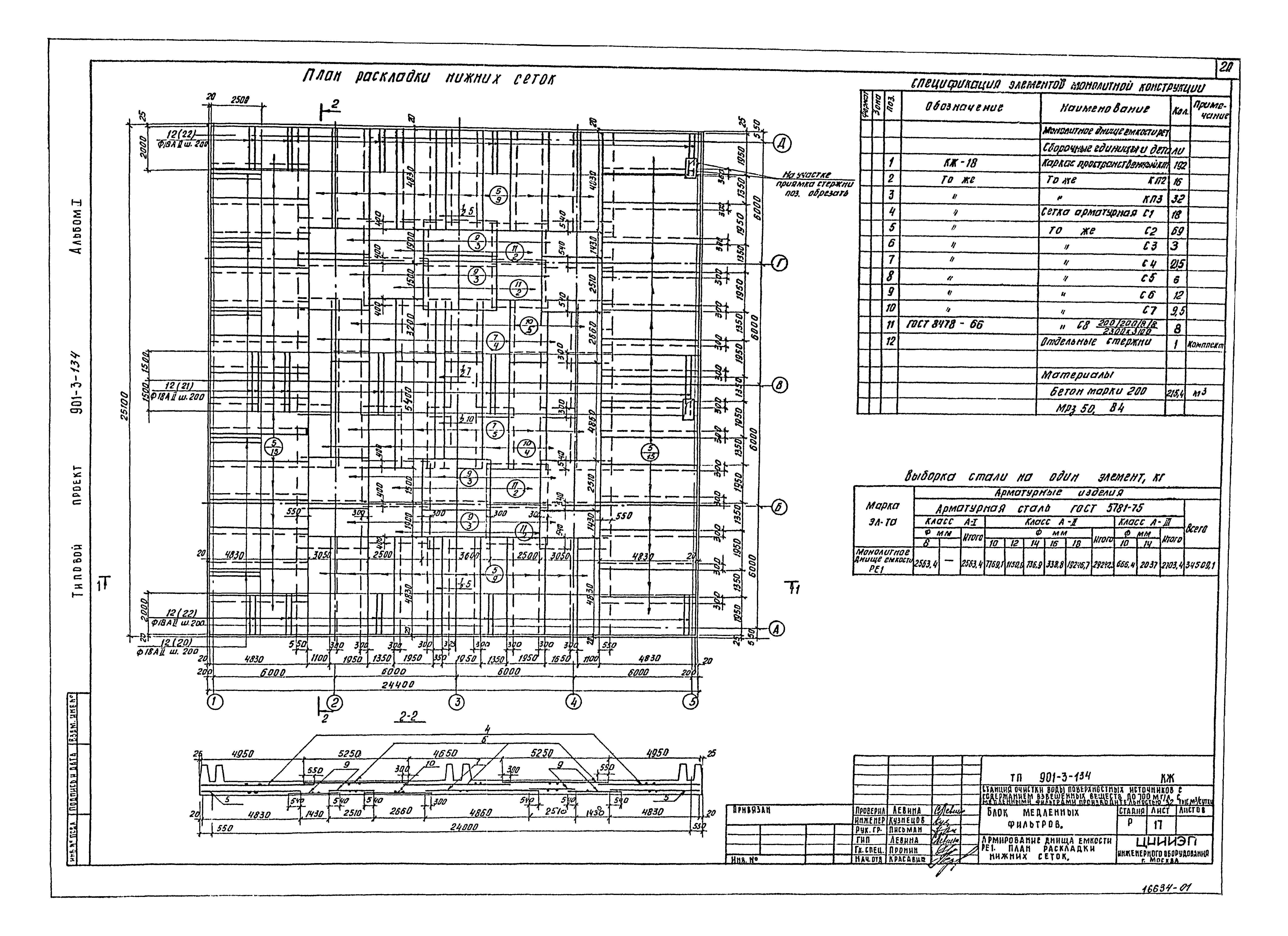
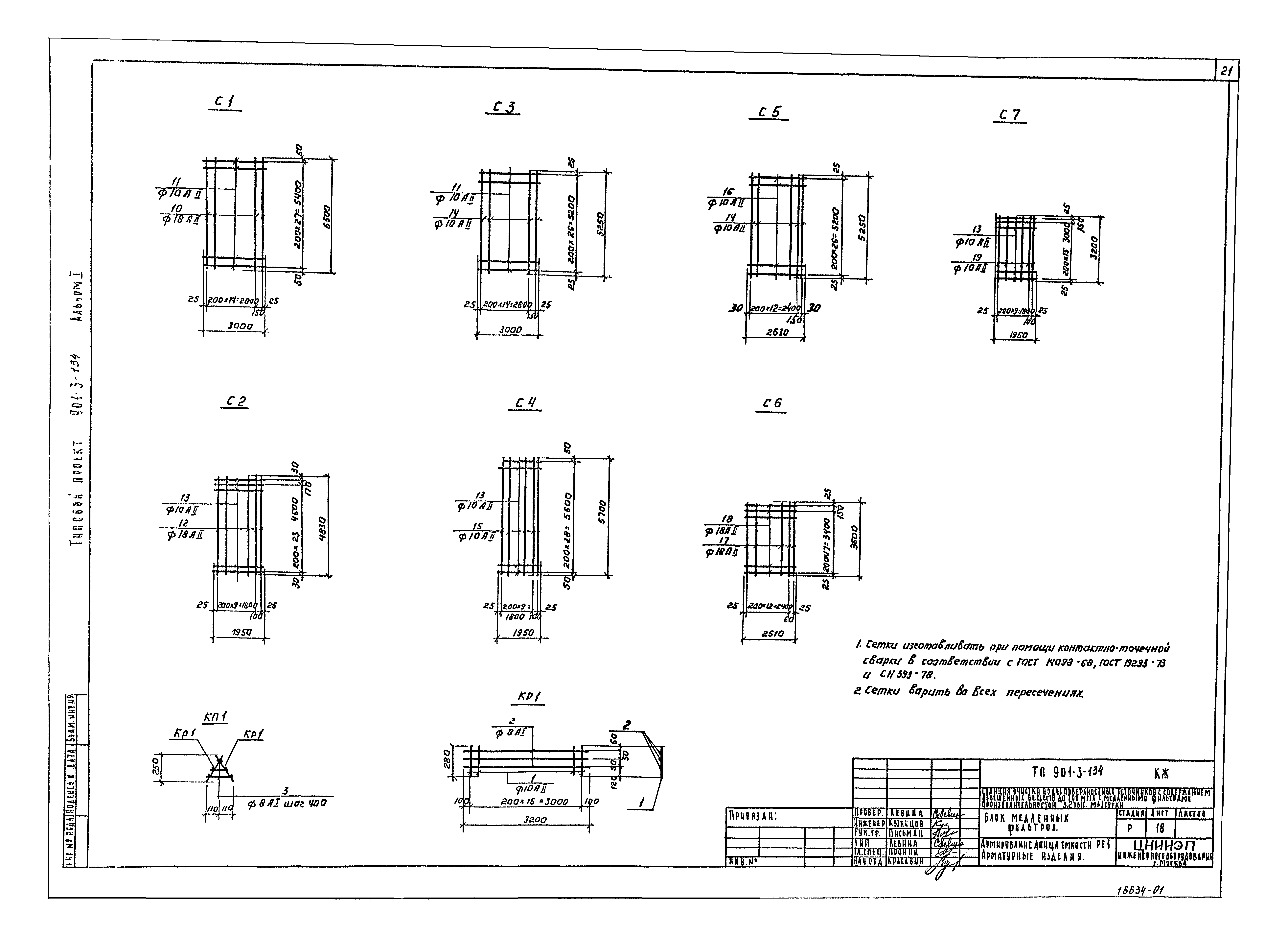
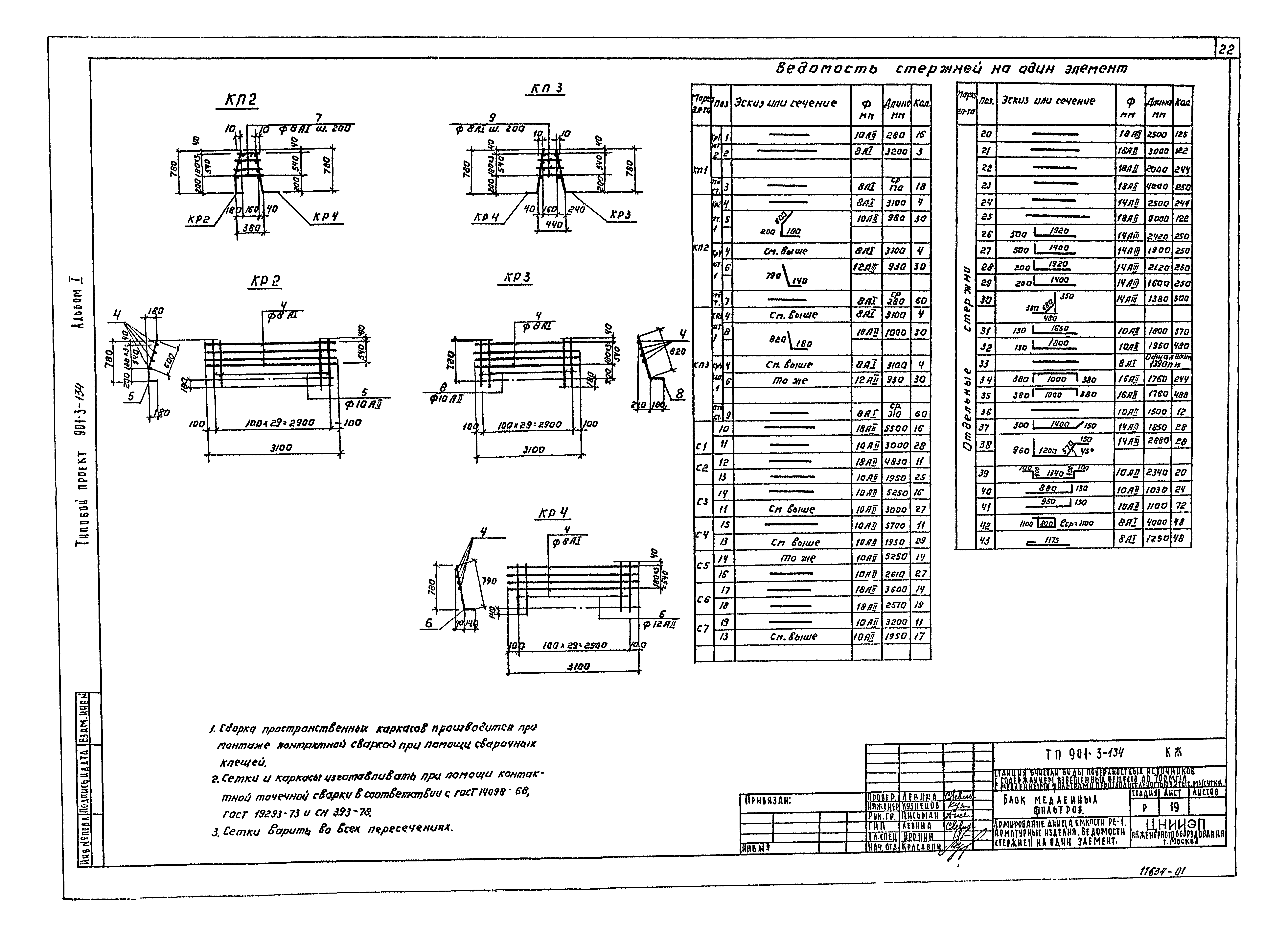
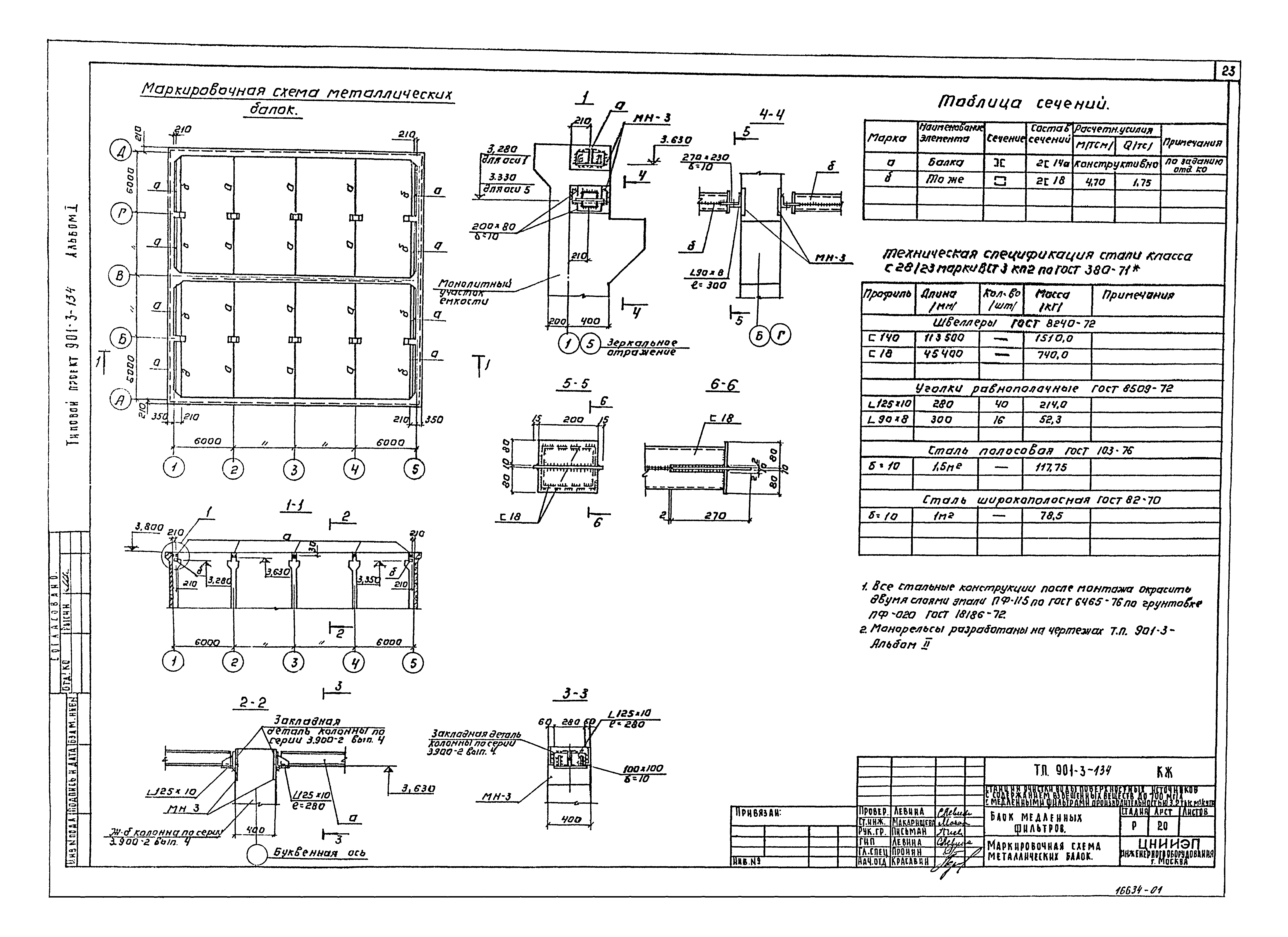
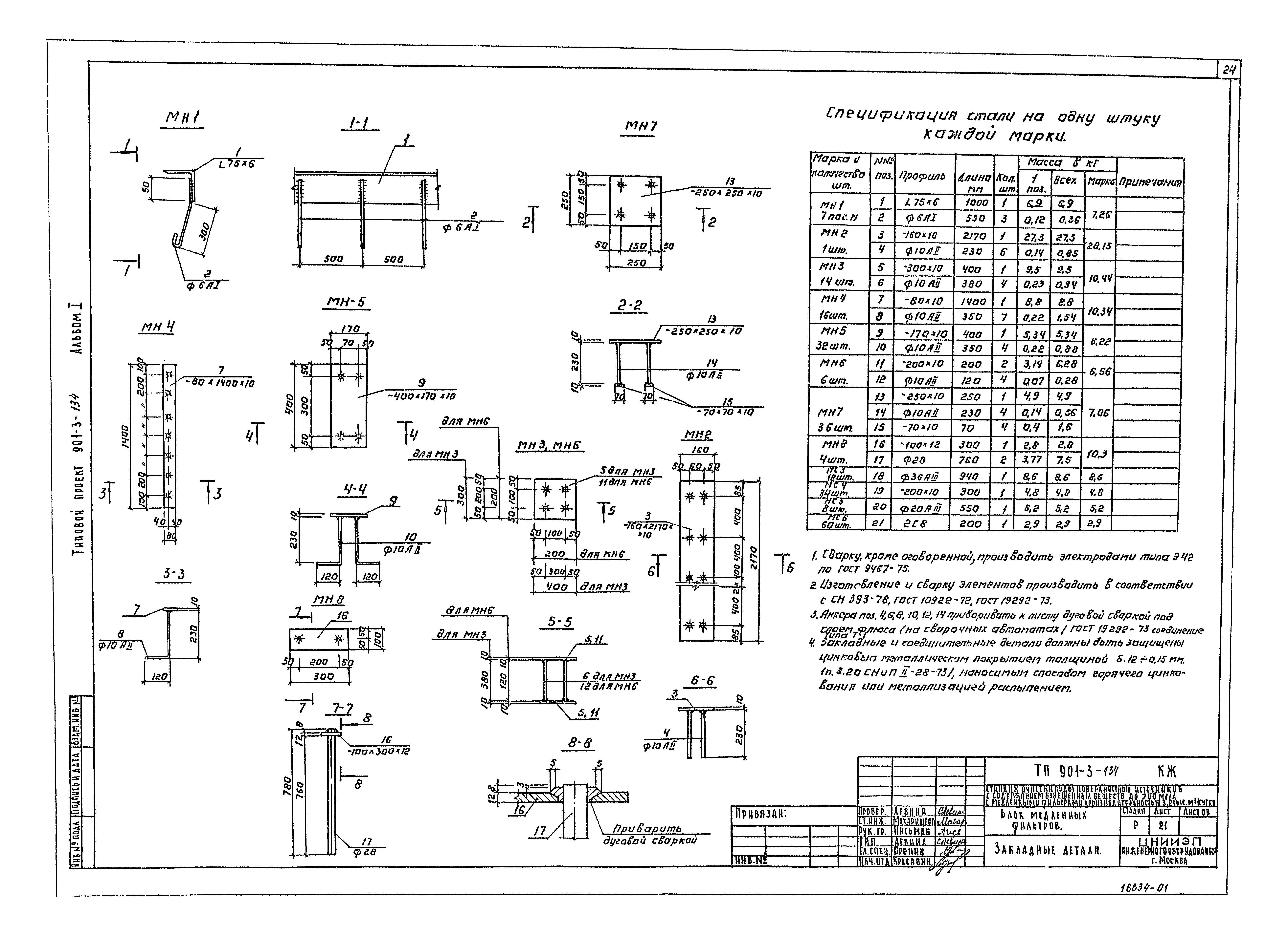
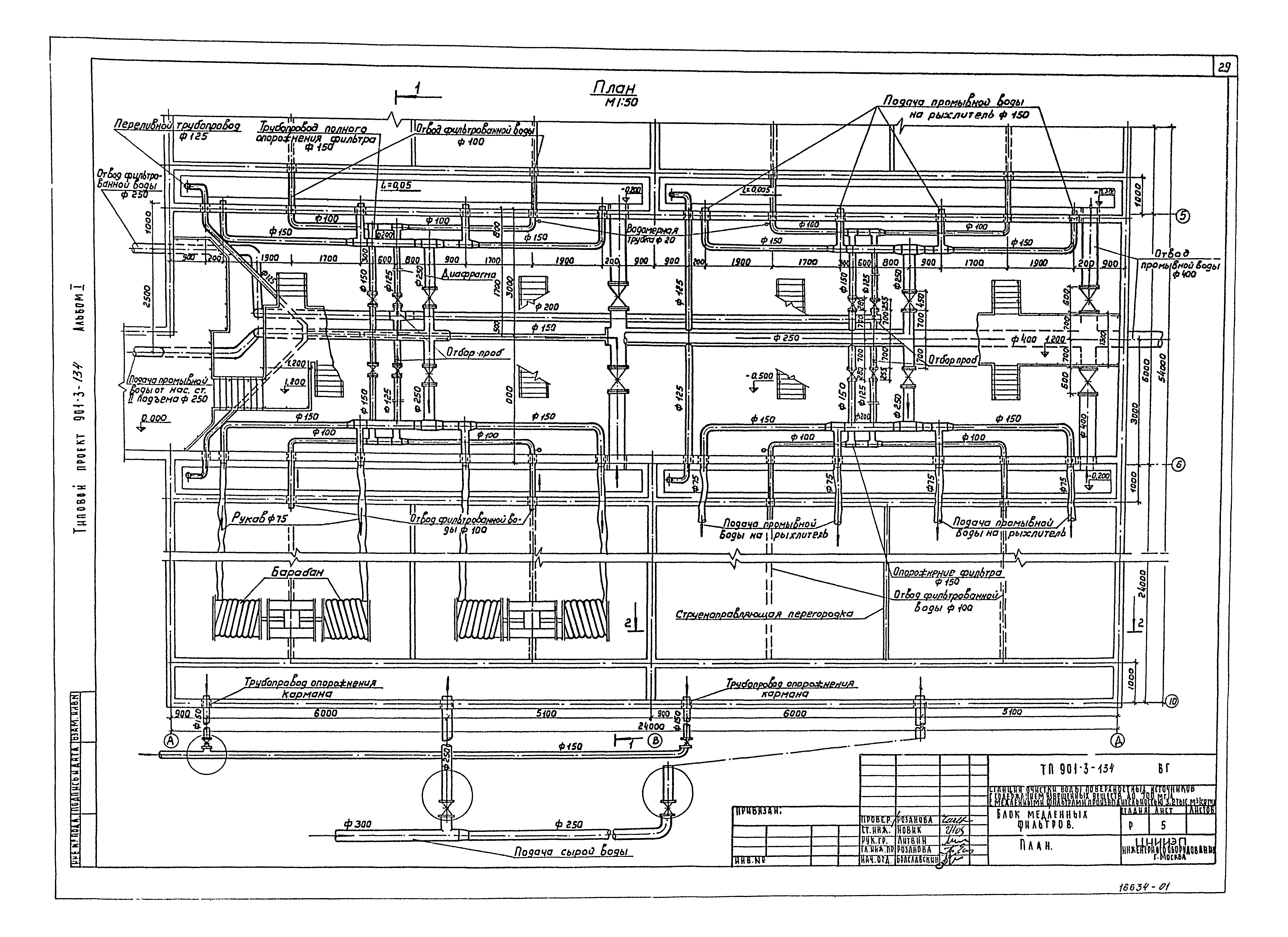
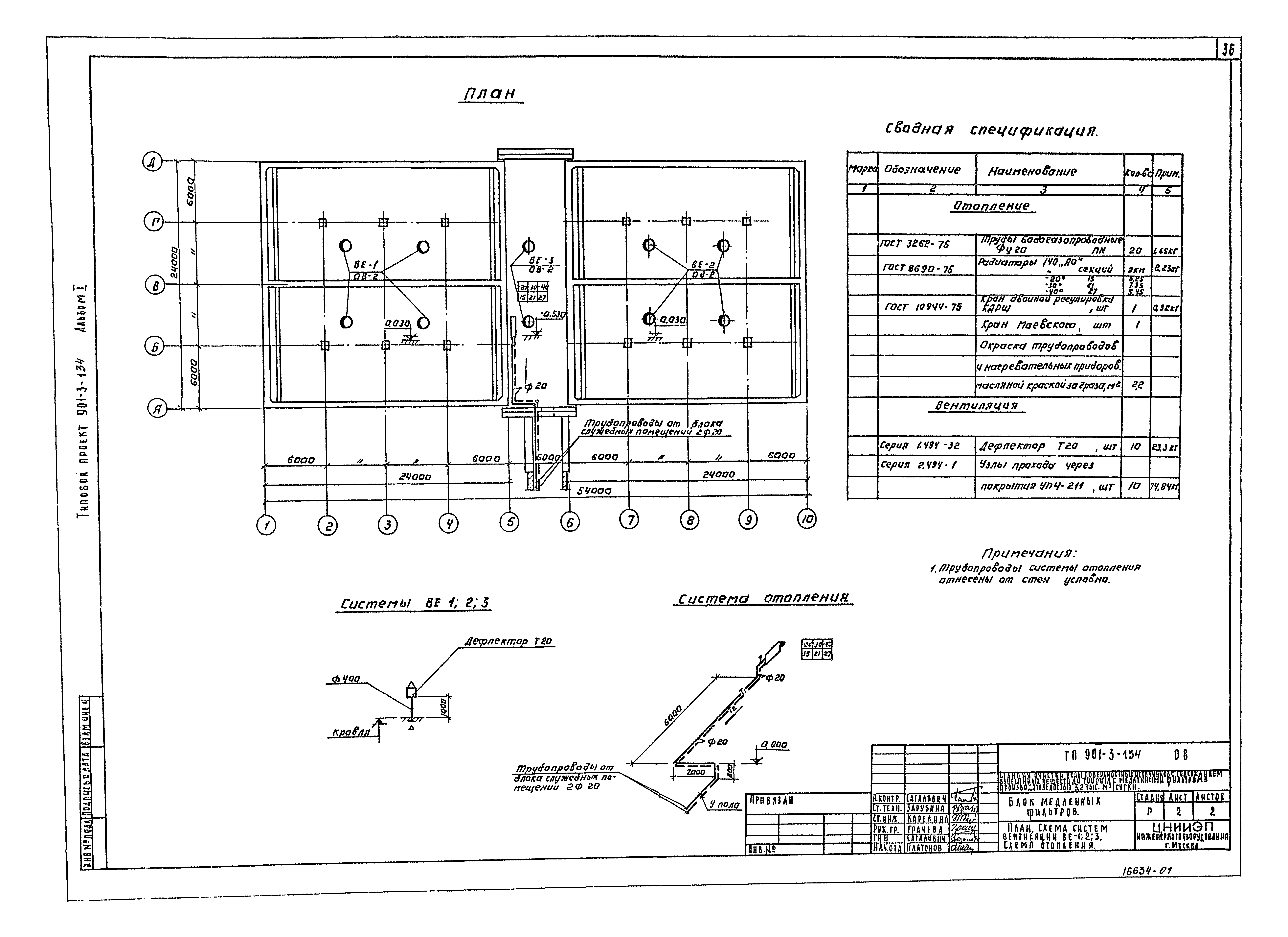
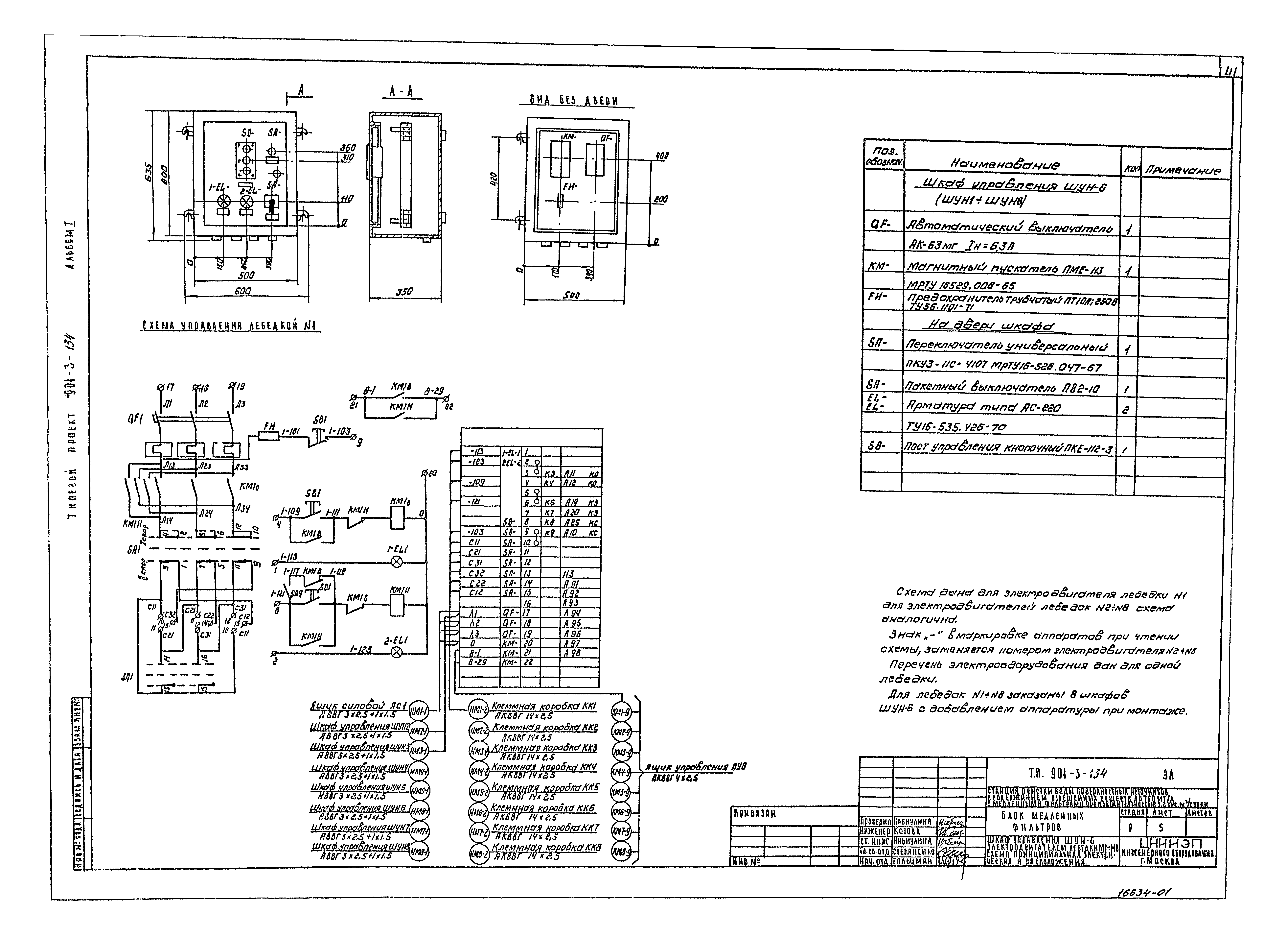
Скачать Типовой проект 901-3-134 Альбом I. Архитектурно-строительная, технологическая, санитарно-техническая, электротехническая части блока медленных фильтровДата актуализации: 01.01.2021 Типовой проект 901-3-134
Альбом I. Архитектурно-строительная, технологическая, санитарно-техническая, электротехническая части блока медленных фильтров| Обозначение: | Типовой проект 901-3-134 | | Обозначение англ: | 901-3-134 | | Статус: | не определен законодательством | | Название рус.: | Альбом I. Архитектурно-строительная, технологическая, санитарно-техническая, электротехническая части блока медленных фильтров | | Дата добавления в базу: | 01.02.2017 | | Дата актуализации: | 01.01.2021 | | Дата введения: | 20.11.1979 | | Дата окончания срока действия: | 30.06.2003 | | Разработан: | ЦНИИЭП
| | Утверждён: | 18.08.1978 Госгражданстрой (Gosgrazhdanstroy 186)
| | Издан: | ЦИТП Госстроя СССР (CITP, Gosstroy (USSR) 1980 г. )
|
                                            
|