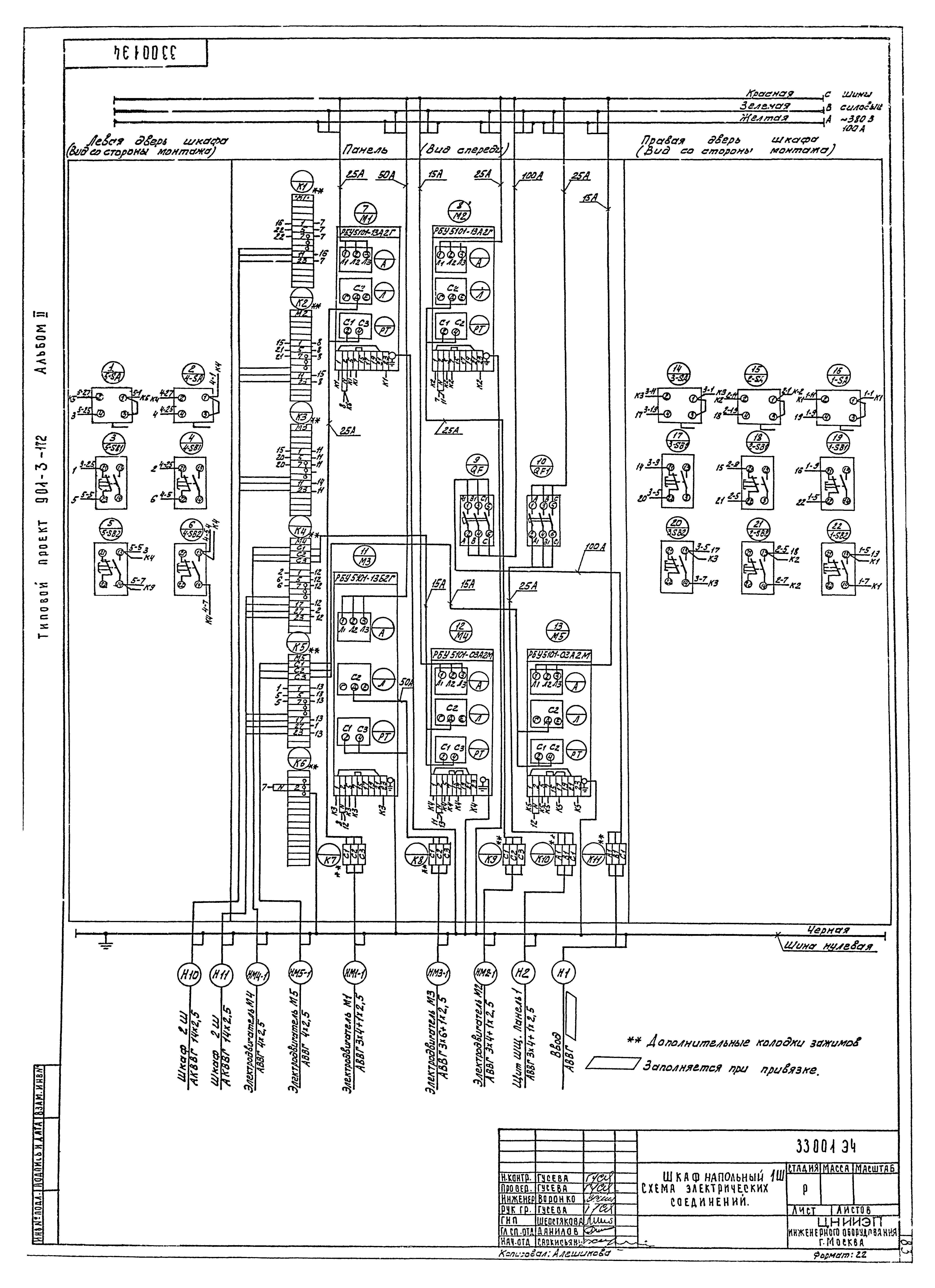
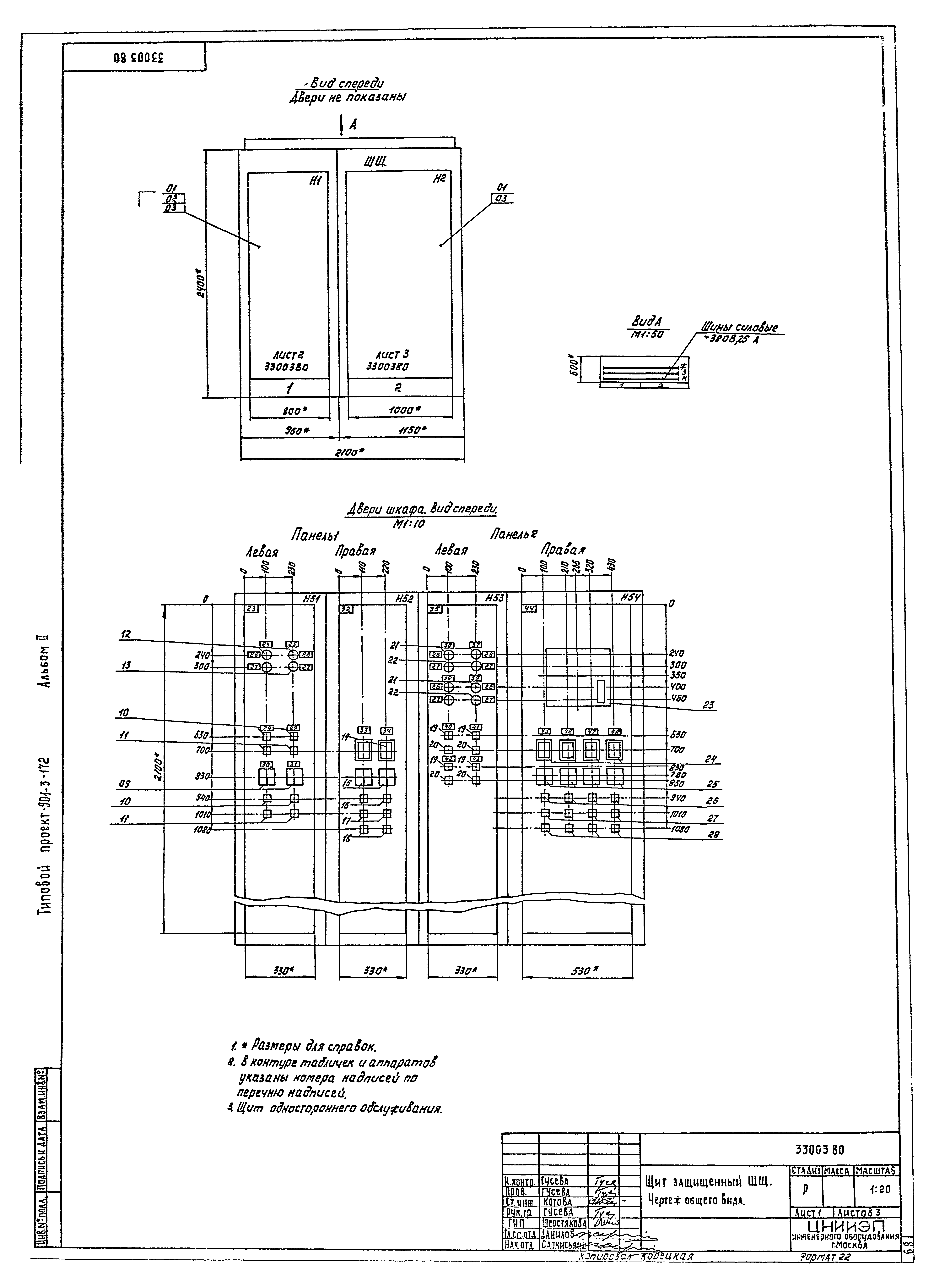
Скачать Типовой проект 901-3-172 Альбом II. Архитектурно-строительная, технологическая, сантехническая, электротехническая части, нестандартизированное оборудованиеДата актуализации: 01.01.2021 Типовой проект 901-3-172
Альбом II. Архитектурно-строительная, технологическая, сантехническая, электротехническая части, нестандартизированное оборудование| Обозначение: | Типовой проект 901-3-172 | | Обозначение англ: | 901-3-172 | | Статус: | не определен законодательством | | Название рус.: | Альбом II. Архитектурно-строительная, технологическая, сантехническая, электротехническая части, нестандартизированное оборудование | | Дата добавления в базу: | 01.02.2017 | | Дата актуализации: | 01.01.2021 | | Дата введения: | 02.08.1980 | | Дата окончания срока действия: | 30.06.2003 | | Разработан: | ЦНИИЭП инженерного оборудования
| | Утверждён: | 06.05.1980 Госгражданстрой (Gosgrazhdanstroy 120)
| | Издан: | ЦИТП Госстроя СССР (CITP, Gosstroy (USSR) 1983 г. )
|
                                                                                            
|