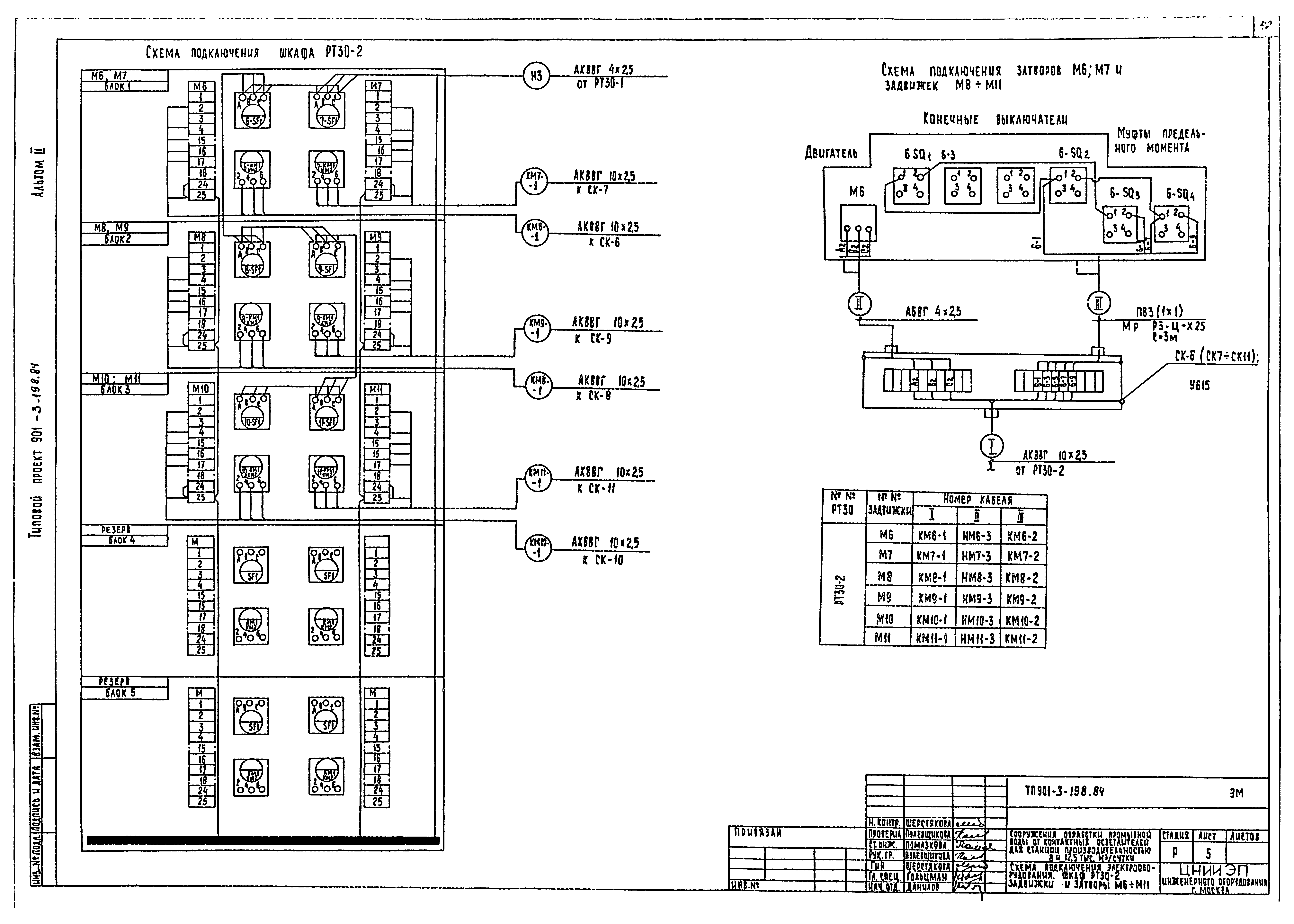
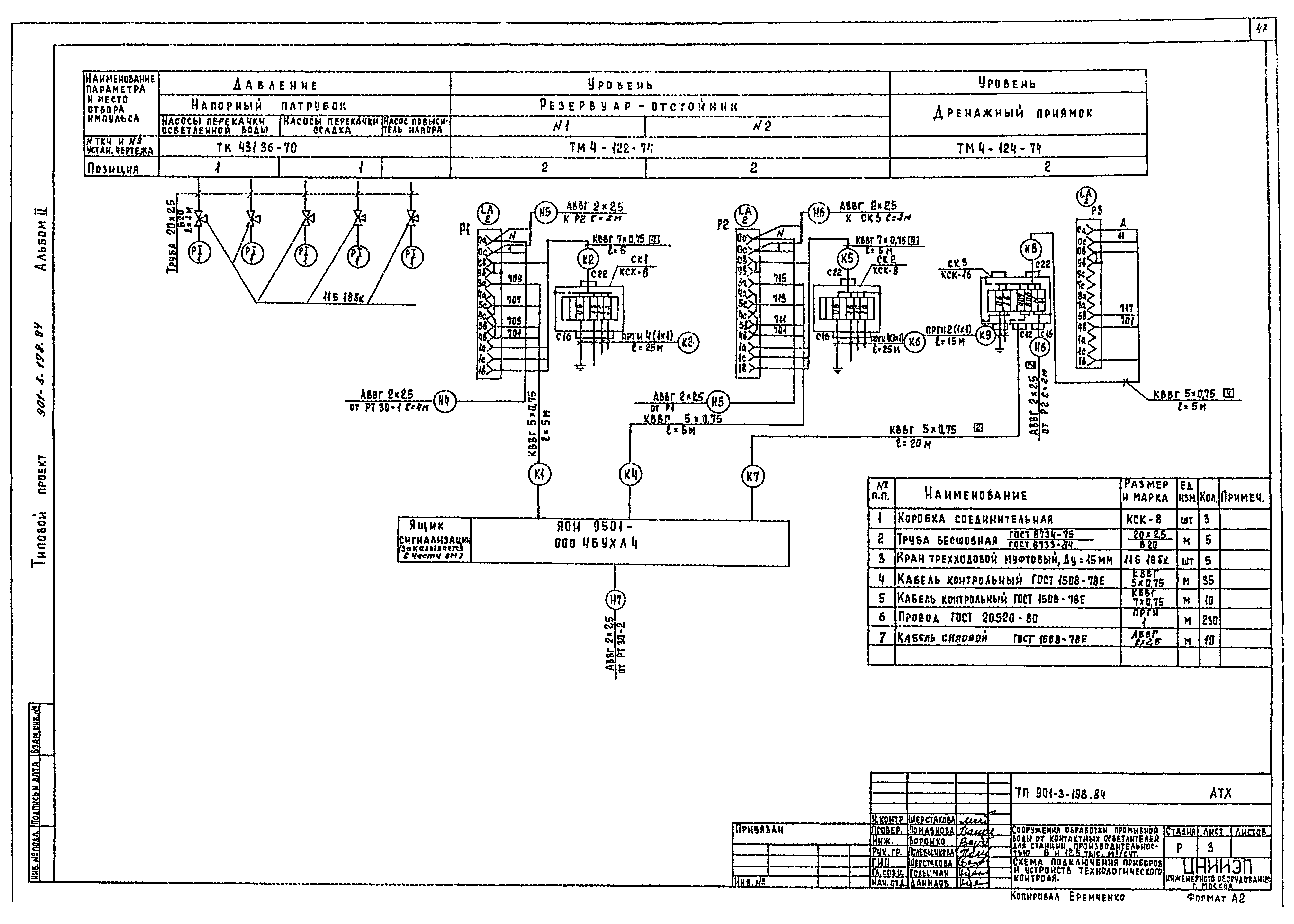
Скачать Типовой проект 901-3-198.84 Альбом II. Архитектурно-строительные решения, технологическая, сантехническая, электротехническая части, Нестандартизированное оборудованиеДата актуализации: 01.01.2021 Типовой проект 901-3-198.84
Альбом II. Архитектурно-строительные решения, технологическая, сантехническая, электротехническая части, Нестандартизированное оборудование| Обозначение: | Типовой проект 901-3-198.84 | | Обозначение англ: | 901-3-198.84 | | Статус: | не определен законодательством | | Название рус.: | Альбом II. Архитектурно-строительные решения, технологическая, сантехническая, электротехническая части, Нестандартизированное оборудование | | Дата добавления в базу: | 01.02.2017 | | Дата актуализации: | 01.01.2021 | | Дата введения: | 25.09.1984 | | Дата окончания срока действия: | 30.06.2003 | | Разработан: | ЦНИИЭП
| | Утверждён: | 06.05.1980 Госгражданстрой (Gosgrazhdanstroy 120)
| | Издан: | ЦИТП Госстроя СССР (CITP, Gosstroy (USSR) 1985 г. )
|
                                                  
|