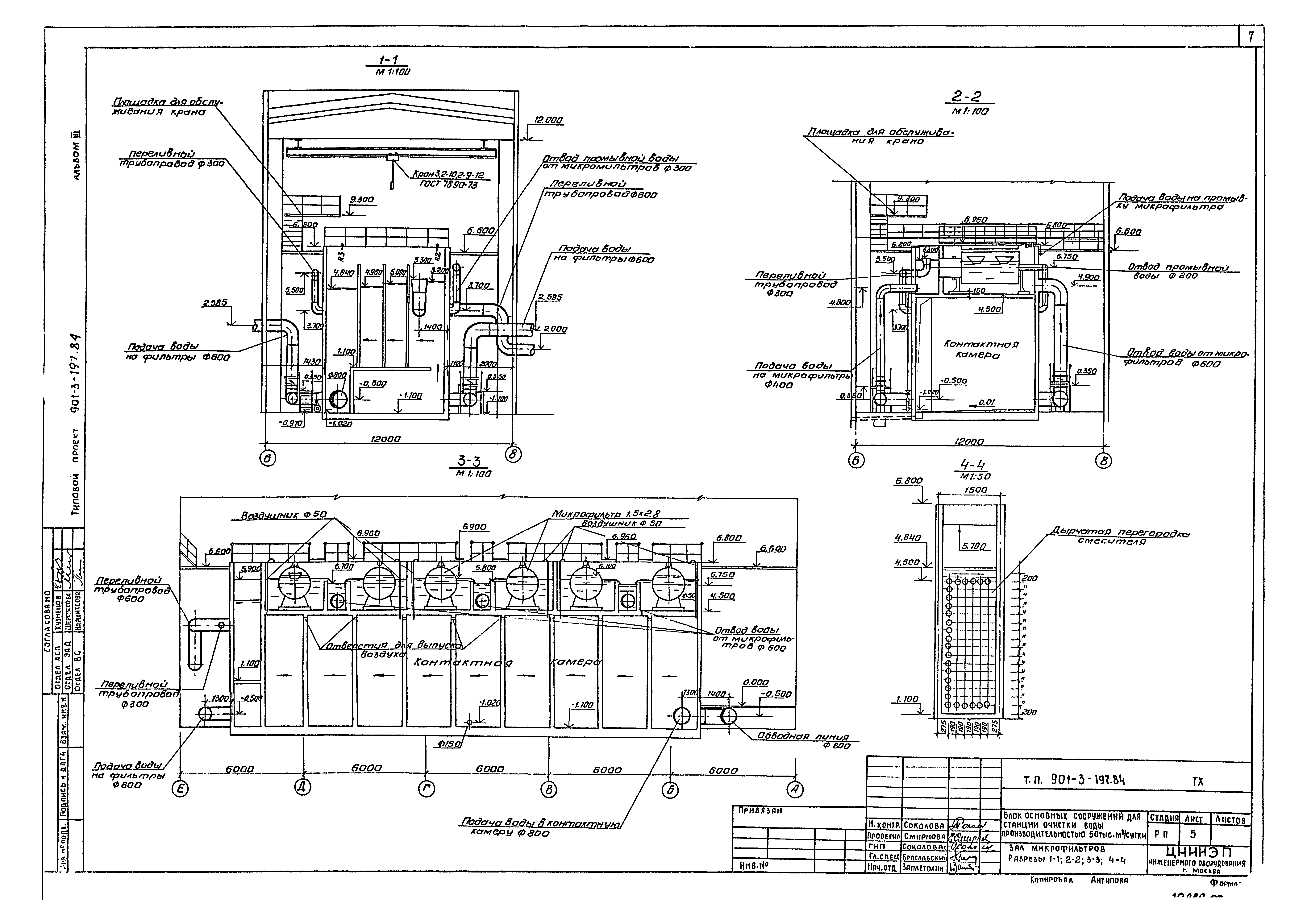
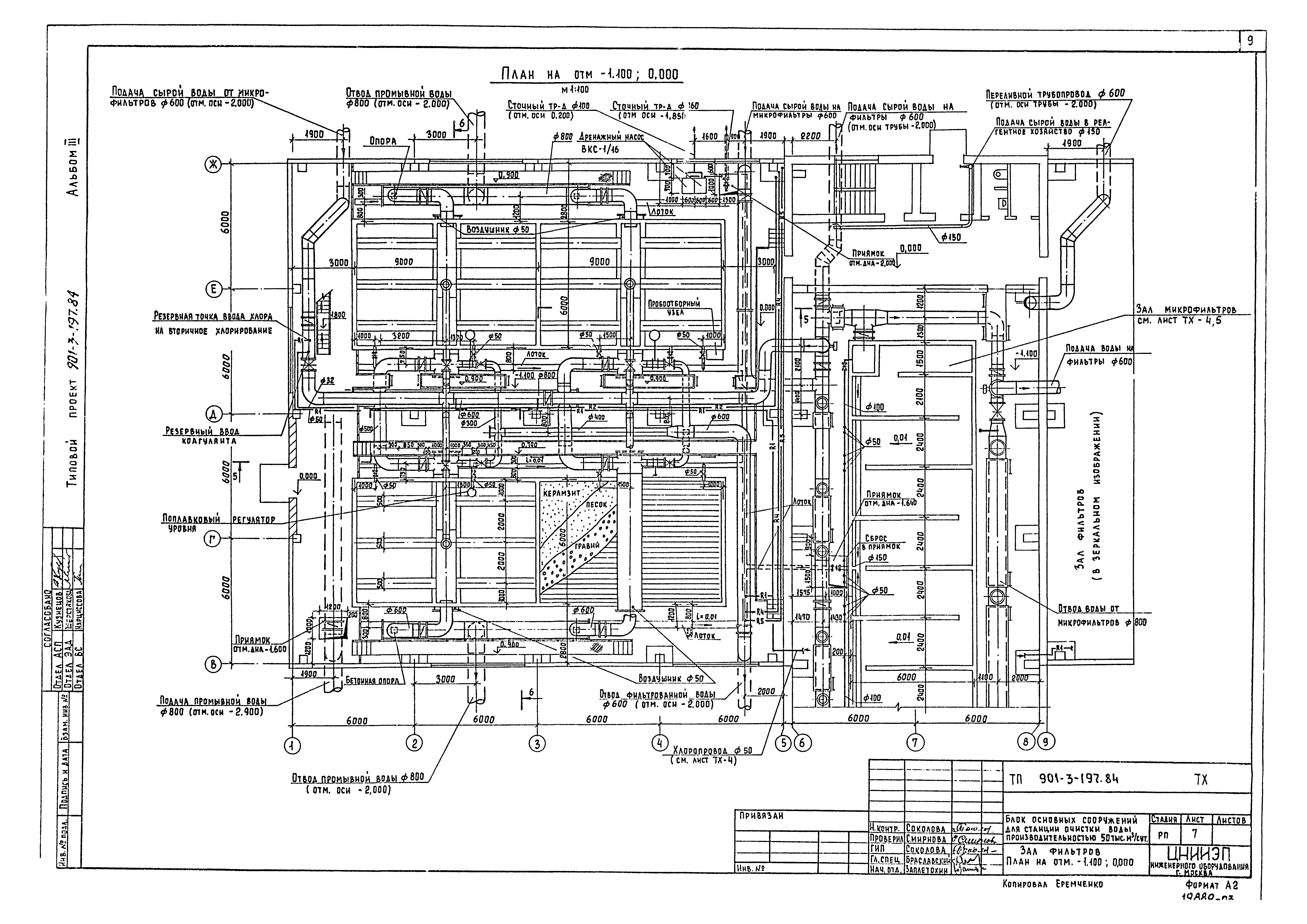
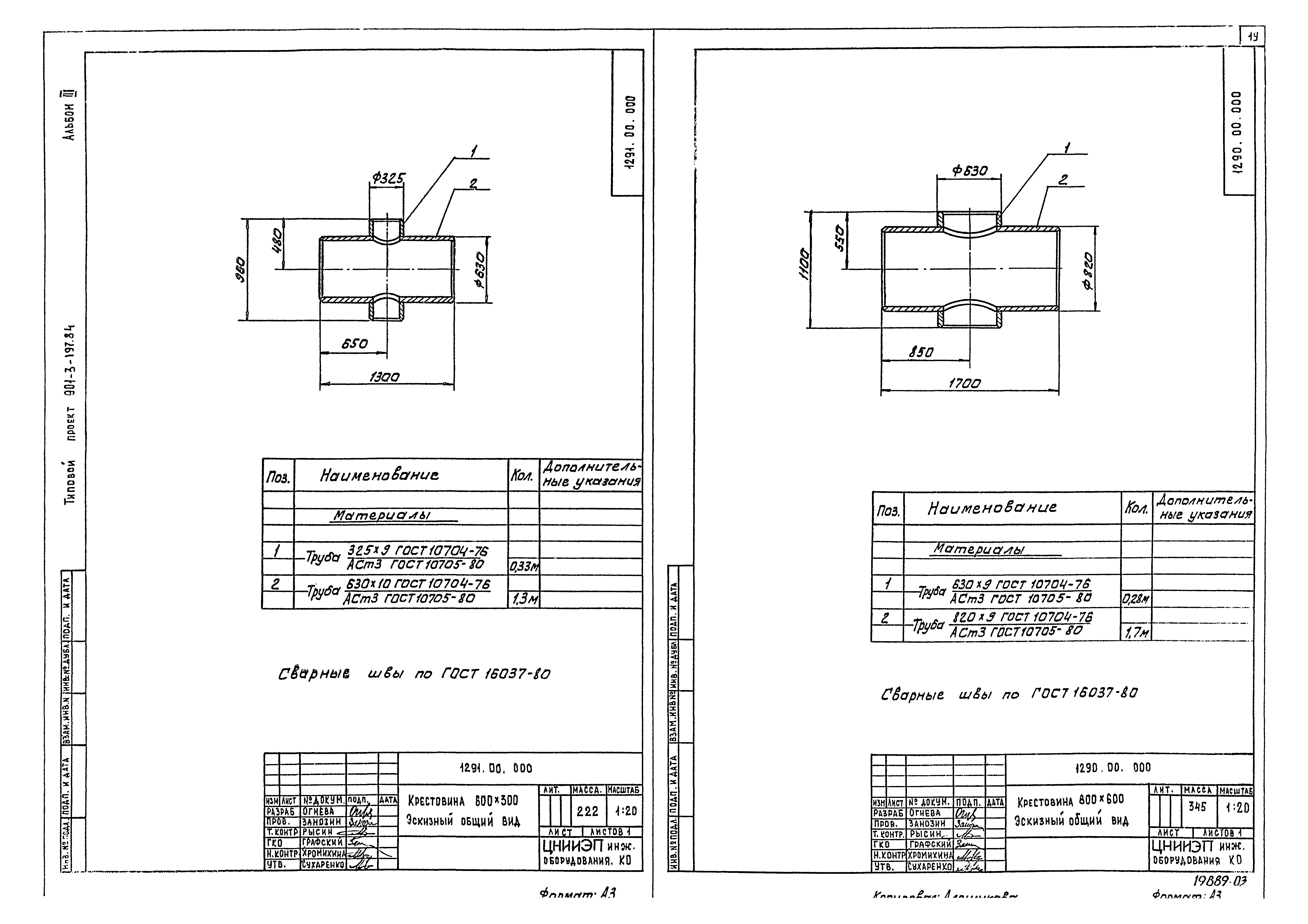
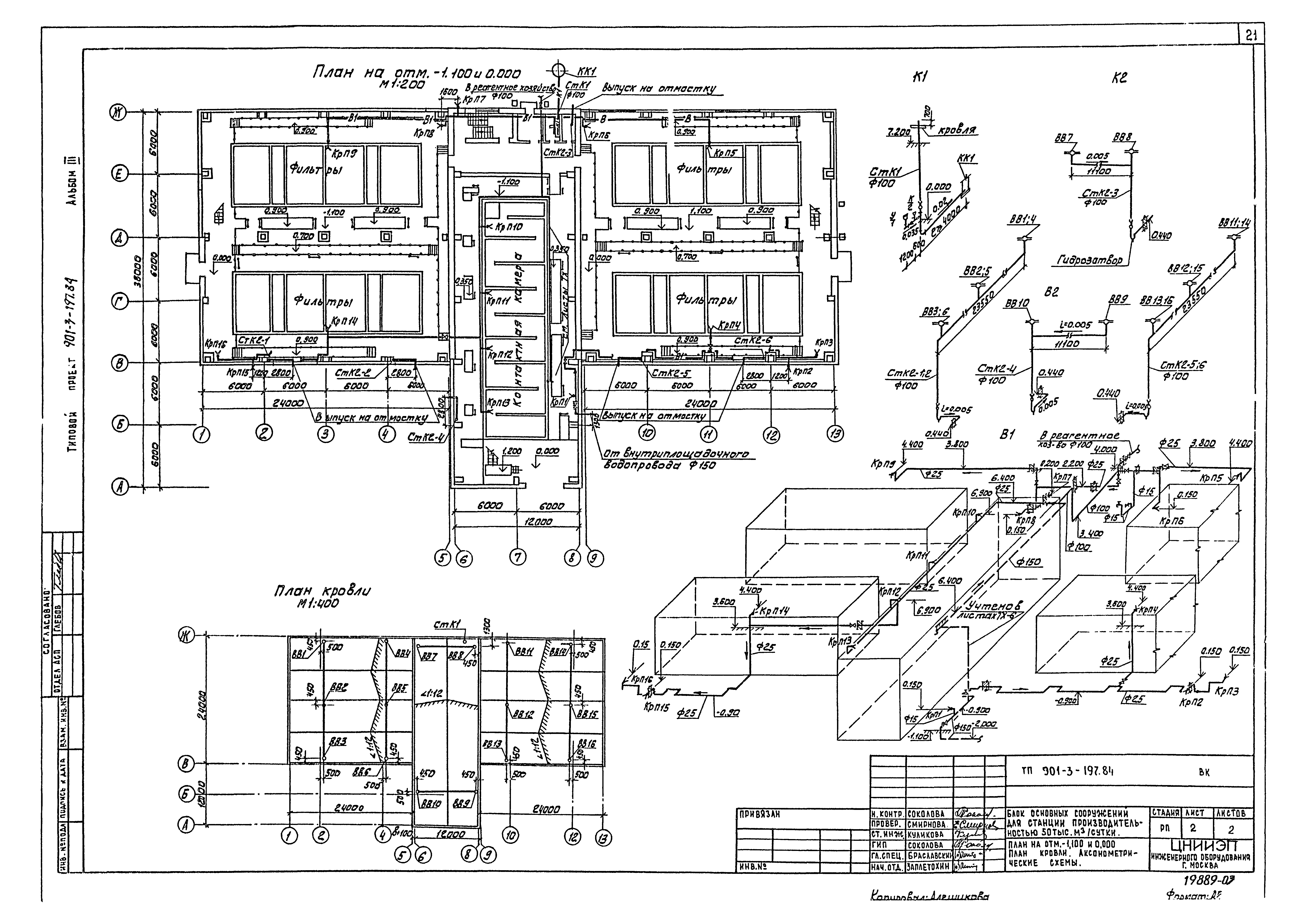
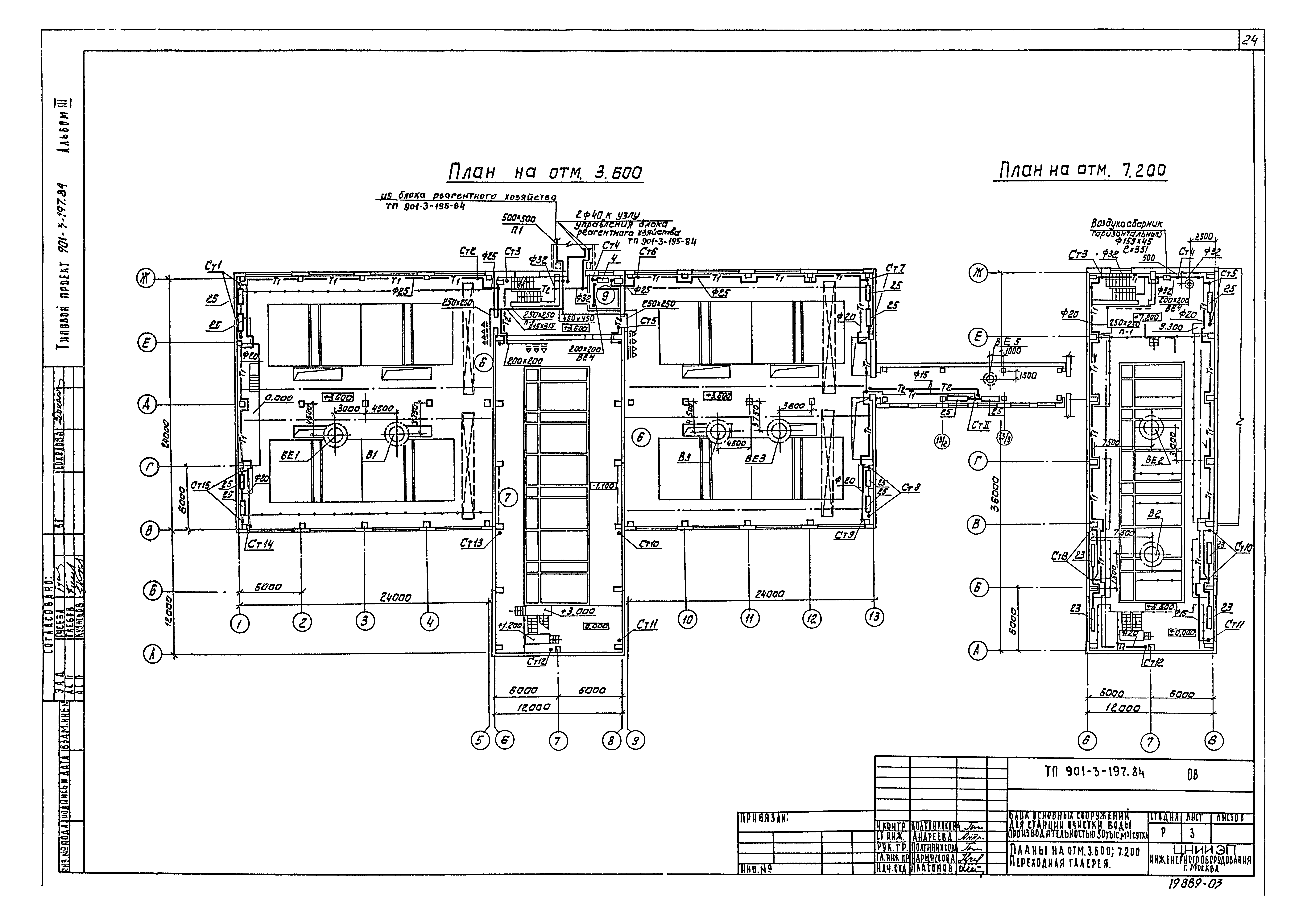
Скачать Типовой проект 901-3-197.84 Альбом III. Технологическая, сантехническая части, нестандартизированное оборудованиеДата актуализации: 01.01.2021 Типовой проект 901-3-197.84
Альбом III. Технологическая, сантехническая части, нестандартизированное оборудование| Обозначение: | Типовой проект 901-3-197.84 | | Обозначение англ: | 901-3-197.84 | | Статус: | не определен законодательством | | Название рус.: | Альбом III. Технологическая, сантехническая части, нестандартизированное оборудование | | Дата добавления в базу: | 01.02.2017 | | Дата актуализации: | 01.01.2021 | | Дата введения: | 21.05.1984 | | Дата окончания срока действия: | 30.06.2003 | | Разработан: | ЦНИИЭП инженерного оборудования
| | Утверждён: | 31.01.1984 Госгражданстрой (Gosgrazhdanstroy 31)
| | Издан: | ЦИТП Госстроя СССР (CITP, Gosstroy (USSR) 1985 г. )
|
                          
|